Want to buy this house plan? Scroll to the bottom and find the link to purchase.


Want to buy this house plan? Scroll to the bottom and find the link to purchase.
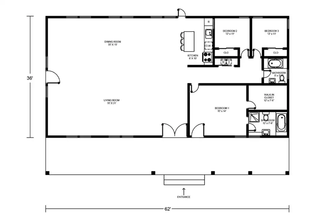
- This floor plan presents a 62′ x 36′ barndominium design featuring three bedrooms and two bathrooms.
- The expansive living area, comprised of a 30′ x 21′ living room and a 30′ x 15′ dining room, creates a central hub for gatherings and relaxation.
- A 12′ x 15′ kitchen, strategically positioned between the living areas, ensures functionality and ease of use.
- The layout prioritizes open space and comfortable living, making it ideal for those seeking a modern and spacious home.




