
Page Contents
About the Barndominium Plan
- Area: 2782 sq. ft.
- Bedrooms: 4
- Bathrooms: 3
- Stories: 2
- Garage: 4
- This exquisite 2-story barndominuim-style modern farmhouse is simple yet refined and is equipped with 4 bedrooms and 3 baths in 2,782 square feet of living space.
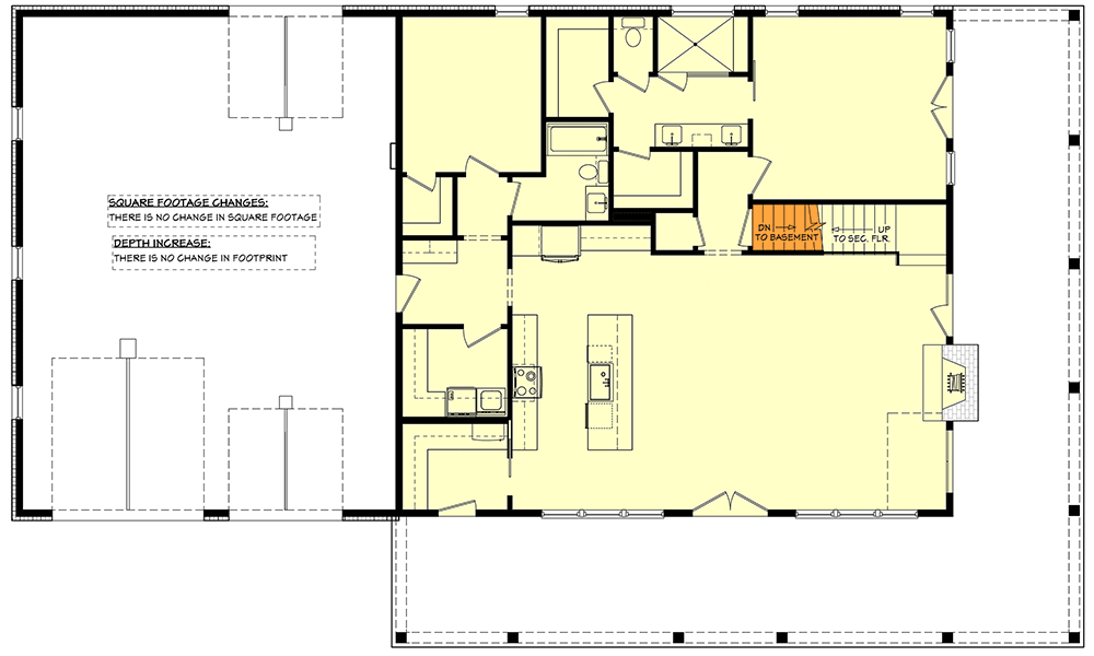
- The kitchen, dining, and great room with fireplace and 20’4″ ceiling are all open and perfect for entertaining with a corner porch that can be accessed from all 3 rooms.
- All bedrooms are spacious and boast walk-in closets. The main suite has separate closets and an oversized shower.
- The second floor is also fitted with a loft that’s open to the first floor
- The left garage bay has a 12′ by 12′ overhead door giving you clearance for an RV or other oversized vehicle. The right bay has a 9′ by 8′ overhead door in front and in back giving you drive-through abilities.
Floor Plans of 2-Story Barndominium-Style Modern Farmhouse Plan with 4-Bed Under 2800 Square Feet

First Floor

2nd Floor

Basement Stairs Location

Gallery of photos for 2-story Barndominium-Style Modern Farmhouse Plan with 4-Bed Under 2800 Square Feet









