Want to buy this house plan? Scroll to the bottom and find the link to purchase.



Want to buy this house plan? Scroll to the bottom and find the link to purchase.
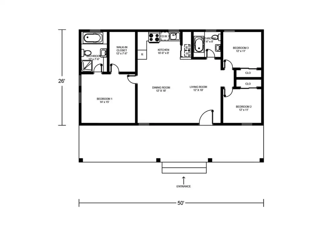
- This floor plan presents a 50′ x 26′ barndominium design featuring three bedrooms and two bathrooms.
- The central living area, comprised of a 12′ x 18′ dining room and a 12′ x 18′ living room, provides a comfortable space for gatherings and relaxation. A 16′-6″ x 8′ kitchen maximizes functionality for cooking and storage.
- The layout offers comfortable private spaces with a 14′ x 15′ master bedroom and two additional bedrooms, each 12′ x 11′.
- This design prioritizes a blend of open living and private comfort, making it suitable for a variety of lifestyles.




