Want to buy this house plan? Scroll to the bottom and find the link to purchase.


Want to buy this house plan? Scroll to the bottom and find the link to purchase.
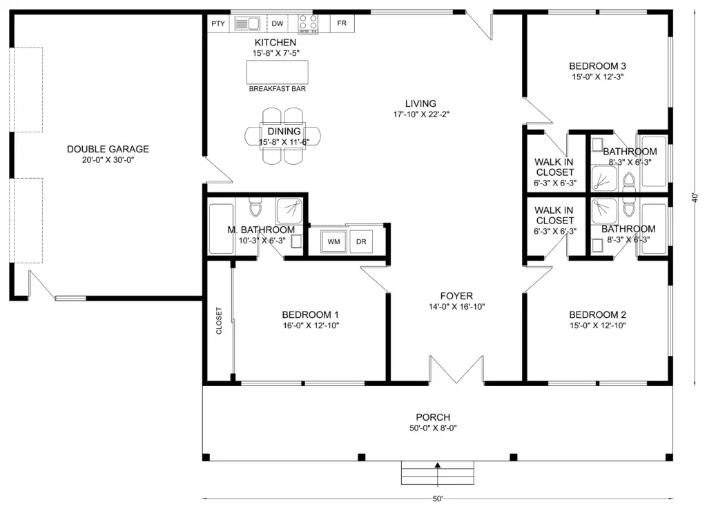
BCO-40082 Barndominium House Plan
- Offering 2,000 square feet of well-organized living space, this single-story floor plan features three bedrooms, three full bathrooms, and a welcoming 50-foot wide front porch.
- A grand 14′-0″ x 16′-10″ foyer creates an impressive entrance, leading into the main living areas which include a spacious 17′-10″ x 22′-2″ living room and an open-concept dining room and kitchen.
- The primary suite is privately situated off the foyer and contains a 16′-0″ x 12′-10″ bedroom with its own dedicated en-suite bathroom.
- A key feature of this design is that the two additional bedrooms are also private suites, each boasting its own walk-in closet and full en-suite bathroom.
- With direct access from the 2-car garage into the home, this plan expertly combines a formal layout with ultimate convenience.

