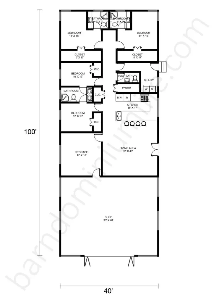
PL-62502 Interested in ordering this plan? Fill out the form below. Please enable JavaScript in your browser to complete this form.Please enable JavaScript in your browser to complete this form.Name *FirstLastEmail *Phone *Desired Floor Plan *How Can We Help with Your House Plans? Be as descriptive as possible. *Do You Already Own Land? *YesNoWhat Is Your Timeline to Build? *0-6 months6-12 months> 12 monthsJust BrowsingSubmit