While the barndominium movement often brings to mind corrugated metal and industrial finishes, The Zephyr (LP-3201) serves as a masterclass in how to elevate the concept using classic masonry and heavy timber. This design trades the “metal box” aesthetic for a sophisticated, brick-clad sanctuary that feels both ruggedly durable and elegantly refined.
Page Contents
Curb Appeal: Timeless Masonry Meets Grand Scale

The exterior of the Zephyr makes an immediate architectural statement by blending earthy textures with bold, modern contrasts. Unlike standard builds, this home utilizes a multi-toned brick facade that grounds the structure into its natural surroundings.

The Signature Entryway: A massive, timber-framed gable with dark-stained wood trusses serves as the home’s focal point, providing an organic warmth to the front facade.

The “Slow Living” Porch: A deep, sheltered porch supported by rustic wooden columns stretches across the entire front of the home, encouraging a lifestyle centered on outdoor relaxation.

Modern Accents: Sharp black-trimmed windows and a matching side-entry two-car garage provide a contemporary edge that balances the traditional brickwork.

Al Fresco Entertaining: The rear of the home features a massive vaulted patio, complete with space for an outdoor kitchen, designed for seamless indoor-outdoor hosting.
Interior Design: A Study in High-Contrast Elegance

Step inside, and the “barn” roots vanish, replaced by a Modern Transitional interior that prioritizes volume and light. The open-concept hub is defined by soaring vaulted ceilings and a moody, sophisticated palette.
The Great Room



The living area is anchored by a dramatic floor-to-ceiling fireplace. A stacked-stone lower half provides a grounded, rustic feel, while a black shiplap chimney breast draws the eye upward to a dark-stained ridge beam that spans the length of the room.
The Chef’s Kitchen

Designed for the culinary enthusiast, the kitchen features espresso-toned cabinetry that stretches to the ceiling. A massive central island with boldly veined stone countertops offers both a preparation station and a social hub, illuminated by ornate wrought-iron chandeliers.
Functional Luxury

No detail is overlooked in the utility spaces. The laundry room is a designer’s dream, featuring butcher-block countertops, a deep stainless steel farmhouse sink, and custom dark wood cabinetry for maximum organization.
Private Retreats: The Bedrooms and Bathrooms
The Zephyr is meticulously designed to offer every occupant a sense of sanctuary, balancing communal energy with quiet, private quarters.

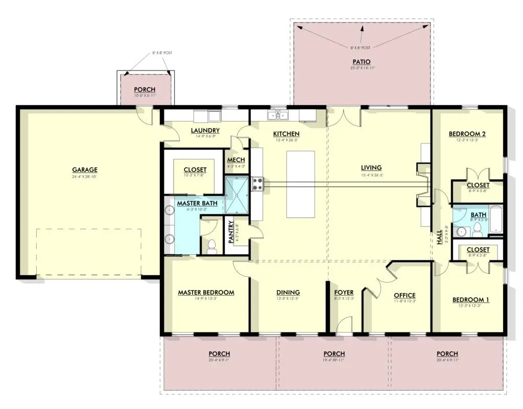
The Master Suite: Located in its own wing for ultimate privacy, the master bedroom is a spacious retreat featuring neutral tones and large windows. It includes a generous $10’3″ \times 7’8″$ walk-in closet with custom shelving.

The Master Bath: A sliding barn door reveals a luxury ensuite equipped with a sprawling double vanity, high-end stone countertops, and modern matte black hardware.

Secondary Bedrooms: Two additional bedrooms, each measuring $12’3″ \times 12’3″$, provide comfortable accommodations for family or guests. These rooms feature plush carpeting, ample closet space, and a bright, airy feel.The Guest Bath: Positioned between the secondary bedrooms, the full guest bathroom maintains the home’s high-end aesthetic with a clean vanity, integrated tub/shower, and designer lighting.

Blueprint Breakdown: The Zephyr (LP-3201) Layout
The genius of the Zephyr lies in its “split-wing” floor plan, which optimizes flow while ensuring personal privacy for every member of the household.

Zoned Privacy: By placing the master suite on the opposite side of the home from the secondary bedrooms, the layout creates a natural acoustic and social buffer.
