Finding the perfect barndominium floor plan can be hard when you are trying to find the one that fits your family’s needs the best! If you are tired of searching then look no further because we are showcasing our favorite (and our buyers and reader’s favorite) 20 barndominium floor plans. We promise you are going to love them!
For custom-designed floor plans, or to modify an existing floor plan, be sure to visit https://barndominiumplans.com.
Barndominiums offer a new and affordable way to design the home of your dreams. And because of their rustic, airy open style, they can also be used as a vacation home to be passed down for generations to come. They also hold their value, so they also provide a good return on investment (ROI).
Page Contents
Best Barndominium Plans
PL-71101-PGS Barndominium House Plan
- Extensive 4,020 SF single-level layout provides an open, airy atmosphere with zero stairs for ultimate accessibility and ease of movement.
- Versatile sleeping quarters include a secluded master retreat, two spacious guest rooms, and a fully independent bedroom within the Gen-suite.
- High-end bath configuration offers private ensuites for main residents plus two convenient powder rooms for guests and entertaining.
- Self-contained living wing features a dedicated bedroom, full bath, and cozy kitchenette, providing perfect independence for parents or guests.
- Massive central gathering space serves as the home’s heartbeat, featuring a cozy fireplace and seamless flow into the dining area.
- Quiet front-facing study offers the ideal environment for remote work, creative projects, or a peaceful library retreat.
- Enormous rear porch setup includes a fully equipped outdoor kitchen for the ultimate premium alfresco entertaining experience.
- Smart parking design includes a primary 2-car garage for the main house and a separate 1-car bay for a workshop or third vehicle.
- Generous front and rear covered porches provide over 2,300 SF of sheltered outdoor space for morning coffee or scenic sunset views.
- Integrated organization zone off the garage keeps the main living areas tidy with built-in storage and efficient utility access.
PL-71011-HGS Barndominium House Plan
- Massive 4,162 SF layout offers extensive room for families to grow and thrive on one accessible level.
- Self-contained wing features independent bedroom, full bath, laundry, living area, and functional kitchenette.
- Spacious sleeping quarters include grand master retreat, three guest rooms in main home, and private Gen-suite bedroom.
- Five full bathrooms and one convenient powder room ensure total privacy and accessibility for all residents.
- Enormous 68-foot wide garage provides over 2,200 SF of space for massive vehicle collections or a dream workshop.
- Two distinct rear porches and large central front porch offer multiple sheltered zones for relaxation.
- Integrated organization hub off the 3-car garage simplifies household management with dedicated counter space and storage.
PL-71011-GS Barndominium House Plan
- Single-story design offers expansive living areas and seamless transitions without a single staircase to navigate.
- Sleeping quarters include a grand master retreat, a guest room in the main house, and two additional bedrooms within the private Gen-suite.
- Four full bathrooms and two convenient powder rooms ensure every wing of the home has private and guest-ready facilities.
- Self-contained living area features two bedrooms, a full bath, kitchenette, private living room, and its own dedicated 1-car garage.
- Dedicated media space provides the ultimate environment for cinematic movie nights or immersive gaming.
- Three-car storage is split between a primary 2-car garage for the main house and a private 1-car bay for the Gen-suite.
- Grand rear porch with a built-in fireplace and a cozy central front porch offer over 850 SF of sheltered outdoor space.
PL-62521-GS Barndominium House Plan
- Massive 4,467 SF floor plan provides expansive room for family life and entertaining across one accessible level.
- Comprehensive sleeping quarters include a secluded master retreat, two secondary guest rooms, and two additional bedrooms tucked within the private Gen-suite.
- Four full bathrooms and two convenient half-baths (Powder and W.C.) ensure every wing of the home remains functional and private.
- Dedicated multi-generational wing features two bedrooms, a full bath, private laundry, and a combined living and kitchenette area for total independence.
- Oversized 24′ x 15′ media space provides the ultimate environment for movie nights, gaming, or a secluded home office.
- Covered front porch and a large rear patio offer over 450 SF of sheltered space for outdoor hosting and relaxation.
- Two separate laundry areas—one in the main house and one in the Gen-suite—make household management effortless.
PL-62103-GS Barndominium House Plan
- Massive 4,710 SF single-story layout provides unparalleled space for family life, hobbies, and grand-scale entertaining.
- Six-bedroom floor plan includes a private primary retreat, three spacious guest rooms, and two additional bedrooms within the Gen-suite.
- Four-and-a-half bathrooms offer total convenience, including a dedicated powder room for guests and private ensuite options.
- Self-contained Gen-suite features two dedicated bedrooms, a private living area, a functional kitchenette, and its own laundry space.
- Centralized media room provides the perfect sound-dampened spot for movie nights, gaming, or a home theater setup.
- Unique pet parlor offers a specialized space for grooming and pampering your furry family members.
- Enormous 4-car garage delivers ample room for a full vehicle fleet, a workshop, and seasonal storage.
- Huge front porch and a massive 40-foot wide rear patio create incredible opportunities for indoor-outdoor hosting and relaxation.
- Well-placed mud room and separate storage closet off the garage keep daily clutter out of the main living areas.
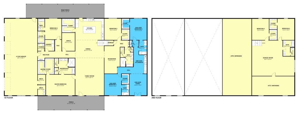
PL-60707-KGS Barndominium House Plan
- Spanning an extraordinary 5,462 square feet, this home is designed for those who believe space should inspire. Every corner delivers comfort, grandeur, and the freedom to live expansively.
- Commanding two-story design creates striking visual drama while thoughtfully separating lively gathering areas from peaceful private retreats.
- With six spacious bedrooms and multiple well-appointed bathrooms, this layout effortlessly supports large families, guests, and multi-generational living without sacrificing privacy.
- A standout feature, the fully equipped Gen-Suite offers its own living room, kitchenette, bedroom, and bath—creating a true home-within-a-home for extended family or long-term guests.
- An oversized island anchors this stunning kitchen, surrounded by generous prep space and pantry storage—perfect for hosting, gathering, and creating unforgettable meals.
- Designed for fun without limits, the recreation room becomes the ultimate destination for entertainment, hobbies, or relaxed evenings with family and friends.
- Essential systems are neatly tucked away in a dedicated mechanical space, preserving the home’s clean aesthetic and functional flow.
- Vaulted openness and open-to-below features flood the home with light while creating breathtaking vertical volume that elevates every gathering space.
- Large unfinished attic zones offer exceptional storage today and exciting possibilities for tomorrow’s expansion or customisation.
- Extensive covered porches extend the home outdoors, creating inviting spaces for quiet mornings, sunset conversations, or unforgettable celebrations.
- A spacious three-car garage provides abundant room for vehicles, storage, hobbies, or workshop dreams.
PL-2819-GS Barndominium House Plan
- An impressive 4,918 sq ft, two-story design offering expansive living space ideal for large families and multi-generational households.
- Fully integrated generational suite featuring its own private living room, kitchenette, bedroom, bath, and direct access—perfect for extended family, guests, or independent living within the home.
- Three spacious bedrooms including a luxurious master suite, secondary bedroom, and a private Gen-Suite bedroom for added flexibility.
- Massive loft overlooking the main living space—perfect for a second family room, game area, or media space.
- Dramatic open-to-below areas enhance natural light and create a grand, airy feel in the main living space.
- A substantial unfinished space upstairs offers future expansion potential—ideal for additional bedrooms, hobby rooms, or storage.
- Practical mudroom with built-in storage and adjacent laundry room keeps daily routines organised and clutter-free.
- Dedicated mechanical space keeps essential systems neatly housed and out of main living areas.
- Generously sized garage providing ample space for vehicles, storage, and workshop needs.
- Large covered porches wrap around key areas of the home, creating seamless indoor-outdoor living and ideal spaces for relaxing or entertaining.
PL-60707-GS Barndominium House Plan
- An expansive 6,500 sq ft, two-story design created for large households, multi-generational living, and exceptional everyday comfort.
- Seven generously sized bedrooms—including a luxurious master suite, Gen-Suite bedrooms, and upstairs bedrooms—paired with six full bathrooms and a half bath for ultimate convenience.
- Fully equipped generational suite featuring its own living room, kitchenette, two bedrooms, bathrooms, and private circulation space—perfect for extended family, guests, or independent living.
- Dedicated office space provides a quiet environment for working from home or managing daily tasks.
- Versatile recreation room offers the perfect space for hobbies, games, or a secondary entertainment area.
- Large upstairs school or learning room ideal for homeschooling, studying, crafting, or creative projects.
- Dedicated mechanical spaces efficiently house home systems while keeping them out of main living areas.
- Multiple storage areas throughout the home help keep seasonal items, equipment, and supplies neatly organised.
- Large unfinished attic sections provide excellent opportunities for future expansion or additional storage.
- Generous covered porches extend living outdoors, creating comfortable areas for relaxing or entertaining year-round.
- A massive four-car garage offers ample room for vehicles, tools, equipment, or workshop space.
BCO-40081-GS Barndominium House Plan

- An expansive 4,210 sq ft layout designed for large families, multi-generational living, and comfortable entertaining.
- A fully integrated generational suite featuring its own living room, kitchenette, two bedrooms, and dedicated bathrooms—perfect for extended family, guests, or independent living within the home.
- Five generously sized bedrooms, including a luxurious master suite and two private bedrooms within the Gen-Suite wing.
- Well-appointed bathrooms throughout the home, including private Gen-Suite baths and a convenient powder room for guests.
- Bright, flowing kitchen, dining, and living room space ideal for hosting, relaxing, and everyday family life.
- Dedicated office near the foyer, ideal for working from home or managing daily tasks.
- Defined foyer that creates a welcoming first impression and organized entry point.
- A large three-car garage offering generous room for vehicles, storage, and workspace needs.
- Wide covered porch that extends your living outdoors—ideal for relaxing evenings and entertaining guests.
PL-82001 Fowler Barndominium House Plan

- 5792 heated Square Feet
- 6 Bedrooms
- 4.2 Bathrooms
- 2 Story
- Open Concept
- Hobby room
- Game/media room
- Sitting area
- Playroom
- Front & rear porch
- 2-car detached garage
- Luxuriate in nearly 5,800 square feet of impeccably designed, temperature-controlled living—every square foot crafted for comfort, elegance, and unforgettable gatherings.
- Six inviting bedrooms promise restful retreats for every family member or guest—each one a private sanctuary with space to breathe, unwind, and dream.
- With four full baths and two stylish powder rooms, convenience meets sophistication—ensuring seamless mornings and elegant hosting for any occasion.
- Thoughtfully arranged across two expansive levels, this layout balances togetherness and personal space—ideal for vibrant entertaining below and tranquil escapes above.
- From airy conversations in the kitchen to effortless entertaining in the great room, the open-concept design flows with natural light and modern sophistication.
- Whether it’s painting, crafting, or perfecting your next passion project, the hobby room offers a creative corner tailored for inspiration and focus.
- Movie marathons, game nights, or immersive binge sessions—the dedicated game/media room delivers cinematic comfort and lively fun for all ages.
- A quiet sitting area beckons for reflective mornings, casual reading, or warm, intimate conversations with a cup in hand and sunlight streaming in.
- Let imaginations run wild in a bright, cheerful playroom designed for kids to explore, create, and grow in their own lively little world.
- From sunrise coffees on the welcoming front porch to serene sunsets out back, these dual outdoor spaces invite connection with nature and neighbors alike.
- The detached two-car garage adds both function and charm—perfect for vehicle storage, gear organization, or converting into a workshop or studio.
SV-5506 Aspen Barndominium House Plan

- 3680 Heated Square Feet
- 3 Bedrooms
- 3 Bathrooms
- Single Story
- Open concept
- Breezeway
- Rear porch
- Outdoor Kitchen
- Flex room
- Game Area & Recreational Hall
- Prep room & Butler’s pantry
- J&J bathroom & ADA-accessible bathroom
- A generous 3,680 sq ft layout designed for comfortable living, entertaining, and unforgettable gatherings.
- Three spacious bedrooms and three full bathrooms provide comfort, privacy, and flexibility for family and guests.
- Charming breezeway that connects spaces while adding airflow, character, and an inviting transition indoors and out.
- Relaxing rear porch with an outdoor kitchen perfect for enjoying peaceful outdoor moments or entertaining.
- Versatile flex room that easily adapts to your needs, from home office to hobby space or guest room.
- An expansive game and recreation area designed for fun, gatherings, and endless entertainment.
- Functional prep room and butler’s pantry that keep the main kitchen organized and hosting effortless.
- Smart bathroom design with a convenient Jack & Jill layout plus an ADA-accessible bath for comfort, accessibility, and peace of mind.
PL-71011-H Harvest Barndominium House Plan
- 4162 Heated Square Feet
- 4 Bedrooms
- 4.2 Bathrooms
- Single Story
- Open concept
- Foyer
- Office
- Great room and Living room
- Indoor and Outdoor Fireplace
- Mudroom/Laundry
- 2 Indoor kitchens
- Outdoor kitchen
- Front and rear porch
- Outdoor kitchen
- Mudroom/laundry room
- 1890 Sq Ft Garage
- A sprawling 4,162 sq ft layout that delivers exceptional space, comfort, and high-end living from end to end.
- Four well-designed bedrooms offering privacy, flexibility, and room for family, guests, or multi-generational living.
- Enjoy total convenience with four full bathrooms plus two half baths—perfect for busy mornings and effortless hosting.
- Two spacious living areas—one grand, one cozy—giving you the flexibility to entertain, relax, or gather in comfort.
- Two full indoor kitchens—ideal for serious cooks, large families, catering, or hosting unforgettable events.
- A massive 1,890 sq ft garage with incredible room for multiple vehicles, storage, tools, and hobbies.
Even More Barndominium Plans
Not finished browsing? Check out even more of our top barndominium plans:
PL-61703 Medfield Barndominium House Plan

- 2406 Heated square feet
- 4-5 bedrooms
- 3 bathrooms
- 1 Story
- Playroom
- Open Concept
- The Medfield barndominium house plan is 2406 heated square feet and 4-5 bedrooms with 3 full bathrooms.
- In the main living area of this house plan, you are welcomed with an open-concept design that creates a nice open spacious with plenty of room for friends and family to gather.
- The kitchen is large with a center island and pantry. The island is home to the sink so that you can be part of the conversation in the family room even while doing dishes.
- The master bedroom has plenty of room to relax and unwind. With an ensuite bathroom with a separate shower and tub, there is plenty of space for you and your partner to get ready in the mornings.
- With up to 4 additional secondary bedrooms there is plenty of room for everyone to spread out and enjoy some downtime after a long day. One of the additional bedrooms can act as a study or guest bedroom.
- The playroom is another great feature of this home that is located just off the kitchen allowing moms and dads to cook and still have an eye on the kids as they play.
- The laundry is quite large and has a nice-sized storage closet that is perfect for storing all your cleaning supplies so that the laundry room stays nice and tidy.
- You will find that this barndominium house plan has lots of storage throughout the home which is a huge plus.
- The Veranda is large and is the perfect place to sit and relax after a long day.
SV-5503-C Charlie Barndominium House Plan
- 1677 Heated square feet
- 2 Bedrooms
- 2.1 Bathrooms
- Open concept
- Single story
- Utility room
- Safe room
- Mudroom
- Covered porch
- Garage/shop
- Smartly sized at 1,677 square feet—designed for comfort, flow, and functional elegance.
- Two dreamy bedrooms tailored for restful nights and personalized escapes.
- Two full baths plus a sleek half bath—perfect for busy mornings and effortless entertaining.
- Breathe easy in this open layout where living, dining, and kitchen spaces connect seamlessly.
- Out of sight but never out of reach—this utility room keeps laundry day neat and efficient.
- Peace of mind built in—this reinforced safe room adds a layer of security without sacrificing style.
- Your front-line defense against the mess—this transitional mudroom keeps life tidy and organized.
- Sip, sit, and savor—this charming covered porch beckons for breezy afternoons and quiet evenings.
- More than a parking spot—this versatile garage/shop is a hobbyist’s haven and a storage dream.
LP-2807 Wescott Barndominium House Plans

- 1800 Heated square feet
- 4 bedrooms
- 3 bathrooms
- 2 Story
- Loft
- Open Concept
- The Wescott barndominium house plan is 1800 heated square feet and features 4 bedrooms and 3 bathrooms.
- The open-concept design allows for plenty of space for the family to mingle and interact with one another. The main areas of the home appear even larger thanks to the vaulted ceilings.
- The kitchen is large and spacious with a large island with ample counter space and a decent-sized pantry in the corner of the kitchen.
- This plan includes several windows to allow the natural light to flow throughout the home.
- The master bedroom is spacious with a large master bathroom, shower, and stand-alone tub. The double vanity allows the couple to get ready at the same time without bumping into one another. The master also offers a large walk-in closet.
- This house plan has 3 additional bedrooms all with a nice sized closet. One of the secondary bedrooms has a private bathroom attached. The remaining bedrooms share the additional bathroom located in the hall.
- Upstairs is a nice loft ready for a home office, playroom, or anything you desire.
- The Wescott barndominium house plan has both a front and back patio so there is plenty of room to enjoy the outdoors.
PL-71005 Vista Barndominium House Plan

- 4 Bedrooms
- 3.1 Bathrooms
- 3179 Heated Square Feet
- 2-story
- Loft
- Playroom
- Media room
- Mudroom
- Mechanical room
- Jack and Jill Bathrooms
- Attached 3-car garage
- Front porch
- Patio
- With an expansive 3,179 heated square feet, this two-story floor plan offers ample space for your family to grow and thrive.
- Enjoy the comfort and privacy of four generously sized bedrooms, including Jack and Jill bathrooms that provide convenience and elegance. The 3.1 bathrooms ensure there’s never a wait during busy mornings.
- The loft area is perfect for a cozy reading nook or home office, while the playroom offers a dedicated space for fun and creativity. The media room is designed for ultimate entertainment right at home.
- The mudroom is ideal for keeping your home tidy, and the mechanical room ensures your household systems are easily accessible. An attached 3-car garage offers ample parking and storage space for vehicles and outdoor gear.
- Relax on the inviting front porch or host gatherings on the stylish patio, making every moment spent outdoors special.
PL-71004 Alasio Barndominium House Plan

- 4 Bedrooms
- 3.1 Bathrooms
- 3887 Heated Square Feet
- 2-story
- Loft
- Mudroom
- Attached 3-car garage
- Front and back porch
- Office
- Fireplace
- Lounge
- 2 Jack and Jill Bathrooms
- Explore this beautifully designed 2-story barndominium, offering ample space for family and guests with a total of 3,887 heated square feet.
- The open-concept design seamlessly integrates the living, dining, and kitchen areas, making it ideal for daily living and entertaining. A cozy fireplace in the family room adds warmth and is a focal point for gatherings.
- This floor plan includes four spacious bedrooms, providing comfortable retreats for all family members and guests.
- The layout features a luxurious master bathroom and a well-appointed guest bathroom. With 3.1 bathrooms, including two Jack and Jill bathrooms, this home provides convenience and efficient use of space between bedrooms.
- A versatile loft area that can serve as an additional living space, playroom, or home gym.
- An attached 3-car garage offers ample space for vehicles, storage, and hobbies and the mudroom provides a practical entryway space, perfect for storing shoes, coats, and outdoor gear.
- Enjoy the outdoors with both front and back porches, perfect for relaxing, entertaining, or enjoying the fresh air.
- A dedicated office space for working from home, managing household tasks, or pursuing personal projects.
- A comfortable lounge area for relaxing, reading, or enjoying family time.
PL-2819 Hampton Barndominium House Plan


- 4918 Heated square feet
- 3 Bedrooms
- 3.1 Bathrooms
- 2-story
- Loft family/entertainment area
- Loft unfinished area
- Open concept
- Wraparound porch
- Mechanical room
- Mudroom
- 4-car attached Garage
- Nearly 5,000 square feet of finely crafted comfort—room to roam, entertain, and thrive without limits.
- Three spacious retreats, each its own private haven—designed for rest, romance, and a touch of indulgence.
- Every bedroom gets its own en-suite luxury, plus a powder room for guests—pure convenience meets elegant living.
- Game nights, movie marathons, and memory-making galore—plus extra loft space waiting for your creative touch.
- Wide, bright, and beautifully connected—this open-plan layout invites light, laughter, and seamless everyday living.
- Porch envy, activated—this wraparound stunner wraps your home in charm, sunshine, and endless outdoor moments.
- A quietly efficient hub—your home’s systems get the space they need without sacrificing aesthetics.
- Function meets finesse—this stylish drop zone keeps clutter at bay and your interiors pristine.
- Room for every ride, hobby, and weekend adventure—this oversized garage is a dream for car lovers and gearheads alike.
PL-2815 Travis Barndominium House Plan
- 2400 Heated square feet
- 40×60 living space dimension
- 3 Bedrooms
- 2 Bathrooms
- Single story
- Open concept
- Office
- Foyer
- Front porch
- Patio
- Deck
- Safe room
- Walkout basement
- 3-car attached garage
- Enjoy a perfectly balanced footprint offering 2,400 square feet of comfortably climate-controlled living space—roomy enough to stretch out, yet easy to maintain.
- With generous 40×60 dimensions, this home’s layout is designed for flow, flexibility, and functionality—ideal for entertaining and everyday living.
- Three well-appointed bedrooms offer restful retreats for family and guests alike—each thoughtfully placed for privacy, natural light, and comfort.
- Two full bathrooms bring both convenience and style, featuring modern fixtures and smart layouts for a smooth daily routine.
- No stairs, no hassle—this single-story, open-concept design delivers ease and accessibility, perfect for all stages of life.
- A dedicated home office provides a quiet, focused space for productivity—whether you’re working from home, tackling creative projects, or organizing life’s details.
- Step into a welcoming foyer that sets the tone with warmth and charm—a graceful transition from the outside world.
- The inviting front porch is more than curb appeal—it’s a breezy perch to sip coffee, greet neighbors, and enjoy golden hour views.
- Grill, gather, or unwind beneath the stars on your private patio—perfectly positioned for alfresco dining and outdoor living.
- A spacious deck extends your living space under open skies—a natural haven for morning routines or twilight conversation.
- Discreetly built for peace of mind, the safe room offers reinforced protection without sacrificing style or convenience.
- A seamless blend of indoor comfort and outdoor connection, the walkout basement extends your living space with direct access to the backyard. Whether transformed into a private retreat, entertainment hub, or guest quarters, its versatility adds value and functionality to your home.
PL-64013 Gibbons Barndominium House Plan
- 2000 Heated Sq Ft
- 4 Bedrooms
- 2 Bathrooms
- Storage spaces
- Mechanical room/Laundry room
- Open concept
- Single-story
- Front and back porch
- Spacious 2,000 heated sq ft with room to stretch, entertain, and relax in style.
- 4 bedrooms designed with comfort and privacy in mind—perfect for families or guests.
- 2 modern and functional bathrooms with plenty of space to start your day right.
- Never worry about clutter—dedicated storage keeps everything organized.
- Mechanical Room/Laundry Room: All your utilities and laundry needs neatly tucked away for maximum efficiency.
- Seamless flow from the living area to the kitchen—ideal for gatherings and everyday living in a single-story layout.
- Enjoy morning coffee out front and sunset views out back—your new favorite spots to unwind.
PL-69197 Bexley Barndominium House Plan
- 2683 Heated Sq Ft
- 4 Bedrooms
- 3 Bathrooms
- Laundry room
- Mudroom
- Open concept
- Two-story
- Loft Style
- 1432 Sq Ft Garage
- Front and back porch
- This two-story floor plan offers an impressive 2683 square feet of heated living space. The design also includes a substantial 1432-square-foot garage, perfect for housing vehicles, storage, or a workshop.
- This plan features four bedrooms, three of which are conveniently located on the main floor, and a guest bedroom on the second floor. Each bedroom, including the master and guest bedrooms, has its own private bathroom. Additionally, there is a shared bathroom on the main floor, making this design both practical and accommodating for a variety of living arrangements.
- A loft-style floor plan that features an open concept main floor. As you enter the house from the garage, you are greeted by a practical mudroom, perfect for storing outdoor gear and keeping the rest of the home clean. Conveniently, this mudroom is also linked to the laundry room, making it easy to manage household chores.
- This floor plan features a charming front porch, providing a warm welcome to visitors. At the rear of the house, a spacious back patio offers ample room for outdoor dining, relaxation, or entertaining. Whether you’re greeting neighbors at the front door or enjoying a backyard barbecue, this floor plan caters to a lifestyle that appreciates both community connection and private leisure.
PL-82001 Fowler Barndominium House Plan

- 5792 heated Square Feet
- 6 Bedrooms
- 4.2 Bathrooms
- 2 Story
- Open Concept
- Hobby room
- Game/media room
- Sitting area
- Playroom
- Front & rear porch
- 2-car detached garage
- Luxuriate in nearly 5,800 square feet of impeccably designed, temperature-controlled living—every square foot crafted for comfort, elegance, and unforgettable gatherings.
- Six inviting bedrooms promise restful retreats for every family member or guest—each one a private sanctuary with space to breathe, unwind, and dream.
- With four full baths and two stylish powder rooms, convenience meets sophistication—ensuring seamless mornings and elegant hosting for any occasion.
- Thoughtfully arranged across two expansive levels, this layout balances togetherness and personal space—ideal for vibrant entertaining below and tranquil escapes above.
- From airy conversations in the kitchen to effortless entertaining in the great room, the open-concept design flows with natural light and modern sophistication.
- Whether it’s painting, crafting, or perfecting your next passion project, the hobby room offers a creative corner tailored for inspiration and focus.
- Movie marathons, game nights, or immersive binge sessions—the dedicated game/media room delivers cinematic comfort and lively fun for all ages.
- A quiet sitting area beckons for reflective mornings, casual reading, or warm, intimate conversations with a cup in hand and sunlight streaming in.
- Let imaginations run wild in a bright, cheerful playroom designed for kids to explore, create, and grow in their own lively little world.
- From sunrise coffees on the welcoming front porch to serene sunsets out back, these dual outdoor spaces invite connection with nature and neighbors alike.
- The detached two-car garage adds both function and charm—perfect for vehicle storage, gear organization, or converting into a workshop or studio.
AP-20003-FB Franklin Barndominium House Plan
- 2000 Heated Square Feet
- 2 Bedrooms
- 2.1 Bathrooms
- Three-story layout
- Open-concept
- Mudroom
- Unfinished Basement
- 1200 SF 3-Car garage
- Storage loft
- Wraparound porch
- 2000 Heated Square Feet – Just the right size: spacious, efficient, and easy to manage.
- 2 Bedrooms – Roomy and private with space to unwind or host.
- 2.1 Bathrooms – Two full baths plus a powder room for guests.
- Three-story layout – Vertical living with separation, style, and stunning views.
- Open-concept – Airy, seamless flow from kitchen to living and dining.
- Mudroom – Keep the mess at the door—every country home’s secret weapon.
- Unfinished Basement – Blank canvas for a home gym, media room, or workshop.
- 1200 SF 3-Car Garage – Massive garage space for vehicles, toys, and projects.
- Storage Loft – Bonus overhead space to stash seasonal stuff or gear.
- Wraparound Porch – Classic charm meets outdoor living, all the way around.
CDD-4102 Ridge Barndominium House Plan
- 2400 Heated Sq Ft
- 3 Bedrooms
- 2.1 Bathrooms
- Single story
- Open concept
- Office
- Mechanical room
- Mudroom
- Front & Rear porch
- A perfectly balanced living space, offering ample room to breathe, grow, and enjoy, all while maintaining a cozy and manageable footprint.
- Three versatile retreats await—whether for restful nights, creative pursuits, or welcoming family and guests, these rooms are designed with comfort and function in mind.
- Two full bathrooms for your daily routines, plus a convenient half-bath for guests—style and practicality combine effortlessly.
- A seamless and accessible layout on a single level, perfect for ease of movement and a timeless, grounded design.
- An expansive flow of living, dining, and kitchen spaces that encourages connection, natural light, and effortless entertaining.
- Dedicated workspace to inspire productivity and focus, tucked away for privacy while still being part of the home.
- The unsung hero of functionality—a space devoted to housing your home’s essential systems, out of sight but not out of mind.
- Your buffer between the outdoors and your living space, ideal for stowing away shoes, coats, and the chaos of daily life.
- Dual outdoor living spaces, where you can greet neighbors out front or savor a quiet sunset in the back—perfect for year-round enjoyment.
Conclusion
By seeing what is possible when designing a barndominium floor plan, you can end up with the perfect plan for your needs. Whether you want to use one of these barndominium floor plans verbatim or if you want to use them as inspiration, you can end up with the perfect custom home for you and your family.
If you would like even more helpful guides like this one, be sure to check out the rest of Barndominiums.co. There, you will find more floor plans as well as featured barndominiums, guides to building a barndo in your state, and important guides in securing your financing and insurance. Getting ideas and gathering inspiration can help you build something that you can cherish for many years to come.












































