
PL-2819 Hampton Barndominium House Plan
Want to buy this house plan? Scroll to the bottom and find the link to purchase.
About this barndominium house plan:
- 4918 Heated square feet
- 3 Bedrooms
- 3.1 Bathrooms
- 2-story
- Loft family/entertainment area
- Loft unfinished area
- Open concept
- Wraparound porch
- Mechanical room
- Mudroom
- 4-car attached Garage
- Nearly 5,000 square feet of finely crafted comfort—room to roam, entertain, and thrive without limits.
- Three spacious retreats, each its own private haven—designed for rest, romance, and a touch of indulgence.
- Every bedroom gets its own en-suite luxury, plus a powder room for guests—pure convenience meets elegant living.
- Game nights, movie marathons, and memory-making galore—plus extra loft space waiting for your creative touch.
- Wide, bright, and beautifully connected—this open-plan layout invites light, laughter, and seamless everyday living.
- Porch envy, activated—this wraparound stunner wraps your home in charm, sunshine, and endless outdoor moments.
- A quietly efficient hub—your home’s systems get the space they need without sacrificing aesthetics.
- Function meets finesse—this stylish drop zone keeps clutter at bay and your interiors pristine.
- Room for every ride, hobby, and weekend adventure—this oversized garage is a dream for car lovers and gearheads alike.
What’s included in PL-2819:
Cover Sheet
Detailed Floor Plan Dimensions
Four Elevations – Front, Back, Left Side, Right Side
Electrical Plan
Plumbing Plan
HVAC Plan
Roof Framing Plan
Foundation Plan
Wall Section
For more barndominium floor plans, check out our complete collection of 3-bedroom barndominium floor plans.
Need to make changes? Email our modification department. We will get you a free price quote within 72 hours.
Please note all square footage are estimates.

Welcome to our exclusive tour, where we begin by admiring the stunning exterior of this classic barndominium. The home presents a beautiful blend of rustic charm and modern practicality with its light gray siding and a dramatic dark metal roof. A wide, inviting front porch, supported by sleek wooden posts, runs the entire length of the home, offering an ideal spot for a set of rocking chairs or a porch swing. The oversized two-car garage, with its warm wood-toned door, is easily accessible from the large concrete driveway. The simple yet elegant dormer window on the second floor hints at the cozy living spaces that await inside. This barndominium stands as a testament to the timeless appeal of simple, clean design and the beauty of rural living.

Stepping to the side, we get a new perspective of this home’s thoughtful design, highlighting its practical and spacious layout. The expansive wrap-around porch continues along the side, providing an abundance of sheltered outdoor space perfect for entertaining guests or simply enjoying the peaceful surroundings. The deep eaves and low-profile roofline create a sense of grounded tranquility, while the two garage doors offer both convenience and a unified aesthetic. The home’s neutral color palette feels warm and inviting against the bright, natural light of the sunny day. This view showcases how the home’s layout maximizes both indoor and outdoor living areas, creating a seamless connection with the beautiful landscape.

Turning to the rear of the home, we are met with a view that is both private and serene, offering a different kind of curb appeal. The large concrete pad behind the house provides ample space for a future patio or outdoor kitchen, making it a perfect extension of the living space. The continuation of the porch along the back of the house offers another shaded area to enjoy the outdoors, a true testament to the home’s commitment to seamless indoor-outdoor living. The back of the home is intentionally designed with simplicity in mind, showcasing the clean lines and modern design. From this perspective, the barndominium appears to be a secluded sanctuary, perfectly positioned to take advantage of its peaceful, natural surroundings.

Moving around the side, we are presented with a truly impressive view of the home’s striking roofline and an array of windows. The broad, low-slung metal roof gives the home a modern, sleek appearance, a perfect counterpoint to the rustic wooden porch posts. The side of the house features a large bank of windows, strategically placed to flood the interior with natural light and capture panoramic views of the surrounding landscape. The porch provides a deep, covered walkway, inviting you to take a leisurely stroll around the entire home. This angle perfectly illustrates the home’s grand scale and its seamless integration with the natural world, offering a stunning glimpse of the bright and airy living spaces within.

Now that we’ve explored the exterior, let’s step inside and discover the heart of the home: the living room. Our eyes are immediately drawn to the soaring, vaulted ceiling with its exposed wooden beams, creating an incredible sense of space and rustic charm. A magnificent artistic chandelier hangs as a stunning centerpiece, its warm glow illuminating the entire room and adding a touch of modern sophistication. The focal point is the impressive, floor-to-ceiling brick fireplace, which anchors the space and invites a cozy feeling, with a sleek television mounted discreetly above. The combination of dark, moody walls, rustic wood paneling, and plush, modern furniture creates a sophisticated yet incredibly comfortable atmosphere. This room perfectly captures the essence of a modern barndominium, blending rustic elements with refined, elegant design.

Stepping back, we can now appreciate the open-concept layout that seamlessly connects the living room to the kitchen and dining areas. The view reveals a stunning lofted space above, with a beautiful wooden staircase providing access to the second story while maintaining a sense of openness. The kitchen, framed by a striking brick accent wall, features sleek gray cabinetry and a large island, perfect for casual dining and entertaining. Two magnificent chandeliers hang from the ceiling, their warm light contrasting beautifully with the rich textures of the wood and brick. This space is designed for effortless flow and conversation, allowing the heart of the home to be a central hub for family and guests alike.

From this elevated vantage point, we can truly appreciate the expansive, open-concept design that defines the main living area. The magnificent chandelier hangs suspended over the seating arrangement, a dazzling focal point that draws the eye and highlights the incredible height of the space. We can see the entire kitchen and dining area laid out before us, from the long wooden dining table to the large kitchen island with its comfortable bar stools. The room is bathed in natural light, pouring in from the large windows that line the exterior wall and offering a beautiful connection to the outdoors. This perspective highlights the seamless flow between each functional space, demonstrating how the home is perfectly suited for both grand entertaining and intimate family gatherings.

We continue our tour of the living room, now appreciating the architectural design from a new angle that highlights the impressive staircase and loft. The staircase, with its natural wood railing and treads, serves as a stunning design feature, seamlessly connecting the lower and upper levels while maintaining an open, airy feel. The loft railing provides a beautiful view down into the main living space, emphasizing the home’s grand scale and thoughtful layout. A striking piece of modern art hangs on the wall, its bold black and white lines offering a dynamic contrast to the warm, rustic textures of the home. This view encapsulates the home’s signature blend of traditional barndominium elements with a sleek, contemporary aesthetic.

The tour now takes us into the heart of the home, the kitchen, a space that is both stylish and incredibly functional. The centerpiece is the large, rustic island, topped with a beautiful, earthy slab of stone that provides ample space for preparing meals and gathering with family and friends. A row of three industrial-style pendant lights hangs above, casting a warm glow on the workspace and the sleek faucet. The cabinetry is a soft, muted gray, a modern contrast to the stunning brick accent wall that frames the stove and range hood. With a full-sized refrigerator and state-of-the-art appliances, this kitchen is designed for the serious home chef while maintaining a welcoming atmosphere for all.

Now, our journey takes us upstairs to a space dedicated to recreation and relaxation: the playroom. This vast, open area, with its high ceilings and rich wooden floors, is a true haven for leisure activities. The room is equipped with a classic pool table and a vibrant ping-pong table, inviting friendly competition and fun-filled afternoons. On the far side of the room, a cozy sitting area with plush sofas offers a perfect spot for unwinding and enjoying a movie or a quiet conversation. The large windows provide abundant natural light and offer beautiful views of the surrounding property. This space beautifully balances the home’s rustic aesthetic with a lively, modern feel, making it the ultimate entertainment hub.

As we conclude our tour, we step into the tranquil and luxurious master bedroom, a true sanctuary designed for rest and relaxation. The room’s serene atmosphere is enhanced by a warm, wooden accent wall behind the bed, which contrasts beautifully with the soft, muted gray of the surrounding walls. The large, tufted headboard and crisp white linens create a cozy and inviting centerpiece, while a sleek bench at the foot of the bed adds a touch of modern sophistication. An entire wall of large windows provides an abundance of natural light and stunning views of the peaceful outdoor surroundings, seamlessly connecting the interior to the lush landscape. The stylishly appointed room, with its elegant furniture and thoughtful decor, is the perfect retreat after a long day.

We have arrived at the final destination of our tour, the luxurious master bathroom, a space that perfectly blends rustic warmth with spa-like elegance. The centerpiece is a stunning rustic wood vanity with a double sink, its distressed finish adding a touch of natural, earthy charm that contrasts beautifully with the sleek countertop. A large framed mirror and modern light fixture sit above, casting a soft, inviting glow across the space. The room is complete with a large soaking tub, perfectly positioned next to a window to provide a peaceful view of the outdoors while you relax. The beautiful tile flooring, elegant light fixtures, and a stylish privacy door create a serene and sophisticated retreat.

Stepping inside, we find ourselves in the spacious and highly functional garage, a perfect blend of practicality and style. This isn’t just a place to park; it’s an extension of the home itself, featuring polished, hexagon-tiled floors that add a touch of modern elegance. The walls are a mix of exposed brick and sleek concrete, creating a cool, industrial aesthetic that perfectly complements the barndominium’s exterior. The garage easily accommodates multiple vehicles, including a large truck and two other cars, showcasing its impressive size and versatility. Thoughtfully placed wall sconces and overhead lighting ensure the space is always well-lit and welcoming, making it a place you’d be proud to show off.

The home’s bold, dark exterior and classic barn silhouette make a powerful statement against the tranquil green landscape. The expansive glass-paneled garage doors offer a tantalizing glimpse into a workshop or a space for treasured vehicles, perfectly blending style with practicality. With its charming covered porch and inviting stone chimney, this home masterfully marries a rustic aesthetic with a refined, contemporary feel. The thoughtful landscaping, complete with a beautiful water feature and a charming split-rail fence, creates a true sense of peaceful seclusion.

The dark, sleek exterior and prominent metal roof stand in dramatic contrast to the vibrant green lawn and the classic split-rail fence in the foreground. A covered porch on the left creates a cozy, sheltered space, while the oversized glass garage door on the right hints at the home’s contemporary spirit and a space ready for work or play. A serene pond with a striking water feature completes this idyllic scene, offering a sense of peaceful seclusion. This perspective truly captures the essence of modern rural living, where design and nature coexist in perfect harmony.

From this angle, we get a clear view of the home’s quiet and functional rear. The continued covered porch provides another sheltered space for outdoor activities, offering a seamless transition from the indoors to the backyard. The back entrance, with its warm wooden door, is both welcoming and discreet, suggesting a private entry for family. The minimalist design is emphasized from this perspective, with the bold lines of the dark metal roof and white siding creating a clean, modern aesthetic. This view shows a home that prioritizes simplicity and practicality, providing a peaceful retreat from the world.

This is a fresh perspective of the home’s sophisticated facade, highlighting a thoughtful mix of materials. A charming covered entryway, with its stout posts and a matching dark metal roof, creates a welcoming threshold, while a blend of warm wood siding and a rustic stone foundation adds organic beauty. Delicate landscaping, featuring a variety of grasses and flowering shrubs, frames the path to the front door, making the approach feel like a stroll through a curated garden. The large grid-paned windows echo the modern farmhouse aesthetic, allowing natural light to pour into the interior. This view highlights the meticulous attention to detail and the harmonious blend of rustic charm and contemporary elegance that defines this unique residence.

Moving from the vivid renders, we now get a comprehensive look at the home’s architectural master plan through its elevations. The Front Elevation provides a clear blueprint of the home’s welcoming facade, showcasing the perfect symmetry of its porch, windows, and main entry, all beneath the elegant sweep of the metal roof. From this detailed drawing, we can appreciate the careful placement of each window and door, revealing a design that is both balanced and functional. The Rear Elevation continues the story, showing the consistent porch line and how the home presents a private, yet equally attractive, face to the back of the property. The side elevations reveal the home’s impressive profile, with the roofline culminating in a classic gable that reinforces its timeless, barn-inspired architecture. These plans are a testament to the thoughtful design that went into every angle of this stunning residence.

Now, let’s step inside and explore the masterful layout of the first-floor plan. As we enter from the front porch, we are greeted by a spacious, open-concept design that seamlessly connects the living room, dining room, and kitchen into a single, cohesive space. The kitchen island serves as a central hub, designed for effortless entertaining and casual family meals, while the dedicated pantry provides ample storage. A luxurious master bedroom suite is thoughtfully placed on this floor, offering a private sanctuary complete with a generous walk-in closet and a beautifully appointed en-suite bathroom. This plan also highlights the incredible functionality of the mudroom, which provides a perfect transition space between the large two-car garage and the main living areas. This first-floor design is a perfect example of how a home can be both elegant and practical for everyday living.

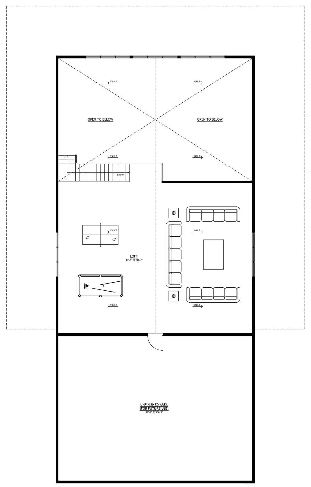
Our tour now ascends to the second-floor plan, revealing a clever use of space designed for both privacy and togetherness. The landing opens to a spacious loft area, perfect for a secondary living space, a cozy reading nook, or a children’s play area, with a stunning view of the great room below. The upstairs layout features two additional bedrooms, each thoughtfully designed with its own walk-in closet to maximize storage and organization. The bedrooms share a well-appointed full bathroom, conveniently located to serve both spaces. This floor plan demonstrates a brilliant balance of shared and private spaces, creating a comfortable and functional environment for family members or guests, truly completing the home’s thoughtful design.
Find More Barndominium Floor Plans
By Bedrooms:
1 Bedroom • 2 Bedrooms • 3 Bedrooms • 4 Bedrooms • 5 Bedrooms • 6 Bedrooms • 7 Bedrooms • 8 Bedrooms
By Feature:
1-Story • 2-Story • With Garage • 2 Car Garage • 3 Car Garage • Wraparound Porch • With Breezeway • 2 Master Suites • With Loft • Multi-Family Barndominiums • Open-Concept • With Shop
By Size:
Small Plans • 800 Sq Ft • 900 Sq Ft • 1000 Sq Ft • 1200 Sq Ft • 30×40 Floor Plans • 1400 Sq Ft • 1500 Sq Ft • 1600 Sq Ft • 40×40 Floor Plans • 1800 Sq Ft • 30×60 Floor Plans • 2000 Sq Ft • 2400 Sq Ft • 2500 Sq Ft • 2800 Sq Ft • 3000 Sq Ft • 3200 Sq Ft • 3600 Sq Ft • 4000 Sq Ft • 5000 Sq Ft •

