If you are looking for the perfect 1600 sq ft barndominium floor plans, then you are in luck. We have gathered our favorite floor plans to help you build the barndominium of your dreams.
When building a barndominium, the planning process is a crucial component. You want to be certain that you include everything you need from your home, which is why you need a fantastic floor plan. Even if you don’t have much space, you can create a home that will be beautiful and functional with well-designed 1600 sq ft barndominium floor plans. With a little bit of planning, you can get everything you want, even with a small piece of property.
It can be difficult to know what is possible with a small barndominium if you haven’t seen what others have done. To help get you started, we have put together a collection of 1600 sq ft barndominium floor plans. Using one of these plans, you can get a home that will include all of the spaces you need without feeling cramped or closed-in. With a little bit of creativity, you might be surprised by what you can achieve with a relatively small area.
Page Contents
10+ Beautiful 1600 Sq Ft Barndominium Floor Plans
PL-61704 Milan Barndominium House Plan


- 1599 Heated square feet
- 3 bedrooms
- 2 bathrooms
- 1 Story
- Front and back porch
- Open Concept
- Welcome to your dream barndominium! With 1599 heated square feet, front and back porches for relaxation, ample storage space for organization, and a convenient laundry area, this home perfectly blends country charm with modern practicality.
- This home features three cozy bedrooms, each with its own closet space for personal storage. The master suite boasts a private bathroom, offering a sanctuary of relaxation. A shared bathroom serves the remaining bedrooms, ensuring convenience for all.
- As you enter, you’re greeted by a warm and inviting family room, complete with a crackling fireplace that serves as the heart of the home. The open-concept living area seamlessly blends the kitchen, dining, and living spaces, creating an environment perfect for making memories.
PL-71007-Y Young Barndominium House Plan
- 1,600 Heated Sq Ft
- 2 bedrooms
- 2.1 bathrooms
- Single Story
- Open Concept
- Breezeway
- Patio
- Parking Pad
- 1,200 Sq Ft Garage
- A streamlined single-level layout offering 1,600 square feet of conditioned space—designed for clarity, comfort, and efficient living.
- A covered breezeway links indoor and outdoor zones—perfect for shaded transitions, airflow, and architectural charm.
- Outdoor living is extended with a rear patio for lounging or dining, plus a dedicated parking pad for guests or overflow.
- This spacious garage offers room for three vehicles and additional storage—ideal for hobbyists, gearheads, or active households.
PL-62323 Elias Barndominium House Plan

- 1600 Heated square feet
- 40×40 living space dimension
- 3 bedrooms
- 2.1 bathrooms
- 1 Story
- Utility Room
- Mudroom
- Open Concept
- Back porch
- A well-proportioned 1,600 square feet of heated living space offers the perfect blend of comfort and efficiency—ideal for those who value cozy living with room to grow.
- A clean and versatile 40×40 footprint creates a beautifully balanced layout—easy to furnish, effortless to navigate, and designed for seamless flow.
- Three inviting bedrooms provide space for rest, creativity, and connection—whether it’s a peaceful primary suite, a guest-ready room, or a playful retreat.
- Two full baths and a convenient powder room ensure smooth mornings and relaxed evenings, with style and function in every detail.
- Single-level living at its finest—no stairs, no fuss, just a smooth and accessible layout that keeps everything within easy reach.
- A dedicated utility room keeps the mess out of sight and the rhythm of daily life running smoothly—perfect for laundry, storage, and household essentials.
- The open-concept design invites light and life into every corner—ideal for entertaining, relaxing, and enjoying the freedom of a space that flows.
- Step out onto the rear porch and unwind—whether it’s morning coffee, evening breezes, or weekend lounging, this outdoor space is your private slice of serenity.
- A stylish buffer between the great outdoors and your pristine interiors, the mudroom offers a smart space to kick off boots, hang coats, and stash gear—keeping clutter contained and your home effortlessly tidy.
PL-62301 Luna Barndominium House Plan
- 1683 Heated square feet
- 3 Bedrooms
- 2 Bathrooms
- Single story
- Open concept
- Front and back porch
- This charming barndominium floor plan offers 1683 heated square feet of comfortable living space. It features 3 spacious bedrooms and 2 modern bathrooms, all conveniently laid out on a single story.
- The open concept design seamlessly connects the living, dining, and kitchen areas, creating a welcoming and airy atmosphere.
- Enjoy the outdoors with both a front and back porch, perfect for relaxing or entertaining guests. This floor plan combines functionality with rustic elegance.
PL-62401 Blaze Barndominium House Plan
- 1683 Heated square feet
- 2 bedrooms
- 2 bathrooms
- 1 Story
- Bonus Room
- Open Concept
- The Blaze barndominium house plan is 1683 heated square feet and features 2 bedrooms and 2 full bathrooms.
- The first floor is designed for entertaining and relaxing, with an open-concept family room, kitchen, and dining space. The family room has a cozy fireplace that adds warmth and ambiance to the space.
- The kitchen has a large island and a corner walk-in pantry.
- The master suite is a retreat of its own, located on the first floor for convenience and privacy. The master bath has a single vanity and a shower. The master closet is huge, with enough room for all your clothes and accessories. It also has direct access to the laundry room making it super convenient for washing and putting away clothes.
- The secondary bedroom is spacious with dual closets and is located right across the hall from the second bathroom.
- The stairs lead to a nice-sized loft at the top of the stairs with a large bonus room. Whether you need a game room, an office, a guest room, or a hobby room, this space can accommodate your needs.
- With a large front porch and back patio there is plenty of outdoor space to enjoy everything nature has to offer.
PL-62777 Crystal Barndominium House Plan
- 1621 Heated square feet
- 2 Bedrooms
- 2 Bathrooms
- Single story
- Open concept
- Attached 2-car garage
- Basement
- Utility room
- Single-story home, spanning 1621 heated square feet. Designed with an open concept.
- Boasts two well-appointed bedrooms and two modern bathrooms. The attached two-car garage provides convenient access and secure parking, while the utility room ensures practicality with laundry and storage needs.
- Enjoy the additional benefits of a basement, perfect for storage or future expansion, completing this well-rounded floor plan.
PL-64010 Westbury Barndominium House Plan

- 1600 Heated square feet
- 768 sq ft attached 2-car garage
- 3 Bedrooms
- 2 bathrooms
- single-story
- Open concept
- Foyer
- Front & Rear porch
- Comfortable and efficient 1600 heated square feet, offering just the right amount of space for everyday living.
- 768 sq ft attached 2-Car Garage, generous storage and parking, seamlessly connected to your home for convenience.
- The 3 bedrooms are versatile spaces for rest, work, and relaxation, tailored to fit your lifestyle.
- Two sleek and functional bathrooms, designed for effortless routines and refreshing moments.
- Easy living with everything on one level—no stairs, with bright and connected living spaces, perfect for gatherings and daily ease.
- A warm and stylish foyer, setting the tone for a cozy, inviting home.
Two inviting outdoor retreats, ideal for sipping coffee or soaking in the sunset.
PL-69201 Timothy Barndominium House Plan
- 1610 Heated square feet
- 2 bedrooms
- 2 bathrooms
- 1 Story
- Utility Room
- Garage
- Spanning 1610 heated square feet, this single-story design offers a distinctive layout with a garage and a spacious utility room at its heart. Flanking this central area are identical living spaces.
- This unique design features two bedrooms and two bathrooms, each thoughtfully placed on either side of the home for added privacy.
PL-71007 Serena Barndominium House Plan
- 1600 Heated square feet
- 2 Bedrooms
- 2.1 Bathrooms
- Single story
- Open concept
- Patio
- Parking Pad
- Breezeway
- Attached 2-car garage
- This exquisite single-story residence boasts an inviting 1600 heated square feet of thoughtfully designed living space. The home features 2 spacious bedrooms and 2.1 luxurious bathrooms, making it ideal for both relaxation and functionality.
- The open-concept layout seamlessly integrates the living, dining, and kitchen areas, creating a bright and airy environment. The kitchen offer ample counter space and modern appliances, with a direct view into the living area to keep everyone connected.
- Step outside to the charming patio, an ideal spot for morning coffee or evening gatherings, offering a serene outdoor retreat. The parking pad and attached 2-car garage provide convenient and secure parking options, making coming and going a breeze.
- A unique feature of this home is the breezeway, connecting the main house to the garage, offering a sheltered pathway that’s both practical and elegant.
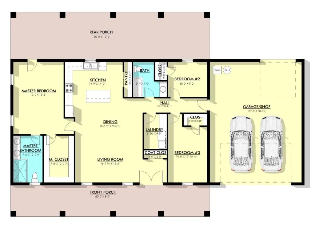
SV-5503-C Charlie Barndominium House Plan
- 1677 Heated square feet
- 2 Bedrooms
- 2.1 Bathrooms
- Open concept
- Single story
- Utility room
- Safe room
- Mudroom
- Covered porch
- Garage/shop
- Smartly sized at 1,677 square feet—designed for comfort, flow, and functional elegance.
- Two dreamy bedrooms tailored for restful nights and personalized escapes.
- Two full baths plus a sleek half bath—perfect for busy mornings and effortless entertaining.
- Breathe easy in this open layout where living, dining, and kitchen spaces connect seamlessly.
- Out of sight but never out of reach—this utility room keeps laundry day neat and efficient.
- Peace of mind built in—this reinforced safe room adds a layer of security without sacrificing style.
- Your front-line defense against the mess—this transitional mudroom keeps life tidy and organized.
- Sip, sit, and savor—this charming covered porch beckons for breezy afternoons and quiet evenings.
- More than a parking spot—this versatile garage/shop is a hobbyist’s haven and a storage dream.
More 600 Sq Ft Barndominium Floor Plan Ideas
1600 Sq Ft Barndominium Floor Plans – PL-62770

One important thing to remember when designing 1600 sq ft barndominium floor plans is that you must delineate certain areas. It may seem counterintuitive, but if you have distinct spaces for everything, you can end up making more room than if you didn’t. By making sure that everything has its place, you won’t end up making your space cluttered or cramped. This can be an excellent way to be as efficient as possible when it comes to your home.
These 1600 sq ft barndominium floor plans include a living area and a dining area. While these two spaces are technically in the same room, they each have their own function. You won’t end up taking up too much space with one over the other. This is a great option if you have a family and want to make sure that everyone has enough space in the common areas.
1600 Sq Ft Barndominium Floor Plans #2 – PL-62771

You might think that just because you are dealing with a relatively small amount of space, you can’t have more than one or two bedrooms. However, if you are willing to make some of the rooms smaller by just a few square feet, you can make it work. The trick is to ensure that your floor plan has a workable flow. Flow is everything and it can allow you to include all the rooms you need to include.
These 1600 sq ft barndominium floor plans have three bedrooms, including one larger master bedroom. Even with just 1600 square feet to work with, the flow of this home is absolutely gorgeous. By having the bedrooms right off the common areas, you don’t have to use up workable space with hallways. This makes for an efficient, usable floor plan.
1600 Sq Ft Barndominium Floor Plans #3 – PL-62772

It is very important to remember that your 1600 sq ft barndominium floor plans have to be functional. You shouldn’t decide that you can live without certain storage spaces or necessities just because you are trying to save space. In fact, as long as your floor plan is designed well, you can include all kinds of utility spaces that will ultimately make your home look bigger.
These 1600 sq ft barndominium floor plans have managed to include a two-car garage in the home’s footprint. Even with this space, there are two sleeping areas, including a large master bedroom. The garage not only gives you storage room for your cars but also space to store other items that aren’t in use all the time. While it may take up space in the footprint, it saves space in reality.
1600 Sq Ft Barndominium Floor Plans #4 – PL-62773

Closets are an important part of home design. While you might think that closets should be the first things to go when maximizing space, it is actually the opposite. A home without proper storage space will always feel more cluttered than it should.
These 1600 sq ft barndominium floor plans include three bedrooms as well as a large walk-in closet in the master bedroom. Each bedroom has its own closet and there is also a dedicated utility space for things like laundry and the water heater. By having these dedicated storage spaces, you can be sure that your home will not end up a cluttered mess just because you wanted to save a little bit of space on your floor plan.
1600 Sq Ft Barndominium Floor Plans #5 – PL-62774

If you are going to include more than one bedroom in your 1600 sq ft barndominium floor plans, it is important that you have enough bathrooms. While it can be a good way to save space, not including enough bathrooms can be disastrous for the usability of the home. It will be well worth it to include as many of them as you need.
These 1600 sq ft barndominium floor plans include a large master bathroom in the master bedroom as well as a common bath. This way, the other two bedrooms have access to a bathroom out in the common space. It can also be used during gatherings without guests having to go in and out of the master bedroom.
1600 Sq Ft Barndominium Floor Plans #6 – PL-62775

While an open concept kitchen is a popular addition for many 1600 sq ft barndominium floor plans, it isn’t always the best option. If you want to save space, you might do well to decrease the area of the kitchen. You can also leave out the kitchen island to get more usable space in the common areas.
These 1600 sq ft barndominium floor plans include a kitchen that is framed by walls to the bedrooms. While there is an opening into the common spaces, it isn’t as open as some others. This helps save space while still giving you a big enough kitchen for all your needs.
1600 Sq Ft Barndominium Floor Plans #7 – PL-62776

If you are going to be the only person living in your home, a one-bedroom version of your 1600 sq ft barndominium floor plans is a great choice. This opens up all kinds of possibilities. You can end up with a massive master bedroom. You won’t have to worry about what you can and can not include in your home’s layout.
These 1600 sq ft barndominium floor plans include one master bedroom and one bathroom. This is a perfect layout for someone who is going to be living on their own in the home. Plus, it includes a large two-car garage.
Conclusion
Building a barndominium can offer a lot of freedom of choice. By using one of these 1600 sq ft barndominium floor plans, you can create the perfect space, customized to your needs. With a little bit of planning, your home can be ideal for you and your family for a long, long time.
If you would like more guides like this one, check out the rest of BarndominiumLife.com. There, you will find more helpful tips and tricks from the pros.
You will also find featured barndominiums, stock barndominium house plans, custom barndominium house plans, and information on financing and insurance.
Just starting out? Check out the Barndominiums Made Easy Program. It has our “How to Build Guide”, 120+ House Plans, and the Bid and Budget Tracker. Knowing as much as you can will help you get the best results for your dream home.
Find More Barndominium Floor Plans
By Bedrooms:
1 Bedroom • 2 Bedrooms • 3 Bedrooms • 4 Bedrooms • 5 Bedrooms • 6 Bedrooms • 7 Bedrooms • 8 Bedrooms
By Feature:
1-Story • 2-Story • With Garage • 2 Car Garage • 3 Car Garage • Wraparound Porch • With Breezeway • 2 Master Suites • With Loft • Multi-Family Barndominiums • Open-Concept • With Shop
By Size:
Small Plans • 800 Sq Ft • 900 Sq Ft • 1000 Sq Ft • 1200 Sq Ft • 30×40 Floor Plans • 1400 Sq Ft • 1500 Sq Ft • 1600 Sq Ft • 40×40 Floor Plans • 1800 Sq Ft • 30×60 Floor Plans • 2000 Sq Ft • 2400 Sq Ft • 2500 Sq Ft • 2800 Sq Ft • 3000 Sq Ft • 3200 Sq Ft • 3600 Sq Ft • 4000 Sq Ft • 5000 Sq Ft •


















Jim Bush
Tuesday 2nd of July 2024
I'm interested in #2 PL-62771. I would like to know the cost of the plan. I also have a few small changes I would like to make. Are the slab plan also included?
Barndominium Life
Tuesday 2nd of July 2024
Please email us admin@barndominiumlife.com, or fill out the form for that plan here. https://www.barndominiumlife.com/barndominium-plans/pl-62771/
Can absolutely accommodate small changes and yes slab plan is included. Thx!