If you are looking for the perfect 2 car garage barndominium floor plans, then you are in luck. We have gathered our favorite floor plans to help you build the barndominium of your dreams.
When building a barndominium, it is incredibly important that you get everything you need. You only have one opportunity to build your dream home, so finding the right floor plan can make all the difference. This should include all the storage space you need, including the garage. There are all kinds of options available to you when putting together 2 car garage barndominium floor plans.
When designing 2 car garage barndominium floor plans, it can be hard to know how to arrange everything. However, with a little bit of inspiration, you can find the perfect layout for your particular needs. To help get you started, we have put together a collection of 2 car garage barndominium floor plans. These plans are beautifully designed and perfectly suited to all kinds of lifestyles and specific needs.
Page Contents
Fantastic 2 Car Garage Barndominium Floor Plans
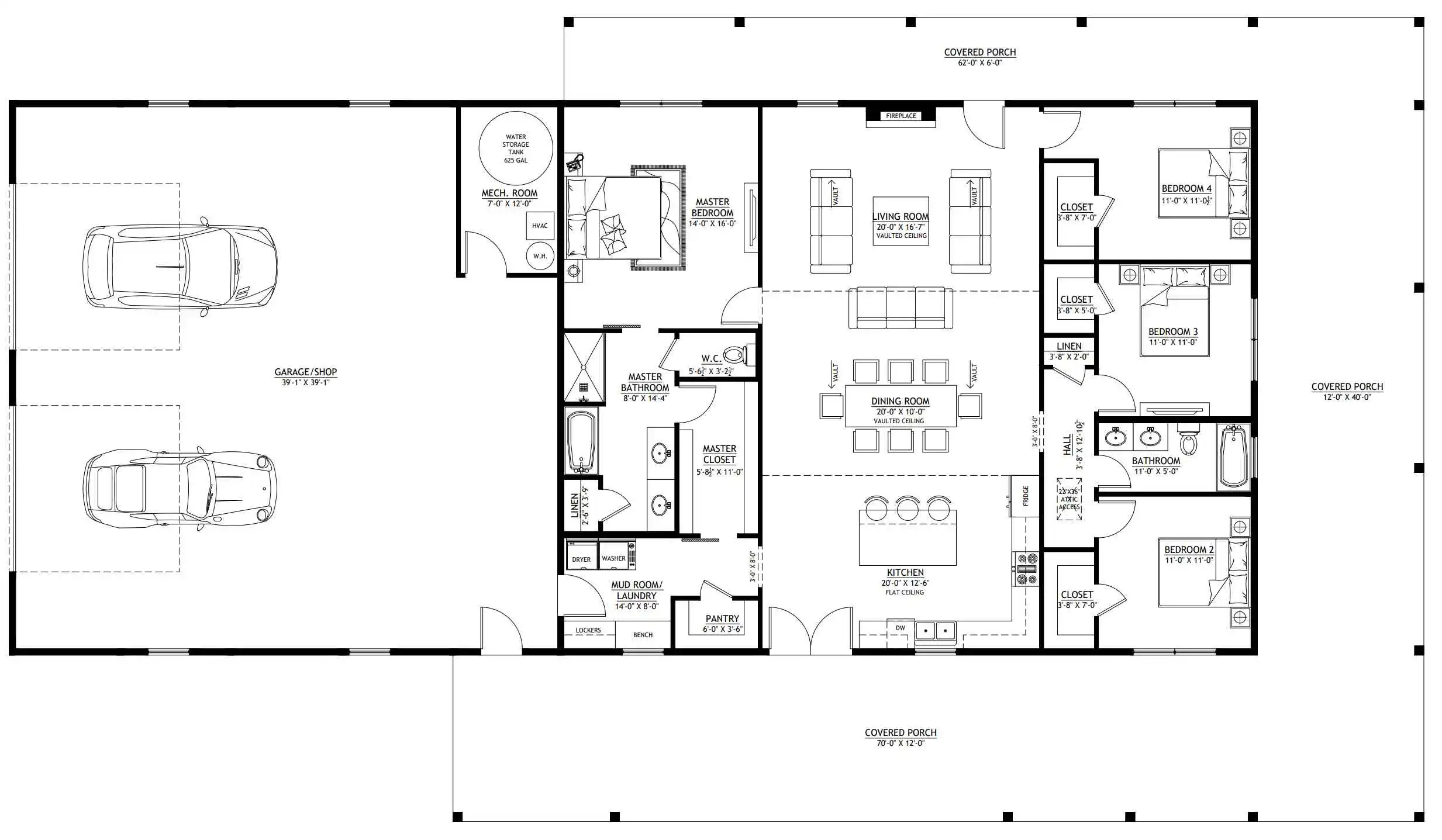
LP-3201 Zephyr Barndominium House Plan
- 2400 Heated square feet
- 750 square foot attached garage
- 3 bedrooms
- 2 bathrooms
- 1 Story
- Open Concept
- Office
- Fireplace
- The Zephyr barndominium house plan is 2400 heated square feet and features 3 bedrooms and 2 bathrooms with an attached 750 square foot attached garage.
- The open-concept design has plenty of room to entertain and spend time as a family in the common areas of the home.
- This house plan has a large kitchen with a spacious island with plenty of counter space for prepping and serving. With the pantry just off the kitchen, it allows for plenty of storage of food and appliances.
- The living room features a desirable fireplace that is positioned in the center of the room to be a great focal piece to the home.
- The master bedroom is just off the dining and includes a nice-sized master bathroom and walk-in closet.
- Two additional bedrooms are located on the opposite side of the home with decent-sized closets and a shared hall bathroom.
- You’ll have plenty of room to work or study in the home office just off the foyer. The double doors allow for privacy when needed.
- Relax on the front porch or back patio with friends and family as the kids play with this Zephyr house plan.
LP-1018 Woodlands Barndominium House Plans
- 5739 Heated square feet
- 561 square foot attached garage
- 4 bedrooms
- 3 bathrooms
- 2 Story
- Open Concept
- Office
- Utility Room
- Movie Room
- The Woodlands barndominium house plan is 5739 heated square feet and features 4 bedrooms and 3 bathrooms.
- This open-concept home offers plenty of space for large families, family gatherings, and more.
- The master suite is located on the second floor which provides a nice retreat from the rest of the home with a door to the balcony that overlooks the backyard.
- The secondary bedrooms are larger than average with nice size closets for storage.
- You will love that the office is tucked away off a hallway and away from the main living area of the home.
- This home features a large kitchen with the perfect amount of room for a kitchen table as well as a large island.
- The pantry is a chef’s dream with plenty of storage for food and appliances.
- On the second story, you will find a large movie room to cozy up and watch your favorite movies on a big screen.
- You will love the large storage room located upstairs.
PL-60202 Catalina Barndominium House Plan


- 1200 Heated square feet
- 1 bedroom
- 1 bathroom
- 1 Story
- Open-concept
- Sewing Room
- 2-Car Garage
- Experience the warmth of a cozy home while enjoying the freedom of a spacious layout with this open-concept living space that spans 1200 square feet of heated space.
- Simplicity and comfort in this 1-story barndominium house plan. With 1 bedroom and 1 bathroom, it’s the perfect compact living solution.
- Equipped with a dedicated sewing room for your artistic endeavors and a spacious 2-car garage for your automotive needs, this home is designed to cater to your lifestyle.
PL-60004 Marion Barndominium House Plan
- 1200 Heated square feet
- 684 square foot attached shop
- 2 bedrooms
- 2 bathrooms
- 1 Story
- Open Concept
- Enjoy 1,200 heated square feet of comfortable living space in this charming home.
- A 684-square-foot attached shop is perfect for DIY enthusiasts and hobbyists, providing ample space for projects.
- This home offers 2 bedrooms, creating a cozy retreat for you and your loved ones.
- With 2 bathrooms, you’ll have the convenience you need for daily routines and guests.
- All on one floor, this home is perfect for those seeking the ease of single-level living.
- Experience an open concept layout that promotes a modern and spacious feel throughout the home.
PL-62313 Dalton Barndominium House Plans

- 1870 Heated square feet
- 798 square foot attached 2 car garage
- 3 bedrooms
- 2.1 bathrooms
- 1 Story
- Flex Room
- Utility Room
- Open Concept
- The Dalton barndominium house plan is 1870 heated square feet and features 3 bedrooms, 2 full bathrooms, 1 1/2 bathroom, and an attached 798 square foot attached 2 car garage.
- You’ll love the open-concept design of this floor plan that allows for easy flow between the main living areas.
- The living room is large and spacious allowing plenty of space to gather and create memories as family and friends.
- The giant master suite is located on the opposite end of the home from the other bedrooms, providing maximum privacy and seclusion. With its spacious walk-in closet and luxurious en suite bathroom, it is the perfect place to relax after a long day.
- The secondary bedrooms are a good size and include ample closet space, so there’s plenty of room for everyone. And with a shared bathroom between two of the bedrooms, it makes getting ready a breeze. The half bathroom is great for guests to use.
- The flex room is a great addition to this home. It can be used for anything from a home office to a playroom for the kids.
PL-63002 Graham Barndominium House Plan
- 1848 Heated square feet
- 778 square foot Attached 3 car garage
- 3 bedrooms
- 3 bathrooms
- 2 Story
- Loft
- Mudroom
- Media Room
- Open Concept
- The Graham barndominium house plan is 1848 heated square feet and features 3 bedrooms, and 3 full bathrooms, with an attached 778 square foot garage.
- As you enter this home through the double front doors you are immediately wowed by the beautiful staircase that leads upstairs. The family room sits to the right and is large and spacious. You will be drawn to the fireplace as it creates a nice cozy atmosphere.
- The kitchen is big and perfect for hosting friends and family. The island creates even more space to prep and serve. The walk-in pantry is perfect for storage of small appliances and food. There is even plenty of space for a nice breakfast nook.
- The first floor features a master bedroom with an ensuite bathroom and master closet.
- You will also find a secondary bathroom with a full bathroom.
- Just off the garage is a mudroom perfect for coming in from outside as well as a laundry room.
- As you climb the stairs you will notice a great balcony that overlooks the main areas of the home.
- You will also find another secondary bedroom with a large closet and bathroom.
- There is a nice-sized game room that can be used for anything your heart desires.
- An added bonus upstairs is a huge storage closet perfect for storing toys, holiday decor, and more.
- The 778-square-foot attached 3-car garage provides ample space for parking and storage.
- You will love how the front porch extends to the sides, you can enjoy the beautiful scenery and relax in the fresh air.
PL-60803 Penelope Barndominium House Plan
- 2926 Heated square feet
- 424 square feet attached garage
- 4 bedrooms
- 4.1 bathrooms
- 1 Story
- Mudroom
- Office
- Open Concept
- The Penelope barndominium house plan is 2926 heated square feet and features 4 bedrooms, 4 full bathrooms, and 1 1/2 bathrooms. Attached to the home is a 424-square-foot garage.
- As you enter this spacious floor plan you immediately notice an abundance of space in the main living area of the home thanks to the open-concept design.
- The kitchen is spacious with a nice size island in the middle perfect for prep and serving.
- What is unique about this barndominium house plan is that there are four generously sized bedrooms, each accompanied by its own private bathroom, and two nice-sized closets.
- This home also has a nice office perfect for working from home, doing homework for the kids, or managing the household budget.
- Just off the garage you will find an attached half bathroom perfect for working outside or in the garage without having to come through the home to use the facilities.
HC-24003 Magnolia Barndominium House Plan

- 2244 Heated square feet
- 4 Bedrooms
- 2.1 Bathrooms
- Open concept
- 540 Sq Ft Attached Garage
- Bonus Room
- Front and Rear Porch
- A thoughtfully designed floor plan that offers 2244 heated square feet of living space. This layout features 4 bedrooms and 2.1 bathrooms, ensuring ample room for a comfortable lifestyle.
- The 540 sq ft attached garage provides generous space for your vehicles and additional storage. A unique feature of this plan is the bonus room, which can be customized to suit your needs, whether it’s a home office, gym, or a playroom.
- Adding to the charm of this home are the front and rear porches, providing delightful outdoor spaces for relaxation or entertaining.
HC-24007 Manhattan Barndominium House Plan
- 2670 Heated square feet
- 3 Bedrooms
- 2.1 Bathrooms
- Loft
- Open concept
- Attached 1040 Sq Ft Garage
- Bonus room
- Mudroom
- Mechanical room
- Front & back porch
- Encompassing 2670 heated square feet, this home features 3 spacious bedrooms and 2.1 stylish bathrooms.
- The open concept design ensures a seamless flow throughout the living spaces.
- The loft and bonus room offer versatile spaces that can be tailored to your needs, while the mudroom and mechanical room add practicality and convenience.
- Enjoy the luxury of an attached 1040 sq ft garage and unwind on the charming front and back porches.
HC-24008 Jackson Barndominium House Plan
- 3653 Heated square feet
- 5 Bedrooms
- 3.1 Bathrooms
- Loft
- Open concept
- Attached 1158 Sq Ft Garage
- Office
- Mechanical room
- Mudroom
- Patio
- An expansive two-story floor plan with 3653 heated square feet offering 5 bedrooms and 3.1 bathrooms, providing ample room for family and guests.
- The open concept layout on the main floor ensures a smooth flow, perfect for both everyday living and entertaining.
- The loft-style second floor adds a touch of versatility, while the dedicated office is ideal for remote work or study. Practical features like the mechanical room and mudroom enhance convenience.
- The attached 1158 sq ft garage offers plenty of space for vehicles and storage and you can enjoy the charm of the patio, perfect for relaxing and enjoying the outdoors.
LP-3208 Rowe Barndominium House Plan
- 1800 Heated square feet
- 3 Bedrooms
- 2 Bathrooms
- Open concept
- Attached 1200 Sq Ft Garage
- Front and Back Porch
- Step into this spacious 1800 sq ft heated home, featuring an open concept design perfect for modern living.
- With 3 cozy bedrooms and 2 well-appointed bathrooms, there’s plenty of room for family and guests.
- Enjoy the convenience of an attached 1200 sq ft garage, ideal for multiple vehicles and extra storage.
- Relax on the charming front and back porches, perfect for morning coffee or evening gatherings.
PL-62777 Crystal Barndominium House Plan
- 1621 Heated square feet
- 2 Bedrooms
- 2 Bathrooms
- Single story
- Open concept
- Attached 2-car garage
- Basement
- Utility room
- Single-story home, spanning 1621 heated square feet. Designed with an open concept.
- Boasts two well-appointed bedrooms and two modern bathrooms. The attached two-car garage provides convenient access and secure parking, while the utility room ensures practicality with laundry and storage needs.
- Enjoy the additional benefits of a basement, perfect for storage or future expansion, completing this well-rounded floor plan.
BP-2001 Brashear Barndominium House Plans
- 2567 Heated square feet
- 3 bedrooms
- 2.1 bathrooms
- Single Story
- Open Concept
- 1230 sq ft detached garage
- Mudroom
- Office
- Front and back porch
- Covered porches
- Covered patio
- Beautifully crafted single-story home with an open concept layout, seamlessly integrating the living, dining, and kitchen areas.
- This thoughtfully designed floor plan with 2567 heated square feet of living space boasts 3 spacious bedrooms and 2.1 bathrooms.
- Enjoy the charm of covered front and back porches, where you can relax with a cup of coffee or enjoy an evening breeze. The covered patio offers an ideal spot for outdoor dining or hosting summer barbecues.
- The 1230 sq ft detached garage provides plenty of space. Whether you use it for vehicles, tools, or as a workshop, you’ll appreciate the convenience and functionality it offers.
- The home includes a dedicated office, perfect for remote work or study, and a practical mudroom to keep your living areas clean and organized.
- Connecting the main house to the garage, the breezeway provides a charming and sheltered pathway, adding to the home’s overall appeal.
PL-60003 Bartow Barndominium House Plan
- 2 Bedroom
- 1.1 bathroom
- Open concept
- Single story
- Front porch
- Back patio
- Attached 2-car garage
- The open-concept design creates an inviting space ideal for entertaining and daily living.
- The floor plan includes two bedrooms, providing a cozy retreat with ample closet space.
- This home features 1.1 bathrooms, ensuring convenience for residents and guests alike.
- Enjoy relaxing on the front porch, and the back patio offers additional outdoor space for entertaining or simply enjoying the outdoors.
- The garage provides secure parking and storage space, easily accessible from the main living area.
LP-71007 Mill Barndominium House Plan

- 3 Bedrooms
- 2 Bathrooms
- 2592 Heated Square Feet
- Single story
- Open-concept
- Office
- Attached 2-car garage
- 1080 Square feet Garage
- Front porch
- Utility
- Elegantly designed single-story residence, offering a harmonious blend of contemporary living and timeless comfort with 2592 heated square feet of open-concept space.
- With 3 spacious bedrooms each thoughtfully designed to offer a peaceful retreat, with ample closet space and large windows that let in natural light.
- Enjoy modern fixtures and finishes in each of the two bathrooms.
- The heart of the home features a seamless flow between the living room, dining area, and kitchen, perfect for family gatherings and socializing with friends.
- Whether working from home or pursuing hobbies, the office offers a quiet, private space to focus.
- Spanning 1080 square feet, the two-car garage provides ample space for vehicles and additional storage needs.
- The welcoming front porch is perfect for relaxing with a morning coffee or evening wind-down, enhancing your home’s curb appeal.
- A dedicated utility room includes space for laundry, storage, and more, ensuring practicality meets convenience.
LP-71008 Orchard Barndominium House Plan
- 3 Bedrooms
- 2 Bathrooms
- 1800 Heated Square Feet
- Single story
- Open-concept
- Attached 2-car garage
- 750 Square feet Garage
- Front and Back Patio
- Foyer
- Fireplace
- Attic/Storage
- Spanning 1800 heated square feet, this open-concept home features three inviting bedrooms and two well-appointed bathrooms.
- A bright and airy foyer welcomes you, leading into a spacious living area with a charming fireplace, perfect for gathering with loved ones.
- The home includes both a front and back patio, offering versatile outdoor living spaces to enjoy the fresh air.
- The attached 2-car garage spans 750 square feet and provides ample storage options.
- Additionally, an accessible attic/storage space ensures you have room for all your belongings, completing this thoughtfully designed floor plan meant to create a warm and functional living environment.
AP-20003 Cody Barndominium House Plan
- 2000 Heated square feet
- 2 Bedrooms
- 2.1 Bathrooms
- Single story
- Open concept
- Fireplace
- Storage Loft
- Utility
- Mudroom
- Wraparound Porch
- 2-Car Garage
- 1102 Sq ft Garage
- This home provides 2000 square feet of comfortable, climate-controlled living space, ensuring year-round coziness.
- Two well-designed bedrooms offer a peaceful retreat, each with ample space for relaxation and rest. It also includes two full bathrooms and one half-bath, all equipped with modern fixtures for convenience and luxury.
- Enjoy the simplicity and accessibility of single-story living and an accessible storage loft provides additional space for storing seasonal items and other belongings out of sight.
- The layout features a seamless flow between the living, dining, and kitchen areas, perfect for entertaining and everyday living while a cozy fireplace in the living area creates a warm and inviting atmosphere.
- A dedicated utility space in the garage is ideal for additional storage and a practical entryway mudroom ensures your home stays clean and organized by providing a designated spot for outerwear and shoes.
- With 1102 square feet, the spacious two-car garage provides plenty of room for vehicles and extra storage.
- The wraparound porch adds charm and offers ample space for relaxing, entertaining, and enjoying the outdoors.
PL-61901 Athena Barndominium House Plan

- 2000 Heated Sq Ft
- 4 Bedrooms
- 2 Bathrooms
- Single Story
- Open concept
- Mechanical room
- Wraparound porch
- Spanning 2000 square feet of heated space, this home offers ample room for comfortable living and entertaining throughout the year.
With four spacious bedrooms, there’s plenty of room for family members, guests. - Enjoy the convenience of two well-appointed bathrooms, making morning routines and evening unwinds a breeze for everyone.
- The single-story, open-concept layout ensures ease of accessibility and mobility, allowing for easy flow between the living, dining, and kitchen areas and a seamless living experience without the need for stairs.
- The attached 2-car garage comes with a mechanical room housing a water tank, HVAC system, and water heater, offering convenient and organized storage for essential household systems.
- A charming wraparound porch invites you to relax and enjoy the outdoors, whether you’re sipping your morning coffee or watching the sunset.
LP-2804 Legg Barndominium House Plans
- 2000 Heated square feet
- 1200 square feet detached 2 car garage
- 4 bedrooms
- 2 bathrooms
- 1 Story
- Open Concept
- The Legg Barndominium house plan is 2000 heated square feet and features 4 bedrooms and 2 bathrooms.
- You will love the 1200 square feet detached garage that offers plenty of room for parking your vehicles as well as storage, but the feature you will love the most is the storm shelter that gives you peace of mind during every severe weather storm.
- This house plan is a lovely open concept so that the whole family feels connected when in the living room, dining room, and kitchen. The vaulted ceilings allow this area to feel even more grand.
- The kitchen is spacious with a nice size island that allows for more storage and prep. Located in the corner of the kitchen is a moderate-sized pantry.
- In this Legg Barndominium house plan, all the bedrooms and laundry room offer 10-foot ceilings which makes the home feel even more spacious.
- The master bedroom is a nice size with an ensuite bathroom and a walk-in closet that leads to the laundry room.
- Located on the other side of the house are three additional bedrooms that share one common bathroom.
PL-63301 Windermere Barndominium House Plan
- 2000 Heated Square Feet
- 4 Bedrooms
- 2.1 Bathrooms
- Single story
- Open concept
- Mudroom
- Fireplace
- Mechanical room
- Attached 2-car garage
- Wraparound Porch
- This spacious home offers 2000 heated square feet, providing ample room for comfortable living and entertaining.
- Featuring four bedrooms, this home is ideal for families or guests, offering privacy and flexibility for various needs.
- With two full bathrooms and an additional powder room, you’ll have plenty of facilities to accommodate residents and guests.
- Convenience at its finest—this unique feature allows easy access from the master closet to the laundry room, streamlining your daily chores.
- Enjoy the ease of single-story living with an open-concept design that promotes a seamless flow between living spaces.
- The combined mudroom and laundry room offers practical storage and organization solutions, keeping the rest of your home clutter-free.
- Cozy up by the fireplace, a charming focal point that adds warmth and ambiance to the living area.
- The Mechanical Room houses the water tank, HVAC, and water heater ensuring efficient and accessible home maintenance.
- The attached 2-car garage includes a mechanical room and powder room, providing extra convenience and utility.
- Relax and enjoy outdoor living on the wraparound porch, perfect for entertaining or simply savoring the surrounding views.
PL-64003 Vivian Barndominium House Plan
- 3292 Heated square feet
- 3 Bedrooms
- 2.1 Bathrooms
- Two-story
- Open concept
- 679 square feet 2-car Garage
- Mudroom
- Loft
- Wraparound porch
- Fireplace
- Studio
- Attic
- This expansive living space offers an abundance of room to create lasting memories, blending luxury and comfort for a lifestyle of ease.
- Three well-appointed bedrooms provide peaceful retreats, perfect for family members or guests to unwind and recharge.
- With two full bathrooms and an additional powder room, your daily routines are streamlined, ensuring both practicality and style.
- A two-level design offers a beautiful balance of separation and connection, with private spaces upstairs and shared living areas below.
- The open layout invites seamless interaction and effortless flow, making entertaining or family gatherings a true joy.
- A spacious two-car garage provides secure parking and ample storage for vehicles, tools, or hobbies.
- Keep the rest of your home tidy with a dedicated mudroom for organizing shoes, coats, and everyday essentials.
- Embrace outdoor living with a charming wraparound porch, perfect for enjoying scenic views, morning coffee, or evening relaxation.
- The fireplace creates a cozy focal point, bringing warmth and character to your main living area.
- A dedicated studio caters to creativity, productivity, or personal projects, offering endless possibilities to make it your own.
- The attic space provides additional storage or potential for customization, ready to adapt to your evolving needs.
PL-62518 Bradford Barndominium House Plan
- 2,610 Heated Square feet
- 1 Story
- 4 Bedrooms
- 2 Bathrooms
- Office
- Media Room
- Mudroom
- 2-Car Garage
- Spacious home offers 2610 square feet of heated living space, providing ample room for comfortable living and entertaining2. 1 Story: The property features a single-story layout, offering convenient accessibility and a cohesive living space all on one level.
- With four bedrooms, this home provides plenty of private and shared sleeping quarters, ideal for families or those in need of additional space.
- The property includes two bathrooms, catering to both convenience and comfort for residents and guests.
- A dedicated space for work or study is incorporated into the home, providing a quiet and functional area for professional or academic activities.
- This home features a media room, perfect for enjoying movies, gaming, or entertainment in a designated space.
- A mudroom offers an ideal space for storing outdoor gear, shoes, and other items, helping to keep the rest of the home clean and organized.
- The property comes with a two-car garage, providing sheltered parking and additional storage space for vehicles and belongings.
CDD-4103 Prairie Barndominium House Plan
- 1500 Heated Sq Ft
- 900 Sq Ft 2-car Garage
- 3 Bedrooms
- 2.1 Bathrooms
- Single story
- Open concept
- Office
- Mechanical room
- Front & rear porch
- 1500 spacious and cozy heated Sq Ft offering a perfect balance for living, relaxing, and entertaining.
- Generous space to park your cars and store everything from tools to outdoor gear in the 900 Sq ft 2-car garage.
- With 3 Bedrooms, enough room for family, guests, and a slice of privacy for everyone.
- The 2.1 bathrooms are designed for convenience, with extra space to keep morning routines hassle-free.
- Single Story for accessible and easy to navigate, and the open concept design seamlessly connects spaces where conversations and creativity flow.
- The mechanical room keeps things practical and organized, keeping your utilities in one neat spot.
- Front & rear porches are welcoming outdoor spaces to soak in sunrise, sunset, or a breath of fresh air.
PL-64007 Brooke Barndominium House Plan
- 2400 heated sq ft
- 1505 sq ft Garage
- 3 Bedrooms
- 2.1 bathrooms
- Wheelchair accessible bathroom
- Single-story
- Open concept
- Office
- Foyer
- Mechanical room
- Safe room
- Fireplace
- Front & rear porch
- 2400 heated sq ft for a spacious and comfortable living area that invites warmth and a sense of home.
- A generously sized 1505 sq ft garage space for cars, tools, storage, and your hobbies—it’s a dream for the modern homeowner.
- 3 bedrooms for versatile sleeping quarters designed for comfort, privacy, and personalized retreat spaces.
- 2.1 bathrooms, a thoughtful layout with a luxurious touch—two full baths, one wheelchair-accessible, plus a convenient half-bath for guests.
- Experience effortless living with all your essentials on one accessible level and a seamless flow from room to room, perfect for entertaining and embracing natural light.
- An office for a quiet and organized space designed to boost productivity and creativity—right at home.
- A foyer for a welcoming entryway that sets the tone for the rest of your beautiful home.
- The mechanical room is a hidden hub for all your home’s critical systems, ensuring efficiency and organization.
- The safe room is built for peace of mind—your personal refuge in case of emergencies.
- A living room fireplace to cozy up by the warmth of this centerpiece that adds charm and character to your living space.
- Front & rear porch for double outdoor enjoyment—whether it’s coffee with sunrise or relaxing at sunset.
PL-64008 Andy Barndominium House Plan
- 2320 heated sq ft
- 1276 sq ft Garage
- 3 Bedrooms
- 2.1 bathrooms
- Fireplace
- Mudroom
- Single-story
- Open concept
- Front & rear porch
- Storage room
- The home boasts a spacious Living Area of 2,320 heated square feet, offering ample space for comfortable living.
- A generous garage space of 1,276 square feet provides plenty of room for vehicles, tools, and additional storage.
- Three cozy bedrooms perfectly designed to accommodate family or guests, ensuring privacy and comfort.
- Conveniently equipped with 2.1 bathrooms, including a half-bath for guests or quick use.
- Warm and inviting fireplace enhances the living area, offering warmth and charm.
- This home features a single-level, open-concept layout, combining convenience and accessibility.
- Both a front and rear porch provide tranquil spaces to unwind and enjoy the outdoors.
- A designated storage room ensures there’s space to keep your home organized and clutter-free.
PL-64009 Stuart Barndominium House Plan
- 3292 Heated square feet
- 679 sq ft attached 2-car garage
- 3 Bedrooms
- 2.1 bathrooms
- 2-story
- Open concept
- Mudroom
- Studio
- Fireplace
- Attic
- Loft
- Wraparound porch
- 3,292 sq. ft. of heated living space, designed for cozy elegance.
- A spacious 679 sq. ft. attached 2-car garage, perfect for storage and convenience.
- Three thoughtfully designed bedrooms, offering restful retreats.
- 2.1 bathrooms, blending style and functionality.
- Stunning 2-story open-concept design that maximizes natural light and flow.
- A mudroom that keeps clutter at bay while adding everyday convenience.
- Private studio, ideal for work, hobbies, or artistic inspiration.
- Charming fireplace, ready to set the mood for cozy nights.
- Versatile attic space for storing memories or future expansion.
- Stylish loft that adds dimension and character to the home.
- Classic wraparound porch, blending outdoor relaxation with timeless curb appeal.
BCO-40044-2 Rustwood Barndominium House Plan
- 1144 Heated Sq Ft
- 26×44 living space dimension
- 2 Bedrooms
- 2 Bathrooms
- Single story
- Open concept
- Front & side porches
- Utility room
- 2-Car garage
- A perfectly balanced 1144 sq ft heated space, offering comfort without excess, ideal for a cozy yet spacious living experience.
- Rest and recharge in two well-appointed bedrooms, crafted for privacy and relaxation.
- Convenience meets style with two modern bathrooms, ensuring seamless mornings and tranquil evenings.
- Effortless living with a streamlined flow—no stairs, just ease and accessibility at its finest.
- Where walls don’t box you in—this layout fosters connection and brightness, the open concept layout is perfect for entertaining or unwinding.
- An invitation to soak in fresh air in the porches, whether greeting the morning sun or relaxing into twilight.
- Smartly tucked away yet highly functional, the utility room keeps daily tasks out of sight but always within reach.
- Room for your vehicles and more, offering shelter, storage, and convenience in one sleek package in this 2-car garage.
AK-4001 Ironwood Barndominium House Plan
- 2800 Heated square feet
- 50×56 living space dimension
- 5 Bedrooms
- 2.1 Bathrooms
- Single-story
- Open concept
- Den/Playroom
- Laundry Access from Master
- Workshop
- Front & rear porch
- 2-car, 783 SF attached garage
- A generous canvas of comfort and design, this 2,800-square-foot home feels expansive yet intimate—perfectly tailored for those who appreciate room to breathe without compromising on warmth and cohesion.
- Five well-proportioned bedrooms—each with 12-foot ceilings—invite personalization and purpose. Whether for restful retreats, creative corners, or lively kid zones, every room holds its own charm while harmonizing beautifully with the overall flow.
- Effortlessly elegant, the 2.1 bathrooms strike a balance between privacy and practicality. The primary bath offers indulgence with a spacious 72-inch vanity, while the powder room keeps everyday convenience stylishly tucked within reach.
- Thoughtfully laid out on a single level, this home epitomizes the ease of open-concept living. With seamless transitions from the kitchen to the expansive great room and dining area, every space invites connection—and celebration.
- Flex your imagination in the den/playroom, a cozy yet versatile haven. Use it as a media lounge, kids’ kingdom, or refined study—its 12-foot ceiling and central location ensure it’s never just a side thought.
- Say goodbye to laundry day logistics. With discreet access from the primary suite through the walk-in closet, functionality has never felt so elegant—or convenient.
- The workshop off the garage is a dream for DIYers and tinkerers alike. Whether you’re restoring vintage finds or building something bold, this space is your sanctuary for hands-on creativity.
- Framed by a stately 20’x8′ front porch and an expansive 57’6″ rear covered porch, this home invites you to live both indoors and out. Morning coffees, sunset dinners, and everything in between find their place in these gracious outdoor retreats.
- Not just a place to park—this expansive 783-square-foot garage doubles as a functional extension of the home thoughtfully positioned for easy indoor access and day-to-day practicality.
AK-4002 Baron Barndominium House Plan

- 2800 Heated square feet
- 50×56 living space dimension
- 4 Bedrooms
- 3.1 Bathrooms
- Single-story
- Open concept
- Den/Playroom
- Guest/In-Law Suite
- Laundry Access from Master
- Workshop
- Front & rear porch
- 2-car, 783 SF attached garage
- A generous canvas of 2,800 square feet of heated living space offers room to thrive, relax, and entertain in every season.
- With four spacious bedrooms, there’s room for everyone—perfect for growing families, visiting guests, or a dedicated creative retreat.
- A smart three-and-a-half bath layout ensures comfort and convenience, with ample space for the morning rush and evening wind-down.
- Single-level living means effortless accessibility and seamless transitions between spaces—ideal for every stage of life.
- Whether it’s a quiet den, a playful kids’ zone, or a cozy media nook, this flexible space adapts to your lifestyle and imagination.
- A well-appointed guest or in-law suite provides a private sanctuary for loved ones—complete with thoughtful separation from the main living areas.
- Enjoy the convenience of direct laundry access from the master suite—a small feature that makes a big difference in day-to-day living.
- Tucked away yet easily accessible, the workshop is a dream space for DIY projects, hobbies, or extra storage.
- From morning coffee to sunset views, dual porches extend your living space into the great outdoors and enhance curb appeal.
- This 2-car garage offers 783 square feet of space—perfect for vehicles, tools, gear, or even that weekend motorcycle project.
AK-4003 Stonebrook Barndominium House Plan
- 2240 Heated square feet
- 40×56 living space dimension
- 5 Bedrooms
- 2.1 Bathrooms
- Single-story
- Open concept
- Den/Playroom
- Mudroom
- Laundry Access from Master
- Front & rear porch
- 2-car, 640 SF attached garage/workshop
- A comfortably sized 2,240 square feet of heated space offers the perfect blend of spaciousness and coziness, ideal for relaxed modern living.
- Versatile and generous, five well-proportioned bedrooms cater to family, guests, or creative uses like a home office or studio.
- Two full baths plus a half bath ensure functionality and comfort, providing room for everyone to refresh and recharge with ease.
- All living areas are gracefully spread across a single, seamless level—a timeless layout that supports accessibility and ease of movement.
- The heart of the home boasts an open-concept design, where kitchen, dining, and living areas blend beautifully for connection and light.
- This adaptable space is ideal for quiet study sessions, lively playdates, or cozy media nights—whatever suits your rhythm.
- Tucked conveniently near entrances, the mudroom offers a practical drop zone for shoes, bags, and coats, keeping messes neatly contained.
- Direct laundry access from the master suite adds a touch of thoughtful convenience that makes daily routines feel effortless.
- Enjoy the best of both worlds with a welcoming front porch for neighborly charm and a rear porch ideal for relaxed outdoor entertaining.
- Spanning 640 square feet, the attached 2-car garage comfortably shelters vehicles with room to spare for outdoor gear or seasonal storage. And for those seeking even more capacity, the adjacent workshop offers the flexibility to convert into a third garage bay—perfect for hobbyists, collectors, or anyone in need of a full 3-car setup.
AK-4004 Harrington Barndominium House Plan
- 2240 Heated square feet
- 40×56 living space dimension
- 4 Bedrooms
- 3.1 Bathrooms
- Single-story
- Open concept
- Flex/Playroom
- Mudroom
- Laundry Access from Master
- Front & rear porch
- 2-3 car, 640 SF attached garage
- Optional workshop
- A comfortably spacious layout that balances everyday functionality with room to unwind, all within 2,240 square feet of cozy, climate-controlled living.
- A room for every dreamer—four serene bedrooms, each offering personal space and privacy for rest.
- No more morning traffic jams—with three full baths and a guest-friendly powder room, everyone moves with ease.
- Light, airy, and connected—the heart of the home opens wide for effortless entertaining and modern family living.
- A space that bends to your rhythm—create a playroom, home office, or creative studio in this adaptable bonus area.
- Tidy up in style—this hardworking entry keeps clutter out of sight and every adventure organized.
- Skip the hallway shuffle—enjoy direct laundry access from the primary suite for ultimate convenience.
- From morning coffee to twilight chats, enjoy outdoor living front and back with covered porches that invite you to linger.
- Room for the daily drivers plus weekend toys—this 640-square-foot garage fits up to three vehicles with ease.
- DIYers rejoice! An optional workshop gives you space to tinker, craft, and create to your heart’s content.
AK-4005 Ashford Barndominium House Plan
- 1970 Heated square feet
- 3 bedrooms
- 2.1 bathrooms
- Single Story
- Open Concept
- Mudroom
- 630 sq ft attached garage
- Flex/office/exercise room
- Front & rear porch
- A thoughtfully designed 1,970 square feet of heated living space ensures comfort, efficiency, and room to live, work, and unwind—without a single inch wasted.
- Three generously sized bedrooms provide cozy retreats for the whole family, complete with privacy, natural light, and plenty of wall space for personalization.
- With two full baths and a convenient powder room, this layout balances luxury and practicality—ideal for busy mornings or relaxing evenings.
- The mudroom is a practical transition space designed for real life—perfect for kicking off shoes, stashing gear, and keeping the main living areas pristine.
- The attached garage offers 630 square feet of secure parking and storage, with room for vehicles, bikes, and your weekend projects.
- A chameleon of a space—whether it’s a quiet home office, energizing workout zone, or creative corner, this flexible room adapts to your lifestyle.
- Double the charm, double the views—enjoy morning coffee on the welcoming front porch and peaceful evenings on the rear porch overlooking your private backyard.
PL-61313-F Fox Barndominium House Plan
- 2400 Heated Square Feet
- 40×60 living space dimension
- 3 Bedrooms
- 2.1 Bathrooms
- Single story
- Open concept
- Mudroom
- Living room and family room
- Office
- Secure closet
- 1344 SF garage
- Utility
- Front & rear porch
- Stretch out and settle in with 2,400 square feet of thoughtfully climate-controlled comfort—plenty of room to live, work, and unwind without compromise.
- Three generous bedrooms offer sanctuary for rest, creativity, or guests—each one ready to reflect your personal style and rhythm.
- Two full bathrooms and a convenient powder room mean no more morning bottlenecks or evening waitlists—everyone gets their own zone of comfort.
- Everything you need is right on one level—no stairs, no hassle, just seamless everyday living. From kitchen to conversation nook, the open-concept layout ensures you’re always part of the action.
- Say goodbye to cluttered entrances—this smartly designed mudroom keeps shoes, coats, and gear in check the moment you walk in.
- Twice the comfort, twice the charm—a welcoming living room for guests and a cozy family room for movie nights, game days, and everyday lounging.
- Tucked just off the primary suite, this home office strikes a perfect balance between convenience and quiet—ideal for focused work or creative escapes.
- Discreetly integrated and purpose-built, the secure closet provides a peace-of-mind space for valuables or important documents—security meets subtlety.
- A massive 1,344 square foot garage isn’t just for parking—it’s a haven for hobbies, tools, and extra storage, with space to spare.
- Whether greeting neighbors or sipping coffee with a backyard breeze, the front and rear porches offer the perfect mix of welcome and retreat.
PL-64017 Pecan Barndominium House Plan
- 1500 Heated square feet
- 30×50 living space dimension
- 2 bedrooms
- 2 bathrooms
- Single Story
- Open Concept
- 2-Car Garage
- Front & Rear porch
- Step into 1,500 square feet of thoughtfully climate-controlled living space—ideal for cozy gatherings, quiet evenings, and comfortable year-round living.
- Two spacious bedrooms offer privacy and flexibility—perfect for restful retreats, a stylish guest suite, or even that dreamy home office you’ve been imagining.
- Enjoy the convenience of two modern bathrooms designed for comfort and ease—no more morning rush hour, just smooth, seamless starts to your day.
- Experience true ease of living with a single-level layout and open-concept flow that invites connection, sunlight, and effortless movement from room to room.
- The attached two-car garage brings everyday convenience with secure, weatherproof storage and plenty of room for vehicles, bikes, or weekend adventure gear.
- Greet the day with a coffee on the front porch and unwind in the glow of sunset on the rear—these charming outdoor havens extend your living space with fresh-air appeal.
PL-82001 Fowler Barndominium House Plan

- 5792 heated Square Feet
- 6 Bedrooms
- 4.2 Bathrooms
- 2 Story
- Open Concept
- Hobby room
- Game/media room
- Sitting area
- Playroom
- Front & rear porch
- 2-car detached garage
- Luxuriate in nearly 5,800 square feet of impeccably designed, temperature-controlled living—every square foot crafted for comfort, elegance, and unforgettable gatherings.
- Six inviting bedrooms promise restful retreats for every family member or guest—each one a private sanctuary with space to breathe, unwind, and dream.
- With four full baths and two stylish powder rooms, convenience meets sophistication—ensuring seamless mornings and elegant hosting for any occasion.
- Thoughtfully arranged across two expansive levels, this layout balances togetherness and personal space—ideal for vibrant entertaining below and tranquil escapes above.
- From airy conversations in the kitchen to effortless entertaining in the great room, the open-concept design flows with natural light and modern sophistication.
- Whether it’s painting, crafting, or perfecting your next passion project, the hobby room offers a creative corner tailored for inspiration and focus.
- Movie marathons, game nights, or immersive binge sessions—the dedicated game/media room delivers cinematic comfort and lively fun for all ages.
- A quiet sitting area beckons for reflective mornings, casual reading, or warm, intimate conversations with a cup in hand and sunlight streaming in.
- Let imaginations run wild in a bright, cheerful playroom designed for kids to explore, create, and grow in their own lively little world.
- From sunrise coffees on the welcoming front porch to serene sunsets out back, these dual outdoor spaces invite connection with nature and neighbors alike.
- The detached two-car garage adds both function and charm—perfect for vehicle storage, gear organization, or converting into a workshop or studio.
PL-64019 Mockingbird Barndominium House Plan

- 1472 Heated square feet
- 2 bedrooms
- 2.1 bathrooms (One Jack & Jill Bathroom)
- Single Story
- Open concept
- Mudroom
- Safe room (in the garage)
- Office (Optional bedroom 3)
- Mechanical room (in garage)
- 2-car Garage, 795 Sq ft
- Front & Rear Porch
- A well-crafted 1,472 square feet of heated space offers year-round comfort with zero wasted corners—just cozy functionality at its finest.
- Two private retreats made for rest, recharge, and personal escape—perfectly sized for flexibility and style.
- Two full baths plus a clever powder room in the garage make mornings efficient and guest visits seamless.
- Enjoy the freedom of single-level living and a breezy open concept layout that brings natural flow and modern charm.
- A convenient mudroom/laundry area is your daily buffer zone—ideal for dropping boots, organizing bags, or corralling chaos before it enters your sanctuary.
- Peace of mind tucked away—this built-in safe room adds an extra layer of protection without compromising design.
- Work, create, or reflect in a dedicated office space that elevates productivity and quiet focus, which can also be bedroom 3 if you prefer.
- A tucked-away mechanical room keeps essentials out of sight but always within reach—because smart homes start with smart design.
- Generously sized 795 sq ft garage gives you room to park, store, and even tinker—with extra space for weekend projects.
Conclusion
When building a barndominium, the floor plan is crucial. These 2 car garage barndominium floor plans are expertly designed and professionally drafted for the best possible final product. By knowing what is possible, you can build the perfect barndominium for yourself and your family.
If you would like more guides like this one, check out the rest of BarndominiumLife.com. There, you will find more helpful tips and tricks from the pros.
You will also find featured barndominiums, stock barndominium house plans, custom barndominium house plans, and information on financing and insurance.
Just starting out? Check out the Barndominiums Made Easy Program. It has our “How to Build Guide”, 120+ House Plans, and the Bid and Budget Tracker. Knowing as much as you can will help you get the best results for your dream home.
Find More Barndominium Floor Plans
By Bedrooms:
1 Bedroom • 2 Bedrooms • 3 Bedrooms • 4 Bedrooms • 5 Bedrooms • 6 Bedrooms • 7 Bedrooms • 8 Bedrooms
By Feature:
1-Story • 2-Story • With Garage • 2 Car Garage • 3 Car Garage • Wraparound Porch • With Breezeway • 2 Master Suites • With Loft • Multi-Family Barndominiums • Open-Concept • With Shop
By Size:
Small Plans • 800 Sq Ft • 900 Sq Ft • 1000 Sq Ft • 1200 Sq Ft • 30×40 Floor Plans • 1400 Sq Ft • 1500 Sq Ft • 1600 Sq Ft • 40×40 Floor Plans • 1800 Sq Ft • 30×60 Floor Plans • 2000 Sq Ft • 2400 Sq Ft • 2500 Sq Ft • 2800 Sq Ft • 3000 Sq Ft • 3200 Sq Ft • 3600 Sq Ft • 4000 Sq Ft • 5000 Sq Ft •





































































