
HC-24003 Magnolia Barndominium House Plan
Want to buy this house plan? Scroll to the bottom and find the link to purchase.
You can see all the pictures of this plan as a completed home here!
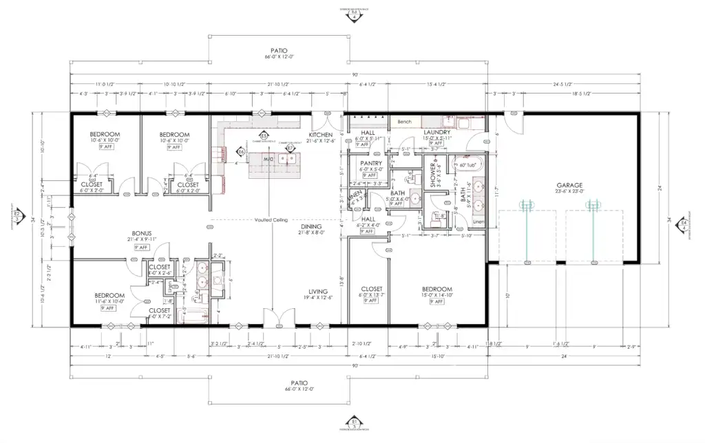
- 2244 Heated square feet
- 4 Bedrooms
- 2.1 Bathrooms
- Open concept
- 540 Sq Ft Attached Garage
- Bonus Room
- Front and Rear Porch
- A thoughtfully designed floor plan that offers 2244 heated square feet of living space. This layout features 4 bedrooms and 2.1 bathrooms, ensuring ample room for a comfortable lifestyle.
- The 540 sq ft attached garage provides generous space for your vehicles and additional storage. A unique feature of this plan is the bonus room, which can be customized to suit your needs, whether it’s a home office, gym, or a playroom.
- Adding to the charm of this home are the front and rear porches, providing delightful outdoor spaces for relaxation or entertaining.
For more barndominium floor plans, check out our complete collection of 4-bedroom barndominium floor plans.
You can see this plan as a completed home here!
Need to make changes? Email our modification department. We will get you a free price quote within 72 hours.
Please note all square footage are estimates.





Find More Barndominium Floor Plans
By Bedrooms:
1 Bedroom • 2 Bedrooms • 3 Bedrooms • 4 Bedrooms • 5 Bedrooms • 6 Bedrooms • 7 Bedrooms • 8 Bedrooms
By Feature:
1-Story • 2-Story • With Garage • 2 Car Garage • 3 Car Garage • Wraparound Porch • With Breezeway • 2 Master Suites • With Loft • Multi-Family Barndominiums • Open-Concept
By Size:
Small Plans • 800 Sq Ft • 900 Sq Ft • 1000 Sq Ft • 1200 Sq Ft • 30×40 Floor Plans • 1400 Sq Ft • 1500 Sq Ft • 1600 Sq Ft • 40×40 Floor Plans • 1800 Sq Ft • 30×60 Floor Plans • 2000 Sq Ft • 2400 Sq Ft • 2500 Sq Ft • 2800 Sq Ft • 3000 Sq Ft • 3200 Sq Ft • 3600 Sq Ft • 4000 Sq Ft • 5000 Sq Ft •

