These 4 bedroom barndominium floor plans with pictures will inspire you to build your dream barndominium in no time. With so many options and designs you are sure to find the floor plan you have been searching for.
For many, building a barndominium is a lifelong dream. After so long living in urban or suburban that might have been too cramped or designed to someone else’s standards, you’ve finally got the opportunity to build the barndo you’ve always wanted.
Especially for those who are creating their forever home, it’s important to get the layout just right so you can enjoy it for years to come. We’ve got some incredible 4 bedroom barndominium floor plans for you to consider for your next build. These layouts are perfect for larger families, multi-generational families, or even those who love to entertain.

There are so many considerations to take into account when designing a floor plan for your home. As you look through these options, you might decide that you need something different for your unique lifestyle, and that’s ok!
One of the best things about building a barndominium is how customizable and adaptable they are to your needs. No matter what you’re looking for, there are plenty of ways you can make your dream a reality even if it means building a multi-family barndominium, we can help you.
If you’re adept at design, consider using some barndominium planning software to create a custom layout (we’ve got more on that below). But if you’d prefer to leave the planning to the pros, many barndo designers can help you create precisely what you need.
Many builders specialize in this exact thing, so you can be sure you’ll end up with the barndominium you’ve always envisioned. Just make sure you choose the right barndominium builder.
Page Contents
4 Bedroom Barndominium Floor Plans – Things to Consider
Although many of these 4 bedroom barndominium floor plans may look perfect, they may not be well suited to your lifestyle or how you plan to use your home. Before you dive in and start designing a layout, take some time to think about these elements and how you can create a home that works well for your needs.
Lifestyle
This aspect will be different for everyone. How many kids you have, how often you have overnight guests, whether you need a home office or a workshop, and how much you utilize common living spaces should all affect the layout of your home. Use this information to outline how many different kinds of rooms you’ll need in your house and what their relative sizes should be to one another.
Make sure you leave some room for some flexibility, though – kids grow up and might move out, elderly parents might move in for extra care, or you might find yourself needing more space than before if you run a home business. That’s one reason we think four barndominium floor plans work so well – there’s ample space for all of life’s needs.
Consider Your Land
There’s nothing more enjoyable than taking in the beautiful outdoor views while relaxing in your barndominium, so account for that when planning your layout.
If you are fortunate enough to have gorgeous forest or mountain views on one side, consider having your main living room wall face that way, with large windows installed to take advantage of the scenery. If you’d love nothing more than kicking back on the porch while watching the colorful sunset, be sure to incorporate this into your design plans as well.
Traffic Flow
This can be a tricky one for people to envision, but it’s crucial to get it right, so your barndominium doesn’t inconvenience you. Be sure to map out common paths to ensure you’re creating accessible routes for your space.
For instance, how far is it to haul your dirty clothes from the bedrooms to the laundry room? How much of a walk is it from the garage to the kitchen when you’re bringing in heavy groceries? How do you want your bedrooms laid out, so you don’t have to sneak around like a mouse in the evenings to avoid waking up your family?
All of these are important factors that should be at the forefront of your mind when designing your layout.
Closets and Storage
Although you want your home to be beautiful, its functionality also plays a large role in your life. To that end, making sure that you leave ample room for closets and storage should be a critical factor in your 4 bedroom barndominium floor plans.

Take into consideration not just bedroom closets, but pantries, workshop storage, and linen closets as well. Don’t forget to leave plenty of room for general storage too, as this is where you’ll keep items like holiday décor, luggage, and everything else you can’t fit into your main closets.
Buy 4 Bedroom Barndominium House Plans Now

4 Bedroom Barndominium Floor Plans with Pictures – Get Inspired with These Floor Plan Ideas
Now that you’ve done the hard work of determining the various needs for your house, it’s time to start looking at 4 bedroom barndominium floor plans to give you all kinds of great ideas!
PL-61313 Pinewood Barndominium House Plan
- 2400 Heated Square Feet
- 3 Bedrooms
- 2.1 Bathrooms
- Single story
- Open concept
- Mudroom
- Living room and family room
- Office
- Secure closet
- Utility
- Front & rear porch
- This spacious 2400 heated square feet layout provides ample room to live, work, and relax, offering a perfectly balanced environment for comfort and functionality.
- Three generously sized bedrooms create the ideal retreat for restful nights and serene mornings, perfect for a growing family or accommodating guests.
- With two full baths and a convenient half bath, this home ensures privacy and ease, catering to both busy mornings and relaxing evenings.
- Experience effortless living with a single-story design that eliminates the need for stairs while maintaining elegance and flow.
- The open-concept layout seamlessly blends spaces, fostering a sense of connectivity and allowing natural light to fill every corner.
- A practical and stylish mudroom provides a space to store shoes, coats, and bags, keeping your home organized and clutter-free.
- Enjoy the best of both worlds with a cozy living room for intimate gatherings and a family room designed for quality time and entertainment.
- The dedicated office space offers a quiet and inspiring environment for productivity, creativity, or simply enjoying a moment of focus.
- A secure closet ensures your valuables are safely stored, giving you peace of mind in your sanctuary.
- The utility room makes household tasks efficient and streamlined, designed with functionality and convenience in mind.
- Charming front and rear porches extend your living space outdoors, perfect for sipping coffee, hosting barbecues, or enjoying serene sunsets.
PL-62650 Oakdale Barndominium House Plan
- 3,910 Heated Square feet
- 1 Story
- 4 Bedrooms
- 2.1 Bathrooms
- Office
- Kids’ living room
- 3-Car Garage
- Office
- Utility room
- Mudroom
- Front & rear porch
- 3,910 Heated Square Feet – Massive layout built for big living and breathing room.
- 1 Story – All the space you need, with no stairs to climb.
- 4 Bedrooms – Room for family, guests, and then some.
- 2.1 Bathrooms – Two full baths and a guest powder room—always ready.
- Office – Work-from-home space that means business.
- Kids’ Living Room – A dedicated hangout zone for play, screen time, or homework.
- 3-Car Garage – Plenty of room for rides, gear, and storage.
- Utility Room – Handle laundry, cleaning, and chaos like a pro.
- Mudroom – Drop the dirt before it hits the floors.
- Front & Rear Porch – Morning coffee out front, sunset drinks out back.
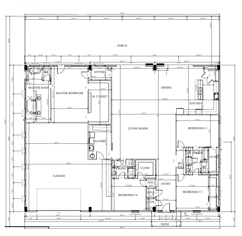
PL-62304 Wolfe Barndominium House Plans
- 3226 Heated square feet
- 757 square feet attached garage
- 4 bedrooms
- 4 bathrooms
- 2 Story
- Loft
- Jack and Jill Bathroom
- Open Concept
- The Wolfe barndominium house plan is 3226 heated square feet and features 4 bedrooms, 4 full bathrooms, and an attached 757 square foot attached garage.
- As you enter the home, you’ll immediately notice the spacious great room, which is perfect for entertaining guests or simply relaxing with family.
- On the other side of the great room is the family room, which features its own bathroom and a stairway leading to the second floor. It is cozy and perfect for unwinding after a long day. This space is also perfect for a downstairs playroom if you choose.
- The standout feature of this barndominium is the large kitchen and dining areas. The kitchen is larger and spacious and has plenty of counter space making it a great place for cooking and entertaining. An added bonus is the large butler’s pantry just off the kitchen.
- Located downstairs, you’ll find the huge master bedroom, complete with its own bathroom and closet. This is a great space for privacy and relaxation, and you’ll love the comfort and convenience of having your own master suite. A special feature of this master bedroom is a door where you can access the shop which is the perfect place for working on projects or storing tools.
- The 3 secondary bedrooms are located upstairs. All of them have nice-sized closets. Bedroom 3 has its own private bathroom while bedrooms 1 & 2 share a convenient jack and jill bathroom.
- The garage is a spacious 757 sq ft, providing ample space for your vehicles and storage needs. The garage also connects to the shop, making it easy to move between the two spaces. And with a total of 163 sq ft of shop space, you’ll have plenty of room to work on your hobbies or projects.
- With a front and back porch, there is plenty of space outside to enjoy the great outdoors as you soak it all in.
PL-61901 Athena Barndominium House Plan

- 2000 Heated Sq Ft
- 4 Bedrooms
- 2 Bathrooms
- Single Story
- Open concept
- Mechanical room
- Wraparound porch
- Spanning 2000 square feet of heated space, this home offers ample room for comfortable living and entertaining throughout the year.
With four spacious bedrooms, there’s plenty of room for family members, guests. - Enjoy the convenience of two well-appointed bathrooms, making morning routines and evening unwinds a breeze for everyone.
- The single-story, open-concept layout ensures ease of accessibility and mobility, allowing for easy flow between the living, dining, and kitchen areas and a seamless living experience without the need for stairs.
- The attached 2-car garage comes with a mechanical room housing a water tank, HVAC system, and water heater, offering convenient and organized storage for essential household systems.
- A charming wraparound porch invites you to relax and enjoy the outdoors, whether you’re sipping your morning coffee or watching the sunset.
SV-5504-M Marybank Barndominium House Plan

- 2964 Heated square feet
- 4 Bedrooms
- 4 Bathrooms
- Loft
- Open concept
- Mechanical Room
- Mudroom/laundry room
- Front porch and an expansive rear Porch
- Outdoor kitchen
- Welcome to your personal stretch zone—nearly 3,000 square feet of blissfully air-conditioned goodness. Whether you’re hosting, nesting, or pacing around with coffee and ideas, there’s room for it all (and then some).
- Four bedrooms means no more debates over who gets the “good one.” There’s space for kids, guests, hobbies—or all of the above with room to spare.
- Four bathrooms: because morning traffic belongs on the freeway, not outside your shower. Everyone gets their own throne here.
- A cozy perch for reading, entertainment, or working. Your stylish escape just one staircase away.
- No skips. Just seamless flow, happy vibes, and endless possibilities from kitchen to couch in the open concept layout.
- The brain behind the brawn. This tucked-away mechanical room is the command center that keeps your home’s heartbeat humming without a fuss or a fray.
- Your buffer zone between “adventure” and “clean floors.” Toss the dirty boots, wrangle the laundry, and reclaim the indoors in your mudroom/laundry room.
- Sip coffee out front, throw BBQs out back. Double the porches, double the charm—porch life is the good life.
- Where grilling meets chilling. This alfresco kitchen turns every meal into an event, and every chef into a backyard legend.
AK-4004 Harrington Barndominium House Plan
- 2240 Heated square feet
- 40×56 living space dimension
- 4 Bedrooms
- 3.1 Bathrooms
- Single-story
- Open concept
- Flex/Playroom
- Mudroom
- Laundry Access from Master
- Front & rear porch
- 2-3 car, 640 SF attached garage
- Optional workshop
- A comfortably spacious layout that balances everyday functionality with room to unwind, all within 2,240 square feet of cozy, climate-controlled living.
- A room for every dreamer—four serene bedrooms, each offering personal space and privacy for rest.
- No more morning traffic jams—with three full baths and a guest-friendly powder room, everyone moves with ease.
- Light, airy, and connected—the heart of the home opens wide for effortless entertaining and modern family living.
- A space that bends to your rhythm—create a playroom, home office, or creative studio in this adaptable bonus area.
- Tidy up in style—this hardworking entry keeps clutter out of sight and every adventure organized.
- Skip the hallway shuffle—enjoy direct laundry access from the primary suite for ultimate convenience.
- From morning coffee to twilight chats, enjoy outdoor living front and back with covered porches that invite you to linger.
- Room for the daily drivers plus weekend toys—this 640-square-foot garage fits up to three vehicles with ease.
- DIYers rejoice! An optional workshop gives you space to tinker, craft, and create to your heart’s content.
HC-24003 Magnolia Barndominium House Plan

- 2244 Heated square feet
- 4 Bedrooms
- 2.1 Bathrooms
- Open concept
- 540 Sq Ft Attached Garage
- Bonus Room
- Front and Rear Porch
- A thoughtfully designed floor plan that offers 2244 heated square feet of living space. This layout features 4 bedrooms and 2.1 bathrooms, ensuring ample room for a comfortable lifestyle.
- The 540 sq ft attached garage provides generous space for your vehicles and additional storage. A unique feature of this plan is the bonus room, which can be customized to suit your needs, whether it’s a home office, gym, or a playroom.
- Adding to the charm of this home are the front and rear porches, providing delightful outdoor spaces for relaxation or entertaining.
SV-5505 Callum Barndominium House Plan
- 2330 Heated square feet
- 4 Bedrooms
- 3.1 Bathrooms
- Loft
- Open concept
- Attached 875 Sq Ft Garage
- Jack n Jill Bathroom
- Mudroom
- Wraparound Porch
- A spacious and well-designed floor plan that spans across 2330 heated square feet. This plan features 4 bedrooms and 3.1 bathrooms, providing ample space for a comfortable living experience.
- The plan also includes a second floor with 2 bedrooms, a bathroom and loft area.
- The attached 875 sq ft garage offers plenty of room for your vehicles and storage.
- One of the unique features of this plan is the Jack n Jill bathroom, shared between two bedrooms, which optimizes space and functionality.
- The mudroom provides a practical solution for keeping your home clean and organized, especially on rainy days.
- Finally, the wraparound porch adds a charming touch to the exterior while offering a relaxing outdoor space for you to enjoy. This floor plan truly combines style, comfort, and practicality.
PL-71011 Rosemont Barndominium House Plans
- 4 Bedrooms
- 4.2 Bathrooms
- 4150 Heated Square Feet
- Single-story
- Open-concept
- Mudroom
- Great room
- Living room near the 3 bedrooms
- Foyer
- Indoor and Outdoor Fireplace
- Theatre room
- Front, rear, and side porches
- Kitchen 2 adjacent to the living room
- Outdoor Kitchen
- 2 Laundry rooms
- 2- Car Garage (845 Sqq Ft)
- 1-Car Garage (413 Sq Ft)
- This expansive single-story residence boasts 4,150 square feet of climate-controlled space, ensuring comfort in every corner. Enjoy the ease of single-story living with all essential areas accessible on one level, enhancing mobility and convenience.
- The layout seamlessly combines the great room, dining room, and main kitchen, creating an open space perfect for entertaining and daily life. Centrally located, this room serves as the heart of the home with its cozy built-in indoor fireplace.
- The living room is positioned near Bedrooms 2, 3, and 4 on the left side and offers a comfortable area for relaxation and family time and the adjacent secondary kitchen is ideal for additional cooking needs.
- A welcoming spacious foyer sets the tone for the home and provides a great first impression for guests.
- The master bedroom is on the right side, offering privacy with its own ensuite bathroom while the 3 bedrooms are on the left side, near the living room, a setup ideal for guests or family members desiring more secluded space.
- The master bathroom is connected to the master bedroom for private convenience. Two bedrooms each have bathrooms and another common bathroom for easy access. In addition, there are two half baths, one by the foyer for guests and quick usage and another in the theatre room.
- Located conveniently, the theatre room is perfect for enjoying movies and entertainment in the comfort of your own home.
- Near the 2-car garage, this practical mudroom space helps keep your home tidy by providing a spot for shoes and outerwear.
- The indoor fireplace in the great room adds warmth and charm, while the outdoor fireplace on the rear porch enhances the outdoor living experience.
- The front porch welcomes visitors, the rear porch with an outdoor kitchen is perfect for gatherings, and the side porch by the living room offers a relaxing outdoor retreat.
- With 845 sq ft, this 2-car garage offers ample room for vehicles and additional storage while another 1-car garage with 413 sq ft of space on the left side offers extra room for another vehicle and storage needs.
AP-20002 Cottonwood Barndominium House Plan

- 2000 Heated square feet
- 4 Bedrooms
- 2 Bathrooms
- Single story
- Open concept
- Front and back porch
- Mudroom
- Mechanical room
- This single-story design features an open-concept living space, seamlessly connecting the kitchen, dining, and living areas. Enjoy the tranquility of a front porch and the privacy of a back porch, perfect for relaxation or entertaining.
- Features four bedrooms: a secluded master suite on one side of the house, offering a peaceful retreat, while the other three bedrooms are positioned on the opposite side, ideal for family or guests. The strategic placement ensures personal space for all occupants.
- Includes two bathrooms: a private master bathroom for the ultimate in convenience and a shared bathroom to accommodate both family members and guests with ease.
- This floor plan meets all your practical needs and incorporates a mudroom, mechanical room, and both front and back porches for comprehensive functionality in your home.
PL-60408 Sandy Barndominium House Plan
- 2000 Heated square feet
- 4 Bedrooms
- 2 Bathrooms
- Bathroom
- Single Story
- Open concept
- 2000 heated square feet spacious haven offering ample room for comfort, functionality, and personal flair.
- Versatility meets privacy—perfect for a growing family, guests, or that dream home office with 4 bedrooms.
- Streamlined and stylish spaces designed to handle busy mornings and relaxing evenings effortlessly with the 2 bathrooms.
- Seamless living with no stairs—enjoy the ease and elegance of everything on one level on this single-story, open concept layout.
PL-60703 Sparrow Barndominium House Plan
- 3020 Heated square feet
- 4 Bedrooms
- 4 Bathrooms
- Office
- 1 Story
- This property boasts 3020 heated square feet of living space, perfect for a spacious and comfortable lifestyle.
- With 4 bedrooms and 4 bathrooms, there is ample room for a growing family or hosting guests.
- The home features an office, providing a designated space for work or study.
- This single-story home offers convenient living and an inviting atmosphere for all.
PL-62514 Constantine Barndominium House Plan
- 4 Bedrooms
- 3 Bathrooms
- 2525 Heated square feet
- 1 story
- Recreation area
- This 1-story house boasts a generous 2,525 heated square feet, providing ample room for comfortable living.
- With four bedrooms, this home offers plenty of space for a growing family or guests. You’ll find three well-appointed bathrooms, ensuring convenience for all occupants.
- Enjoy quality family time in the welcoming family room with a charming fireplace. The property also features a dedicated recreation area, perfect for leisure and entertainment.
- Open Concept: The open concept design creates a seamless flow between the living spaces, making it ideal for daily living and hosting gatherings.
- The spacious master bedroom with a walk-in closet and bathroom is located by the kitchen for a quiet and private space while the 3 other bedrooms are opposite the master bedroom with 2 shared bathrooms.
PL-62518 Bradford Barndominium House Plan
- 2,610 Heated Square feet
- 1 Story
- 4 Bedrooms
- 2 Bathrooms
- Office
- Media Room
- Mudroom
- 2-Car Garage
- Spacious home offers 2610 square feet of heated living space, providing ample room for comfortable living and entertaining2. 1 Story: The property features a single-story layout, offering convenient accessibility and a cohesive living space all on one level.
- With four bedrooms, this home provides plenty of private and shared sleeping quarters, ideal for families or those in need of additional space.
- The property includes two bathrooms, catering to both convenience and comfort for residents and guests.
- A dedicated space for work or study is incorporated into the home, providing a quiet and functional area for professional or academic activities.
- This home features a media room, perfect for enjoying movies, gaming, or entertainment in a designated space.
- A mudroom offers an ideal space for storing outdoor gear, shoes, and other items, helping to keep the rest of the home clean and organized.
- The property comes with a two-car garage, providing sheltered parking and additional storage space for vehicles and belongings.
PL-62522 Noah Barndominium House Plan
- 3230 Heated square feet
- 4 Bedrooms
- 3 Bathrooms
- 1 story
- Office
- Mudroom
- Front and back porch
- The 3230-heated square feet house plan offers spacious and comfortable living, with ample room for a family to grow and entertain. With its generous square footage, this house plan provides the versatility to accommodate various lifestyles and needs.
- A spacious 4-bedroom house plan designed for modern living. This thoughtfully crafted layout features four well-appointed bedrooms, offering flexibility and comfort for families or individuals seeking extra space for guests or a growing family.
- This thoughtfully designed home features three well-appointed bathrooms, providing ample space and privacy for the entire household. Each bathroom is crafted with modern fixtures and elegant finishes, creating a comfortable and aesthetically pleasing environment. Whether it’s the master ensuite or a shared guest bathroom, this house plan ensures convenience and sophistication for all occupants.
- Introducing a charming and compact 1-story house plan designed for modern living. This thoughtfully laid-out design features an open floor plan, maximizing space and natural light. The seamless flow from the living area to the kitchen creates a welcoming ambience for gatherings and daily activities. With a focus on simplicity and efficiency, this 1-story house plan embodies convenience and comfort for its residents.
- The house plan features a practical mud room, providing a dedicated space for removing and storing outdoor gear to keep the main living areas clean and organized. Additionally, this plan includes a thoughtfully designed office space, perfect for work or study, offering a quiet and productive area within the comfort of the home. These features enhance both the functionality and convenience of the living space, catering to modern lifestyle needs.
- Introducing the perfect blend of indoor comfort and outdoor relaxation! This house plan features a front porch, providing a charming space to welcome guests, and a spacious back porch, ideal for enjoying the outdoors in privacy.
PL-63301 Windermere Barndominium House Plan
- 2000 Heated Square Feet
- 4 Bedrooms
- 2.1 Bathrooms
- Single story
- Open concept
- Mudroom
- Fireplace
- Mechanical room
- Attached 2-car garage
- Wraparound Porch
- This spacious home offers 2000 heated square feet, providing ample room for comfortable living and entertaining.
- Featuring four bedrooms, this home is ideal for families or guests, offering privacy and flexibility for various needs.
- With two full bathrooms and an additional powder room, you’ll have plenty of facilities to accommodate residents and guests.
- Convenience at its finest—this unique feature allows easy access from the master closet to the laundry room, streamlining your daily chores.
- Enjoy the ease of single-story living with an open-concept design that promotes a seamless flow between living spaces.
- The combined mudroom and laundry room offers practical storage and organization solutions, keeping the rest of your home clutter-free.
- Cozy up by the fireplace, a charming focal point that adds warmth and ambiance to the living area.
- The Mechanical Room houses the water tank, HVAC, and water heater ensuring efficient and accessible home maintenance.
- The attached 2-car garage includes a mechanical room and powder room, providing extra convenience and utility.
- Relax and enjoy outdoor living on the wraparound porch, perfect for entertaining or simply savoring the surrounding views.
PL-64001 Skipper Barndominium House Plan
- 2479 Heated Square Feet
- 4 Bedrooms
- 2.1 Bathrooms
- Single story
- Office
- Media room
- Mudroom
- Fireplace
- Mechanical room
- Utility Room
- Attached 3-car garage
- Front porch
- Patio
- Enjoy a vast, comfortable living space designed for optimal coziness all year round. Perfect for gatherings, relaxation, and everything in between
- Four spacious bedrooms providing ample room for family, guests, and a myriad of possibilities—whether it’s a nursery, guest suite, or personal sanctuary.
- With two full bathrooms and an additional half-bath, you’ll never experience morning rush hour at home. Each bathroom is designed with modern amenities for a refreshing start to your day.
- Experience the ease and convenience of single-level living. No stairs to climb means seamless accessibility for everyone, ensuring comfort and safety.
- A dedicated office space that offers the perfect environment for productivity and focus. Ideal for remote work, homeschooling, or managing household tasks.
- Elevate your entertainment experience with a state-of-the-art media room. Perfect for movie nights, gaming marathons, and cheering on your favorite sports teams in style.
- Keep your home organized and tidy with a practical mudroom. Ideal for storing shoes, coats, and outdoor gear, ensuring a clutter-free living space.
- Cozy up by the warm glow of a fireplace, creating the perfect ambiance for intimate gatherings and relaxing evenings at home.
- Efficiently house your HVAC system, water heater, and other essential utilities in a conveniently located mechanical room, ensuring smooth operations and easy maintenance.
- A functional utility room designed for your laundry and household chores, keeping everything streamlined and out of sight.
- Enjoy the convenience of an attached three-car garage, offering ample parking space, extra storage, and easy access to your vehicles.
- A charming front porch that welcomes you home and offers a delightful space to relax and greet your neighbors. Perfect for sipping morning coffee or watching the world go by.
- Step out onto a spacious patio, ideal for outdoor dining, entertaining, and soaking up the sunshine. A wonderful extension of your indoor living space into the great outdoors.
PL-64016 Ellis Barndominium House Plan

- 2605 Heated Sq Ft
- 4 Bedrooms
- 2 Bathrooms
- Laundry room/mudroom
- Office
- Utility room
- Playroom
- Open concept
- Single story
- Front and back porch
- A well-balanced 2605 heated sq ft designed for year-round comfort, offering plenty of room to live, work, and unwind.
- Spacious, inviting, and thoughtfully four bedrooms designed for relaxation, privacy, and personal style.
- 2 bathrooms that blend of function and convenience, with well-appointed spaces to start and end the day in comfort.
- Practical buffer between the outdoors and indoors, the laundry room/mudroom keeps everyday routines smooth and organized.
- Dedicated workspace built for productivity, creativity, and quiet focus.
- Smartly designed utility room for storage and home essentials, keeping everything running efficiently.
- Bright and playful space for creativity, fun, and relaxation, the play room is perfect for kids or an entertainment zone.
- Welcoming outdoor extensions, ideal for morning coffee, casual gatherings, or simply enjoying the fresh air.
PL-69197 Bexley Barndominium House Plan
- 2683 Heated Sq Ft
- 4 Bedrooms
- 3 Bathrooms
- Laundry room
- Mudroom
- Open concept
- Two-story
- Loft Style
- 1432 Sq Ft Garage
- Front and back porch
- This two-story floor plan offers an impressive 2683 square feet of heated living space. The design also includes a substantial 1432-square-foot garage, perfect for housing vehicles, storage, or a workshop.
- This plan features four bedrooms, three of which are conveniently located on the main floor, and a guest bedroom on the second floor. Each bedroom, including the master and guest bedrooms, has its own private bathroom. Additionally, there is a shared bathroom on the main floor, making this design both practical and accommodating for a variety of living arrangements.
- A loft-style floor plan that features an open concept main floor. As you enter the house from the garage, you are greeted by a practical mudroom, perfect for storing outdoor gear and keeping the rest of the home clean. Conveniently, this mudroom is also linked to the laundry room, making it easy to manage household chores.
- This floor plan features a charming front porch, providing a warm welcome to visitors. At the rear of the house, a spacious back patio offers ample room for outdoor dining, relaxation, or entertaining. Whether you’re greeting neighbors at the front door or enjoying a backyard barbecue, this floor plan caters to a lifestyle that appreciates both community connection and private leisure.
PL-69198 Shiloh Barndominium House Plan

- 2400 Heated square feet
- 1231 square foot attached 3 car garage
- 4 bedrooms
- 2.1 bathrooms
- 1 Story
- Open Concept
- Office
- Media Room
- Mechanical Room
- Laundry Room
- Introducing our 2400 sq ft, single-story floor plan! This open-concept design offers a spacious and flexible living area that adapts to your lifestyle. The single-story layout makes it accessible and convenient for all ages. The open concept encourages social interaction and allows natural light to flow, creating a bright and welcoming space.
- Benefit from the convenience of ample vehicle storage with its 1231 sq ft attached 3-car garage, a well-organized utility space with a dedicated mechanical room within the garage, and a mudroom that keeps your home tidy and clutter-free while also serving as a practical transition area providing direct access from the garage.
- Experience comfort, productivity, and entertainment all under one roof with this floor plan. This versatile floor plan features 4 bedrooms and 2.5 bathrooms! This design includes a dedicated office space for your work-from-home needs and a media room for entertainment.
PL-69199 Victoria Barndominium House Plan
- 2023 Heated square feet
- 4 bedrooms
- 2 bathrooms
- 1 Story
- Open Concept
- Mechanical Room
- Laundry Room
- Beautifully designed 1-story floor plan that spans across 2023 heated square feet. This open-concept design ensures a seamless flow between living spaces. The generous square footage allows for spacious rooms and ample storage.
- A meticulously designed floor plan featuring 4 bedrooms and 2 bathrooms. Each bedroom offers a private retreat while the shared spaces encourage family interaction. The two bathrooms are strategically located for easy access.
- This layout features a dedicated mechanical room for all your utilities, ensuring easy maintenance and access. The highlight of this design is the laundry room, ingeniously accessible from the master bedroom closet. This unique feature brings a new level of convenience to your daily routine.
PL-62324 Milford Barndominium House Plan


- 3713 Heated square feet
- 1337 sq ft 3-car garage
- 4 bedrooms
- 3.1 bathrooms
- Open Concept
- 2 Story
- Loft
- Wraparound porch
- Shop
- Mechanical room
- Safe room
- Storage room
- Just the right size to live large without the sprawl in this 3,713 heated SF home
- Oversized 1,337 SF 3-Car garage with space for your cars, gear, and then some.
- Spacious sleeping quarters for family, guests in the four cozy bedrooms.
- With 3.1 bathrooms, no more morning traffic jams—everyone gets their space.
- Light, flow, and freedom from wall-to-wall living in an open concept layout.
- Double the space, smart separation between living and rest in two stories.
- Bonus flex space for lounging or gaming for your loft.
- All-season charm with 360° views and serious curb appeal all in your wraparound porch.
- Built-in utility, security, and workspace without sacrificing square footage with the shop, mechanical room, and safe room all in the garage.
- Storage room keeps the clutter hidden and the living space clean.
PL-62519 Walter Barndominium House Plan
- 3,072 Heated Square Feet
- 1 Story
- 4 Bedrooms
- 4 Bathrooms
- Craft Room
- Office
- Shop
- Enjoy the spacious and cozy living in this 3,072 square feet home that is perfect for families who love to entertain and relax in comfort.
- This one-story home offers convenience and accessibility for all ages and abilities. No stairs to climb, no hassle to move furniture, and no wasted space.
- This home has four bedrooms that can accommodate your family and guests.
- This home has four bathrooms that are modern and functional. Each bathroom has a vanity, a toilet, and a shower or a tub.
- This home has a craft room that is ideal for your hobbies and projects.
- This home has an office that is perfect for your work and study needs and also has a door that can be closed for privacy and quietness.
- This home has a shop that is great for your DIY and repair activities. The shop also has a garage door that can be opened for ventilation and access.
LP-2804 Legg Barndominium House Plans
- 2000 Heated square feet
- 1200 square feet detached 2 car garage
- 4 bedrooms
- 2 bathrooms
- 1 Story
- Open Concept
- The Legg Barndominium house plan is 2000 heated square feet and features 4 bedrooms and 2 bathrooms.
- You will love the 1200 square feet detached garage that offers plenty of room for parking your vehicles as well as storage, but the feature you will love the most is the storm shelter that gives you peace of mind during every severe weather storm.
- This house plan is a lovely open concept so that the whole family feels connected when in the living room, dining room, and kitchen. The vaulted ceilings allow this area to feel even more grand.
- The kitchen is spacious with a nice size island that allows for more storage and prep. Located in the corner of the kitchen is a moderate-sized pantry.
- In this Legg Barndominium house plan, all the bedrooms and laundry room offer 10-foot ceilings which makes the home feel even more spacious.
- The master bedroom is a nice size with an ensuite bathroom and a walk-in closet that leads to the laundry room.
- Located on the other side of the house are three additional bedrooms that share one common bathroom.
PL-2806 Bilbrey Barndominium House Plans

- 2317 Heated square feet
- 4 bedrooms
- 3 bathrooms
- 2 Story
- Loft
- Open Concept
- Laundry room
- Pantry
- The Bilbrey barndominium house plan is 2317 heated square feet and features 4 bedrooms and 3 bathrooms.
- The open floor plan allows for maximum functionality within the main areas of the home.
- The master bedroom is located on one end of the home with a nice-sized master bathroom and closet.
- Three other bedrooms are located on the other side of the main living area. They all have decent-sized closets and share the other full bathroom.
- At the top of the stairs there is a great loft perfect for a kid’s playroom, a hangout area, or an open space for study.
- The front and back porches are perfect for entertaining or enjoying a nice cup of coffee in the morning.
LP-1006 Hazel Barndominium House Plans
- 2000 Heated square feet
- 1200 square foot detached garage
- 4 bedrooms
- 2 bathrooms
- 1 Story
- Open Concept
- The Hazel Barndominium house plan is 2000 heated square feet and featured 4 bedrooms and 2 bathrooms.
- This open concept floor plan has plenty of room for your growing family, with a large kitchen (with island), dining area, and living room.
- The master suite is located away from the secondary bedrooms giving more privacy to the owners. You will love the door to make the laundry room accessible from the master closet to make laundry a breeze!
- The secondary bedrooms make for perfect children’s bedrooms with nice size closets that all share the second bathroom in the home.
- The hazel barndominium house plan offers a large laundry room with pantry.
- This barndominium house plan offers a front and back porch so that you have room to enjoy the great outdoors with your family.
LP-3209 Leanos Barndominium House Plan


- 4345 Heated square feet
- 4 Bedrooms
- 2.2 Bathrooms
- Loft
- Open concept
- Office
- Media Room
- Storage Rooms
- Front and back porch
- This expansive 4,345 heated square feet residence features 4 bedrooms and 2.2 bathrooms, offering plenty of space for everyone. The open-concept layout seamlessly connects the living, dining, and kitchen areas.
- The second-floor loft is a versatile space, housing both the media room and ample storage rooms, making it a great spot for relaxation and organization. The office, conveniently located near the master bedroom, provides a quiet space for work or study.
- Enjoy the outdoors with a huge front porch and a cozy back porch. This home combines thoughtful design with modern amenities to create a perfect living environment for you and your family.
PL-61302 Barfield Barndominium House Plans
- 2207 Heated square feet
- 943 square feet attached garage
- 4 bedrooms
- 2.1 bathrooms
- 1 Story
- Mudroom
- Media Room
- Office
- Open Concept
- The Barfield barndominium house plan is 2207 heated square feet and features 4 bedrooms, 2 full bathrooms, and 1 half bathroom. It also has a 943 square foot 3 car garage.
- As you enter the front door, you are greeted with a large open floor plan. The kitchen is large and spacious with a nice island and a corner pantry.
- Just off the family room is the master bedroom with an ensuite bathroom and master walk-in closet.
- On the other side of the house, you will find 3 secondary bedrooms all with nice-sized closets and a shared bathroom.
- This house plan also features a large media room perfect for family movie nights.
- There is also an office that is perfect for working from home.
- When entering through the 3-car garage into the house you will find a nice laundry room, half bathroom, and mudroom making it super convenient when coming in from outside.
- With a front porch and a nice size back patio, you have plenty of room for entertaining or relaxing after a long day.
PL-62205 Whiting Barndominium House Plan
- 3100 Heated square feet
- 4 bedrooms
- 3 bathrooms
- 1 Story
- Playroom
- Office
- Open Concept
- The Whiting barndominium house plan is 3100 heated square feet and features 4 bedrooms and 3 bathrooms.
- As you enter this barndominium house plan you are greeted by a spacious entry, dining room, family room, and kitchen. The space is open and inviting perfect for gathering friends and family together.
- The kitchen is a nice size with a larger island perfect for food prep, washing dishes, and serving food. Just off the kitchen, you will find a walkin pantry that is plenty big for storing small appliances and food.
- The master bedroom is the perfect size with a large ensuite bathroom and master walk-in closet.
- The 3 secondary bedrooms all have plenty of closet space and share the 2 additional full bathrooms.
- The office is just off the kitchen. It is perfect for working from home or a great place for the kids to catch up on homework.
- If you have kids, the playroom is a great addition to the Whiting house plan. If you don’t have kids or they have outgrown playrooms, it is a great TV spot, or hangout for teens.
- From the front porch and the back patio, you can take in the fresh air and beautiful views, and there is plenty of room to sit and eat outside.
PL-71001 Olivia Barndominium House Plan

- 2209 Heated square feet
- 4 Bedrooms
- 2.1 Bathrooms
- Single story
- Open concept
- Office
- Media Room
- Utility room
- Attached 3-car garage
- This floor plan features 2209 heated square feet of living space, all on a single story. The layout is designed with an open concept, seamlessly connecting the main living areas.
- This floor plan includes 4 bedrooms and 2.5 bathrooms. The layout is designed to accommodate a family comfortably, with ample space for rest, relaxation, and personal activities.
- This floor plan features an attached 3-car garage, providing ample space for vehicle storage and potentially additional storage or workspace.
- This floor plan incorporates an office, a media room, and a utility room. The office provides a dedicated workspace, the media room is designed for entertainment, and the utility room serves as a functional area for household tasks.
PL-71005 Vista Barndominium House Plan

- 4 Bedrooms
- 3.1 Bathrooms
- 3179 Heated Square Feet
- 2-story
- Loft
- Playroom
- Media room
- Mudroom
- Mechanical room
- Jack and Jill Bathrooms
- Attached 3-car garage
- Front porch
- Patio
- With an expansive 3,179 heated square feet, this two-story floor plan offers ample space for your family to grow and thrive.
- Enjoy the comfort and privacy of four generously sized bedrooms, including Jack and Jill bathrooms that provide convenience and elegance. The 3.1 bathrooms ensure there’s never a wait during busy mornings.
- The loft area is perfect for a cozy reading nook or home office, while the playroom offers a dedicated space for fun and creativity. The media room is designed for ultimate entertainment right at home.
- The mudroom is ideal for keeping your home tidy, and the mechanical room ensures your household systems are easily accessible. An attached 3-car garage offers ample parking and storage space for vehicles and outdoor gear.
- Relax on the inviting front porch or host gatherings on the stylish patio, making every moment spent outdoors special.
Design Your Own Barndominium Floor Plans
If these floor plans got your creative juices flowing, yet you’re still looking for something different, feel free to create your own layout using this custom design software. It’s perfect for the DIY aficionado and will let you take a virtual tour of your home after you’ve completed your plan.
If you’re looking for even more inspiration, we’ve created a comprehensive e-book called “Build Your Dream Barndominium” with everything you need to know to begin building the barndo you’ve always wanted.
Conclusion
Whether you’re looking to design your own barndo from scratch, or you want someone else to take the reins on your layout, you’ll still need to put some time and thought into planning out how you want your house to function.
This is where the Barndominium Life Program comes in. It is specially created to guide you step by step in your barndominium journey!
For more information about building your dream home, plus plenty of inspiration to get the look you want, be sure to subscribe to our email list below to stay up-to-date on our newest articles filled with everything you need.
If you would like more guides like this one, check out the rest of BarndominiumLife.com. There, you will find more helpful tips and tricks from the pros.
You will also find featured barndominiums, stock barndominium house plans, custom barndominium house plans, and information on financing and insurance.
Just starting out? Check out the Barndominiums Made Easy Program. It has our “How to Build Guide”, 120+ House Plans, and the Bid and Budget Tracker. Knowing as much as you can will help you get the best results for your dream home.
Find More Barndominium Floor Plans
By Bedrooms:
1 Bedroom • 2 Bedrooms • 3 Bedrooms • 4 Bedrooms • 5 Bedrooms • 6 Bedrooms • 7 Bedrooms • 8 Bedrooms
By Feature:
1-Story • 2-Story • With Garage • 2 Car Garage • 3 Car Garage • Wraparound Porch • With Breezeway • 2 Master Suites • With Loft • Multi-Family Barndominiums • Open-Concept • With Shop
By Size:
Small Plans • 800 Sq Ft • 900 Sq Ft • 1000 Sq Ft • 1200 Sq Ft • 30×40 Floor Plans • 1400 Sq Ft • 1500 Sq Ft • 1600 Sq Ft • 40×40 Floor Plans • 1800 Sq Ft • 30×60 Floor Plans • 2000 Sq Ft • 2400 Sq Ft • 2500 Sq Ft • 2800 Sq Ft • 3000 Sq Ft • 3200 Sq Ft • 3600 Sq Ft • 4000 Sq Ft • 5000 Sq Ft •
























































