Dreaming of a home that perfectly blends comfortable living with practical workspace? Look no further than a barndominium with a shop. These innovative structures offer an unparalleled combination of spacious residential areas and dedicated commercial or hobby spaces, all under one roof. Imagine the convenience of having your workshop, studio, or extra storage just steps from your living room, eliminating commutes and maximizing your productive hours. With ample room to spread out, these versatile barndominiums are designed to cater to a variety of lifestyles, whether you’re a small business owner, a passionate hobbyist, or simply seeking a more efficient and integrated way of life.
Page Contents
Why Build A Barndominium Floor Plan With Shop
Of all the barndominium floor plans that our readers rave about and buy, the barndominium floor plan with shop is undoubtedly the most popular choice among homeowners, and it’s not difficult to see why.
At 2400 square feet, it offers a comfortable living space that’s not too big or too small. This size is perfect for families looking for ample living space and couples who don’t want to feel cramped in their homes.
These are the best barndominium floor plans with a shop. We do add in a few other sizes for comparison.
Each family has unique needs and preferences, and we’ve made sure to include a variety of floor plans to cater to different requirements that you are looking for.
So, whether you’re looking for a spacious workshop, additional storage space, or just a versatile living area, our collection of floor plans is sure to have something that meets your needs.
So let’s get started finding your dream barndominium plans with shop! Can’t find what you are looking for or want to modify a plan? That is no problem. We have a team of designers who are ready to help you design or alter an existing floor plan.
Top Barndominium Floor Plans With Shop
These are some best barndominium floor plans around. We personally love the barndominium floor plan with shop because it gives you the space you want and the functionality that you are looking for.
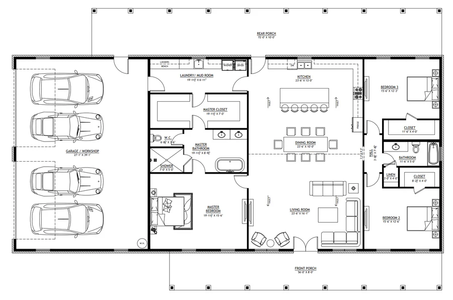
CDD-4101 Haven Barndominium House Plan
- 2400 Heated Sq Ft
- 2 Bedrooms
- 2.1 Bathrooms
- Single story
- Open concept
- Front porch/rear patio
- Office/spare room
- Foyer
- Mechanical room
- Mudroom
- Breezeway
- 4-car garage/shop
- A spacious 2400 square feet of heated living space, designed to blend comfort and style seamlessly.
- Two generously sized bedrooms, each offering a peaceful retreat with plenty of natural light and thoughtful design touches for a cozy yet sophisticated ambiance.
- Two full bathrooms, perfect for refreshing starts and unwinding finishes, complemented by a convenient powder room for your guests’ ease and comfort.
- A thoughtfully planned single-story open-concept layout that ensures easy accessibility, effortless flow, and a harmonious connection between all living spaces.
- Welcoming front porch to enjoy quiet mornings and greet guests, and a spacious rear patio perfect for outdoor dining, gatherings, or simply soaking up the sunshine.
- Versatile office or spare room ready to adapt to your needs—whether it’s a productive workspace, hobby room, or extra guest suite for visitors.
- An elegant foyer that sets the tone for the home, offering a warm and inviting entrance while providing a hint of the thoughtful design awaiting beyond.
- Discreet and functional mechanical room, carefully positioned to house essential systems without interrupting the flow or aesthetics of your living spaces.
- Charming breezeway that not only connects key areas of the home but also provides a breezy, shaded transition between indoors and out.
- Expansive 4-car garage that doubles as a shop, offering the perfect solution for vehicle storage, DIY projects, or indulging in hobbies with plenty of space to spare.
LP-3201 Zephyr Barndominium House Plan
- 2400 Heated square feet
- 750 square foot attached garage
- 3 bedrooms
- 2 bathrooms
- 1 Story
- Open Concept
- Office
- Fireplace
- The Zephyr barndominium house plan is 2400 heated square feet and features 3 bedrooms and 2 bathrooms with an attached 750 square foot attached garage.
- The open-concept design has plenty of room to entertain and spend time as a family in the common areas of the home.
- This house plan has a large kitchen with a spacious island with plenty of counter space for prepping and serving. With the pantry just off the kitchen, it allows for plenty of storage of food and appliances.
- The living room features a desirable fireplace that is positioned in the center of the room to be a great focal piece to the home.
- The master bedroom is just off the dining and includes a nice-sized master bathroom and walk-in closet.
- Two additional bedrooms are located on the opposite side of the home with decent-sized closets and a shared hall bathroom.
- You’ll have plenty of room to work or study in the home office just off the foyer. The double doors allow for privacy when needed.
- Relax on the front porch or back patio with friends and family as the kids play with this Zephyr house plan.
PL-2815 Travis Barndominium House Plan
- 2400 Heated square feet
- 40×60 living space dimension
- 3 Bedrooms
- 2 Bathrooms
- Single story
- Open concept
- Office
- Foyer
- Front porch
- Patio
- Deck
- Safe room
- Walkout basement
- 3-car attached garage
- Enjoy a perfectly balanced footprint offering 2,400 square feet of comfortably climate-controlled living space—roomy enough to stretch out, yet easy to maintain.
- With generous 40×60 dimensions, this home’s layout is designed for flow, flexibility, and functionality—ideal for entertaining and everyday living.
- Three well-appointed bedrooms offer restful retreats for family and guests alike—each thoughtfully placed for privacy, natural light, and comfort.
- Two full bathrooms bring both convenience and style, featuring modern fixtures and smart layouts for a smooth daily routine.
- No stairs, no hassle—this single-story, open-concept design delivers ease and accessibility, perfect for all stages of life.
- A dedicated home office provides a quiet, focused space for productivity—whether you’re working from home, tackling creative projects, or organizing life’s details.
- Step into a welcoming foyer that sets the tone with warmth and charm—a graceful transition from the outside world.
- The inviting front porch is more than curb appeal—it’s a breezy perch to sip coffee, greet neighbors, and enjoy golden hour views.
- Grill, gather, or unwind beneath the stars on your private patio—perfectly positioned for alfresco dining and outdoor living.
- A spacious deck extends your living space under open skies—a natural haven for morning routines or twilight conversation.
- Discreetly built for peace of mind, the safe room offers reinforced protection without sacrificing style or convenience.
- A seamless blend of indoor comfort and outdoor connection, the walkout basement extends your living space with direct access to the backyard. Whether transformed into a private retreat, entertainment hub, or guest quarters, its versatility adds value and functionality to your home.
PL-61303 Brookvale Barndominium House Plan

- 2400 Heated Square Feet
- 3 Bedrooms
- 2.1 Bathrooms
- Single story
- Open concept
- Mudroom
- Wraparound porch
- Utlity
- Secure closet
- Office
- Fireplace
- Family room
- 4-car Attached Garage
- Includes three spacious bedrooms and two full bathrooms featuring modern fixtures and ample space. The open concept layout seamlessly connects the kitchen, dining, and living areas, making it ideal for effortless entertaining.
- The home also features a practical mudroom, ideal for keeping your home clean and organized, and a charming wraparound porch that provides a lovely outdoor space to enjoy the surroundings.
- The utility room is conveniently located in the garage/shop for easy access and functionality, while a secure closet in the master bedroom ensures your valuables are safely stored.
- For those who work from home, the plan includes an office, perfect for managing household affairs.
- Adding to the charm is a cozy fireplace that adds warmth and ambiance to the spacious family room, making it the perfect spot for gatherings and relaxation.
- The home also boasts a four-car attached garage, offering plenty of space for vehicles and storage.
PL-61303-F Frankie Barndominium House Plan

- 2400 Heated Square Feet
- 40×60 living space dimension
- 3 Bedrooms
- 2.1 Bathrooms
- Single story
- Open concept
- Mudroom
- Wraparound porch
- Utility
- Secure closet
- Office
- Fireplace
- Family room
- 4-car Attached Garage
- Includes three spacious bedrooms and two full bathrooms featuring modern fixtures and ample space. The open concept layout seamlessly connects the kitchen, dining, and living areas, making it ideal for effortless entertaining.
- The home also features a practical mudroom, ideal for keeping your home clean and organized, and a charming wraparound porch that provides a lovely outdoor space to enjoy the surroundings.
- The utility room is conveniently located in the garage/shop for easy access and functionality, while a secure closet in the master bedroom ensures your valuables are safely stored.
- For those who work from home, the plan includes an office, perfect for managing household affairs.
- Adding to the charm is a cozy fireplace that adds warmth and ambiance to the spacious family room, making it the perfect spot for gatherings and relaxation.
- The home also boasts a four-car attached garage, offering plenty of space for vehicles and storage.
PL-61313 Pinewood Barndominium House Plan
- 2400 Heated Square Feet
- 3 Bedrooms
- 2.1 Bathrooms
- Single story
- Open concept
- Mudroom
- Living room and family room
- Office
- Secure closet
- Utility
- Front & rear porch
- This spacious 2400 heated square feet layout provides ample room to live, work, and relax, offering a perfectly balanced environment for comfort and functionality.
- Three generously sized bedrooms create the ideal retreat for restful nights and serene mornings, perfect for a growing family or accommodating guests.
- With two full baths and a convenient half bath, this home ensures privacy and ease, catering to both busy mornings and relaxing evenings.
- Experience effortless living with a single-story design that eliminates the need for stairs while maintaining elegance and flow.
- The open-concept layout seamlessly blends spaces, fostering a sense of connectivity and allowing natural light to fill every corner.
- A practical and stylish mudroom provides a space to store shoes, coats, and bags, keeping your home organized and clutter-free.
- Enjoy the best of both worlds with a cozy living room for intimate gatherings and a family room designed for quality time and entertainment.
- The dedicated office space offers a quiet and inspiring environment for productivity, creativity, or simply enjoying a moment of focus.
- A secure closet ensures your valuables are safely stored, giving you peace of mind in your sanctuary.
- The utility room makes household tasks efficient and streamlined, designed with functionality and convenience in mind.
- Charming front and rear porches extend your living space outdoors, perfect for sipping coffee, hosting barbecues, or enjoying serene sunsets.
PL-61313-F Fox Barndominium House Plan
- 2400 Heated Square Feet
- 40×60 living space dimension
- 3 Bedrooms
- 2.1 Bathrooms
- Single story
- Open concept
- Mudroom
- Living room and family room
- Office
- Secure closet
- 1344 SF garage
- Utility
- Front & rear porch
- Stretch out and settle in with 2,400 square feet of thoughtfully climate-controlled comfort—plenty of room to live, work, and unwind without compromise.
- Three generous bedrooms offer sanctuary for rest, creativity, or guests—each one ready to reflect your personal style and rhythm.
- Two full bathrooms and a convenient powder room mean no more morning bottlenecks or evening waitlists—everyone gets their own zone of comfort.
- Everything you need is right on one level—no stairs, no hassle, just seamless everyday living. From kitchen to conversation nook, the open-concept layout ensures you’re always part of the action.
- Say goodbye to cluttered entrances—this smartly designed mudroom keeps shoes, coats, and gear in check the moment you walk in.
- Twice the comfort, twice the charm—a welcoming living room for guests and a cozy family room for movie nights, game days, and everyday lounging.
- Tucked just off the primary suite, this home office strikes a perfect balance between convenience and quiet—ideal for focused work or creative escapes.
- Discreetly integrated and purpose-built, the secure closet provides a peace-of-mind space for valuables or important documents—security meets subtlety.
- A massive 1,344 square foot garage isn’t just for parking—it’s a haven for hobbies, tools, and extra storage, with space to spare.
- Whether greeting neighbors or sipping coffee with a backyard breeze, the front and rear porches offer the perfect mix of welcome and retreat.
PL-64001 Skipper Barndominium House Plan
- 2479 Heated Square Feet
- 4 Bedrooms
- 2.1 Bathrooms
- Single story
- Office
- Media room
- Mudroom
- Fireplace
- Mechanical room
- Utility Room
- Attached 3-car garage
- Front porch
- Patio
- Enjoy a vast, comfortable living space designed for optimal coziness all year round. Perfect for gatherings, relaxation, and everything in between
- Four spacious bedrooms providing ample room for family, guests, and a myriad of possibilities—whether it’s a nursery, guest suite, or personal sanctuary.
- With two full bathrooms and an additional half-bath, you’ll never experience morning rush hour at home. Each bathroom is designed with modern amenities for a refreshing start to your day.
- Experience the ease and convenience of single-level living. No stairs to climb means seamless accessibility for everyone, ensuring comfort and safety.
- A dedicated office space that offers the perfect environment for productivity and focus. Ideal for remote work, homeschooling, or managing household tasks.
- Elevate your entertainment experience with a state-of-the-art media room. Perfect for movie nights, gaming marathons, and cheering on your favorite sports teams in style.
- Keep your home organized and tidy with a practical mudroom. Ideal for storing shoes, coats, and outdoor gear, ensuring a clutter-free living space.
- Cozy up by the warm glow of a fireplace, creating the perfect ambiance for intimate gatherings and relaxing evenings at home.
- Efficiently house your HVAC system, water heater, and other essential utilities in a conveniently located mechanical room, ensuring smooth operations and easy maintenance.
- A functional utility room designed for your laundry and household chores, keeping everything streamlined and out of sight.
- Enjoy the convenience of an attached three-car garage, offering ample parking space, extra storage, and easy access to your vehicles.
- A charming front porch that welcomes you home and offers a delightful space to relax and greet your neighbors. Perfect for sipping morning coffee or watching the world go by.
- Step out onto a spacious patio, ideal for outdoor dining, entertaining, and soaking up the sunshine. A wonderful extension of your indoor living space into the great outdoors.
PL-64007 Brooke Barndominium House Plan
- 2400 heated sq ft
- 1505 sq ft Garage
- 3 Bedrooms
- 2.1 bathrooms
- Wheelchair accessible bathroom
- Single-story
- Open concept
- Office
- Foyer
- Mechanical room
- Safe room
- Fireplace
- Front & rear porch
- 2400 heated sq ft for a spacious and comfortable living area that invites warmth and a sense of home.
- A generously sized 1505 sq ft garage space for cars, tools, storage, and your hobbies—it’s a dream for the modern homeowner.
- 3 bedrooms for versatile sleeping quarters designed for comfort, privacy, and personalized retreat spaces.
- 2.1 bathrooms, a thoughtful layout with a luxurious touch—two full baths, one wheelchair-accessible, plus a convenient half-bath for guests.
- Experience effortless living with all your essentials on one accessible level and a seamless flow from room to room, perfect for entertaining and embracing natural light.
- An office for a quiet and organized space designed to boost productivity and creativity—right at home.
- A foyer for a welcoming entryway that sets the tone for the rest of your beautiful home.
- The mechanical room is a hidden hub for all your home’s critical systems, ensuring efficiency and organization.
- The safe room is built for peace of mind—your personal refuge in case of emergencies.
- A living room fireplace to cozy up by the warmth of this centerpiece that adds charm and character to your living space.
- Front & rear porch for double outdoor enjoyment—whether it’s coffee with sunrise or relaxing at sunset.
PL-69198 Shiloh Barndominium House Plan

- 2400 Heated square feet
- 1231 square foot attached 3 car garage
- 4 bedrooms
- 2.1 bathrooms
- 1 Story
- Open Concept
- Office
- Media Room
- Mechanical Room
- Laundry Room
- Introducing our 2400 sq ft, single-story floor plan! This open-concept design offers a spacious and flexible living area that adapts to your lifestyle. The single-story layout makes it accessible and convenient for all ages. The open concept encourages social interaction and allows natural light to flow, creating a bright and welcoming space.
- Benefit from the convenience of ample vehicle storage with its 1231 sq ft attached 3-car garage, a well-organized utility space with a dedicated mechanical room within the garage, and a mudroom that keeps your home tidy and clutter-free while also serving as a practical transition area providing direct access from the garage.
- Experience comfort, productivity, and entertainment all under one roof with this floor plan. This versatile floor plan features 4 bedrooms and 2.5 bathrooms! This design includes a dedicated office space for your work-from-home needs and a media room for entertainment.
SV-5501 Charlotte Barndominium House Plan
- 2400 Heated square feet
- 3 Bedrooms
- 2 Bathrooms
- Single story
- Open concept
- Mudroom
- 1120 square feet attached garage
- Boasting 2400 heated square feet, this single-story home features 3 spacious bedrooms and 2 well-appointed bathrooms.
- The open concept layout creates a seamless flow between the living, dining, and kitchen areas, ideal for both everyday living and entertaining.
- A mudroom adds practicality, keeping your home organized and clean. Plus, the 4-car attached garage provides ample space for vehicles and storage.
SV-5501-A Ariane Barndominium House Plan
- 2400 Heated square feet
- 1120 square feet 4-car Garage
- Post-frame Construction Type on a crawl-space foundation
- 3 Bedrooms
- 2 Bathrooms
- Single-story
- Open concept
- Mudroom
- Front and rear porch
- Spacious living area offering 2400 square feet of heated space, providing ample room for family and entertaining.
- Large, 4-car garage with 1120 square feet of space, ideal for vehicle storage, workshop, or extra storage.
- Durable post-frame construction combined with a crawl-space foundation, offering stability and ease of maintenance.
- Includes three well-sized bedrooms, providing comfort and privacy for family members or guests.
- Features two bathrooms, ensuring convenience and functionality for the household.
- All living spaces are on one level, offering easy accessibility and a more convenient floor plan. The open-concept design creates a seamless flow between the living, dining, and kitchen areas.
- A dedicated mudroom/laundry room for easy entry from the garage, keeping dirt and clutter at bay while providing a functional space for laundry.
- Enjoy outdoor living with both a front and rear porch, perfect for relaxing or hosting guests in a comfortable, shaded setting.
Even More Barndominium Plans
Not finished browsing? Check out even more of our top barndominium plans:
PL-61703 Medfield Barndominium House Plan


- 2400 Heated square feet
- 4-5 bedrooms
- 3 bathrooms
- 1 Story
- Playroom
- Open Concept
- The Medfield barndominium house plan is 2406 heated square feet and 4-5 bedrooms with 3 full bathrooms.
- In the main living area of this house plan, you are welcomed with an open-concept design that creates a nice open spacious with plenty of room for friends and family to gather.
- The kitchen is large with a center island and pantry. The island is home to the sink so that you can be part of the conversation in the family room even while doing dishes.
- The master bedroom has plenty of room to relax and unwind. With an ensuite bathroom with a separate shower and tub, there is plenty of space for you and your partner to get ready in the mornings.
- With up to 4 additional secondary bedrooms there is plenty of room for everyone to spread out and enjoy some downtime after a long day. One of the additional bedrooms can act as a study or guest bedroom.
- The playroom is another great feature of this home that is located just off the kitchen allowing moms and dads to cook and still have an eye on the kids as they play.
- The laundry is quite large and has a nice-sized storage closet that is perfect for storing all your cleaning supplies so that the laundry room stays nice and tidy.
- You will find that this barndominium house plan has lots of storage throughout the home which is a huge plus.
- The Veranda is large and is the perfect place to sit and relax after a long day.
SV-5503-C Charlie Barndominium House Plan
- 1677 Heated square feet
- 2 Bedrooms
- 2.1 Bathrooms
- Open concept
- Single story
- Utility room
- Safe room
- Mudroom
- Covered porch
- Garage/shop
- Smartly sized at 1,677 square feet—designed for comfort, flow, and functional elegance.
- Two dreamy bedrooms tailored for restful nights and personalized escapes.
- Two full baths plus a sleek half bath—perfect for busy mornings and effortless entertaining.
- Breathe easy in this open layout where living, dining, and kitchen spaces connect seamlessly.
- Out of sight but never out of reach—this utility room keeps laundry day neat and efficient.
- Peace of mind built in—this reinforced safe room adds a layer of security without sacrificing style.
- Your front-line defense against the mess—this transitional mudroom keeps life tidy and organized.
- Sip, sit, and savor—this charming covered porch beckons for breezy afternoons and quiet evenings.
- More than a parking spot—this versatile garage/shop is a hobbyist’s haven and a storage dream.
LP-2807 Wescott Barndominium House Plans

- 1800 Heated square feet
- 4 bedrooms
- 3 bathrooms
- 2 Story
- Loft
- Open Concept
- The Wescott barndominium house plan is 1800 heated square feet and features 4 bedrooms and 3 bathrooms.
- The open-concept design allows for plenty of space for the family to mingle and interact with one another. The main areas of the home appear even larger thanks to the vaulted ceilings.
- The kitchen is large and spacious with a large island with ample counter space and a decent-sized pantry in the corner of the kitchen.
- This plan includes several windows to allow the natural light to flow throughout the home.
- The master bedroom is spacious with a large master bathroom, shower, and stand-alone tub. The double vanity allows the couple to get ready at the same time without bumping into one another. The master also offers a large walk-in closet.
- This house plan has 3 additional bedrooms all with a nice sized closet. One of the secondary bedrooms has a private bathroom attached. The remaining bedrooms share the additional bathroom located in the hall.
- Upstairs is a nice loft ready for a home office, playroom, or anything you desire.
- The Wescott barndominium house plan has both a front and back patio so there is plenty of room to enjoy the outdoors.
PL-71005 Vista Barndominium House Plan

- 4 Bedrooms
- 3.1 Bathrooms
- 3179 Heated Square Feet
- 2-story
- Loft
- Playroom
- Media room
- Mudroom
- Mechanical room
- Jack and Jill Bathrooms
- Attached 3-car garage
- Front porch
- Patio
- With an expansive 3,179 heated square feet, this two-story floor plan offers ample space for your family to grow and thrive.
- Enjoy the comfort and privacy of four generously sized bedrooms, including Jack and Jill bathrooms that provide convenience and elegance. The 3.1 bathrooms ensure there’s never a wait during busy mornings.
- The loft area is perfect for a cozy reading nook or home office, while the playroom offers a dedicated space for fun and creativity. The media room is designed for ultimate entertainment right at home.
- The mudroom is ideal for keeping your home tidy, and the mechanical room ensures your household systems are easily accessible. An attached 3-car garage offers ample parking and storage space for vehicles and outdoor gear.
- Relax on the inviting front porch or host gatherings on the stylish patio, making every moment spent outdoors special.
PL-71004 Alasio Barndominium House Plan

- 4 Bedrooms
- 3.1 Bathrooms
- 3887 Heated Square Feet
- 2-story
- Loft
- Mudroom
- Attached 3-car garage
- Front and back porch
- Office
- Fireplace
- Lounge
- 2 Jack and Jill Bathrooms
- Explore this beautifully designed 2-story barndominium, offering ample space for family and guests with a total of 3,887 heated square feet.
- The open-concept design seamlessly integrates the living, dining, and kitchen areas, making it ideal for daily living and entertaining. A cozy fireplace in the family room adds warmth and is a focal point for gatherings.
- This floor plan includes four spacious bedrooms, providing comfortable retreats for all family members and guests.
- The layout features a luxurious master bathroom and a well-appointed guest bathroom. With 3.1 bathrooms, including two Jack and Jill bathrooms, this home provides convenience and efficient use of space between bedrooms.
- A versatile loft area that can serve as an additional living space, playroom, or home gym.
- An attached 3-car garage offers ample space for vehicles, storage, and hobbies and the mudroom provides a practical entryway space, perfect for storing shoes, coats, and outdoor gear.
- Enjoy the outdoors with both front and back porches, perfect for relaxing, entertaining, or enjoying the fresh air.
- A dedicated office space for working from home, managing household tasks, or pursuing personal projects.
- A comfortable lounge area for relaxing, reading, or enjoying family time.
PL-2819 Hampton Barndominium House Plan


- 4918 Heated square feet
- 3 Bedrooms
- 3.1 Bathrooms
- 2-story
- Loft family/entertainment area
- Loft unfinished area
- Open concept
- Wraparound porch
- Mechanical room
- Mudroom
- 4-car attached Garage
- Nearly 5,000 square feet of finely crafted comfort—room to roam, entertain, and thrive without limits.
- Three spacious retreats, each its own private haven—designed for rest, romance, and a touch of indulgence.
- Every bedroom gets its own en-suite luxury, plus a powder room for guests—pure convenience meets elegant living.
- Game nights, movie marathons, and memory-making galore—plus extra loft space waiting for your creative touch.
- Wide, bright, and beautifully connected—this open-plan layout invites light, laughter, and seamless everyday living.
- Porch envy, activated—this wraparound stunner wraps your home in charm, sunshine, and endless outdoor moments.
- A quietly efficient hub—your home’s systems get the space they need without sacrificing aesthetics.
- Function meets finesse—this stylish drop zone keeps clutter at bay and your interiors pristine.
- Room for every ride, hobby, and weekend adventure—this oversized garage is a dream for car lovers and gearheads alike.
PL-2815 Travis Barndominium House Plan
- 2400 Heated square feet
- 40×60 living space dimension
- 3 Bedrooms
- 2 Bathrooms
- Single story
- Open concept
- Office
- Foyer
- Front porch
- Patio
- Deck
- Safe room
- Walkout basement
- 3-car attached garage
- Enjoy a perfectly balanced footprint offering 2,400 square feet of comfortably climate-controlled living space—roomy enough to stretch out, yet easy to maintain.
- With generous 40×60 dimensions, this home’s layout is designed for flow, flexibility, and functionality—ideal for entertaining and everyday living.
- Three well-appointed bedrooms offer restful retreats for family and guests alike—each thoughtfully placed for privacy, natural light, and comfort.
- Two full bathrooms bring both convenience and style, featuring modern fixtures and smart layouts for a smooth daily routine.
- No stairs, no hassle—this single-story, open-concept design delivers ease and accessibility, perfect for all stages of life.
- A dedicated home office provides a quiet, focused space for productivity—whether you’re working from home, tackling creative projects, or organizing life’s details.
- Step into a welcoming foyer that sets the tone with warmth and charm—a graceful transition from the outside world.
- The inviting front porch is more than curb appeal—it’s a breezy perch to sip coffee, greet neighbors, and enjoy golden hour views.
- Grill, gather, or unwind beneath the stars on your private patio—perfectly positioned for alfresco dining and outdoor living.
- A spacious deck extends your living space under open skies—a natural haven for morning routines or twilight conversation.
- Discreetly built for peace of mind, the safe room offers reinforced protection without sacrificing style or convenience.
- A seamless blend of indoor comfort and outdoor connection, the walkout basement extends your living space with direct access to the backyard. Whether transformed into a private retreat, entertainment hub, or guest quarters, its versatility adds value and functionality to your home.
PL-64013 Gibbons Barndominium House Plan
- 2000 Heated Sq Ft
- 4 Bedrooms
- 2 Bathrooms
- Storage spaces
- Mechanical room/Laundry room
- Open concept
- Single-story
- Front and back porch
- Spacious 2,000 heated sq ft with room to stretch, entertain, and relax in style.
- 4 bedrooms designed with comfort and privacy in mind—perfect for families or guests.
- 2 modern and functional bathrooms with plenty of space to start your day right.
- Never worry about clutter—dedicated storage keeps everything organized.
- Mechanical Room/Laundry Room: All your utilities and laundry needs neatly tucked away for maximum efficiency.
- Seamless flow from the living area to the kitchen—ideal for gatherings and everyday living in a single-story layout.
- Enjoy morning coffee out front and sunset views out back—your new favorite spots to unwind.
PL-69197 Bexley Barndominium House Plan
- 2683 Heated Sq Ft
- 4 Bedrooms
- 3 Bathrooms
- Laundry room
- Mudroom
- Open concept
- Two-story
- Loft Style
- 1432 Sq Ft Garage
- Front and back porch
- This two-story floor plan offers an impressive 2683 square feet of heated living space. The design also includes a substantial 1432-square-foot garage, perfect for housing vehicles, storage, or a workshop.
- This plan features four bedrooms, three of which are conveniently located on the main floor, and a guest bedroom on the second floor. Each bedroom, including the master and guest bedrooms, has its own private bathroom. Additionally, there is a shared bathroom on the main floor, making this design both practical and accommodating for a variety of living arrangements.
- A loft-style floor plan that features an open concept main floor. As you enter the house from the garage, you are greeted by a practical mudroom, perfect for storing outdoor gear and keeping the rest of the home clean. Conveniently, this mudroom is also linked to the laundry room, making it easy to manage household chores.
- This floor plan features a charming front porch, providing a warm welcome to visitors. At the rear of the house, a spacious back patio offers ample room for outdoor dining, relaxation, or entertaining. Whether you’re greeting neighbors at the front door or enjoying a backyard barbecue, this floor plan caters to a lifestyle that appreciates both community connection and private leisure.
PL-82001 Fowler Barndominium House Plan

- 5792 heated Square Feet
- 6 Bedrooms
- 4.2 Bathrooms
- 2 Story
- Open Concept
- Hobby room
- Game/media room
- Sitting area
- Playroom
- Front & rear porch
- 2-car detached garage
- Luxuriate in nearly 5,800 square feet of impeccably designed, temperature-controlled living—every square foot crafted for comfort, elegance, and unforgettable gatherings.
- Six inviting bedrooms promise restful retreats for every family member or guest—each one a private sanctuary with space to breathe, unwind, and dream.
- With four full baths and two stylish powder rooms, convenience meets sophistication—ensuring seamless mornings and elegant hosting for any occasion.
- Thoughtfully arranged across two expansive levels, this layout balances togetherness and personal space—ideal for vibrant entertaining below and tranquil escapes above.
- From airy conversations in the kitchen to effortless entertaining in the great room, the open-concept design flows with natural light and modern sophistication.
- Whether it’s painting, crafting, or perfecting your next passion project, the hobby room offers a creative corner tailored for inspiration and focus.
- Movie marathons, game nights, or immersive binge sessions—the dedicated game/media room delivers cinematic comfort and lively fun for all ages.
- A quiet sitting area beckons for reflective mornings, casual reading, or warm, intimate conversations with a cup in hand and sunlight streaming in.
- Let imaginations run wild in a bright, cheerful playroom designed for kids to explore, create, and grow in their own lively little world.
- From sunrise coffees on the welcoming front porch to serene sunsets out back, these dual outdoor spaces invite connection with nature and neighbors alike.
- The detached two-car garage adds both function and charm—perfect for vehicle storage, gear organization, or converting into a workshop or studio.
AP-20003-FB Franklin Barndominium House Plan
- 2000 Heated Square Feet
- 2 Bedrooms
- 2.1 Bathrooms
- Three-story layout
- Open-concept
- Mudroom
- Unfinished Basement
- 1200 SF 3-Car garage
- Storage loft
- Wraparound porch
- 2000 Heated Square Feet – Just the right size: spacious, efficient, and easy to manage.
- 2 Bedrooms – Roomy and private with space to unwind or host.
- 2.1 Bathrooms – Two full baths plus a powder room for guests.
- Three-story layout – Vertical living with separation, style, and stunning views.
- Open-concept – Airy, seamless flow from kitchen to living and dining.
- Mudroom – Keep the mess at the door—every country home’s secret weapon.
- Unfinished Basement – Blank canvas for a home gym, media room, or workshop.
- 1200 SF 3-Car Garage – Massive garage space for vehicles, toys, and projects.
- Storage Loft – Bonus overhead space to stash seasonal stuff or gear.
- Wraparound Porch – Classic charm meets outdoor living, all the way around.
CDD-4102 Ridge Barndominium House Plan
- 2400 Heated Sq Ft
- 3 Bedrooms
- 2.1 Bathrooms
- Single story
- Open concept
- Office
- Mechanical room
- Mudroom
- Front & Rear porch
- A perfectly balanced living space, offering ample room to breathe, grow, and enjoy, all while maintaining a cozy and manageable footprint.
- Three versatile retreats await—whether for restful nights, creative pursuits, or welcoming family and guests, these rooms are designed with comfort and function in mind.
- Two full bathrooms for your daily routines, plus a convenient half-bath for guests—style and practicality combine effortlessly.
- A seamless and accessible layout on a single level, perfect for ease of movement and a timeless, grounded design.
- An expansive flow of living, dining, and kitchen spaces that encourages connection, natural light, and effortless entertaining.
- Dedicated workspace to inspire productivity and focus, tucked away for privacy while still being part of the home.
- The unsung hero of functionality—a space devoted to housing your home’s essential systems, out of sight but not out of mind.
- Your buffer between the outdoors and your living space, ideal for stowing away shoes, coats, and the chaos of daily life.
- Dual outdoor living spaces, where you can greet neighbors out front or savor a quiet sunset in the back—perfect for year-round enjoyment.
Barndominium Floor Plans
There are a lot of plans out there, and many of the sample Barndominium plans with shops we have highlighted here are some of the best in the market.
Some of the best plans embrace simplicity with a certain touch of style to match. This simplicity allows you to make these plans your own when they are completed.
This is so because some of the plans out there have a certain level of complexity, one which allows room for little improvement. These, however, give you the freedom to do absolutely what you want and with the shop, you have your home and office and home all to yourself looking as good as you want.
Barndominiums with Shop Inspiration
Here’s not just the barndominium floor plans with shop, but some real-life barndos. These examples give you a simple look at what we are talking about and also help you understand what this structure has to offer you.
This shop has the space utilized to serve food with a bar, fridge, as well as black top grill. They also have hte space for tables and chairs to eat.
An attached shop that has a covered walkway to the home can be useful in states where the weather is harsh. This allows you to utilize the shop even in extreme weather conditions.
Having an attached shop has its benefits. You can easily work from home and use the attached shop as your business suite.
How Much Does a Barndominium with Shop Cost?
The cost of a barndominium with shop can vary depending on a variety of factors, such as location, materials, finishes, and customization options. Generally, the cost of a barndominium is lower than that of a traditional stick-built home, but it’s important to keep in mind that the final cost will depend on your specific design choices.
On average, the cost of a barndominium with a standard finish can range from $100,000 to $200,000. This price includes the cost of construction, materials, and labor. However, if you opt for higher-end finishes, customizations, or additional features such as a shop, garage, or balcony, the cost can increase significantly.
Be sure to take advantage of our builder cost calculator to get a better estimate.
What is the best size barndominium?
Determining the best size for a barndominium depends on a variety of factors, such as the size of the lot, the number of occupants, and the intended use of the space. Generally, barndominiums can range in size from small and compact to large and spacious.
For those looking for a smaller and more affordable option, a one-bedroom or studio barndominium ranging from 600 to 1,200 square feet may be the best fit. These smaller barndominiums can be perfect for a single person or a couple who are looking for a low-maintenance living space.
If you’re planning to use your barndominium as a family home, you may want to consider a larger size ranging from 1,500 to 3,000 square feet or more. This size will provide ample living space for a family with several bedrooms, bathrooms, and a large open living area.
Ultimately, the best size barndominium is one that meets your specific needs and lifestyle. It’s important to carefully consider your needs and budget before deciding on the size of your barndominium.
Conclusion
If you would like more guides like this one, check out the rest of BarndominiumLife.com. There, you will find more helpful tips and tricks from the pros.
You will also find featured barndominiums, stock barndominium house plans, custom barndominium house plans, and information on financing and insurance.
Just starting out? Check out the Barndominiums Made Easy Program. It has our “How to Build Guide”, 120+ House Plans, and the Bid and Budget Tracker. Knowing as much as you can will help you get the best results for your dream home.
Find More Barndominium Floor Plans
By Bedrooms:
1 Bedroom • 2 Bedrooms • 3 Bedrooms • 4 Bedrooms • 5 Bedrooms • 6 Bedrooms • 7 Bedrooms • 8 Bedrooms
By Feature:
1-Story • 2-Story • With Garage • 2 Car Garage • 3 Car Garage • Wraparound Porch • With Breezeway • 2 Master Suites • With Loft • Multi-Family Barndominiums • Open-Concept • With Shop
By Size:
Small Plans • 800 Sq Ft • 900 Sq Ft • 1000 Sq Ft • 1200 Sq Ft • 30×40 Floor Plans • 1400 Sq Ft • 1500 Sq Ft • 1600 Sq Ft • 40×40 Floor Plans • 1800 Sq Ft • 30×60 Floor Plans • 2000 Sq Ft • 2400 Sq Ft • 2500 Sq Ft • 2800 Sq Ft • 3000 Sq Ft • 3200 Sq Ft • 3600 Sq Ft • 4000 Sq Ft • 5000 Sq Ft •










































