
BG-20018 Landon Barndominium House Plan
Want to buy this house plan? Scroll to the bottom and find the link to purchase.
About this barndominium house plan:
- 1633 Heated square feet
- 3 bedrooms
- 2 bathrooms
- 1 Story
- Open Concept
- Mechanical closet
- Front porch/rear patio
- 1593 Sq Ft Garage
- A perfectly scaled 1,633 square feet of climate-controlled living—designed for effortless flow, cozy elegance, and just the right amount of breathing room.
- Three inviting bedrooms offer a balance of privacy and possibility—ideal for restful retreats, guest hospitality, or a home office with personality.
- Two well-appointed bathrooms blend comfort with style, making daily routines feel like quiet rituals of self-care.
- A single-level layout that lives large—no stairs, no fuss, just seamless transitions and grounded charm throughout.
- The heart of the home opens wide, connecting kitchen, dining, and living spaces in a layout that encourages conversation, creativity, and connection.
- A discreet utility hub that keeps the essentials tucked away—streamlining your space without sacrificing accessibility.
- From sunrise to starlight, enjoy outdoor living at both ends—whether you’re sipping coffee on the front porch or hosting dinner on the rear patio.
- A sprawling 1,593 square foot garage offers more than parking—it’s a workshop, gear haven, and storage sanctuary all in one.
What’s included in BG-20018:
Cover Sheet
Four Elevations (Front, Back, Left Side, Right Side)
Roof Plan
Dimensioned Floor Plan
Foundation Plan
Wall Sections
Electrical Plans
For more barndominium floor plans, check out our complete collection of 3-bedroom barndominium floor plans.
Need to make changes? Submit a modification request using the button that says Modify This Plan (below the Add To Cart Button). We will get you a free price quote within 72 hours.
Please note all square footage are estimates.

Welcome to the BG-20018 Landon, a stunning single-story barndominium that perfectly marries rustic charm with modern functionality, set against a picturesque backdrop of autumnal woodlands. The combination of dark vertical siding and a sleek metal roof creates a striking, contemporary farmhouse aesthetic that feels both grounded and sophisticated. Imagine pulling into the paved driveway and being greeted by the inviting stone-accented entry, beckoning you toward a life of comfort and tranquility.

Stepping back for a full frontal view, the BG-20018 Landon presents a beautifully balanced façade that stretches across the landscape, emphasizing its expansive single-level living. The deep, covered porch is a masterpiece of mixed materials, featuring warm wood accents, robust stone columns, and a soaring vaulted ceiling ideal for enjoying quiet mornings. Notice how the three-car garage bay doors are thoughtfully designed with a light wood tone, providing a handsome contrast to the darker siding and tying in seamlessly with the welcoming front entryway.

Focusing on the main entrance, this inviting portico truly sets the tone for the home’s refined rustic style. The use of a gray-toned brick or stone laid in a sophisticated herringbone pattern provides beautiful texture and a solid, permanent feel to the structure. Soaring timber beams frame the double entry doors and a stylish modern ring chandelier hangs high, promising a warm welcome to all who enter this exceptional barndominium.

Taking in the garage wing, this perspective highlights the grand scale of the workshop and parking area, which is a signature feature of barndominium living. The dark vertical siding wraps cleanly around the structure, allowing the dramatic gabled roofline and the two light-wood garage doors to stand out beautifully. A peek of the front porch roof reminds us that this functional space is seamlessly integrated with the luxurious living quarters, achieving the perfect blend of utility and style.

Moving to the rear elevation, the Landon plan reveals a simpler, more private façade that opens onto the expansive backyard. A sliding glass door suggests direct access from the main living area, leading out to a patio perfect for outdoor grilling or simply relaxing under the stars. The continuous horizontal siding and deep metal roof lines maintain the home’s cohesive aesthetic, promising a tranquil and private escape overlooking the natural landscape.
This view from the rear corner beautifully highlights the immense size and structure of the attached garage and workshop area. A separate, stylish carriage-style door on the side of the garage offers convenient secondary access for equipment or vehicles, keeping the main front bays tidy. The dark siding contrasts sharply with the vast green lawn and blue sky, affirming this barndominium as a robust, yet elegantly designed structure set perfectly within its natural surroundings.

Stepping inside, we find ourselves in a flexible space, possibly the dedicated living area of the apartment or suite within the barn section, defined by a stunning wood coffered ceiling. A stylish, modern black chandelier draws the eye upward, complementing the sophisticated dark sectional sofa and the dramatic, matte-black double carriage doors that likely open to the workshop or exterior. This room perfectly encapsulates the plan’s refined interior style, blending cozy textures with bold, clean lines for an atmosphere of casual elegance.

From this alternate view of the living space, the warmth of the natural wood flooring and the subtle console table becomes evident, balancing the room’s darker accents beautifully. Sunlight streams in through the large, curtained windows on either side of the unique interior door, highlighting the room’s soft, neutral color palette. Above the sleek sectional, abstract artwork and an uncluttered design aesthetic create a feeling of serene modern luxury, offering a tranquil escape within the home.

The bright, airy dining area connects the indoors to the beautiful outside with a large sliding glass door that pours natural light onto the space. A minimalist wooden table is surrounded by sleek black chairs, providing a chic, comfortable spot for meals, while a gallery wall featuring high-contrast black and white photography adds an artistic flair. The modern linear chandelier and brass picture lights introduce sophisticated metallic accents, completing this clean and inviting look.

The gourmet kitchen is a perfect blend of crisp white cabinetry and warm wood accents, creating a truly welcoming heart of the home. A massive waterfall island, topped with beautiful veined stone, provides ample workspace and comfortable seating for four on stylish wooden stools. The custom wood range hood serves as a stunning focal point, complemented by the woven pendant lights hanging over the sink, which add a touch of natural, rustic texture to the contemporary design.

Retreating to the primary suite, the room offers a sanctuary of tranquility with a soft, neutral color palette that emphasizes rest and relaxation. A plush, upholstered headboard anchors the space between two windows dressed with warm, woven shades, allowing gentle light to filter in. The open doorway provides a tempting glimpse into the en-suite bath, suggesting a continuous flow of modern, sophisticated design throughout this private wing of the barndominium.

The accompanying en-suite bathroom is a sleek, spa-like retreat, defined by a floating double vanity crafted from warm-toned wood that contrasts beautifully with the stark white countertop. Above, a deep gray tiled wall provides a moody backdrop for the two large mirrors and the striking, modern globe pendant lights that hang low over the vessel sinks. High-contrast matte black fixtures—from the faucets to the towel bars—add a crisp, contemporary edge to this luxurious private space.

A spacious, walk-in shower with floor-to-ceiling glass enclosure offers a luxurious experience, featuring large, dramatic charcoal gray tiling and a sleek, modern rainfall showerhead. The contrast between the dark shower tile and the bright, white hexagonal floor tile creates a visually dynamic effect that grounds the room. Across the warm wood-look floor, a tidy row of matte black towel hooks completes the sophisticated, minimalist design of this high-end bath.

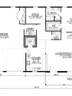
Turning to the 2D floor plan, the expansive BG-20018 Landon reveals its practical and thoughtful single-story layout, perfect for modern country living. The plan clearly shows the dramatic contrast between the massive, four-car garage and the residential wing, ensuring convenience and utility are seamlessly integrated. Notice the open-concept living space, featuring the Great Room with its high tray ceiling, flowing directly into the Dining area and the centrally located Kitchen, creating an ideal setting for entertaining.
Find More Barndominium Floor Plans
By Bedrooms:
1 Bedroom • 2 Bedrooms • 3 Bedrooms • 4 Bedrooms • 5 Bedrooms • 6 Bedrooms • 7 Bedrooms • 8 Bedrooms
By Feature:
1-Story • 2-Story • With Garage • 2 Car Garage • 3 Car Garage • Wraparound Porch • With Breezeway • 2 Master Suites • With Loft • Multi-Family Barndominiums • Open-Concept
By Size:
Small Plans • 800 Sq Ft • 900 Sq Ft • 1000 Sq Ft • 1200 Sq Ft • 30×40 Floor Plans • 1400 Sq Ft • 1500 Sq Ft • 1600 Sq Ft • 40×40 Floor Plans • 1800 Sq Ft • 30×60 Floor Plans • 2000 Sq Ft • 2400 Sq Ft • 2500 Sq Ft • 2800 Sq Ft • 3000 Sq Ft • 3200 Sq Ft • 3600 Sq Ft • 4000 Sq Ft • 5000 Sq Ft •

