Your barndominium’s floor plan is one of the most important things you will come up with in the design process. Making sure that your barndominium has the right flow and the right feel as well as all the things you would want out of a custom home is incredibly important. Without having the right floor plan, you will not be able to get everything you want from your barndo and this can defeat the whole purpose of the project.
In this guide, we have put together some amazing examples of a 40×100 barndominium floor plan to help get you inspired. By going through these examples, you can start to get a good feel for what you want out of your own design. You might even find the perfect floor plan here and from there on out, your work is done!

40×100 Barndominium Floor Plan – Things to Consider
Your Land
One of the first things you will need to consider when putting together your 40×100 barndominium floor plan is the piece of land you are building on. Your land will have its own unique set of characteristics that you will have to keep in mind as you put your design together. Your land will have a big influence on things like what you can fit and how it will be laid out. Making sure that your floor plan factors in land requirements like drainage and utilities will help you keep things in compliance as you finish your build.
Your Family’s Needs
The needs of your family should be one of the other early things you consider when putting together your 40×100 barndominium floor plan. The layout of your home will have a big impact on your lifestyle, so it’s important that you think about it as you put it together. For example, if you have someone in your family who needs to keep irregular hours for a job, it is best to keep the bedrooms towards the back of the barndominium. That way, the noise of the living areas won’t interfere with someone trying to sleep in one of the rooms. Think about your needs and how you can make life easier with your 40×100 barndominium floor plan.

Storage
Storage is another important thing to think about when putting together a 40×100 barndominium floor plan. If you are going to be living in a place for a long time, having areas where you can keep your belongings without making the house look cluttered is crucial. By factoring in storage into your floor plan, you can be sure to have the space you need to actually do your living. Built-in shelving units are a great way to save room and include the storage space you need, so they should be factored into your floor plan as well. They can also be an excellent, craftsman-like touch for your overall aesthetic.
Traffic Flow
The flow of traffic is an important factor in your 40×100 barndominium floor plan. There are all kinds of configurations you can put together that can either help or hinder your particular way of living. Deciding on whether you want an open or closed concept floor plan is a very important choice. An open concept keeps the kitchen and living areas connected and can give you more space for something like a kitchen island. However, the closed concept will give more separation between those two areas if that is something that you think you might want or need for your particular family.
40×100 Barndominium Kits
If you’re looking to start building your barndominium, one of the first things to do is to get a quote for the metal shell or barndominium kit. By using the quote service below, you’ll get connected with a barndominium kit provider within a few hours at most. Prefabricated barndominium kits mean that the metal shell that makes up your barndo is produced off-site, then it’s brought to you for erection and assembly. While some builders will help you order the barndominium kit, we suggest doing it separately to avoid a potential markup on the barndominium kit.
That’s it! By using the tool above you’ll get connected with a kit provider for 40×100 barndominium kits.
40×100 Barndominium Floor Plans
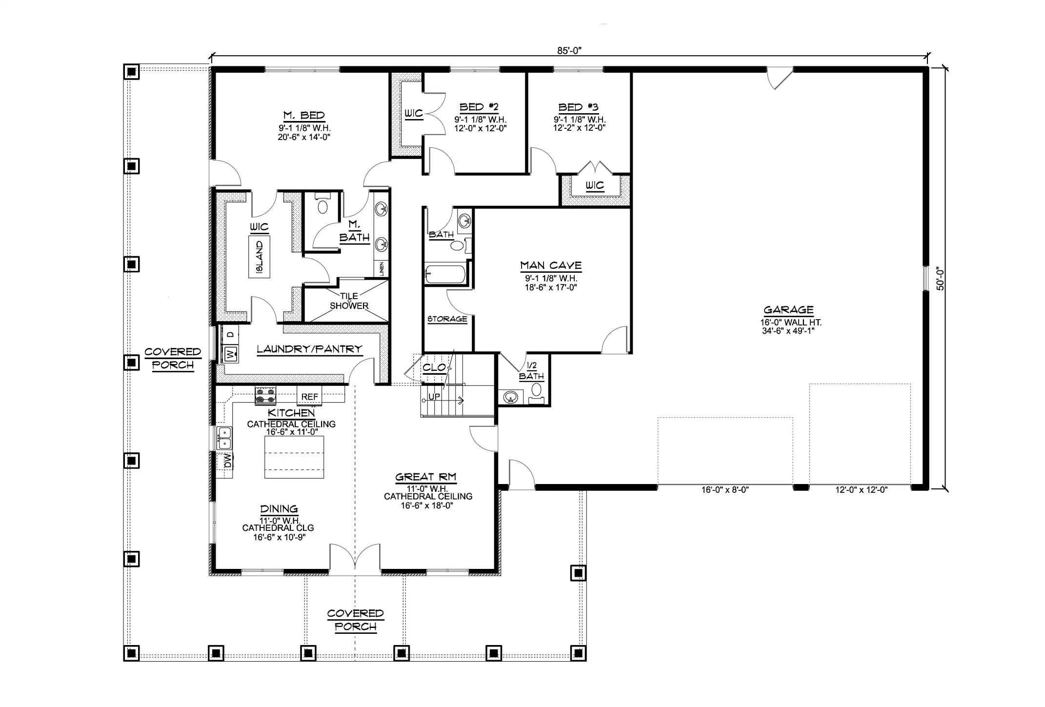
BG-20028 Ellington Barndominium House Plan
- 4013 Heated Sq Ft
- 4 Bedrooms
- 3.3 Bathrooms
- Two story
- Loft
- Den
- Open concept
- Wraparound porch
- Storage/Mechanical room
- Event Area
- Carport
- 7438 Sq Ft Shop
- An expansive 4,013 square feet of heated living space offers luxurious comfort and room to grow, entertain, and unwind.
- Four spacious bedrooms provide privacy and flexibility for family, guests, or creative use.
- With three full baths and three powder rooms, this home ensures convenience and comfort for both everyday living and large gatherings.
- The elegant two-story design creates a natural division of space, blending openness with private retreats.
- A versatile loft adds dimension—perfect for a media room, play area, or quiet escape.
- The den offers a dedicated space for work, reading, or reflection, tucked away for peace and productivity.
- An open-concept layout connects kitchen, dining, and living areas in a seamless flow of light and energy.
- The wraparound porch invites outdoor living from every angle, blending charm, shade, and panoramic views.
- A dedicated storage and mechanical room keeps essentials organized and systems discreetly housed.
- The event area with bar is built for celebration—ideal for hosting gatherings, workshops, or community moments with ease.
- A covered carport offers convenient, weather-protected parking with easy access to the home.
- The massive 7,438-square-foot shop is a dream space for makers, collectors, or entrepreneurs—ready to support big ideas and bold projects.
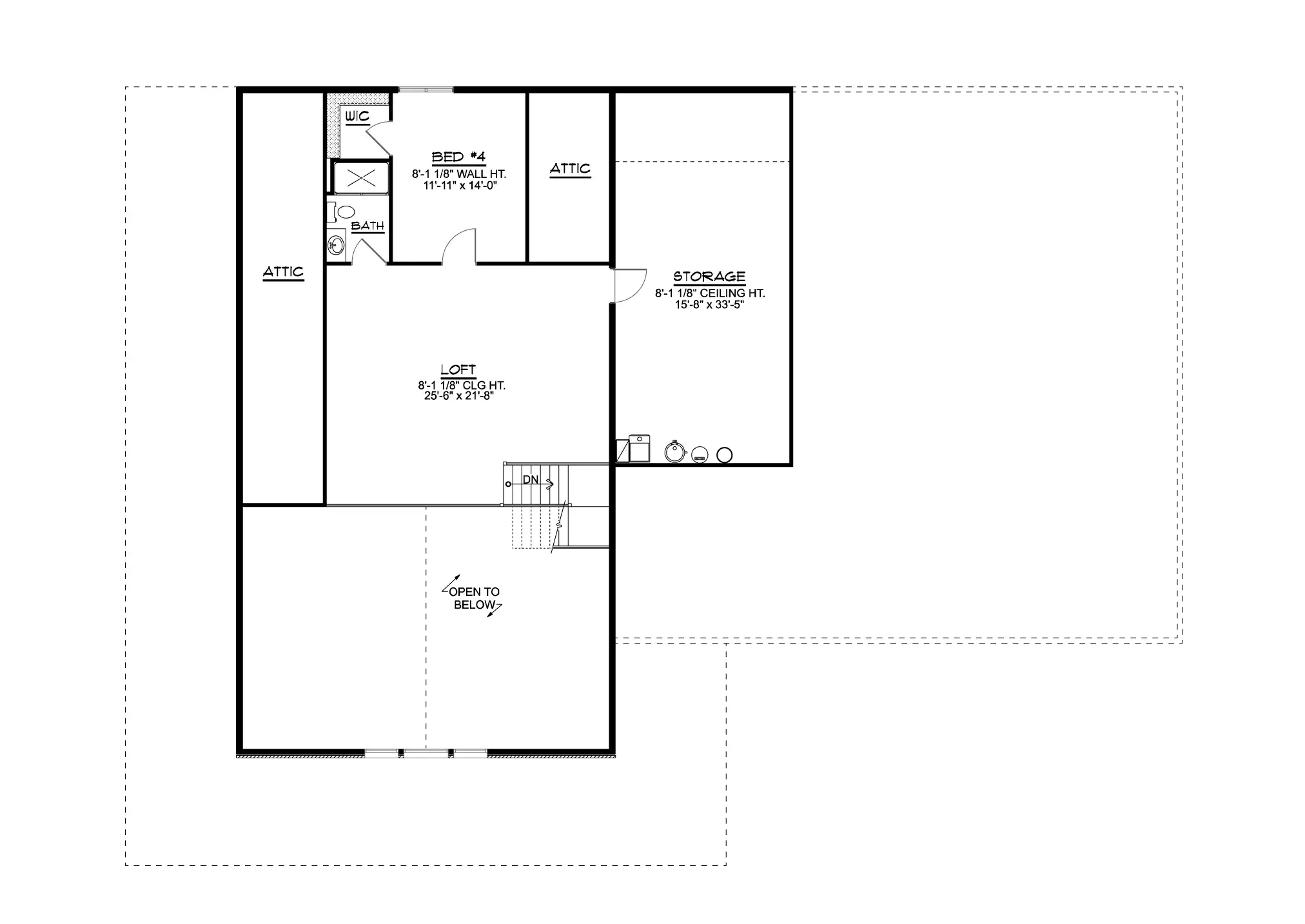
BG-20032 Kellington Barndominium House Plan
- 4,121 Heated Sq Ft
- 3 Bedrooms
- 2.3 Bathrooms
- J&J Bathroom
- Two story
- Loft
- Open concept
- Office
- Mudroom
- Attic
- Covered porch
- Mechanical Room/Storage
- 3,416 Sq Ft Garage
- An expansive 4,121 square feet of heated living space offers room to live boldly, entertain freely, and settle in with comfort.
- Three well-appointed bedrooms provide restful retreats, each designed for privacy, personality, and peace.
- With two full baths and three powder rooms, this layout ensures convenience and flow for both everyday living and hosting.
- A stylish Jack & Jill bath connects two bedrooms with shared access—perfect for siblings, guests, or seamless functionality.
- The two-story design separates public and private zones, enhancing both openness and quiet retreat. A spacious loft adds flexible living space—ideal for a media lounge, creative studio, or cozy reading nook.
- A dedicated office offers a quiet, focused environment for remote work, study, or creative pursuits.
- The mudroom provides a practical transition zone, keeping the home tidy and organized with smart storage.
- An attic adds valuable overhead storage or potential expansion space, tucked neatly above the main living areas.
- The covered porch wraps the home in charm and shade, perfect for relaxing, greeting guests, or enjoying the outdoors year-round.
- The massive 3,416-square-foot garage offers exceptional space for vehicles, tools, and workshop potential—ready for hobbyists, collectors, or entrepreneurs.
BG-20043 Sutton Barndominium House Plan
- 4,213 Heated Sq Ft
- 3 Bedrooms
- 2.1 Bathrooms
- Two-Story
- Open concept
- Office
- Playroom
- Mech/Storage room
- Second floor storage
- Attic storage
- Front & rear porch
- 2,470 Sq Ft Garage
- A spacious interior offering 4,213 square feet of conditioned living—crafted for comfort, flow, and multi-zone flexibility.
- Three private bedrooms and a mix of two full baths plus a powder room provide balance for family life, guest stays, and everyday ease.
- A dedicated workspace designed for focus and flow. Whether for remote work, study, or creative pursuits, this office offers quiet separation without feeling isolated.
- A purposeful space for play, imagination, and downtime. Whether it’s toys, games, or creative mess, the playroom keeps it all contained and joyful.
- Smartly integrated into the garage, this utility zone keeps systems accessible and storage discreet—streamlining maintenance and freeing up indoor space.
- Two upper-level storage zones—one finished, one tucked into the attic—offer room for seasonal items, keepsakes, or future expansion.
- An oversized garage with 2,470 square feet of covered utility—ideal for three vehicles, hobby zones, and serious storage. It’s more than a garage; it’s a multifunctional extension of the home.
BG-20073 Madison Barndominium House Plan
- 4,117 Heated Sq Ft
- 3 bedroom
- 3 bathrooms
- Two Story
- Open Concept
- Office
- Loft
- Mech/storage room
- Covered porch
- 2,880 Sq Ft Garage
- This two-story layout spans 4,117 square feet of conditioned space—offering three bedrooms and three full baths, designed for spacious living with room to grow.
- A dedicated office provides a quiet workspace or creative retreat—and can easily convert into a fourth bedroom for added flexibility.
- The laundry room connects both to the garage and the interior—streamlining chore flow and making everyday transitions seamless.
- Mechanical and storage zones are thoughtfully placed: one upstairs for systems access, and another in the garage for tools, gear, or seasonal items.
- A 2,880-square-foot garage offers space for four vehicles with room to spare—ideal for hobbyists, gearheads, or anyone who values storage and flexibility.
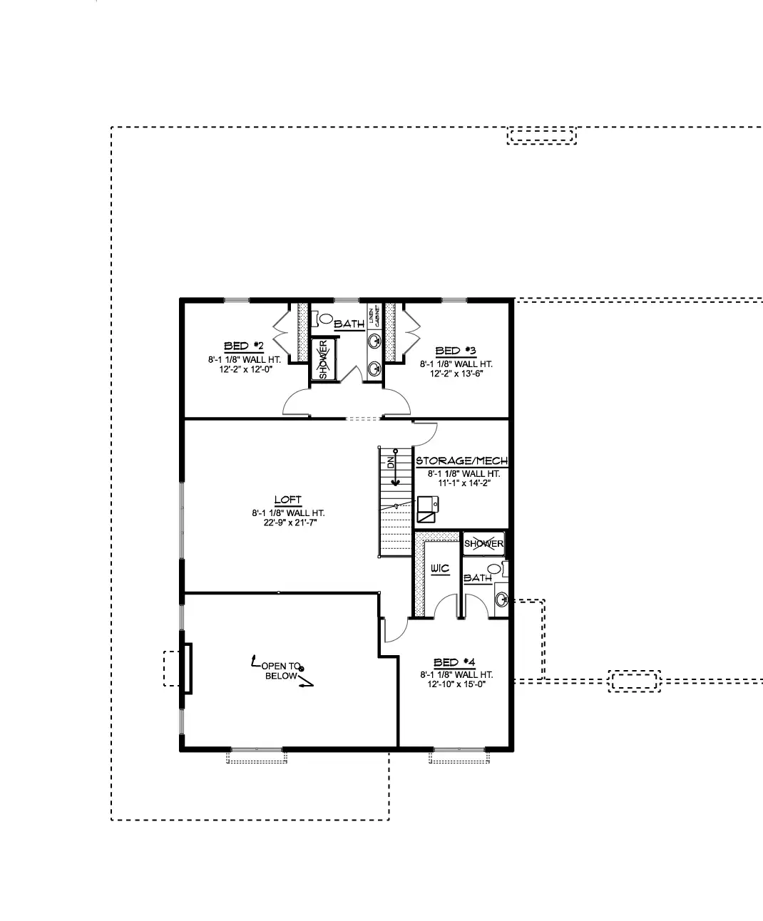
BG-20090 Palmer Barndominium House Plan
- 4,110 Heated Sq Ft
- 4 bedrooms
- 3.1 bathrooms
- Two Story
- Open Concept
- Loft
- Man Cave
- Attic
- Storage
- Wraparound Porch
- 1,283 Sq Ft Garage
- This expansive two-level layout offers 4,110 square feet of conditioned space—crafted for comfort, privacy, and multi-functional living across four bedrooms and 3.1 baths.
- A dedicated man cave with its own half bath is accessible directly from the garage—perfect for hobbies, downtime, or weekend hangouts with built-in convenience.
- Upstairs includes a private bedroom and full bath, plus attic spaces and a spacious storage room—ideal for guests, seasonal items, or flexible use.
- The porch wraps from the front entry around one side of the home—creating a generous outdoor zone for shaded lounging, entertaining, or quiet moments in the open air.
PL-2817 Randi Barndominium House Plan
- 4000 Heated Sq Ft
- 40×50 living space dimensions
- 4 Bedrooms
- 3 Bathrooms
- Walkout Basement
- Open concept
- Single-story
- Wraparound porch
- Safe room
- Bar
- Spacious and comfortable, this home offers 4,000 square feet of climate-controlled elegance—roomy enough to breathe, cozy enough to feel like home.
- Four versatile bedrooms provide restful retreats for the whole crew—whether it’s a peaceful primary suite or a vibrant kids’ corner.
- Three full baths ensure no morning traffic jams—because everyone deserves their own mirror time.
- A versatile lower level that goes beyond the ordinary—this basement houses a discreetly tucked safe room for added peace of mind, a convenient laundry area paired with a sleek half bathroom, and a stylish wet bar ready to host your next gathering.
- The open-concept design brings living, dining, and kitchen spaces together in a seamless flow—made for effortless entertaining and everyday ease.
- Everything you need on one sleek level—designed for smooth living and simplified routines, no stairs required.
- A charming wraparound porch invites breezy mornings, lazy afternoons, and golden-hour sunsets—your new favorite outdoor living room.
- Peace of mind comes built in with a fortified safe room—ready for whatever weather or worries the world may throw your way.
- Cheers to good times with a built-in bar that turns casual evenings into memorable moments—your social life just found its hotspot.
PL-69195 Sawyer Barndominium House Plan
- 4225 Heated square feet
- 3 bedrooms
- 3 bathrooms
- Single Story
- Open Concept
- Basement
- Laundry room
- Carport
- This expansive 4225 heated square feet floor plan. Designed with an open concept, it seamlessly blends the living, dining, and kitchen areas, creating a harmonious flow.
- Featuring 3 cozy bedrooms and 3 well-appointed bathrooms, this home ensures comfort and privacy for all its occupants. The inclusion of a basement offers a versatile space that can be tailored to your needs, be it a game room, home office, or additional storage.
- This floor plan features a dedicated laundry room, providing a practical solution for your household chores. The carport ensures your vehicle is protected from the elements while offering easy access to your home.
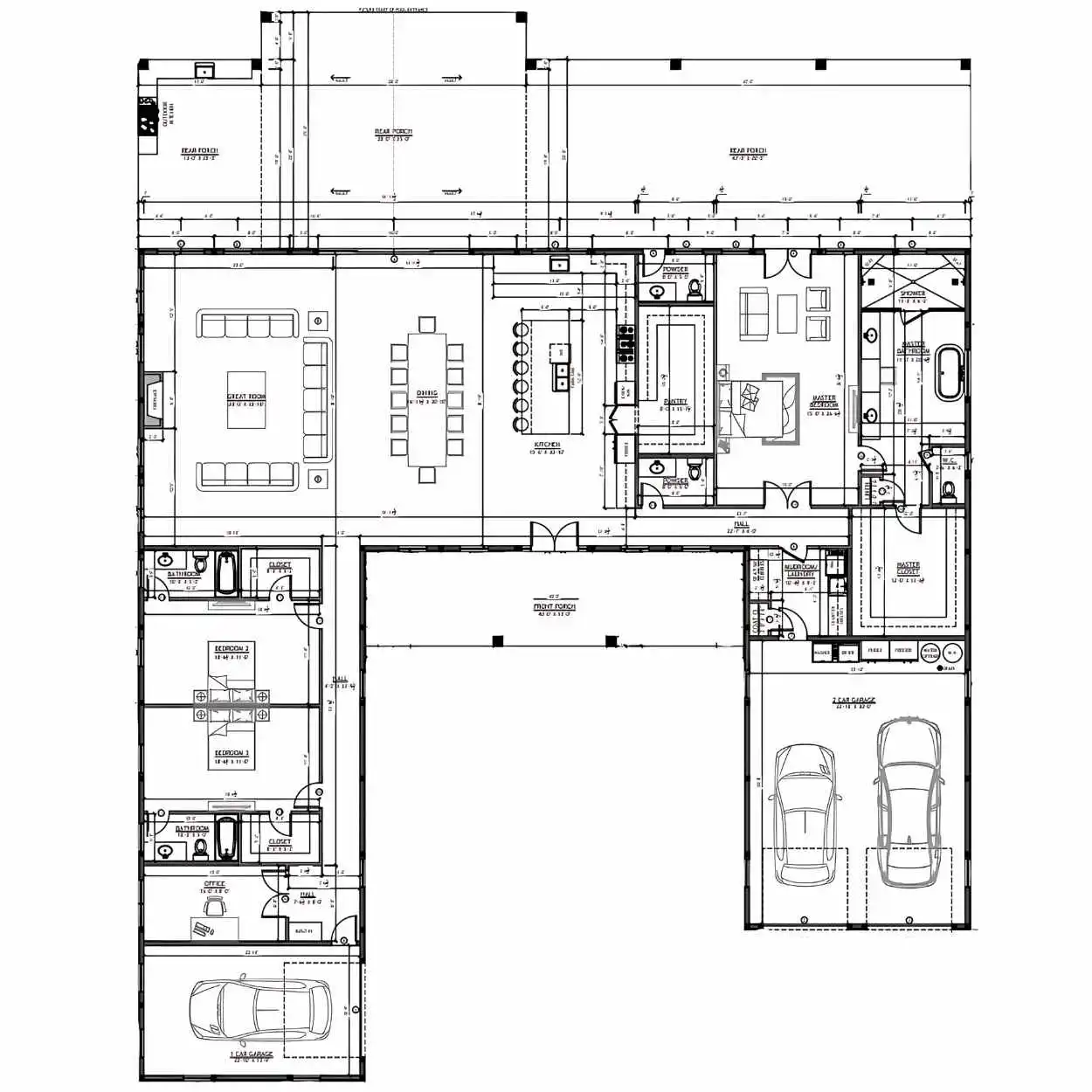
PL-71011 Rosemont Barndominium House Plans
- 4 Bedrooms
- 4.2 Bathrooms
- 4150 Heated Square Feet
- Single-story
- Open-concept
- Mudroom
- Great room
- Living room near the 3 bedrooms
- Foyer
- Indoor and Outdoor Fireplace
- Theatre room
- Front, rear, and side porches
- Kitchen 2 adjacent to the living room
- Outdoor Kitchen
- 2 Laundry rooms
- 2- Car Garage (845 Sqq Ft)
- 1-Car Garage (413 Sq Ft)
- This expansive single-story residence boasts 4,150 square feet of climate-controlled space, ensuring comfort in every corner. Enjoy the ease of single-story living with all essential areas accessible on one level, enhancing mobility and convenience.
- The layout seamlessly combines the great room, dining room, and main kitchen, creating an open space perfect for entertaining and daily life. Centrally located, this room serves as the heart of the home with its cozy built-in indoor fireplace.
- The living room is positioned near Bedrooms 2, 3, and 4 on the left side and offers a comfortable area for relaxation and family time and the adjacent secondary kitchen is ideal for additional cooking needs.
- A welcoming spacious foyer sets the tone for the home and provides a great first impression for guests.
- The master bedroom is on the right side, offering privacy with its own ensuite bathroom while the 3 bedrooms are on the left side, near the living room, a setup ideal for guests or family members desiring more secluded space.
- The master bathroom is connected to the master bedroom for private convenience. Two bedrooms each have bathrooms and another common bathroom for easy access. In addition, there are two half baths, one by the foyer for guests and quick usage and another in the theatre room.
- Located conveniently, the theatre room is perfect for enjoying movies and entertainment in the comfort of your own home.
- Near the 2-car garage, this practical mudroom space helps keep your home tidy by providing a spot for shoes and outerwear.
- The indoor fireplace in the great room adds warmth and charm, while the outdoor fireplace on the rear porch enhances the outdoor living experience.
- The front porch welcomes visitors, the rear porch with an outdoor kitchen is perfect for gatherings, and the side porch by the living room offers a relaxing outdoor retreat.
- With 845 sq ft, this 2-car garage offers ample room for vehicles and additional storage while another 1-car garage with 413 sq ft of space on the left side offers extra room for another vehicle and storage needs.
PL-71101-P Angel Barndominium House Plan
- 4020 Heated Square Feet
- 3 Bedrooms
- 3.2 Bathrooms
- Single-story
- Open-concept
- Mudroom/Laundry
- Office
- Great room
- Fireplace
- Front & rear porch
- Outdoor Kitchen
- 2- Car Garage (845 Sq Ft)
- 1-Car Garage (355 Sq Ft)
- A generous 4,020 square feet of climate-controlled living space offers room to breathe, grow, and entertain—designed with comfort and elegance in every corner.
- Three thoughtfully placed bedrooms provide private sanctuaries for rest and rejuvenation, each tailored for tranquility and personal retreat.
- Each bedroom enjoys its own full bath, ensuring privacy and convenience, while two additional powder rooms add a touch of luxury for guests and daily living.
- Effortless flow meets timeless design in this single-story layout, where open-concept living invites natural light and seamless connection between spaces.
- A dual-purpose mudroom and laundry zone keeps life organized and mess-free, with built-in storage and smart design that simplifies daily routines.
- A dedicated office space offers a quiet haven for productivity, creativity, or remote work—complete with natural light and flexible design potential.
- The heart of the home, this expansive great room features a cozy fireplace and soaring ceilings—ideal for gatherings, quiet evenings, or showcasing your personal style.
- From welcoming guests at the front to unwinding in the rear, these porches extend your living space outdoors, blending charm with functionality for every season.
- Elevate alfresco dining with a fully equipped outdoor kitchen—perfect for weekend grilling, sunset cocktails, or hosting under the stars.
- An oversized two-car garage offers 845 square feet of secure storage and parking, with room for tools, gear, and weekend projects.
- A separate 355-square-foot garage adds flexibility—ideal for a third vehicle, workshop, or hobby space with easy access and privacy.
SV-30007 Rosewood Custom Home Plan
- 4,282 Heated Sq Ft
- 4 Bedrooms
- 3.1 Bathrooms
- Single Story
- Basement
- Open concept
- Library
- Utility room
- Two great rooms
- Front porch & rear porch
- 2,325 sq ft garage
- A generous footprint offering over 4,280 square feet of conditioned space—designed for expansive living, layered privacy, and seamless transitions across levels.
- Two bedrooms on the main floor and two tucked into the basement create a flexible layout, each space offering a quiet retreat and room to personalise.
- Three full baths and a powder room ensure comfort and convenience throughout the home—supporting both daily routines and effortless hosting.
- Main-level living meets lower-level versatility. This design offers the ease of a single-story layout with the added depth and privacy of a finished basement.
- A dedicated space for quiet thought and curated shelves. Whether it’s a reading nook, study zone, or creative retreat, the library adds a layer of refinement to the home.
- A tucked-away hub for systems and storage—keeping the essentials organised and the rest of the home running smoothly.
- Two expansive living areas—one on each level—offer space to gather, relax, or entertain for movie nights upstairs or game days below.
- An oversized garage with space for four vehicles and more. With 2,325 square feet, it’s ideal for car enthusiasts, hobbyists, or anyone needing serious storage and workspace.
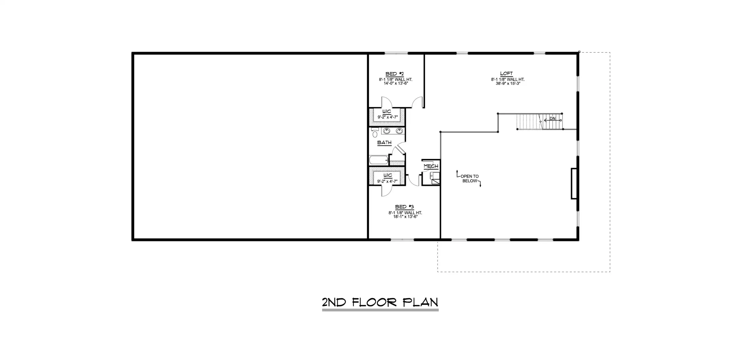
SV-30010 Marco Custom Home Plan
- 4,250 Heated Sq Ft
- 3 Bedrooms
- 3.1 Bathrooms
- Two Story
- Open concept
- Foyer
- Office
- Utility room
- Storage
- Attic
- Bonus room
- Front porch & rear porch
- 898 Sq Ft garage
- A generous interior offering 4,250 square feet of conditioned space—crafted for expansive living, layered privacy, and seamless transitions across zones.
- Three spacious bedrooms and three full baths plus a powder room provide comfort and convenience for everyday living and effortless hosting.
- A defined entry that sets the tone—welcoming, intentional, and perfectly positioned to guide guests into the heart of the home.
- A dedicated workspace designed for focus and flow. Whether for remote work, study, or creative pursuits, this office offers quiet separation without feeling isolated.
- A tucked-away hub for systems and storage—keeping the essentials organised and the rest of the home running smoothly.
- Upstairs, a trio of flexible spaces—ample storage, an unfinished attic, and a spacious bonus room—ready to evolve into a studio, guest suite, or media lounge.
- Dual porches extend the living experience outdoors. Greet the day out front, unwind out back, and enjoy shaded comfort in every season.
- An oversized two-car garage offering 898 square feet of covered utility—ideal for vehicles, hobbies, or weekend projects with room to spare.
More 40×100 Barndominium Floor Plans
4 Bedroom 40×100 Barndominium Example 1 – PL-62501

This amazing 40×100 barndominium floor plan is a great example of thinking about the needs of the people living there. With four bedrooms and three and a half bathrooms, it has enough living space for everyone and two rooms that are located way in the back of the barndo. Both of these bedrooms have their own master bath that is perfect for someone who might need to keep different hours than the other people in the house. It also features a large utility room and plenty of storage, including a walk-in pantry. On top of that, the massive living area and front porch provide plenty of social space.
4 Bedroom 40×100 Barndominium with Shop Example 2 – PL-62502

This four bedroom 40×100 barndominium floor plan is perfect for people who might run their business out of a shop or need a lot of storage room for things like RVs or boats. The massive 33×40 shop takes up a large portion of the floor plan but that doesn’t mean there isn’t enough room in the rest of the house. The living area is almost the same size and it features that nice, open concept kitchen with an island that has a cleverly placed sink on the edge. Not to mention, all the storage space included in the dedicated 11×18 storage room and the utility space off the side.
3 Bedroom 40×100 Barndominium with Office Example 3 – PL-62503

This three-bedroom 40×100 barndominium floor plan is a great choice for someone who needs the kind of office space that might normally be reserved for a master bedroom. The huge 14×17 office sits right at the front of the house and provides an excellent nerve center for everything in the home. With a bathroom right across the hall, there is enough thought put into the traffic flow of this floor plan to make it a perfect choice for all kinds of families. It also features three large bedrooms and three bathrooms as well as a wonderfully open layout of the living area and kitchen.
3 Bedroom 40×100 Barndominium with Breezeway Example 5 – PL-62505

One of the nice things about putting together a 40×100 barndominium floor plan is that you have a lot of room to play around. This means that you can include things like breezeways that you might not otherwise have the space to utilize. A breezeway is an outdoor area that splits different parts of the house and is covered for the best possible shelter and coverage. This floor plan has the breezeway separating the living areas of the house with two of the bedrooms and bathrooms. This is a great way to get the most out of your living space both inside and outside.
3 Bedroom 40×100 Barndominium with Breezeway and Shop Example 6 – PL-62506

This 40×100 barndominium floor plan has both a breezeway and a shop for the best possible use of space. On top of these features, it also has a large utility room and three bedrooms on either side of the breezeway space. The living room and kitchen are fully connected with a large island and a bathroom directly off the closet. Both back bedrooms also have their own walk-in closets that are big enough for anyone to be able to store their belongings and still have room left over.
2 Bedroom 40×100 Barndominium Example 7 – PL-62507

If you don’t need as many bedrooms, this 40×100 barndominium floor plan example is a great option for you. It takes that space that would normally be taken up by the bedrooms and turns it into a porch and extra room space. This floor plan features both a home office and a rumpus room as well as a living area that is big enough to have company over any time. This is an incredibly unique floor plan that could be a great choice if you want to build something different that will be unlike all the other homes in your neighborhood.
2 Bedroom 40×100 Barndominium with Shop Example 8 – PL-62508

Just like the previous plan, this two-bedroom 40×100 barndominium floor plan takes the extra space made available by taking out one of the bedrooms and turning it into a shop. The 35×40 shop utilizes more than a third of the floor space but there is still plenty of room in the living area and the two back bedrooms. If you have a lot of recreational vehicles or would like a lot of shop space for work, this could be a good floor plan for your needs.
Conclusion
Finding the right 40×100 barndominium floor plan can be difficult if you don’t know what to look for. Hopefully, by seeing these examples, you can start thinking about what you and your family need out of a home. Maybe you even want to use one of these for your own 40×100 barndominium floor plan.
If you would like even more floor plans as well as some tips and tricks from the pros and some in-depth guides, be sure to get the Barndominium Life Program and find more information as well as some featured barndominiums that can get you thinking about your own custom home and what can be done with these unique buildings.
Find More Barndominium Floor Plans
By Bedrooms:
1 Bedroom • 2 Bedrooms • 3 Bedrooms • 4 Bedrooms • 5 Bedrooms • 6 Bedrooms • 7 Bedrooms • 8 Bedrooms
By Feature:
1-Story • 2-Story • With Garage • 2 Car Garage • 3 Car Garage • Wraparound Porch • With Breezeway • 2 Master Suites • With Loft • Multi-Family Barndominiums • Open-Concept • With Shop
By Size:
Small Plans • 800 Sq Ft • 900 Sq Ft • 1000 Sq Ft • 1200 Sq Ft • 30×40 Floor Plans • 1400 Sq Ft • 1500 Sq Ft • 1600 Sq Ft • 40×40 Floor Plans • 1800 Sq Ft • 30×60 Floor Plans • 2000 Sq Ft • 2400 Sq Ft • 2500 Sq Ft • 2800 Sq Ft • 3000 Sq Ft • 3200 Sq Ft • 3600 Sq Ft • 4000 Sq Ft • 5000 Sq Ft •






























