Building your own home is one of the best ways to ensure that you get everything you want and barndominiums are an excellent alternative to traditional housing. However, if you are going to have a successful home build, you need to make sure you have solid plans in place. This is especially true if you have relatively little space to work with. Top-notch 130×50 barndominium floor plans (1500 sq ft) can be a big help if you want to make the most of your home.
Even if you only have 1,500 square feet in which to build your perfect home, you can create something truly beautiful. To help get you started, we have put together a collection of 30×50 barndominium floor plans. With these plans, you can create a blueprint that will work well for your particular needs. By starting yourself off on the right foot, you can ensure that your project will be a success and that you will have the home of your dreams.
Page Contents
11 Outstanding 1500 Sq Ft Barndominium Floor Plans
BCO-40001-R Eden Barndominium House Plan
- 1,500 Heated Square Feet
- 50×30 living space dimension
- 2 Bedrooms
- 2 Bathrooms
- Single-story layout
- Open-concept
- Expansive 50-foot front and rear porch
- Dedicated laundry room and storage
- Spacious master suite with walk-in closet
- 1,500 heated square feet perfectly sized to balance coziness and functionality, with every square foot designed for comfortable living.
- Two serene bedrooms that promise rest, relaxation, and a peaceful ambiance.
2 bathrooms that are both modern and inviting, offering both convenience and a touch of luxury. - The single-story layout creates a seamless, step-free design that combines style with accessibility with a spacious open-concept layout where the living, dining, and kitchen areas flow together effortlessly.
- Double the charm with sprawling outdoor spaces with the expansive 50-foot front and rear Porch perfect for morning coffees, evening sunsets, and everything in between.
- A dedicated laundry room and storage smartly tucked away, making chores and organizing an absolute breeze.
- Spacious master suite with walk-in closet gives a personal sanctuary featuring ample space, elegance, and a walk-in closet to store your dreams.
BCO-40025 Bluebonnet Barndominium House Plan

- 1512 Heated Sq Ft
- 360 Sq Ft Garage
- 2 Bedrooms
- 2 Bathrooms
- Utility/Laundry room
- Single story
- Open concept
- Front porch
- 1512 square feet of heated living space, perfect for year-round enjoyment.
- A spacious 360 square-foot garage to house your vehicles or storage needs.
- Two generously-sized bedrooms designed for relaxation and privacy.
- 2 stylish bathrooms, including a private master bathroom, for optimal convenience and elegance.
- Enjoy the ease of a single-story, open-concept design that flows seamlessly.
- A charming front porch to greet guests or unwind with your morning coffee.
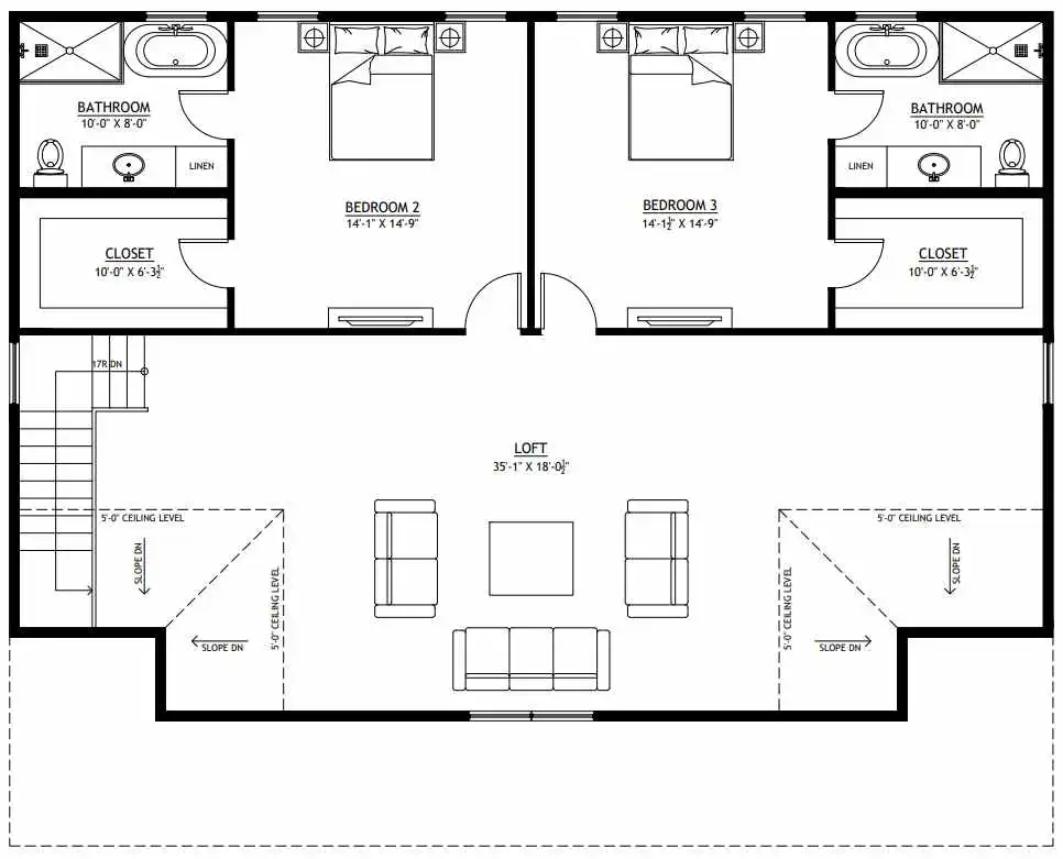
BCO-40034 Cougar Barndominium House Plan
- 3160 Heated square feet
- 30×50 living space dimension
- 3 bedrooms
- 4 bathrooms
- 2 Story
- Loft
- Open Concept
- Mudroom/Laundry
- Front porch
- Generously sized for comfort and entertaining, this spacious layout offers 3,160 square feet of climate-controlled living.
- A wide-open 30×50 footprint creates a flexible canvas for stylish furniture arrangements and seamless flow.
- Three well-appointed bedrooms provide restful retreats, the master bedroom on the main floor and two bedrooms on the second floor, each designed with privacy and comfort in mind.
- With four full baths, morning routines and guest stays are effortlessly smooth—no waiting, no compromise.
- A striking two-story design adds architectural interest and separates public and private spaces with ease.
- The open-concept layout invites natural light and connection, blending kitchen, dining, and living areas into one harmonious hub.
- A combined mudroom and laundry area keeps messes contained and chores streamlined—ideal for busy households.
- The welcoming front porch sets the tone for relaxed living, offering a charming spot to sip coffee or greet guests.
BCO-40034-B Brandon Barndominium House Plan
- 2520 Heated square feet
- 30×40 living space dimension
- 3 bedrooms
- 3 bathrooms
- 2 Story
- Loft
- Open Concept
- Mudroom/Laundry
- Front porch
- Crawl Space Foundation
- Stretch out across 2,520 square feet of thoughtfully designed comfort—ample space for living, hosting, and everything in between.
- Three private retreats, each ready to echo your personal style and offer sanctuary at day’s end.
- No waiting, no compromises—three sparkling bathrooms bring convenience and polish to everyday living.
- Double the levels, endless potential—this open-concept layout lets natural light and good vibes flow from floor to ceiling.
- The ultimate transition zone—a stylish and functional mudroom keeps your living space clean and clutter-free.
- Classic charm meets curb appeal—this spacious front porch invites morning coffees, twilight chats, and endless relaxation.
BCO-40055-K Kimberly Barndominium House Plan
- 1536 Heated Sq Ft
- 30×50 living space dimension
- 2 Bedrooms
- 2 Bathrooms
- Single story
- Open concept
- Office
- Front porch
- 1-car garage
- Enjoy a perfectly sized 1,536 square feet of climate-controlled living—ideal for those who value comfort, efficiency, and room to thrive.
- With a generous 30×50 footprint, the main living space strikes the perfect balance between openness and cozy charm—tailor-made for entertaining and everyday ease.
- Two well-appointed bedrooms offer peaceful privacy for restful nights, a welcoming guest stay, or a charming getaway for couples or small families.
- Featuring two full bathrooms, this layout ensures smooth mornings and serene evenings, offering style and functionality in every detail.
- Whether you’re working remotely, diving into creative projects, or simply seeking a quiet corner to recharge, the dedicated office provides a versatile space to focus and flourish.
- A classic front porch sets the tone with charm and warmth—your go-to spot for morning coffee, neighborly chats, or watching the world go by.
- The attached one-car garage offers convenient, secure parking with bonus storage potential—perfect for weekend gear, tools, or extra essentials.
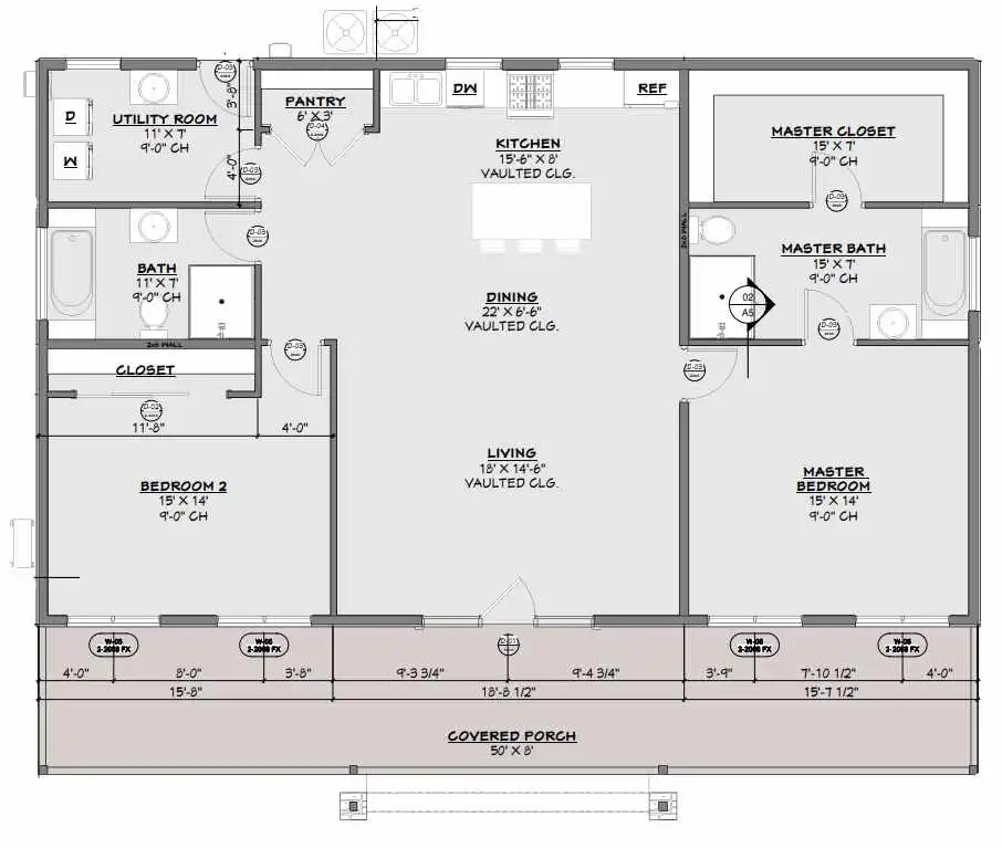
BCO-40122 Carl Barndominium House Plan
- 1,500 Heated Sq Ft
- 2 bedrooms
- 2 bathrooms
- Single Story
- Open Concept
- Utility room
- Front Porch
- This efficient two-bedroom barndominium floor plan maximizes space while maintaining a comfortable and open feel.
- The open-concept living, dining, and kitchen areas form the heart of the home, perfect for both everyday living and hosting guests.
- The master suite is a private retreat, featuring a large bedroom, a spacious closet, and a luxurious en-suite bathroom.
- A second bedroom is located on the opposite side of the home for privacy, with a full bathroom and a dedicated utility room conveniently nearby.
- A full-length front porch extends the living space outdoors, providing a great area for relaxation.
CDD-4103 Prairie Barndominium House Plan
- 1500 Heated Sq Ft
- 900 Sq Ft 2-car Garage
- 3 Bedrooms
- 2.1 Bathrooms
- Single story
- Open concept
- Office
- Mechanical room
- Front & rear porch
- 1500 spacious and cozy heated Sq Ft offering a perfect balance for living, relaxing, and entertaining.
- Generous space to park your cars and store everything from tools to outdoor gear in the 900 Sq ft 2-car garage.
- With 3 Bedrooms, enough room for family, guests, and a slice of privacy for everyone.
- The 2.1 bathrooms are designed for convenience, with extra space to keep morning routines hassle-free.
- Single Story for accessible and easy to navigate, and the open concept design seamlessly connects spaces where conversations and creativity flow.
- The mechanical room keeps things practical and organized, keeping your utilities in one neat spot.
- Front & rear porches are welcoming outdoor spaces to soak in sunrise, sunset, or a breath of fresh air.
PL-64024 Thompson Barndominium House Plan
- 1500 Heated square feet
- 30×50 living space dimension
- 2 Bedrooms
- 2 bathrooms
- Single Story
- Office
- Mudroom/laundry
- Gun safe room
- Front & rear porch
- Carport
- Efficiently designed and easy to maintain, this 1,500-square-foot heated interior offers just the right amount of space for everyday living—with no wasted corners and plenty of breathing room.
- A clean, rectangular footprint measuring 30 by 50 feet provides a balanced layout that’s easy to furnish, navigate, and customize to your lifestyle.
- Two cozy bedrooms offer restful privacy and flexible use—whether for sleep, guests, or creative space, each room is a blank canvas for comfort.
- Two full baths ensure smooth mornings and relaxed evenings, with enough space and separation to keep routines flowing without interruption.
- Everything is within reach. This single-level design eliminates stairs and maximizes accessibility—ideal for all ages and mobility needs.
- A dedicated workspace that’s tucked away yet accessible—perfect for remote work, quiet study, or managing life’s logistics without distraction.
- Function meets flow in this dual-purpose space. Drop your boots, sort your laundry, and keep the rest of the home clean and organized with ease.
- A secure, purpose-built room for firearm storage—designed with discretion and safety in mind, offering peace of mind without compromising aesthetics.
- Two porches extend your living space outdoors. Greet the day out front, unwind out back, and enjoy shaded comfort in every season.
- A covered carport offers protection from the elements and easy access to the home—ideal for quick entries, rainy days, or additional outdoor storage.
LP-71010 Croft Barndominium House Plan
- 1500 heated sq ft
- 1 bedroom
- 1.1 bathrooms
- Single story
- Open concept
- Bonus room
- Front & back porch
- This home offers 1,500 square feet of climate-controlled living space, ensuring comfort and convenience in every season. Enjoy the simplicity and accessibility of single-story living, with all main areas easily reachable on one level.
- The layout boasts a seamless flow between the living, dining, and kitchen areas, perfect for entertaining and everyday living.
- The well-designed bedroom offers ample space for relaxation and rest, providing a peaceful retreat.
- Featuring one full bathroom and an additional half bath, both equipped with modern fixtures for convenience and style.
- The versatile bonus room can be used as an office, guest room, or additional living area, adding flexibility to your home.
- The charming front porch welcomes you home, while the back porch offers ample space for relaxing, entertaining, and enjoying the outdoors.
LS-42001 Sparks Barndominium House Plan
- 1526 Heated square feet
- 2 Bedrooms
- 2.2 Bathrooms
- Single story
- Open concept
- Tack room
- Front porch
- 1660 Sq ft attached garage
- This charming single-story home spans 1,526 heated square feet and offers a thoughtful layout. The floor plan includes two cozy bedrooms and 2.2 bathrooms.
- Convenience meets functionality with an attached garage. Park your car, store tools, or create a workshop—it’s up to you!
- Unique to this plan, you’ll find a versatile tack room or storage area inside the garage.
- Welcome guests or enjoy a quiet evening on the inviting front porch. It’s a charming spot to watch the world go by.
PL-61101-C Casey Barndominium House Plan
- 1,500 Heated Sq Ft
- 2 Bedrooms
- 2.5 Bathrooms
- One Story
- Open concept
- Foyer
- Utility room
- Bonus room
- Mudroom
- Front porch & rear porch
- This barndominium floor plan offers a symmetrical and efficient design, perfect for a modern family or roommates.
- The central open-concept living, dining, and kitchen area serves as the heart of the home, promoting easy flow and social interaction.
- A split-bedroom layout ensures privacy, with each bedroom featuring a walk-in closet and a full en-suite bathroom.
- The kitchen is compact yet functional, with a central island and a walk-in pantry for storage.
- With a front porch spanning the entire width of the home, this plan maximizes both interior and exterior living space.
PL-61101 Lizbeth Barndominium House Plan
- 1500 Heated square feet
- 2 Bedrooms
- 2.1 Bathrooms
- Single story
- Open concept
- Front porch
- This charming single-story home features an open-concept design, perfect for modern living. The layout maximizes functionality while maintaining a cozy feel.
- The plan features two spacious bedrooms, each with its own walk-in closet and private bathroom. The half bathroom conveniently serves guests.
PL-61101-Duplex Barndominium House Plan
- 1500 Heated sq ft duplex
- 30×50 living space dimension
- 2 Bedrooms
- 2 Bathrooms
- Open concept
- Single-story
- Front & Rear porch
- This 1,500 sq. ft. duplex offers ample heated living space, blending functionality with warmth.
- Featuring two generously sized bedrooms designed for relaxation and privacy.
- Two well-appointed bathrooms provide style and practicality for everyday comfort.
- An open-concept layout enhances connectivity, maximizing space and natural light.
- Enjoy the ease of single-story living ensuring accessibility and convenience.
- Front and rear porches create inviting spaces for relaxation and entertaining.
PL-61704 Milan Barndominium House Plan


- 1599 Heated square feet
- 3 bedrooms
- 2 bathrooms
- 1 Story
- Front and back porch
- Open Concept
- Welcome to your dream barndominium! With 1599 heated square feet, front and back porches for relaxation, ample storage space for organization, and a convenient laundry area, this home perfectly blends country charm with modern practicality.
- This home features three cozy bedrooms, each with its own closet space for personal storage. The master suite boasts a private bathroom, offering a sanctuary of relaxation. A shared bathroom serves the remaining bedrooms, ensuring convenience for all.
- As you enter, you’re greeted by a warm and inviting family room, complete with a crackling fireplace that serves as the heart of the home. The open-concept living area seamlessly blends the kitchen, dining, and living spaces, creating an environment perfect for making memories.
PL-62003 Duke Barndominium House Plan
- 1500 Heated square feet
- 3 bedrooms
- 2 bathrooms
- 1 Story
- Lean to Porch
- Open Concept
- The Duke Barndominium house plan is 1500 heated square feet and features 3 bedrooms and 2 bathrooms.
- As you enter the front door through the lean-to porch you are greeted by a spacious open-concept living area that’s perfect for entertaining guests or spending time with family.
- The L-shaped kitchen is a good size with a nice island perfect for food prep and serving.
- The master bedroom is a good size and has an ensuite bathroom and walk-in closet.
- The two secondary bedrooms share the second bathroom with a nice-sized linen closet within the bathroom perfect for storing sheets and towels.
PL-62303 Gorefield Barndominium House Plans
- 1521 Heated square feet
- 3 bedrooms
- 2.1 bathrooms
- 1 Story
- Mudroom
- Open Concept
- The Gorefield barndominium house plan is 1521 heated square feet and features 3 bedrooms, 2 full bathrooms, and 1 1/2 bathroom.
- As you arrive at the Gorfield barndominium you will immediately notice the welcoming front porch, the perfect spot to enjoy a cup of coffee in the morning or unwind after a long day. The porch provides a peaceful transition from the outdoors into the main living space, giving you a sense of relaxation and comfort.
- As you step inside the large kitchen and family room will catch your attention. Perfect for entertaining or gathering as a family.
- The master bedroom is a good size with an ensuite bathroom and master closet.
- On the other side of the home, you will find two more bedrooms with a shared bathroom in between them.
- The laundry room has its own half bathroom which is super convenient for working or playing in the yard.
- Another great feature of this home is the mudroom which is actually accessible from right when you walk in the front door as well as the laundry room. It is a great feature to keep your home organized and clean. You can store shoes, coats, and other outdoor gear in the mudroom, preventing dirt and mud from entering your living space.
- The Gorefield Barndominium House Plan offers ample space for storage, with closets in each of the bedrooms, a laundry room with plenty of storage space, and a pantry in the kitchen.
PL-62516 Johnson Barndominium House Plan
- 1500 Heated square feet
- Shop
- 3 bedrooms
- 2.1 bathrooms
- Fireplace
- Open Concept
- Laundry room
- Mudroom
- 1500 heated square feet of comfort await you in this charming single-story home.
- Enjoy the convenience of a spacious shop for your hobbies and storage needs.
- Three inviting bedrooms provide ample space for you and your family.
- With 2.1 bathrooms, there’s no need to wait in line during busy mornings.
- Warm up by the fireplace on cozy evenings, creating a perfect ambiance.
- The open-concept design ensures a seamless flow throughout the living spaces.
- A dedicated laundry room adds convenience to your daily routine.
- Stay organized with a practical mudroom, making your entryway clutter-free.
PL-62765 Cornelia Barndominium House Plan
- 1500 Heated square feet
- 3 Bedrooms
- 2 Bathrooms
- Open concept
- Discover the perfect blend of comfort and style in this 1500 square foot open-concept floor plan. Featuring 3 spacious bedrooms and 2 modern bathrooms, this home offers a seamless flow between living, dining, and kitchen areas.
PL-64017 Pecan Barndominium House Plan
- 1500 Heated square feet
- 30×50 living space dimension
- 2 bedrooms
- 2 bathrooms
- Single Story
- Open Concept
- 2-Car Garage
- Front & Rear porch
- Step into 1,500 square feet of thoughtfully climate-controlled living space—ideal for cozy gatherings, quiet evenings, and comfortable year-round living.
- Two spacious bedrooms offer privacy and flexibility—perfect for restful retreats, a stylish guest suite, or even that dreamy home office you’ve been imagining.
- Enjoy the convenience of two modern bathrooms designed for comfort and ease—no more morning rush hour, just smooth, seamless starts to your day.
- Experience true ease of living with a single-level layout and open-concept flow that invites connection, sunlight, and effortless movement from room to room.
- The attached two-car garage brings everyday convenience with secure, weatherproof storage and plenty of room for vehicles, bikes, or weekend adventure gear.
- Greet the day with a coffee on the front porch and unwind in the glow of sunset on the rear—these charming outdoor havens extend your living space with fresh-air appeal.
More 0×50 Barndominium Floor Plans [1500 Sq. Ft] Ideas
1500 sq ft Barndominium Floor Plan – PL-62760

You may think that when building a smaller home, you have to sacrifice things like storage space. However, these 30×50 barndominium floor plans show that you can include a garage without encroaching too much on the rest of the space in the home. By utilizing a large master bedroom and massive walk-in closet, there is plenty of usable room. Plus, the two-car garage will help you prevent clutter and keep your home tidy.
30×50 Barndominium Floor Plan – PL-62761

If you don’t necessarily need a garage, you can incorporate different things depending on your needs. These 1500 sq ft barndominium floor plans include a second bedroom in the space where the garage would be. This gives you enough space to include a large master bedroom and huge walk-in closet. If you only have guests now and then, this could be the perfect layout.
1500 sq ft Barndominium Floor Plan – PL-62763

If you can space everything out correctly, you can include as many design elements and rooms as you need. While these 1500 sq ft barndominium floor plans sacrifice some space in the bedrooms to incorporate other bedrooms, they are still functional. This is a fantastic plan if you have multiple people who will be living in the home.
30×50 Barndominium Floor Plan – PL-62764

If you are looking for more common areas, you can easily put them in your layout. This is especially true if you really only need one bedroom. These 30×50 barndominium floor plans include a dining room and living room area, which opens up all kinds of options. You can even cordon off the living room for guests if you want that little bit of extra usable guest space.
30×50 Barndominium Floor Plan – PL-62766

Utilizing different shapes for your 1500 sq ft barndominium floor plans is essential and can be quite effective. These plans use an L shape to incorporate the kitchen and the living room spaces. This way, the plans are able to accommodate a garage and mudroom, which are important if you live in a wet climate.
1500 sq ft Barndominium Floor Plans #8 – PL-62767

When designing 30×50 barndominium floor plans, you can set aside certain areas for a specific purpose. This is especially apparent in this design, which has the whole back of the home relegated to bedrooms. This way, you don’t have to sacrifice space in the common areas for bedrooms. The result is an open, airy feel that flows well from the front to the back.
Conclusion
The key to a successful home build is to make the most of the space you have. By having a solid plan in place, you can create a home that you and your family will love for many years to come. Even if you only have 1,500 square feet to work with, you can design something that will serve you well and give everyone the space they need.
If you would like more guides like this one, check out the rest of BarndominiumLife.com. There, you will find more helpful tips and tricks from the pros.
You will also find featured barndominiums, stock barndominium house plans, custom barndominium house plans, and information on financing and insurance.
Just starting out? Check out the Barndominiums Made Easy Program. It has our “How to Build Guide”, 120+ House Plans, and the Bid and Budget Tracker. Knowing as much as you can will help you get the best results for your dream home.
Find More Barndominium Floor Plans
By Bedrooms:
1 Bedroom • 2 Bedrooms • 3 Bedrooms • 4 Bedrooms • 5 Bedrooms • 6 Bedrooms • 7 Bedrooms • 8 Bedrooms
By Feature:
1-Story • 2-Story • With Garage • 2 Car Garage • 3 Car Garage • Wraparound Porch • With Breezeway • 2 Master Suites • With Loft • Multi-Family Barndominiums • Open-Concept • With Shop
By Size:
Small Plans • 800 Sq Ft • 900 Sq Ft • 1000 Sq Ft • 1200 Sq Ft • 30×40 Floor Plans • 1400 Sq Ft • 1500 Sq Ft • 1600 Sq Ft • 40×40 Floor Plans • 1800 Sq Ft • 30×60 Floor Plans • 2000 Sq Ft • 2400 Sq Ft • 2500 Sq Ft • 2800 Sq Ft • 3000 Sq Ft • 3200 Sq Ft • 3600 Sq Ft • 4000 Sq Ft • 5000 Sq Ft •





































