Building a home is one of the most rewarding projects a person can take on. However, it can also be one of the most challenging and frustrating if you aren’t prepared. That’s why it is so important to have a solid plan in place that you can work from during the whole construction period. Having some 3000 sq ft barndominium floor plans to draw inspiration from will help you create the perfect home that you have been dreaming of.
We have put together an amazing collection of 3000 sq ft barndominium floor plans, all of which are designed with your life in mind. You can either use these plans directly or simply use them as inspiration for your own perfect home layout. With a good idea of what is possible and what can be done with the space, your floor plan will serve you well. With something you are confident in to begin with, you can be sure that your home will be exactly what you had in mind.
Page Contents
3000 Sq. Foot Barndominium Kits
If you’re looking to start building your barndominium, one of the first things to do is to get a quote for the metal shell or barndominium kit. By using the quote service below, you’ll get connected with a barndominium kit provider within a few hours at most. Prefabricated barndominium kits mean that the metal shell that makes up your barndo is produced off-site, then it’s brought to you for erection and assembly. While some builders will help you order the barndominium kit, we suggest doing it separately to avoid a potential markup on the barndominium kit.
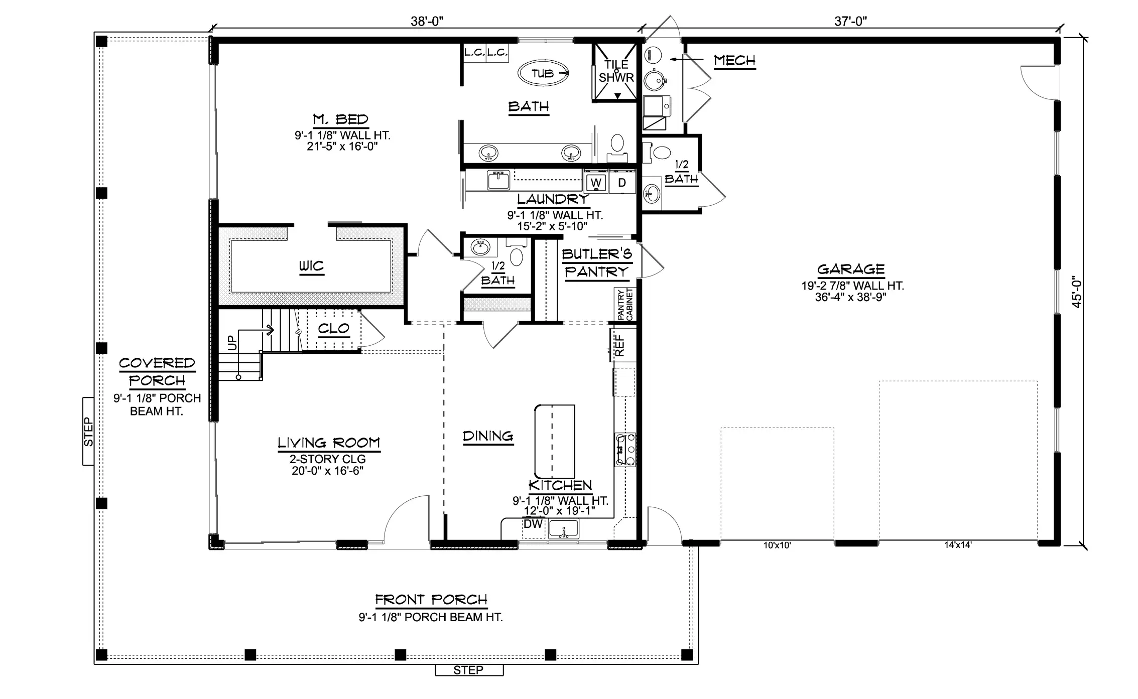
BCO-40034 Cougar Barndominium House Plan
- 3160 Heated square feet
- 30×50 living space dimension
- 3 bedrooms
- 4 bathrooms
- 2 Story
- Loft
- Open Concept
- Mudroom/Laundry
- Front porch
- Generously sized for comfort and entertaining, this spacious layout offers 3,160 square feet of climate-controlled living.
- A wide-open 30×50 footprint creates a flexible canvas for stylish furniture arrangements and seamless flow.
- Three well-appointed bedrooms provide restful retreats, the master bedroom on the main floor and two bedrooms on the second floor, each designed with privacy and comfort in mind.
- With four full baths, morning routines and guest stays are effortlessly smooth—no waiting, no compromise.
- A striking two-story design adds architectural interest and separates public and private spaces with ease.
- The open-concept layout invites natural light and connection, blending kitchen, dining, and living areas into one harmonious hub.
- A combined mudroom and laundry area keeps messes contained and chores streamlined—ideal for busy households.
- The welcoming front porch sets the tone for relaxed living, offering a charming spot to sip coffee or greet guests.
BCO-40052 Michael Barndominium House Plan
- 3268 Heated square feet
- 30×60 living space dimension
- 5 Bedrooms
- 3 Bathrooms
- 2 Stories
- Open concept
- Mudroom
- Front porch & patio
- Loft/bonus area
- Balcony
- Attached 529 Sq Ft Garage
- Step into 3,268 square feet of pure comfort—where every inch is thoughtfully designed to elevate daily living. From cozy corners to grand entertaining zones, this expansive layout offers room to breathe, grow, and thrive.
- Five dreamy retreats await—each one a canvas for personal style and restful nights. Ideal for growing families, guest stays, or even a home office, these bedrooms offer flexibility without compromising comfort.
- Three beautifully appointed bathrooms ensure everyone starts their day with ease. Think spa-inspired finishes, smart layouts, and just the right touch of luxury to make mornings feel indulgent.
- Two levels of living mean double the delight. With separation between social spaces and private sanctuaries, this layout offers both functionality and flair—perfect for dynamic lifestyles.
- The heart of the home beats in its open-concept design—where kitchen, dining, and living areas blend seamlessly. It’s a space made for connection, conversation, and effortless entertaining.
- Say goodbye to clutter and hello to convenience. The mudroom acts as a stylish buffer between the outdoors and indoors, keeping the rest of the home pristine while offering smart storage solutions.
- A welcoming front porch and breezy patio invite you to savor the outdoors. Whether sipping morning coffee or hosting sunset soirées, these spaces extend your living experience into nature’s embrace.
- The loft is your wildcard—an adaptable space ready to become a playroom, studio, media lounge, or quiet reading nook. It’s the bonus that makes this home truly yours.
- Elevate your mornings with a private balcony—your personal perch for sunrise views, fresh air, and quiet reflection. It’s a luxurious touch that adds both style and serenity.
- More than just parking—this 529-square-foot attached garage offers secure storage, workshop potential, and seamless access to the home. It’s convenience wrapped in curb appeal.
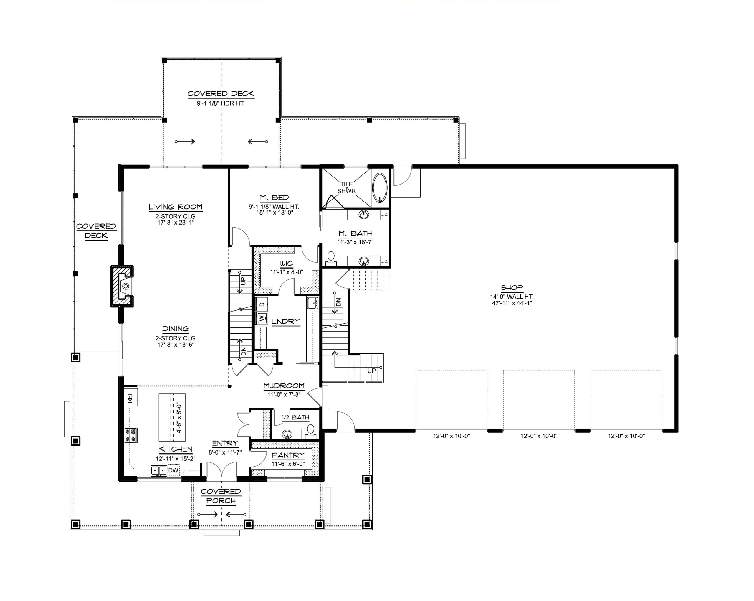
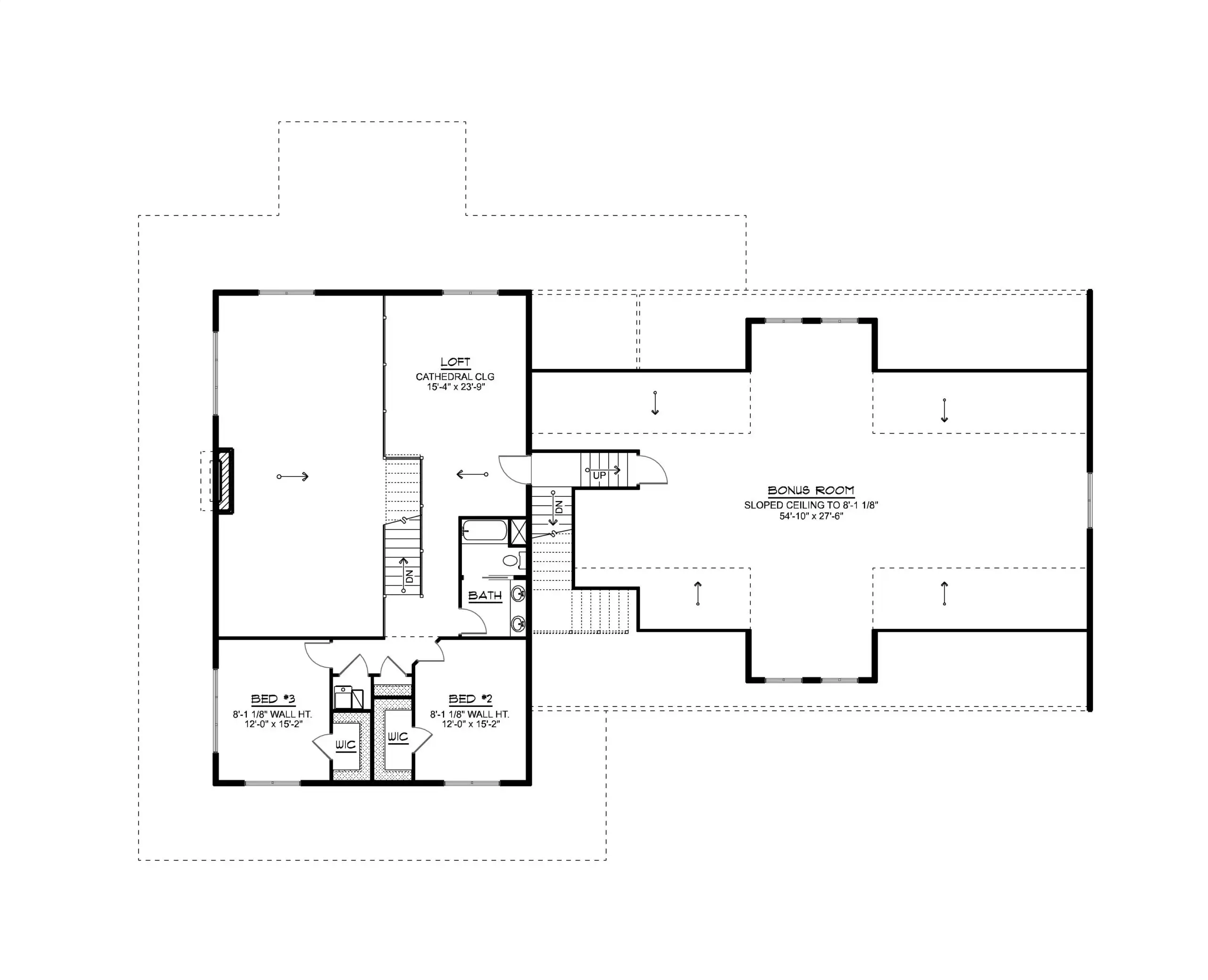
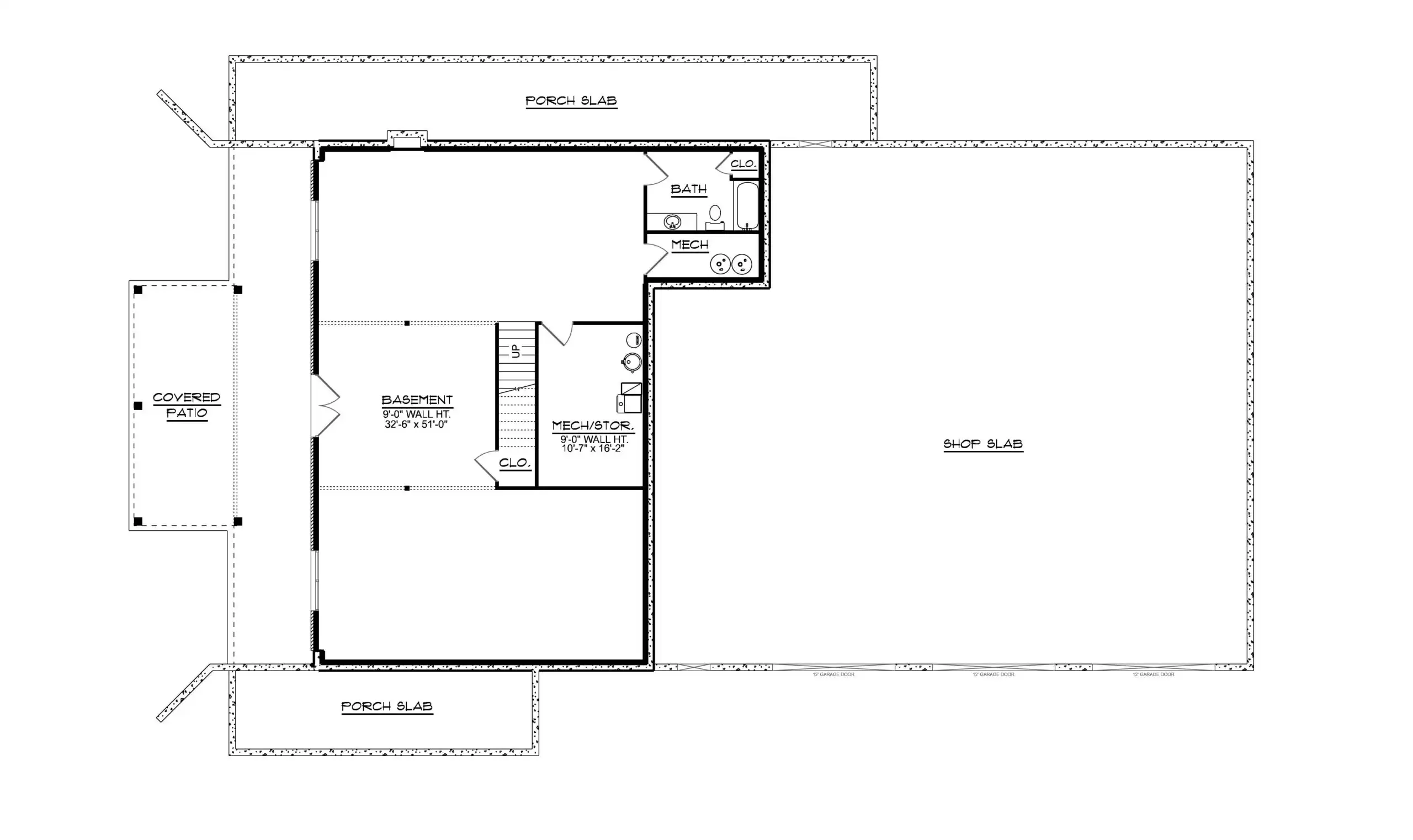
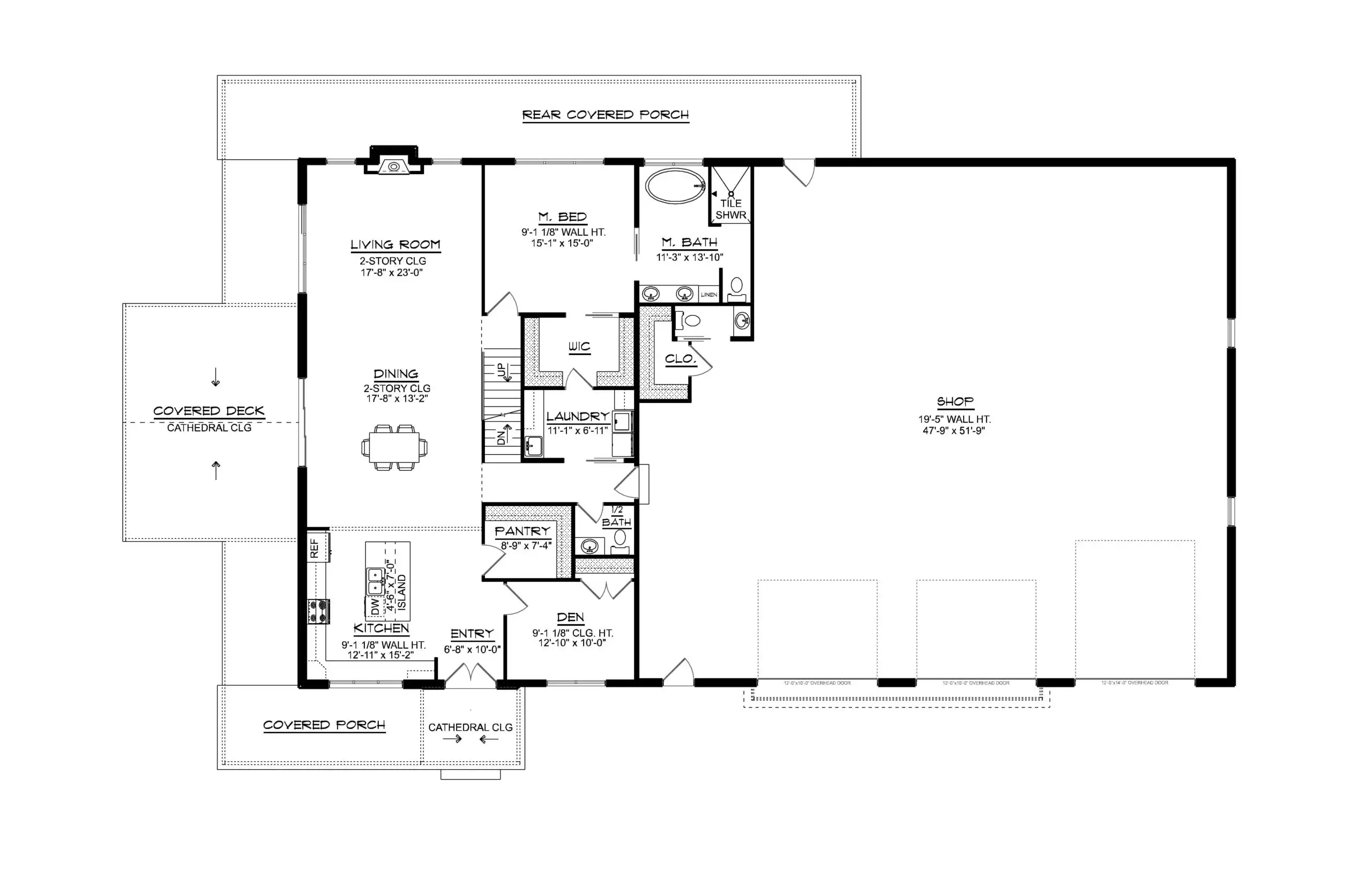
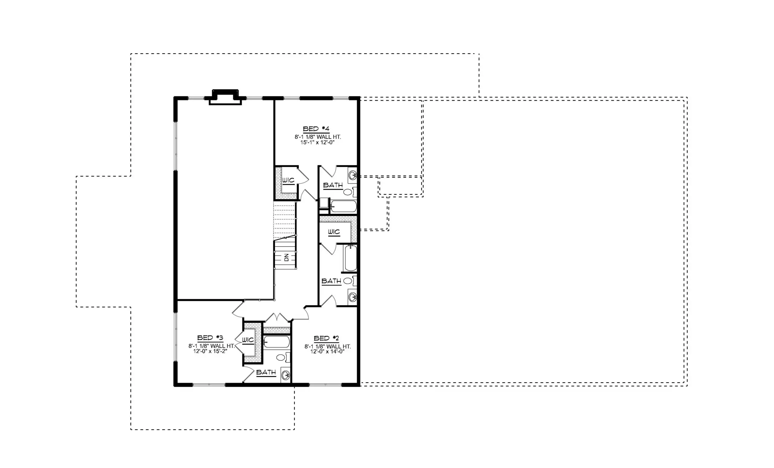
BG-20001-C Meridian Barndominium House Plan
- 3055 Heated square feet
- 3 bedrooms
- 2.2 bathrooms
- Two Story
- Loft
- Open Concept
- Den
- Covered porch
- 3026 sq ft Attached Shop
- Spacious and well-appointed, this home offers an expansive footprint to comfortably accommodate every aspect of your life.
- Unwind in three serene bedrooms, each providing a peaceful retreat designed for ultimate comfort and privacy.
- Enjoy the convenience and luxury of two full bathrooms and two additional powder rooms, ensuring effortless living for residents and guests alike.
- Embrace the classic elegance and functional separation of a two-story design, creating distinct zones for social and private life.
- Discover the perfect, flexible space in the loft—a blank canvas for a secondary family room, a home gym, or a dedicated hobby area.
- Experience a seamless flow between the main living spaces, fostering connection and making entertaining a pure delight.
- Settle into the quiet comfort of a dedicated den, a perfect space for a private library, media room, or a cozy, quiet retreat.
- Extend your living space outdoors with a welcoming covered porch, ideal for al fresco dining or simply relaxing with a view.
- Unleash your passion in an enormous attached shop, offering an unprecedented amount of space for your workshop, business, or vehicle collection, all under one roof.
BG-20013 Lawson Barndominium House Plan
- 3043 Heated square feet
- 3 bedrooms
- 2.2 bathrooms
- Two Story
- Loft
- Open Concept
- Den
- 3874 sq ft Shop
- Covered Porches
- A spacious 3,043 square feet of climate-controlled living, designed to elevate everyday moments into something extraordinary—whether you’re hosting, relaxing, or creating.
- Three thoughtfully placed bedrooms offer a perfect balance of privacy and possibility—ideal for restful escapes, guest hospitality, or a personalized retreat.
- With two full baths and two powder rooms, this home makes mornings smoother, evenings more elegant, and entertaining effortless.
- A dynamic two-level design that invites movement, light, and layered living—where each floor tells its own story.
- The heart of the home beats with openness—where kitchen, dining, and living spaces blend seamlessly to foster connection and creativity.
- A cozy den tucked just right for quiet work, bold ideas, or curling up with a good book—your personal pocket of calm.
- A jaw-dropping 3,874 square foot shop space that’s more than utility—it’s a dream zone for makers, collectors, and visionaries who need room to build, store, and explore.
- Welcoming covered porches wrap the home in charm and comfort—perfect for morning coffee, golden hour gatherings, or watching the rain roll in.
BG-20037 Fairhope Barndominium House Plan
- 3,011 Heated Sq Ft
- 4 Bedrooms (including 2 master bedrooms & a master suite)
- 2.2 Bathrooms (including J&J bathroom)
- Guest suite
- Open concept
- Mudroom
- Gym
- Shop storage
- Mech closet
- Front & rear porch
- 782 Sq Ft Garage
- 3,227 Sq Ft Shop
- A spacious 3,011 square feet of heated living offers room for multiple generations to live, connect, and thrive under one roof.
- Four bedrooms—including two master retreats and a private suite—provide tailored comfort for extended family and independent living.
- With two full baths, two powder rooms, and a Jack & Jill setup, the layout ensures privacy and convenience across household zones.
- A dedicated guest suite offers comfort and autonomy for visiting family, long-term guests, or live-in support.
- The mudroom adds practical charm, keeping shared spaces organized and transitions smooth for busy, blended households.
- A private gym space supports wellness for all ages—perfect for morning routines, rehab, or family fitness.
- Dedicated shop storage keeps tools, gear, and supplies neatly organized for hobbyists, tinkerers, or tradespeople.
- A discreet mechanical closet ensures systems are accessible yet out of sight, preserving clean lines and functionality.
- Covered porches at both ends of the home invite outdoor relaxation and gathering, with space for everyone to enjoy.
- The 782-square-foot garage offers secure parking and storage, with room for multiple vehicles or shared equipment.
- A sprawling 3,227-square-foot shop delivers unmatched space for creative projects, business ventures, or multi-generational hobbies.
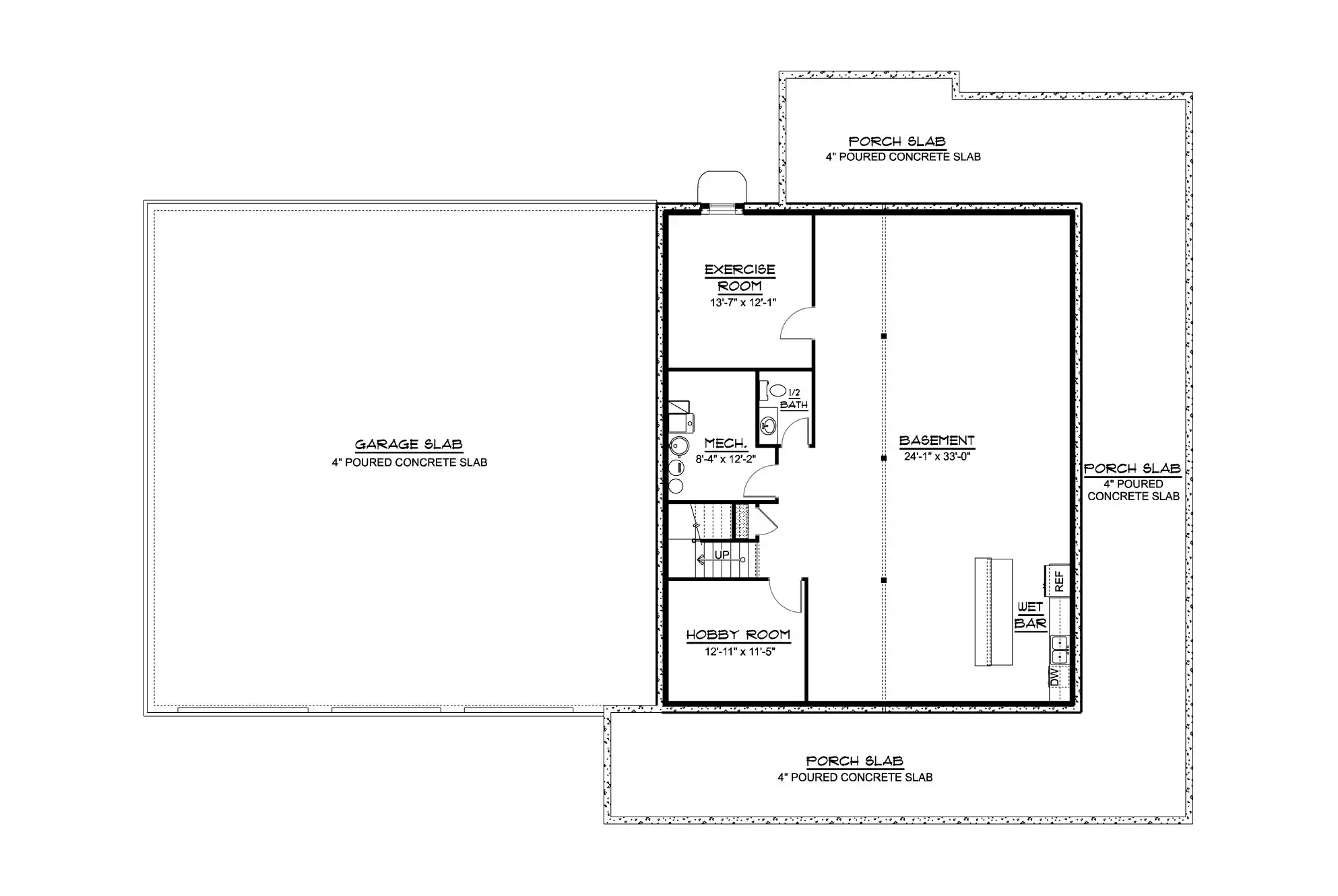
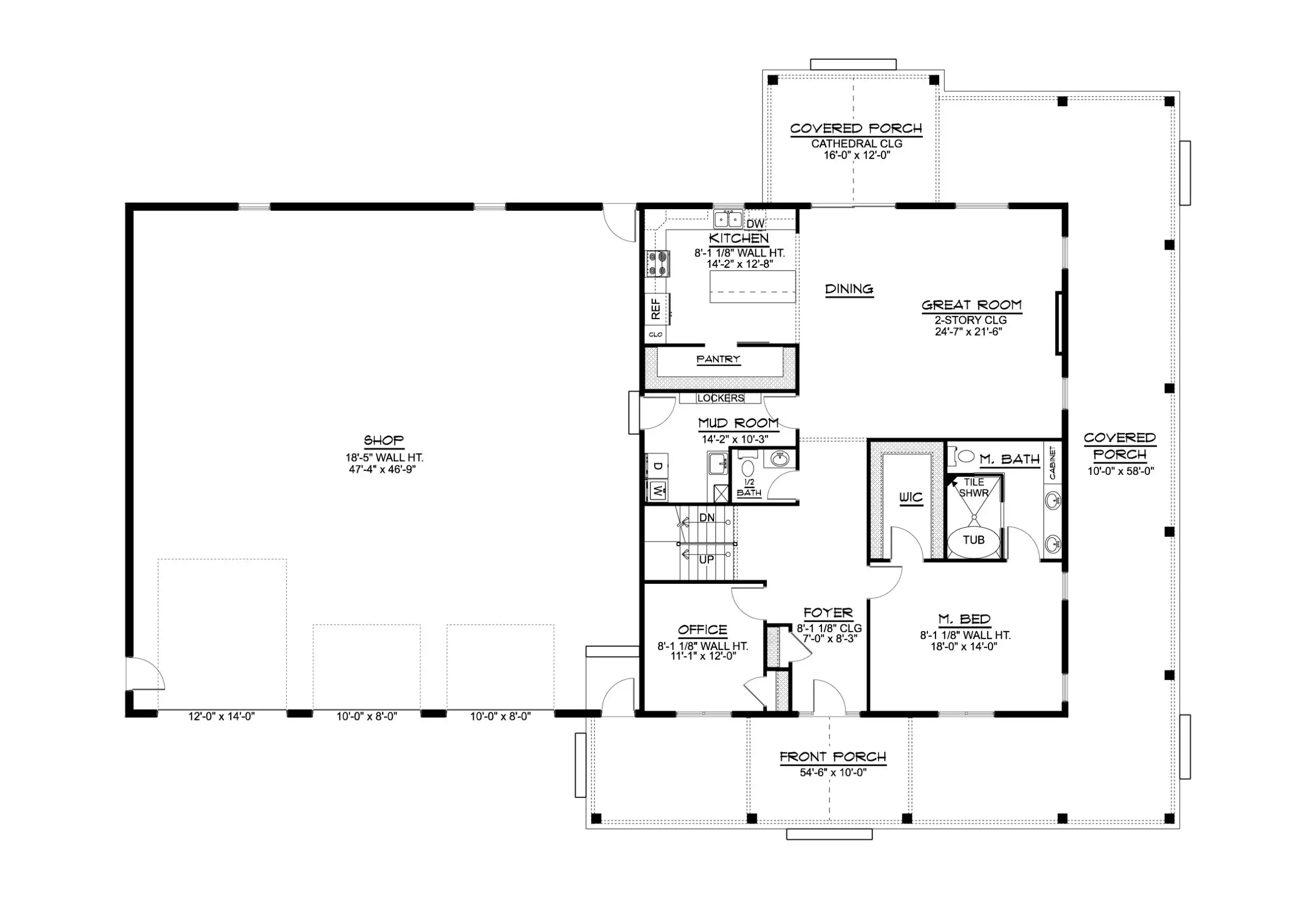
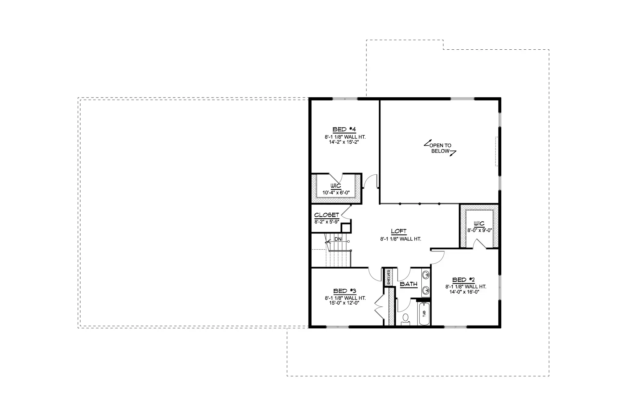
BG-20047 Ellsworth Barndominium House Plan
- 3,222 Heated Sq Ft
- 4 Bedroom
- 2.2 Bathrooms
- Two-Story
- Open concept
- Foyer
- Office
- Loft
- Mudroom
- Basement
- Bar
- Exercise room
- Hobby room
- Mechanical room
- Wraparound porch
- 2,304 Sq Ft Shop
- A spacious interior offering 3,222 square feet of conditioned living—crafted for comfort, movement, and multi-zone flexibility.
- Four private bedrooms and a mix of two full baths plus two powder rooms provide balance for family life, guest stays, and everyday ease.
- A welcoming entry that sets the tone—graceful, intentional, and perfectly positioned to guide guests into the heart of the home.
- A dedicated workspace designed for focus and flow. Whether for remote work, study, or creative pursuits, this office offers quiet separation without feeling isolated.
- A practical buffer between outdoors and in. Drop your gear, sort your shoes, and keep the rest of the home clean and organised.
- The basement unfolds as a multifunctional retreat—featuring a built-in bar for entertaining, a dedicated exercise room, a hobby space for creative pursuits, and a mechanical room for streamlined maintenance.
- A classic architectural feature that invites connection and curb appeal—circling the home with charm, shade, and space to pause, greet, or gather.
- A supersized shop offering 2,304 square feet of utility, workspace, and storage. Whether for vehicles, tools, or creative projects, it’s a multifunctional extension of the home.
BG-20060 Newport Barndominium House Plan
- 3,079 Heated Sq Ft
- 3 bedrooms
- 2.1 bathrooms
- Two Story
- Open Concept
- J&J bathroom
- Loft
- Attic
- Mech/storage room
- Wraparound porch
- 2,600 Sq Ft Garage
- This home offers 3,079 square feet of conditioned space—designed with balance, flow, and flexibility in mind.
- Bedrooms two and three share a thoughtfully designed Jack & Jill bath—ideal for siblings, guests, or streamlined morning routines.
- Accessed via stairs from the garage, the second floor includes a loft, attic, and mechanical/storage room—perfect for overflow, hobbies, or future expansion.
- A full-length covered porch wraps from the front entry along one side—offering shade, charm, and a seamless indoor-outdoor connection.
- A spacious two-car garage with 2,600 square feet of total utility—providing ample room for vehicles, gear, and workshop potential.
BG-20062 Wharton Barndominium House Plan
- 3,004 Heated Sq Ft
- 3 bedrooms
- 2.2 bathrooms
- Two Story
- Loft
- Open Concept
- Covered porch
- 1,665 Sq Ft Garage
- With 3,004 square feet of conditioned living, this home offers three bedrooms paired with two full baths and two powder rooms.
- The front porch stretches generously across one full side of the home, with direct access from both the living room and master suite.
- A spacious three-car garage with over 1,600 square feet of utility—complete with a mechanical closet and half bath for workshop convenience or post-yard cleanup.
BG-20068 Emerson Barndominium House Plan
- 3,226 Heated Sq Ft
- 3 bedrooms
- 2.1 bathrooms
- Single Story
- Loft
- Mudroom
- Open Concept
- Mechanical/storage room
- Wraparound porch
- 2,625 Sq Ft Shop
- This single-story layout spans 3,226 square feet of conditioned space, offering three bedrooms and a thoughtful mix of full and half baths—designed for ease, privacy, and everyday flow.
- A loft adds vertical dimension and flexible space away retreat above the main living zones.
- The wraparound porch invites outdoor living with shade and charm—circling the home to create natural transitions between entry points, views, and gathering spots.
- A spacious 2,625 square feet shop with room for three vehicles and a dedicated mechanical/storage room.
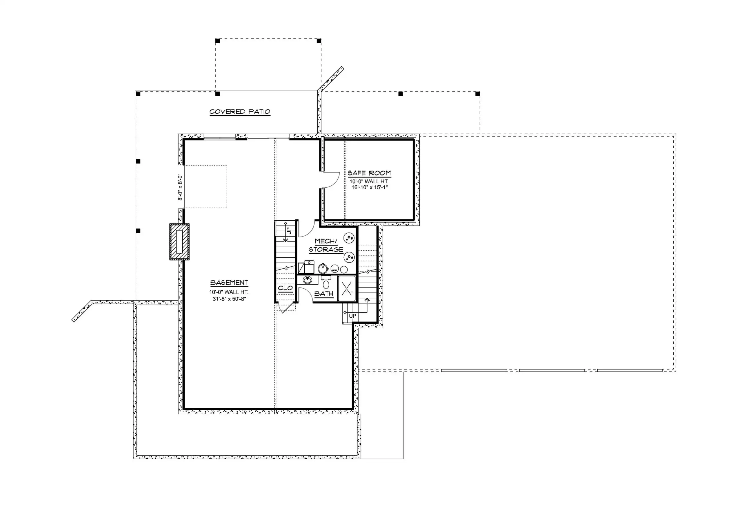
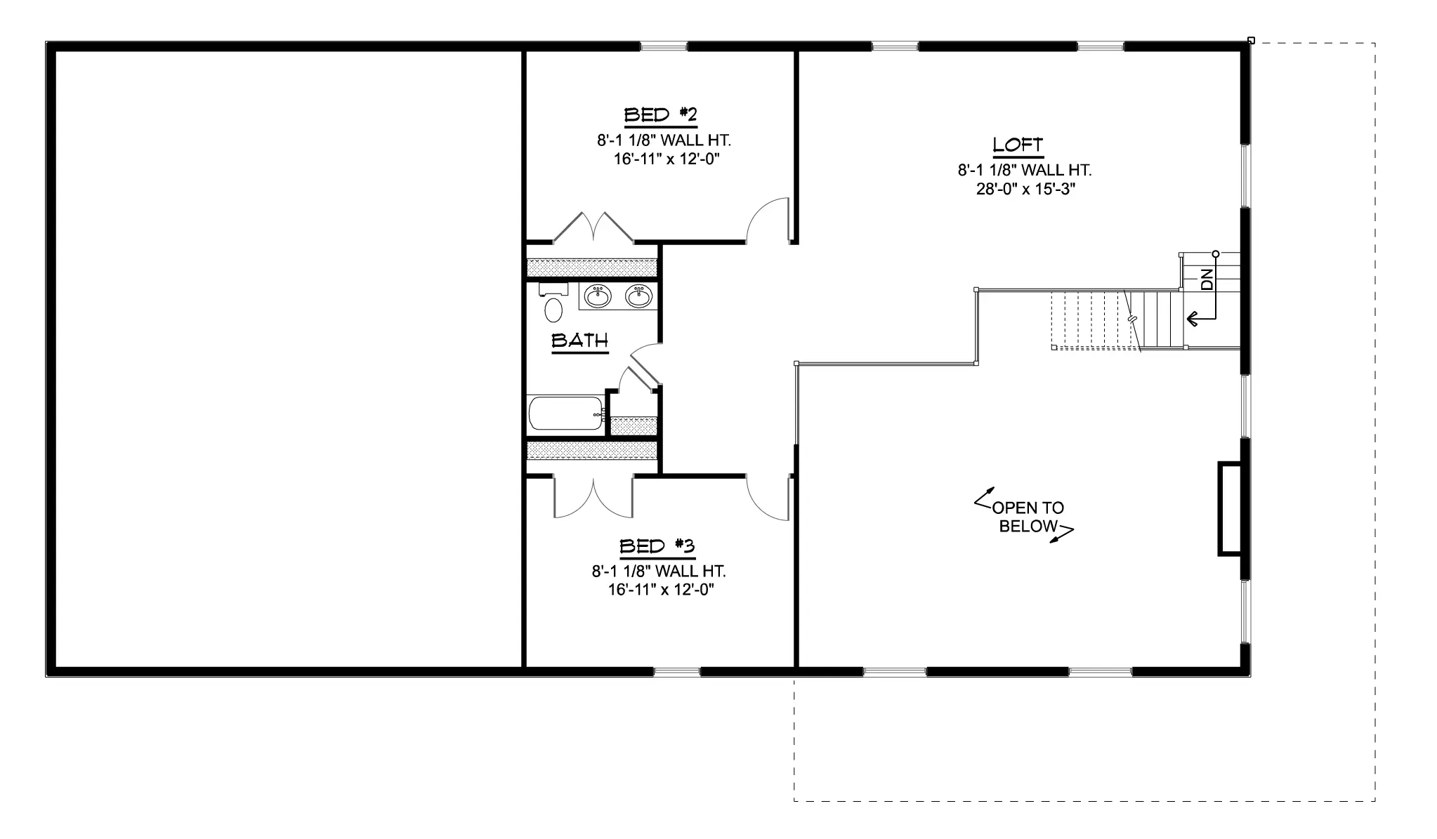
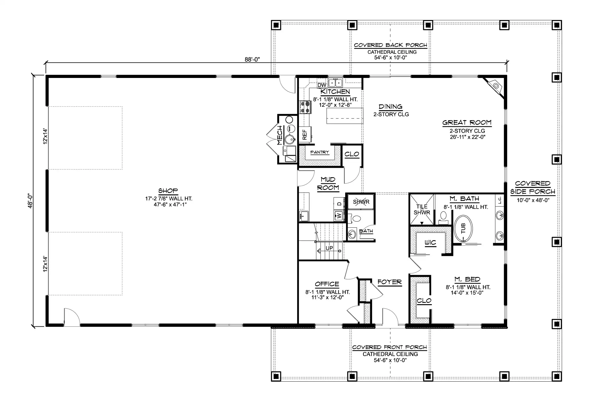
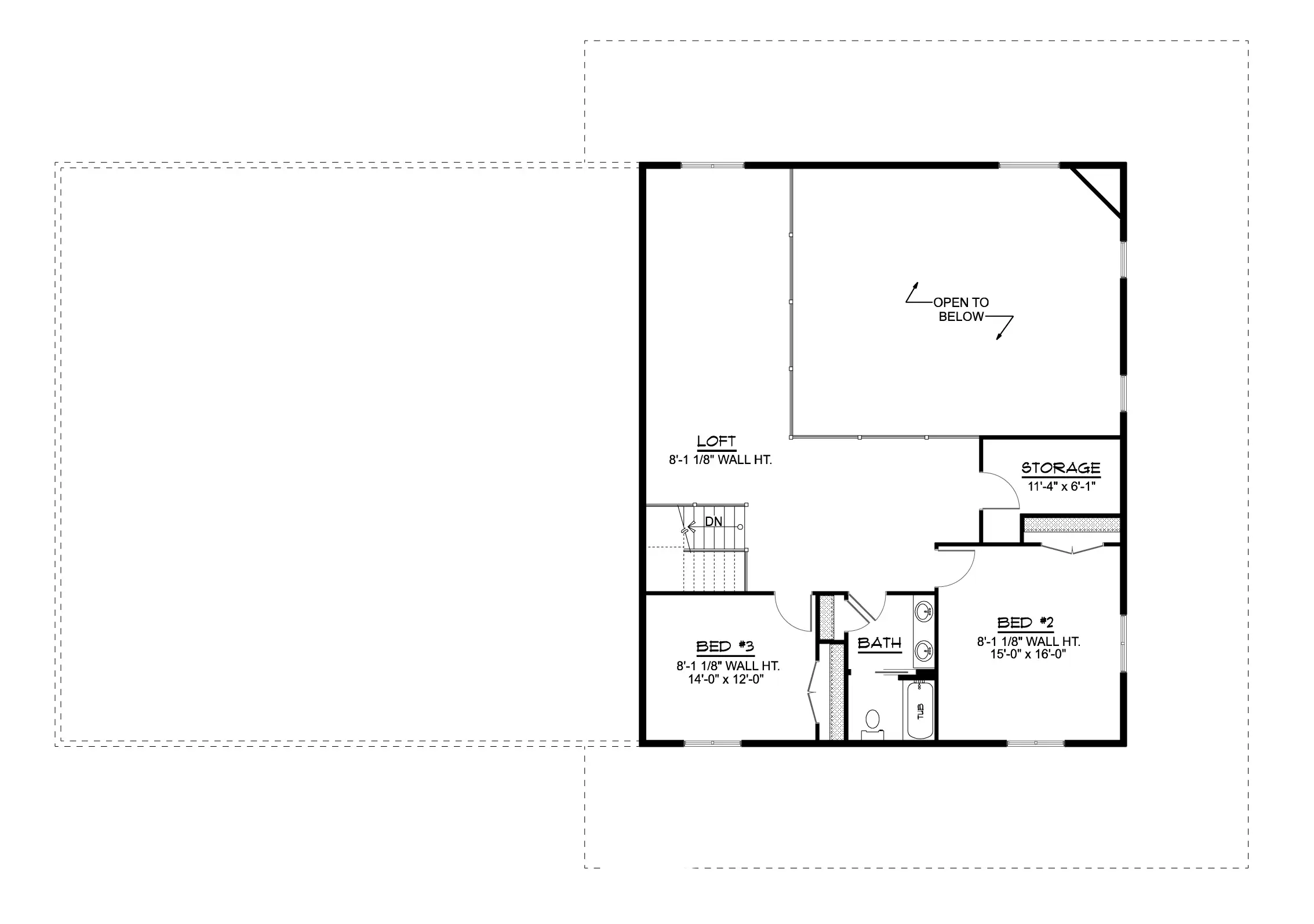
BG-20070 Kenwood Barndominium House Plan
- 3,115 Heated Sq Ft
- 3 bedrooms
- 3.1 bathrooms
- Two Story
- Open Concept
- Loft
- Mudroom
- Bonus room
- Safe room
- Mech/storage room
- Basement
- Wraparound porch
- Deck
- Patio
- 1,512 Sq Ft Shop
- This two-story layout offers 3,115 square feet with 3 bedrooms and 3.1 bathrooms.
- Upstairs, two bedrooms share a full bath alongside a loft and a spacious bonus room—ideal for play, work, guests, or creative retreat.
- The walkout basement opens to a rear patio and includes a secure safe room and mechanical/storage spaces—blending practicality with outdoor connection.
- A wraparound porch and deck form a continuous outdoor zone offering shade, charm, and seamless transitions between front, side, and rear living.
- A 1,512-square-foot shop with room for three vehicles—designed for storage, tinkering, or weekend projects, with space to move and room to grow.
BG-20071 Lincoln Barndominium House Plan
- 3,033 Heated Sq Ft
- 3 bedroom
- 2.1 bathrooms
- Two Story
- Loft
- Open Concept
- Office
- Mudroom
- Covered porch
- 1,200 S Ft Garage
- This 3,033-square-foot layout offers three bedrooms and a mix of full and half baths—designed for comfort, privacy, and seamless daily living.
- A private office at the back of the home offers a quiet retreat for focused work, creative projects, or flexible use—away from the main living zones.
- A covered front porch that wraps to the side creates a welcoming outdoor zone—ideal for morning coffee, shaded lounging, or casual curb appeal.
- A 1,200-square-foot garage provides space for two vehicles with room to spare for storage, tools, or weekend gear—functional and easy to access.
BG-20088 Faith Barndominium House Plan
- 2,826 Heated Sq Ft
- 3 bedrooms
- 2.2 bathrooms
- Two Story
- Open Concept
- Loft
- Den
- Covered Porch
- 1,600 Sq Ft Garage
- This two-level layout spans 2,826 square feet of conditioned space—offering three bedrooms and four baths
- A dedicated den near the front entry provides a quiet retreat for work, reading, or creative use—tucked away yet easily accessible.
- The covered front porch wraps around to the side of the home and connects to the living room—creating a seamless indoor-outdoor experience with shaded lounging space.
- This spacious garage accommodates two vehicles and includes a half bath and mechanical closet—ideal for workshop needs, gear storage, or smooth transitions from work to home.
BG-20091 Auburn Barndominium House Plan
- 3,196 Heated Sq Ft
- 4 bedrooms
- 3 bathrooms
- Single Story
- Open Concept
- Office
- 2 kitchens
- Utility room
- Panel shop
- Front & rear porch
- RV Bay
- 3,264 Sq Ft Garage
- The single-level layout offers 3,196 square feet of conditioned space—designed for comfort, privacy, and seamless flow across four bedrooms and three full baths.
- Located on the far right wing, the office suite includes a spacious work area, its own kitchenette, a private bedroom, and full bath—ideal for remote work, guest stays, or multi-generational living.
- A modest front porch welcomes guests, while the expansive rear porch stretches across the living and dining areas—perfect for outdoor entertaining or quiet afternoons.
- Integrated into the garage wing, the RV bay offers dedicated space for oversized vehicles—ideal for travel-ready households or long-term storage.
- This oversized garage includes space for two vehicles, a utility room, and a dedicated panel shop—designed for hands-on projects, gear storage, and operational efficiency.
BG-20097 Colby Barndominium House Plan
- 3,052 Heated Sq Ft
- 4 bedrooms
- 5.2 bathrooms
- Two Story
- Open Concept
- Den
- Mech/Storage room
- Walkout basement
- Wraparound porch
- Patio
- Deck
- 3,009 Sq Ft Garage
- This spacious two-level layout offers 3,052 square feet of conditioned space across four bedrooms, five full baths and two convenient half baths.
- The lower level includes a finished basement with direct outdoor access, a full bath, mechanical room, and closet—ideal for recreation, guests, or future expansion.
- Outdoor living is maximized with a wraparound porch, covered deck, and rear patio—perfect for entertaining, relaxing, or enjoying the view from every angle.
- This expansive shop offers space for multiple vehicles ideal for hobbyists, gearheads, or hands-on projects.
BP-2001-R Robert Barndominium House Plan
- 3194 Heated square feet
- 34×66 living space dimension
- 4 Bedrooms
- 3.2 Bathrooms
- Open concept
- Guest Suite
- Butler’s pantry
- Mudroom/Laundry area
- 1852 Sq Ft Detached Garage
- Breezeway
- Front & rear porch
- Patio with Outdoor Kitchen
- A spacious canvas of over 3,100 square feet, thoughtfully conditioned for year-round comfort. Every square foot is designed to support both grand entertaining and quiet retreat.
- A wide, balanced footprint measuring 34 by 66 feet offers architectural symmetry and interior flexibility—ideal for curated layouts and seamless flow.
- Four distinct sleeping quarters, each with its own rhythm and privacy. Whether hosting guests, growing a family, or creating multifunctional zones, these rooms adapt with grace.
- Three full baths and a powder room provide elegant utility across the home—ensuring comfort, convenience, and a touch of indulgence in every corner.
- A private guest suite offers autonomy and comfort for visitors or extended stays—complete with its own bath and thoughtful separation from the main living areas.
- Discreet and functional, the butler’s pantry enhances culinary flow with additional prep space, storage, and service access—ideal for hosting or everyday refinement.
- A hardworking transition zone designed for real life. This combined mudroom and laundry area offers a seamless drop-off for shoes, coats, and gear, while doubling as a laundry hub with room to sort, fold, and organize.
- This expansive detached garage offers over 1,800 square feet of versatile space—perfect for vehicle storage, workshop ambitions, or creative projects. Detached for privacy, yet seamlessly connected.
- A covered breezeway links the garage to the main home—offering architectural cohesion and sheltered passage, rain or shine.
- Dual porches frame the home with timeless charm. The front welcomes with grace, while the rear invites relaxation and outdoor living—each space crafted for seasonal enjoyment.
- Step outside and into your own alfresco haven. This patio is more than a place to sit—it’s a fully equipped outdoor kitchen designed for grilling, gathering, and savoring the moment blending culinary function with open-air charm. Durable surfaces, built-in appliances, and seamless flow from indoor to outdoor living make it a true extension of the home.
HC-24006 New Orleans Barndominium House Plan
- 3104 Heated square feet
- 4 Bedrooms
- 3 Bathrooms
- Loft
- Open concept
- Bonus Room
- This expansive floor plan offers 3104 heated square feet of luxurious living space, featuring 4 spacious bedrooms and 3 well-appointed bathrooms.
- The open concept design ensures a seamless flow throughout the home, perfect for both everyday living and entertaining.
- The loft provides a versatile space that can be customized to suit your needs, while the bonus room offers additional flexibility for a home office, gym, or playroom.
PL-60703 Sparrow Barndominium House Plan
- 3020 Heated square feet
- 4 Bedrooms
- 4 Bathrooms
- Office
- 1 Story
- This property boasts 3020 heated square feet of living space, perfect for a spacious and comfortable lifestyle.
- With 4 bedrooms and 4 bathrooms, there is ample room for a growing family or hosting guests.
- The home features an office, providing a designated space for work or study.
- This single-story home offers convenient living and an inviting atmosphere for all.
PL-61002 Penny Barndominium House Plan
- 3200 Heated square feet
- 1200 square feet attached garage
- 5 bedrooms
- 2 bathrooms
- 1 Story
- Open Concept
- The Penny barndominium house plan is 3200 heated square feet and features 5 bedrooms and 2 bathrooms with an attached 1200 square foot garage.
- As you enter this house plan you are greeted into a large family room, dining room, and kitchen area.
- The kitchen is large and great for entertaining, especially with the large center island.
- The master bedroom is spacious with an ensuite bathroom, and his and her closets.
- With 4 additional bedrooms, there is plenty of room for other members of the family and even guests to stay. There is a shared bathroom that is found next to bedrooms 3 and 4.
- As you enter through the large garage you will find yourself in the laundry room to clean up after a long day in the yard.
PL-62205 Whiting Barndominium House Plan
- 3100 Heated square feet
- 4 bedrooms
- 3 bathrooms
- 1 Story
- Playroom
- Office
- Open Concept
- The Whiting barndominium house plan is 3100 heated square feet and features 4 bedrooms and 3 bathrooms.
- As you enter this barndominium house plan you are greeted by a spacious entry, dining room, family room, and kitchen. The space is open and inviting perfect for gathering friends and family together.
- The kitchen is a nice size with a larger island perfect for food prep, washing dishes, and serving food. Just off the kitchen, you will find a walkin pantry that is plenty big for storing small appliances and food.
- The master bedroom is the perfect size with a large ensuite bathroom and master walk-in closet.
- The 3 secondary bedrooms all have plenty of closet space and share the 2 additional full bathrooms.
- The office is just off the kitchen. It is perfect for working from home or a great place for the kids to catch up on homework.
- If you have kids, the playroom is a great addition to the Whiting house plan. If you don’t have kids or they have outgrown playrooms, it is a great TV spot, or hangout for teens.
- From the front porch and the back patio, you can take in the fresh air and beautiful views, and there is plenty of room to sit and eat outside.
PL-62304 Wolfe Barndominium House Plans
- 3226 Heated square feet
- 757 square feet attached garage
- 4 bedrooms
- 4 bathrooms
- 2 Story
- Loft
- Jack and Jill Bathroom
- Open Concept
- The Wolfe barndominium house plan is 3226 heated square feet and features 4 bedrooms, 4 full bathrooms, and an attached 757 square foot attached garage.
- As you enter the home, you’ll immediately notice the spacious great room, which is perfect for entertaining guests or simply relaxing with family.
- On the other side of the great room is the family room, which features its own bathroom and a stairway leading to the second floor. It is cozy and perfect for unwinding after a long day. This space is also perfect for a downstairs playroom if you choose.
- The standout feature of this barndominium is the large kitchen and dining areas. The kitchen is larger and spacious and has plenty of counter space making it a great place for cooking and entertaining. An added bonus is the large butler’s pantry just off the kitchen.
- Located downstairs, you’ll find the huge master bedroom, complete with its own bathroom and closet. This is a great space for privacy and relaxation, and you’ll love the comfort and convenience of having your own master suite. A special feature of this master bedroom is a door where you can access the shop which is the perfect place for working on projects or storing tools.
- The 3 secondary bedrooms are located upstairs. All of them have nice-sized closets. Bedroom 3 has its own private bathroom while bedrooms 1 & 2 share a convenient jack and jill bathroom.
- The garage is a spacious 757 sq ft, providing ample space for your vehicles and storage needs. The garage also connects to the shop, making it easy to move between the two spaces. And with a total of 163 sq ft of shop space, you’ll have plenty of room to work on your hobbies or projects.
- With a front and back porch, there is plenty of space outside to enjoy the great outdoors as you soak it all in.
PL-62307 Sunnyside Barndominium House Plans
- 3063 Heated square feet
- 969 square foot attached shop
- 5 bedrooms
- 3 bathrooms
- 1 Story
- Craft Room
- Jack and Jill bathroom
- Open Concept
- The Sunnyside barndominium house plan is 3063 heated square feet and features 5 bedrooms, 3 full bathrooms, and an attached 969 square foot attached shop.
- As you enter the Sunnyside barndominium house plan you’ll be greeted by an open and airy living area. The living room seamlessly flows into the kitchen, which features plenty of counter space, a convenient island, and a corner pantry.
- The master bedroom is spacious with an ensuite bathroom and a large master closet.
- There are 4 secondary bedrooms throughout the home. Each with its own closet ensuring that there is plenty of space for everyone. Bedrooms 2 & 3 share a jack-and-jill bathroom while the other rooms share a convenient hall bathroom.
- One of the standout features of this property is the craft room and the shop which can be accessed off the main living area of the home. This room has a good-sized closet for storage and organization.
- The attached shop is large ( 969 square feet) allowing for plenty of room to work or play.
- The laundry room is convenient and provides a space to enter the home from the shop.
- The front porch is the perfect area to sit outside and enjoy everything that nature has to offer.
PL-62504 Cameron Barndominium House Plan
- 3,242 Heated Square Feet
- 3 Bedrooms
- 3 Bathrooms
- Two-story design with loft
- Open-concept living area
- Front porch spanning 50 feet
- Attached 2,000 sq. ft. garage/shop
- Dedicated pantry and storage spaces
- Mudroom & laundry area
- Spacious master suite with dual closets
- This thoughtfully designed home offers 3,242 square feet of heated living space, blending modern functionality with classic barndominium charm. The three well-sized bedrooms provide ample space for family members or guests, each designed to maximize privacy and comfort.
- With three full bathrooms, the home ensures convenience and ease, featuring modern finishes and ample space for everyday use. The two-story layout includes a loft area, adding versatility for additional living space, a home office, or recreational use.
- A large open-concept living area seamlessly connects the kitchen, dining, and family spaces, creating a perfect environment for entertaining or relaxing. The expansive front porch extends 50 feet, offering a welcoming outdoor retreat to enjoy fresh air and scenic views.
- The attached 2,000-square-foot garage and shop space provide plenty of room for vehicles, storage, and hobby areas, catering to both practical and recreational needs. Additional features like a walk-in pantry, dedicated storage spaces, and a mudroom enhance everyday convenience.
PL-62511 Morgan Barndominium House Plan

- 3150 Heated square feet
- 5 bedrooms
- 4 bathrooms
- 2 Story
- Loft
- Craft Room
- Jack and Jill Bathroom
- Open Concept
- The Morgan barndominium house plan is 3150 heated square feet and features 5 bedrooms and 4 full bathrooms.
- The main floor features a well-designed layout, with a huge open-space family room, dining area, and kitchen that create a warm and inviting atmosphere.
- As you enter the kitchen you can’t help but notice the huge pantry that is plenty big for storing small appliances and food.
- The master bedroom is spacious and even includes its on door to the back. This room also has a nice-sized master bathroom and closet as well.
- There is one secondary bedroom downstairs with a convenient full bathroom right across the hall.
- A craft room is on the main floor, providing a dedicated space for creative pursuits or hobbies. Of course, this would make a great office as well if you choose.
- As you make your way up the stairs you will find three more secondary bedrooms. 2 bedrooms share a decent size jack and jill bathroom. The other bedroom upstairs is large with a walk-in closet and huge bathroom almost creating the space of a second master bedroom on the second floor.
- There is an upstairs living room perfect for watching TV or even turning the space into a teenage hangout or playroom.
PL-62515 Isabel Barndominium House Plan
- 3130 Sq Ft Heated Living Space
- 3 Bedrooms
- 3.1 Bathrooms
- Attached 3-Car Garage
- Garage Storage Room
- Utility Room
- 2 Offices
- Discover spacious luxury in this stunning home boasting 3,130 square feet of heated living space, offering room to breathe and relax.
- With 3 generously sized bedrooms, there’s ample space for everyone in the family to unwind and recharge.
- Enjoy the convenience of 3.1 bathrooms, ensuring that every member of the household has their own private oasis.
- The attached 3-car garage not only provides shelter for your vehicles but also adds convenience to your daily routine.
- A dedicated garage storage room means that everything from tools to holiday decorations can be neatly organized and out of sight.
- The utility room offers practicality and efficiency for laundry and household tasks, keeping your living spaces clutter-free.
- Two separate offices, thoughtfully designed for him and her, offer the ideal work-from-home solution in a comfortable and productive environment.
PL-62519 Walter Barndominium House Plan
- 3,072 Heated Square Feet
- 1 Story
- 4 Bedrooms
- 4 Bathrooms
- Craft Room
- Office
- Shop
- Enjoy the spacious and cozy living in this 3,072 square feet home that is perfect for families who love to entertain and relax in comfort.
- This one-story home offers convenience and accessibility for all ages and abilities. No stairs to climb, no hassle to move furniture, and no wasted space.
- This home has four bedrooms that can accommodate your family and guests.
- This home has four bathrooms that are modern and functional. Each bathroom has a vanity, a toilet, and a shower or a tub.
- This home has a craft room that is ideal for your hobbies and projects.
- This home has an office that is perfect for your work and study needs and also has a door that can be closed for privacy and quietness.
- This home has a shop that is great for your DIY and repair activities. The shop also has a garage door that can be opened for ventilation and access.
PL-62522 Noah Barndominium House Plan
- 3230 Heated square feet
- 4 Bedrooms
- 3 Bathrooms
- 1 story
- Office
- Mudroom
- Front and back porch
- The 3230-heated square feet house plan offers spacious and comfortable living, with ample room for a family to grow and entertain. With its generous square footage, this house plan provides the versatility to accommodate various lifestyles and needs.
- A spacious 4-bedroom house plan designed for modern living. This thoughtfully crafted layout features four well-appointed bedrooms, offering flexibility and comfort for families or individuals seeking extra space for guests or a growing family.
- This thoughtfully designed home features three well-appointed bathrooms, providing ample space and privacy for the entire household. Each bathroom is crafted with modern fixtures and elegant finishes, creating a comfortable and aesthetically pleasing environment. Whether it’s the master ensuite or a shared guest bathroom, this house plan ensures convenience and sophistication for all occupants.
- Introducing a charming and compact 1-story house plan designed for modern living. This thoughtfully laid-out design features an open floor plan, maximizing space and natural light. The seamless flow from the living area to the kitchen creates a welcoming ambience for gatherings and daily activities. With a focus on simplicity and efficiency, this 1-story house plan embodies convenience and comfort for its residents.
- The house plan features a practical mud room, providing a dedicated space for removing and storing outdoor gear to keep the main living areas clean and organized. Additionally, this plan includes a thoughtfully designed office space, perfect for work or study, offering a quiet and productive area within the comfort of the home. These features enhance both the functionality and convenience of the living space, catering to modern lifestyle needs.
- Introducing the perfect blend of indoor comfort and outdoor relaxation! This house plan features a front porch, providing a charming space to welcome guests, and a spacious back porch, ideal for enjoying the outdoors in privacy.
PL-62839 Wilkerson Barndominium House Plan
- 3180 Heated square feet
- 612 square feet attached garage
- 4 bedrooms
- 3 bathrooms
- Single Story
- Open Concept
- Foyer
- Office
- Safe
- Indoor and Outdoor Fireplace
- Porch and patio
- Mudroom
- Garage
- Storage rooms
- This spacious single-story floor plan spans 3,180 heated square feet, offering a comfortable and elegant living environment.
- The open-concept layout includes 4 bedrooms and 3 bathrooms, ensuring ample accommodation for family and guests.
- Upon entering, you’re greeted by a welcoming foyer, with the office and dining area situated right at the entrance. The open kitchen flows seamlessly into the living area with cozy fireplace.
- The home also includes a mudroom for added convenience, a safe for secure storage, and a generous back porch and a front patio with an outdoor fireplace area ideal for outdoor relaxation and entertaining.
- The breezeways on both sides of the house serve as 2-car garages, each with additional storage rooms on both ends.
PL-64003 Vivian Barndominium House Plan
- 3292 Heated square feet
- 3 Bedrooms
- 2.1 Bathrooms
- Two-story
- Open concept
- 679 square feet 2-car Garage
- Mudroom
- Loft
- Wraparound porch
- Fireplace
- Studio
- Attic
- This expansive living space offers an abundance of room to create lasting memories, blending luxury and comfort for a lifestyle of ease.
- Three well-appointed bedrooms provide peaceful retreats, perfect for family members or guests to unwind and recharge.
- With two full bathrooms and an additional powder room, your daily routines are streamlined, ensuring both practicality and style.
- A two-level design offers a beautiful balance of separation and connection, with private spaces upstairs and shared living areas below.
- The open layout invites seamless interaction and effortless flow, making entertaining or family gatherings a true joy.
- A spacious two-car garage provides secure parking and ample storage for vehicles, tools, or hobbies.
- Keep the rest of your home tidy with a dedicated mudroom for organizing shoes, coats, and everyday essentials.
- Embrace outdoor living with a charming wraparound porch, perfect for enjoying scenic views, morning coffee, or evening relaxation.
- The fireplace creates a cozy focal point, bringing warmth and character to your main living area.
- A dedicated studio caters to creativity, productivity, or personal projects, offering endless possibilities to make it your own.
- The attic space provides additional storage or potential for customization, ready to adapt to your evolving needs.
PL-64005 Zenith Barndominium House Plan
- 3212 heated sq ft
- 3752 sq ft Garage
- 3 Bedrooms
- 2.1 bathrooms
- Single-story
- Open concept
- Loft Porch
- Hobby room
- Office
- Spacious layout offering 3212 sq ft of comfortable, climate-controlled living space, perfect for modern family living.
- Generously oversized garage with 3752 sq ft, providing ample room for multiple vehicles, storage, and workshop needs.
- Three well-appointed bedrooms designed with privacy and comfort in mind, ensuring restful retreats for the whole family.
- Two full bathrooms and a convenient powder room, tailored for functionality and everyday luxury.
- Seamless, single-level design for ease of movement, ideal for families or individuals seeking accessibility and convenience.
- Bright, airy open-concept layout that blends living, dining, and kitchen spaces, creating the perfect environment for entertaining and connection.
- Versatile loft space, perfect for a cozy reading nook, play area, or an additional lounge to suit your lifestyle.
- Charming porch to enjoy morning coffee or evening relaxation while soaking in the outdoor ambiance.
- Dedicated hobby room located in the garage, offering an inspiring space for crafts, projects, or even fitness.
- Private, well-placed office adjoining the garage, ideal for remote work or managing personal affairs.
PL-64009 Stuart Barndominium House Plan
- 3292 Heated square feet
- 679 sq ft attached 2-car garage
- 3 Bedrooms
- 2.1 bathrooms
- 2-story
- Open concept
- Mudroom
- Studio
- Fireplace
- Attic
- Loft
- Wraparound porch
- 3,292 sq. ft. of heated living space, designed for cozy elegance.
- A spacious 679 sq. ft. attached 2-car garage, perfect for storage and convenience.
- Three thoughtfully designed bedrooms, offering restful retreats.
- 2.1 bathrooms, blending style and functionality.
- Stunning 2-story open-concept design that maximizes natural light and flow.
- A mudroom that keeps clutter at bay while adding everyday convenience.
- Private studio, ideal for work, hobbies, or artistic inspiration.
- Charming fireplace, ready to set the mood for cozy nights.
- Versatile attic space for storing memories or future expansion.
- Stylish loft that adds dimension and character to the home.
- Classic wraparound porch, blending outdoor relaxation with timeless curb appeal.
PL-64021 Damon Barndominium House Plan
- 3000 Heated square feet
- 50×60 living space dimension
- 3 bedrooms
- 2.1 bathrooms
- Single Story
- Open Concept
- Mudroom/laundry room
- Safe room
- Office
- Front & rear porch
- Stretch out, settle in, and still have room to twirl—this expansive 3000 heated square feet offers comfort that breathes. It’s space with purpose and personality.
- Three dreamy sanctuaries where rest meets design. Whether it’s a family affair or guests dropping by, everyone gets their own slice of paradise.
- Two full baths and a bonus for quick pit stops? Yes, please. Say goodbye to morning traffic jams and hello to spa-like serenity.
- No stairs, no fuss. Everything you need is just a few footsteps away—making life simpler, smoother, and stunningly accessible.
- Walls down, vibes up. This open concept brings people and possibilities together with seamless transitions and sunlight galore.
- Dirty boots? Drippy swimsuits? Toss it all in the mudroom laundry zone. It’s your cleanup command center with charm.
- Built-in peace of mind. This safe room blends security with smart design—ideal for storing valuables or weathering a storm in style.
- Remote work or creative escape? This flex-perfect office space means productivity with panache (and absolutely zero commute).
- Sunrise coffee out front, sunset wine out back. Double the porch, double the pleasure—outdoor living never looked so good.
PL-71005 Vista Barndominium House Plan

- 4 Bedrooms
- 3.1 Bathrooms
- 3179 Heated Square Feet
- 2-story
- Loft
- Playroom
- Media room
- Mudroom
- Mechanical room
- Jack and Jill Bathrooms
- Attached 3-car garage
- Front porch
- Patio
- With an expansive 3,179 heated square feet, this two-story floor plan offers ample space for your family to grow and thrive.
- Enjoy the comfort and privacy of four generously sized bedrooms, including Jack and Jill bathrooms that provide convenience and elegance. The 3.1 bathrooms ensure there’s never a wait during busy mornings.
- The loft area is perfect for a cozy reading nook or home office, while the playroom offers a dedicated space for fun and creativity. The media room is designed for ultimate entertainment right at home.
- The mudroom is ideal for keeping your home tidy, and the mechanical room ensures your household systems are easily accessible. An attached 3-car garage offers ample parking and storage space for vehicles and outdoor gear.
- Relax on the inviting front porch or host gatherings on the stylish patio, making every moment spent outdoors special.
SV-30009 Jade Custom Home Plan
- 3,106 Heated Sq Ft
- 4 Bedrooms
- 3 Bathrooms
- J&J Bathroom
- Two Story
- Open concept
- Foyer
- Butler’s pantry
- Mudroom
- Unfinished attic
- Bonus room
- Front porch & rear porch
- 585 Sq Ft garage
- A spacious interior offering over 3,100 square feet of conditioned living—crafted for comfort, flow, and flexibility across every zone.
- Four well-placed bedrooms and three full baths provide privacy and ease for families, guests, and evolving lifestyles.
- A shared bath connects two bedrooms with thoughtful design—ideal for siblings, guests, or creating a semi-private suite with efficient flow.
- A welcoming entry that sets the tone with clarity and grace—guiding guests into the heart of the home while offering a moment of pause.
- Tucked between kitchen and dining, the butler’s pantry adds prep space, storage, and hosting ease—perfect for entertaining or everyday efficiency.
- A practical transition zone that keeps the rest of the home clean and organised. Drop your gear, sort your shoes, and move through the day with ease.
- A blank canvas above—ready for future expansion, storage, or creative transformation. Whether it becomes a studio, loft, or extra retreat, the potential is yours.
- A spacious upstairs bonus room offers flexibility for play, media, guests, or quiet escape. It’s a space that adapts to your rhythm.
- A well-sized garage with 585 square feet of covered utility—ideal for two vehicles, storage, or weekend projects.
More 3000 Sq Ft Barndominium Floor Plan Ideas
3000 Sq Ft Barndominium Floor Plans #1: PL-62730

When designing barndominium floor plans, you have to think about sleeping space. These plans include two smaller bedrooms and a large master bedroom. These are all arranged in such a way that the sleeping areas are on one side of the home. This is useful for families with different schedules who want some separation from the rest of the house.
These plans also include a large, open kitchen and dining area. This creates a wonderful illusion of space in the front room. While 3,000 square feet isn’t tiny, it still means you have to get creative. Taking advantage of space where you can will help.
3000 Sq Ft Barndominium Floor Plans #2: PL-62731

These plans also include two bedrooms and one large master bedroom with a massive walk-in closet. Making sure that you have plenty of storage space is crucial with any floor plan design. Things like a walk-in closet and walk-in pantry can work wonders for your home’s cleanliness. This way, everything can have its own place without cluttering up the home.
On top of the closet space, this plan also includes a large mudroom. Having transitional spaces like this between the outside and inside is crucial. With spaces like the mudroom, you can keep your home clean. This is especially helpful for families and people with lots of pets, who can get dirty quickly.
3000 Sq Ft Barndominium Floor Plans #3: PL-62732

It is important to remember that 3000 sq ft barndominium floor plans don’t always have a uniform shape. In some cases, you might have to deal with a long, thin layout. This plan, for example, makes good use of the space. All the bedrooms are on one side, and everything else is laid out on the other.
This plan also includes a breezeway between the home itself and the garage. On top of that, there is a mudroom and utility space in the garage. These little spaces can all have their own purpose and are all incredibly useful in their own way. Plus, they have versatility, which lets you use them however you need to.
3000 Sq Ft Barndominium Floor Plans #4: PL-62733

If you are going to make the best use of your 3000 sq ft barndominium floor plans, you have to think about separation. These plans include a hallway system that separates the bedrooms from the rest of the home. While this may take up some space in the home, it can be well worth it when it comes to functionality.
Most of the space in these 3000 sq ft barndominium floor plans is taken up by the large living and dining area. This is a great, opulent space that is perfect for gatherings and large families. There is also a half bathroom right off the living room for guests.
3000 Sq Ft Barndominium Floor Plans #5: PL-62734

When designing your 3000 sq ft barndominium floor plans, it is a good idea to think about your bedroom space needs. For some families, you may not need much in the way of bedroom space. This is especially true if you have older children who are going to be headed off to college soon.
These plans have two larger bedrooms and two smaller ones located on different sides of the home. If these smaller rooms aren’t being used for some reason, they can be turned into offices or guest rooms. This kind of versatility is crucial for any dynamic family.
3000 Sq Ft Barndominium Floor Plans #6: PL-62735

If you don’t think that you need as much living space or as many common areas, these 3000 sq ft barndominium floor plans are a great option. While some of the dining and living space is shrunk, there are five bedrooms and a large attached garage. Depending on your needs, this could be a much better layout.
These plans include a mudroom that sits between the garage and living space. There is also a utility space and a bathroom in this same transition. Having these spaces there can help you reset for the day when you come home from work and keep your home as organized as possible.
3000 Sq Ft Barndominium Floor Plans #7: PL-62736

3000 sq ft barndominium floor plans don’t always have to be limited to one story. These plans, for example, include two levels, both of which have bedrooms. This is perfect for families who have guests over and want some separation between the sleeping areas.
This plan is also unique in the way that it incorporates a fireplace as a separation point. With the fireplace between the kitchen and the living room, you get some delineation between the two areas. However, the lack of walls makes it feel open enough to be spacious and comfortable.
3000 Sq Ft Barndominium Floor Plans #8: PL-62737

One of the most modern and stylish ways to incorporate all your needs in 3000 sq ft barndominium floor plans is to use a loft layout. These plans include a second floor in a loft configuration. This allows for five bedrooms throughout the whole home, which can be incredibly convenient.
The nice thing about a loft layout is that it doesn’t feel completely closed off. You still get some audible access to the upstairs and downstairs, and it feels much more open. This is great for people with kids who want to be able to know where they are and what they are doing at all times.
Conclusion
If you want to make the most of your 3000 sq ft barndominium floor plans, it’s important to know what is possible. By using these plans, you can create the home you have been dreaming of. Meeting your needs and building something you can be proud of is crucial whenever you take on a project like a barndominium build.
If you would like more guides like this one, check out the rest of BarndominiumLife.com. There, you will find more helpful tips and tricks from the pros.
You will also find featured barndominiums, stock barndominium house plans, custom barndominium house plans, and information on financing and insurance.
Just starting out? Check out the Barndominiums Made Easy Program. It has our “How to Build Guide”, 120+ House Plans, and the Bid and Budget Tracker. Knowing as much as you can will help you get the best results for your dream home.
Find More Barndominium Floor Plans
By Bedrooms:
1 Bedroom • 2 Bedrooms • 3 Bedrooms • 4 Bedrooms • 5 Bedrooms • 6 Bedrooms • 7 Bedrooms • 8 Bedrooms
By Feature:
1-Story • 2-Story • With Garage • 2 Car Garage • 3 Car Garage • Wraparound Porch • With Breezeway • 2 Master Suites • With Loft • Multi-Family Barndominiums • Open-Concept
By Size:
Small Plans • 800 Sq Ft • 900 Sq Ft • 1000 Sq Ft • 1200 Sq Ft • 30×40 Floor Plans • 1400 Sq Ft • 1500 Sq Ft • 1600 Sq Ft • 40×40 Floor Plans • 1800 Sq Ft • 30×60 Floor Plans • 2000 Sq Ft • 2400 Sq Ft • 2500 Sq Ft • 2800 Sq Ft • 3000 Sq Ft • 3200 Sq Ft • 3600 Sq Ft • 4000 Sq Ft • 5000 Sq Ft •























































































Deborah Miller
Wednesday 13th of November 2024
Looking for 3 bedroom, 2 full and 2 half baths, 2400 square foot living and 2000+ garage.
Barndominium Life
Wednesday 13th of November 2024
https://barndominiumplans.com can help!