If you are considering building a barndominium, one of the key decisions you will need to make is the floor plan. Barndominiums have become a popular choice for homeowners who want a unique living space that combines the functionality of a barn with the comfort of a modern home. One of the most sought-after features is a barndominium floor plans with 2 master suites, which can provide both comfort and privacy for homeowners and their guests.
Page Contents
Barndominium Floor Plans with 2 Master Suites
However, designing a floor plan that includes two master suites can be challenging. There are several factors to consider, such as the size of the barndominium, the location of the bedrooms, and the overall layout of the living space. Let’s explore some of the key considerations to keep in mind when designing a barndominium floor plan with two master suites.
Barndominium Floor Plans with 2 Master Suites – Things to Consider
When designing your own floor plan, you need to take several basic elements into account. This is especially true for a family with special needs. Here are some aspects to keep in mind to ensure all those needs are met.
Lifestyle
How big is your family? This is the most important consideration in determining the number of bedrooms and whether the bathrooms should be private or to be shared. It is also the basis for defining the size of common areas, such as the living, dining and family rooms as well as the garage.
An extra master suite is ideal if you are taking care of a sick, disabled, or elderly parent. This way, they have ample space to accommodate a small dining area and a wheelchair or other medical equipment.
A master suite comes with its own bathroom and walk-in closet, which gives your loved one privacy while still being accessible to you as their caregiver. Similarly, a child with special needs might require a bigger and more private living space.
Likewise, consider the lifestyle of other family members, and designate each room as appropriate. For example, add a study room for the students and a guest room if you often have relatives or friends staying over.
Shared Household
Sometimes, an adult child may move back in with the parents. If they are already married with their own kid, then staying in their old room may not be an option. And this is where a second master suite can come in handy.
With this arrangement, both the parents and their child’s new family can enjoy privacy. The latter may still maintain some level of independence by adding small appliances to their bedrooms, such as a small fridge, a microwave, and a breakfast nook.
Traffic Flow
If your lifestyle necessitates 2 master suites, consider how your special needs affect your movement around the household.
Two families under one roof, for instance, may require two laundry areas. Or, if your elderly parent uses a wheelchair, you would need to add a ramp from the door leading to the garage. Also, you may have to install double doors for all the rooms they use.
The master suites’ location will also depend on who uses them. For two families, having the suites on opposite sides of the house is ideal. However, with an aging parent or special child, both suites situated side by side or across each other are preferred for accessibility.
Closets and Storage
For families with special needs, organization and tidiness are critical. Keeping items inside closets, cabinets, and drawers lower the risk of accidents. Having enough of these storage spaces, and placing them strategically, also saves time in looking for basic necessities used daily.
Don’t forget to assign spaces to store seasonal things, such as clothing, luggage, and travel accessories, holiday décor, and bedding. Outdoor hobby equipment like jet skis, mountain bikes, and collapsible pools may be hung on wall hooks in the garage or kept in their own shed outside the house.
When planning your storage, think outside the box. Barndominiums offer wide spaces and high ceilings, so you can maximize your floor area by utilizing the walls and ceilings.
Parking
How many vehicles do you have? Is a carport necessary for your special needs? Should a separate parking pad on the side be added? Maybe a family member is planning to purchase their own car? Does your business use service vans?
Your answers to these questions will determine the type and size of the parking space you will include in your own floor plan.
Barndominium Floor Plans with 2 Master Suites with Pictures
Residences or barndominium floor plans with 2 master suites are an emerging design that’s getting a lot of attention, and not just from families with aging parents, special kids, or dual households. Spouses may also find relief if one of them is a chronic snorer – the non-snoring partner can sleep in peace, and the afflicted don’t have to sleep on the couch.
2 Master Bedroom Barndominium Floor Plans
You may have your own personal reasons for wanting to have 2 master suites in your barndominium. This is why we’ve gathered 6-floor plans with different layouts to cater to your unique preferences.
BCO-40066 Bullchase Barndominium House Plan
- 2800 heated square feet
- 70×40 layout with a large front porch running the full width of the home
- 4 bedrooms (including two full master suites)
- 3 bathrooms total
- Single story
- Open-concept living, dining, and kitchen
- Vaulted ceilings throughout main living areas
- Spacious utility room with dedicated washer/dryer space
- Large front porch (700 sq ft) for outdoor living
- Ideal for families, shared living, or long-term guests
- This single-story barndominium delivers wide-open living with a massive 23×21 living room anchored by vaulted ceilings and seamless flow into the kitchen and dining area. With 2800 sq ft of heated space, the Bullchase offers room to spread out without sacrificing charm or simplicity.
- What really sets this plan apart is the dual master suite layout, each with its own oversized bedroom, large walk-in closet, and full bathroom. Two additional bedrooms sit on the opposite wing of the home, making the layout extremely functional for extended family living.
- The full-width 70-foot front porch creates a welcoming outdoor space for entertaining or relaxing, while the interior includes a dedicated utility room, pantry, and large foyer for everyday convenience.
PL-61101 Lizbeth Barndominium House Plan
- 1500 Heated square feet
- 2 Bedrooms
- 2.1 Bathrooms
- Single story
- Open concept
- Front porch
- This charming single-story home features an open-concept design, perfect for modern living. The layout maximizes functionality while maintaining a cozy feel.
- The plan features two spacious bedrooms, each with its own walk-in closet and private bathroom. The half bathroom conveniently serves guests.
PL-61101-Duplex Barndominium House Plan
- 1500 Heated sq ft duplex
- 30×50 living space dimension
- 2 Bedrooms
- 2 Bathrooms
- Open concept
- Single-story
- Front & Rear porch
- This 1,500 sq. ft. duplex offers ample heated living space, blending functionality with warmth.
- Featuring two generously sized bedrooms designed for relaxation and privacy.
- Two well-appointed bathrooms provide style and practicality for everyday comfort.
- An open-concept layout enhances connectivity, maximizing space and natural light.
- Enjoy the ease of single-story living ensuring accessibility and convenience.
- Front and rear porches create inviting spaces for relaxation and entertaining.
PL-62837 Hawk Barndominium House Plan
- 3854 Heated square feet
- 8 bedrooms, including 2 Masterbedrooms
- 5.1 bathrooms, including 3 Jack n Jill bathrooms
- 1 Story
- Mudroom
- Open Concept
- Attached 3-car Garage
- This stunning 3,854 sq. ft. single-story residence boasts 8 spacious bedrooms, including 2 luxurious master suites.
- Has 5.1 bathrooms, featuring 3 convenient Jack and Jill setups, there’s ample space for everyone.
- The open-concept design seamlessly connects the living, dining, and kitchen areas.
- A practical mudroom keeps things tidy, while the attached 3-car garage offers plenty of storage. Enjoy your morning coffee on the charming porch.
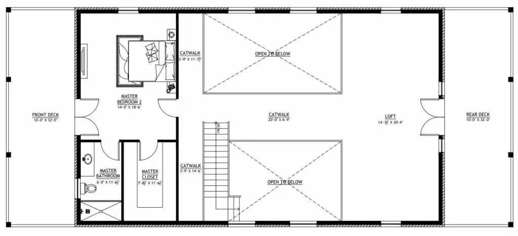
PL-64022 April Barndominium House Plan
- 2958 Heated square feet
- 32×54 living space dimension
- 3 bedrooms (2 Master bedrooms)
- 3 bathrooms
- 2 Story
- Open Concept
- Loft
- Office
- Foyer
- Front & rear porch
- Front & rear deck
- With nearly 3,000 square feet of heated living space, this home offers a generous canvas for comfort, entertaining, and personalized design.
- Two luxurious master suites provide ultimate flexibility—perfect for multi-generational living, guest accommodations, or dual-owner privacy—plus a third bedroom for family or creative use.
- Three full bathrooms offer convenience and style, each designed with thoughtful finishes and easy access from every corner of the home.
- This two-story layout separates public and private spaces beautifully, offering vertical dimension, enhanced views, and a dynamic living experience.
- The open-concept design invites light and movement, connecting kitchen, dining, and living areas into one harmonious space that adapts to any lifestyle.
- A versatile loft space adds a layer of possibility—ideal for a media room, play area, reading nook, or even a secondary office.
- A dedicated office provides a quiet, focused environment for remote work, study, or creative pursuits—tucked away yet easily accessible.
- The welcoming foyer sets the tone with a graceful entry point, offering space to greet guests and transition into the heart of the home.
- Dual porches and decks extend your living space outdoors—whether you’re sipping coffee at the front or hosting sunset dinners out back, these spaces invite relaxation and connection.
Barndominium Floor Example 2 – PL-61102

A variation of the above design, this floor plan stands on a 60’ x 40’ living area. In this concept, the 2 master suites are built side by side. It’s perfect for parents with a special child, or a small family of 3 living with an elderly grandparent or two. The open space allows for greater mobility of loved ones with medical conditions.
Barndominium Floor Plans for Small Families
Barndominium Floor Example 3 – PL-61103

When a family needs 2 master suites, whether for a child with special needs or an ill grandparent, they might have to add an extra bedroom for various reasons. It could be for a caregiver, a special education tutor, or a governess. On the other hand, if one child is already in their teenage years or working, then they can occupy this space. For added convenience, it comes with a bathroom as well.
Barndominium Floor Plans with 2 Master Suites for Large Families
Barndominium Floor Example 4 – PL-61104

The designs of Barndominium floor plans with 2 master suites and 2 extra bedrooms with a shared bathroom, can be used by especially large families. Since the smaller bedrooms are sandwiched between the suites, the barndo can be home to two households with one child each. Alternatively, this layout is perfect for a family with 3 children, especially if one has special needs.
The study at the far left of the front part of the house is great for any family member who works from home. In addition, you’ll find space for numerous closets located at strategic points. If you need a lot of storage space, then this is a good choice.
Barndominium Floor Example 5 – PL-61105

A large family wanting to build their own barndominium will love this floor plan. It maximizes the 59’ x 56’ living area by including 2 master suites, 2 bedrooms with a shared bathroom, 1 bedroom with its own bathroom, and 1 family room. All bedrooms are strategically located along the 3 sides of the house so that the common areas – living room, dining room, and kitchen are in the center.
The bedroom with its own bathroom can be the designated guest room, given that it’s placed near the front door.
Barndominium Floor Example 6 – PL-61106

Big families need big space, and this barndo may just be what they need. With 2 master suites and 3 bedrooms, it is specially designed for those who prefer their sleeping area at the back part of the home. The front door opens to an expansive dining area, with the spacious living area to the left and the roomy kitchen to the right.
Design Your Own Barndominium Floor Plans
Like what you see? Or did these sample floor plans inspire you to design your own?
You can do so even if you’re not a professional designer. Our custom design software makes it possible. By simply adding your specs to the template provided, you can draft a customized virtual floor plan with pictures in a matter of minutes.
Once you have decided on building a barndominium dream home, creating the floor plan is the first step you must take. The actual construction can be daunting, or even overwhelming. To help you make the process easier, get the Barndominium Life Program! You will get access to industry secrets and practical suggestions to make your barndo building journey a lot easier and your success is guaranteed!
Conclusion
Designing a barndominium floor plan with two master suites is a great way to add comfort and privacy to your living space. By considering factors such as the size of the barndominium, the location of the bedrooms, and the overall layout of the living space, you can create a floor plan that meets your unique needs and lifestyle.
Whether you are building a barndominium as your primary residence or as a vacation home, having two master suites can provide you and your guests with a luxurious and comfortable living experience. With the help of an experienced architect or builder, you can bring your vision to life and create a beautiful and functional living space that you will enjoy for years to come.
If you would like more guides like this one, check out the rest of BarndominiumLife.com. There, you will find more helpful tips and tricks from the pros.
You will also find featured barndominiums, stock barndominium house plans, custom barndominium house plans, and information on financing and insurance.
Just starting out? Check out the Barndominiums Made Easy Program. It has our “How to Build Guide”, 120+ House Plans, and the Bid and Budget Tracker. Knowing as much as you can will help you get the best results for your dream home.
Find More Barndominium Floor Plans
By Bedrooms:
1 Bedroom • 2 Bedrooms • 3 Bedrooms • 4 Bedrooms • 5 Bedrooms • 6 Bedrooms • 7 Bedrooms • 8 Bedrooms
By Feature:
1-Story • 2-Story • With Garage • 2 Car Garage • 3 Car Garage • Wraparound Porch • With Breezeway • 2 Master Suites • With Loft • Multi-Family Barndominiums • Open-Concept • With Shop
By Size:
Small Plans • 800 Sq Ft • 900 Sq Ft • 1000 Sq Ft • 1200 Sq Ft • 30×40 Floor Plans • 1400 Sq Ft • 1500 Sq Ft • 1600 Sq Ft • 40×40 Floor Plans • 1800 Sq Ft • 30×60 Floor Plans • 2000 Sq Ft • 2400 Sq Ft • 2500 Sq Ft • 2800 Sq Ft • 3000 Sq Ft • 3200 Sq Ft • 3600 Sq Ft • 4000 Sq Ft • 5000 Sq Ft •












Lorie
Wednesday 10th of July 2024
Hello My Family and my uncle are looking for someone who can do a home with like a Brease way and a guest home connected to it for him. So we all kinda have our own space but if he needs us we are right there. If you have anything like this could you please send me a floor plan or plans where I can see what you all can do? I appreciate your time and look forward to you getting back to me. Thank you 😊.
Barndominium Life
Wednesday 10th of July 2024
Here y'go! https://www.barndominiumlife.com/barndominium-floor-plans-with-breezeway/