These two-story barndominium floor plans with pictures will inspire you to build your dream barndominium in no time. With so many options and designs, you are sure to find the floor plan you have been searching for.
Anyone who has gone on a search for two-story barndominium floor plans knows how time-consuming and frustrating it can be. Your floor plan is incredibly important and will dictate how efficient your barndominium project will be. You can give yourself the best chance at success with the right floor plan. You can also plan a home that will work best for you and your family.
However, in this article, we have brought you some of the most amazing two-story barndominium floor plans to help get you inspired and get you thinking about your own custom dream home. Our objective is always to find some of the best of the best two-story barndominium floor plans.
Page Contents
Shop 2-Story Barndominium House Plans Here
Here Are the Amazing Two-Story Barndominium Floor Plans
BCO-40034-B Brandon Barndominium House Plan
- 2520 Heated square feet
- 30×40 living space dimension
- 3 bedrooms
- 3 bathrooms
- 2 Story
- Loft
- Open Concept
- Mudroom/Laundry
- Front porch
- Crawl Space Foundation
- Stretch out across 2,520 square feet of thoughtfully designed comfort—ample space for living, hosting, and everything in between.
- Three private retreats, each ready to echo your personal style and offer sanctuary at day’s end.
- No waiting, no compromises—three sparkling bathrooms bring convenience and polish to everyday living.
- Double the levels, endless potential—this open-concept layout lets natural light and good vibes flow from floor to ceiling.
- The ultimate transition zone—a stylish and functional mudroom keeps your living space clean and clutter-free.
- Classic charm meets curb appeal—this spacious front porch invites morning coffees, twilight chats, and endless relaxation.
HC-24007 Manhattan Barndominium House Plan
- 2670 Heated square feet
- 3 Bedrooms
- 2.1 Bathrooms
- Loft
- Open concept
- Attached 1040 Sq Ft Garage
- Bonus room
- Mudroom
- Mechanical room
- Front & back porch
- Encompassing 2670 heated square feet, this home features 3 spacious bedrooms and 2.1 stylish bathrooms.
- The open concept design ensures a seamless flow throughout the living spaces.
- The loft and bonus room offer versatile spaces that can be tailored to your needs, while the mudroom and mechanical room add practicality and convenience.
- Enjoy the luxury of an attached 1040 sq ft garage and unwind on the charming front and back porches.
HC-24008 Jackson Barndominium House Plan
- 3653 Heated square feet
- 5 Bedrooms
- 3.1 Bathrooms
- Loft
- Open concept
- Attached 1158 Sq Ft Garage
- Office
- Mechanical room
- Mudroom
- Patio
- An expansive two-story floor plan with 3653 heated square feet offering 5 bedrooms and 3.1 bathrooms, providing ample room for family and guests.
- The open concept layout on the main floor ensures a smooth flow, perfect for both everyday living and entertaining.
- The loft-style second floor adds a touch of versatility, while the dedicated office is ideal for remote work or study. Practical features like the mechanical room and mudroom enhance convenience.
- The attached 1158 sq ft garage offers plenty of space for vehicles and storage and you can enjoy the charm of the patio, perfect for relaxing and enjoying the outdoors.
LP-1010 Rockledge Barndominium House Plans
- 1760 Heated square feet
- 1440 square foot Attached 3 car garage
- 3 bedrooms
- 2 bathrooms
- 1 Story
- Safe Room
- Open Concept
- The Rockledge barndominium house plan is 1760 heated square feet and features 3 bedrooms and 2 bathrooms.
- This open-concept home provides lots of space for your family to gather in the common areas of the home.
- With a large kitchen and island, there is plenty of room for cooking and gathering as well.
- The master suite is large and allows for plenty of space within the bedroom, bathroom, and closet with a unique safe room for peace of mind.
- With a spacious attached garage, you will have plenty of room for all your cars, boats, and other toys as well as storage.
- The Rockledge Barndominium house plan has a large laundry room that even includes a storage closet for cleaning supplies which is any homeowner’s dream.
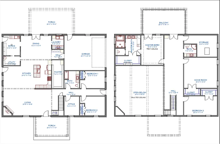
LP-1018 Woodlands Barndominium House Plans
- 5739 Heated square feet
- 561 square foot attached garage
- 4 bedrooms
- 3 bathrooms
- 2 Story
- Open Concept
- Office
- Utility Room
- Movie Room
- The Woodlands barndominium house plan is 5739 heated square feet and features 4 bedrooms and 3 bathrooms.
- This open-concept home offers plenty of space for large families, family gatherings, and more.
- The master suite is located on the second floor which provides a nice retreat from the rest of the home with a door to the balcony that overlooks the backyard.
- The secondary bedrooms are larger than average with nice size closets for storage.
- You will love that the office is tucked away off a hallway and away from the main living area of the home.
- This home features a large kitchen with the perfect amount of room for a kitchen table as well as a large island.
- The pantry is a chef’s dream with plenty of storage for food and appliances.
- On the second story, you will find a large movie room to cozy up and watch your favorite movies on a big screen.
- You will love the large storage room located upstairs.
LP-2802 Marcus Barndominium House Plans


- 2800 Heated square feet
- 1123 Attached 3 car garage
- 3 bedrooms
- 3 bathrooms
- 2 Story
- Loft
- Mudroom
- Jack and Jill Bathroom
- Office
- Open Concept
- The Marcus Barndominium house plan is 2800 heated square feet and features 3 bedrooms and 3 bathrooms with a 1123-square-foot attached garage.
- This house plan has an open-concept design that is big enough for large families to gather together. With the second story being open to below, it allows the space to feel even larger than it is.
- The master suite is located by itself to give the owners the privacy that they desire. With a large walk-in closet, there is plenty of room to hang and organize your clothes.
- The kitchen is large and spacious with a large pantry to store food and to keep your kitchen clutter-free. The island is large, making it perfect to prep, serve food, or line the kids up on barstools to eat a quick meal.
- The office is located just off the living room with double doors with an elevated look to the home.
- The two secondary bedrooms have nice-sized closets and a desirable jack-and-jill bathroom for the kids to share.
- The upstairs loft makes a great teen hangout or playroom for the kids.
LP-2803 Wickard Barndominium House Plans


- 4385 Heated square feet
- 3522 Attached 4 car garage
- 3 bedrooms
- 2.2 bathrooms
- 2 Story
- Loft
- Mudroom
- Outdoor fireplace
- Covered balcony
- Open Concept
- The Wickard barndominium house plan is 4385 heated square feet and features 3 bedrooms, 2 full bathrooms, and 2 half bathrooms.
- The open-concept floor plan allows for the whole family to feel connected when in the main living area of the home.
- An amazing feature that owners love about this home is the separate garages that are attached to the home that cover over 3000 square feet of garage space with the bigger garage having a half bath within it.
- The master bathroom has an en-suite bathroom and a large walk-in closet with an island in the middle of the closet to fold laundry or utilize as a dresser for added storage.
- There are two additional bedrooms on the first floor of this home that are perfect for kids or to create a guest room.
- The kitchen is large and spacious with an island that faces the living area so that even when you are in the kitchen you still feel connected with the family. There is a large pantry located behind the kitchen that has ample storage.
- The second story is open to the downstairs with a nice loft that has plenty of room to create a playroom or teen hangout. There is also a half bath and an extra room to create a space that fits your family.
- Off the second story is an incredible covered balcony so you can enjoy the great outdoors all year long.
- The outdoor fireplace is an added bonus with this Wickard barndominium house plan that you will fall in love with.
LP-2807 Wescott Barndominium House Plans

- 1800 Heated square feet
- 4 bedrooms
- 3 bathrooms
- 2 Story
- Loft
- Open Concept
- The Wescott barndominium house plan is 1800 heated square feet and features 4 bedrooms and 3 bathrooms.
- The open-concept design allows for plenty of space for the family to mingle and interact with one another. The main areas of the home appear even larger thanks to the vaulted ceilings.
- The kitchen is large and spacious with a large island with ample counter space and a decent-sized pantry in the corner of the kitchen.
- This plan includes several windows to allow the natural light to flow throughout the home.
- The master bedroom is spacious with a large master bathroom, shower, and stand-alone tub. The double vanity allows the couple to get ready at the same time without bumping into one another. The master also offers a large walk-in closet.
- This house plan has 3 additional bedrooms all with a nice sized closet. One of the secondary bedrooms has a private bathroom attached. The remaining bedrooms share the additional bathroom located in the hall.
- Upstairs is a nice loft ready for a home office, playroom, or anything you desire.
- The Wescott barndominium house plan has both a front and back patio so there is plenty of room to enjoy the outdoors.
LP-3206 Condley Barndominium House Plan


- 2600 Heated Square Feet
- 1800 Square Feet attached garage
- 3 Bedrooms
- 2 Bathrooms
- 1 Story
- Open Concept
- Three Season Room
- With ample room to accommodate various lifestyles, the 2600 heated square feet provide the canvas for your dream home.
- This 2600-square-foot haven seamlessly integrates modern living with practicality, offering ample room for both comfort and storage.
- Each bedroom is a private retreat, offering a sanctuary for relaxation. The two well-appointed bathrooms provide convenience and style, seamlessly integrating into the daily rhythm of your household.
- Elevate your storage solutions with the inclusion of a versatile storage loft. This ingenious addition provides a practical and space-efficient way to organize and store your belongings.
- Escape into a haven of nature with a Three Season Room, where the boundary between indoors and outdoors becomes delightfully blurred. This versatile space invites you to bask in the beauty of spring, summer, and fall while remaining comfortably sheltered.
LP-3209 Leanos Barndominium House Plan


- 4345 Heated square feet
- 4 Bedrooms
- 2.2 Bathrooms
- Loft
- Open concept
- Office
- Media Room
- Storage Rooms
- Front and back porch
- This expansive 4,345 heated square feet residence features 4 bedrooms and 2.2 bathrooms, offering plenty of space for everyone. The open-concept layout seamlessly connects the living, dining, and kitchen areas.
- The second-floor loft is a versatile space, housing both the media room and ample storage rooms, making it a great spot for relaxation and organization. The office, conveniently located near the master bedroom, provides a quiet space for work or study.
- Enjoy the outdoors with a huge front porch and a cozy back porch. This home combines thoughtful design with modern amenities to create a perfect living environment for you and your family.
PL-60707 Meadowview Barndominium House Plan

- 6500 Heated square feet
- 1638 square feet attached 4 car garage
- 8 bedrooms
- 5.1 bathrooms
- 2 Story
- Loft
- Mudroom
- Recreation Room
- Office
- School Room
- Open Concept
- 4-car Garage
- The Meadowview Barndominium house plan is 6500 heated square feet and features 8 bedrooms, 5 full bathrooms, and 1 half bathroom. Attached to the home, is a 4-car garage that is 1638 square feet.
- The Meadowview barndominium house plan is perfect for a large family as it provides versatility and plenty of space for all the needs of your family.
- The open concept area provides plenty of room for entertaining and gatehring as a family.
- The kitchen is large and spacious with plenty of counter space throughout the kitchen. The island creates even more space for prepping and serving. With a large walk-in pantry there is plenty of room for storing food and appliances to keep the kitchen looking clean and tidy.
- The master suite is large and spacious with a nice size bedroom, a large bathroom, and a closet big enough to hold all your clothes.
- Throughout the rest of the home, you will find 7 more nice-sized bedrooms (5 down stairs and 2 upstairs) all with their own closets within the room. One of the secondary bedrooms has an ensuite bathroom making it a perfect room for guests or older kids who would like a little more privacy.
- As you enter from the 4-car garage you will find a half bathroom right off the mudroom making it convenient for working or playing outside.
- The office is perfect for working from home without feeling completely separated from the family.
- As you venture up the stairs you will find the 2 additional bedrooms, a bathroom, and 2 school rooms perfect for homework or creating a homeschool classroom perfect for the kids.
- You will also love the unfinished attic that you could convert to more storage within the home.
- With a front and back porch, it invites you to take in the views from every angle while the kids play or for you to just relax.
PL-60707-K Kessler Barndominium House Plan
- 6562 Heated square feet
- 60×84 living space dimension
- 1572 sq ft 3-car garage
- 6 bedrooms
- 4.1 bathrooms
- 2 Story
- Loft
- Recreation Room
- Office
- Open Concept
- Mechanical room
- Wraparound porch
- This isn’t just space—it’s an experience. Over 6,500 square feet of pure possibility, offering luxurious comfort, generous flow, and room for life to unfold beautifully.
- Expansive and thoughtfully proportioned, this footprint is built to impress. Whether entertaining guests or quiet nights in, it delivers room to roam and walls that wow.
- Three-car capacity, but think bigger—this garage is a gearhead’s dream, a hobby haven, or your next weekend workshop. It’s not just parking. It’s potential.
- Six distinctive retreats to house your dreams, your guests, your home office—or even your secret reading nook. Enough versatility to turn heads and open doors.
- No lineups, no compromise—just elegant fixtures and polished layouts across four full baths and an extra guest-friendly powder room. It’s luxury in the details.
- Two stylish levels of living, each curated for flow and function. Whether you’re climbing toward cozy or descending into entertainment mode, this layout brings it.
- An elevated escape that’s equally perfect for quiet mornings, creative afternoons, or moonlit musings. It’s your upstairs hideaway with style.
- Let the fun begin! A dedicated recreation space built for laughter, movie marathons, or game night supremacy. It’s where weekends come alive.
- Your productivity playground. Whether you’re closing deals or chasing ideas, this office keeps your workflow polished, quiet, and uninterrupted.
- This open-concept design invites connection, light, and conversation—with spaces that flex for hosting, lounging, or living large.
- Smart design starts behind the scenes. With a dedicated mechanical room, home systems stay accessible, efficient, and tucked discreetly away.
- Circle your domain in charm—this wraparound porch offers panoramic living with sunrise serenity, sunset views, and a front-row seat to curb appeal.
PL-62304 Wolfe Barndominium House Plans
- 3226 Heated square feet
- 757 square feet attached garage
- 4 bedrooms
- 4 bathrooms
- 2 Story
- Loft
- Jack and Jill Bathroom
- Open Concept
- The Wolfe barndominium house plan is 3226 heated square feet and features 4 bedrooms, 4 full bathrooms, and an attached 757 square foot attached garage.
- As you enter the home, you’ll immediately notice the spacious great room, which is perfect for entertaining guests or simply relaxing with family.
- On the other side of the great room is the family room, which features its own bathroom and a stairway leading to the second floor. It is cozy and perfect for unwinding after a long day. This space is also perfect for a downstairs playroom if you choose.
- The standout feature of this barndominium is the large kitchen and dining areas. The kitchen is larger and spacious and has plenty of counter space making it a great place for cooking and entertaining. An added bonus is the large butler’s pantry just off the kitchen.
- Located downstairs, you’ll find the huge master bedroom, complete with its own bathroom and closet. This is a great space for privacy and relaxation, and you’ll love the comfort and convenience of having your own master suite. A special feature of this master bedroom is a door where you can access the shop which is the perfect place for working on projects or storing tools.
- The 3 secondary bedrooms are located upstairs. All of them have nice-sized closets. Bedroom 3 has its own private bathroom while bedrooms 1 & 2 share a convenient jack and jill bathroom.
- The garage is a spacious 757 sq ft, providing ample space for your vehicles and storage needs. The garage also connects to the shop, making it easy to move between the two spaces. And with a total of 163 sq ft of shop space, you’ll have plenty of room to work on your hobbies or projects.
- With a front and back porch, there is plenty of space outside to enjoy the great outdoors as you soak it all in.
PL-62401 Blaze Barndominium House Plan
- 1683 Heated square feet
- 2 bedrooms
- 2 bathrooms
- 1 Story
- Bonus Room
- Open Concept
- The Blaze barndominium house plan is 1683 heated square feet and features 2 bedrooms and 2 full bathrooms.
- The first floor is designed for entertaining and relaxing, with an open-concept family room, kitchen, and dining space. The family room has a cozy fireplace that adds warmth and ambiance to the space.
- The kitchen has a large island and a corner walk-in pantry.
- The master suite is a retreat of its own, located on the first floor for convenience and privacy. The master bath has a single vanity and a shower. The master closet is huge, with enough room for all your clothes and accessories. It also has direct access to the laundry room making it super convenient for washing and putting away clothes.
- The secondary bedroom is spacious with dual closets and is located right across the hall from the second bathroom.
- The stairs lead to a nice-sized loft at the top of the stairs with a large bonus room. Whether you need a game room, an office, a guest room, or a hobby room, this space can accommodate your needs.
- With a large front porch and back patio there is plenty of outdoor space to enjoy everything nature has to offer.
PL-62504 Cameron Barndominium House Plan
- 3,242 Heated Square Feet
- 3 Bedrooms
- 3 Bathrooms
- Two-story design with loft
- Open-concept living area
- Front porch spanning 50 feet
- Attached 2,000 sq. ft. garage/shop
- Dedicated pantry and storage spaces
- Mudroom & laundry area
- Spacious master suite with dual closets
- This thoughtfully designed home offers 3,242 square feet of heated living space, blending modern functionality with classic barndominium charm. The three well-sized bedrooms provide ample space for family members or guests, each designed to maximize privacy and comfort.
- With three full bathrooms, the home ensures convenience and ease, featuring modern finishes and ample space for everyday use. The two-story layout includes a loft area, adding versatility for additional living space, a home office, or recreational use.
- A large open-concept living area seamlessly connects the kitchen, dining, and family spaces, creating a perfect environment for entertaining or relaxing. The expansive front porch extends 50 feet, offering a welcoming outdoor retreat to enjoy fresh air and scenic views.
- The attached 2,000-square-foot garage and shop space provide plenty of room for vehicles, storage, and hobby areas, catering to both practical and recreational needs. Additional features like a walk-in pantry, dedicated storage spaces, and a mudroom enhance everyday convenience.
PL-62749 Wellington Barndominium House Plan
- 2524 Heated square feet
- 3 bedrooms
- 2.2 bathroom
- 2 Story
- Loft-style
- Open-concept
- Wraparound porch
- 3-Car Garage
- Experience the perfect blend of functionality and style in this 2524 sq ft barndominium. Revel in the spaciousness of its open-concept design and enjoy the serenity of the outdoors on its wraparound porch.
- A two-story barndominium with a loft-style second floor offering a unique blend of rustic appeal and modern living.
- Step into the comfort of this barndominium house plan featuring 3 bedrooms with the master suite on the main floor and 2 additional bedrooms upstairs. Enjoy the convenience of 2 full bathrooms, one in the master suite and another shared by the upstairs bedrooms. Plus, benefit from the practicality of 2 powder rooms, located in the laundry room and garage.
PL-62748 Ainsley Barndominium House Plan
- 4431 Heated square feet
- 7 bedrooms
- 3 bathrooms
- 2 Story
- Mudroom
- Playroom
- Game/media room
- Fireplace
- Loft
- Attic space
- Open Concept
- This two-story marvel boasts an open-concept design where the family room is adorned with a cozy fireplace. Adding to the charm is a semi-spiral staircase that leads to the second floor. Here, an open balcony offers a bird’s eye view of the bustling family room and kitchen below. Every corner of this home has been thoughtfully designed to ensure a harmonious blend of space, comfort, and elegance.
- This also features seven ample-sized bedrooms, each equipped with generous closet spaces. On the ground floor, you’ll find three beautifully designed rooms, including a spacious master bedroom and a well-appointed guest room. As you ascend the stairs to the second floor, you’ll discover four additional bedrooms.
- The master bathroom, located within the master bedroom, is a private oasis offering luxury and relaxation. On the main floor, you’ll find a shared bathroom that is both practical and stylish, designed to cater to the needs of family members and guests alike. The second floor houses another shared bathroom, ensuring that those occupying the upper-level rooms have easy access to facilities.
- On the main floor, you’ll find a practical mudroom offering a convenient spot to store outdoor gear and keep the rest of your home clean. The main floor also houses a vibrant playroom, a safe and fun-filled space. On the second floor, you’ll find a spacious game/media room nestled among the bedrooms. This versatile space is perfect for movie nights, game days, or simply lounging around.
PL-62832 Brantley Barndominium House Plan
- 5465 Sq Ft
- 38×60 living space dimension
- 4 Bedrooms
- 3.2 Bathrooms
- 2-story
- Wraparound porch
- Office
- Game room
- Media room
- Screened porch
- Sunroom
- 5-car garage
- This two-story floor plan includes four spacious bedrooms, providing ample space for family and guests. 2 bedrooms including the master bedroom on the main floor and 2 other bedrooms on the upper floor.
- With 3.2 bathrooms, including multiple full and half baths, convenience and comfort are prioritized.
- A dedicated office space provides a quiet and productive environment for work or study.
- The spacious game and media rooms offer a fun and versatile space for entertainment and leisure activities and an immersive home theatre experience.
- The screened porch and sunroom on opposite sides of the house offer great space to relax and enjoy the outdoors.
- The expansive 5-car garage offers ample parking and storage space, accommodating multiple vehicles and additional belongings.
PL-62836 Stanley Barndominium House Plan
- 2122 Heated square feet
- 3 Bedrooms
- 2.1 Bathrooms
- One story with high ceilings
- Open concept
- Attached 1627 sq ft garage
- Wraparound porch
- Storage room
- This charming one-story home offers 2,122 heated square feet of living space, featuring an open concept design that enhances the spacious feel. With three bedrooms and 2.1 bathrooms, it provides ample room for family and guests.
- The living room is a cozy retreat with a fireplace, ideal for relaxing evenings. The attached 1,627 sq ft garage offers plenty of space for vehicles and additional storage.
- One of the standout features is the wraparound porch, perfect for enjoying the outdoors from multiple vantage points. The loft area is a versatile space that can also be used for storage.
- The storage room is conveniently located outside the back of the house, and there are numerous other storage areas throughout the home, ensuring you have plenty of space to keep things organized.
PL-62324 Milford Barndominium House Plan


- 3713 Heated square feet
- 1337 sq ft 3-car garage
- 4 bedrooms
- 3.1 bathrooms
- Open Concept
- 2 Story
- Loft
- Wraparound porch
- Shop
- Mechanical room
- Safe room
- Storage room
- Just the right size to live large without the sprawl in this 3,713 heated SF home
- Oversized 1,337 SF 3-Car garage with space for your cars, gear, and then some.
- Spacious sleeping quarters for family, guests in the four cozy bedrooms.
- With 3.1 bathrooms, no more morning traffic jams—everyone gets their space.
- Light, flow, and freedom from wall-to-wall living in an open concept layout.
- Double the space, smart separation between living and rest in two stories.
- Bonus flex space for lounging or gaming for your loft.
- All-season charm with 360° views and serious curb appeal all in your wraparound porch.
- Built-in utility, security, and workspace without sacrificing square footage with the shop, mechanical room, and safe room all in the garage.
- Storage room keeps the clutter hidden and the living space clean.
PL-62513 Harper Barndominium House Plan
- 2132 Heated square feet
- 30×60 living space dimension
- 3 bedrooms
- 2 bathrooms
- 2 Story
- Loft
- Office
- Bonus Room
- Attic Space
- Open Concept
- The Harper barndominium house plan is 2132 heated square feet and features 3 bedrooms and 2 full bathrooms.
- As you step inside the main floor of this home you are welcomed into a beautiful and spacious open floor plan. The family room takes center stage with the cozy fireplace and the large space for everyone to gather.
- The kitchen is perfect for preparing meals and the pantry is the perfect size for storing food and small appliances.
- The master bedroom is a nice size with a great ensuite bathroom and master closet.
- As you venture to the other side of the home you will find 2 secondary bedrooms both with decent size closets and a shared hall bathroom.
- The office is tucked away making it the perfect escape for those who need a quiet space while working from home.
- The laundry room leads to the back patio and is a great size for all your laundry needs.
- At the top of the stairs, you will find a great-sized bonus room full of possibilities. Not only that you will find an abundance of attic space.
- This home is the perfect floor plan to relax and connect with nature with the inviting front porch and back patio for private outdoor enjoyment.
PL-63002 Graham Barndominium House Plan
- 1848 Heated square feet
- 778 square foot Attached 3 car garage
- 3 bedrooms
- 3 bathrooms
- 2 Story
- Loft
- Mudroom
- Media Room
- Open Concept
- The Graham barndominium house plan is 1848 heated square feet and features 3 bedrooms, and 3 full bathrooms, with an attached 778 square foot garage.
- As you enter this home through the double front doors you are immediately wowed by the beautiful staircase that leads upstairs. The family room sits to the right and is large and spacious. You will be drawn to the fireplace as it creates a nice cozy atmosphere.
- The kitchen is big and perfect for hosting friends and family. The island creates even more space to prep and serve. The walk-in pantry is perfect for storage of small appliances and food. There is even plenty of space for a nice breakfast nook.
- The first floor features a master bedroom with an ensuite bathroom and master closet.
- You will also find a secondary bathroom with a full bathroom.
- Just off the garage is a mudroom perfect for coming in from outside as well as a laundry room.
- As you climb the stairs you will notice a great balcony that overlooks the main areas of the home.
- You will also find another secondary bedroom with a large closet and bathroom.
- There is a nice-sized game room that can be used for anything your heart desires.
- An added bonus upstairs is a huge storage closet perfect for storing toys, holiday decor, and more.
- The 778-square-foot attached 3-car garage provides ample space for parking and storage.
- You will love how the front porch extends to the sides, you can enjoy the beautiful scenery and relax in the fresh air.
PL-64002 Gillian Barndominium House Plan
- 3984 Heated square feet
- 3 Bedrooms
- 2.1 Bathrooms
- Single story
- Open concept
- 3-car Garage
- Mudroom
- Basement
- Loft
- Breezeway
- Porch
- Patio
- This home offers a generous 3984 square feet of heated living space, including 2 additional levels- basement and loft, ensuring ample room for comfortable living and entertaining.
- Three spacious bedrooms provide plenty of personal space. Each room is designed to maximize comfort and functionality, perfect for restful nights.
- With two full bathrooms and one half-bath, this home ensures convenience and privacy for both family members and guests. The master bathroom features luxurious fixtures and a serene ambiance.
- The home is designed as a single-story layout, making navigation easy and accessible for all ages. This layout enhances the open-concept design and creates a seamless flow between rooms.
- A three-car garage provides ample space for vehicles, storage, and projects. This feature adds both convenience and practicality to the home, accommodating multiple cars and additional storage needs.
- The breezeway connects the garage to the main living area. This semi-open space allows for a sheltered transition while enjoying the outdoor elements.
- The mudroom serves as a transitional space between the outdoors and indoors.
- The basement offers a versatile area that can be customized to suit specific needs.
- The loft provides a cozy and flexible space for storage or can be transformed into an additional living area.
- The front porch adds charm and curb appeal, and a welcoming space to the home.
- The patio extends the living space outdoors, perfect for alfresco dining, entertaining, or simply enjoying the fresh air.
PL-64005 Zenith Barndominium House Plan
- 3212 heated sq ft
- 3752 sq ft Garage
- 3 Bedrooms
- 2.1 bathrooms
- Single-story
- Open concept
- Loft Porch
- Hobby room
- Office
- Spacious layout offering 3212 sq ft of comfortable, climate-controlled living space, perfect for modern family living.
- Generously oversized garage with 3752 sq ft, providing ample room for multiple vehicles, storage, and workshop needs.
- Three well-appointed bedrooms designed with privacy and comfort in mind, ensuring restful retreats for the whole family.
- Two full bathrooms and a convenient powder room, tailored for functionality and everyday luxury.
- Seamless, single-level design for ease of movement, ideal for families or individuals seeking accessibility and convenience.
- Bright, airy open-concept layout that blends living, dining, and kitchen spaces, creating the perfect environment for entertaining and connection.
- Versatile loft space, perfect for a cozy reading nook, play area, or an additional lounge to suit your lifestyle.
- Charming porch to enjoy morning coffee or evening relaxation while soaking in the outdoor ambiance.
- Dedicated hobby room located in the garage, offering an inspiring space for crafts, projects, or even fitness.
- Private, well-placed office adjoining the garage, ideal for remote work or managing personal affairs.
PL-64006 Sagewood Barndominium House Plan
- 3366 Heated Sq Ft
- 1343 Sq Ft attached Garage
- Attached 3-car garage
- 5 Bedrooms
- 3.1 Bathrooms
- Laundry room
- Open concept
- Two-story
- Loft
- Office
- Attic
- Mechanical room
- Porch
- Patio
- 3366 Heated Sq Ft offers a spacious and comfortable living area for relaxation and activities.
- 1343 Sq Ft attached 3-Car garage provides ample room for three vehicles, plus additional storage or workspace.
- 5 Bedrooms: Includes 3 bedrooms conveniently located on the main floor and 2 bedrooms on the upper floor, suitable for family members or guests.
- 3.1 Bathrooms: Features a luxurious master bath, 1.1 baths on the main floor, and 1 full bath upstairs for convenience.
- A dedicated space for organizing and managing household laundry needs.
- The open concept enhances the feeling of space, promoting seamless flow between living, dining, and kitchen areas.
- This two-story design provides a dynamic layout with private and shared spaces spread across two levels.
- The loft gives a versatile area on the upper floor, perfect for a reading nook, entertainment space, or additional seating.
- An office on the upper floor is an ideal private space for work, study, or productivity.
- The unfinished attic offers extra storage space for seasonal items and other belongings.
- A mechanical room in the garage houses essential home systems while maximizing functional space in the main living areas.
PL-64009 Stuart Barndominium House Plan
- 3292 Heated square feet
- 679 sq ft attached 2-car garage
- 3 Bedrooms
- 2.1 bathrooms
- 2-story
- Open concept
- Mudroom
- Studio
- Fireplace
- Attic
- Loft
- Wraparound porch
- 3,292 sq. ft. of heated living space, designed for cozy elegance.
- A spacious 679 sq. ft. attached 2-car garage, perfect for storage and convenience.
- Three thoughtfully designed bedrooms, offering restful retreats.
- 2.1 bathrooms, blending style and functionality.
- Stunning 2-story open-concept design that maximizes natural light and flow.
- A mudroom that keeps clutter at bay while adding everyday convenience.
- Private studio, ideal for work, hobbies, or artistic inspiration.
- Charming fireplace, ready to set the mood for cozy nights.
- Versatile attic space for storing memories or future expansion.
- Stylish loft that adds dimension and character to the home.
- Classic wraparound porch, blending outdoor relaxation with timeless curb appeal.
PL-64018 Tarantino Barndominium House Plan
- 2347 Heated square feet
- 3 bedrooms
- 3.1 bathrooms
- 2-Story
- Open Concept
- Loft
- Wraparound porch
- 2347 Heated square feet
- 3 bedrooms
- 3.1 bathrooms
- 2-Story
- Open Concept
- Loft
- Wraparound porch
- Bask in over 2,300 square feet of meticulously designed, climate-controlled comfort—offering space to live, gather, and breathe with ease.
- Three serene, generously sized bedrooms provide personal sanctuaries for rest and rejuvenation—perfect for families, guests, or creative flex spaces.
- With three full baths and a convenient powder room, every morning rush and evening wind-down is effortlessly elevated—no lines, no waiting, just luxury and ease.
- This elegant two-level design beautifully separates living and sleeping zones—ensuring lively social flow below and peaceful privacy above.
- From kitchen conversations to cozy living room lounging, the open-concept design encourages seamless connection and sunlit, airy living throughout.
Whether styled as a home office, reading nook, or game lounge, the airy loft offers a flexible extra living space with personality and charm. - Embrace the great outdoors from every angle with a classic wraparound porch—ideal for sunset watching, morning coffees, or relaxed entertaining under the open sky.
PL-69193 Westchase Barndominium House Plan
- 2163 Heated square feet
- 1036 square foot attached 3 car garage
- 3 bedrooms
- 2.2 bathrooms
- 2 Story
- Loft
- Mudroom
- Open Concept
- The Westchase barndominium house plan is 2136 heated square feet and features 3 bedrooms, 2 full bathrooms, and 2 1/2 bathrooms with an attached 1036 square foot garage.
- As you enter Westchase house plan through the front door, you are greeted into a spacious family room with a cozy fireplace and a bar.
- The room flows nicely into the corner kitchen which has plenty of counter space for prepping and serving. An island sits in the kitchen as well for added space and convenience.
- The master bedroom features a walk-in closet and private bath, providing the owners with the privacy they are seeking.
- Downstairs you will also find a vestibule, a mudroom, and a half bathroom.
- The 1036 square foot attached 3 car garage is a dream. Not only is it spacious enough to accommodate two cars, but it also includes a half bath and mechanical room, making it an ideal workspace for DIY projects or hobbies.
- Upstairs you will find a nice sized loft as well as two secondary bedrooms and a full bathroom. This is the perfect space for kids and teenagers.
- The wraparound porch is another standout feature of this home. With plenty of space to relax and take in the surrounding scenery, you’ll love spending time outdoors and enjoying the best that nature has to offer.
PL-69200 Darwin Barndominium House Plan
- 5552 Heated square feet
- 5 bedrooms
- 4.1 bathrooms
- 2 Story
- Open Concept
- Guest Bedroom
- Bonus Room
- Laundry Room
- Storage
- Utility Room
- Cold Storage
- 4-car attached garage
- Boasting a sprawling 5552 heated square feet of pure elegance, this two-story marvel is designed with an open concept, creating a seamless flow between grand living spaces. Imagine towering ceilings, expansive windows that invite natural light to dance across artisan finishes, and an ambience that exudes modernity while still feeling like home.
- Five bedrooms—including a dedicated guestroom—and 4.1 bathrooms, ensuring comfort for family and visitors alike. The master suite and guest quarters, complete with luxurious baths, are conveniently located on the main floor. Upstairs, the additional bedrooms promise personal havens for rest, while the versatile bonus room opens up possibilities for entertainment, hobbies, or a home office.
- Innovative floor plan designed with special features that cater to both comfort and functionality. The Laundry Room, ingeniously accessible through the master closet, streamlines your daily routine, while the Storage Room and Utility Room provide ample space for organization and practicality. Not to be overlooked, the Cold Storage offers a unique solution for preserving your culinary creations or fine wines.
- Featuring a 4-car attached garage, this architectural masterpiece is perfect for the automobile enthusiast or a family with multiple drivers, offering ample space for vehicles, hobbies, or storage. The garage seamlessly integrates into the design, maintaining the aesthetic appeal of the home while providing the convenience and security you desire.
PL-71005 Vista Barndominium House Plan

- 4 Bedrooms
- 3.1 Bathrooms
- 3179 Heated Square Feet
- 2-story
- Loft
- Playroom
- Media room
- Mudroom
- Mechanical room
- Jack and Jill Bathrooms
- Attached 3-car garage
- Front porch
- Patio
- With an expansive 3,179 heated square feet, this two-story floor plan offers ample space for your family to grow and thrive.
- Enjoy the comfort and privacy of four generously sized bedrooms, including Jack and Jill bathrooms that provide convenience and elegance. The 3.1 bathrooms ensure there’s never a wait during busy mornings.
- The loft area is perfect for a cozy reading nook or home office, while the playroom offers a dedicated space for fun and creativity. The media room is designed for ultimate entertainment right at home.
- The mudroom is ideal for keeping your home tidy, and the mechanical room ensures your household systems are easily accessible. An attached 3-car garage offers ample parking and storage space for vehicles and outdoor gear.
- Relax on the inviting front porch or host gatherings on the stylish patio, making every moment spent outdoors special.
PL-82001 Fowler Barndominium House Plan

- 5792 heated Square Feet
- 6 Bedrooms
- 4.2 Bathrooms
- 2 Story
- Open Concept
- Hobby room
- Game/media room
- Sitting area
- Playroom
- Front & rear porch
- 2-car detached garage
- Luxuriate in nearly 5,800 square feet of impeccably designed, temperature-controlled living—every square foot crafted for comfort, elegance, and unforgettable gatherings.
- Six inviting bedrooms promise restful retreats for every family member or guest—each one a private sanctuary with space to breathe, unwind, and dream.
- With four full baths and two stylish powder rooms, convenience meets sophistication—ensuring seamless mornings and elegant hosting for any occasion.
- Thoughtfully arranged across two expansive levels, this layout balances togetherness and personal space—ideal for vibrant entertaining below and tranquil escapes above.
- From airy conversations in the kitchen to effortless entertaining in the great room, the open-concept design flows with natural light and modern sophistication.
- Whether it’s painting, crafting, or perfecting your next passion project, the hobby room offers a creative corner tailored for inspiration and focus.
- Movie marathons, game nights, or immersive binge sessions—the dedicated game/media room delivers cinematic comfort and lively fun for all ages.
- A quiet sitting area beckons for reflective mornings, casual reading, or warm, intimate conversations with a cup in hand and sunlight streaming in.
- Let imaginations run wild in a bright, cheerful playroom designed for kids to explore, create, and grow in their own lively little world.
- From sunrise coffees on the welcoming front porch to serene sunsets out back, these dual outdoor spaces invite connection with nature and neighbors alike.
- The detached two-car garage adds both function and charm—perfect for vehicle storage, gear organization, or converting into a workshop or studio.
SV-5503 Parker Barndominium House Plan
- 1862 Heated square feet
- 2 Bedrooms
- 2.1 Bathrooms
- Open concept
- Fireplace
- Storage loft
- Utility room
- Garage/shop
- Step into a world of rustic elegance with our 1862-square-foot barndominium. Two spacious bedrooms await, along with 2.1 bathrooms for your comfort.
- The cozy fireplace beckons you to unwind while the storage loft provides extra space for safekeeping other things. And don’t forget the practicality of the attached garage/shop – perfect for hobbies or storage.
SV-5505 Callum Barndominium House Plan
- 2330 Heated square feet
- 4 Bedrooms
- 3.1 Bathrooms
- Loft
- Open concept
- Attached 875 Sq Ft Garage
- Jack n Jill Bathroom
- Mudroom
- Wraparound Porch
- A spacious and well-designed floor plan that spans across 2330 heated square feet. This plan features 4 bedrooms and 3.1 bathrooms, providing ample space for a comfortable living experience.
- The plan also includes a second floor with 2 bedrooms, a bathroom and loft area.
- The attached 875 sq ft garage offers plenty of room for your vehicles and storage.
- One of the unique features of this plan is the Jack n Jill bathroom, shared between two bedrooms, which optimizes space and functionality.
- The mudroom provides a practical solution for keeping your home clean and organized, especially on rainy days.
- Finally, the wraparound porch adds a charming touch to the exterior while offering a relaxing outdoor space for you to enjoy. This floor plan truly combines style, comfort, and practicality.
SV-5504 Azalea Barndominium House Plan
- 2500 Heated square feet
- 3 Bedrooms
- 2 Bathrooms
- Loft
- Open concept
- Mechanical Room
- Mudroom
- Front and Rear Porch
- This 2500-square-foot haven boasts 3 bedrooms and 2 bathrooms, but it’s the heart of the home—the spacious great room with a wood stove, that steals the show.
- Ascend the spiral staircase to the loft—could be an office, reading nook or additional storage area.
- The rear porch features an outdoor kitchen, complete with a grill, sink, and seating area.
- The barndominium also includes a practical mudroom/ laundry area and a mechanical room.
If you would like more guides like this one, check out the rest of BarndominiumLife.com. There, you will find more helpful tips and tricks from the pros.
You will also find featured barndominiums, stock barndominium house plans, custom barndominium house plans, and information on financing and insurance.
Just starting out? Check out the Barndominiums Made Easy Program. It has our “How to Build Guide”, 120+ House Plans, and the Bid and Budget Tracker. Knowing as much as you can will help you get the best results for your dream home.
Find More Barndominium Floor Plans
By Bedrooms:
1 Bedroom • 2 Bedrooms • 3 Bedrooms • 4 Bedrooms • 5 Bedrooms • 6 Bedrooms • 7 Bedrooms • 8 Bedrooms
By Feature:
1-Story • 2-Story • With Garage • 2 Car Garage • 3 Car Garage • Wraparound Porch • With Breezeway • 2 Master Suites • With Loft • Multi-Family Barndominiums • Open-Concept
By Size:
Small Plans • 800 Sq Ft • 900 Sq Ft • 1000 Sq Ft • 1200 Sq Ft • 30×40 Floor Plans • 1400 Sq Ft • 1500 Sq Ft • 1600 Sq Ft • 40×40 Floor Plans • 1800 Sq Ft • 30×60 Floor Plans • 2000 Sq Ft • 2400 Sq Ft • 2500 Sq Ft • 2800 Sq Ft • 3000 Sq Ft • 3200 Sq Ft • 3600 Sq Ft • 4000 Sq Ft • 5000 Sq Ft •



















































































