When designing a barndominium, you may think that you have to have a massive amount of space to make it work. However, the barndominium design is perfect for smaller homes and can be incredibly versatile. If you know how to create something beautiful from a little footprint, you can build the home of your dreams. To help get you started, we have put together a complete guide to 1800 sq ft barndominium floor plans that you can use to create your perfect custom home.

Page Contents
1800 Square Feet Barndominium Kits
If you’re looking to start building your barndominium, one of the first things to do is to get a quote for the metal shell or barndominium kit. By using the quote service below, you’ll get connected with a barndominium kit provider within a few hours at most. Prefabricated barndominium kits mean that the metal shell that makes up your barndo is produced off-site, then it’s brought to you for erection and assembly. While some builders will help you order the barndominium kit, we suggest doing it separately to avoid a potential markup on the barndominium kit.
That’s it! By using the tool above, you’ll get connected with a kit provider for 1800-square-foot Barndominium Kits.
The Best 1800 Square Foot Barndominiums
AK-4007 Laura Barndominium House Plan
- 1878 Heated square feet
- 3 bedrooms
- 2.1 bathrooms
- 2 Story
- Open Concept
- Front & rear porch
- Attic Storage
- Walk-in pantry
- Spacious yet cozy, this thoughtfully designed layout offers nearly 1,900 square feet of heated living space—perfectly balanced for comfort, functionality, and everyday elegance.
- Three beautifully appointed bedrooms provide restful retreats for family, guests, or a home office that inspires creativity. Master bedroom is on the main floor while 2 rooms are in the upper floor. One bedroom can also be converted to an office or whatever your family needs.
- Two full baths and a stylish powder room ensure convenience and privacy for both residents and visitors—no waiting, no compromise.
- Enjoy the charm and separation of a two-story design, where living and sleeping spaces are thoughtfully divided for flow and flexibility. Breathe easy in a light-filled, open-concept living area that invites connection, conversation, and effortless entertaining.
- Double the charm with welcoming front and rear porches—ideal for morning coffee, sunset chats, or simply soaking in the fresh air.
- Tuck away seasonal décor, keepsakes, and extras with generous attic storage that keeps your living spaces clutter-free and serene.
- A spacious walk-in pantry adds a touch of luxury to your kitchen—because every culinary dream deserves a well-stocked, organized haven.
- Say goodbye to laundry-day hassle with a smart pass-through from the master suite to the laundry room—designed for seamless living and everyday ease.
AP-20003 Cody Barndominium House Plan
- 2000 Heated square feet
- 2 Bedrooms
- 2.1 Bathrooms
- Single story
- Open concept
- Fireplace
- Storage Loft
- Utility
- Mudroom
- Wraparound Porch
- 2-Car Garage
- 1102 Sq ft Garage
- This home provides 2000 square feet of comfortable, climate-controlled living space, ensuring year-round coziness.
- Two well-designed bedrooms offer a peaceful retreat, each with ample space for relaxation and rest. It also includes two full bathrooms and one half-bath, all equipped with modern fixtures for convenience and luxury.
- Enjoy the simplicity and accessibility of single-story living and an accessible storage loft provides additional space for storing seasonal items and other belongings out of sight.
- The layout features a seamless flow between the living, dining, and kitchen areas, perfect for entertaining and everyday living while a cozy fireplace in the living area creates a warm and inviting atmosphere.
- A dedicated utility space in the garage is ideal for additional storage and a practical entryway mudroom ensures your home stays clean and organized by providing a designated spot for outerwear and shoes.
- With 1102 square feet, the spacious two-car garage provides plenty of room for vehicles and extra storage.
- The wraparound porch adds charm and offers ample space for relaxing, entertaining, and enjoying the outdoors.
BCO-40046 Ray Barndominium House Plan
- 1800 Heated square feet
- 30×60 living space dimension
- 3 bedrooms
- 2 bathrooms
- Single Story
- Open Concept
- Front porch
- Mudroom
- Carport (2-car)
- Utility room
- A well-balanced footprint offering spacious comfort without excess—perfect for relaxed living, entertaining, and efficient flow.
- Three thoughtfully designed bedrooms offer flexibility for families, guests, or creative workspaces—each with room to breathe and personalize.
- Two full bathrooms ensure convenience and privacy, with layouts that support both daily routines and moments of retreat.
- All living areas are arranged on one accessible level, enhancing ease of movement and creating a seamless indoor experience.
- The heart of the home features a fluid layout that connects kitchen, dining, and living spaces—encouraging connection and natural flow.
- A welcoming front porch adds curb appeal and a cozy outdoor nook—perfect for morning coffee, evening chats, or seasonal décor.
- A practical transition space that keeps the home tidy and organized—ideal for stashing shoes, coats, and everyday essentials.
- Covered parking for two vehicles offers protection from the elements and easy access to the home, with room for storage or gear.
BG-20009 Everett Barndominium House Plan
- 1844 Heated square feet
- 3 bedrooms
- 2.1 bathrooms
- Single Story
- Open Concept
- 2400 sq ft garage
- Den
- Front porch
- Patio
- Efficiently designed with 1,844 square feet of heated living space, this home blends comfort and practicality without sacrificing style.
- Three well-appointed bedrooms offer restful retreats and flexible living—ideal for families, guests, or creative workspaces.
- Two full baths and a convenient powder room ensure smooth mornings and easy entertaining, with thoughtful finishes throughout.
- Enjoy the ease of single-level living, where every room is within reach and accessibility meets timeless design.
- The open-concept layout invites connection, with seamless transitions between kitchen, dining, and living areas—perfect for gatherings or quiet evenings in.
- A massive 2,400-square-foot garage offers more than parking—it’s a dream space for storage, projects, or a full-scale workshop.
- The dedicated den adds a layer of versatility—ideal for a home office, reading nook, or media lounge tailored to your lifestyle.
- A welcoming front porch sets the tone with classic charm, inviting neighbors, guests, and quiet moments in the fresh air.
- Step outside to a spacious patio designed for relaxation and entertaining—your private escape for morning coffee or evening gatherings.
BG-20021 Northwood Barndominium House Plan
- 1896 Heated sq ft
- 3 bedrooms
- 2 bathrooms
- Single Story
- Den
- Open Concept
- 1485 sq ft Garage
- Covered Porch & Patio
- A perfectly sized home that balances spaciousness with coziness—nearly 1,900 square feet of climate-controlled living designed for effortless comfort and everyday elegance.
- Three inviting bedrooms offer restful retreats for family, guests, or flexible use—each thoughtfully placed to maximize privacy and natural light.
- Two well-appointed bathrooms ensure convenience and comfort, featuring modern fixtures and a layout that supports both busy mornings and relaxing evenings.
- A quiet den provides the perfect hideaway for work, reading, or creative pursuits—a versatile space that adapts to your needs.
- This oversized garage is more than just parking—it’s a workshop, storage haven, or hobbyist’s dream, with room to spare for tools, gear, and imagination.
- Step outside to shaded serenity—whether it’s morning coffee on the porch or evening gatherings on the patio, these outdoor spaces invite relaxation and connection.
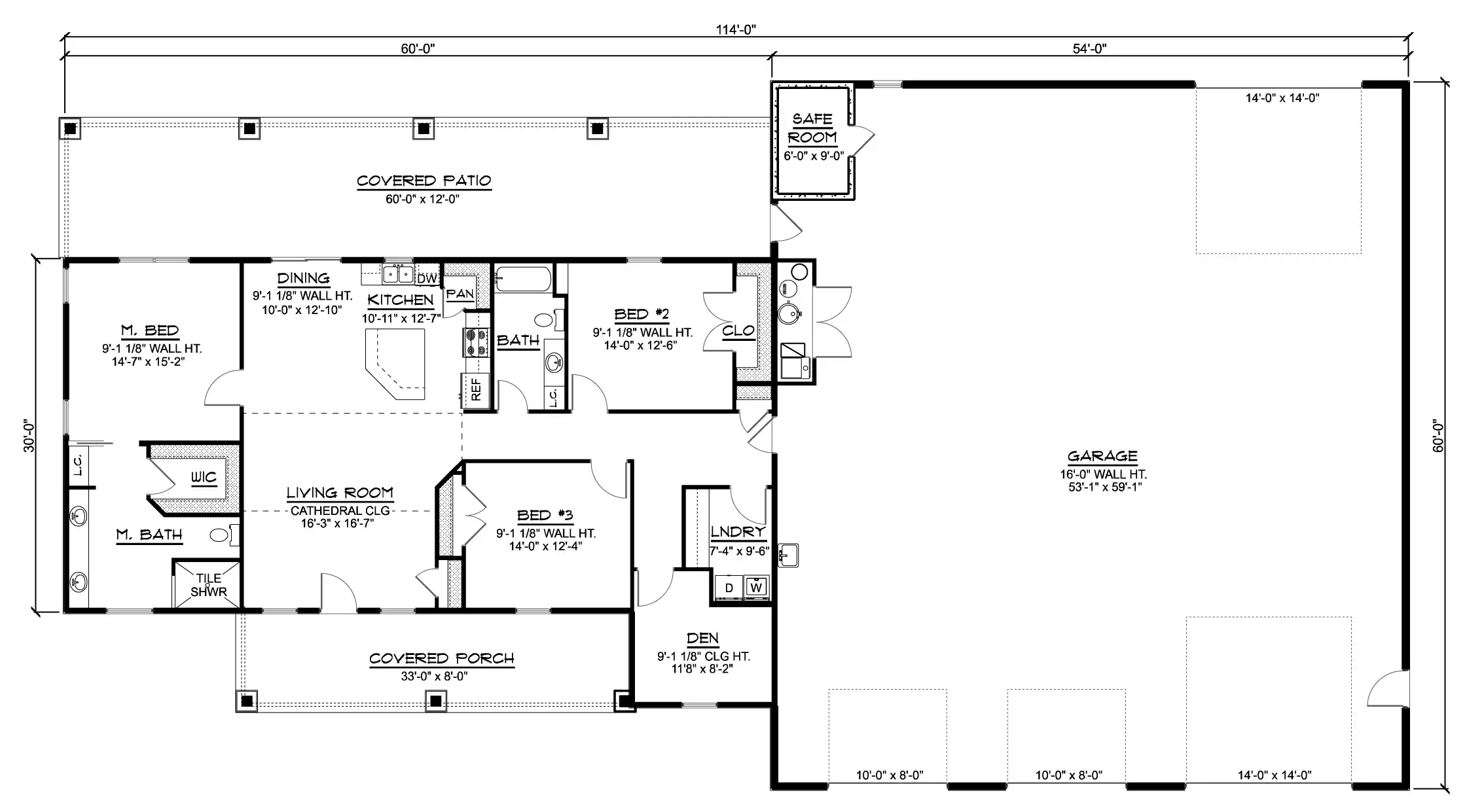
BG-20025 Ellison Barndominium House Plan
- 1896 Heated square feet
- 3 bedrooms
- 2 bathrooms
- Single Story
- Open Concept
- Den
- Safe Room
- Front & rear porch
- 3240 Sq ft Garage
- A spacious 1,896 heated square feet offers room to breathe, entertain, and unwind in style.
- Whether for family, guests, or creative use, the three bedrooms adapt to your lifestyle beautifully. With two bathrooms, there’s no need to compromise on comfort or privacy.
- The open-concept design brings spaciousness and cohesion to this elegant single-story residence.
- Whether used as a home office, library, or lounge, the den adds flexible functionality.
- Thoughtfully integrated, the garage safe room offers added protection without sacrificing space
- Front and back porches offer charming spaces to unwind, entertain, or simply enjoy the view.
- The expansive 4-car garage spans 3,240 square feet—perfect for car enthusiasts or workshop needs.
BG-20033 Lancaster Barndominium House Plan
- 1,803 Heated Sq Ft
- 3 Bedrooms
- 2.1 Bathrooms
- Single story
- Open concept
- Mudroom/Laundry
- Front & rear porch
- 1,320 Sq Ft Garage
- A well-balanced 1,803 square feet of heated living space offers comfort, efficiency, and room to thrive.
- Three inviting bedrooms provide restful retreats, each designed for privacy and personal expression.
- With two full baths and a convenient powder room, the layout ensures smooth routines and easy entertaining.
- The combined mudroom and laundry area adds practical charm, keeping the home tidy and transitions effortless.
- Covered porches at both front and back invite outdoor living, offering shade, charm, and year-round enjoyment.
- A spacious 1,320-square-foot garage provides ample room for vehicles, storage, and workshop potential.
BG-20050 Stratford Barndominium House Plan
- 1,881 Heated Sq Ft
- 3 Bedroom
- 2.1 Bathrooms
- Single Story
- Open concept
- Pool/Pool house
- Wet bar
- Front & rear porch, patio
- 2,513 Sq Ft Shop
- A well-proportioned interior offering 1,881 square feet of conditioned living—designed for comfort, clarity, and laid-back flow.
- A private pool paired with a dedicated pool house creates a backyard retreat—perfect for weekend lounging, summer gatherings, or sunset swims.
- An outdoor wet bar adds a splash of luxury—ideal for mixing drinks, serving snacks, and keeping the vibe relaxed and social.
- Multiple outdoor zones invite connection and calm. The porches offer shaded charm, while the patio by the pool sets the stage for sun-soaked afternoons and breezy evenings.
- A generously sized shop with 2,513 square feet of utility and workspace—perfect for hobbies, vehicles, or creative projects that need room to grow.
BG-20061 Waverly Barndominium House Plan
- 1,824 Heated Sq Ft
- 1 bedroom
- 1.1 bathrooms
- Single Story
- Open Concept
- Den
- Walkout basement
- Patio
- Covered porch
- 1,754 Sq Ft Shop
- A single bedroom paired with a full bath and powder room creates an intimate layout—ideal for solo living, guest stays, or downsized elegance.
- The basement opens directly to a patio, blending indoor ease with outdoor flow—perfect for quiet mornings, garden views, or evening unwinding.
- A generous porch wraps across the front and along one full side—offering shade, charm, and a timeless invitation to slow down and stay awhile.
- A two-car garage with 1,754 square feet of total space—providing room for vehicles, storage, and weekend projects, all tucked neatly into a well-considered footprint.
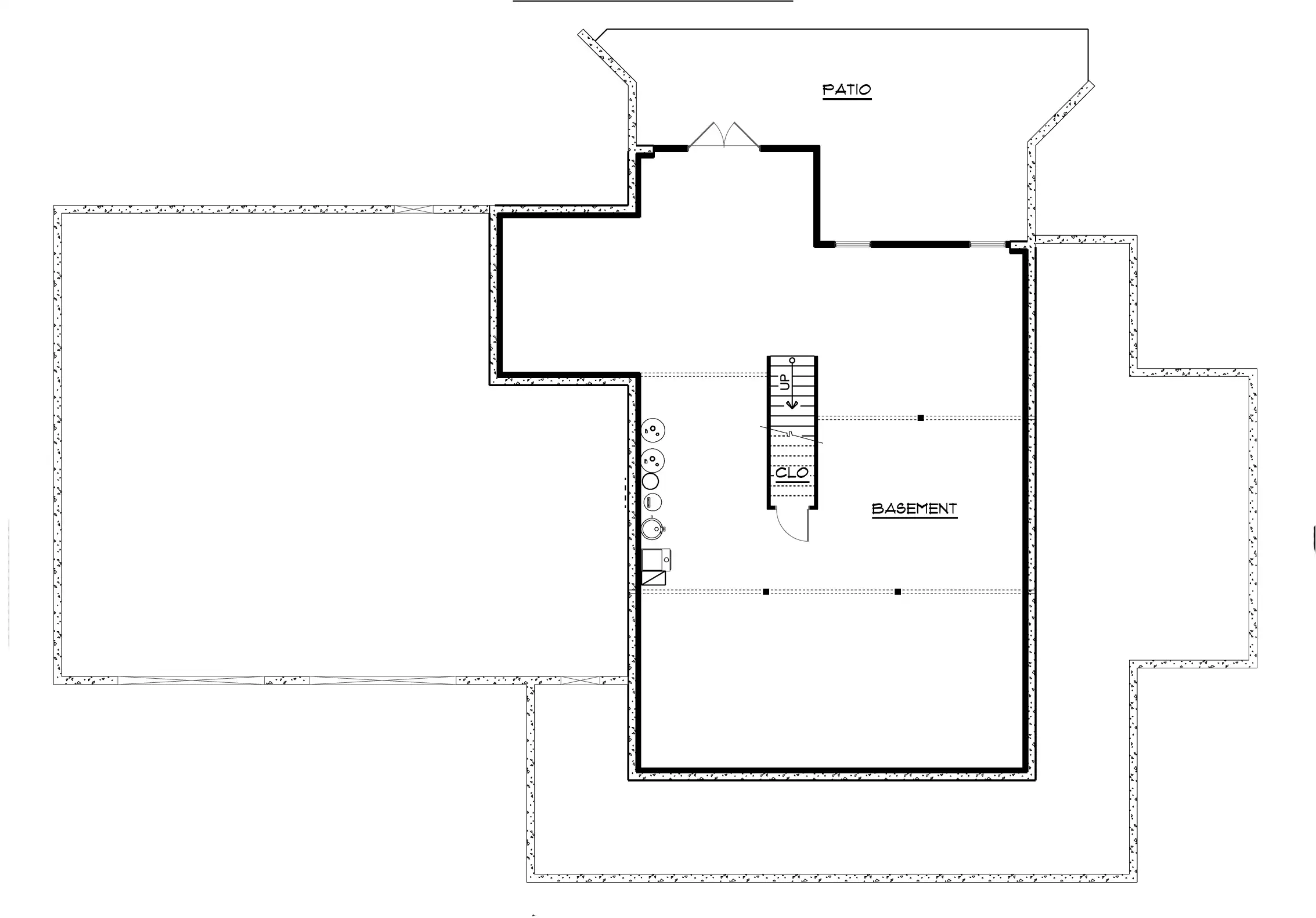
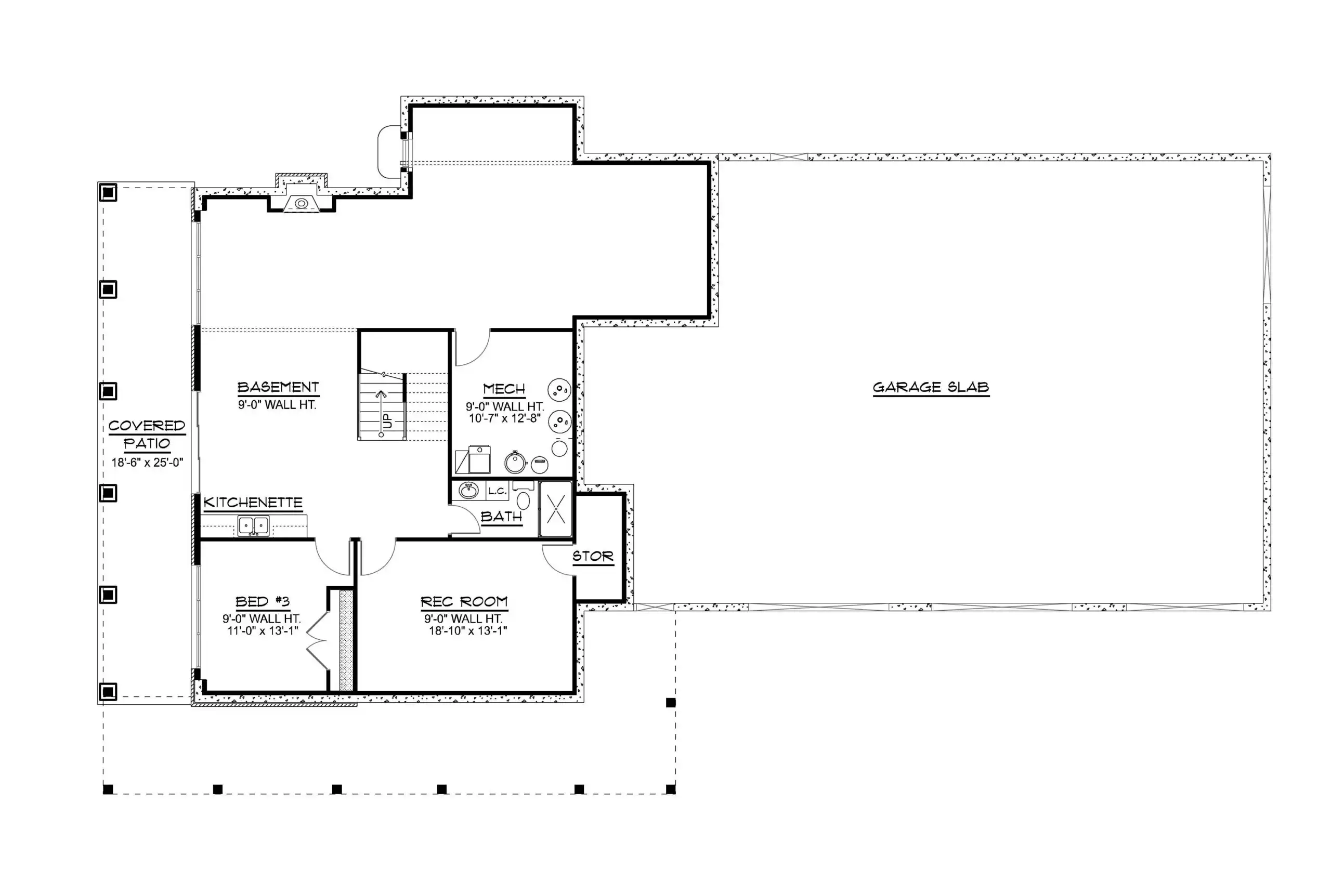
BG-20077 Bancroft Barndominium House Plan
- 1,888 Heated Sq Ft
- 3 bedrooms
- 3 bathrooms
- Single Story
- Open concept
- Rec Room
- Mech room
- Basement kitchenette
- Deck
- Patio
- 2,174 Sq Ft Shop
- This single-level layout offers 1,888 square feet of conditioned space—crafted for balanced living with three bedrooms and three full baths, all designed for ease and comfort.
- The finished basement includes a private bedroom, a rec room, mechanical room, and a kitchenette. It opens directly to a rear patio for seamless indoor-outdoor flow.
A welcoming front porch wraps into a side deck—creating a continuous outdoor zone for lounging, entertaining, or enjoying quiet moments in the open air. - A 2,174-square-foot shop offers space for three vehicles with room to spare for storage, tools, or hobby gear—functional, expansive, and ready for work or play.
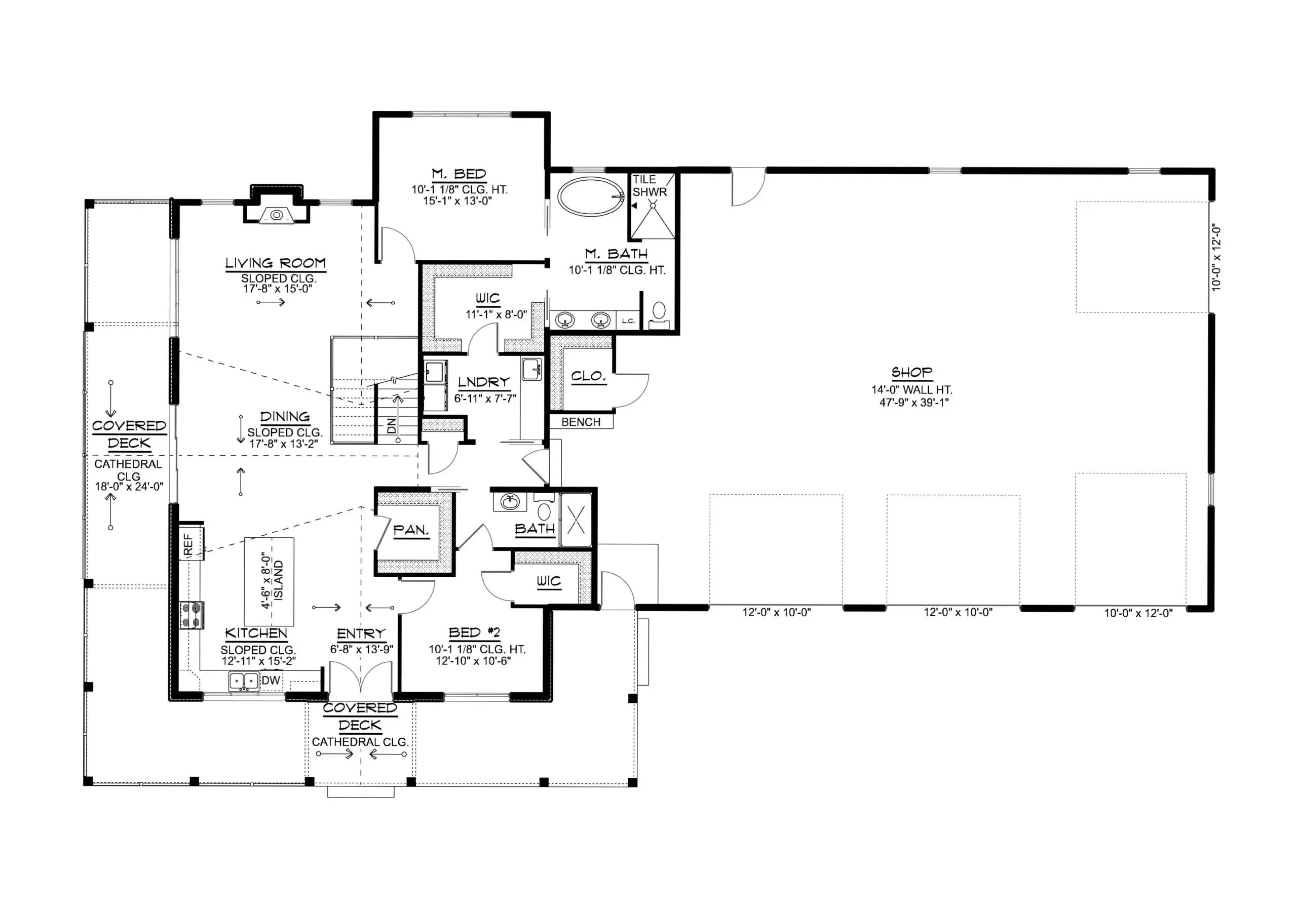
BG-20081 Vail Barndominium House Plan
- 1,820 Heated Sq Ft
- 50×24 living space dimension
- 3 bedroom
- 2.1 bathrooms
- Two Story
- Open Concept
- Loft
- Foyer
- Master bedroom with 2 WIC
- Front porch
- 2,334 Sq Ft Garage
- This two-story layout offers 1,820 square feet of conditioned space—crafted for balanced living with three bedrooms, intuitive flow, and everyday comfort.
- A welcoming foyer leads into a hallway that gently opens into the dining, kitchen, and living areas—creating a sense of arrival and spatial rhythm.
- The master suite includes two walk-in closets—offering generous storage and personal space with a touch of luxury.
- A covered front porch extends along the side of the home—perfect for shaded lounging, curbside charm, and relaxed outdoor living.
- A 2,334-square-foot garage/shop provides space for four vehicles with room to spare—ideal for gearheads, hobbyists, or anyone who values storage and workspace.
CDD-4104 Beechwood Barndominium House Plan
- 1800 Heated Sq Ft
- 600 Sq Ft
- 2 Bedrooms
- 2 Bathrooms
- Single story
- Open concept
- Mechanical room
- Front porch
- This 1,800-square-foot heated interior offers the perfect blend of spaciousness and simplicity. Every inch is crafted for comfort, with room to relax, entertain, and personalize—without overwhelming upkeep.
- A generous 600-square-foot garage provides secure parking and versatile storage. Whether you’re stashing outdoor gear, setting up a workshop, or simply enjoying the convenience of covered access, this space delivers.
- Two well-appointed bedrooms offer privacy and peace, ideal for couples, small families, or those seeking a guest suite or home office. Each room is a canvas for comfort and personal style.
- Two full bathrooms ensure smooth mornings and relaxed evenings. With modern fixtures and smart layouts, they balance function and finesse—perfect for everyday living or hosting with ease.
- Enjoy the ease of single-level living, where every space is within reach. This layout is ideal for aging in place, young families, or anyone who values seamless flow and accessibility.
- The open-concept design invites light, movement, and connection. From kitchen to living room, the space feels expansive and welcoming—perfect for entertaining or simply enjoying the rhythm of daily life.
- A dedicated mechanical room keeps systems organized and out of sight, enhancing both efficiency and aesthetics. It’s a subtle but smart feature that supports long-term comfort and maintenance.
- The inviting front porch sets the tone for relaxed living. Whether you’re sipping coffee at sunrise or greeting guests with a smile, this charming space adds curb appeal and everyday joy.
GJ-4400 August Barndominium House Plan
- 1,894 Heated Sq Ft
- 3 bedrooms
- 2 bathrooms
- Single Story
- Open Concept
- Pantry/mudroom
- Mechanical room
- Front & rear porch
- 1,911 Sq Ft Garage
- This single-level layout offers nearly 1,900 square feet of conditioned space with three bedrooms and 2 bathrooms.
- A combined pantry and mudroom connects the kitchen to the garage—streamlining storage, unloading, and household transitions.
- Covered porches span both the front and back of the home—creating shaded outdoor zones for relaxing, entertaining, or quiet moments.
- The garage includes space for three vehicles and a dedicated mechanical room—ideal for gearheads, hobbyists, or workshop use.
LP-2807 Wescott Barndominium House Plans

- 1800 Heated square feet
- 4 bedrooms
- 3 bathrooms
- 2 Story
- Loft
- Open Concept
- The Wescott barndominium house plan is 1800 heated square feet and features 4 bedrooms and 3 bathrooms.
- The open-concept design allows for plenty of space for the family to mingle and interact with one another. The main areas of the home appear even larger thanks to the vaulted ceilings.
- The kitchen is large and spacious with a large island with ample counter space and a decent-sized pantry in the corner of the kitchen.
- This plan includes several windows to allow the natural light to flow throughout the home.
- The master bedroom is spacious with a large master bathroom, shower, and stand-alone tub. The double vanity allows the couple to get ready at the same time without bumping into one another. The master also offers a large walk-in closet.
- This house plan has 3 additional bedrooms all with a nice sized closet. One of the secondary bedrooms has a private bathroom attached. The remaining bedrooms share the additional bathroom located in the hall.
- Upstairs is a nice loft ready for a home office, playroom, or anything you desire.
- The Wescott barndominium house plan has both a front and back patio so there is plenty of room to enjoy the outdoors.
LP-3208 Rowe Barndominium House Plan
- 1800 Heated square feet
- 3 Bedrooms
- 2 Bathrooms
- Open concept
- Attached 1200 Sq Ft Garage
- Front and Back Porch
- Step into this spacious 1800 sq ft heated home, featuring an open concept design perfect for modern living.
- With 3 cozy bedrooms and 2 well-appointed bathrooms, there’s plenty of room for family and guests.
- Enjoy the convenience of an attached 1200 sq ft garage, ideal for multiple vehicles and extra storage.
- Relax on the charming front and back porches, perfect for morning coffee or evening gatherings.
LP-71008 Orchard Barndominium House Plan
- 3 Bedrooms
- 2 Bathrooms
- 1800 Heated Square Feet
- Single story
- Open-concept
- Attached 2-car garage
- 750 Square feet Garage
- Front and Back Patio
- Foyer
- Fireplace
- Attic/Storage
- Spanning 1800 heated square feet, this open-concept home features three inviting bedrooms and two well-appointed bathrooms.
- A bright and airy foyer welcomes you, leading into a spacious living area with a charming fireplace, perfect for gathering with loved ones.
- The home includes both a front and back patio, offering versatile outdoor living spaces to enjoy the fresh air.
- The attached 2-car garage spans 750 square feet and provides ample storage options.
- Additionally, an accessible attic/storage space ensures you have room for all your belongings, completing this thoughtfully designed floor plan meant to create a warm and functional living environment.
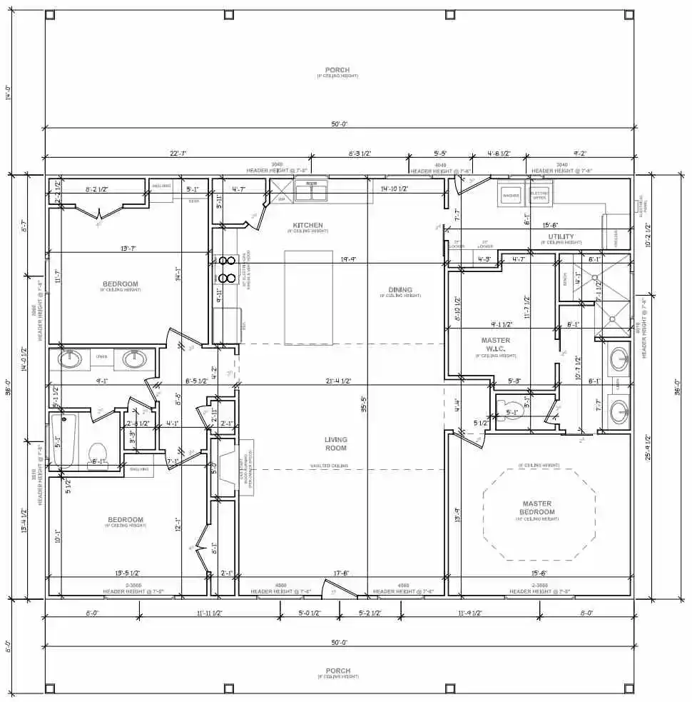
PL-62001 Greenbrush Barndominium House Plan

- 1815 Heated square feet
- 3 Car attached garage
- 3 bedrooms
- 2 bathrooms
- 1 Story
- Utility Room
- Open Concept
- The Greenbrush barndominium floor plan is 1815. heated square feet and features 3 bedrooms and 2 bathrooms with an attached 3-car garage.
- As you enter the home you are greeted by an open-concept living space and a nice-sized kitchen perfect for entertaining and gathering as a family. You will love that the kitchen and dining area flow seamlessly from the living room, creating a warm and inviting atmosphere.
- The master bedroom features an ensuite bathroom and walk-in closet.
- The 2 secondary bedrooms are larger than the standard secondary bedrooms both with closets. There is a shared bathroom in between both bedrooms.
- The utility room is an added bonus to the home. It has access to both the master bath and the attached garage, making it easy to keep your home clean and tidy.
- The front and back porches offer a cozy spot to relax and take in the views of your surroundings.
PL-62302 Greenway Barndominium House Plans
- 1813 Heated square feet
- 3 bedrooms
- 2 bathrooms
- 1 Story
- Safe
- Open Concept
- The Greenway house plan is 1813 heated square feet and features 3 bedrooms and 2 bathrooms.
- As you enter the Greenway house plan you are greeted by a nice open floor plan that is perfect for entertaining. The family room is large and spacious and the kitchen is perfect for preparing and serving food thanks to the large kitchen island. The corner pantry is a welcome addition to the kitchen as well.
- The standout feature of this barndominium house plan is the huge master bedroom, which is perfect for anyone who wants to indulge in a little bit of luxury. With plenty of space to stretch out and relax, this master bedroom offers the ultimate comfort and privacy. You’ll love the spacious closets and the master bath, which features all the amenities you need to pamper yourself after a long day.
- This home also features two additional bedrooms with closets, making it perfect for children and guests. These bedrooms share the 2nd bathroom that is located in between them.
- Perhaps the most unique feature of this home is the safe, which is accessible from the laundry room. This feature offers an extra layer of security for your valuables and peace of mind knowing that your belongings are well-protected.
PL-62313 Dalton Barndominium House Plans

- 1870 Heated square feet
- 798 square foot attached 2 car garage
- 3 bedrooms
- 2.1 bathrooms
- 1 Story
- Flex Room
- Utility Room
- Open Concept
- The Dalton barndominium house plan is 1870 heated square feet and features 3 bedrooms, 2 full bathrooms, 1 1/2 bathroom, and an attached 798 square foot attached 2 car garage.
- You’ll love the open-concept design of this floor plan that allows for easy flow between the main living areas.
- The living room is large and spacious allowing plenty of space to gather and create memories as family and friends.
- The giant master suite is located on the opposite end of the home from the other bedrooms, providing maximum privacy and seclusion. With its spacious walk-in closet and luxurious en suite bathroom, it is the perfect place to relax after a long day.
- The secondary bedrooms are a good size and include ample closet space, so there’s plenty of room for everyone. And with a shared bathroom between two of the bedrooms, it makes getting ready a breeze. The half bathroom is great for guests to use.
- The flex room is a great addition to this home. It can be used for anything from a home office to a playroom for the kids.
PL-62513 Harper Barndominium House Plan
- 2132 Heated square feet
- 30×60 living space dimension
- 3 bedrooms
- 2 bathrooms
- 2 Story
- Loft
- Office
- Bonus Room
- Attic Space
- Open Concept
- The Harper barndominium house plan is 2132 heated square feet and features 3 bedrooms and 2 full bathrooms.
- As you step inside the main floor of this home you are welcomed into a beautiful and spacious open floor plan. The family room takes center stage with the cozy fireplace and the large space for everyone to gather.
- The kitchen is perfect for preparing meals and the pantry is the perfect size for storing food and small appliances.
- The master bedroom is a nice size with a great ensuite bathroom and master closet.
- As you venture to the other side of the home you will find 2 secondary bedrooms both with decent size closets and a shared hall bathroom.
- The office is tucked away making it the perfect escape for those who need a quiet space while working from home.
- The laundry room leads to the back patio and is a great size for all your laundry needs.
- At the top of the stairs, you will find a great-sized bonus room full of possibilities. Not only that you will find an abundance of attic space.
- This home is the perfect floor plan to relax and connect with nature with the inviting front porch and back patio for private outdoor enjoyment.
PL-62840 Dean Barndominium House Plan
- 1800 Heated square feet
- 2 Bedrooms
- 2.1 Bathrooms
- Single story
- Open concept
- Foyer
- Front porch
- Rear patio
- The perfect blend of comfort and style with this charming single-story home, offering 1,800 heated square feet.
- Features 2 spacious bedrooms and 2.1 bathrooms, this open-concept floor plan welcomes you with a cozy foyer and flows effortlessly into the living spaces.
- Enjoy your mornings on the front porch and unwind in the evenings on the rear patio, making this home a true oasis.
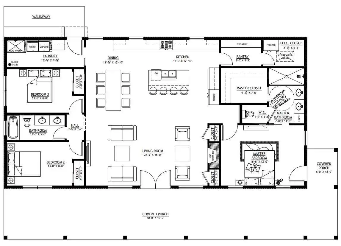
PL-63002 Graham Barndominium House Plan
- 1848 Heated square feet
- 778 square foot Attached 3 car garage
- 3 bedrooms
- 3 bathrooms
- 2 Story
- Loft
- Mudroom
- Media Room
- Open Concept
- The Graham barndominium house plan is 1848 heated square feet and features 3 bedrooms, and 3 full bathrooms, with an attached 778 square foot garage.
- As you enter this home through the double front doors you are immediately wowed by the beautiful staircase that leads upstairs. The family room sits to the right and is large and spacious. You will be drawn to the fireplace as it creates a nice cozy atmosphere.
- The kitchen is big and perfect for hosting friends and family. The island creates even more space to prep and serve. The walk-in pantry is perfect for storage of small appliances and food. There is even plenty of space for a nice breakfast nook.
- The first floor features a master bedroom with an ensuite bathroom and master closet.
- You will also find a secondary bathroom with a full bathroom.
- Just off the garage is a mudroom perfect for coming in from outside as well as a laundry room.
- As you climb the stairs you will notice a great balcony that overlooks the main areas of the home.
- You will also find another secondary bedroom with a large closet and bathroom.
- There is a nice-sized game room that can be used for anything your heart desires.
- An added bonus upstairs is a huge storage closet perfect for storing toys, holiday decor, and more.
- The 778-square-foot attached 3-car garage provides ample space for parking and storage.
- You will love how the front porch extends to the sides, you can enjoy the beautiful scenery and relax in the fresh air.
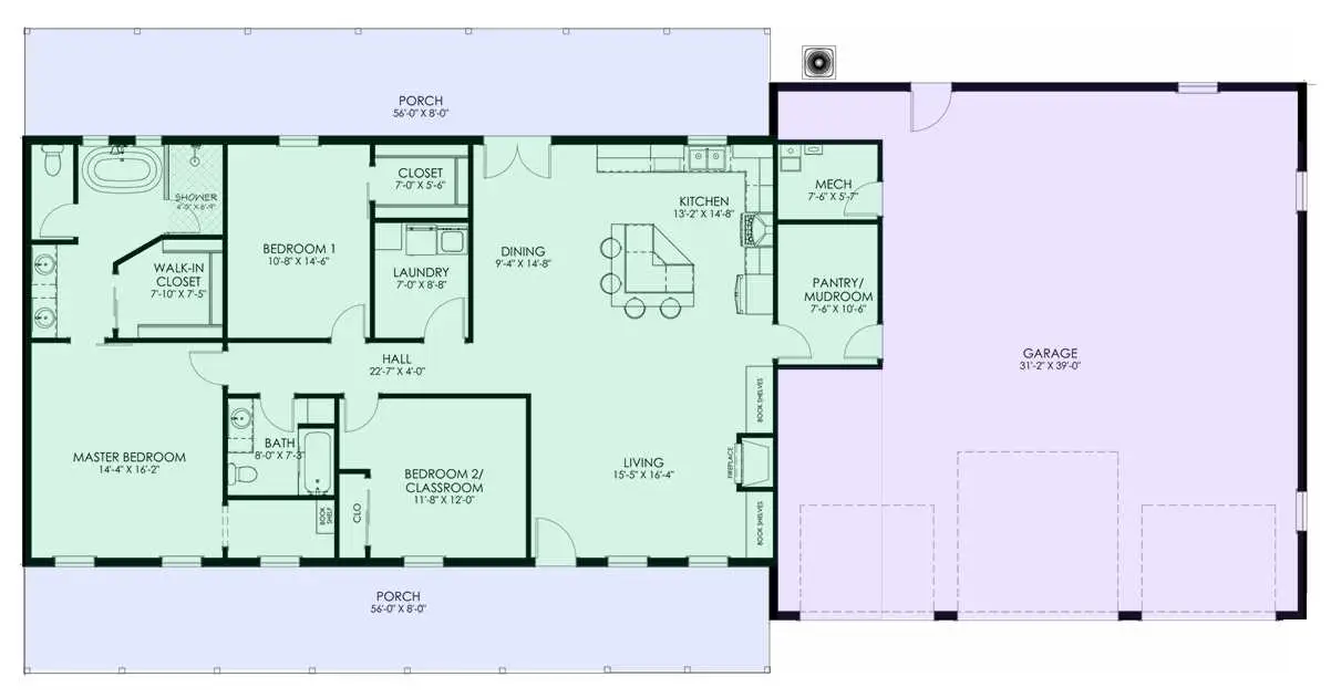
PL-64031 Ford Barndominium House Plan
- 1,800 Heated Sq Ft
- 30×60 living space dimension
- 3 bedroom
- 2 bathrooms
- Single Story
- Open Concept
- Wheelchair-accessible master bathroom
- Dog wash
- Front porch
- This 1,800-square-foot layout stretches across a 30×60 footprint—designed for simple living with a spacious feel and smart spatial flow.
- The master bath is thoughtfully designed for accessibility—offering comfort, ease of movement, and inclusive living without compromise.
- A built-in dog wash in the laundry room makes pet care easy and mess-free—perfect for muddy paws, post-adventure rinses, or everyday grooming.
- The covered front porch adds a welcoming touch—ideal for quiet mornings, neighborly chats, or simply enjoying the rhythm of a slower day.
PL-69194 Florian Barndominium House Plan

- 1842 Heated square feet
- 3 bedrooms
- 2 bathrooms
- Single Story
- Open Concept
- Laundry room
- A charming home featuring three spacious bedrooms and two pristine bathrooms. This inviting property offers ample space for a growing family or those seeking room to spread out.
- A spacious home featuring a sprawling master bedroom, complete with a generously sized closet and an en-suite bathroom. The ultimate combination of comfort and functionality is achieved with the added convenience of a connected laundry room, making everyday living a breeze.
- A modern home with an open-concept family room and kitchen at its heart. The home also features two additional bedrooms, perfect for family members or guests, which share a well-appointed bathroom.
RP-10002 Radcliffe Barndominium House Plans
- 1800 Heated Square Feet
- 36×50 living space dimension
- 3 Bedrooms
- 2 Bathrooms
- Single-story
- Open-concept
- Utility room
- Front & rear porch
- This 1800 sq ft living area is perfect for anyone who desires a spacious and comfortable living space. With its stunning design, this house plan is perfect for those who love the charm of a barn-style home but crave the modern amenities of a new house.
- This stunning house plan features a giant master bedroom on the opposite end of the home from the other two bedrooms, ensuring privacy and tranquility for those who need it. The master bedroom also boasts an en-suite bathroom and a walk-in closet, adding to its luxury and comfort.
- The two additional bedrooms are located on the opposite end of the house, with a shared bathroom in between them. This layout is perfect for families or guests, allowing for plenty of personal space while still providing a sense of togetherness. Each bedroom also features a closet, providing ample storage for all of your belongings.
- One of the standout features of this house plan is its front and back porches. These outdoor spaces are perfect for enjoying the beautiful scenery around your home, hosting a barbecue with friends and family, or simply relaxing with a good book. With plenty of space, you can create an outdoor living area that is perfect for your needs.
- The living room of the Radcliffe Barndominium House Plan is a showstopper, featuring a fireplace that is perfect for cozy winter nights. The open-concept design of the living room, dining room, and kitchen creates a very spacious feel.
RP-10002-L Langston Barndominium House Plans
- 1,800 Heated Sq Ft
- 36×50 living space dimension
- 3 bedroom
- 2 bathrooms
- Single Story
- Open Concept
- Utility room
- Front & rear porch
- This 1,800-square-foot layout stretches across a 36×50 footprint—designed for simple living with a clear, open flow and just the right amount of space to feel grounded and uncluttered.
- Positioned near the front entrance, the utility room includes its own exit door—perfect for quick outdoor access, chore flow, or keeping messes contained.
- Two covered outdoor zones—one welcoming from the front, the other more expansive at the rear—offer shaded space for relaxing, gathering, or enjoying the rhythm of everyday life.
RP-10003 Henry Barndominium House Plan
- 1,800 Heated Sq Ft
- 36×50 Living space dimension
- 3 Bedrooms
- 2.1 Bathrooms
- Single Story
- Open concept
- Storage
- Utility room
- Front & rear porch
- A well-designed 1,800 square feet of heated living space offers cozy yet flexible comfort for multi-generational households.
- Three bedrooms offer privacy and versatility—ideal for parents, children, or extended family living under one roof.
- Two full baths and a powder room ensure smooth daily routines and easy hosting across generations.
- The single-level layout supports accessibility and ease, perfect for aging in place or young families alike. An open-concept design fosters connection, allowing shared spaces to flow naturally while maintaining comfort and clarity.
- Smart storage solutions keep essentials organized, supporting a tidy, functional home for multiple generations.
- A dedicated utility room adds practical charm, streamlining laundry, cleaning, and household management.
- Covered porches at both ends of the home invite outdoor living, offering shaded retreats for every generation to enjoy.
RP-10005 Hopkins Barndominium House Plan
- 1,800 Heated Sq Ft
- 36×50 Living space dimension
- 3 Bedrooms
- 2 Bathrooms
- Single Story
- Open concept
- Utility room
- Front & rear porch
- With 1,800 heated square feet, you have the room to live, grow, and create lasting memories. It’s the perfect size for a family home, offering a blend of cozy nooks and open, airy spaces.
- Imagine the possibilities with a remarkable 36’x50′ living area! This expansive footprint provides a truly blank canvas for your design dreams. This generous dimension allows for a life without limits.
- Find your personal sanctuary in one of three inviting bedrooms. Each room is designed to be a peaceful retreat, offering a comfortable space for rest, relaxation, or productive work.
- Enjoy the convenience and luxury of two full bathrooms. No more waiting in line! One can serve as a tranquil private escape, while the second is perfect for guests and daily family routines. These well-appointed spaces combine style and functionality, making mornings and evenings effortless.
- Keep your home organized and clutter-free with a dedicated utility room. This practical space is a powerhouse of efficiency, offering a convenient spot for laundry, storage, and household tasks.
SV-30002 Belmont Custom Home Plan

- 1,878 Heated Sq Ft
- 3 Bedrooms
- 2 Bathrooms
- Single Story
- Open concept
- Storage area
- Office
- Front porch & rear porch
- 613 sq ft garage
- This thoughtfully designed home spans 1,878 heated square feet, creating an intimate yet spacious single-story living experience.
- The three well-appointed bedrooms offer comfortable and private retreats for family and guests.
- The home features two full bathrooms, including a private master bath and a second common bathroom for convenience.
- A dedicated storage area within the garage provides an organized space for tools, seasonal items, and recreational gear.
- A flexible office space offers a quiet place for work or can easily be converted into a fourth bedroom to suit your family’s needs.
- A spacious 613-square-foot, two-car garage provides abundant room for vehicles and extra storage.
- The strategically placed laundry area is right next to the master bedroom, making chores more convenient and efficient.
SV-5503 Parker Barndominium House Plan
- 1862 Heated square feet
- 2 Bedrooms
- 2.1 Bathrooms
- Open concept
- Fireplace
- Storage loft
- Utility room
- Garage/shop
- Step into a world of rustic elegance with our 1862-square-foot barndominium. Two spacious bedrooms await, along with 2.1 bathrooms for your comfort.
- The cozy fireplace beckons you to unwind while the storage loft provides extra space for safekeeping other things. And don’t forget the practicality of the attached garage/shop – perfect for hobbies or storage.
Conclusion
Designing your barndominium is a challenge but knowing what is possible can be a big help. These 1800 sq ft barndominium floor plans can give you a good idea of what you can do and how your home can function. With a little bit of creativity, you can create something that you will love for many years to come.
If you would like more guides like this one, check out the rest of BarndominiumLife.com. There, you will find more helpful tips and tricks from the pros.
You will also find featured barndominiums, stock barndominium house plans, custom barndominium house plans, and information on financing and insurance.
Just starting out? Check out the Barndominiums Made Easy Program. It has our “How to Build Guide”, 120+ House Plans, and the Bid and Budget Tracker. Knowing as much as you can will help you get the best results for your dream home.
Find More Barndominium Floor Plans
By Bedrooms:
1 Bedroom • 2 Bedrooms • 3 Bedrooms • 4 Bedrooms • 5 Bedrooms • 6 Bedrooms • 7 Bedrooms • 8 Bedrooms
By Feature:
1-Story • 2-Story • With Garage • 2 Car Garage • 3 Car Garage • Wraparound Porch • With Breezeway • 2 Master Suites • With Loft • Multi-Family Barndominiums • Open-Concept
By Size:
Small Plans • 800 Sq Ft • 900 Sq Ft • 1000 Sq Ft • 1200 Sq Ft • 30×40 Floor Plans • 1400 Sq Ft • 1500 Sq Ft • 1600 Sq Ft • 40×40 Floor Plans • 1800 Sq Ft • 30×60 Floor Plans • 2000 Sq Ft • 2400 Sq Ft • 2500 Sq Ft • 2800 Sq Ft • 3000 Sq Ft • 3200 Sq Ft • 3600 Sq Ft • 4000 Sq Ft • 5000 Sq Ft •































































