If you are looking to build a barndominium, we have some great options for a 2000 sq ft barndominium floor plan. Check out these floor plans and be inspired in no time.
One of the best parts of building a barndominium is putting together the floor plan. Floor plans are your opportunity to create the perfect home with everything you want to include and all the amenities you could need. Even if you only have a set amount of space, you can come up with something incredible. There are some amazing ways to make great use of 2000 sq ft barndominium floor plans.
Before you start designing your layout, it can be helpful to know what others have done. To help you start and get inspired, we have put together a collection of 2000 sq ft barndominium floor plans. These plans can help you design your own plan, or you can use one of them as-is. By knowing what is possible, you can create the perfect home for yourself and your family.
Page Contents
Outstanding 2000 Sq Ft Barndominium Floor Plans
AP-20002 Cottonwood Barndominium House Plan

- 2000 Heated square feet
- 4 Bedrooms
- 2 Bathrooms
- Single story
- Open concept
- Front and back porch
- Mudroom
- Mechanical room
- This single-story design features an open-concept living space, seamlessly connecting the kitchen, dining, and living areas. Enjoy the tranquility of a front porch and the privacy of a back porch, perfect for relaxation or entertaining.
- Features four bedrooms: a secluded master suite on one side of the house, offering a peaceful retreat, while the other three bedrooms are positioned on the opposite side, ideal for family or guests. The strategic placement ensures personal space for all occupants.
- Includes two bathrooms: a private master bathroom for the ultimate in convenience and a shared bathroom to accommodate both family members and guests with ease.
- This floor plan meets all your practical needs and incorporates a mudroom, mechanical room, and both front and back porches for comprehensive functionality in your home.
AP-20003-FB Franklin Barndominium House Plan
- 2000 Heated Square Feet
- 2 Bedrooms
- 2.1 Bathrooms
- Three-story layout
- Open-concept
- Mudroom
- Unfinished Basement
- 1200 SF 3-Car garage
- Storage loft
- Wraparound porch
- 2000 Heated Square Feet – Just the right size: spacious, efficient, and easy to manage.
- 2 Bedrooms – Roomy and private with space to unwind or host.
- 2.1 Bathrooms – Two full baths plus a powder room for guests.
- Three-story layout – Vertical living with separation, style, and stunning views.
- Open-concept – Airy, seamless flow from kitchen to living and dining.
- Mudroom – Keep the mess at the door—every country home’s secret weapon.
- Unfinished Basement – Blank canvas for a home gym, media room, or workshop.
- 1200 SF 3-Car Garage – Massive garage space for vehicles, toys, and projects.
- Storage Loft – Bonus overhead space to stash seasonal stuff or gear.
- Wraparound Porch – Classic charm meets outdoor living, all the way around.
BCO-40001 Daxton Barndominium House Plan


About this barndominium house plan:
- 2,000 Heated Square Feet
- 40×50 living space dimension
- 3 Bedrooms
- 2 Bathrooms
- Single-story layout
- Open-concept living and dining area
- Vaulted ceilings throughout
- Expansive 50-foot front porch
- Dedicated laundry room and pantry
- Spacious master suite with walk-in closet
This beautifully designed home offers 2,000 square feet of efficient and comfortable living space, ideal for those who love open and functional floor plans. The three well-proportioned bedrooms ensure ample space for family or guests, each designed to offer privacy and tranquility.
With two full bathrooms, this home provides a seamless balance of convenience and style, featuring modern fixtures and thoughtful layouts for everyday use. The single-story design ensures accessibility and ease of movement, making it a practical choice for any stage of life.
The open-concept living and dining area is designed for both relaxation and entertaining, complemented by vaulted ceilings that add a sense of grandeur and openness. The 50-foot front porch enhances the home’s curb appeal while providing a perfect outdoor retreat for relaxation and social gatherings.
Practicality is a priority, with a well-appointed laundry room and a dedicated pantry offering ample storage solutions. The spacious master suite includes a walk-in closet and an en-suite bathroom, creating a private oasis within the home.
BCO-40001-G Grandview Barndominium House Plan

- 2,000 Heated Square Feet
- 40×50 living space dimension
- 3 Bedrooms
- 2 Bathrooms
- Single-story layout
- Open-concept living and dining area
- Vaulted ceilings throughout
- Expansive 50-foot front porch
- Dedicated laundry room and pantry
- Spacious master suite with walk-in closet
- 375 Sq ft garage
- This beautifully designed home offers 2,000 square feet of efficient and comfortable living space, ideal for those who love open and functional floor plans. The three well-proportioned bedrooms ensure ample space for family or guests, each designed to offer privacy and tranquility.
- With two full bathrooms, this home provides a seamless balance of convenience and style, featuring modern fixtures and thoughtful layouts for everyday use. The single-story design ensures accessibility and ease of movement, making it a practical choice for any stage of life.
- The open-concept living and dining area is designed for both relaxation and entertaining, complemented by vaulted ceilings that add a sense of grandeur and openness. The 50-foot front porch enhances the home’s curb appeal while providing a perfect outdoor retreat for relaxation and social gatherings.
- Practicality is a priority, with a well-appointed laundry room and a dedicated pantry offering ample storage solutions. The spacious master suite includes a walk-in closet and an en-suite bathroom, creating a private oasis within the home.
- Small in size, mighty in function—this 375-square-foot wonder is where wheels rest easy, gear finds a home, and weekend tinkering gets its spotlight. Consider it your car’s cozy retreat with room to wrench and roam.
LP-71006 Holly Barndominium House Plan

- 4 Bedrooms
- 3.1 Bathrooms
- 3360 Heated Square Feet
- 2-story
- Loft
- Mechanical room
- Attached 3-car garage
- Porch
- Storage spaces
- Bonus space
- Magnificent 4-bedroom, 3.1-bathroom, 2-story home spanning 3,360 heated square feet. Each room is thoughtfully designed for your ultimate comfort.
- Embrace versatile living with a loft area ideal for an office or relaxation, and utilize the bonus space for hobbies, crafts, or extra storage.
- The mechanical room ensures household systems are conveniently accessible.
- Enjoy the practicality of generous storage spaces and the convenience of an attached 3-car garage.
- Unwind on the charming porch, and experience a harmonious blend of sophistication and functionality.
LP-2804 Legg Barndominium House Plans
- 2000 Heated square feet
- 1200 square feet detached 2 car garage
- 4 bedrooms
- 2 bathrooms
- 1 Story
- Open Concept
- The Legg Barndominium house plan is 2000 heated square feet and features 4 bedrooms and 2 bathrooms.
- You will love the 1200 square feet detached garage that offers plenty of room for parking your vehicles as well as storage, but the feature you will love the most is the storm shelter that gives you peace of mind during every severe weather storm.
- This house plan is a lovely open concept so that the whole family feels connected when in the living room, dining room, and kitchen. The vaulted ceilings allow this area to feel even more grand.
- The kitchen is spacious with a nice size island that allows for more storage and prep. Located in the corner of the kitchen is a moderate-sized pantry.
- In this Legg Barndominium house plan, all the bedrooms and laundry room offer 10-foot ceilings which makes the home feel even more spacious.
- The master bedroom is a nice size with an ensuite bathroom and a walk-in closet that leads to the laundry room.
- Located on the other side of the house are three additional bedrooms that share one common bathroom.
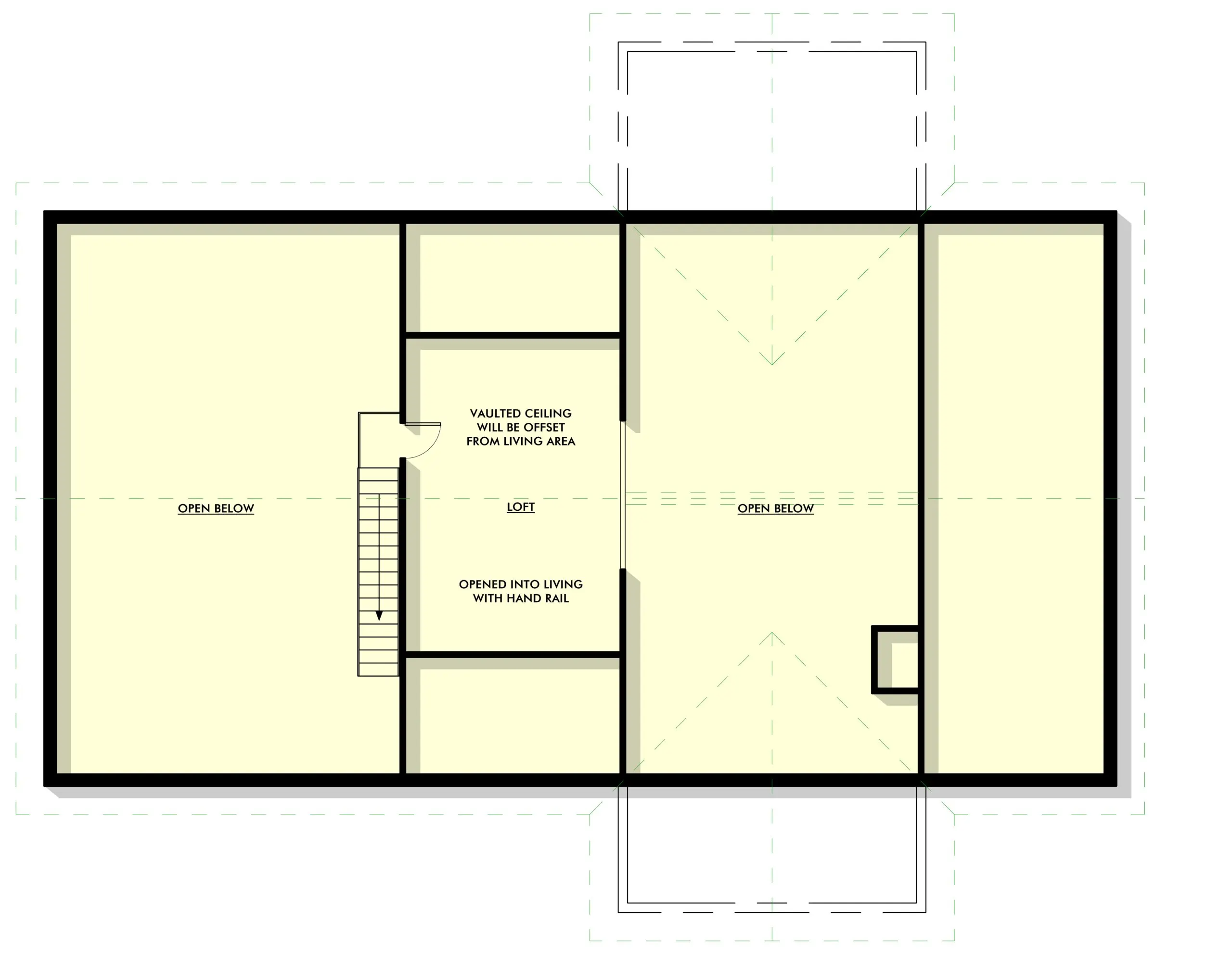
LP-3202 Phoenix Barndominium House Plan


- 2000 Heated square feet
- 1000 square foot attached garage
- 3 bedrooms
- 2 bathrooms
- 2 Story
- Open Concept
- Loft
- Fireplace
- The Phoenix barndominium is 2000 heated square feet and features 3 bedrooms and 2 bathrooms.
- This open-concept home allows everyone to feel connected whether they are in the kitchen cooking or relaxing in the living area.
- The fireplace in the living room creates a warm inviting atmosphere.
- The kitchen is large and spacious and has a big island perfect for food prep, serving, or feeding the family quickly.
- The master is a nice size with a large master bathroom with a stand-alone tub and shower. The closet allows for plenty of storage of all your favorite clothes keeping your room neat and clutter-free from clothes.
- The secondary bedrooms are spacious with large closets with a shared bathroom in the hall between the two rooms.
- Upstairs is a nice-sized loft that opens into the living area of the home. This space is perfect for a home office, playroom, or anything else you desire it to be.
- With front and back porches, there is plenty of outdoor space to entertain all year long.
PL-60408 Sandy Barndominium House Plan
- 2000 Heated square feet
- 4 Bedrooms
- 2 Bathrooms
- Bathroom
- Single Story
- Open concept
- 2000 heated square feet spacious haven offering ample room for comfort, functionality, and personal flair.
- Versatility meets privacy—perfect for a growing family, guests, or that dream home office with 4 bedrooms.
- Streamlined and stylish spaces designed to handle busy mornings and relaxing evenings effortlessly with the 2 bathrooms.
- Seamless living with no stairs—enjoy the ease and elegance of everything on one level on this single-story, open concept layout.
PL-61901 Athena Barndominium House Plan

- 2000 Heated Sq Ft
- 4 Bedrooms
- 2 Bathrooms
- Single Story
- Open concept
- Mechanical room
- Wraparound porch
- Spanning 2000 square feet of heated space, this home offers ample room for comfortable living and entertaining throughout the year.
With four spacious bedrooms, there’s plenty of room for family members, guests. - Enjoy the convenience of two well-appointed bathrooms, making morning routines and evening unwinds a breeze for everyone.
- The single-story, open-concept layout ensures ease of accessibility and mobility, allowing for easy flow between the living, dining, and kitchen areas and a seamless living experience without the need for stairs.
- The attached 2-car garage comes with a mechanical room housing a water tank, HVAC system, and water heater, offering convenient and organized storage for essential household systems.
- A charming wraparound porch invites you to relax and enjoy the outdoors, whether you’re sipping your morning coffee or watching the sunset.
PL-62312 Harmony Barndominium House Plan
- 2091 Heated square feet
- 739 square foot attached 3 car garage
- 5 bedrooms
- 3.1 bathrooms
- 1 Story
- Office
- Jack and Jill Bathroom
- Recreational Room
- Open Concept
- The Harmony barndominium house plan is 2091 heated square feet and features 5 bedrooms, 3 full bathrooms, 1 1/2 bathroom, and an attached 739 square foot attached garage.
- As you enter this spacious house plan you are welcomed into a cozy entryway that leads to the main living area of the home. The living room, dining room, and kitchen are open and create the perfect space for entertaining and gathering together.
- The kitchen has a great island and a nice walk-in pantry perfect for storing appliances and food to keep your home nice and tidy.
- Just off the entryway is a spacious home office perfect for working from home.
- The master bedroom features a private ensuite bathroom, and master closet offering a tranquil retreat for relaxation and rejuvenation.
- The 4 secondary bedrooms are on the other side of the main living area of the home. Each one has a large closet. Each bedroom shares a jack-and-jill bathroom with another bedroom making it super convenient for kids to get ready in the morning.
- Located in between the secondary bedrooms is a large recreation room with a large storage closet. Perfect to make a playroom or teenage hangout.
- We can’t forget to mention 739 square foot attached 3 car garage that offers abundant storage and parking options, ensuring convenience and organization.
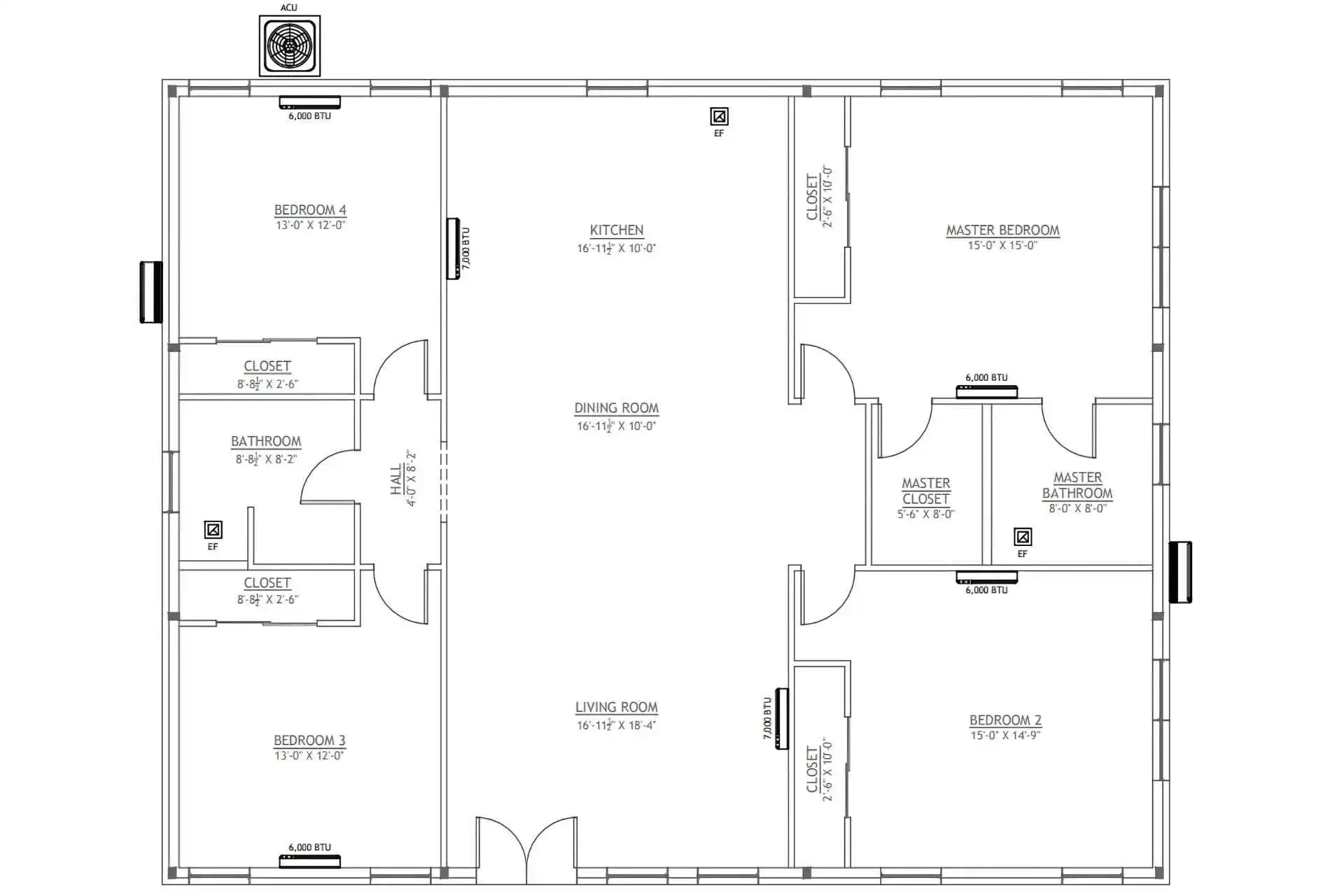
PL-62512 Alexander Barndominium House Plan
- 2000 Heated square feet
- 3 bedrooms
- 2 bathrooms
- 1 Story
- Office
- Open Concept
- The Alexander barndominium house plan is 2000 heated square feet and features 3 bedrooms and 2 full bathrooms.
- As you step inside the Alexander home, you are greeted by a grand entrance foyer that leads you into the heart of the home.
- The spacious open-concept family room takes center stage, complete with a cozy fireplace that exudes warmth and elegance. The dining and kitchen areas are seamlessly integrated, creating a seamless flow for entertaining and everyday living.
- The kitchen is large with a super functional layout perfect for preparing and serving food. The corner pantry is a great addition as well.
- The master bedroom offers is the perfect size with an ensuite bathroom and master closet.
- The secondary bedrooms are located on the other side of the home, both a good size with nice-sized closets. These bedrooms share the second bathroom of the home which is located in between both bedrooms.
- You will notice that there is a large laundry room the leads to outside.
- Another added bonus is the nice office perfect for working from home.
- You will find lots of storage throughout the home which is an owner’s dream.
- The front porch and back patio extend your living space outdoors, allowing for relaxing moments and entertaining guests in a serene environment.
PL-63301 Windermere Barndominium House Plan
- 2000 Heated Square Feet
- 4 Bedrooms
- 2.1 Bathrooms
- Single story
- Open concept
- Mudroom
- Fireplace
- Mechanical room
- Attached 2-car garage
- Wraparound Porch
- This spacious home offers 2000 heated square feet, providing ample room for comfortable living and entertaining.
- Featuring four bedrooms, this home is ideal for families or guests, offering privacy and flexibility for various needs.
- With two full bathrooms and an additional powder room, you’ll have plenty of facilities to accommodate residents and guests.
- Convenience at its finest—this unique feature allows easy access from the master closet to the laundry room, streamlining your daily chores.
- Enjoy the ease of single-story living with an open-concept design that promotes a seamless flow between living spaces.
- The combined mudroom and laundry room offers practical storage and organization solutions, keeping the rest of your home clutter-free.
- Cozy up by the fireplace, a charming focal point that adds warmth and ambiance to the living area.
- The Mechanical Room houses the water tank, HVAC, and water heater ensuring efficient and accessible home maintenance.
- The attached 2-car garage includes a mechanical room and powder room, providing extra convenience and utility.
- Relax and enjoy outdoor living on the wraparound porch, perfect for entertaining or simply savoring the surrounding views.
PL-64013 Gibbons Barndominium House Plan
- 2000 Heated Sq Ft
- 4 Bedrooms
- 2 Bathrooms
- Storage spaces
- Mechanical room/Laundry room
- Open concept
- Single-story
- Front and back porch
- Spacious 2,000 heated sq ft with room to stretch, entertain, and relax in style.
- 4 bedrooms designed with comfort and privacy in mind—perfect for families or guests.
- 2 modern and functional bathrooms with plenty of space to start your day right.
- Never worry about clutter—dedicated storage keeps everything organized.
- Mechanical Room/Laundry Room: All your utilities and laundry needs neatly tucked away for maximum efficiency.
- Seamless flow from the living area to the kitchen—ideal for gatherings and everyday living in a single-story layout.
- Enjoy morning coffee out front and sunset views out back—your new favorite spots to unwind.
PL-64013-C Centerfield Barndominium House Plan
- 2000 Heated Sq Ft
- 40×50 living space dimensions
- 4 Bedrooms
- 2 Bathrooms
- Storage spaces
- Mechanical room/Laundry room
- Open concept
- Single-story
- Front and back porch
- Generous 2,000 heated sq ft offers the ideal backdrop for stylish living, effortless entertaining, and everyday comfort.
- Four thoughtfully arranged bedrooms provide a restful retreat—perfect for hosting loved ones or enjoying personal space.
- Two sleek, well-appointed bathrooms help jump-start your mornings and wind down with ease.
- Smart storage solutions mean clutter is out of sight and everything has its place.
Laundry and mechanical needs are handled with ease in a dedicated utility room that streamlines your daily routine. - An open-concept design links the kitchen and living space—perfect for connection, conversation, and convenience.
- Start the day with sunshine out front and unwind with evening glow out back—outdoor living at its finest.
PL-69196 Apollo Barndominium House Plan
- 2062 Heated Sq Ft
- 5 Bedrooms
- 2.5 Bathrooms
- Laundry room
- Open concept
- Single Story
- 2222 Sq Ft Garage/Shop
- As you step inside, you’ll find a generous great room, where the living area, dining space, and kitchen seamlessly blend together. Large windows allow natural light to flood the interior, emphasizing the sense of openness.
- This spacious floor plan offers five bedrooms and 2.5 bathrooms. The master suite features its own private bathroom. Additionally, residents benefit from a shared bathroom and a half bathroom in the shop area adds practicality.
- This floor plan features a spacious 39’ x 29’ shop, providing ample room for various activities. With its generous dimensions, you can set up anything to suit your needs.
- Adjacent to the shop, you’ll find a practical 39’ x 25’ 2-car garage, comfortably accommodating two vehicles. It’s not only functional but also convenient for protecting your cars from the elements. The extra width allows for easy maneuvering and additional storage.
PL-69199 Victoria Barndominium House Plan
- 2023 Heated square feet
- 4 bedrooms
- 2 bathrooms
- 1 Story
- Open Concept
- Mechanical Room
- Laundry Room
- Beautifully designed 1-story floor plan that spans across 2023 heated square feet. This open-concept design ensures a seamless flow between living spaces. The generous square footage allows for spacious rooms and ample storage.
- A meticulously designed floor plan featuring 4 bedrooms and 2 bathrooms. Each bedroom offers a private retreat while the shared spaces encourage family interaction. The two bathrooms are strategically located for easy access.
- This layout features a dedicated mechanical room for all your utilities, ensuring easy maintenance and access. The highlight of this design is the laundry room, ingeniously accessible from the master bedroom closet. This unique feature brings a new level of convenience to your daily routine.
SV-5502 Carter Barndominium House Plan

- 2000 Heated square feet
- 3 Bedrooms
- 2 Bathrooms
- Single story
- Open concept
- Wood stove
- Discover the charm of country living with this 2000 square foot barndominium floor plan. This single-story haven offers three spacious bedrooms and two full bathrooms.
- The open concept design seamlessly blends the living, dining, and kitchen areas, creating a welcoming space for gathering and entertaining.
- A cozy wood stove at the spacious living area adds a touch of rustic warmth, making this barndominium a perfect blend of modern convenience and country comfort.
Conclusion
When designing 2000 sq ft barndominium floor plans, you should keep an open mind about what is possible. By knowing what others have done, you can design a beautiful home. These plans should help you find the perfect layout for your custom barndominium.
If you would like more guides like this one, check out the rest of BarndominiumLife.com. There, you will find more helpful tips and tricks from the pros.
You will also find featured barndominiums, stock barndominium house plans, custom barndominium house plans, and information on financing and insurance.
Just starting out? Check out the Barndominiums Made Easy Program. It has our “How to Build Guide”, 120+ House Plans, and the Bid and Budget Tracker. Knowing as much as you can will help you get the best results for your dream home.
Find More Barndominium Floor Plans
By Bedrooms:
1 Bedroom • 2 Bedrooms • 3 Bedrooms • 4 Bedrooms • 5 Bedrooms • 6 Bedrooms • 7 Bedrooms • 8 Bedrooms
By Feature:
1-Story • 2-Story • With Garage • 2 Car Garage • 3 Car Garage • Wraparound Porch • With Breezeway • 2 Master Suites • With Loft • Multi-Family Barndominiums • Open-Concept • With Shop
By Size:
Small Plans • 800 Sq Ft • 900 Sq Ft • 1000 Sq Ft • 1200 Sq Ft • 30×40 Floor Plans • 1400 Sq Ft • 1500 Sq Ft • 1600 Sq Ft • 40×40 Floor Plans • 1800 Sq Ft • 30×60 Floor Plans • 2000 Sq Ft • 2400 Sq Ft • 2500 Sq Ft • 2800 Sq Ft • 3000 Sq Ft • 3200 Sq Ft • 3600 Sq Ft • 4000 Sq Ft • 5000 Sq Ft •





























Heather Henderson
Wednesday 22nd of May 2024
Please send more plans like these. Thank you.
Barndominium Life
Wednesday 22nd of May 2024
https://barndominiumlife.com/subscribe feel free to sign up for our email list! Lots of plans, right in your inbox.