If you’re looking to add a touch of elegance, functionality, and architectural beauty to your barndominium, then a breezeway is the perfect addition. These unique architectural features not only enhance the overall appeal of your home but also offer practical benefits such as improved airflow, seamless indoor-outdoor integration, and an inviting space to relax and enjoy the surrounding landscape. So, whether you’re seeking inspiration for your own barndominium design or simply intrigued by the allure of breezeways, join us as we delve into the world of barndominium floor plans with breezeways and uncover the endless possibilities they hold.
Get ready to be inspired and discover how this architectural gem can transform your barndominium into a haven of comfort and style.

Page Contents
Barndominium Floor Plans with Breezeway
We’ve gathered 8-floor plans specially designed for barndo homes with a breezeway. Some are perfect for large families, while others are more appropriate for medium-sized households. Take a look and get inspiration so you can draft yours according to your family’s specific lifestyle.
Barndominium Floor Plans with Breezeway – Modern Designs with Master Bedroom and Family Room
Many large households wish to have a family room where they can spend weekends bonding, playing indoor games, and watching movie marathons together. In the two layouts below, your wish is granted, thanks to the addition of a breezeway.
BP-2001 Brashear Barndominium House Plans
- 2567 Heated square feet
- 3 bedrooms
- 2.1 bathrooms
- Single Story
- Open Concept
- 1230 sq ft detached garage
- Mudroom
- Office
- Front and back porch
- Covered porches
- Covered patio
- Beautifully crafted single-story home with an open concept layout, seamlessly integrating the living, dining, and kitchen areas.
- This thoughtfully designed floor plan with 2567 heated square feet of living space boasts 3 spacious bedrooms and 2.1 bathrooms.
- Enjoy the charm of covered front and back porches, where you can relax with a cup of coffee or enjoy an evening breeze. The covered patio offers an ideal spot for outdoor dining or hosting summer barbecues.
- The 1230 sq ft detached garage provides plenty of space. Whether you use it for vehicles, tools, or as a workshop, you’ll appreciate the convenience and functionality it offers.
- The home includes a dedicated office, perfect for remote work or study, and a practical mudroom to keep your living areas clean and organized.
- Connecting the main house to the garage, the breezeway provides a charming and sheltered pathway, adding to the home’s overall appeal.
CDD-4101 Haven Barndominium House Plan
- 2400 Heated Sq Ft
- 2 Bedrooms
- 2.1 Bathrooms
- Single story
- Open concept
- Front porch/rear patio
- Office/spare room
- Foyer
- Mechanical room
- Mudroom
- Breezeway
- 4-car garage/shop
- A spacious 2400 square feet of heated living space, designed to blend comfort and style seamlessly.
- Two generously sized bedrooms, each offering a peaceful retreat with plenty of natural light and thoughtful design touches for a cozy yet sophisticated ambiance.
- Two full bathrooms, perfect for refreshing starts and unwinding finishes, complemented by a convenient powder room for your guests’ ease and comfort.
- A thoughtfully planned single-story open-concept layout that ensures easy accessibility, effortless flow, and a harmonious connection between all living spaces.
- Welcoming front porch to enjoy quiet mornings and greet guests, and a spacious rear patio perfect for outdoor dining, gatherings, or simply soaking up the sunshine.
- Versatile office or spare room ready to adapt to your needs—whether it’s a productive workspace, hobby room, or extra guest suite for visitors.
- An elegant foyer that sets the tone for the home, offering a warm and inviting entrance while providing a hint of the thoughtful design awaiting beyond.
- Discreet and functional mechanical room, carefully positioned to house essential systems without interrupting the flow or aesthetics of your living spaces.
- Charming breezeway that not only connects key areas of the home but also provides a breezy, shaded transition between indoors and out.
- Expansive 4-car garage that doubles as a shop, offering the perfect solution for vehicle storage, DIY projects, or indulging in hobbies with plenty of space to spare.
LP-71009 Bell Barndominium House Plan
- 4 Bedrooms
- 3 Bathrooms
- 2410 Heated Square Feet
- Open-concept
- 2-story
- Loft bonus space
- Patio
- Breezeway
- J&J Bathroom
- 3-car Detached Garage
- A 4-bedroom designed for both privacy and comfort, with well-placed locations throughout the house, ideal for family living.
- The 3 bathrooms are strategically distributed to ensure convenience and accessibility for all residents and guests.
- 2410 heated square feet of spacious and climate-controlled living areas, ensuring year-round comfort with 2 stories providing additional living space and functional areas across two levels, optimizing the home’s square footage.
- Seamless integration between the kitchen, dining, and living areas with open-concept creating a fluid and spacious living environment.
- With a versatile loft area that can be utilized as an office, playroom, or additional living space.
- A spacious patio provides an outdoor space perfect for entertaining, dining, or simply enjoying the outdoors while also functioning as a breezeway, adding both functionality and aesthetic appeal.
- A Jack and Jill bathroom is accessible from two bedrooms on the second floor offering efficient use of space.
- The 3-car detached garage provides ample parking and storage for your vehicles.
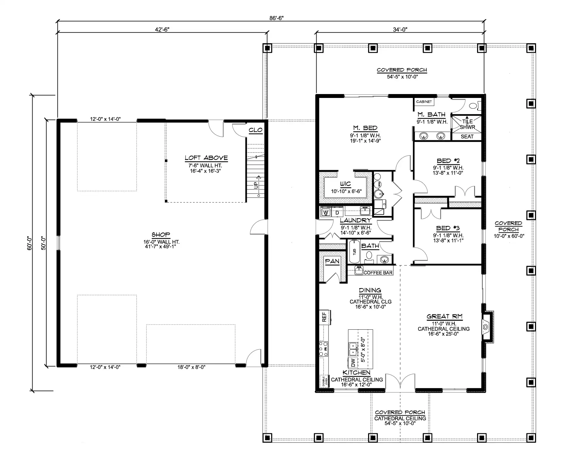
PL-64002 Gillian Barndominium House Plan
- 3984 Heated square feet
- 3 Bedrooms
- 2.1 Bathrooms
- Single story
- Open concept
- 3-car Garage
- Mudroom
- Basement
- Loft
- Breezeway
- Porch
- Patio
- This home offers a generous 3984 square feet of heated living space, including 2 additional levels- basement and loft, ensuring ample room for comfortable living and entertaining.
- Three spacious bedrooms provide plenty of personal space. Each room is designed to maximize comfort and functionality, perfect for restful nights.
- With two full bathrooms and one half-bath, this home ensures convenience and privacy for both family members and guests. The master bathroom features luxurious fixtures and a serene ambiance.
- The home is designed as a single-story layout, making navigation easy and accessible for all ages. This layout enhances the open-concept design and creates a seamless flow between rooms.
- A three-car garage provides ample space for vehicles, storage, and projects. This feature adds both convenience and practicality to the home, accommodating multiple cars and additional storage needs.
- The breezeway connects the garage to the main living area. This semi-open space allows for a sheltered transition while enjoying the outdoor elements.
- The mudroom serves as a transitional space between the outdoors and indoors.
- The basement offers a versatile area that can be customized to suit specific needs.
- The loft provides a cozy and flexible space for storage or can be transformed into an additional living area.
- The front porch adds charm and curb appeal, and a welcoming space to the home.
- The patio extends the living space outdoors, perfect for alfresco dining, entertaining, or simply enjoying the fresh air.
PL-71007 Serena Barndominium House Plan
- 1600 Heated square feet
- 2 Bedrooms
- 2.1 Bathrooms
- Single story
- Open concept
- Patio
- Parking Pad
- Breezeway
- Attached 2-car garage
- This exquisite single-story residence boasts an inviting 1600 heated square feet of thoughtfully designed living space. The home features 2 spacious bedrooms and 2.1 luxurious bathrooms, making it ideal for both relaxation and functionality.
- The open-concept layout seamlessly integrates the living, dining, and kitchen areas, creating a bright and airy environment. The kitchen offer ample counter space and modern appliances, with a direct view into the living area to keep everyone connected.
- Step outside to the charming patio, an ideal spot for morning coffee or evening gatherings, offering a serene outdoor retreat. The parking pad and attached 2-car garage provide convenient and secure parking options, making coming and going a breeze.
- A unique feature of this home is the breezeway, connecting the main house to the garage, offering a sheltered pathway that’s both practical and elegant.
BG-20035 Yorkdale Barndominium House Plan
- 2,050 Heated Sq Ft
- 3 Bedrooms
- 2 Bathrooms
- Loft
- Attic Storage
- Open concept
- Wraparound porch
- Breezeway
- 2,125 Sq Ft Shop
- A well-proportioned 2,050 square feet of heated living space offers comfort, flow, and room to grow.
- Three inviting bedrooms provide restful retreats, each designed for privacy and personal expression.
- Two full bathrooms ensure convenience and ease for both daily living and guest accommodations.
- A bright loft adds flexible space for lounging, working, or creative pursuits.
The attic offers discreet overhead storage—ideal for seasonal items, keepsakes, or future expansion. - The wraparound porch surrounds the home with charm and shaded outdoor living from every angle.
- A breezeway adds architectural character while linking indoor and outdoor spaces with ease and airflow.
- The expansive 2,125-square-foot shop is a dream space for makers, collectors, or entrepreneurs—ready to support bold ideas and big projects.
BP-2001-R Robert Barndominium House Plan
- 3194 Heated square feet
- 34×66 living space dimension
- 4 Bedrooms
- 3.2 Bathrooms
- Open concept
- Guest Suite
- Butler’s pantry
- Mudroom/Laundry area
- 1852 Sq Ft Detached Garage
- Breezeway
- Front & rear porch
- Patio with Outdoor Kitchen
- A spacious canvas of over 3,100 square feet, thoughtfully conditioned for year-round comfort. Every square foot is designed to support both grand entertaining and quiet retreat.
- A wide, balanced footprint measuring 34 by 66 feet offers architectural symmetry and interior flexibility—ideal for curated layouts and seamless flow.
- Four distinct sleeping quarters, each with its own rhythm and privacy. Whether hosting guests, growing a family, or creating multifunctional zones, these rooms adapt with grace.
- Three full baths and a powder room provide elegant utility across the home—ensuring comfort, convenience, and a touch of indulgence in every corner.
- A private guest suite offers autonomy and comfort for visitors or extended stays—complete with its own bath and thoughtful separation from the main living areas.
- Discreet and functional, the butler’s pantry enhances culinary flow with additional prep space, storage, and service access—ideal for hosting or everyday refinement.
- A hardworking transition zone designed for real life. This combined mudroom and laundry area offers a seamless drop-off for shoes, coats, and gear, while doubling as a laundry hub with room to sort, fold, and organize.
- This expansive detached garage offers over 1,800 square feet of versatile space—perfect for vehicle storage, workshop ambitions, or creative projects. Detached for privacy, yet seamlessly connected.
- A covered breezeway links the garage to the main home—offering architectural cohesion and sheltered passage, rain or shine.
- Dual porches frame the home with timeless charm. The front welcomes with grace, while the rear invites relaxation and outdoor living—each space crafted for seasonal enjoyment.
- Step outside and into your own alfresco haven. This patio is more than a place to sit—it’s a fully equipped outdoor kitchen designed for grilling, gathering, and savoring the moment blending culinary function with open-air charm. Durable surfaces, built-in appliances, and seamless flow from indoor to outdoor living make it a true extension of the home.
PL-62839 Wilkerson Barndominium House Plan
- 3180 Heated square feet
- 612 square feet attached garage
- 4 bedrooms
- 3 bathrooms
- Single Story
- Open Concept
- Foyer
- Office
- Safe
- Indoor and Outdoor Fireplace
- Porch and patio
- Mudroom
- Garage
- Storage rooms
- This spacious single-story floor plan spans 3,180 heated square feet, offering a comfortable and elegant living environment.
- The open-concept layout includes 4 bedrooms and 3 bathrooms, ensuring ample accommodation for family and guests.
- Upon entering, you’re greeted by a welcoming foyer, with the office and dining area situated right at the entrance. The open kitchen flows seamlessly into the living area with cozy fireplace.
- The home also includes a mudroom for added convenience, a safe for secure storage, and a generous back porch and a front patio with an outdoor fireplace area ideal for outdoor relaxation and entertaining.
- The breezeways on both sides of the house serve as 2-car garages, each with additional storage rooms on both ends.
Barndominium with Breezeway Example 1 – PL-61201

Have a large family? This barndo offers all the elbow room and amenities you need for comfortable living.
The breezeway is strategically placed between the living and sleeping sections. To the left are the vertically aligned living, dining, and kitchen areas. A pantry and a laundry room are added to the kitchen, which is also equipped with a 4-seater island.
From this structure, you can cross over the breezeway through a side door by the dining area to enter the other side of the home. A family room greets you, with a bathroom behind which it shares with 1 of the bedrooms. The front part is occupied by 2 bedrooms that share a bathroom in between. And to the back is the master bedroom with a master bathroom and master closet. Simply luxurious!
Barndominium with Breezeway Example 2 – PL-61202

This floor plan is an iteration of the above with 3 different features. You can see that the main door of the left section is found on the side instead of in front, making a horizontal alignment. This time, it is by the living room and also serves as the access door through the breezeway. Also, the family room is moved to the front part, though it still serves as the entry to the sleeping zone.
Barndominium Floor Plans with Breezeway – Classic Designs with Master Suite
For couples planning to age in place in their forever home, we offer two model barndos with larger master’s quarters to make your dream come true.
Barndominium with Breezeway Example 3 – PL-61203

This blueprint is ideal for large families who prefer having bigger bedrooms. The simple solution is to exclude the family room from the 2-floor plans above. Voila! More space for the sleeping quarters.
Similar to the 2 previous designs, this one also separates the living and sleeping sections with a breezeway in between. But here, the perspective is reversed – the living, dining, and kitchen areas are situated to the left while the bedrooms are to the right.
From the horizontally aligned living section, you can access the breezeway by the main door across the dining area. You then enter the other side of the home via a front hall.
Barndominium with Breezeway Example 4 – PL-61204

An iteration of the floor plan above, this layout adds even more space to the bedrooms by removing one of them. Also, the front hall in the sleeping section occupies a part of the breezeway instead.
As you can see, the master bedroom, bathroom, and closet now take up the entire half of the sleeping zone.
Barndominium Floor Plans with Breezeway – Open Concept with 3 Bedrooms
The open concept has been gaining popularity in recent years because of the additional space it provides by simply combining the living and dining areas. A breezeway perfectly complements this approach. Below are two examples.
Barndominium with Breezeway Example 5 – PL-61205

Do you want to add a bedroom to the living section of your abode? Then this design is perfect for you! It is made possible by the open concept. Combining the living and dining areas opens up enough square footage to accommodate the required space. As a bonus, you also get a bathroom, closet, and pantry behind the kitchen. Plus, a utility room with a back door. Meanwhile, on the other side of the breezeway are 2 spacious bedrooms, each with its own bathroom and walk-in closet. This section is accessible through the door that opens up to a hallway.
Barndominium with Breezeway Example 6 – PL-61206

This barndo design is ideal for medium-sized families running a home-based business. The breezeway is ingeniously situated behind the living section. This way, the owners can accommodate clients in the open-concept living-dining area without interrupting the backend of their trade. On the other side of the breezeway, the structure includes the home office, 2 storage rooms, and a utility room with its own side exit for loading and unloading supplies and finished products. Two bedrooms are equipped with their own bathrooms, while the third can use the one beside it. This is an intentional feature, made to be shared with workers and suppliers.
Barndominium Floor Plans with Breezeway – Open Concept with 4 Bedrooms
The open concept is highly recommended for large families. It allows for ease of movement within and through common areas. Take a look at the 2 barndo designs below.
Barndominium with Breezeway Example 7 – PL-61207

For multigenerational households, this dwelling is a great choice. The breezeway becomes a functional addition, providing privacy to an extended family or elderly grandparents. To the left is the “full residence,” so to speak. It comprises an open concept living-dining area, and across it, 2 bedrooms with a shared bathroom in between. The kitchen is placed at the back part, furnished with a 4-seater island, half bath, pantry, and utility room for efficiency. On the other side of the breezeway are 2 huge bedrooms, each with its own bathroom and walk-in closet.
Barndominium with Breezeway Example 8 – PL-61208

If you like entertaining, then you will love this barndo. The front structure is dedicated to the open-concept living-dining area, nothing else. It comes with double doors at the entrance to facilitate a smooth traffic flow for guests. This space is great for hosting events as well if you happen to operate such a business.
Double doors are also used for the back part for easier access to and from the back structure through the bridgeway. You will need it because the kitchen is there. For the family’s convenience and privacy, it is outfitted with a 4-seater island and a pantry. A half bath and a utility room with a side exit door stand behind it to service suppliers, assistants, and delivery crews. Privacy is likewise ensured for the 4 bedrooms. Two have their own bathrooms, while the other two share a bathroom that can be accessed only through their bedrooms.
Design Your Own Barndominium Floor Plans with Breezeway
If you’re still in the planning stage of your dream home, it would be a good idea to already factor in a breezeway. It will save you the cost of an upgrade later on. To have an idea of how it will look, you can draw your own floor plan. Our custom design software helps you to do it easily. Just add your specs to the template and you will get a digital blueprint of your home’s layout.
Conclusion
If you would like more guides like this one, check out the rest of BarndominiumLife.com. There, you will find more helpful tips and tricks from the pros.
You will also find featured barndominiums, stock barndominium house plans, custom barndominium house plans, and information on financing and insurance.
Just starting out? Check out the Barndominiums Made Easy Program. It has our “How to Build Guide”, 120+ House Plans, and the Bid and Budget Tracker. Knowing as much as you can will help you get the best results for your dream home.
Find More Barndominium Floor Plans
By Bedrooms:
1 Bedroom • 2 Bedrooms • 3 Bedrooms • 4 Bedrooms • 5 Bedrooms • 6 Bedrooms • 7 Bedrooms • 8 Bedrooms
By Feature:
1-Story • 2-Story • With Garage • 2 Car Garage • 3 Car Garage • Wraparound Porch • With Breezeway • 2 Master Suites • With Loft • Multi-Family Barndominiums • Open-Concept
By Size:
Small Plans • 800 Sq Ft • 900 Sq Ft • 1000 Sq Ft • 1200 Sq Ft • 30×40 Floor Plans • 1400 Sq Ft • 1500 Sq Ft • 1600 Sq Ft • 40×40 Floor Plans • 1800 Sq Ft • 30×60 Floor Plans • 2000 Sq Ft • 2400 Sq Ft • 2500 Sq Ft • 2800 Sq Ft • 3000 Sq Ft • 3200 Sq Ft • 3600 Sq Ft • 4000 Sq Ft • 5000 Sq Ft •



















