If you are looking for 50×100 barndominium floor plans with shops then you are in luck. If you’ve ever dreamed of combining your living space with a functional and spacious workshop, then these 5,000 square feet barndominium floor plans are sure to pique your interest.

A 50×100 barndominium offers ample room for both comfortable living quarters and a dedicated workshop area. Imagine having the convenience of working on your projects just steps away from your home, with enough space to accommodate all your tools, equipment, and hobbies.
There are limitless possibilities in these floor plans, where you can bring your passions and living space together seamlessly. Get ready to be inspired as we uncover the captivating world of 50×100 barndominium floor plans with shops, and discover the perfect blueprint for your dream home and workshop combination.
Page Contents
What is the most expensive part of building a barndominium?
The cost of building a barndominium can vary depending on several factors, such as location, size, design, materials, and amenities. However, one of the most significant expenses in constructing a barndominium tends to be the shell or structure itself. This includes the cost of the metal building components, such as the steel frame, walls, roof, and insulation.
The size and complexity of the structure, along with any customization or architectural features, can significantly impact the overall cost. Additionally, other factors like site preparation, foundation work, utility connections, interior finishes, and landscaping can contribute to the total expenses.
It’s essential to carefully plan and budget for each aspect of the project to ensure that you have a realistic understanding of the costs involved in building a barndominium. Consulting with experienced professionals and obtaining multiple quotes can help you make informed decisions and manage expenses effectively.
50×100 Barndominium Kits
If you’re looking to start building your barndominium, one of the first things to do is to get a quote for the metal shell or barndominium kit. By using the quote service below, you’ll get connected with a barndominium kit provider within a few hours at most. Prefabricated barndominium kits mean that the metal shell that makes up your barndo is produced off-site, then it’s brought to you for erection and assembly. While some builders will help you order the barndominium kit, we suggest doing it separately to avoid a potential markup on the barndominium kit.
5,000 Square Feet Barndominium with Shop Floor Plans
Here are eight-floor plans designed for 50×100-foot barndominiums with a shop. Most are suitable for large families, and some are ideal for medium-sized households, but all were created to address unique circumstances and lifestyles.
50×100 Barndominium Floor Plans with Shop – Classic Designs with Master Suite
Many couples dream of aging in their forever home. The following models will ensure decades of comfort, providing master bedrooms with their own master closets and master bathrooms.
50×100 Barndominium Example 1 – PL-60601
If you have a large family, this barndo provides all the space you need, and then some. It features one main entrance in front and three clearly defined areas:
The front door opens to the living room in the middle section. Behind it is a spacious kitchen equipped with a 6-seater island and the dining area is conveniently placed right beside it.
Over at the east wing, you will find the shop with its entrance near the front door. Accessible only from the living room, it ensures privacy for both the shop user and the rest of the household. In the west wing are the sleeping quarters: Master Suite with bathroom and closet, 2 bedrooms with a shared bathroom in between, 1 bedroom with its own bathroom, and 1 more with an adjacent bathroom.
50×100 Barndominium Example 2 – PL-60602
This floor plan is an iteration of the previous one and is designed for families who prefer a linear layout for their common areas. Here, the dining area is in the middle, with the living room in front and the kitchen behind. Also, the kitchen is equipped with a pantry and a laundry room. Another difference is that there are two sets of 2 bedrooms with a shared bathroom in between. The Master Suite with its own bathroom and closet is retained.
50×100 Barndominium Example 3 – PL-60603

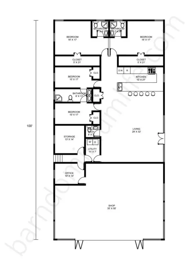
Designed for extra-large or multigenerational families, this barndominium offers a Master Suite and 2 bedrooms in the east wing, and 3 bedrooms in the west wing. The common areas are situated in the middle, a clever way to separate territories. An interesting addition to this home is the laundry room hidden in the back part, just off the kitchen. It’s the only way to reach the shop, which occupies one-third of the property. This is ideal for hobbies that get you messy, such as painting and sculpting.
50×100 Barndominium Example 4 – PL-60604

With a total floor area of 50 x 100 feet, occupants of this barndo can enjoy the luxury of large spaces in the common areas and bedrooms since the rest of the space is occupied by a Master Suite and 2 bedrooms with a shared bathroom in between.
50×100 Barndominium Floor Plans with Shop – Open Concept with Various Amenities
If your family wishes to move more freely through the common areas, you should consider the open concept. This style merges the living and dining rooms in one wide and open space.
50×100 Barndominium Example 5 – PL-60605

We just love the shop facilities offered by this barndo. It comes with 2 offices, a half bath, and standalone storage accessible through its own back porch. In addition, the shop itself is separated from the living area by its own entrance situated to the side of the front porch. This is a perfect setup for a home-based business.
The living spaces are wonderfully laid out. From the front porch, you are greeted by an open area where the living and dining room combine seamlessly. It is surrounded by a kitchen with an island that can seat 4 people, a pantry, a closet, a half bath, a laundry room, and 3 bedrooms, each with its own bathroom. There is also a back door, which you can enter or exit through the kitchen or the laundry room.
50×100 Barndominium Example 6 – PL-60606
One-third of this layout is dedicated to the shop area, accessible directly from the front porch and through its own entrance at the right side of the property. Equipped with a half bath, 1 small storage space, and a big storage room, this shop is great for entrepreneurs running a small manufacturing business.
The home space is specially created for large families. Common areas are designed as per an open-concept layout and include a pantry, a half bath, and a laundry room.
50×100 Barndominium Example 7 – PL-60607

The shop in this barndo comes with an interior office, a standalone storage room, and an independent entrance from the back of the dwelling. It may also be accessed from inside the home through a shared utility room. With an open concept for the kitchen, living, and dining areas that also includes a closet and a half bath, this blueprint sets 2 bedrooms to the east wing and 2 bedrooms to the back section.
50×100 Barndominium Example 8 – PL-60608

Similar to the previous floor plan, this design also features a back door that leads to the living area as well as to the office of the shop, which comes with a storage room. If you as a family are engaged in different business endeavors, then this barndo will meet all your requirements. Aside from the shop, it includes a home office right next to the open-concept common areas.
The kitchen is equipped with the conveniences of a 4-seater island, a pantry, a half bath, and a closet. You can also access it through an additional entrance near the far-right corner of the home where an extra utility room is placed. This floor plan includes sleeping quarters consisting of 3 bedrooms, each with its own bathroom.
Design Your Own 50×100 Barndominium Floor Plans with Shop
Planning for your dream home on a 50×100-foot property? Consider a barndominium! Design your own floor plan so you get the home of your dreams.
We offer custom design software that helps you draw one, even if you have zero experience in sketching. Simply add your desired specs to the template and you will get a digital view of your home’s layout similar to the ones above.
Conclusion
If you would like more guides like this one, check out the rest of BarndominiumLife.com. There, you will find more helpful tips and tricks from the pros.
You will also find featured barndominiums, stock barndominium house plans, custom barndominium house plans, and information on financing and insurance.
Just starting out? Check out the Barndominiums Made Easy Program. It has our “How to Build Guide”, 120+ House Plans, and the Bid and Budget Tracker. Knowing as much as you can will help you get the best results for your dream home.
Find More Barndominium Floor Plans
By Bedrooms:
1 Bedroom • 2 Bedrooms • 3 Bedrooms • 4 Bedrooms • 5 Bedrooms • 6 Bedrooms • 7 Bedrooms • 8 Bedrooms
By Feature:
1-Story • 2-Story • With Garage • 2 Car Garage • 3 Car Garage • Wraparound Porch • With Breezeway • 2 Master Suites • With Loft • Multi-Family Barndominiums • Open-Concept • With Shop
By Size:
Small Plans • 800 Sq Ft • 900 Sq Ft • 1000 Sq Ft • 1200 Sq Ft • 30×40 Floor Plans • 1400 Sq Ft • 1500 Sq Ft • 1600 Sq Ft • 40×40 Floor Plans • 1800 Sq Ft • 30×60 Floor Plans • 2000 Sq Ft • 2400 Sq Ft • 2500 Sq Ft • 2800 Sq Ft • 3000 Sq Ft • 3200 Sq Ft • 3600 Sq Ft • 4000 Sq Ft • 5000 Sq Ft •



