These 3 bedroom barndominium floor plans with pictures will inspire you to build your dream barndominium in no time. With so many options and designs you are sure to find the floor plan you have been searching for.
Barndominiums are a lifestyle choice that are becoming more and more popular. The structures are safe, durable, and they provide a blank slate for you to design your dream home. If you have been contemplating building a 3 bedroom barndominium, then these 3 bedroom barndominium floor plans are a great option for you.
Page Contents
Shop 3 Bedroom Barndominium House Plans Here
With a barndominium, any type of layout or design is possible.
How many beds and baths do you want to have?
Have you always dreamed of having a huge island kitchen? Whatever your family desires can be custom-designed into your own barndominium.
There are plenty of layouts and floor plans available to work from. This article presents a few to think about, but remember, this is your family’s forever home.
For the ultimate flexibility in designing your own barndominium floor plans consider using barndominium design software.
3 Bedroom Barndominium Floor Plans—Things to Consider
Picking the perfect floor plan layout for your barndominium is not unlike any other house design or purchase. You need to imagine yourself and your family living in the space.
How will you use it? Is there enough space to be comfortable and enough places to put all your stuff?
Your Family’s Lifestyle
The size of your family will dictate a lot of your requirements in a living space. Is your household big or growing soon? Lots of kids running around? Or perhaps you are planning to retire soon, and looking for a small space that’s easier to keep tidy?

Everyone is different and looking for different things.
3 bedroom barndominium floor plans are one of the most versatile layouts available, especially for families.
These floor plans are not too big for the average family, and they also lend themselves to creating more multi-use spaces as the kids go to work or school.
FoOne of the great things about choosing a barndominium is that every space is pretty much wholly customizable.
Using Your Land Effectively
If you’re coming from the suburbs or city life, this one might seem a bit counter-intuitive. But one of the most important factors in planning your barndominium’s layout is where it’s located.
Why did you purchase this particular property? What do you love about it? Whatever the reasons, leverage them in your living space.
r example, second and third bedrooms can be used as shared guest rooms and hobby spaces, or simply storage for extra stuff.

Maybe you love the view of the river or stream from the back. If that’s the case, you’ll probably choose a layout with an open living space that points in that direction. A large patio area for enjoying sunrises or weekend barbecues would be a great idea. Many designs feature picture windows from which to enjoy that view from the main living space.
So while looking at layouts, imagine not only being inside the space but also how that space fits your land.
Traffic Flow
It’s also important to ask how people use the interior space. Every living space has high-traffic areas that need a little extra planning. For 3 bedroom barndominium floor plans in particular, a little planning goes a long way.

When designing your own space, you have complete creative control over how you want things arranged.
Do you want the laundry area near the bedroom, or do you want the racket of the washer and dryer out in the shop? Do you like to entertain from the kitchen?
If so, you’ll want an open floor plan with a large island where guests can sit and enjoy themselves. You’ll want an open floor plan with a large island where guests can sit and enjoy themselves.
Closets and Storage
Every family has varying amounts of stuff to store, so make sure the layout you pick has sufficient storage space.
This is one of the harder things to figure out from floor plans, so take a look at your current living space and how you use the closets you have. Is it enough space? Are the closets on this layout going to improve or hurt the situation?

Buy 3 Bedroom Barndominium House Plans Now

3 Bedroom Barndominium Floor Plans with Pictures – Get Inspired With These Floor Plan Ideas
BP-2001 Brashear Barndominium House Plans
- 2567 Heated square feet
- 3 bedrooms
- 2.1 bathrooms
- Single Story
- Open Concept
- 1230 sq ft detached garage
- Mudroom
- Office
- Front and back porch
- Covered porches
- Covered patio
- Beautifully crafted single-story home with an open concept layout, seamlessly integrating the living, dining, and kitchen areas.
- This thoughtfully designed floor plan with 2567 heated square feet of living space boasts 3 spacious bedrooms and 2.1 bathrooms.
- Enjoy the charm of covered front and back porches, where you can relax with a cup of coffee or enjoy an evening breeze. The covered patio offers an ideal spot for outdoor dining or hosting summer barbecues.
- The 1230 sq ft detached garage provides plenty of space. Whether you use it for vehicles, tools, or as a workshop, you’ll appreciate the convenience and functionality it offers.
- The home includes a dedicated office, perfect for remote work or study, and a practical mudroom to keep your living areas clean and organized.
- Connecting the main house to the garage, the breezeway provides a charming and sheltered pathway, adding to the home’s overall appeal.
RP-10002 Radcliffe Barndominium House Plans
- 1800 Heated Square Feet
- 36×50 living space dimension
- 3 Bedrooms
- 2 Bathrooms
- Single-story
- Open-concept
- Utility room
- Front & rear porch
- This 1800 sq ft living area is perfect for anyone who desires a spacious and comfortable living space. With its stunning design, this house plan is perfect for those who love the charm of a barn-style home but crave the modern amenities of a new house.
- This stunning house plan features a giant master bedroom on the opposite end of the home from the other two bedrooms, ensuring privacy and tranquility for those who need it. The master bedroom also boasts an en-suite bathroom and a walk-in closet, adding to its luxury and comfort.
- The two additional bedrooms are located on the opposite end of the house, with a shared bathroom in between them. This layout is perfect for families or guests, allowing for plenty of personal space while still providing a sense of togetherness. Each bedroom also features a closet, providing ample storage for all of your belongings.
- One of the standout features of this house plan is its front and back porches. These outdoor spaces are perfect for enjoying the beautiful scenery around your home, hosting a barbecue with friends and family, or simply relaxing with a good book. With plenty of space, you can create an outdoor living area that is perfect for your needs.
- The living room of the Radcliffe Barndominium House Plan is a showstopper, featuring a fireplace that is perfect for cozy winter nights. The open-concept design of the living room, dining room, and kitchen creates a very spacious feel.
HC-24004 Hastings Barndominium House Plan
- 2400 Heated square feet
- 3 Bedrooms
- 2.1 Bathrooms
- Single story
- Mechanical room
- Front and back porch
- Spanning 2400 heated square feet, this home features 3 spacious bedrooms and 2.1 modern bathrooms.
- The layout is thoughtfully designed to include a mechanical room, ensuring all your technical needs are met without compromising on living space.
- Ideal for families or those who love to entertain, this floor plan offers a seamless flow and ample room for everyone.
SV-5501 Charlotte Barndominium House Plan
- 2400 Heated square feet
- 3 Bedrooms
- 2 Bathrooms
- Single story
- Open concept
- Mudroom
- 1120 square feet attached garage
- Boasting 2400 heated square feet, this single-story home features 3 spacious bedrooms and 2 well-appointed bathrooms.
- The open concept layout creates a seamless flow between the living, dining, and kitchen areas, ideal for both everyday living and entertaining.
- A mudroom adds practicality, keeping your home organized and clean. Plus, the 4-car attached garage provides ample space for vehicles and storage.
SV-5502 Carter Barndominium House Plan

- 2000 Heated square feet
- 3 Bedrooms
- 2 Bathrooms
- Single story
- Open concept
- Wood stove
- Discover the charm of country living with this 2000 square foot barndominium floor plan. This single-story haven offers three spacious bedrooms and two full bathrooms.
- The open concept design seamlessly blends the living, dining, and kitchen areas, creating a welcoming space for gathering and entertaining.
- A cozy wood stove at the spacious living area adds a touch of rustic warmth, making this barndominium a perfect blend of modern convenience and country comfort.
SV-5504 Azalea Barndominium House Plan
- 2500 Heated square feet
- 3 Bedrooms
- 2 Bathrooms
- Loft
- Open concept
- Mechanical Room
- Mudroom
- Front and Rear Porch
- This 2500-square-foot haven boasts 3 bedrooms and 2 bathrooms, but it’s the heart of the home—the spacious great room with a wood stove, that steals the show.
- Ascend the spiral staircase to the loft—could be an office, reading nook or additional storage area.
- The rear porch features an outdoor kitchen, complete with a grill, sink, and seating area.
- The barndominium also includes a practical mudroom/ laundry area and a mechanical room.
LP-3201 Zephyr Barndominium House Plan
- 2400 Heated square feet
- 750 square foot attached garage
- 3 bedrooms
- 2 bathrooms
- 1 Story
- Open Concept
- Office
- Fireplace
- The Zephyr barndominium house plan is 2400 heated square feet and features 3 bedrooms and 2 bathrooms with an attached 750 square foot attached garage.
- The open-concept design has plenty of room to entertain and spend time as a family in the common areas of the home.
- This house plan has a large kitchen with a spacious island with plenty of counter space for prepping and serving. With the pantry just off the kitchen, it allows for plenty of storage of food and appliances.
- The living room features a desirable fireplace that is positioned in the center of the room to be a great focal piece to the home.
- The master bedroom is just off the dining and includes a nice-sized master bathroom and walk-in closet.
- Two additional bedrooms are located on the opposite side of the home with decent-sized closets and a shared hall bathroom.
- You’ll have plenty of room to work or study in the home office just off the foyer. The double doors allow for privacy when needed.
- Relax on the front porch or back patio with friends and family as the kids play with this Zephyr house plan.
PL-2815 Travis Barndominium House Plan
- 2400 Heated square feet
- 40×60 living space dimension
- 3 Bedrooms
- 2 Bathrooms
- Single story
- Open concept
- Office
- Foyer
- Front porch
- Patio
- Deck
- Safe room
- Walkout basement
- 3-car attached garage
- Enjoy a perfectly balanced footprint offering 2,400 square feet of comfortably climate-controlled living space—roomy enough to stretch out, yet easy to maintain.
- With generous 40×60 dimensions, this home’s layout is designed for flow, flexibility, and functionality—ideal for entertaining and everyday living.
- Three well-appointed bedrooms offer restful retreats for family and guests alike—each thoughtfully placed for privacy, natural light, and comfort.
- Two full bathrooms bring both convenience and style, featuring modern fixtures and smart layouts for a smooth daily routine.
- No stairs, no hassle—this single-story, open-concept design delivers ease and accessibility, perfect for all stages of life.
- A dedicated home office provides a quiet, focused space for productivity—whether you’re working from home, tackling creative projects, or organizing life’s details.
- Step into a welcoming foyer that sets the tone with warmth and charm—a graceful transition from the outside world.
- The inviting front porch is more than curb appeal—it’s a breezy perch to sip coffee, greet neighbors, and enjoy golden hour views.
- Grill, gather, or unwind beneath the stars on your private patio—perfectly positioned for alfresco dining and outdoor living.
- A spacious deck extends your living space under open skies—a natural haven for morning routines or twilight conversation.
- Discreetly built for peace of mind, the safe room offers reinforced protection without sacrificing style or convenience.
- A seamless blend of indoor comfort and outdoor connection, the walkout basement extends your living space with direct access to the backyard. Whether transformed into a private retreat, entertainment hub, or guest quarters, its versatility adds value and functionality to your home.
PL-60904 Paxton Barndominium House Plan
- 1758 Heated square feet
- 1079 square feet attached garage
- 3 bedrooms
- 2 bathrooms
- 1 Story
- Utility Room
- Open Concept
- Unfinished basement
- The Paxton barndominium house plan is 1758 heated square feet and features 3 bedrooms and 2 bathrooms with an attached 1079 square foot garage.
- This house plan has a nice open floor plan that makes the main living area feel large and spacious.
- The kitchen has a nice size island and a corner pantry making it convenient for storage.
- The master bedroom has an ensuite bathroom a large walk-in shower and a master closet to keep the room looking neat and orderly.
- On the other side of the home, you will find 2 spacious secondary bedrooms both with nice-sized closers. Both these bedrooms share a bathroom in the hall between them.
- The utility room is located just off the garage making it convenient for washing up after a long day in the yard or carrying in groceries.
- The unfinished basement offers unlimited possibilities for your family to enjoy.
- With a front porch and back patio, there is plenty of room to really enjoy everything the outdoors has to offer.
PL-62301 Luna Barndominium House Plan
- 1683 Heated square feet
- 3 Bedrooms
- 2 Bathrooms
- Single story
- Open concept
- Front and back porch
- This charming barndominium floor plan offers 1683 heated square feet of comfortable living space. It features 3 spacious bedrooms and 2 modern bathrooms, all conveniently laid out on a single story.
- The open concept design seamlessly connects the living, dining, and kitchen areas, creating a welcoming and airy atmosphere.
- Enjoy the outdoors with both a front and back porch, perfect for relaxing or entertaining guests. This floor plan combines functionality with rustic elegance.
PL-62504 Cameron Barndominium House Plan
- 3,242 Heated Square Feet
- 3 Bedrooms
- 3 Bathrooms
- Two-story design with loft
- Open-concept living area
- Front porch spanning 50 feet
- Attached 2,000 sq. ft. garage/shop
- Dedicated pantry and storage spaces
- Mudroom & laundry area
- Spacious master suite with dual closets
- This thoughtfully designed home offers 3,242 square feet of heated living space, blending modern functionality with classic barndominium charm. The three well-sized bedrooms provide ample space for family members or guests, each designed to maximize privacy and comfort.
- With three full bathrooms, the home ensures convenience and ease, featuring modern finishes and ample space for everyday use. The two-story layout includes a loft area, adding versatility for additional living space, a home office, or recreational use.
- A large open-concept living area seamlessly connects the kitchen, dining, and family spaces, creating a perfect environment for entertaining or relaxing. The expansive front porch extends 50 feet, offering a welcoming outdoor retreat to enjoy fresh air and scenic views.
- The attached 2,000-square-foot garage and shop space provide plenty of room for vehicles, storage, and hobby areas, catering to both practical and recreational needs. Additional features like a walk-in pantry, dedicated storage spaces, and a mudroom enhance everyday convenience.
PL-62513 Harper Barndominium House Plan
- 2132 Heated square feet
- 30×60 living space dimension
- 3 bedrooms
- 2 bathrooms
- 2 Story
- Loft
- Office
- Bonus Room
- Attic Space
- Open Concept
- The Harper barndominium house plan is 2132 heated square feet and features 3 bedrooms and 2 full bathrooms.
- As you step inside the main floor of this home you are welcomed into a beautiful and spacious open floor plan. The family room takes center stage with the cozy fireplace and the large space for everyone to gather.
- The kitchen is perfect for preparing meals and the pantry is the perfect size for storing food and small appliances.
- The master bedroom is a nice size with a great ensuite bathroom and master closet.
- As you venture to the other side of the home you will find 2 secondary bedrooms both with decent size closets and a shared hall bathroom.
- The office is tucked away making it the perfect escape for those who need a quiet space while working from home.
- The laundry room leads to the back patio and is a great size for all your laundry needs.
- At the top of the stairs, you will find a great-sized bonus room full of possibilities. Not only that you will find an abundance of attic space.
- This home is the perfect floor plan to relax and connect with nature with the inviting front porch and back patio for private outdoor enjoyment.
PL-62516 Johnson Barndominium House Plan
- 1500 Heated square feet
- Shop
- 3 bedrooms
- 2.1 bathrooms
- Fireplace
- Open Concept
- Laundry room
- Mudroom
- 1500 heated square feet of comfort await you in this charming single-story home.
- Enjoy the convenience of a spacious shop for your hobbies and storage needs.
- Three inviting bedrooms provide ample space for you and your family.
- With 2.1 bathrooms, there’s no need to wait in line during busy mornings.
- Warm up by the fireplace on cozy evenings, creating a perfect ambiance.
- The open-concept design ensures a seamless flow throughout the living spaces.
- A dedicated laundry room adds convenience to your daily routine.
- Stay organized with a practical mudroom, making your entryway clutter-free.
PL-71006 Katrina Barndominium House Plan
- 2197 Heated square feet
- 3 Bedrooms
- 2.1 Bathrooms
- Single story
- Open concept
- Office
- Media Room
- Mechanical Room
- Mudroom
- Front & Screened Rear Porch
- This house offers a generous total heated area of 2197 square feet laid out on a single-level, open layout, providing easy access to all rooms.
- It has 3 bedrooms: A spacious and private master’s bedroom on the left side, and two cozy and comfortable rooms on the opposite side.
- The home offers a luxurious master’s bathroom, another conveniently placed bathroom near the two bedrooms, and a handy half bathroom when entering from the garage.
- Other features include an office and a comfortable media room giving space for movie nights and gaming.
- Practical features include a mechanical room for the home systems, and a mudroom, an organized transition space from the garage with storage for shoes and coats.
- A charming front porch welcomes you, while the screened back porch is perfect for relaxing and enjoying the outdoors.
LP-3208 Rowe Barndominium House Plan
- 1800 Heated square feet
- 3 Bedrooms
- 2 Bathrooms
- Open concept
- Attached 1200 Sq Ft Garage
- Front and Back Porch
- Step into this spacious 1800 sq ft heated home, featuring an open concept design perfect for modern living.
- With 3 cozy bedrooms and 2 well-appointed bathrooms, there’s plenty of room for family and guests.
- Enjoy the convenience of an attached 1200 sq ft garage, ideal for multiple vehicles and extra storage.
- Relax on the charming front and back porches, perfect for morning coffee or evening gatherings.
PL-62749 Wellington Barndominium House Plan
- 2524 Heated square feet
- 3 bedrooms
- 2.2 bathroom
- 2 Story
- Loft-style
- Open-concept
- Wraparound porch
- 3-Car Garage
- Experience the perfect blend of functionality and style in this 2524 sq ft barndominium. Revel in the spaciousness of its open-concept design and enjoy the serenity of the outdoors on its wraparound porch.
- A two-story barndominium with a loft-style second floor offering a unique blend of rustic appeal and modern living.
- Step into the comfort of this barndominium house plan featuring 3 bedrooms with the master suite on the main floor and 2 additional bedrooms upstairs. Enjoy the convenience of 2 full bathrooms, one in the master suite and another shared by the upstairs bedrooms. Plus, benefit from the practicality of 2 powder rooms, located in the laundry room and garage.
PL-62765 Cornelia Barndominium House Plan
- 1500 Heated square feet
- 3 Bedrooms
- 2 Bathrooms
- Open concept
- Discover the perfect blend of comfort and style in this 1500 square foot open-concept floor plan. Featuring 3 spacious bedrooms and 2 modern bathrooms, this home offers a seamless flow between living, dining, and kitchen areas.
PL-62835 Gail Barndominium House Plan

- 2344 Heated square feet
- 3 Bedrooms
- 3 Bathrooms
- Single story
- Open concept
- Attached 4029 sq ft garage
- Front porch
- Patio
- Step into this stunning single-story residence boasting 2344 heated square feet of luxurious living space.
- With 3 spacious bedrooms and 3 modern bathrooms, this home is designed for comfort and convenience.
- Enjoy the outdoors from your charming front porch or relax on the cozy patio.
- The attached 4029 sq ft garage offers ample space for vehicles and storage, making it ideal for car enthusiasts or those needing extra room for hobbies.
PL-62841 Donnahoe Barndominium House Plan
- 3 bedroom
- 2 bathroom
- Open concept
- Single story
- Office
- Mudroom
- Fireplace
- Front porch
- Rear patio
- Beautifully designed single-story home boasting 3 spacious bedrooms and 2 bathrooms, this open-concept floor plan seamlessly connects living, dining, and kitchen areas.
- A dedicated office space offers a quiet retreat for work or study, while the convenient mudroom keeps your home organized.
- Enjoy cozy evenings by the fireplace and extend your living space to the outdoors with both a front porch and a rear patio.
PL-62842 Long Barndominium House Plan
- 2742 Heated square feet
- 3 Bedrooms
- 3.1 Bathrooms
- 2 (His/Hers) Offices
- Single story
- Open concept
- Front porch
- Rear Patio
- Stunning single-story home, offering 2,742 heated square feet featuring 3 bedrooms, 3.1 bathrooms, and an open-concept design.
- This floor plan includes separate his-and-hers offices for ultimate productivity.
- Relax and entertain on the inviting front porch or the spacious rear patio, making this home perfect for modern living.
PL-61303 Brookvale Barndominium House Plan
- 2434 Heated Square Feet
- 3 Bedrooms
- 2.1 Bathrooms
- Single story
- Open concept
- Mudroom
- Wraparound porch
- Utlity
- Secure closet
- Office
- Fireplace
- Family room
- 4-car Attached Garage
- Includes three spacious bedrooms and two full bathrooms featuring modern fixtures and ample space. The open concept layout seamlessly connects the kitchen, dining, and living areas, making it ideal for effortless entertaining.
- The home also features a practical mudroom, ideal for keeping your home clean and organized, and a charming wraparound porch that provides a lovely outdoor space to enjoy the surroundings.
- The utility room is conveniently located in the garage/shop for easy access and functionality, while a secure closet in the master bedroom ensures your valuables are safely stored.
- For those who work from home, the plan includes an office, perfect for managing household affairs.
- Adding to the charm is a cozy fireplace that adds warmth and ambiance to the spacious family room, making it the perfect spot for gatherings and relaxation.
- The home also boasts a four-car attached garage, offering plenty of space for vehicles and storage.
PL-61313-F Fox Barndominium House Plan
- 2400 Heated Square Feet
- 40×60 living space dimension
- 3 Bedrooms
- 2.1 Bathrooms
- Single story
- Open concept
- Mudroom
- Living room and family room
- Office
- Secure closet
- 1344 SF garage
- Utility
- Front & rear porch
- Stretch out and settle in with 2,400 square feet of thoughtfully climate-controlled comfort—plenty of room to live, work, and unwind without compromise.
- Three generous bedrooms offer sanctuary for rest, creativity, or guests—each one ready to reflect your personal style and rhythm.
- Two full bathrooms and a convenient powder room mean no more morning bottlenecks or evening waitlists—everyone gets their own zone of comfort.
- Everything you need is right on one level—no stairs, no hassle, just seamless everyday living. From kitchen to conversation nook, the open-concept layout ensures you’re always part of the action.
- Say goodbye to cluttered entrances—this smartly designed mudroom keeps shoes, coats, and gear in check the moment you walk in.
- Twice the comfort, twice the charm—a welcoming living room for guests and a cozy family room for movie nights, game days, and everyday lounging.
- Tucked just off the primary suite, this home office strikes a perfect balance between convenience and quiet—ideal for focused work or creative escapes.
- Discreetly integrated and purpose-built, the secure closet provides a peace-of-mind space for valuables or important documents—security meets subtlety.
- A massive 1,344 square foot garage isn’t just for parking—it’s a haven for hobbies, tools, and extra storage, with space to spare.
- Whether greeting neighbors or sipping coffee with a backyard breeze, the front and rear porches offer the perfect mix of welcome and retreat.
PL-64005 Zenith Barndominium House Plan
- 3212 heated sq ft
- 3752 sq ft Garage
- 3 Bedrooms
- 2.1 bathrooms
- Single-story
- Open concept
- Loft Porch
- Hobby room
- Office
- Spacious layout offering 3212 sq ft of comfortable, climate-controlled living space, perfect for modern family living.
- Generously oversized garage with 3752 sq ft, providing ample room for multiple vehicles, storage, and workshop needs.
- Three well-appointed bedrooms designed with privacy and comfort in mind, ensuring restful retreats for the whole family.
- Two full bathrooms and a convenient powder room, tailored for functionality and everyday luxury.
- Seamless, single-level design for ease of movement, ideal for families or individuals seeking accessibility and convenience.
- Bright, airy open-concept layout that blends living, dining, and kitchen spaces, creating the perfect environment for entertaining and connection.
- Versatile loft space, perfect for a cozy reading nook, play area, or an additional lounge to suit your lifestyle.
- Charming porch to enjoy morning coffee or evening relaxation while soaking in the outdoor ambiance.
- Dedicated hobby room located in the garage, offering an inspiring space for crafts, projects, or even fitness.
- Private, well-placed office adjoining the garage, ideal for remote work or managing personal affairs.
PL-64007 Brooke Barndominium House Plan
- 2400 heated sq ft
- 1505 sq ft Garage
- 3 Bedrooms
- 2.1 bathrooms
- Wheelchair accessible bathroom
- Single-story
- Open concept
- Office
- Foyer
- Mechanical room
- Safe room
- Fireplace
- Front & rear porch
- 2400 heated sq ft for a spacious and comfortable living area that invites warmth and a sense of home.
- A generously sized 1505 sq ft garage space for cars, tools, storage, and your hobbies—it’s a dream for the modern homeowner.
- 3 bedrooms for versatile sleeping quarters designed for comfort, privacy, and personalized retreat spaces.
- 2.1 bathrooms, a thoughtful layout with a luxurious touch—two full baths, one wheelchair-accessible, plus a convenient half-bath for guests.
- Experience effortless living with all your essentials on one accessible level and a seamless flow from room to room, perfect for entertaining and embracing natural light.
- An office for a quiet and organized space designed to boost productivity and creativity—right at home.
- A foyer for a welcoming entryway that sets the tone for the rest of your beautiful home.
- The mechanical room is a hidden hub for all your home’s critical systems, ensuring efficiency and organization.
- The safe room is built for peace of mind—your personal refuge in case of emergencies.
- A living room fireplace to cozy up by the warmth of this centerpiece that adds charm and character to your living space.
- Front & rear porch for double outdoor enjoyment—whether it’s coffee with sunrise or relaxing at sunset.
PL-64008 Andy Barndominium House Plan
- 2320 heated sq ft
- 1276 sq ft Garage
- 3 Bedrooms
- 2.1 bathrooms
- Fireplace
- Mudroom
- Single-story
- Open concept
- Front & rear porch
- Storage room
- The home boasts a spacious Living Area of 2,320 heated square feet, offering ample space for comfortable living.
- A generous garage space of 1,276 square feet provides plenty of room for vehicles, tools, and additional storage.
- Three cozy bedrooms perfectly designed to accommodate family or guests, ensuring privacy and comfort.
- Conveniently equipped with 2.1 bathrooms, including a half-bath for guests or quick use.
- Warm and inviting fireplace enhances the living area, offering warmth and charm.
- This home features a single-level, open-concept layout, combining convenience and accessibility.
- Both a front and rear porch provide tranquil spaces to unwind and enjoy the outdoors.
- A designated storage room ensures there’s space to keep your home organized and clutter-free.
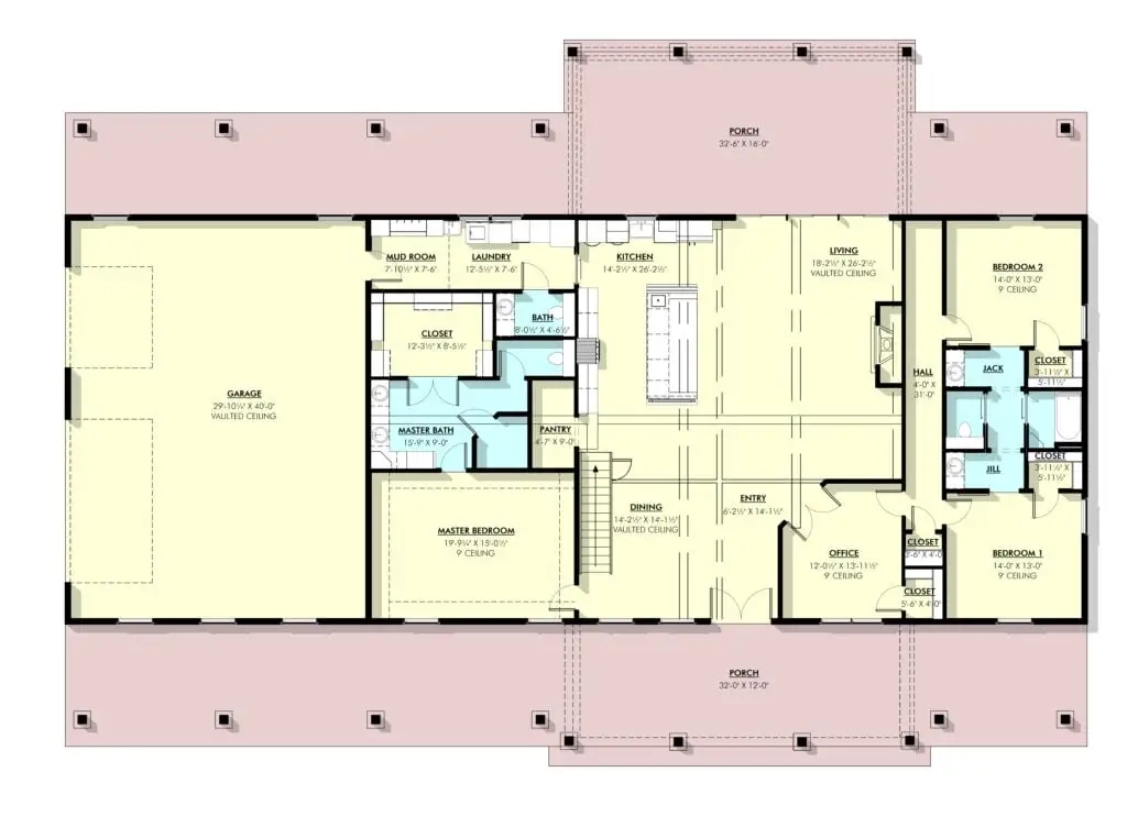
LP-2802 Marcus Barndominium House Plans


- 2800 Heated square feet
- 1123 Attached 3 car garage
- 3 bedrooms
- 3 bathrooms
- 2 Story
- Loft
- Mudroom
- Jack and Jill Bathroom
- Office
- Open Concept
- The Marcus Barndominium house plan is 2800 heated square feet and features 3 bedrooms and 3 bathrooms with a 1123-square-foot attached garage.
- This house plan has an open-concept design that is big enough for large families to gather together. With the second story being open to below, it allows the space to feel even larger than it is.
- The master suite is located by itself to give the owners the privacy that they desire. With a large walk-in closet, there is plenty of room to hang and organize your clothes.
- The kitchen is large and spacious with a large pantry to store food and to keep your kitchen clutter-free. The island is large, making it perfect to prep, serve food, or line the kids up on barstools to eat a quick meal.
- The office is located just off the living room with double doors with an elevated look to the home.
- The two secondary bedrooms have nice-sized closets and a desirable jack-and-jill bathroom for the kids to share.
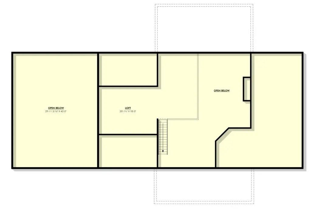
- The upstairs loft makes a great teen hangout or playroom for the kids.
LP-2803 Wickard Barndominium House Plans


- 4385 Heated square feet
- 3522 Attached 4 car garage
- 3 bedrooms
- 2.2 bathrooms
- 2 Story
- Loft
- Mudroom
- Outdoor fireplace
- Covered balcony
- Open Concept
- The Wickard barndominium house plan is 4385 heated square feet and features 3 bedrooms, 2 full bathrooms, and 2 half bathrooms.
- The open-concept floor plan allows for the whole family to feel connected when in the main living area of the home.
- An amazing feature that owners love about this home is the separate garages that are attached to the home that cover over 3000 square feet of garage space with the bigger garage having a half bath within it.
- The master bathroom has an en-suite bathroom and a large walk-in closet with an island in the middle of the closet to fold laundry or utilize as a dresser for added storage.
- There are two additional bedrooms on the first floor of this home that are perfect for kids or to create a guest room.
- The kitchen is large and spacious with an island that faces the living area so that even when you are in the kitchen you still feel connected with the family. There is a large pantry located behind the kitchen that has ample storage.
- The second story is open to the downstairs with a nice loft that has plenty of room to create a playroom or teen hangout. There is also a half bath and an extra room to create a space that fits your family.
- Off the second story is an incredible covered balcony so you can enjoy the great outdoors all year long.
- The outdoor fireplace is an added bonus with this Wickard barndominium house plan that you will fall in love with.
LP-1010 Rockledge Barndominium House Plans
- 1760 Heated square feet
- 1440 square foot Attached 3 car garage
- 3 bedrooms
- 2 bathrooms
- 1 Story
- Safe Room
- Open Concept
- The Rockledge barndominium house plan is 1760 heated square feet and features 3 bedrooms and 2 bathrooms.
- This open-concept home provides lots of space for your family to gather in the common areas of the home.
- With a large kitchen and island, there is plenty of room for cooking and gathering as well.
- The master suite is large and allows for plenty of space within the bedroom, bathroom, and closet with a unique safe room for peace of mind.
- With a spacious attached garage, you will have plenty of room for all your cars, boats, and other toys as well as storage.
- The Rockledge Barndominium house plan has a large laundry room that even includes a storage closet for cleaning supplies which is any homeowner’s dream.
CDD-1001 Chasebriar Barndominium House Plan
- 2400 Heated square feet
- 3 bedrooms
- 2.1 bathrooms
- 1 Story
- Open Concept
- Office
- The Chasebriar Barndominium house plan is 2400 heated square feet and features 3 bedrooms, 2 full bathrooms, and 1 half bathroom.
- This open-concept family floor plan allows for plenty of room for your family to gather and create memories together.
- You will love the spacious kitchen with a large island.
- The secondary bedrooms share a jack-and-jill bathroom.
- The Chasebriar Barndominium House Plan has a spacious office that is perfect for working from home.
- This 2400 square foot house plan includes a large pantry and laundry room to keep your home tidy and organized.
- With a large patio in the backyard you can enjoy sitting outside enjoying your morning coffee or watching the kids explore outside.
- This barndominium house plan has a little bit of everything that you are searching for.
CDD-4102 Ridge Barndominium House Plan
- 2400 Heated Sq Ft
- 3 Bedrooms
- 2.1 Bathrooms
- Single story
- Open concept
- Office
- Mechanical room
- Mudroom
- Front & Rear porch
- A perfectly balanced living space, offering ample room to breathe, grow, and enjoy, all while maintaining a cozy and manageable footprint.
- Three versatile retreats await—whether for restful nights, creative pursuits, or welcoming family and guests, these rooms are designed with comfort and function in mind.
- Two full bathrooms for your daily routines, plus a convenient half-bath for guests—style and practicality combine effortlessly.
- A seamless and accessible layout on a single level, perfect for ease of movement and a timeless, grounded design.
- An expansive flow of living, dining, and kitchen spaces that encourages connection, natural light, and effortless entertaining.
- Dedicated workspace to inspire productivity and focus, tucked away for privacy while still being part of the home.
- The unsung hero of functionality—a space devoted to housing your home’s essential systems, out of sight but not out of mind.
- Your buffer between the outdoors and your living space, ideal for stowing away shoes, coats, and the chaos of daily life.
- Dual outdoor living spaces, where you can greet neighbors out front or savor a quiet sunset in the back—perfect for year-round enjoyment.
CDD-4103 Prairie Barndominium House Plan
- 1500 Heated Sq Ft
- 900 Sq Ft 2-car Garage
- 3 Bedrooms
- 2.1 Bathrooms
- Single story
- Open concept
- Office
- Mechanical room
- Front & rear porch
- 1500 spacious and cozy heated Sq Ft offering a perfect balance for living, relaxing, and entertaining.
- Generous space to park your cars and store everything from tools to outdoor gear in the 900 Sq ft 2-car garage.
- With 3 Bedrooms, enough room for family, guests, and a slice of privacy for everyone.
- The 2.1 bathrooms are designed for convenience, with extra space to keep morning routines hassle-free.
- Single Story for accessible and easy to navigate, and the open concept design seamlessly connects spaces where conversations and creativity flow.
- The mechanical room keeps things practical and organized, keeping your utilities in one neat spot.
- Front & rear porches are welcoming outdoor spaces to soak in sunrise, sunset, or a breath of fresh air.
PL-62303 Gorefield Barndominium House Plans
- 1521 Heated square feet
- 3 bedrooms
- 2.1 bathrooms
- 1 Story
- Mudroom
- Open Concept
- The Gorefield barndominium house plan is 1521 heated square feet and features 3 bedrooms, 2 full bathrooms, and 1 1/2 bathroom.
- As you arrive at the Gorfield barndominium you will immediately notice the welcoming front porch, the perfect spot to enjoy a cup of coffee in the morning or unwind after a long day. The porch provides a peaceful transition from the outdoors into the main living space, giving you a sense of relaxation and comfort.
- As you step inside the large kitchen and family room will catch your attention. Perfect for entertaining or gathering as a family.
- The master bedroom is a good size with an ensuite bathroom and master closet.
- On the other side of the home, you will find two more bedrooms with a shared bathroom in between them.
- The laundry room has its own half bathroom which is super convenient for working or playing in the yard.
- Another great feature of this home is the mudroom which is actually accessible from right when you walk in the front door as well as the laundry room. It is a great feature to keep your home organized and clean. You can store shoes, coats, and other outdoor gear in the mudroom, preventing dirt and mud from entering your living space.
- The Gorefield Barndominium House Plan offers ample space for storage, with closets in each of the bedrooms, a laundry room with plenty of storage space, and a pantry in the kitchen.
PL-62313 Dalton Barndominium House Plans

- 1870 Heated square feet
- 798 square foot attached 2 car garage
- 3 bedrooms
- 2.1 bathrooms
- 1 Story
- Flex Room
- Utility Room
- Open Concept
- The Dalton barndominium house plan is 1870 heated square feet and features 3 bedrooms, 2 full bathrooms, 1 1/2 bathroom, and an attached 798 square foot attached 2 car garage.
- You’ll love the open-concept design of this floor plan that allows for easy flow between the main living areas.
- The living room is large and spacious allowing plenty of space to gather and create memories as family and friends.
- The giant master suite is located on the opposite end of the home from the other bedrooms, providing maximum privacy and seclusion. With its spacious walk-in closet and luxurious en suite bathroom, it is the perfect place to relax after a long day.
- The secondary bedrooms are a good size and include ample closet space, so there’s plenty of room for everyone. And with a shared bathroom between two of the bedrooms, it makes getting ready a breeze. The half bathroom is great for guests to use.
- The flex room is a great addition to this home. It can be used for anything from a home office to a playroom for the kids.
PL-62413 Theodore Barndominium House Plan
- 3 Bedrooms
- 2.1 Bathrooms
- 2220 Heated Square Feet
- Single story
- Open-concept
- Flex Room
- Storage
- Fireplace
- Front and Rear Porch
- An elegant single-story home offering 2,220 heated square feet of superbly designed space. This open-concept floor plan seamlessly blends style and functionality.
- Three generous bedrooms, including a master suite with an en-suite bathroom and a walk-in closet.
- The versatile flex room is perfect as a home office, gym, study, or secondary living area.
- Ample storage throughout the home to keep everything organized and within reach.
- The inviting central living area includes a cozy fireplace, creating a warm and welcoming ambiance.
- Enjoy outdoor living with charming front and rear porches, ideal for relaxing and entertaining.
PL-62001 Greenbrush Barndominium House Plan

- 1815 Heated square feet
- 3 Car attached garage
- 3 bedrooms
- 2 bathrooms
- 1 Story
- Utility Room
- Open Concept
- The Greenbrush barndominium floor plan is 1815. heated square feet and features 3 bedrooms and 2 bathrooms with an attached 3-car garage.
- As you enter the home you are greeted by an open-concept living space and a nice-sized kitchen perfect for entertaining and gathering as a family. You will love that the kitchen and dining area flow seamlessly from the living room, creating a warm and inviting atmosphere.
- The master bedroom features an ensuite bathroom and walk-in closet.
- The 2 secondary bedrooms are larger than the standard secondary bedrooms both with closets. There is a shared bathroom in between both bedrooms.
- The utility room is an added bonus to the home. It has access to both the master bath and the attached garage, making it easy to keep your home clean and tidy.
- The front and back porches offer a cozy spot to relax and take in the views of your surroundings.
LP-2801 Heneger Barndominium House Plans

- 2100 Heated square feet
- 3 bedrooms
- 3 bathrooms
- Open Concept
- The Heneger barndominium house plan is 2100 heated square feet and features 3 bedrooms and 3 bathrooms.
- This open-concept floor plan provides lots of space in the common areas of the home to gather and spend time with friends and family.
- The kitchen is large and spacious and provides lots of counter space for prepping food and serving. You will love that the pantry is just off the hallway out of the way in a hallway to really maximize the kitchen space.
- The master bedroom is located on one side of the house away from the secondary bedrooms to give the owners even more privacy. Within the master, you will find a stand-alone tub with a walk-in shower. The closet is spacious with plenty of room to hang your clothes.
- One special thing about this home is the safe room that is located off the living room.
- With a front and back porch, there is plenty of room to enjoy the great outdoors.
PL-62302 Greenway Barndominium House Plans
- 1813 Heated square feet
- 3 bedrooms
- 2 bathrooms
- 1 Story
- Safe
- Open Concept
- The Greenway house plan is 1813 heated square feet and features 3 bedrooms and 2 bathrooms.
- As you enter the Greenway house plan you are greeted by a nice open floor plan that is perfect for entertaining. The family room is large and spacious and the kitchen is perfect for preparing and serving food thanks to the large kitchen island. The corner pantry is a welcome addition to the kitchen as well.
- The standout feature of this barndominium house plan is the huge master bedroom, which is perfect for anyone who wants to indulge in a little bit of luxury. With plenty of space to stretch out and relax, this master bedroom offers the ultimate comfort and privacy. You’ll love the spacious closets and the master bath, which features all the amenities you need to pamper yourself after a long day.
- This home also features two additional bedrooms with closets, making it perfect for children and guests. These bedrooms share the 2nd bathroom that is located in between them.
- Perhaps the most unique feature of this home is the safe, which is accessible from the laundry room. This feature offers an extra layer of security for your valuables and peace of mind knowing that your belongings are well-protected.
Design Your Own 3 Bedroom Barndominium Floor Plan
The beauty of basing your home on a barn is that you can make it any way you like. The layouts above are as simple as they are generic.
Looking to design your own barndominium floor plans in 2D or 3D? Check out our reviews of the top barndominium design software.
If you’re considering taking the plunge into barndominium life, check out our program “Barndominiums Made Easy“
Conclusion on 3 Bedroom Barndominium Floor Plans
Whether you pick a pre-made or fully custom layout, designing a barndominium is a great way to use the space on your land and make a comfortable living area for you and your family.
To help you with your barndominium planning and building, we have created the Barndominium Life Program. It’s a take-all program- from planning to building and finishing, tips, and lots of inspiration to make your barndominium journey a lot easier.
If you would like more guides like this one, check out the rest of BarndominiumLife.com. There, you will find more helpful tips and tricks from the pros.
You will also find featured barndominiums, stock barndominium house plans, custom barndominium house plans, and information on financing and insurance.
Just starting out? Check out the Barndominiums Made Easy Program. It has our “How to Build Guide”, 120+ House Plans, and the Bid and Budget Tracker. Knowing as much as you can will help you get the best results for your dream home.
Find More Barndominium Floor Plans
By Bedrooms:
1 Bedroom • 2 Bedrooms • 3 Bedrooms • 4 Bedrooms • 5 Bedrooms • 6 Bedrooms • 7 Bedrooms • 8 Bedrooms
By Feature:
1-Story • 2-Story • With Garage • 2 Car Garage • 3 Car Garage • Wraparound Porch • With Breezeway • 2 Master Suites • With Loft • Open-Concept
By Size:
Small Plans • 800 Sq Ft • 900 Sq Ft • 1000 Sq Ft • 1200 Sq Ft • 30×40 Floor Plans • 1400 Sq Ft • 1500 Sq Ft • 1600 Sq Ft • 40×40 Floor Plans • 1800 Sq Ft • 30×60 Floor Plans • 2000 Sq Ft • 2400 Sq Ft • 2500 Sq Ft • 2800 Sq Ft • 3000 Sq Ft • 3200 Sq Ft • 3600 Sq Ft • 4000 Sq Ft • 5000 Sq Ft •







































































