When you combine the beautiful look of a barndominium with the trendy style of a built-in loft, something magical happens. It transforms a space that was already special, to begin with into something truly extraordinary.
Loft spaces have long been used in luxury apartments in urban areas, and for good reason. They add wonderful visual interest to any space and just look impressive. But there are pros and cons to consider if you want barndominium floor plans with loft, and it’s important you think through each one before you take the plunge and add this feature into your layout.
If you’re working with a design professional, they’ll have plenty of tips for how a loft can best suit your home needs, but we know many people like the ease and flexibility that comes with designing their own floor plan. Look through these considerations so that you can ensure your forever home turns out just the way you’ve always hoped it would.
Page Contents
Barndominium Floor Plans with Loft – Things to Consider
Floor plans with lofts have a ton of advantages, but there are some drawbacks as well. Be sure to consider all of these factors when drawing up your plans.
Pro: Airy and Open Feel
One of the main appeals of barndominium floor plans with loft is the sense of openness it creates in the home. In order to accommodate a loft, most barndos will have high ceilings that naturally draw the eye upward. This is a great way to visually expand your square footage and make the space seem so much larger than it really is.

This kind of layout can also allow you to let a lot of natural light into your home. With that kind of space, you can install some tall floor-to-ceiling windows that will let you take full advantage of a gorgeous view you may have, while also letting rooms glow with lots of sunlight.
Con: Higher Utilities
With those high ceilings comes higher utility bills. You’re having to heat or cool a much larger space, and you’re unable to close off these rooms if you’re not currently using them. Be sure to leave extra room in your budget during summer and winter to accommodate this increase.
High-quality windows with good insulation will go a long way to lowering your costs in this area. Likewise, ceiling fans will help circulate the air around all common spaces to keep things cool when the temperature rises, and fireplaces or wood-burning stoves can shave money off your heating bill during the colder months.
Pro: Space for the Kids
Kids are naturally drawn to the unique spaces that lofts provide, and the setup can often give them the perfect spot to study and play. Many popular barndominium floor plans with a loft have the children’s bedrooms upstairs with a spot in the middle for recreation time. This is often the perfect setup for families because it keeps kids nearby but gives them their own space where they can let their imaginations run wild without being underfoot.

Lofts also provide a way to create a fun spot with lots of décors that the kids will love. It will make them feel like it’s their private spot just for them, but it won’t clash with your design aesthetic in the rest of the house either!
Con: No Noise Barrier
All of that playtime is bound to create some noise, and lofts aren’t great at keeping those sounds contained, unfortunately. Because they open to the rooms down below, sounds will easily carry and can disrupt conversations or quiet time happening in the main spaces of the house, and vice versa.
This is an advantage when you have little ones and want to be able to pay attention to what they’re doing even when they’re upstairs, but it won’t work for every family.
Separate office spaces are one way to escape the noise when you need to concentrate, and keep in mind that empty spaces will create far more echoing than ones that are filled with furniture, rugs, drapes, and other soft furnishings. This is a natural way to help absorb some of the sounds without having to use intrusive and unsightly barriers.
Pro: Amazing Design Possibilities
Not only do you have a ton of design options when it comes to adding a loft to your barndominium, but it also helps open up your space for other features as well. For the loft itself, you can keep it sleek and sophisticated with glass and steel, or you can play up the rustic feel with elements like wrought iron railings and exposed brick.

In addition, the high ceilings and extra wall space provide you with a great way to make an impact with your other décor.
Splurge on the statement light fixture for the living room that could only work because you have that extra space above you. Likewise, imagine how cozy things will be at Christmas now that you can put up an extra-large Christmas tree without worrying about it scraping against the ceiling.
Con: Safety
Anytime you have an open space up high like a loft, you’re going to want to make sure it’s safe for everyone, especially small children. They’re going to be naturally inclined to peek over the edge to see what’s happening below them, so make sure that your railings follow all rules about height and spacing to ensure they’re up to code.
With younger kids especially, you’ll also want to take all necessary precautions when it comes to securing your stairs. Luckily, there are plenty of safety gates that blend in perfectly with modern décor and can be easily removed once they’re no longer needed.
Pro: Separate Spot for Guests
Barndominium floor plans with loft can also be a great way to give overnight guests or older children a private space to stay. By adding at least one bedroom and a bathroom upstairs, they’ll have a spot that seems slightly secluded from the rest of the house, and you’ll seem like the perfect host.
Pro and Con: Scents Can Linger
If you’re cooking something in the kitchen, you can be sure that the entire house will be able to smell exactly what it is, including whoever is upstairs. So while last night’s salmon may have been delicious, it might not be the smell that everyone still wants lingering the next morning.
But who’s to say you can’t also use this to your advantage! Fragrant candles can fill up a house with a beautiful scent that will travel from room to room, and waking up your family with their favorite fresh-baked cinnamon rolls is a great way to start any day!
Shop Barndominium With Loft Plans Here

Barndominium Floor Plans with Loft Ideas
Now that you have a great list of all the pros and cons that come with a loft lifestyle, here are a few fantastic floor plans to get the ball rolling.
AP-20003 Cody Barndominium House Plan
- 2000 Heated square feet
- 2 Bedrooms
- 2.1 Bathrooms
- Single story
- Open concept
- Fireplace
- Storage Loft
- Utility
- Mudroom
- Wraparound Porch
- 2-Car Garage
- 1102 Sq ft Garage
- This home provides 2000 square feet of comfortable, climate-controlled living space, ensuring year-round coziness.
- Two well-designed bedrooms offer a peaceful retreat, each with ample space for relaxation and rest. It also includes two full bathrooms and one half-bath, all equipped with modern fixtures for convenience and luxury.
- Enjoy the simplicity and accessibility of single-story living and an accessible storage loft provides additional space for storing seasonal items and other belongings out of sight.
- The layout features a seamless flow between the living, dining, and kitchen areas, perfect for entertaining and everyday living while a cozy fireplace in the living area creates a warm and inviting atmosphere.
- A dedicated utility space in the garage is ideal for additional storage and a practical entryway mudroom ensures your home stays clean and organized by providing a designated spot for outerwear and shoes.
- With 1102 square feet, the spacious two-car garage provides plenty of room for vehicles and extra storage.
- The wraparound porch adds charm and offers ample space for relaxing, entertaining, and enjoying the outdoors.
BCO-40034-B Brandon Barndominium House Plan
- 2520 Heated square feet
- 30×40 living space dimension
- 3 bedrooms
- 3 bathrooms
- 2 Story
- Loft
- Open Concept
- Mudroom/Laundry
- Front porch
- Crawl Space Foundation
- Stretch out across 2,520 square feet of thoughtfully designed comfort—ample space for living, hosting, and everything in between.
- Three private retreats, each ready to echo your personal style and offer sanctuary at day’s end.
- No waiting, no compromises—three sparkling bathrooms bring convenience and polish to everyday living.
- Double the levels, endless potential—this open-concept layout lets natural light and good vibes flow from floor to ceiling.
- The ultimate transition zone—a stylish and functional mudroom keeps your living space clean and clutter-free.
- Classic charm meets curb appeal—this spacious front porch invites morning coffees, twilight chats, and endless relaxation.
HC-24007 Manhattan Barndominium House Plan
- 2670 Heated square feet
- 3 Bedrooms
- 2.1 Bathrooms
- Loft
- Open concept
- Attached 1040 Sq Ft Garage
- Bonus room
- Mudroom
- Mechanical room
- Front & back porch
- Encompassing 2670 heated square feet, this home features 3 spacious bedrooms and 2.1 stylish bathrooms.
- The open concept design ensures a seamless flow throughout the living spaces.
- The loft and bonus room offer versatile spaces that can be tailored to your needs, while the mudroom and mechanical room add practicality and convenience.
- Enjoy the luxury of an attached 1040 sq ft garage and unwind on the charming front and back porches.
HC-24008 Jackson Barndominium House Plan
- 3653 Heated square feet
- 5 Bedrooms
- 3.1 Bathrooms
- Loft
- Open concept
- Attached 1158 Sq Ft Garage
- Office
- Mechanical room
- Mudroom
- Patio
- An expansive two-story floor plan with 3653 heated square feet offering 5 bedrooms and 3.1 bathrooms, providing ample room for family and guests.
- The open concept layout on the main floor ensures a smooth flow, perfect for both everyday living and entertaining.
- The loft-style second floor adds a touch of versatility, while the dedicated office is ideal for remote work or study. Practical features like the mechanical room and mudroom enhance convenience.
- The attached 1158 sq ft garage offers plenty of space for vehicles and storage and you can enjoy the charm of the patio, perfect for relaxing and enjoying the outdoors.
LP-2802 Marcus Barndominium House Plans


- 2800 Heated square feet
- 1123 Attached 3 car garage
- 3 bedrooms
- 3 bathrooms
- 2 Story
- Loft
- Mudroom
- Jack and Jill Bathroom
- Office
- Open Concept
- The Marcus Barndominium house plan is 2800 heated square feet and features 3 bedrooms and 3 bathrooms with a 1123-square-foot attached garage.
- This house plan has an open-concept design that is big enough for large families to gather together. With the second story being open to below, it allows the space to feel even larger than it is.
- The master suite is located by itself to give the owners the privacy that they desire. With a large walk-in closet, there is plenty of room to hang and organize your clothes.
- The kitchen is large and spacious with a large pantry to store food and to keep your kitchen clutter-free. The island is large, making it perfect to prep, serve food, or line the kids up on barstools to eat a quick meal.
- The office is located just off the living room with double doors with an elevated look to the home.
- The two secondary bedrooms have nice-sized closets and a desirable jack-and-jill bathroom for the kids to share.
- The upstairs loft makes a great teen hangout or playroom for the kids.
LP-2803 Wickard Barndominium House Plans


- 4385 Heated square feet
- 3522 Attached 4 car garage
- 3 bedrooms
- 2.2 bathrooms
- 2 Story
- Loft
- Mudroom
- Outdoor fireplace
- Covered balcony
- Open Concept
- The Wickard barndominium house plan is 4385 heated square feet and features 3 bedrooms, 2 full bathrooms, and 2 half bathrooms.
- The open-concept floor plan allows for the whole family to feel connected when in the main living area of the home.
- An amazing feature that owners love about this home is the separate garages that are attached to the home that cover over 3000 square feet of garage space with the bigger garage having a half bath within it.
- The master bathroom has an en-suite bathroom and a large walk-in closet with an island in the middle of the closet to fold laundry or utilize as a dresser for added storage.
- There are two additional bedrooms on the first floor of this home that are perfect for kids or to create a guest room.
- The kitchen is large and spacious with an island that faces the living area so that even when you are in the kitchen you still feel connected with the family. There is a large pantry located behind the kitchen that has ample storage.
- The second story is open to the downstairs with a nice loft that has plenty of room to create a playroom or teen hangout. There is also a half bath and an extra room to create a space that fits your family.
- Off the second story is an incredible covered balcony so you can enjoy the great outdoors all year long.
- The outdoor fireplace is an added bonus with this Wickard barndominium house plan that you will fall in love with.
LP-2807 Wescott Barndominium House Plans

- 1800 Heated square feet
- 4 bedrooms
- 3 bathrooms
- 2 Story
- Loft
- Open Concept
- The Wescott barndominium house plan is 1800 heated square feet and features 4 bedrooms and 3 bathrooms.
- The open-concept design allows for plenty of space for the family to mingle and interact with one another. The main areas of the home appear even larger thanks to the vaulted ceilings.
- The kitchen is large and spacious with a large island with ample counter space and a decent-sized pantry in the corner of the kitchen.
- This plan includes several windows to allow the natural light to flow throughout the home.
- The master bedroom is spacious with a large master bathroom, shower, and stand-alone tub. The double vanity allows the couple to get ready at the same time without bumping into one another. The master also offers a large walk-in closet.
- This house plan has 3 additional bedrooms all with a nice sized closet. One of the secondary bedrooms has a private bathroom attached. The remaining bedrooms share the additional bathroom located in the hall.
- Upstairs is a nice loft ready for a home office, playroom, or anything you desire.
- The Wescott barndominium house plan has both a front and back patio so there is plenty of room to enjoy the outdoors.
LP-3203 Aurora Barndominium House Plan


- 2400 Heated square feet
- 3 bedrooms
- 2 bathrooms
- 2 Story
- Loft
- Foyer
- Office
- Playroom
- Fireplace
- Open Concept
- The Aurora barndominium house plan is 2400 heated square feet and features 3 bedrooms and 2 bathrooms.
- This open concept creates a nice open space perfect for gathering and entertaining.
- As you enter the Aurora house plan you enter into a nice-sized foyer with an office on one side and a desirable playroom on the other, making this the perfect home for young children. The living room has vaulted ceilings and a corner fireplace to make the space feel cozy and warm.
- The kitchen is equipped with a big island and a corner pantry allowing for plenty of storage and food prep.
- The master bedroom is just off the living room and is large and spacious. The master bathroom comes with a shower, two vanity sinks, a stand-alone tub, and a water closet. The walk-in closet provides plenty of room for all your clothes and attic access making it super convenient for the homeowners.
- This home has two secondary bedrooms that are on the opposite side of the home, both with large closets. These bedrooms share the hall bathroom that is between both bedrooms.
- The Aurora barndominium house plan is designed with both a front and back porch so that you can take in the views from every direction.
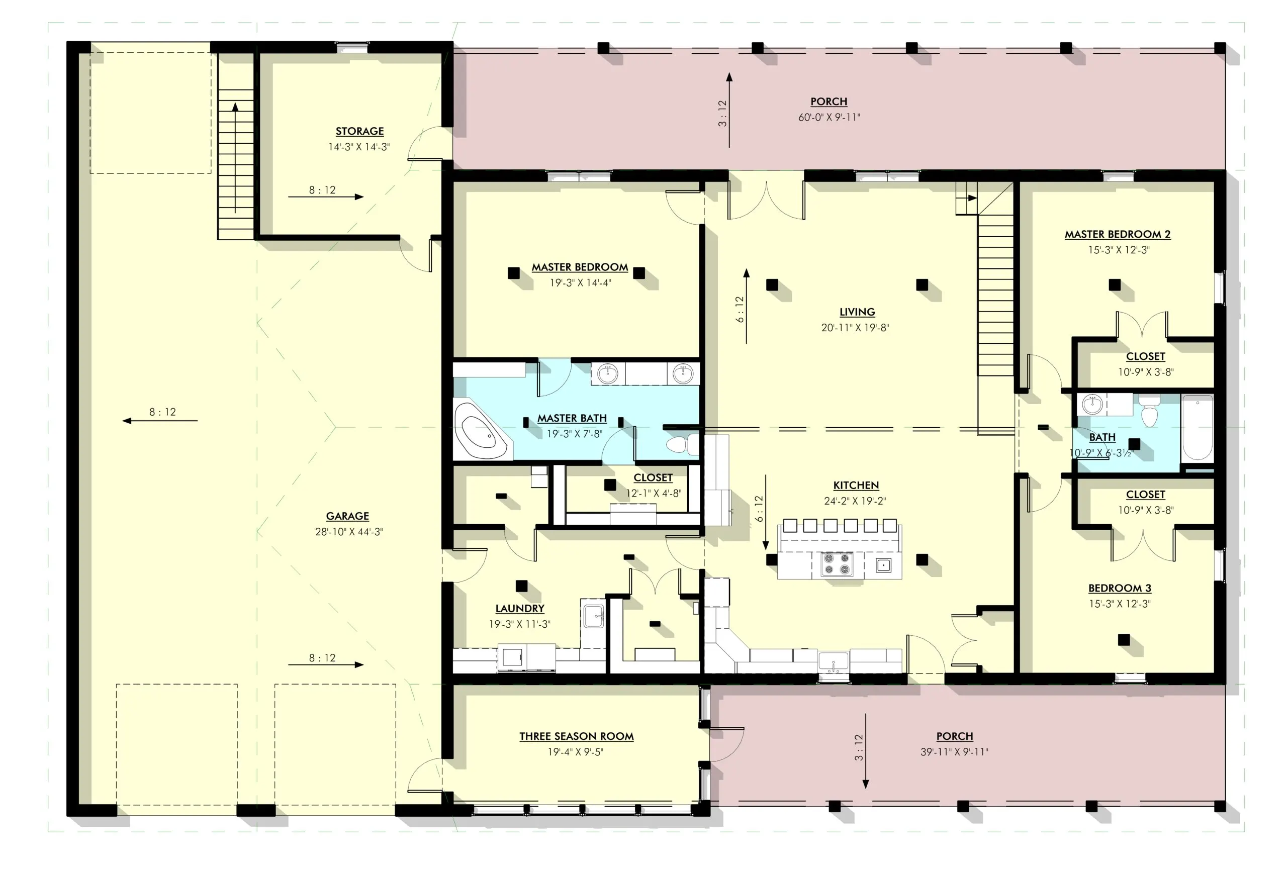
LP-3206 Condley Barndominium House Plan


- 2600 Heated Square Feet
- 1800 Square Feet attached garage
- 3 Bedrooms
- 2 Bathrooms
- 1 Story
- Open Concept
- Three Season Room
- With ample room to accommodate various lifestyles, the 2600 heated square feet provide the canvas for your dream home.
- This 2600-square-foot haven seamlessly integrates modern living with practicality, offering ample room for both comfort and storage.
- Each bedroom is a private retreat, offering a sanctuary for relaxation. The two well-appointed bathrooms provide convenience and style, seamlessly integrating into the daily rhythm of your household.
- Elevate your storage solutions with the inclusion of a versatile storage loft. This ingenious addition provides a practical and space-efficient way to organize and store your belongings.
- Escape into a haven of nature with a Three Season Room, where the boundary between indoors and outdoors becomes delightfully blurred. This versatile space invites you to bask in the beauty of spring, summer, and fall while remaining comfortably sheltered.
LP-71006 Holly Barndominium House Plan

- 4 Bedrooms
- 3.1 Bathrooms
- 3360 Heated Square Feet
- 2-story
- Loft
- Mechanical room
- Attached 3-car garage
- Porch
- Storage spaces
- Bonus space
- Magnificent 4-bedroom, 3.1-bathroom, 2-story home spanning 3,360 heated square feet. Each room is thoughtfully designed for your ultimate comfort.
- Embrace versatile living with a loft area ideal for an office or relaxation, and utilize the bonus space for hobbies, crafts, or extra storage.
- The mechanical room ensures household systems are conveniently accessible.
- Enjoy the practicality of generous storage spaces and the convenience of an attached 3-car garage.
- Unwind on the charming porch, and experience a harmonious blend of sophistication and functionality.
LP-71009 Bell Barndominium House Plan
- 4 Bedrooms
- 3 Bathrooms
- 2410 Heated Square Feet
- Open-concept
- 2-story
- Loft bonus space
- Patio
- Breezeway
- J&J Bathroom
- 3-car Detached Garage
- A 4-bedroom designed for both privacy and comfort, with well-placed locations throughout the house, ideal for family living.
- The 3 bathrooms are strategically distributed to ensure convenience and accessibility for all residents and guests.
- 2410 heated square feet of spacious and climate-controlled living areas, ensuring year-round comfort with 2 stories providing additional living space and functional areas across two levels, optimizing the home’s square footage.
- Seamless integration between the kitchen, dining, and living areas with open-concept creating a fluid and spacious living environment.
- With a versatile loft area that can be utilized as an office, playroom, or additional living space.
- A spacious patio provides an outdoor space perfect for entertaining, dining, or simply enjoying the outdoors while also functioning as a breezeway, adding both functionality and aesthetic appeal.
- A Jack and Jill bathroom is accessible from two bedrooms on the second floor offering efficient use of space.
- The 3-car detached garage provides ample parking and storage for your vehicles.
PL-2806 Bilbrey Barndominium House Plans

- 2317 Heated square feet
- 4 bedrooms
- 3 bathrooms
- 2 Story
- Loft
- Open Concept
- Laundry room
- Pantry
- The Bilbrey barndominium house plan is 2317 heated square feet and features 4 bedrooms and 3 bathrooms.
- The open floor plan allows for maximum functionality within the main areas of the home.
- The master bedroom is located on one end of the home with a nice-sized master bathroom and closet.
- Three other bedrooms are located on the other side of the main living area. They all have decent-sized closets and share the other full bathroom.
- At the top of the stairs there is a great loft perfect for a kid’s playroom, a hangout area, or an open space for study.
- The front and back porches are perfect for entertaining or enjoying a nice cup of coffee in the morning.
PL-60707-K Kessler Barndominium House Plan
- 6562 Heated square feet
- 60×84 living space dimension
- 1572 sq ft 3-car garage
- 6 bedrooms
- 4.1 bathrooms
- 2 Story
- Loft
- Recreation Room
- Office
- Open Concept
- Mechanical room
- Wraparound porch
- This isn’t just space—it’s an experience. Over 6,500 square feet of pure possibility, offering luxurious comfort, generous flow, and room for life to unfold beautifully.
- Expansive and thoughtfully proportioned, this footprint is built to impress. Whether entertaining guests or quiet nights in, it delivers room to roam and walls that wow.
- Three-car capacity, but think bigger—this garage is a gearhead’s dream, a hobby haven, or your next weekend workshop. It’s not just parking. It’s potential.
- Six distinctive retreats to house your dreams, your guests, your home office—or even your secret reading nook. Enough versatility to turn heads and open doors.
- No lineups, no compromise—just elegant fixtures and polished layouts across four full baths and an extra guest-friendly powder room. It’s luxury in the details.
- Two stylish levels of living, each curated for flow and function. Whether you’re climbing toward cozy or descending into entertainment mode, this layout brings it.
- An elevated escape that’s equally perfect for quiet mornings, creative afternoons, or moonlit musings. It’s your upstairs hideaway with style.
- Let the fun begin! A dedicated recreation space built for laughter, movie marathons, or game night supremacy. It’s where weekends come alive.
- Your productivity playground. Whether you’re closing deals or chasing ideas, this office keeps your workflow polished, quiet, and uninterrupted.
- This open-concept design invites connection, light, and conversation—with spaces that flex for hosting, lounging, or living large.
- Smart design starts behind the scenes. With a dedicated mechanical room, home systems stay accessible, efficient, and tucked discreetly away.
- Circle your domain in charm—this wraparound porch offers panoramic living with sunrise serenity, sunset views, and a front-row seat to curb appeal.
PL-62304 Wolfe Barndominium House Plans
- 3226 Heated square feet
- 757 square feet attached garage
- 4 bedrooms
- 4 bathrooms
- 2 Story
- Loft
- Jack and Jill Bathroom
- Open Concept
- The Wolfe barndominium house plan is 3226 heated square feet and features 4 bedrooms, 4 full bathrooms, and an attached 757 square foot attached garage.
- As you enter the home, you’ll immediately notice the spacious great room, which is perfect for entertaining guests or simply relaxing with family.
- On the other side of the great room is the family room, which features its own bathroom and a stairway leading to the second floor. It is cozy and perfect for unwinding after a long day. This space is also perfect for a downstairs playroom if you choose.
- The standout feature of this barndominium is the large kitchen and dining areas. The kitchen is larger and spacious and has plenty of counter space making it a great place for cooking and entertaining. An added bonus is the large butler’s pantry just off the kitchen.
- Located downstairs, you’ll find the huge master bedroom, complete with its own bathroom and closet. This is a great space for privacy and relaxation, and you’ll love the comfort and convenience of having your own master suite. A special feature of this master bedroom is a door where you can access the shop which is the perfect place for working on projects or storing tools.
- The 3 secondary bedrooms are located upstairs. All of them have nice-sized closets. Bedroom 3 has its own private bathroom while bedrooms 1 & 2 share a convenient jack and jill bathroom.
- The garage is a spacious 757 sq ft, providing ample space for your vehicles and storage needs. The garage also connects to the shop, making it easy to move between the two spaces. And with a total of 163 sq ft of shop space, you’ll have plenty of room to work on your hobbies or projects.
- With a front and back porch, there is plenty of space outside to enjoy the great outdoors as you soak it all in.
PL-62324 Milford Barndominium House Plan


- 3713 Heated square feet
- 1337 sq ft 3-car garage
- 4 bedrooms
- 3.1 bathrooms
- Open Concept
- 2 Story
- Loft
- Wraparound porch
- Shop
- Mechanical room
- Safe room
- Storage room
- Just the right size to live large without the sprawl in this 3,713 heated SF home
- Oversized 1,337 SF 3-Car garage with space for your cars, gear, and then some.
- Spacious sleeping quarters for family, guests in the four cozy bedrooms.
- With 3.1 bathrooms, no more morning traffic jams—everyone gets their space.
- Light, flow, and freedom from wall-to-wall living in an open concept layout.
- Double the space, smart separation between living and rest in two stories.
- Bonus flex space for lounging or gaming for your loft.
- All-season charm with 360° views and serious curb appeal all in your wraparound porch.
- Built-in utility, security, and workspace without sacrificing square footage with the shop, mechanical room, and safe room all in the garage.
- Storage room keeps the clutter hidden and the living space clean.
PL-62401 Blaze Barndominium House Plan
- 1683 Heated square feet
- 2 bedrooms
- 2 bathrooms
- 1 Story
- Bonus Room
- Open Concept
- The Blaze barndominium house plan is 1683 heated square feet and features 2 bedrooms and 2 full bathrooms.
- The first floor is designed for entertaining and relaxing, with an open-concept family room, kitchen, and dining space. The family room has a cozy fireplace that adds warmth and ambiance to the space.
- The kitchen has a large island and a corner walk-in pantry.
- The master suite is a retreat of its own, located on the first floor for convenience and privacy. The master bath has a single vanity and a shower. The master closet is huge, with enough room for all your clothes and accessories. It also has direct access to the laundry room making it super convenient for washing and putting away clothes.
- The secondary bedroom is spacious with dual closets and is located right across the hall from the second bathroom.
- The stairs lead to a nice-sized loft at the top of the stairs with a large bonus room. Whether you need a game room, an office, a guest room, or a hobby room, this space can accommodate your needs.
- With a large front porch and back patio there is plenty of outdoor space to enjoy everything nature has to offer.
PL-62504 Cameron Barndominium House Plan
- 3,242 Heated Square Feet
- 3 Bedrooms
- 3 Bathrooms
- Two-story design with loft
- Open-concept living area
- Front porch spanning 50 feet
- Attached 2,000 sq. ft. garage/shop
- Dedicated pantry and storage spaces
- Mudroom & laundry area
- Spacious master suite with dual closets
- This thoughtfully designed home offers 3,242 square feet of heated living space, blending modern functionality with classic barndominium charm. The three well-sized bedrooms provide ample space for family members or guests, each designed to maximize privacy and comfort.
- With three full bathrooms, the home ensures convenience and ease, featuring modern finishes and ample space for everyday use. The two-story layout includes a loft area, adding versatility for additional living space, a home office, or recreational use.
- A large open-concept living area seamlessly connects the kitchen, dining, and family spaces, creating a perfect environment for entertaining or relaxing. The expansive front porch extends 50 feet, offering a welcoming outdoor retreat to enjoy fresh air and scenic views.
- The attached 2,000-square-foot garage and shop space provide plenty of room for vehicles, storage, and hobby areas, catering to both practical and recreational needs. Additional features like a walk-in pantry, dedicated storage spaces, and a mudroom enhance everyday convenience.
PL-62513 Harper Barndominium House Plan
- 2132 Heated square feet
- 30×60 living space dimension
- 3 bedrooms
- 2 bathrooms
- 2 Story
- Loft
- Office
- Bonus Room
- Attic Space
- Open Concept
- The Harper barndominium house plan is 2132 heated square feet and features 3 bedrooms and 2 full bathrooms.
- As you step inside the main floor of this home you are welcomed into a beautiful and spacious open floor plan. The family room takes center stage with the cozy fireplace and the large space for everyone to gather.
- The kitchen is perfect for preparing meals and the pantry is the perfect size for storing food and small appliances.
- The master bedroom is a nice size with a great ensuite bathroom and master closet.
- As you venture to the other side of the home you will find 2 secondary bedrooms both with decent size closets and a shared hall bathroom.
- The office is tucked away making it the perfect escape for those who need a quiet space while working from home.
- The laundry room leads to the back patio and is a great size for all your laundry needs.
- At the top of the stairs, you will find a great-sized bonus room full of possibilities. Not only that you will find an abundance of attic space.
- This home is the perfect floor plan to relax and connect with nature with the inviting front porch and back patio for private outdoor enjoyment.
PL-62748 Ainsley Barndominium House Plan
- 4431 Heated square feet
- 7 bedrooms
- 3 bathrooms
- 2 Story
- Mudroom
- Playroom
- Game/media room
- Fireplace
- Loft
- Attic space
- Open Concept
- This two-story marvel boasts an open-concept design where the family room is adorned with a cozy fireplace. Adding to the charm is a semi-spiral staircase that leads to the second floor. Here, an open balcony offers a bird’s eye view of the bustling family room and kitchen below. Every corner of this home has been thoughtfully designed to ensure a harmonious blend of space, comfort, and elegance.
- This also features seven ample-sized bedrooms, each equipped with generous closet spaces. On the ground floor, you’ll find three beautifully designed rooms, including a spacious master bedroom and a well-appointed guest room. As you ascend the stairs to the second floor, you’ll discover four additional bedrooms.
- The master bathroom, located within the master bedroom, is a private oasis offering luxury and relaxation. On the main floor, you’ll find a shared bathroom that is both practical and stylish, designed to cater to the needs of family members and guests alike. The second floor houses another shared bathroom, ensuring that those occupying the upper-level rooms have easy access to facilities.
- On the main floor, you’ll find a practical mudroom offering a convenient spot to store outdoor gear and keep the rest of your home clean. The main floor also houses a vibrant playroom, a safe and fun-filled space. On the second floor, you’ll find a spacious game/media room nestled among the bedrooms. This versatile space is perfect for movie nights, game days, or simply lounging around.
PL-62749 Wellington Barndominium House Plan
- 2524 Heated square feet
- 3 bedrooms
- 2.2 bathroom
- 2 Story
- Loft-style
- Open-concept
- Wraparound porch
- 3-Car Garage
- Experience the perfect blend of functionality and style in this 2524 sq ft barndominium. Revel in the spaciousness of its open-concept design and enjoy the serenity of the outdoors on its wraparound porch.
- A two-story barndominium with a loft-style second floor offering a unique blend of rustic appeal and modern living.
- Step into the comfort of this barndominium house plan featuring 3 bedrooms with the master suite on the main floor and 2 additional bedrooms upstairs. Enjoy the convenience of 2 full bathrooms, one in the master suite and another shared by the upstairs bedrooms. Plus, benefit from the practicality of 2 powder rooms, located in the laundry room and garage.
PL-62832 Brantley Barndominium House Plan
- 5465 Sq Ft
- 38×60 living space dimension
- 4 Bedrooms
- 3.2 Bathrooms
- 2-story
- Wraparound porch
- Office
- Game room
- Media room
- Screened porch
- Sunroom
- 5-car garage
- This two-story floor plan includes four spacious bedrooms, providing ample space for family and guests. 2 bedrooms including the master bedroom on the main floor and 2 other bedrooms on the upper floor.
- With 3.2 bathrooms, including multiple full and half baths, convenience and comfort are prioritized.
- A dedicated office space provides a quiet and productive environment for work or study.
- The spacious game and media rooms offer a fun and versatile space for entertainment and leisure activities and an immersive home theatre experience.
- The screened porch and sunroom on opposite sides of the house offer great space to relax and enjoy the outdoors.
- The expansive 5-car garage offers ample parking and storage space, accommodating multiple vehicles and additional belongings.
PL-63002 Graham Barndominium House Plan
- 1848 Heated square feet
- 778 square foot Attached 3 car garage
- 3 bedrooms
- 3 bathrooms
- 2 Story
- Loft
- Mudroom
- Media Room
- Open Concept
- The Graham barndominium house plan is 1848 heated square feet and features 3 bedrooms, and 3 full bathrooms, with an attached 778 square foot garage.
- As you enter this home through the double front doors you are immediately wowed by the beautiful staircase that leads upstairs. The family room sits to the right and is large and spacious. You will be drawn to the fireplace as it creates a nice cozy atmosphere.
- The kitchen is big and perfect for hosting friends and family. The island creates even more space to prep and serve. The walk-in pantry is perfect for storage of small appliances and food. There is even plenty of space for a nice breakfast nook.
- The first floor features a master bedroom with an ensuite bathroom and master closet.
- You will also find a secondary bathroom with a full bathroom.
- Just off the garage is a mudroom perfect for coming in from outside as well as a laundry room.
- As you climb the stairs you will notice a great balcony that overlooks the main areas of the home.
- You will also find another secondary bedroom with a large closet and bathroom.
- There is a nice-sized game room that can be used for anything your heart desires.
- An added bonus upstairs is a huge storage closet perfect for storing toys, holiday decor, and more.
- The 778-square-foot attached 3-car garage provides ample space for parking and storage.
- You will love how the front porch extends to the sides, you can enjoy the beautiful scenery and relax in the fresh air.
PL-64002 Gillian Barndominium House Plan
- 3984 Heated square feet
- 3 Bedrooms
- 2.1 Bathrooms
- Single story
- Open concept
- 3-car Garage
- Mudroom
- Basement
- Loft
- Breezeway
- Porch
- Patio
- This home offers a generous 3984 square feet of heated living space, including 2 additional levels- basement and loft, ensuring ample room for comfortable living and entertaining.
- Three spacious bedrooms provide plenty of personal space. Each room is designed to maximize comfort and functionality, perfect for restful nights.
- With two full bathrooms and one half-bath, this home ensures convenience and privacy for both family members and guests. The master bathroom features luxurious fixtures and a serene ambiance.
- The home is designed as a single-story layout, making navigation easy and accessible for all ages. This layout enhances the open-concept design and creates a seamless flow between rooms.
- A three-car garage provides ample space for vehicles, storage, and projects. This feature adds both convenience and practicality to the home, accommodating multiple cars and additional storage needs.
- The breezeway connects the garage to the main living area. This semi-open space allows for a sheltered transition while enjoying the outdoor elements.
- The mudroom serves as a transitional space between the outdoors and indoors.
- The basement offers a versatile area that can be customized to suit specific needs.
- The loft provides a cozy and flexible space for storage or can be transformed into an additional living area.
- The front porch adds charm and curb appeal, and a welcoming space to the home.
- The patio extends the living space outdoors, perfect for alfresco dining, entertaining, or simply enjoying the fresh air.
PL-64005 Zenith Barndominium House Plan
- 3212 heated sq ft
- 3752 sq ft Garage
- 3 Bedrooms
- 2.1 bathrooms
- Single-story
- Open concept
- Loft Porch
- Hobby room
- Office
- Spacious layout offering 3212 sq ft of comfortable, climate-controlled living space, perfect for modern family living.
- Generously oversized garage with 3752 sq ft, providing ample room for multiple vehicles, storage, and workshop needs.
- Three well-appointed bedrooms designed with privacy and comfort in mind, ensuring restful retreats for the whole family.
- Two full bathrooms and a convenient powder room, tailored for functionality and everyday luxury.
- Seamless, single-level design for ease of movement, ideal for families or individuals seeking accessibility and convenience.
- Bright, airy open-concept layout that blends living, dining, and kitchen spaces, creating the perfect environment for entertaining and connection.
- Versatile loft space, perfect for a cozy reading nook, play area, or an additional lounge to suit your lifestyle.
- Charming porch to enjoy morning coffee or evening relaxation while soaking in the outdoor ambiance.
- Dedicated hobby room located in the garage, offering an inspiring space for crafts, projects, or even fitness.
- Private, well-placed office adjoining the garage, ideal for remote work or managing personal affairs.
PL-64006 Sagewood Barndominium House Plan
- 3366 Heated Sq Ft
- 1343 Sq Ft attached Garage
- Attached 3-car garage
- 5 Bedrooms
- 3.1 Bathrooms
- Laundry room
- Open concept
- Two-story
- Loft
- Office
- Attic
- Mechanical room
- Porch
- Patio
- 3366 Heated Sq Ft offers a spacious and comfortable living area for relaxation and activities.
- 1343 Sq Ft attached 3-Car garage provides ample room for three vehicles, plus additional storage or workspace.
- 5 Bedrooms: Includes 3 bedrooms conveniently located on the main floor and 2 bedrooms on the upper floor, suitable for family members or guests.
- 3.1 Bathrooms: Features a luxurious master bath, 1.1 baths on the main floor, and 1 full bath upstairs for convenience.
- A dedicated space for organizing and managing household laundry needs.
- The open concept enhances the feeling of space, promoting seamless flow between living, dining, and kitchen areas.
- This two-story design provides a dynamic layout with private and shared spaces spread across two levels.
- The loft gives a versatile area on the upper floor, perfect for a reading nook, entertainment space, or additional seating.
- An office on the upper floor is an ideal private space for work, study, or productivity.
- The unfinished attic offers extra storage space for seasonal items and other belongings.
- A mechanical room in the garage houses essential home systems while maximizing functional space in the main living areas.
PL-69193 Westchase Barndominium House Plan
- 2163 Heated square feet
- 1036 square foot attached 3 car garage
- 3 bedrooms
- 2.2 bathrooms
- 2 Story
- Loft
- Mudroom
- Open Concept
- The Westchase barndominium house plan is 2136 heated square feet and features 3 bedrooms, 2 full bathrooms, and 2 1/2 bathrooms with an attached 1036 square foot garage.
- As you enter Westchase house plan through the front door, you are greeted into a spacious family room with a cozy fireplace and a bar.
- The room flows nicely into the corner kitchen which has plenty of counter space for prepping and serving. An island sits in the kitchen as well for added space and convenience.
- The master bedroom features a walk-in closet and private bath, providing the owners with the privacy they are seeking.
- Downstairs you will also find a vestibule, a mudroom, and a half bathroom.
- The 1036 square foot attached 3 car garage is a dream. Not only is it spacious enough to accommodate two cars, but it also includes a half bath and mechanical room, making it an ideal workspace for DIY projects or hobbies.
- Upstairs you will find a nice sized loft as well as two secondary bedrooms and a full bathroom. This is the perfect space for kids and teenagers.
- The wraparound porch is another standout feature of this home. With plenty of space to relax and take in the surrounding scenery, you’ll love spending time outdoors and enjoying the best that nature has to offer.
PL-69200 Darwin Barndominium House Plan
- 5552 Heated square feet
- 5 bedrooms
- 4.1 bathrooms
- 2 Story
- Open Concept
- Guest Bedroom
- Bonus Room
- Laundry Room
- Storage
- Utility Room
- Cold Storage
- 4-car attached garage
- Boasting a sprawling 5552 heated square feet of pure elegance, this two-story marvel is designed with an open concept, creating a seamless flow between grand living spaces. Imagine towering ceilings, expansive windows that invite natural light to dance across artisan finishes, and an ambience that exudes modernity while still feeling like home.
- Five bedrooms—including a dedicated guestroom—and 4.1 bathrooms, ensuring comfort for family and visitors alike. The master suite and guest quarters, complete with luxurious baths, are conveniently located on the main floor. Upstairs, the additional bedrooms promise personal havens for rest, while the versatile bonus room opens up possibilities for entertainment, hobbies, or a home office.
- Innovative floor plan designed with special features that cater to both comfort and functionality. The Laundry Room, ingeniously accessible through the master closet, streamlines your daily routine, while the Storage Room and Utility Room provide ample space for organization and practicality. Not to be overlooked, the Cold Storage offers a unique solution for preserving your culinary creations or fine wines.
- Featuring a 4-car attached garage, this architectural masterpiece is perfect for the automobile enthusiast or a family with multiple drivers, offering ample space for vehicles, hobbies, or storage. The garage seamlessly integrates into the design, maintaining the aesthetic appeal of the home while providing the convenience and security you desire.
PL-71004 Alasio Barndominium House Plan

- 4 Bedrooms
- 3.1 Bathrooms
- 3887 Heated Square Feet
- 2-story
- Loft
- Mudroom
- Attached 3-car garage
- Front and back porch
- Office
- Fireplace
- Lounge
- 2 Jack and Jill Bathrooms
- Explore this beautifully designed 2-story barndominium, offering ample space for family and guests with a total of 3,887 heated square feet.
- The open-concept design seamlessly integrates the living, dining, and kitchen areas, making it ideal for daily living and entertaining. A cozy fireplace in the family room adds warmth and is a focal point for gatherings.
- This floor plan includes four spacious bedrooms, providing comfortable retreats for all family members and guests.
- The layout features a luxurious master bathroom and a well-appointed guest bathroom. With 3.1 bathrooms, including two Jack and Jill bathrooms, this home provides convenience and efficient use of space between bedrooms.
- A versatile loft area that can serve as an additional living space, playroom, or home gym.
- An attached 3-car garage offers ample space for vehicles, storage, and hobbies and the mudroom provides a practical entryway space, perfect for storing shoes, coats, and outdoor gear.
- Enjoy the outdoors with both front and back porches, perfect for relaxing, entertaining, or enjoying the fresh air.
- A dedicated office space for working from home, managing household tasks, or pursuing personal projects.
- A comfortable lounge area for relaxing, reading, or enjoying family time.
PL-82001 Fowler Barndominium House Plan

- 5792 heated Square Feet
- 6 Bedrooms
- 4.2 Bathrooms
- 2 Story
- Open Concept
- Hobby room
- Game/media room
- Sitting area
- Playroom
- Front & rear porch
- 2-car detached garage
- Luxuriate in nearly 5,800 square feet of impeccably designed, temperature-controlled living—every square foot crafted for comfort, elegance, and unforgettable gatherings.
- Six inviting bedrooms promise restful retreats for every family member or guest—each one a private sanctuary with space to breathe, unwind, and dream.
- With four full baths and two stylish powder rooms, convenience meets sophistication—ensuring seamless mornings and elegant hosting for any occasion.
- Thoughtfully arranged across two expansive levels, this layout balances togetherness and personal space—ideal for vibrant entertaining below and tranquil escapes above.
- From airy conversations in the kitchen to effortless entertaining in the great room, the open-concept design flows with natural light and modern sophistication.
- Whether it’s painting, crafting, or perfecting your next passion project, the hobby room offers a creative corner tailored for inspiration and focus.
- Movie marathons, game nights, or immersive binge sessions—the dedicated game/media room delivers cinematic comfort and lively fun for all ages.
- A quiet sitting area beckons for reflective mornings, casual reading, or warm, intimate conversations with a cup in hand and sunlight streaming in.
- Let imaginations run wild in a bright, cheerful playroom designed for kids to explore, create, and grow in their own lively little world.
- From sunrise coffees on the welcoming front porch to serene sunsets out back, these dual outdoor spaces invite connection with nature and neighbors alike.
- The detached two-car garage adds both function and charm—perfect for vehicle storage, gear organization, or converting into a workshop or studio.
PL-71005 Vista Barndominium House Plan

- 4 Bedrooms
- 3.1 Bathrooms
- 3179 Heated Square Feet
- 2-story
- Loft
- Playroom
- Media room
- Mudroom
- Mechanical room
- Jack and Jill Bathrooms
- Attached 3-car garage
- Front porch
- Patio
- With an expansive 3,179 heated square feet, this two-story floor plan offers ample space for your family to grow and thrive.
- Enjoy the comfort and privacy of four generously sized bedrooms, including Jack and Jill bathrooms that provide convenience and elegance. The 3.1 bathrooms ensure there’s never a wait during busy mornings.
- The loft area is perfect for a cozy reading nook or home office, while the playroom offers a dedicated space for fun and creativity. The media room is designed for ultimate entertainment right at home.
- The mudroom is ideal for keeping your home tidy, and the mechanical room ensures your household systems are easily accessible. An attached 3-car garage offers ample parking and storage space for vehicles and outdoor gear.
- Relax on the inviting front porch or host gatherings on the stylish patio, making every moment spent outdoors special.
SV-5503 Parker Barndominium House Plan
- 1862 Heated square feet
- 2 Bedrooms
- 2.1 Bathrooms
- Open concept
- Fireplace
- Storage loft
- Utility room
- Garage/shop
- Step into a world of rustic elegance with our 1862-square-foot barndominium. Two spacious bedrooms await, along with 2.1 bathrooms for your comfort.
- The cozy fireplace beckons you to unwind while the storage loft provides extra space for safekeeping other things. And don’t forget the practicality of the attached garage/shop – perfect for hobbies or storage.
SV-5504 Azalea Barndominium House Plan
- 2500 Heated square feet
- 3 Bedrooms
- 2 Bathrooms
- Loft
- Open concept
- Mechanical Room
- Mudroom
- Front and Rear Porch
- This 2500-square-foot haven boasts 3 bedrooms and 2 bathrooms, but it’s the heart of the home—the spacious great room with a wood stove, that steals the show.
- Ascend the spiral staircase to the loft—could be an office, reading nook or additional storage area.
- The rear porch features an outdoor kitchen, complete with a grill, sink, and seating area.
- The barndominium also includes a practical mudroom/ laundry area and a mechanical room.
SV-5505 Callum Barndominium House Plan
- 2330 Heated square feet
- 4 Bedrooms
- 3.1 Bathrooms
- Loft
- Open concept
- Attached 875 Sq Ft Garage
- Jack n Jill Bathroom
- Mudroom
- Wraparound Porch
- A spacious and well-designed floor plan that spans across 2330 heated square feet. This plan features 4 bedrooms and 3.1 bathrooms, providing ample space for a comfortable living experience.
- The plan also includes a second floor with 2 bedrooms, a bathroom and loft area.
- The attached 875 sq ft garage offers plenty of room for your vehicles and storage.
- One of the unique features of this plan is the Jack n Jill bathroom, shared between two bedrooms, which optimizes space and functionality.
- The mudroom provides a practical solution for keeping your home clean and organized, especially on rainy days.
- Finally, the wraparound porch adds a charming touch to the exterior while offering a relaxing outdoor space for you to enjoy. This floor plan truly combines style, comfort, and practicality.
Design Your Own Barndominium Floor Plans With Loft
If you love this loft look and want to try your hand at creating your own custom plans, we’ve got some helpful design software that will make it easy for you to try. Even design rookies can have a blast at creating a floor plan that works for their family, plus you can see exactly how it would look in the end with 3-D modeling.
If you’re interested in learning even more about building your own home, we’ve also created a useful program that will give you all the tips you need. The Barndominium Life Program will take you through the building process from beginning to end and ensure that you’re informed about every step of the process.
Conclusion
Barndominium floor plans with loft can be the answer you’re looking for if you want a unique design for your forever home. Although they’re not perfect for every family, there are so many ways you can customize them to make them into a space you’ll love.
For inspiration, décor ideas, layout plans, and more be sure to purchase our e-book and subscribe to our email list. You’ll always be able to stay in the loop on all of the ways you can create the perfect barndo for you and your family.
If you would like more guides like this one, check out the rest of BarndominiumLife.com. There, you will find more helpful tips and tricks from the pros.
You will also find featured barndominiums, stock barndominium house plans, custom barndominium house plans, and information on financing and insurance.
Just starting out? Check out the Barndominiums Made Easy Program. It has our “How to Build Guide”, 120+ House Plans, and the Bid and Budget Tracker. Knowing as much as you can will help you get the best results for your dream home.
Find More Barndominium Floor Plans
By Bedrooms:
1 Bedroom • 2 Bedrooms • 3 Bedrooms • 4 Bedrooms • 5 Bedrooms • 6 Bedrooms • 7 Bedrooms • 8 Bedrooms
By Feature:
1-Story • 2-Story • With Garage • 2 Car Garage • 3 Car Garage • Wraparound Porch • With Breezeway • 2 Master Suites • With Loft • Multi-Family Barndominiums • Open-Concept • With Shop
By Size:
Small Plans • 800 Sq Ft • 900 Sq Ft • 1000 Sq Ft • 1200 Sq Ft • 30×40 Floor Plans • 1400 Sq Ft • 1500 Sq Ft • 1600 Sq Ft • 40×40 Floor Plans • 1800 Sq Ft • 30×60 Floor Plans • 2000 Sq Ft • 2400 Sq Ft • 2500 Sq Ft • 2800 Sq Ft • 3000 Sq Ft • 3200 Sq Ft • 3600 Sq Ft • 4000 Sq Ft • 5000 Sq Ft •
















































































