
PL-63002 Graham Barndominium House Plan
Want to buy this house plan? Scroll to the bottom and find the link to purchase.
About this barndominium house plan:
- 1848 Heated square feet
- 778 square foot Attached 3 car garage
- 3 bedrooms
- 3 bathrooms
- 2 Story
- Loft
- Mudroom
- Media Room
- Open Concept
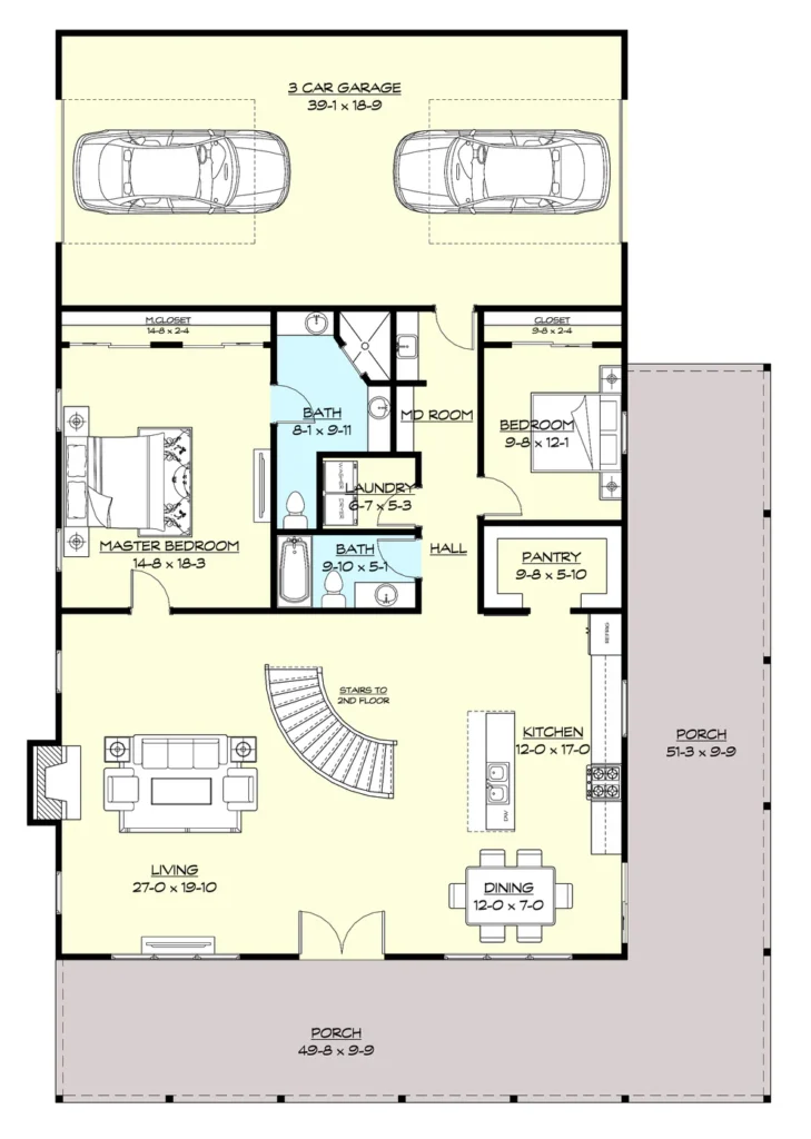
- The Graham barndominium house plan is 1848 heated square feet and features 3 bedrooms, and 3 full bathrooms, with an attached 778 square foot garage.
- As you enter this home through the double front doors you are immediately wowed by the beautiful staircase that leads upstairs. The family room sits to the right and is large and spacious. You will be drawn to the fireplace as it creates a nice cozy atmosphere.
- The kitchen is big and perfect for hosting friends and family. The island creates even more space to prep and serve. The walk-in pantry is perfect for storage of small appliances and food. There is even plenty of space for a nice breakfast nook.
- The first floor features a master bedroom with an ensuite bathroom and master closet.
- You will also find a secondary bathroom with a full bathroom.
- Just off the garage is a mudroom perfect for coming in from outside as well as a laundry room.
- As you climb the stairs you will notice a great balcony that overlooks the main areas of the home.
- You will also find another secondary bedroom with a large closet and bathroom.
- There is a nice-sized game room that can be used for anything your heart desires.
- An added bonus upstairs is a huge storage closet perfect for storing toys, holiday decor, and more.
- The 778-square-foot attached 3-car garage provides ample space for parking and storage.
- You will love how the front porch extends to the sides, you can enjoy the beautiful scenery and relax in the fresh air.
For more barndominium floor plans, check out our complete collection of 3 bedroom barndominium floor plans.
Need to make changes? Email our modification department. We will get you a free price quote within 72 hours.
Please note all square footage are estimates.



Real-World Photos of PL-63002
Looking for what this build looks like in the real world? Check out this build of PL-63002 in Georgia! Please note that customer did make some minor modifications to the plans during the build process.



















Find More Barndominium Floor Plans
By Bedrooms:
1 Bedroom • 2 Bedrooms • 3 Bedrooms • 4 Bedrooms • 5 Bedrooms • 6 Bedrooms • 7 Bedrooms • 8 Bedrooms
By Feature:
1-Story • 2-Story • With Garage • 2 Car Garage • 3 Car Garage • Wraparound Porch • With Breezeway • 2 Master Suites • With Loft • Multi-Family Barndominiums • Open-Concept • With Shop
By Size:
Small Plans • 800 Sq Ft • 900 Sq Ft • 1000 Sq Ft • 1200 Sq Ft • 30×40 Floor Plans • 1400 Sq Ft • 1500 Sq Ft • 1600 Sq Ft • 40×40 Floor Plans • 1800 Sq Ft • 30×60 Floor Plans • 2000 Sq Ft • 2400 Sq Ft • 2500 Sq Ft • 2800 Sq Ft • 3000 Sq Ft • 3200 Sq Ft • 3600 Sq Ft • 4000 Sq Ft • 5000 Sq Ft •

