
BCO-40034-B Brandon Barndominium House Plan
Want to buy this house plan? Scroll to the bottom and find the link to purchase.
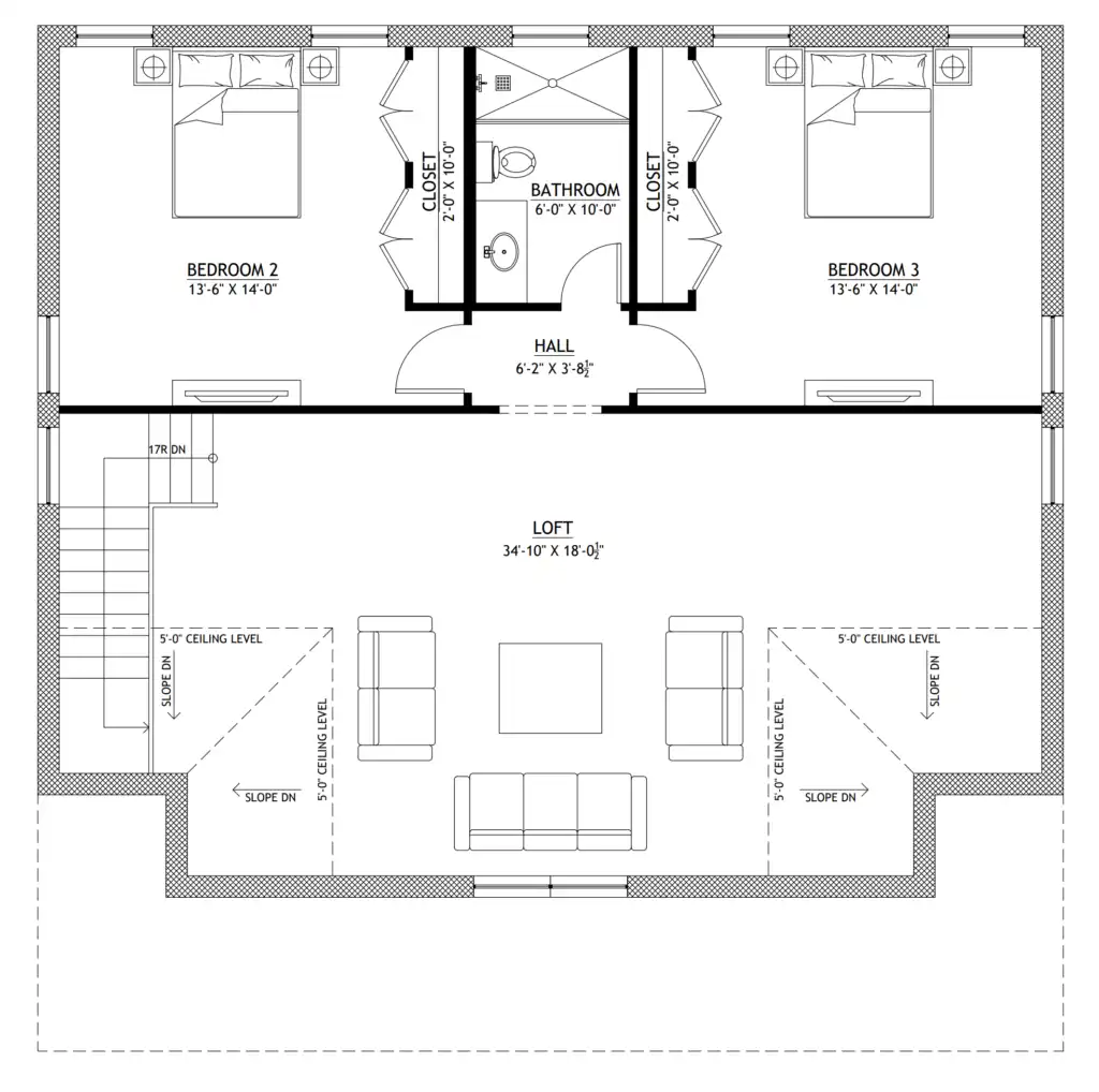
About this barndominium house plan:
- 2520 Heated square feet
- 30×40 living space dimension
- 3 bedrooms
- 3 bathrooms
- 2 Story
- Loft
- Open Concept
- Mudroom/Laundry
- Front porch
- Crawl Space Foundation
- Stretch out across 2,520 square feet of thoughtfully designed comfort—ample space for living, hosting, and everything in between.
- Three private retreats, each ready to echo your personal style and offer sanctuary at day’s end.
- No waiting, no compromises—three sparkling bathrooms bring convenience and polish to everyday living.
- Double the levels, endless potential—this open-concept layout lets natural light and good vibes flow from floor to ceiling.
- The ultimate transition zone—a stylish and functional mudroom keeps your living space clean and clutter-free.
- Classic charm meets curb appeal—this spacious front porch invites morning coffees, twilight chats, and endless relaxation.
What’s included in BCO-40034-B:
Cover Page
First Floor Plan
Second Floor Plan
Roof Plan
Front And Rear Elevation
Right And Left Elevation
First Floor Electrical Plan
Second Floor Electrical Plan
First Floor Plumbing Plan
Second Floor Plumbing Plan
First Floor Hvac Plan
Second Floor Hvac Plan
Roof Framing Plan
Foundation Plan
Wall Section
For more barndominium floor plans, check out our complete collection of 3-bedroom barndominium floor plans.
Need to make changes? Email our modification department. We will get you a free price quote within 72 hours.
Please note all square footage are estimates.












Find More Barndominium Floor Plans
By Bedrooms:
1 Bedroom • 2 Bedrooms • 3 Bedrooms • 4 Bedrooms • 5 Bedrooms • 6 Bedrooms • 7 Bedrooms • 8 Bedrooms
By Feature:
1-Story • 2-Story • With Garage • 2 Car Garage • 3 Car Garage • Wraparound Porch • With Breezeway • 2 Master Suites • With Loft • Multi-Family Barndominiums • Open-Concept
By Size:
Small Plans • 800 Sq Ft • 900 Sq Ft • 1000 Sq Ft • 1200 Sq Ft • 30×40 Floor Plans • 1400 Sq Ft • 1500 Sq Ft • 1600 Sq Ft • 40×40 Floor Plans • 1800 Sq Ft • 30×60 Floor Plans • 2000 Sq Ft • 2400 Sq Ft • 2500 Sq Ft • 2800 Sq Ft • 3000 Sq Ft • 3200 Sq Ft • 3600 Sq Ft • 4000 Sq Ft • 5000 Sq Ft •

