
LP-1018 Woodlands Barndominium House Plan
Want to buy this house plan? Scroll to the bottom and find the link to purchase.
About this barndominium house plan:
- 5739 Heated square feet
- 561 square foot attached garage
- 4 bedrooms
- 3 bathrooms
- 2 Story
- Open Concept
- Office
- Utility Room
- Movie Room
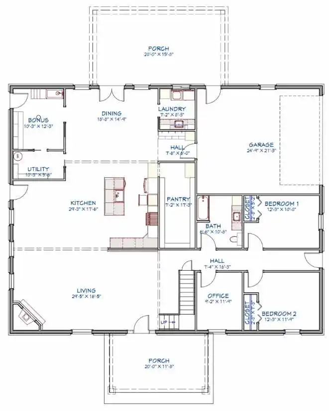
- The Woodlands barndominium house plan is 5739 heated square feet and features 4 bedrooms and 3 bathrooms.
- This open-concept home offers plenty of space for large families, family gatherings, and more.
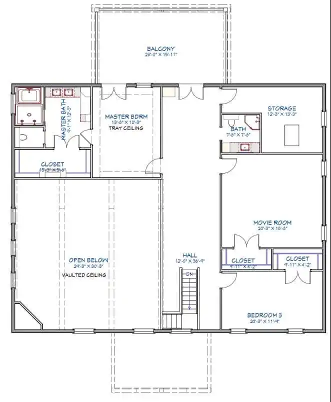
- The master suite is located on the second floor which provides a nice retreat from the rest of the home with a door to the balcony that overlooks the backyard.
- The secondary bedrooms are larger than average with nice size closets for storage.
- You will love that the office is tucked away off a hallway and away from the main living area of the home.
- This home features a large kitchen with the perfect amount of room for a kitchen table as well as a large island.
- The pantry is a chef’s dream with plenty of storage for food and appliances.
- On the second story, you will find a large movie room to cozy up and watch your favorite movies on a big screen.
- You will love the large storage room located upstairs.
For more barndominium floor plans, check out our complete collection of 4 bedroom barndominium floor plans.
Need to make changes? Email our modification department. We will get you a free price quote within 72 hours.
Please note all square footage are estimates.








Find More Barndominium Floor Plans
By Bedrooms:
1 Bedroom • 2 Bedrooms • 3 Bedrooms • 4 Bedrooms • 5 Bedrooms • 6 Bedrooms • 7 Bedrooms • 8 Bedrooms
By Feature:
1-Story • 2-Story • With Garage • 2 Car Garage • 3 Car Garage • Wraparound Porch • With Breezeway • 2 Master Suites • With Loft • Multi-Family Barndominiums • Open-Concept • With Shop
By Size:
Small Plans • 800 Sq Ft • 900 Sq Ft • 1000 Sq Ft • 1200 Sq Ft • 30×40 Floor Plans • 1400 Sq Ft • 1500 Sq Ft • 1600 Sq Ft • 40×40 Floor Plans • 1800 Sq Ft • 30×60 Floor Plans • 2000 Sq Ft • 2400 Sq Ft • 2500 Sq Ft • 2800 Sq Ft • 3000 Sq Ft • 3200 Sq Ft • 3600 Sq Ft • 4000 Sq Ft • 5000 Sq Ft •

