Finding the perfect barndominium floor plan can be hard when you are trying to find the one that fits your family’s needs the best! If you are tired of searching then look no further because we are showcasing our favorite (and our buyers and reader’s favorite) new barndominium floor plans. We promise you are going to love them!
For custom-designed floor plans, or to modify an existing floor plan, be sure to visit https://barndominiumplans.com.
Barndominiums offer a new and affordable way to design the home of your dreams. And because of their rustic, airy open style, they can also be used as a vacation home to be passed down for generations to come. They also hold their value, so they also provide a good return on investment (ROI).
Page Contents
Best New Barndominium Floor Plans
These top new barndominium floor plans will have you swooning with excitement! Be sure to tell us which one you love the most!
#8
Discover the latest breakthroughs, ethical considerations, and societal implications as we navigate this exciting journey…
PL-64036 Frost Barndominium House Plan
- Square Footage: 1,218 sq. ft. (Heated/Living Area)
- Bedrooms: 3
- Bathrooms: 2 (Two full bathrooms)
- Stories: 1
- Garage Spaces: 2 (The plan includes a large Garage/Shop area measuring 32′-1″ x 33′-1″)
- This efficient single-story barndominium offers 1,218 sq. ft. of heated living space and features a very large attached Garage/Shop (32′-1″ x 33′-1″).
- The living area is centralized, with a Kitchen (13′-9″ x 14′-2″) that opens directly into the Living Area (15′-6″ x 14′-2″).
- The three bedrooms are clustered on the side opposite the garage: Bedroom 1 (11′-2″ x 12′-0″), Bedroom 2 (11′-6″ x 10′-0″), and Bedroom 3 (11′-6″ x 10′-6″).
- The main living area includes a full Bathroom (5′-9″ x 9′-5″) and a second full Bathroom (4′-0″ x 10′-0″) accessible from the hall.
- The home also includes a Mechanical Room (8′-0″ x 12′-0″) and a full-length Front Porch (60′-0″ x 8′-0″).
#7
BCO-40014 Ridgeway Barndominium House Plan
- Square Footage: 1,610 sq. ft. (Heated/Living Area)
- Bedrooms: 2 (Master Bedroom and Bedroom 2)Bathrooms: 2 (Master Bathroom and one shared Bathroom)
- Stories: 1
- Garage Spaces: 2 (2-Car Garage measuring 24′-5″ x 19′-1″)
- This single-story plan features an attached two-car Garage (24′-5″ x 19′-1″) and a functional two-bedroom, two-bathroom layout.
- The main living area is completely open, combining a generous Living Room (19′-0″ x 22′-1″), Dining area (19′-0″ x 11′-0″), and Kitchen (17′-4″ x 12′-0″).
- The Master Bedroom (14′-5″ x 14′-4″) is a private suite with a Master Bathroom (6′-0″ x 11′-0″) and a Master Closet (6′-0″ x 11′-0″).
- Bedroom 2 (11′-0″ x 12′-0″) is located near the shared full Bathroom (5′-0″ x 9′-8″) and the Mud Room/Utility area (11′-0″ x 6′-0″).
- The home also includes a Front Porch (35′-0″ x 12′-0″) spanning the front of the home.
#6
Discover the latest breakthroughs, ethical considerations, and societal implications as we navigate this exciting journey…
BCO-40085 Leonard Barndominium House Plan

- Square Footage: 1,610 sq. ft. (Heated/Living Area)
- Bedrooms: 2 (Bedroom 1 and Bedroom 2)
- Bathrooms: 1
- Stories: 1
- Garage Spaces: 2 (2-Car Garage measuring 20′-0″ x 22′-5″)
- This single-story plan features a compact two-bedroom, one-bathroom layout and includes an attached two-car Garage(20′-0″ x 22′-5″).
- The main living area is open, combining a Living Room (16′-3″ x 12′-6″) with a fireplace and the Kitchen (12′-5″ x 12′-6″) with an island.
- The two bedrooms are both similarly sized (Bedroom 1 at 12′-0″ x 13′-6″ and Bedroom 2 at 12′-0″ x 11′-0″) and share a single full Bathroom (8′-0″ x 6′-6″).
- Practical amenities include a walk-in Pantry (6′-0″ x 6′-6″) near the Foyer (4′-0″ x 17′-4″), a Laundry room (3′-6″ x 6′-6″), and a generous amount of covered porch space (41′-0″ x 7′-0″ on the back and 36′-0″ x 7′-0″ on the front).
- A large Master Closet (9′-6″ x 6′-6″) is accessible from Bedroom 1.
#5
Discover the latest breakthroughs, ethical considerations, and societal implications as we navigate this exciting journey…
PL-64035 Norman Barndominium House Plan
- Square Footage: 1,610 sq. ft. (Heated/Living Area)
- Bedrooms: 3 (Master Bedroom, Bedroom 2, and Bedroom 3)
- Bathrooms: 2 (Master Bathroom and one shared full Bathroom)
- Stories: 1
- Garage Spaces: 0 (This plan does not include a garage)
- This single-story plan features a compact two-bedroom, one-bathroom layout and includes an attached two-car Garage(20′-0″ x 22′-5″).
- This single-story plan features a spacious three-bedroom, two-bathroom layout with a large, open living area.
- The central zone is dedicated to the Living Room (20′-6″ x 16′-1″), Dining area (20′-6″ x 9′-0″), and an expansive Kitchen (20′-6″ x 9′-0″) with a large island.
- The Master Bedroom (16′-0″ x 16′-0″) offers a private retreat, complete with a Master Bathroom (9′-0″ x 8′-0″) and a spacious walk-in Master Closet (6′-8″ x 11′-6″).
- Bedrooms 2 (14′-0″ x 12′-0″) and 3 (14′-0″ x 12′-0″) are located on the left side, sharing a full Bathroom (10′-0″ x 5′-0″) and two large closets.
- Additional features include a combined Utility/HVAC room (9′-0″ x 8′-0″), a Pantry (6′-8″ x 4′-2″), and a Front Porch (52′-0″ x 12′-0″).
#4
Discover the latest breakthroughs, ethical considerations, and societal implications as we navigate this exciting journey…
PL-64034 Sharon Barndominium House Plan
- Square Footage: 1,800 sq. ft. (Heated/Living Area)
- Bedrooms: 2 (Bedroom 1 and Bedroom 2)
- Bathrooms: 2 (Two full bathrooms)
- Stories: 1
- Garage Spaces: 0 (This plan does not include a garage)
- This single-story plan is a well-balanced two-bedroom, two-bathroom design with a symmetrical layout.
- The home features an open central area that separates the two large bedrooms and combines the Living Room (18′-0″ x 17′-0″) and Dining area (10′-6″ x 17′-0″).
- Bedrooms 1 and 2 are nearly identical in size (15′-0″ x 17′-0″ and 15′-0″ x 17′-0″) and each suite includes a full Bathroom (8′-11″ x 9′-5″ and 8′-8″ x 11′-9″) and a walk-in Closet (6′-0″ x 11′-9″ and 6′-0″ x 11′-9″).
- The Kitchen (17′-0″ x 12′-1″) is centrally located at the rear, adjacent to the combined Laundry/Mud Room (8′-11″ x 11′-9″).
- Generous outdoor space is provided by both a Front Porch (60′-0″ x 10′-0″) and a Rear Porch (60′-0″ x 10′-0″).
#3
Discover the latest breakthroughs, ethical considerations, and societal implications as we navigate this exciting journey…
BCO-40057 Dominic Barndominium House Plan
- Square Footage: 1,400 sq. ft. (Heated/Living Area)
- Bedrooms: 2 (Master Bedroom and Bedroom 2)
- Bathrooms: 2 (Master Bathroom and one shared full Bathroom)
- Stories: 1
- Garage Spaces: 0 (This plan does not include a garage)
- This single-story plan features a spacious two-bedroom, two-bathroom layout, along with a dedicated office space.
- The design is organized around a large open living area that connects the Living Room (20′-9″ x 10′-1″), Dining area (20′-9″ x 9′-2″), and Kitchen (12′-4″ x 9′-2″).
- The Master Bedroom (15′-8″ x 16′-0″) is a private suite on the left, featuring a Master Bathroom (8′-4″ x 10′-9″) and a Master Closet (6′-11″ x 10′-9″).
- Bedroom 2 (9′-8″ x 11′-6″) is located on the right side and shares a full Bathroom (8′-6″ x 5′-0″) with the nearby Office (12′-9″ x 9′-10″).
- Practical elements include a Mud Room/Laundry area (8′-0″ x 7′-6″), a walk-in Pantry (7′-2″ x 5′-0″), and a Front Porch (18′-0″ x 10′-0″).
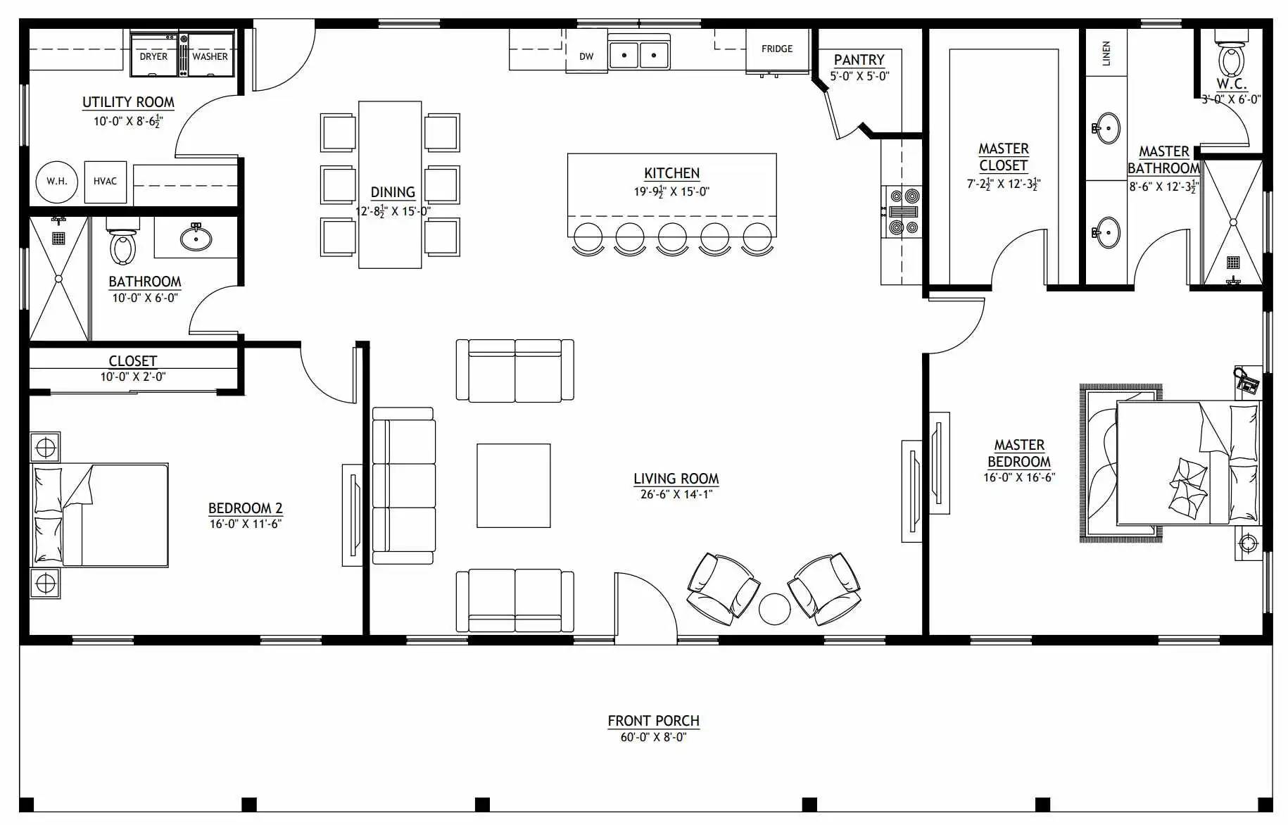
#2
Discover the latest breakthroughs, ethical considerations, and societal implications as we navigate this exciting journey…
BCO-40112-M Michelle Barndominium House Plan
- Square Footage: 1,800 sq. ft. (Heated/Living Area)
- Bedrooms: 2 (Master Bedroom and Bedroom 2)
- Bathrooms: 2 (Master Bathroom and one shared full Bathroom)
- Stories: 1
- Garage Spaces: 0 (This plan does not include a garage)
- This single-story plan features a large, open layout with two bedrooms and two full bathrooms.
- The center of the home boasts a very spacious open-concept area combining the Living Room (26′-6″ x 14′-1″), Dining area (12′-8″ x 15′-0″), and Kitchen (19′-9″ x 15′-0″) with a large island.
- The Master Bedroom (16′-0″ x 16′-6″) is a private suite on the right side, featuring a Master Bathroom (8′-6″ x 12′-3″) and a walk-in Master Closet (7′-2″ x 12′-3″).
- Bedroom 2 (16′-0″ x 11′-6″) is located on the opposite side of the home and is served by a full Hall Bathroom (10′-0″ x 6′-0″) and a separate Utility Room (10′-0″ x 8′-6″).
- Additional features include a large Pantry (5′-0″ x 5′-0″) and a full-width Front Porch (60′-0″ x 8′-0″).
#1
Discover the latest breakthroughs, ethical considerations, and societal implications as we navigate this exciting journey…
LP-2804-C Caitlyn Barndominium House Plan
- Square Footage: 1,900 sq. ft. (Heated/Living Area)
- Bedrooms: 4 (Master Bedroom and Bedrooms 1, 2, and 3)
- Bathrooms: 3 (Two full baths and one Master Bath)
- Stories: 1
- Garage Spaces: 2+ (Very large Garage/Shop measuring 39′-0″ x 39′-0″)
- This extensive single-story plan is a large four-bedroom, three-bathroom layout with an open concept.
- The main living area features a great flow between the Living Room (19′-11″ x 17′-1″), Dining area (11′-1″ x 18′-0″), and Kitchen (16′-11″ x 13′-4″) with a large island.
- The Master Bedroom (14′-6″ x 17′-0″) is separated from the secondary bedrooms and includes a Master Bathroom (6′-6″ x 8′-9″) and a walk-in Master Closet (9′-1″ x 8′-10″).
- Bedrooms 2, 3, and 4 are located on the far left, sharing a full Jack-and-Jill style Bathroom (10′-7″ x 5′-0″) and a third full Bathroom (4′-0″ x 9′-0″).
- A Utility Room (4′-0″ x 8′-0″), Laundry/Mud Room (8′-0″ x 10′-0″), and Breezeway (10′-0″ x 10′-0
Even More Barndominium Plans
Not finished browsing? Check out even more of our top barndominium plans:
PL-61703 Medfield Barndominium House Plan


- 2400 Heated square feet
- 4-5 bedrooms
- 3 bathrooms
- 1 Story
- Playroom
- Open Concept
- The Medfield barndominium house plan is 2406 heated square feet and 4-5 bedrooms with 3 full bathrooms.
- In the main living area of this house plan, you are welcomed with an open-concept design that creates a nice open spacious with plenty of room for friends and family to gather.
- The kitchen is large with a center island and pantry. The island is home to the sink so that you can be part of the conversation in the family room even while doing dishes.
- The master bedroom has plenty of room to relax and unwind. With an ensuite bathroom with a separate shower and tub, there is plenty of space for you and your partner to get ready in the mornings.
- With up to 4 additional secondary bedrooms there is plenty of room for everyone to spread out and enjoy some downtime after a long day. One of the additional bedrooms can act as a study or guest bedroom.
- The playroom is another great feature of this home that is located just off the kitchen allowing moms and dads to cook and still have an eye on the kids as they play.
- The laundry is quite large and has a nice-sized storage closet that is perfect for storing all your cleaning supplies so that the laundry room stays nice and tidy.
- You will find that this barndominium house plan has lots of storage throughout the home which is a huge plus.
- The Veranda is large and is the perfect place to sit and relax after a long day.
SV-5503-C Charlie Barndominium House Plan
- 1677 Heated square feet
- 2 Bedrooms
- 2.1 Bathrooms
- Open concept
- Single story
- Utility room
- Safe room
- Mudroom
- Covered porch
- Garage/shop
- Smartly sized at 1,677 square feet—designed for comfort, flow, and functional elegance.
- Two dreamy bedrooms tailored for restful nights and personalized escapes.
- Two full baths plus a sleek half bath—perfect for busy mornings and effortless entertaining.
- Breathe easy in this open layout where living, dining, and kitchen spaces connect seamlessly.
- Out of sight but never out of reach—this utility room keeps laundry day neat and efficient.
- Peace of mind built in—this reinforced safe room adds a layer of security without sacrificing style.
- Your front-line defense against the mess—this transitional mudroom keeps life tidy and organized.
- Sip, sit, and savor—this charming covered porch beckons for breezy afternoons and quiet evenings.
- More than a parking spot—this versatile garage/shop is a hobbyist’s haven and a storage dream.
LP-2807 Wescott Barndominium House Plans

- 1800 Heated square feet
- 4 bedrooms
- 3 bathrooms
- 2 Story
- Loft
- Open Concept
- The Wescott barndominium house plan is 1800 heated square feet and features 4 bedrooms and 3 bathrooms.
- The open-concept design allows for plenty of space for the family to mingle and interact with one another. The main areas of the home appear even larger thanks to the vaulted ceilings.
- The kitchen is large and spacious with a large island with ample counter space and a decent-sized pantry in the corner of the kitchen.
- This plan includes several windows to allow the natural light to flow throughout the home.
- The master bedroom is spacious with a large master bathroom, shower, and stand-alone tub. The double vanity allows the couple to get ready at the same time without bumping into one another. The master also offers a large walk-in closet.
- This house plan has 3 additional bedrooms all with a nice sized closet. One of the secondary bedrooms has a private bathroom attached. The remaining bedrooms share the additional bathroom located in the hall.
- Upstairs is a nice loft ready for a home office, playroom, or anything you desire.
- The Wescott barndominium house plan has both a front and back patio so there is plenty of room to enjoy the outdoors.
PL-71005 Vista Barndominium House Plan

- 4 Bedrooms
- 3.1 Bathrooms
- 3179 Heated Square Feet
- 2-story
- Loft
- Playroom
- Media room
- Mudroom
- Mechanical room
- Jack and Jill Bathrooms
- Attached 3-car garage
- Front porch
- Patio
- With an expansive 3,179 heated square feet, this two-story floor plan offers ample space for your family to grow and thrive.
- Enjoy the comfort and privacy of four generously sized bedrooms, including Jack and Jill bathrooms that provide convenience and elegance. The 3.1 bathrooms ensure there’s never a wait during busy mornings.
- The loft area is perfect for a cozy reading nook or home office, while the playroom offers a dedicated space for fun and creativity. The media room is designed for ultimate entertainment right at home.
- The mudroom is ideal for keeping your home tidy, and the mechanical room ensures your household systems are easily accessible. An attached 3-car garage offers ample parking and storage space for vehicles and outdoor gear.
- Relax on the inviting front porch or host gatherings on the stylish patio, making every moment spent outdoors special.
PL-71004 Alasio Barndominium House Plan

- 4 Bedrooms
- 3.1 Bathrooms
- 3887 Heated Square Feet
- 2-story
- Loft
- Mudroom
- Attached 3-car garage
- Front and back porch
- Office
- Fireplace
- Lounge
- 2 Jack and Jill Bathrooms
- Explore this beautifully designed 2-story barndominium, offering ample space for family and guests with a total of 3,887 heated square feet.
- The open-concept design seamlessly integrates the living, dining, and kitchen areas, making it ideal for daily living and entertaining. A cozy fireplace in the family room adds warmth and is a focal point for gatherings.
- This floor plan includes four spacious bedrooms, providing comfortable retreats for all family members and guests.
- The layout features a luxurious master bathroom and a well-appointed guest bathroom. With 3.1 bathrooms, including two Jack and Jill bathrooms, this home provides convenience and efficient use of space between bedrooms.
- A versatile loft area that can serve as an additional living space, playroom, or home gym.
- An attached 3-car garage offers ample space for vehicles, storage, and hobbies and the mudroom provides a practical entryway space, perfect for storing shoes, coats, and outdoor gear.
- Enjoy the outdoors with both front and back porches, perfect for relaxing, entertaining, or enjoying the fresh air.
- A dedicated office space for working from home, managing household tasks, or pursuing personal projects.
- A comfortable lounge area for relaxing, reading, or enjoying family time.
PL-2819 Hampton Barndominium House Plan


- 4918 Heated square feet
- 3 Bedrooms
- 3.1 Bathrooms
- 2-story
- Loft family/entertainment area
- Loft unfinished area
- Open concept
- Wraparound porch
- Mechanical room
- Mudroom
- 4-car attached Garage
- Nearly 5,000 square feet of finely crafted comfort—room to roam, entertain, and thrive without limits.
- Three spacious retreats, each its own private haven—designed for rest, romance, and a touch of indulgence.
- Every bedroom gets its own en-suite luxury, plus a powder room for guests—pure convenience meets elegant living.
- Game nights, movie marathons, and memory-making galore—plus extra loft space waiting for your creative touch.
- Wide, bright, and beautifully connected—this open-plan layout invites light, laughter, and seamless everyday living.
- Porch envy, activated—this wraparound stunner wraps your home in charm, sunshine, and endless outdoor moments.
- A quietly efficient hub—your home’s systems get the space they need without sacrificing aesthetics.
- Function meets finesse—this stylish drop zone keeps clutter at bay and your interiors pristine.
- Room for every ride, hobby, and weekend adventure—this oversized garage is a dream for car lovers and gearheads alike.
PL-2815 Travis Barndominium House Plan
- 2400 Heated square feet
- 40×60 living space dimension
- 3 Bedrooms
- 2 Bathrooms
- Single story
- Open concept
- Office
- Foyer
- Front porch
- Patio
- Deck
- Safe room
- Walkout basement
- 3-car attached garage
- Enjoy a perfectly balanced footprint offering 2,400 square feet of comfortably climate-controlled living space—roomy enough to stretch out, yet easy to maintain.
- With generous 40×60 dimensions, this home’s layout is designed for flow, flexibility, and functionality—ideal for entertaining and everyday living.
- Three well-appointed bedrooms offer restful retreats for family and guests alike—each thoughtfully placed for privacy, natural light, and comfort.
- Two full bathrooms bring both convenience and style, featuring modern fixtures and smart layouts for a smooth daily routine.
- No stairs, no hassle—this single-story, open-concept design delivers ease and accessibility, perfect for all stages of life.
- A dedicated home office provides a quiet, focused space for productivity—whether you’re working from home, tackling creative projects, or organizing life’s details.
- Step into a welcoming foyer that sets the tone with warmth and charm—a graceful transition from the outside world.
- The inviting front porch is more than curb appeal—it’s a breezy perch to sip coffee, greet neighbors, and enjoy golden hour views.
- Grill, gather, or unwind beneath the stars on your private patio—perfectly positioned for alfresco dining and outdoor living.
- A spacious deck extends your living space under open skies—a natural haven for morning routines or twilight conversation.
- Discreetly built for peace of mind, the safe room offers reinforced protection without sacrificing style or convenience.
- A seamless blend of indoor comfort and outdoor connection, the walkout basement extends your living space with direct access to the backyard. Whether transformed into a private retreat, entertainment hub, or guest quarters, its versatility adds value and functionality to your home.
PL-64013 Gibbons Barndominium House Plan
- 2000 Heated Sq Ft
- 4 Bedrooms
- 2 Bathrooms
- Storage spaces
- Mechanical room/Laundry room
- Open concept
- Single-story
- Front and back porch
- Spacious 2,000 heated sq ft with room to stretch, entertain, and relax in style.
- 4 bedrooms designed with comfort and privacy in mind—perfect for families or guests.
- 2 modern and functional bathrooms with plenty of space to start your day right.
- Never worry about clutter—dedicated storage keeps everything organized.
- Mechanical Room/Laundry Room: All your utilities and laundry needs neatly tucked away for maximum efficiency.
- Seamless flow from the living area to the kitchen—ideal for gatherings and everyday living in a single-story layout.
- Enjoy morning coffee out front and sunset views out back—your new favorite spots to unwind.
PL-69197 Bexley Barndominium House Plan
- 2683 Heated Sq Ft
- 4 Bedrooms
- 3 Bathrooms
- Laundry room
- Mudroom
- Open concept
- Two-story
- Loft Style
- 1432 Sq Ft Garage
- Front and back porch
- This two-story floor plan offers an impressive 2683 square feet of heated living space. The design also includes a substantial 1432-square-foot garage, perfect for housing vehicles, storage, or a workshop.
- This plan features four bedrooms, three of which are conveniently located on the main floor, and a guest bedroom on the second floor. Each bedroom, including the master and guest bedrooms, has its own private bathroom. Additionally, there is a shared bathroom on the main floor, making this design both practical and accommodating for a variety of living arrangements.
- A loft-style floor plan that features an open concept main floor. As you enter the house from the garage, you are greeted by a practical mudroom, perfect for storing outdoor gear and keeping the rest of the home clean. Conveniently, this mudroom is also linked to the laundry room, making it easy to manage household chores.
- This floor plan features a charming front porch, providing a warm welcome to visitors. At the rear of the house, a spacious back patio offers ample room for outdoor dining, relaxation, or entertaining. Whether you’re greeting neighbors at the front door or enjoying a backyard barbecue, this floor plan caters to a lifestyle that appreciates both community connection and private leisure.
PL-82001 Fowler Barndominium House Plan

- 5792 heated Square Feet
- 6 Bedrooms
- 4.2 Bathrooms
- 2 Story
- Open Concept
- Hobby room
- Game/media room
- Sitting area
- Playroom
- Front & rear porch
- 2-car detached garage
- Luxuriate in nearly 5,800 square feet of impeccably designed, temperature-controlled living—every square foot crafted for comfort, elegance, and unforgettable gatherings.
- Six inviting bedrooms promise restful retreats for every family member or guest—each one a private sanctuary with space to breathe, unwind, and dream.
- With four full baths and two stylish powder rooms, convenience meets sophistication—ensuring seamless mornings and elegant hosting for any occasion.
- Thoughtfully arranged across two expansive levels, this layout balances togetherness and personal space—ideal for vibrant entertaining below and tranquil escapes above.
- From airy conversations in the kitchen to effortless entertaining in the great room, the open-concept design flows with natural light and modern sophistication.
- Whether it’s painting, crafting, or perfecting your next passion project, the hobby room offers a creative corner tailored for inspiration and focus.
- Movie marathons, game nights, or immersive binge sessions—the dedicated game/media room delivers cinematic comfort and lively fun for all ages.
- A quiet sitting area beckons for reflective mornings, casual reading, or warm, intimate conversations with a cup in hand and sunlight streaming in.
- Let imaginations run wild in a bright, cheerful playroom designed for kids to explore, create, and grow in their own lively little world.
- From sunrise coffees on the welcoming front porch to serene sunsets out back, these dual outdoor spaces invite connection with nature and neighbors alike.
- The detached two-car garage adds both function and charm—perfect for vehicle storage, gear organization, or converting into a workshop or studio.
AP-20003-FB Franklin Barndominium House Plan
- 2000 Heated Square Feet
- 2 Bedrooms
- 2.1 Bathrooms
- Three-story layout
- Open-concept
- Mudroom
- Unfinished Basement
- 1200 SF 3-Car garage
- Storage loft
- Wraparound porch
- 2000 Heated Square Feet – Just the right size: spacious, efficient, and easy to manage.
- 2 Bedrooms – Roomy and private with space to unwind or host.
- 2.1 Bathrooms – Two full baths plus a powder room for guests.
- Three-story layout – Vertical living with separation, style, and stunning views.
- Open-concept – Airy, seamless flow from kitchen to living and dining.
- Mudroom – Keep the mess at the door—every country home’s secret weapon.
- Unfinished Basement – Blank canvas for a home gym, media room, or workshop.
- 1200 SF 3-Car Garage – Massive garage space for vehicles, toys, and projects.
- Storage Loft – Bonus overhead space to stash seasonal stuff or gear.
- Wraparound Porch – Classic charm meets outdoor living, all the way around.
CDD-4102 Ridge Barndominium House Plan
- 2400 Heated Sq Ft
- 3 Bedrooms
- 2.1 Bathrooms
- Single story
- Open concept
- Office
- Mechanical room
- Mudroom
- Front & Rear porch
- A perfectly balanced living space, offering ample room to breathe, grow, and enjoy, all while maintaining a cozy and manageable footprint.
- Three versatile retreats await—whether for restful nights, creative pursuits, or welcoming family and guests, these rooms are designed with comfort and function in mind.
- Two full bathrooms for your daily routines, plus a convenient half-bath for guests—style and practicality combine effortlessly.
- A seamless and accessible layout on a single level, perfect for ease of movement and a timeless, grounded design.
- An expansive flow of living, dining, and kitchen spaces that encourages connection, natural light, and effortless entertaining.
- Dedicated workspace to inspire productivity and focus, tucked away for privacy while still being part of the home.
- The unsung hero of functionality—a space devoted to housing your home’s essential systems, out of sight but not out of mind.
- Your buffer between the outdoors and your living space, ideal for stowing away shoes, coats, and the chaos of daily life.
- Dual outdoor living spaces, where you can greet neighbors out front or savor a quiet sunset in the back—perfect for year-round enjoyment.
Even More Barndominium Plans
Not finished browsing? Check out even more of our top barndominium plans:
PL-61703 Medfield Barndominium House Plan


- 2400 Heated square feet
- 4-5 bedrooms
- 3 bathrooms
- 1 Story
- Playroom
- Open Concept
- The Medfield barndominium house plan is 2406 heated square feet and 4-5 bedrooms with 3 full bathrooms.
- In the main living area of this house plan, you are welcomed with an open-concept design that creates a nice open spacious with plenty of room for friends and family to gather.
- The kitchen is large with a center island and pantry. The island is home to the sink so that you can be part of the conversation in the family room even while doing dishes.
- The master bedroom has plenty of room to relax and unwind. With an ensuite bathroom with a separate shower and tub, there is plenty of space for you and your partner to get ready in the mornings.
- With up to 4 additional secondary bedrooms there is plenty of room for everyone to spread out and enjoy some downtime after a long day. One of the additional bedrooms can act as a study or guest bedroom.
- The playroom is another great feature of this home that is located just off the kitchen allowing moms and dads to cook and still have an eye on the kids as they play.
- The laundry is quite large and has a nice-sized storage closet that is perfect for storing all your cleaning supplies so that the laundry room stays nice and tidy.
- You will find that this barndominium house plan has lots of storage throughout the home which is a huge plus.
- The Veranda is large and is the perfect place to sit and relax after a long day.
SV-5503-C Charlie Barndominium House Plan
- 1677 Heated square feet
- 2 Bedrooms
- 2.1 Bathrooms
- Open concept
- Single story
- Utility room
- Safe room
- Mudroom
- Covered porch
- Garage/shop
- Smartly sized at 1,677 square feet—designed for comfort, flow, and functional elegance.
- Two dreamy bedrooms tailored for restful nights and personalized escapes.
- Two full baths plus a sleek half bath—perfect for busy mornings and effortless entertaining.
- Breathe easy in this open layout where living, dining, and kitchen spaces connect seamlessly.
- Out of sight but never out of reach—this utility room keeps laundry day neat and efficient.
- Peace of mind built in—this reinforced safe room adds a layer of security without sacrificing style.
- Your front-line defense against the mess—this transitional mudroom keeps life tidy and organized.
- Sip, sit, and savor—this charming covered porch beckons for breezy afternoons and quiet evenings.
- More than a parking spot—this versatile garage/shop is a hobbyist’s haven and a storage dream.
LP-2807 Wescott Barndominium House Plans

- 1800 Heated square feet
- 4 bedrooms
- 3 bathrooms
- 2 Story
- Loft
- Open Concept
- The Wescott barndominium house plan is 1800 heated square feet and features 4 bedrooms and 3 bathrooms.
- The open-concept design allows for plenty of space for the family to mingle and interact with one another. The main areas of the home appear even larger thanks to the vaulted ceilings.
- The kitchen is large and spacious with a large island with ample counter space and a decent-sized pantry in the corner of the kitchen.
- This plan includes several windows to allow the natural light to flow throughout the home.
- The master bedroom is spacious with a large master bathroom, shower, and stand-alone tub. The double vanity allows the couple to get ready at the same time without bumping into one another. The master also offers a large walk-in closet.
- This house plan has 3 additional bedrooms all with a nice sized closet. One of the secondary bedrooms has a private bathroom attached. The remaining bedrooms share the additional bathroom located in the hall.
- Upstairs is a nice loft ready for a home office, playroom, or anything you desire.
- The Wescott barndominium house plan has both a front and back patio so there is plenty of room to enjoy the outdoors.
PL-71005 Vista Barndominium House Plan

- 4 Bedrooms
- 3.1 Bathrooms
- 3179 Heated Square Feet
- 2-story
- Loft
- Playroom
- Media room
- Mudroom
- Mechanical room
- Jack and Jill Bathrooms
- Attached 3-car garage
- Front porch
- Patio
- With an expansive 3,179 heated square feet, this two-story floor plan offers ample space for your family to grow and thrive.
- Enjoy the comfort and privacy of four generously sized bedrooms, including Jack and Jill bathrooms that provide convenience and elegance. The 3.1 bathrooms ensure there’s never a wait during busy mornings.
- The loft area is perfect for a cozy reading nook or home office, while the playroom offers a dedicated space for fun and creativity. The media room is designed for ultimate entertainment right at home.
- The mudroom is ideal for keeping your home tidy, and the mechanical room ensures your household systems are easily accessible. An attached 3-car garage offers ample parking and storage space for vehicles and outdoor gear.
- Relax on the inviting front porch or host gatherings on the stylish patio, making every moment spent outdoors special.
PL-71004 Alasio Barndominium House Plan

- 4 Bedrooms
- 3.1 Bathrooms
- 3887 Heated Square Feet
- 2-story
- Loft
- Mudroom
- Attached 3-car garage
- Front and back porch
- Office
- Fireplace
- Lounge
- 2 Jack and Jill Bathrooms
- Explore this beautifully designed 2-story barndominium, offering ample space for family and guests with a total of 3,887 heated square feet.
- The open-concept design seamlessly integrates the living, dining, and kitchen areas, making it ideal for daily living and entertaining. A cozy fireplace in the family room adds warmth and is a focal point for gatherings.
- This floor plan includes four spacious bedrooms, providing comfortable retreats for all family members and guests.
- The layout features a luxurious master bathroom and a well-appointed guest bathroom. With 3.1 bathrooms, including two Jack and Jill bathrooms, this home provides convenience and efficient use of space between bedrooms.
- A versatile loft area that can serve as an additional living space, playroom, or home gym.
- An attached 3-car garage offers ample space for vehicles, storage, and hobbies and the mudroom provides a practical entryway space, perfect for storing shoes, coats, and outdoor gear.
- Enjoy the outdoors with both front and back porches, perfect for relaxing, entertaining, or enjoying the fresh air.
- A dedicated office space for working from home, managing household tasks, or pursuing personal projects.
- A comfortable lounge area for relaxing, reading, or enjoying family time.
PL-2819 Hampton Barndominium House Plan


- 4918 Heated square feet
- 3 Bedrooms
- 3.1 Bathrooms
- 2-story
- Loft family/entertainment area
- Loft unfinished area
- Open concept
- Wraparound porch
- Mechanical room
- Mudroom
- 4-car attached Garage
- Nearly 5,000 square feet of finely crafted comfort—room to roam, entertain, and thrive without limits.
- Three spacious retreats, each its own private haven—designed for rest, romance, and a touch of indulgence.
- Every bedroom gets its own en-suite luxury, plus a powder room for guests—pure convenience meets elegant living.
- Game nights, movie marathons, and memory-making galore—plus extra loft space waiting for your creative touch.
- Wide, bright, and beautifully connected—this open-plan layout invites light, laughter, and seamless everyday living.
- Porch envy, activated—this wraparound stunner wraps your home in charm, sunshine, and endless outdoor moments.
- A quietly efficient hub—your home’s systems get the space they need without sacrificing aesthetics.
- Function meets finesse—this stylish drop zone keeps clutter at bay and your interiors pristine.
- Room for every ride, hobby, and weekend adventure—this oversized garage is a dream for car lovers and gearheads alike.
PL-2815 Travis Barndominium House Plan
- 2400 Heated square feet
- 40×60 living space dimension
- 3 Bedrooms
- 2 Bathrooms
- Single story
- Open concept
- Office
- Foyer
- Front porch
- Patio
- Deck
- Safe room
- Walkout basement
- 3-car attached garage
- Enjoy a perfectly balanced footprint offering 2,400 square feet of comfortably climate-controlled living space—roomy enough to stretch out, yet easy to maintain.
- With generous 40×60 dimensions, this home’s layout is designed for flow, flexibility, and functionality—ideal for entertaining and everyday living.
- Three well-appointed bedrooms offer restful retreats for family and guests alike—each thoughtfully placed for privacy, natural light, and comfort.
- Two full bathrooms bring both convenience and style, featuring modern fixtures and smart layouts for a smooth daily routine.
- No stairs, no hassle—this single-story, open-concept design delivers ease and accessibility, perfect for all stages of life.
- A dedicated home office provides a quiet, focused space for productivity—whether you’re working from home, tackling creative projects, or organizing life’s details.
- Step into a welcoming foyer that sets the tone with warmth and charm—a graceful transition from the outside world.
- The inviting front porch is more than curb appeal—it’s a breezy perch to sip coffee, greet neighbors, and enjoy golden hour views.
- Grill, gather, or unwind beneath the stars on your private patio—perfectly positioned for alfresco dining and outdoor living.
- A spacious deck extends your living space under open skies—a natural haven for morning routines or twilight conversation.
- Discreetly built for peace of mind, the safe room offers reinforced protection without sacrificing style or convenience.
- A seamless blend of indoor comfort and outdoor connection, the walkout basement extends your living space with direct access to the backyard. Whether transformed into a private retreat, entertainment hub, or guest quarters, its versatility adds value and functionality to your home.
PL-64013 Gibbons Barndominium House Plan
- 2000 Heated Sq Ft
- 4 Bedrooms
- 2 Bathrooms
- Storage spaces
- Mechanical room/Laundry room
- Open concept
- Single-story
- Front and back porch
- Spacious 2,000 heated sq ft with room to stretch, entertain, and relax in style.
- 4 bedrooms designed with comfort and privacy in mind—perfect for families or guests.
- 2 modern and functional bathrooms with plenty of space to start your day right.
- Never worry about clutter—dedicated storage keeps everything organized.
- Mechanical Room/Laundry Room: All your utilities and laundry needs neatly tucked away for maximum efficiency.
- Seamless flow from the living area to the kitchen—ideal for gatherings and everyday living in a single-story layout.
- Enjoy morning coffee out front and sunset views out back—your new favorite spots to unwind.
PL-69197 Bexley Barndominium House Plan
- 2683 Heated Sq Ft
- 4 Bedrooms
- 3 Bathrooms
- Laundry room
- Mudroom
- Open concept
- Two-story
- Loft Style
- 1432 Sq Ft Garage
- Front and back porch
- This two-story floor plan offers an impressive 2683 square feet of heated living space. The design also includes a substantial 1432-square-foot garage, perfect for housing vehicles, storage, or a workshop.
- This plan features four bedrooms, three of which are conveniently located on the main floor, and a guest bedroom on the second floor. Each bedroom, including the master and guest bedrooms, has its own private bathroom. Additionally, there is a shared bathroom on the main floor, making this design both practical and accommodating for a variety of living arrangements.
- A loft-style floor plan that features an open concept main floor. As you enter the house from the garage, you are greeted by a practical mudroom, perfect for storing outdoor gear and keeping the rest of the home clean. Conveniently, this mudroom is also linked to the laundry room, making it easy to manage household chores.
- This floor plan features a charming front porch, providing a warm welcome to visitors. At the rear of the house, a spacious back patio offers ample room for outdoor dining, relaxation, or entertaining. Whether you’re greeting neighbors at the front door or enjoying a backyard barbecue, this floor plan caters to a lifestyle that appreciates both community connection and private leisure.
PL-82001 Fowler Barndominium House Plan

- 5792 heated Square Feet
- 6 Bedrooms
- 4.2 Bathrooms
- 2 Story
- Open Concept
- Hobby room
- Game/media room
- Sitting area
- Playroom
- Front & rear porch
- 2-car detached garage
- Luxuriate in nearly 5,800 square feet of impeccably designed, temperature-controlled living—every square foot crafted for comfort, elegance, and unforgettable gatherings.
- Six inviting bedrooms promise restful retreats for every family member or guest—each one a private sanctuary with space to breathe, unwind, and dream.
- With four full baths and two stylish powder rooms, convenience meets sophistication—ensuring seamless mornings and elegant hosting for any occasion.
- Thoughtfully arranged across two expansive levels, this layout balances togetherness and personal space—ideal for vibrant entertaining below and tranquil escapes above.
- From airy conversations in the kitchen to effortless entertaining in the great room, the open-concept design flows with natural light and modern sophistication.
- Whether it’s painting, crafting, or perfecting your next passion project, the hobby room offers a creative corner tailored for inspiration and focus.
- Movie marathons, game nights, or immersive binge sessions—the dedicated game/media room delivers cinematic comfort and lively fun for all ages.
- A quiet sitting area beckons for reflective mornings, casual reading, or warm, intimate conversations with a cup in hand and sunlight streaming in.
- Let imaginations run wild in a bright, cheerful playroom designed for kids to explore, create, and grow in their own lively little world.
- From sunrise coffees on the welcoming front porch to serene sunsets out back, these dual outdoor spaces invite connection with nature and neighbors alike.
- The detached two-car garage adds both function and charm—perfect for vehicle storage, gear organization, or converting into a workshop or studio.
AP-20003-FB Franklin Barndominium House Plan
- 2000 Heated Square Feet
- 2 Bedrooms
- 2.1 Bathrooms
- Three-story layout
- Open-concept
- Mudroom
- Unfinished Basement
- 1200 SF 3-Car garage
- Storage loft
- Wraparound porch
- 2000 Heated Square Feet – Just the right size: spacious, efficient, and easy to manage.
- 2 Bedrooms – Roomy and private with space to unwind or host.
- 2.1 Bathrooms – Two full baths plus a powder room for guests.
- Three-story layout – Vertical living with separation, style, and stunning views.
- Open-concept – Airy, seamless flow from kitchen to living and dining.
- Mudroom – Keep the mess at the door—every country home’s secret weapon.
- Unfinished Basement – Blank canvas for a home gym, media room, or workshop.
- 1200 SF 3-Car Garage – Massive garage space for vehicles, toys, and projects.
- Storage Loft – Bonus overhead space to stash seasonal stuff or gear.
- Wraparound Porch – Classic charm meets outdoor living, all the way around.
CDD-4102 Ridge Barndominium House Plan
- 2400 Heated Sq Ft
- 3 Bedrooms
- 2.1 Bathrooms
- Single story
- Open concept
- Office
- Mechanical room
- Mudroom
- Front & Rear porch
- A perfectly balanced living space, offering ample room to breathe, grow, and enjoy, all while maintaining a cozy and manageable footprint.
- Three versatile retreats await—whether for restful nights, creative pursuits, or welcoming family and guests, these rooms are designed with comfort and function in mind.
- Two full bathrooms for your daily routines, plus a convenient half-bath for guests—style and practicality combine effortlessly.
- A seamless and accessible layout on a single level, perfect for ease of movement and a timeless, grounded design.
- An expansive flow of living, dining, and kitchen spaces that encourages connection, natural light, and effortless entertaining.
- Dedicated workspace to inspire productivity and focus, tucked away for privacy while still being part of the home.
- The unsung hero of functionality—a space devoted to housing your home’s essential systems, out of sight but not out of mind.
- Your buffer between the outdoors and your living space, ideal for stowing away shoes, coats, and the chaos of daily life.
- Dual outdoor living spaces, where you can greet neighbors out front or savor a quiet sunset in the back—perfect for year-round enjoyment.
Even More Barndominium Plans
Not finished browsing? Check out even more of our top barndominium plans:
PL-61703 Medfield Barndominium House Plan


- 2400 Heated square feet
- 4-5 bedrooms
- 3 bathrooms
- 1 Story
- Playroom
- Open Concept
- The Medfield barndominium house plan is 2406 heated square feet and 4-5 bedrooms with 3 full bathrooms.
- In the main living area of this house plan, you are welcomed with an open-concept design that creates a nice open spacious with plenty of room for friends and family to gather.
- The kitchen is large with a center island and pantry. The island is home to the sink so that you can be part of the conversation in the family room even while doing dishes.
- The master bedroom has plenty of room to relax and unwind. With an ensuite bathroom with a separate shower and tub, there is plenty of space for you and your partner to get ready in the mornings.
- With up to 4 additional secondary bedrooms there is plenty of room for everyone to spread out and enjoy some downtime after a long day. One of the additional bedrooms can act as a study or guest bedroom.
- The playroom is another great feature of this home that is located just off the kitchen allowing moms and dads to cook and still have an eye on the kids as they play.
- The laundry is quite large and has a nice-sized storage closet that is perfect for storing all your cleaning supplies so that the laundry room stays nice and tidy.
- You will find that this barndominium house plan has lots of storage throughout the home which is a huge plus.
- The Veranda is large and is the perfect place to sit and relax after a long day.
SV-5503-C Charlie Barndominium House Plan
- 1677 Heated square feet
- 2 Bedrooms
- 2.1 Bathrooms
- Open concept
- Single story
- Utility room
- Safe room
- Mudroom
- Covered porch
- Garage/shop
- Smartly sized at 1,677 square feet—designed for comfort, flow, and functional elegance.
- Two dreamy bedrooms tailored for restful nights and personalized escapes.
- Two full baths plus a sleek half bath—perfect for busy mornings and effortless entertaining.
- Breathe easy in this open layout where living, dining, and kitchen spaces connect seamlessly.
- Out of sight but never out of reach—this utility room keeps laundry day neat and efficient.
- Peace of mind built in—this reinforced safe room adds a layer of security without sacrificing style.
- Your front-line defense against the mess—this transitional mudroom keeps life tidy and organized.
- Sip, sit, and savor—this charming covered porch beckons for breezy afternoons and quiet evenings.
- More than a parking spot—this versatile garage/shop is a hobbyist’s haven and a storage dream.
LP-2807 Wescott Barndominium House Plans

- 1800 Heated square feet
- 4 bedrooms
- 3 bathrooms
- 2 Story
- Loft
- Open Concept
- The Wescott barndominium house plan is 1800 heated square feet and features 4 bedrooms and 3 bathrooms.
- The open-concept design allows for plenty of space for the family to mingle and interact with one another. The main areas of the home appear even larger thanks to the vaulted ceilings.
- The kitchen is large and spacious with a large island with ample counter space and a decent-sized pantry in the corner of the kitchen.
- This plan includes several windows to allow the natural light to flow throughout the home.
- The master bedroom is spacious with a large master bathroom, shower, and stand-alone tub. The double vanity allows the couple to get ready at the same time without bumping into one another. The master also offers a large walk-in closet.
- This house plan has 3 additional bedrooms all with a nice sized closet. One of the secondary bedrooms has a private bathroom attached. The remaining bedrooms share the additional bathroom located in the hall.
- Upstairs is a nice loft ready for a home office, playroom, or anything you desire.
- The Wescott barndominium house plan has both a front and back patio so there is plenty of room to enjoy the outdoors.
PL-71005 Vista Barndominium House Plan

- 4 Bedrooms
- 3.1 Bathrooms
- 3179 Heated Square Feet
- 2-story
- Loft
- Playroom
- Media room
- Mudroom
- Mechanical room
- Jack and Jill Bathrooms
- Attached 3-car garage
- Front porch
- Patio
- With an expansive 3,179 heated square feet, this two-story floor plan offers ample space for your family to grow and thrive.
- Enjoy the comfort and privacy of four generously sized bedrooms, including Jack and Jill bathrooms that provide convenience and elegance. The 3.1 bathrooms ensure there’s never a wait during busy mornings.
- The loft area is perfect for a cozy reading nook or home office, while the playroom offers a dedicated space for fun and creativity. The media room is designed for ultimate entertainment right at home.
- The mudroom is ideal for keeping your home tidy, and the mechanical room ensures your household systems are easily accessible. An attached 3-car garage offers ample parking and storage space for vehicles and outdoor gear.
- Relax on the inviting front porch or host gatherings on the stylish patio, making every moment spent outdoors special.
PL-71004 Alasio Barndominium House Plan

- 4 Bedrooms
- 3.1 Bathrooms
- 3887 Heated Square Feet
- 2-story
- Loft
- Mudroom
- Attached 3-car garage
- Front and back porch
- Office
- Fireplace
- Lounge
- 2 Jack and Jill Bathrooms
- Explore this beautifully designed 2-story barndominium, offering ample space for family and guests with a total of 3,887 heated square feet.
- The open-concept design seamlessly integrates the living, dining, and kitchen areas, making it ideal for daily living and entertaining. A cozy fireplace in the family room adds warmth and is a focal point for gatherings.
- This floor plan includes four spacious bedrooms, providing comfortable retreats for all family members and guests.
- The layout features a luxurious master bathroom and a well-appointed guest bathroom. With 3.1 bathrooms, including two Jack and Jill bathrooms, this home provides convenience and efficient use of space between bedrooms.
- A versatile loft area that can serve as an additional living space, playroom, or home gym.
- An attached 3-car garage offers ample space for vehicles, storage, and hobbies and the mudroom provides a practical entryway space, perfect for storing shoes, coats, and outdoor gear.
- Enjoy the outdoors with both front and back porches, perfect for relaxing, entertaining, or enjoying the fresh air.
- A dedicated office space for working from home, managing household tasks, or pursuing personal projects.
- A comfortable lounge area for relaxing, reading, or enjoying family time.
PL-2819 Hampton Barndominium House Plan


- 4918 Heated square feet
- 3 Bedrooms
- 3.1 Bathrooms
- 2-story
- Loft family/entertainment area
- Loft unfinished area
- Open concept
- Wraparound porch
- Mechanical room
- Mudroom
- 4-car attached Garage
- Nearly 5,000 square feet of finely crafted comfort—room to roam, entertain, and thrive without limits.
- Three spacious retreats, each its own private haven—designed for rest, romance, and a touch of indulgence.
- Every bedroom gets its own en-suite luxury, plus a powder room for guests—pure convenience meets elegant living.
- Game nights, movie marathons, and memory-making galore—plus extra loft space waiting for your creative touch.
- Wide, bright, and beautifully connected—this open-plan layout invites light, laughter, and seamless everyday living.
- Porch envy, activated—this wraparound stunner wraps your home in charm, sunshine, and endless outdoor moments.
- A quietly efficient hub—your home’s systems get the space they need without sacrificing aesthetics.
- Function meets finesse—this stylish drop zone keeps clutter at bay and your interiors pristine.
- Room for every ride, hobby, and weekend adventure—this oversized garage is a dream for car lovers and gearheads alike.
PL-2815 Travis Barndominium House Plan
- 2400 Heated square feet
- 40×60 living space dimension
- 3 Bedrooms
- 2 Bathrooms
- Single story
- Open concept
- Office
- Foyer
- Front porch
- Patio
- Deck
- Safe room
- Walkout basement
- 3-car attached garage
- Enjoy a perfectly balanced footprint offering 2,400 square feet of comfortably climate-controlled living space—roomy enough to stretch out, yet easy to maintain.
- With generous 40×60 dimensions, this home’s layout is designed for flow, flexibility, and functionality—ideal for entertaining and everyday living.
- Three well-appointed bedrooms offer restful retreats for family and guests alike—each thoughtfully placed for privacy, natural light, and comfort.
- Two full bathrooms bring both convenience and style, featuring modern fixtures and smart layouts for a smooth daily routine.
- No stairs, no hassle—this single-story, open-concept design delivers ease and accessibility, perfect for all stages of life.
- A dedicated home office provides a quiet, focused space for productivity—whether you’re working from home, tackling creative projects, or organizing life’s details.
- Step into a welcoming foyer that sets the tone with warmth and charm—a graceful transition from the outside world.
- The inviting front porch is more than curb appeal—it’s a breezy perch to sip coffee, greet neighbors, and enjoy golden hour views.
- Grill, gather, or unwind beneath the stars on your private patio—perfectly positioned for alfresco dining and outdoor living.
- A spacious deck extends your living space under open skies—a natural haven for morning routines or twilight conversation.
- Discreetly built for peace of mind, the safe room offers reinforced protection without sacrificing style or convenience.
- A seamless blend of indoor comfort and outdoor connection, the walkout basement extends your living space with direct access to the backyard. Whether transformed into a private retreat, entertainment hub, or guest quarters, its versatility adds value and functionality to your home.
PL-64013 Gibbons Barndominium House Plan
- 2000 Heated Sq Ft
- 4 Bedrooms
- 2 Bathrooms
- Storage spaces
- Mechanical room/Laundry room
- Open concept
- Single-story
- Front and back porch
- Spacious 2,000 heated sq ft with room to stretch, entertain, and relax in style.
- 4 bedrooms designed with comfort and privacy in mind—perfect for families or guests.
- 2 modern and functional bathrooms with plenty of space to start your day right.
- Never worry about clutter—dedicated storage keeps everything organized.
- Mechanical Room/Laundry Room: All your utilities and laundry needs neatly tucked away for maximum efficiency.
- Seamless flow from the living area to the kitchen—ideal for gatherings and everyday living in a single-story layout.
- Enjoy morning coffee out front and sunset views out back—your new favorite spots to unwind.
PL-69197 Bexley Barndominium House Plan
- 2683 Heated Sq Ft
- 4 Bedrooms
- 3 Bathrooms
- Laundry room
- Mudroom
- Open concept
- Two-story
- Loft Style
- 1432 Sq Ft Garage
- Front and back porch
- This two-story floor plan offers an impressive 2683 square feet of heated living space. The design also includes a substantial 1432-square-foot garage, perfect for housing vehicles, storage, or a workshop.
- This plan features four bedrooms, three of which are conveniently located on the main floor, and a guest bedroom on the second floor. Each bedroom, including the master and guest bedrooms, has its own private bathroom. Additionally, there is a shared bathroom on the main floor, making this design both practical and accommodating for a variety of living arrangements.
- A loft-style floor plan that features an open concept main floor. As you enter the house from the garage, you are greeted by a practical mudroom, perfect for storing outdoor gear and keeping the rest of the home clean. Conveniently, this mudroom is also linked to the laundry room, making it easy to manage household chores.
- This floor plan features a charming front porch, providing a warm welcome to visitors. At the rear of the house, a spacious back patio offers ample room for outdoor dining, relaxation, or entertaining. Whether you’re greeting neighbors at the front door or enjoying a backyard barbecue, this floor plan caters to a lifestyle that appreciates both community connection and private leisure.
PL-82001 Fowler Barndominium House Plan

- 5792 heated Square Feet
- 6 Bedrooms
- 4.2 Bathrooms
- 2 Story
- Open Concept
- Hobby room
- Game/media room
- Sitting area
- Playroom
- Front & rear porch
- 2-car detached garage
- Luxuriate in nearly 5,800 square feet of impeccably designed, temperature-controlled living—every square foot crafted for comfort, elegance, and unforgettable gatherings.
- Six inviting bedrooms promise restful retreats for every family member or guest—each one a private sanctuary with space to breathe, unwind, and dream.
- With four full baths and two stylish powder rooms, convenience meets sophistication—ensuring seamless mornings and elegant hosting for any occasion.
- Thoughtfully arranged across two expansive levels, this layout balances togetherness and personal space—ideal for vibrant entertaining below and tranquil escapes above.
- From airy conversations in the kitchen to effortless entertaining in the great room, the open-concept design flows with natural light and modern sophistication.
- Whether it’s painting, crafting, or perfecting your next passion project, the hobby room offers a creative corner tailored for inspiration and focus.
- Movie marathons, game nights, or immersive binge sessions—the dedicated game/media room delivers cinematic comfort and lively fun for all ages.
- A quiet sitting area beckons for reflective mornings, casual reading, or warm, intimate conversations with a cup in hand and sunlight streaming in.
- Let imaginations run wild in a bright, cheerful playroom designed for kids to explore, create, and grow in their own lively little world.
- From sunrise coffees on the welcoming front porch to serene sunsets out back, these dual outdoor spaces invite connection with nature and neighbors alike.
- The detached two-car garage adds both function and charm—perfect for vehicle storage, gear organization, or converting into a workshop or studio.
AP-20003-FB Franklin Barndominium House Plan
- 2000 Heated Square Feet
- 2 Bedrooms
- 2.1 Bathrooms
- Three-story layout
- Open-concept
- Mudroom
- Unfinished Basement
- 1200 SF 3-Car garage
- Storage loft
- Wraparound porch
- 2000 Heated Square Feet – Just the right size: spacious, efficient, and easy to manage.
- 2 Bedrooms – Roomy and private with space to unwind or host.
- 2.1 Bathrooms – Two full baths plus a powder room for guests.
- Three-story layout – Vertical living with separation, style, and stunning views.
- Open-concept – Airy, seamless flow from kitchen to living and dining.
- Mudroom – Keep the mess at the door—every country home’s secret weapon.
- Unfinished Basement – Blank canvas for a home gym, media room, or workshop.
- 1200 SF 3-Car Garage – Massive garage space for vehicles, toys, and projects.
- Storage Loft – Bonus overhead space to stash seasonal stuff or gear.
- Wraparound Porch – Classic charm meets outdoor living, all the way around.
CDD-4102 Ridge Barndominium House Plan
- 2400 Heated Sq Ft
- 3 Bedrooms
- 2.1 Bathrooms
- Single story
- Open concept
- Office
- Mechanical room
- Mudroom
- Front & Rear porch
- A perfectly balanced living space, offering ample room to breathe, grow, and enjoy, all while maintaining a cozy and manageable footprint.
- Three versatile retreats await—whether for restful nights, creative pursuits, or welcoming family and guests, these rooms are designed with comfort and function in mind.
- Two full bathrooms for your daily routines, plus a convenient half-bath for guests—style and practicality combine effortlessly.
- A seamless and accessible layout on a single level, perfect for ease of movement and a timeless, grounded design.
- An expansive flow of living, dining, and kitchen spaces that encourages connection, natural light, and effortless entertaining.
- Dedicated workspace to inspire productivity and focus, tucked away for privacy while still being part of the home.
- The unsung hero of functionality—a space devoted to housing your home’s essential systems, out of sight but not out of mind.
- Your buffer between the outdoors and your living space, ideal for stowing away shoes, coats, and the chaos of daily life.
- Dual outdoor living spaces, where you can greet neighbors out front or savor a quiet sunset in the back—perfect for year-round enjoyment.
Barndominium FAQs
You will need to have barndominium floor plans to build your barndominium. These are required for planning, loans, and budgeting your project. When you use barndominium floor plans that we already have it makes it cheaper and easier to start the building and financing.
Barndominium floor plans can help with
- Building
- Pricing
- Financing
- Interior finishes
- Permits
- and more
Can barndominium floor plans be altered?
Yes, you can use any barndominium floor plan as a great starting point to help your barndominium build come to life. If you have things you would like different a barndominium architect can help you make your dream barndo become a reality.
Get the Barndominium Life Program for step-by-step guidance on how to make your dream barndominium a reality! We’ll provide you with information and lots of inspiration about floor plans and how to build your barndominiums on time and under budget!






































