Finding the perfect barndominium with a breezeway floor plan can be hard when you are trying to find the one that fits your family’s needs the best! If you are tired of searching then look no further because we are showcasing our favorite (and our buyers and reader’s favorite) new barndominium with a breezeway floor plans. We promise you are going to love them!
For custom-designed floor plans, or to modify an existing floor plan, be sure to visit https://barndominiumplans.com.
Barndominiums offer a new and affordable way to design the home of your dreams. And because of their rustic, airy open style, they can also be used as a vacation home to be passed down for generations to come. They also hold their value, so they also provide a good return on investment (ROI).
Page Contents
Best New Barndominium With a Breezeway Floor Plans
These top new barndominium floor plans will have you swooning with excitement! Be sure to tell us which one you love the most!
#12
Discover the latest breakthroughs, ethical considerations, and societal implications as we navigate this exciting journey…
BP-2001 Brashear Barndominium House Plans
- 2567 Heated square feet
- 3 bedrooms
- 2.1 bathrooms
- Single Story
- Open Concept
- 1230 sq ft detached garage
- Mudroom
- Office
- Front and back porch
- Covered porches
- Covered patio
- Beautifully crafted single-story home with an open concept layout, seamlessly integrating the living, dining, and kitchen areas.
- This thoughtfully designed floor plan with 2567 heated square feet of living space boasts 3 spacious bedrooms and 2.1 bathrooms.
- Enjoy the charm of covered front and back porches, where you can relax with a cup of coffee or enjoy an evening breeze. The covered patio offers an ideal spot for outdoor dining or hosting summer barbecues.
- The 1230 sq ft detached garage provides plenty of space. Whether you use it for vehicles, tools, or as a workshop, you’ll appreciate the convenience and functionality it offers.
- The home includes a dedicated office, perfect for remote work or study, and a practical mudroom to keep your living areas clean and organized.
- Connecting the main house to the garage, the breezeway provides a charming and sheltered pathway, adding to the home’s overall appeal.
#11
Discover the latest breakthroughs, ethical considerations, and societal implications as we navigate this exciting journey…
BP-2001-R Robert Barndominium House Plan
- 3194 Heated square feet
- 34×66 living space dimension
- 4 Bedrooms
- 3.2 Bathrooms
- Open concept
- Guest Suite
- Butler’s pantry
- Mudroom/Laundry area
- 1852 Sq Ft Detached Garage
- Breezeway
- Front & rear porch
- Patio with Outdoor Kitchen
- A spacious canvas of over 3,100 square feet, thoughtfully conditioned for year-round comfort. Every square foot is designed to support both grand entertaining and quiet retreat.
- A wide, balanced footprint measuring 34 by 66 feet offers architectural symmetry and interior flexibility—ideal for curated layouts and seamless flow.
- Four distinct sleeping quarters, each with its own rhythm and privacy. Whether hosting guests, growing a family, or creating multifunctional zones, these rooms adapt with grace.
- Three full baths and a powder room provide elegant utility across the home—ensuring comfort, convenience, and a touch of indulgence in every corner.
- A private guest suite offers autonomy and comfort for visitors or extended stays—complete with its own bath and thoughtful separation from the main living areas.
- Discreet and functional, the butler’s pantry enhances culinary flow with additional prep space, storage, and service access—ideal for hosting or everyday refinement.
- A hardworking transition zone designed for real life. This combined mudroom and laundry area offers a seamless drop-off for shoes, coats, and gear, while doubling as a laundry hub with room to sort, fold, and organize.
- This expansive detached garage offers over 1,800 square feet of versatile space—perfect for vehicle storage, workshop ambitions, or creative projects. Detached for privacy, yet seamlessly connected.
- A covered breezeway links the garage to the main home—offering architectural cohesion and sheltered passage, rain or shine.
- Dual porches frame the home with timeless charm. The front welcomes with grace, while the rear invites relaxation and outdoor living—each space crafted for seasonal enjoyment.
- Step outside and into your own alfresco haven. This patio is more than a place to sit—it’s a fully equipped outdoor kitchen designed for grilling, gathering, and savoring the moment blending culinary function with open-air charm. Durable surfaces, built-in appliances, and seamless flow from indoor to outdoor living make it a true extension of the home.
#10
Discover the latest breakthroughs, ethical considerations, and societal implications as we navigate this exciting journey…
PL-71007 Serena Barndominium House Plan
- 1600 Heated square feet
- 2 Bedrooms
- 2.1 Bathrooms
- Single story
- Open concept
- Patio
- Parking Pad
- Breezeway
- Attached 2-car garage
- This exquisite single-story residence boasts an inviting 1600 heated square feet of thoughtfully designed living space. The home features 2 spacious bedrooms and 2.1 luxurious bathrooms, making it ideal for both relaxation and functionality.
- The open-concept layout seamlessly integrates the living, dining, and kitchen areas, creating a bright and airy environment. The kitchen offer ample counter space and modern appliances, with a direct view into the living area to keep everyone connected.
- Step outside to the charming patio, an ideal spot for morning coffee or evening gatherings, offering a serene outdoor retreat. The parking pad and attached 2-car garage provide convenient and secure parking options, making coming and going a breeze.
- A unique feature of this home is the breezeway, connecting the main house to the garage, offering a sheltered pathway that’s both practical and elegant.
#9
Discover the latest breakthroughs, ethical considerations, and societal implications as we navigate this exciting journey…
PL-62839 Wilkerson Barndominium House Plan
- 3180 Heated square feet
- 612 square feet attached garage
- 4 bedrooms
- 3 bathrooms
- Single Story
- Open Concept
- Foyer
- Office
- Safe
- Indoor and Outdoor Fireplace
- Porch and patio
- Mudroom
- Garage
- Storage rooms
- This spacious single-story floor plan spans 3,180 heated square feet, offering a comfortable and elegant living environment.
- The open-concept layout includes 4 bedrooms and 3 bathrooms, ensuring ample accommodation for family and guests.
- Upon entering, you’re greeted by a welcoming foyer, with the office and dining area situated right at the entrance. The open kitchen flows seamlessly into the living area with cozy fireplace.
- The home also includes a mudroom for added convenience, a safe for secure storage, and a generous back porch and a front patio with an outdoor fireplace area ideal for outdoor relaxation and entertaining.
- The breezeways on both sides of the house serve as 2-car garages, each with additional storage rooms on both ends.
#8
Discover the latest breakthroughs, ethical considerations, and societal implications as we navigate this exciting journey…
LP-2804-C Caitlyn Barndominium House Plan
- 1900 Heated Square Feet
- 4 Bedrooms
- 3 Bathrooms
- Single Story
- Open concept
- Front Porch
- Breezeway
- 1200 Sq Ft Garage
- A well-designed 1,900 sq ft single-story layout that delivers comfort, efficiency, and easy everyday living.
- Four inviting bedrooms and three full bathrooms offer plenty of space, privacy, and flexibility for families or guests.
- A welcoming front porch that adds charm and provides a relaxing outdoor spot to unwind.
- A covered breezeway that connects the home to the garage while adding character, shade, and convenience.
- A spacious 1,200 sq ft garage offering room for multiple vehicles, storage, tools, and hobby space.
#7
Discover the latest breakthroughs, ethical considerations, and societal implications as we navigate this exciting journey…
SV-30013 Shelby Custom Home Plan
- 1850 Heated Square Feet
- 2 Bedrooms
- 2.1 Bathrooms
- Single Story
- Open concept
- Foyer
- Study/Library
- Rear Porch
- Breezeway
- Guest House with Office Nook
- 441 Sq Ft Garage
- A beautifully planned 1,850 sq ft layout split between a main home and a private guest house for flexible, comfortable living.
- The main home features a spacious bedroom and a convenient bath-and-a-half setup, perfect for everyday comfort.
- Fully equipped guest house with its own bedroom and full bathroom—ideal for visitors, extended family, or rental potential.
- A welcoming foyer that sets the tone with charm and thoughtful design.
- Dedicated study or library offering a quiet retreat for reading, working, or relaxing.
- A peaceful rear porch that extends your living space outdoors and invites you to unwind.
- Covered breezeway that connects the main home to the guest house, offering shade, airflow, and architectural character.
- The guest house includes a cozy office nook—perfect for working remotely or providing guests with their own workspace.
- A practical 441 sq ft garage offering room for parking, storage, and everyday convenience.
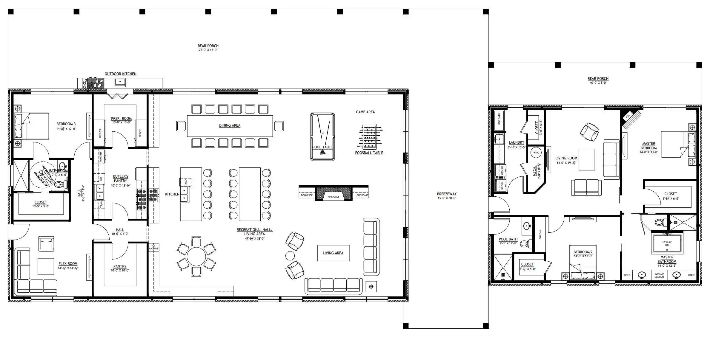
#6
Discover the latest breakthroughs, ethical considerations, and societal implications as we navigate this exciting journey…
SV-5506 Aspen Barndominium House Plan

- 3680 Heated Square Feet
- 3 Bedrooms
- 3 Bathrooms
- Single Story
- Open concept
- Breezeway
- Rear porch
- Outdoor Kitchen
- Flex room
- Game Area & Recreational Hall
- Prep room & Butler’s pantry
- J&J bathroom & ADA-accessible bathroom
- A generous 3,680 sq ft layout designed for comfortable living, entertaining, and unforgettable gatherings.
- Three spacious bedrooms and three full bathrooms provide comfort, privacy, and flexibility for family and guests.
- Charming breezeway that connects spaces while adding airflow, character, and an inviting transition indoors and out.
- Relaxing rear porch with an outdoor kitchen perfect for enjoying peaceful outdoor moments or entertaining.
- Versatile flex room that easily adapts to your needs, from home office to hobby space or guest room.
- An expansive game and recreation area designed for fun, gatherings, and endless entertainment.
- Functional prep room and butler’s pantry that keep the main kitchen organized and hosting effortless.
- Smart bathroom design with a convenient Jack & Jill layout plus an ADA-accessible bath for comfort, accessibility, and peace of mind.
#5
PL-71007-Y Young Barndominium House Plan
- 1,600 Heated Sq Ft
- 2 bedrooms
- 2.1 bathrooms
- Single Story
- Open Concept
- Breezeway
- Patio
- Parking Pad
- 1,200 Sq Ft Garage
- A streamlined single-level layout offering 1,600 square feet of conditioned space—designed for clarity, comfort, and efficient living.
- A covered breezeway links indoor and outdoor zones—perfect for shaded transitions, airflow, and architectural charm.
- Outdoor living is extended with a rear patio for lounging or dining, plus a dedicated parking pad for guests or overflow.
- This spacious garage offers room for three vehicles and additional storage—ideal for hobbyists, gearheads, or active households.
#4
Discover the latest breakthroughs, ethical considerations, and societal implications as we navigate this exciting journey…
BG-20035 Yorkdale Barndominium House Plan
- 2,050 Heated Sq Ft
- 3 Bedrooms
- 2 Bathrooms
- Loft
- Attic Storage
- Open concept
- Wraparound porch
- Breezeway
- 2,125 Sq Ft Shop
- A well-proportioned 2,050 square feet of heated living space offers comfort, flow, and room to grow.
- Three inviting bedrooms provide restful retreats, each designed for privacy and personal expression.
- Two full bathrooms ensure convenience and ease for both daily living and guest accommodations.
- A bright loft adds flexible space for lounging, working, or creative pursuits.
The attic offers discreet overhead storage—ideal for seasonal items, keepsakes, or future expansion. - The wraparound porch surrounds the home with charm and shaded outdoor living from every angle.
- A breezeway adds architectural character while linking indoor and outdoor spaces with ease and airflow.
- The expansive 2,125-square-foot shop is a dream space for makers, collectors, or entrepreneurs—ready to support bold ideas and big projects.
#3
Discover the latest breakthroughs, ethical considerations, and societal implications as we navigate this exciting journey…
CDD-4101 Haven Barndominium House Plan
- 2400 Heated Sq Ft
- 2 Bedrooms
- 2.1 Bathrooms
- Single story
- Open concept
- Front porch/rear patio
- Office/spare room
- Foyer
- Mechanical room
- Mudroom
- Breezeway
- 4-car garage/shop
- A spacious 2400 square feet of heated living space, designed to blend comfort and style seamlessly.
- Two generously sized bedrooms, each offering a peaceful retreat with plenty of natural light and thoughtful design touches for a cozy yet sophisticated ambiance.
- Two full bathrooms, perfect for refreshing starts and unwinding finishes, complemented by a convenient powder room for your guests’ ease and comfort.
- A thoughtfully planned single-story open-concept layout that ensures easy accessibility, effortless flow, and a harmonious connection between all living spaces.
- Welcoming front porch to enjoy quiet mornings and greet guests, and a spacious rear patio perfect for outdoor dining, gatherings, or simply soaking up the sunshine.
- Versatile office or spare room ready to adapt to your needs—whether it’s a productive workspace, hobby room, or extra guest suite for visitors.
- An elegant foyer that sets the tone for the home, offering a warm and inviting entrance while providing a hint of the thoughtful design awaiting beyond.
- Discreet and functional mechanical room, carefully positioned to house essential systems without interrupting the flow or aesthetics of your living spaces.
- Charming breezeway that not only connects key areas of the home but also provides a breezy, shaded transition between indoors and out.
- Expansive 4-car garage that doubles as a shop, offering the perfect solution for vehicle storage, DIY projects, or indulging in hobbies with plenty of space to spare.
#2
Discover the latest breakthroughs, ethical considerations, and societal implications as we navigate this exciting journey…
PL-64002 Gillian Barndominium House Plan
- 3984 Heated square feet
- 3 Bedrooms
- 2.1 Bathrooms
- Single story
- Open concept
- 3-car Garage
- Mudroom
- Basement
- Loft
- Breezeway
- Porch
- Patio
- This home offers a generous 3984 square feet of heated living space, including 2 additional levels- basement and loft, ensuring ample room for comfortable living and entertaining.
- Three spacious bedrooms provide plenty of personal space. Each room is designed to maximize comfort and functionality, perfect for restful nights.
- With two full bathrooms and one half-bath, this home ensures convenience and privacy for both family members and guests. The master bathroom features luxurious fixtures and a serene ambiance.
- The home is designed as a single-story layout, making navigation easy and accessible for all ages. This layout enhances the open-concept design and creates a seamless flow between rooms.
- A three-car garage provides ample space for vehicles, storage, and projects. This feature adds both convenience and practicality to the home, accommodating multiple cars and additional storage needs.
- The breezeway connects the garage to the main living area. This semi-open space allows for a sheltered transition while enjoying the outdoor elements.
- The mudroom serves as a transitional space between the outdoors and indoors.
- The basement offers a versatile area that can be customized to suit specific needs.
- The loft provides a cozy and flexible space for storage or can be transformed into an additional living area.
- The front porch adds charm and curb appeal, and a welcoming space to the home.
- The patio extends the living space outdoors, perfect for alfresco dining, entertaining, or simply enjoying the fresh air.
#1
Discover the latest breakthroughs, ethical considerations, and societal implications as we navigate this exciting journey…
LP-71009 Bell Barndominium House Plan
- 4 Bedrooms
- 3 Bathrooms
- 2410 Heated Square Feet
- Open-concept
- 2-story
- Loft bonus space
- Patio
- Breezeway
- J&J Bathroom
- 3-car Detached Garage
- A 4-bedroom designed for both privacy and comfort, with well-placed locations throughout the house, ideal for family living.
- The 3 bathrooms are strategically distributed to ensure convenience and accessibility for all residents and guests.
- 2410 heated square feet of spacious and climate-controlled living areas, ensuring year-round comfort with 2 stories providing additional living space and functional areas across two levels, optimizing the home’s square footage.
- Seamless integration between the kitchen, dining, and living areas with open-concept creating a fluid and spacious living environment.
- With a versatile loft area that can be utilized as an office, playroom, or additional living space.
- A spacious patio provides an outdoor space perfect for entertaining, dining, or simply enjoying the outdoors while also functioning as a breezeway, adding both functionality and aesthetic appeal.
- A Jack and Jill bathroom is accessible from two bedrooms on the second floor offering efficient use of space.
- The 3-car detached garage provides ample parking and storage for your vehicles.
Even More Barndominium Plans
Not finished browsing? Check out even more of our top barndominium plans:
PL-61703 Medfield Barndominium House Plan


- 2400 Heated square feet
- 4-5 bedrooms
- 3 bathrooms
- 1 Story
- Playroom
- Open Concept
- The Medfield barndominium house plan is 2406 heated square feet and 4-5 bedrooms with 3 full bathrooms.
- In the main living area of this house plan, you are welcomed with an open-concept design that creates a nice open spacious with plenty of room for friends and family to gather.
- The kitchen is large with a center island and pantry. The island is home to the sink so that you can be part of the conversation in the family room even while doing dishes.
- The master bedroom has plenty of room to relax and unwind. With an ensuite bathroom with a separate shower and tub, there is plenty of space for you and your partner to get ready in the mornings.
- With up to 4 additional secondary bedrooms there is plenty of room for everyone to spread out and enjoy some downtime after a long day. One of the additional bedrooms can act as a study or guest bedroom.
- The playroom is another great feature of this home that is located just off the kitchen allowing moms and dads to cook and still have an eye on the kids as they play.
- The laundry is quite large and has a nice-sized storage closet that is perfect for storing all your cleaning supplies so that the laundry room stays nice and tidy.
- You will find that this barndominium house plan has lots of storage throughout the home which is a huge plus.
- The Veranda is large and is the perfect place to sit and relax after a long day.
SV-5503-C Charlie Barndominium House Plan
- 1677 Heated square feet
- 2 Bedrooms
- 2.1 Bathrooms
- Open concept
- Single story
- Utility room
- Safe room
- Mudroom
- Covered porch
- Garage/shop
- Smartly sized at 1,677 square feet—designed for comfort, flow, and functional elegance.
- Two dreamy bedrooms tailored for restful nights and personalized escapes.
- Two full baths plus a sleek half bath—perfect for busy mornings and effortless entertaining.
- Breathe easy in this open layout where living, dining, and kitchen spaces connect seamlessly.
- Out of sight but never out of reach—this utility room keeps laundry day neat and efficient.
- Peace of mind built in—this reinforced safe room adds a layer of security without sacrificing style.
- Your front-line defense against the mess—this transitional mudroom keeps life tidy and organized.
- Sip, sit, and savor—this charming covered porch beckons for breezy afternoons and quiet evenings.
- More than a parking spot—this versatile garage/shop is a hobbyist’s haven and a storage dream.
LP-2807 Wescott Barndominium House Plans

- 1800 Heated square feet
- 4 bedrooms
- 3 bathrooms
- 2 Story
- Loft
- Open Concept
- The Wescott barndominium house plan is 1800 heated square feet and features 4 bedrooms and 3 bathrooms.
- The open-concept design allows for plenty of space for the family to mingle and interact with one another. The main areas of the home appear even larger thanks to the vaulted ceilings.
- The kitchen is large and spacious with a large island with ample counter space and a decent-sized pantry in the corner of the kitchen.
- This plan includes several windows to allow the natural light to flow throughout the home.
- The master bedroom is spacious with a large master bathroom, shower, and stand-alone tub. The double vanity allows the couple to get ready at the same time without bumping into one another. The master also offers a large walk-in closet.
- This house plan has 3 additional bedrooms all with a nice sized closet. One of the secondary bedrooms has a private bathroom attached. The remaining bedrooms share the additional bathroom located in the hall.
- Upstairs is a nice loft ready for a home office, playroom, or anything you desire.
- The Wescott barndominium house plan has both a front and back patio so there is plenty of room to enjoy the outdoors.
PL-71005 Vista Barndominium House Plan

- 4 Bedrooms
- 3.1 Bathrooms
- 3179 Heated Square Feet
- 2-story
- Loft
- Playroom
- Media room
- Mudroom
- Mechanical room
- Jack and Jill Bathrooms
- Attached 3-car garage
- Front porch
- Patio
- With an expansive 3,179 heated square feet, this two-story floor plan offers ample space for your family to grow and thrive.
- Enjoy the comfort and privacy of four generously sized bedrooms, including Jack and Jill bathrooms that provide convenience and elegance. The 3.1 bathrooms ensure there’s never a wait during busy mornings.
- The loft area is perfect for a cozy reading nook or home office, while the playroom offers a dedicated space for fun and creativity. The media room is designed for ultimate entertainment right at home.
- The mudroom is ideal for keeping your home tidy, and the mechanical room ensures your household systems are easily accessible. An attached 3-car garage offers ample parking and storage space for vehicles and outdoor gear.
- Relax on the inviting front porch or host gatherings on the stylish patio, making every moment spent outdoors special.
PL-71004 Alasio Barndominium House Plan

- 4 Bedrooms
- 3.1 Bathrooms
- 3887 Heated Square Feet
- 2-story
- Loft
- Mudroom
- Attached 3-car garage
- Front and back porch
- Office
- Fireplace
- Lounge
- 2 Jack and Jill Bathrooms
- Explore this beautifully designed 2-story barndominium, offering ample space for family and guests with a total of 3,887 heated square feet.
- The open-concept design seamlessly integrates the living, dining, and kitchen areas, making it ideal for daily living and entertaining. A cozy fireplace in the family room adds warmth and is a focal point for gatherings.
- This floor plan includes four spacious bedrooms, providing comfortable retreats for all family members and guests.
- The layout features a luxurious master bathroom and a well-appointed guest bathroom. With 3.1 bathrooms, including two Jack and Jill bathrooms, this home provides convenience and efficient use of space between bedrooms.
- A versatile loft area that can serve as an additional living space, playroom, or home gym.
- An attached 3-car garage offers ample space for vehicles, storage, and hobbies and the mudroom provides a practical entryway space, perfect for storing shoes, coats, and outdoor gear.
- Enjoy the outdoors with both front and back porches, perfect for relaxing, entertaining, or enjoying the fresh air.
- A dedicated office space for working from home, managing household tasks, or pursuing personal projects.
- A comfortable lounge area for relaxing, reading, or enjoying family time.
PL-2819 Hampton Barndominium House Plan


- 4918 Heated square feet
- 3 Bedrooms
- 3.1 Bathrooms
- 2-story
- Loft family/entertainment area
- Loft unfinished area
- Open concept
- Wraparound porch
- Mechanical room
- Mudroom
- 4-car attached Garage
- Nearly 5,000 square feet of finely crafted comfort—room to roam, entertain, and thrive without limits.
- Three spacious retreats, each its own private haven—designed for rest, romance, and a touch of indulgence.
- Every bedroom gets its own en-suite luxury, plus a powder room for guests—pure convenience meets elegant living.
- Game nights, movie marathons, and memory-making galore—plus extra loft space waiting for your creative touch.
- Wide, bright, and beautifully connected—this open-plan layout invites light, laughter, and seamless everyday living.
- Porch envy, activated—this wraparound stunner wraps your home in charm, sunshine, and endless outdoor moments.
- A quietly efficient hub—your home’s systems get the space they need without sacrificing aesthetics.
- Function meets finesse—this stylish drop zone keeps clutter at bay and your interiors pristine.
- Room for every ride, hobby, and weekend adventure—this oversized garage is a dream for car lovers and gearheads alike.
PL-2815 Travis Barndominium House Plan
- 2400 Heated square feet
- 40×60 living space dimension
- 3 Bedrooms
- 2 Bathrooms
- Single story
- Open concept
- Office
- Foyer
- Front porch
- Patio
- Deck
- Safe room
- Walkout basement
- 3-car attached garage
- Enjoy a perfectly balanced footprint offering 2,400 square feet of comfortably climate-controlled living space—roomy enough to stretch out, yet easy to maintain.
- With generous 40×60 dimensions, this home’s layout is designed for flow, flexibility, and functionality—ideal for entertaining and everyday living.
- Three well-appointed bedrooms offer restful retreats for family and guests alike—each thoughtfully placed for privacy, natural light, and comfort.
- Two full bathrooms bring both convenience and style, featuring modern fixtures and smart layouts for a smooth daily routine.
- No stairs, no hassle—this single-story, open-concept design delivers ease and accessibility, perfect for all stages of life.
- A dedicated home office provides a quiet, focused space for productivity—whether you’re working from home, tackling creative projects, or organizing life’s details.
- Step into a welcoming foyer that sets the tone with warmth and charm—a graceful transition from the outside world.
- The inviting front porch is more than curb appeal—it’s a breezy perch to sip coffee, greet neighbors, and enjoy golden hour views.
- Grill, gather, or unwind beneath the stars on your private patio—perfectly positioned for alfresco dining and outdoor living.
- A spacious deck extends your living space under open skies—a natural haven for morning routines or twilight conversation.
- Discreetly built for peace of mind, the safe room offers reinforced protection without sacrificing style or convenience.
- A seamless blend of indoor comfort and outdoor connection, the walkout basement extends your living space with direct access to the backyard. Whether transformed into a private retreat, entertainment hub, or guest quarters, its versatility adds value and functionality to your home.
PL-64013 Gibbons Barndominium House Plan
- 2000 Heated Sq Ft
- 4 Bedrooms
- 2 Bathrooms
- Storage spaces
- Mechanical room/Laundry room
- Open concept
- Single-story
- Front and back porch
- Spacious 2,000 heated sq ft with room to stretch, entertain, and relax in style.
- 4 bedrooms designed with comfort and privacy in mind—perfect for families or guests.
- 2 modern and functional bathrooms with plenty of space to start your day right.
- Never worry about clutter—dedicated storage keeps everything organized.
- Mechanical Room/Laundry Room: All your utilities and laundry needs neatly tucked away for maximum efficiency.
- Seamless flow from the living area to the kitchen—ideal for gatherings and everyday living in a single-story layout.
- Enjoy morning coffee out front and sunset views out back—your new favorite spots to unwind.
PL-69197 Bexley Barndominium House Plan
- 2683 Heated Sq Ft
- 4 Bedrooms
- 3 Bathrooms
- Laundry room
- Mudroom
- Open concept
- Two-story
- Loft Style
- 1432 Sq Ft Garage
- Front and back porch
- This two-story floor plan offers an impressive 2683 square feet of heated living space. The design also includes a substantial 1432-square-foot garage, perfect for housing vehicles, storage, or a workshop.
- This plan features four bedrooms, three of which are conveniently located on the main floor, and a guest bedroom on the second floor. Each bedroom, including the master and guest bedrooms, has its own private bathroom. Additionally, there is a shared bathroom on the main floor, making this design both practical and accommodating for a variety of living arrangements.
- A loft-style floor plan that features an open concept main floor. As you enter the house from the garage, you are greeted by a practical mudroom, perfect for storing outdoor gear and keeping the rest of the home clean. Conveniently, this mudroom is also linked to the laundry room, making it easy to manage household chores.
- This floor plan features a charming front porch, providing a warm welcome to visitors. At the rear of the house, a spacious back patio offers ample room for outdoor dining, relaxation, or entertaining. Whether you’re greeting neighbors at the front door or enjoying a backyard barbecue, this floor plan caters to a lifestyle that appreciates both community connection and private leisure.
PL-82001 Fowler Barndominium House Plan

- 5792 heated Square Feet
- 6 Bedrooms
- 4.2 Bathrooms
- 2 Story
- Open Concept
- Hobby room
- Game/media room
- Sitting area
- Playroom
- Front & rear porch
- 2-car detached garage
- Luxuriate in nearly 5,800 square feet of impeccably designed, temperature-controlled living—every square foot crafted for comfort, elegance, and unforgettable gatherings.
- Six inviting bedrooms promise restful retreats for every family member or guest—each one a private sanctuary with space to breathe, unwind, and dream.
- With four full baths and two stylish powder rooms, convenience meets sophistication—ensuring seamless mornings and elegant hosting for any occasion.
- Thoughtfully arranged across two expansive levels, this layout balances togetherness and personal space—ideal for vibrant entertaining below and tranquil escapes above.
- From airy conversations in the kitchen to effortless entertaining in the great room, the open-concept design flows with natural light and modern sophistication.
- Whether it’s painting, crafting, or perfecting your next passion project, the hobby room offers a creative corner tailored for inspiration and focus.
- Movie marathons, game nights, or immersive binge sessions—the dedicated game/media room delivers cinematic comfort and lively fun for all ages.
- A quiet sitting area beckons for reflective mornings, casual reading, or warm, intimate conversations with a cup in hand and sunlight streaming in.
- Let imaginations run wild in a bright, cheerful playroom designed for kids to explore, create, and grow in their own lively little world.
- From sunrise coffees on the welcoming front porch to serene sunsets out back, these dual outdoor spaces invite connection with nature and neighbors alike.
- The detached two-car garage adds both function and charm—perfect for vehicle storage, gear organization, or converting into a workshop or studio.
AP-20003-FB Franklin Barndominium House Plan
- 2000 Heated Square Feet
- 2 Bedrooms
- 2.1 Bathrooms
- Three-story layout
- Open-concept
- Mudroom
- Unfinished Basement
- 1200 SF 3-Car garage
- Storage loft
- Wraparound porch
- 2000 Heated Square Feet – Just the right size: spacious, efficient, and easy to manage.
- 2 Bedrooms – Roomy and private with space to unwind or host.
- 2.1 Bathrooms – Two full baths plus a powder room for guests.
- Three-story layout – Vertical living with separation, style, and stunning views.
- Open-concept – Airy, seamless flow from kitchen to living and dining.
- Mudroom – Keep the mess at the door—every country home’s secret weapon.
- Unfinished Basement – Blank canvas for a home gym, media room, or workshop.
- 1200 SF 3-Car Garage – Massive garage space for vehicles, toys, and projects.
- Storage Loft – Bonus overhead space to stash seasonal stuff or gear.
- Wraparound Porch – Classic charm meets outdoor living, all the way around.
CDD-4102 Ridge Barndominium House Plan
- 2400 Heated Sq Ft
- 3 Bedrooms
- 2.1 Bathrooms
- Single story
- Open concept
- Office
- Mechanical room
- Mudroom
- Front & Rear porch
- A perfectly balanced living space, offering ample room to breathe, grow, and enjoy, all while maintaining a cozy and manageable footprint.
- Three versatile retreats await—whether for restful nights, creative pursuits, or welcoming family and guests, these rooms are designed with comfort and function in mind.
- Two full bathrooms for your daily routines, plus a convenient half-bath for guests—style and practicality combine effortlessly.
- A seamless and accessible layout on a single level, perfect for ease of movement and a timeless, grounded design.
- An expansive flow of living, dining, and kitchen spaces that encourages connection, natural light, and effortless entertaining.
- Dedicated workspace to inspire productivity and focus, tucked away for privacy while still being part of the home.
- The unsung hero of functionality—a space devoted to housing your home’s essential systems, out of sight but not out of mind.
- Your buffer between the outdoors and your living space, ideal for stowing away shoes, coats, and the chaos of daily life.
- Dual outdoor living spaces, where you can greet neighbors out front or savor a quiet sunset in the back—perfect for year-round enjoyment.
Even More Barndominium Plans
Not finished browsing? Check out even more of our top barndominium plans:
PL-61703 Medfield Barndominium House Plan


- 2400 Heated square feet
- 4-5 bedrooms
- 3 bathrooms
- 1 Story
- Playroom
- Open Concept
- The Medfield barndominium house plan is 2406 heated square feet and 4-5 bedrooms with 3 full bathrooms.
- In the main living area of this house plan, you are welcomed with an open-concept design that creates a nice open spacious with plenty of room for friends and family to gather.
- The kitchen is large with a center island and pantry. The island is home to the sink so that you can be part of the conversation in the family room even while doing dishes.
- The master bedroom has plenty of room to relax and unwind. With an ensuite bathroom with a separate shower and tub, there is plenty of space for you and your partner to get ready in the mornings.
- With up to 4 additional secondary bedrooms there is plenty of room for everyone to spread out and enjoy some downtime after a long day. One of the additional bedrooms can act as a study or guest bedroom.
- The playroom is another great feature of this home that is located just off the kitchen allowing moms and dads to cook and still have an eye on the kids as they play.
- The laundry is quite large and has a nice-sized storage closet that is perfect for storing all your cleaning supplies so that the laundry room stays nice and tidy.
- You will find that this barndominium house plan has lots of storage throughout the home which is a huge plus.
- The Veranda is large and is the perfect place to sit and relax after a long day.
SV-5503-C Charlie Barndominium House Plan
- 1677 Heated square feet
- 2 Bedrooms
- 2.1 Bathrooms
- Open concept
- Single story
- Utility room
- Safe room
- Mudroom
- Covered porch
- Garage/shop
- Smartly sized at 1,677 square feet—designed for comfort, flow, and functional elegance.
- Two dreamy bedrooms tailored for restful nights and personalized escapes.
- Two full baths plus a sleek half bath—perfect for busy mornings and effortless entertaining.
- Breathe easy in this open layout where living, dining, and kitchen spaces connect seamlessly.
- Out of sight but never out of reach—this utility room keeps laundry day neat and efficient.
- Peace of mind built in—this reinforced safe room adds a layer of security without sacrificing style.
- Your front-line defense against the mess—this transitional mudroom keeps life tidy and organized.
- Sip, sit, and savor—this charming covered porch beckons for breezy afternoons and quiet evenings.
- More than a parking spot—this versatile garage/shop is a hobbyist’s haven and a storage dream.
LP-2807 Wescott Barndominium House Plans

- 1800 Heated square feet
- 4 bedrooms
- 3 bathrooms
- 2 Story
- Loft
- Open Concept
- The Wescott barndominium house plan is 1800 heated square feet and features 4 bedrooms and 3 bathrooms.
- The open-concept design allows for plenty of space for the family to mingle and interact with one another. The main areas of the home appear even larger thanks to the vaulted ceilings.
- The kitchen is large and spacious with a large island with ample counter space and a decent-sized pantry in the corner of the kitchen.
- This plan includes several windows to allow the natural light to flow throughout the home.
- The master bedroom is spacious with a large master bathroom, shower, and stand-alone tub. The double vanity allows the couple to get ready at the same time without bumping into one another. The master also offers a large walk-in closet.
- This house plan has 3 additional bedrooms all with a nice sized closet. One of the secondary bedrooms has a private bathroom attached. The remaining bedrooms share the additional bathroom located in the hall.
- Upstairs is a nice loft ready for a home office, playroom, or anything you desire.
- The Wescott barndominium house plan has both a front and back patio so there is plenty of room to enjoy the outdoors.
PL-71005 Vista Barndominium House Plan

- 4 Bedrooms
- 3.1 Bathrooms
- 3179 Heated Square Feet
- 2-story
- Loft
- Playroom
- Media room
- Mudroom
- Mechanical room
- Jack and Jill Bathrooms
- Attached 3-car garage
- Front porch
- Patio
- With an expansive 3,179 heated square feet, this two-story floor plan offers ample space for your family to grow and thrive.
- Enjoy the comfort and privacy of four generously sized bedrooms, including Jack and Jill bathrooms that provide convenience and elegance. The 3.1 bathrooms ensure there’s never a wait during busy mornings.
- The loft area is perfect for a cozy reading nook or home office, while the playroom offers a dedicated space for fun and creativity. The media room is designed for ultimate entertainment right at home.
- The mudroom is ideal for keeping your home tidy, and the mechanical room ensures your household systems are easily accessible. An attached 3-car garage offers ample parking and storage space for vehicles and outdoor gear.
- Relax on the inviting front porch or host gatherings on the stylish patio, making every moment spent outdoors special.
PL-71004 Alasio Barndominium House Plan

- 4 Bedrooms
- 3.1 Bathrooms
- 3887 Heated Square Feet
- 2-story
- Loft
- Mudroom
- Attached 3-car garage
- Front and back porch
- Office
- Fireplace
- Lounge
- 2 Jack and Jill Bathrooms
- Explore this beautifully designed 2-story barndominium, offering ample space for family and guests with a total of 3,887 heated square feet.
- The open-concept design seamlessly integrates the living, dining, and kitchen areas, making it ideal for daily living and entertaining. A cozy fireplace in the family room adds warmth and is a focal point for gatherings.
- This floor plan includes four spacious bedrooms, providing comfortable retreats for all family members and guests.
- The layout features a luxurious master bathroom and a well-appointed guest bathroom. With 3.1 bathrooms, including two Jack and Jill bathrooms, this home provides convenience and efficient use of space between bedrooms.
- A versatile loft area that can serve as an additional living space, playroom, or home gym.
- An attached 3-car garage offers ample space for vehicles, storage, and hobbies and the mudroom provides a practical entryway space, perfect for storing shoes, coats, and outdoor gear.
- Enjoy the outdoors with both front and back porches, perfect for relaxing, entertaining, or enjoying the fresh air.
- A dedicated office space for working from home, managing household tasks, or pursuing personal projects.
- A comfortable lounge area for relaxing, reading, or enjoying family time.
PL-2819 Hampton Barndominium House Plan


- 4918 Heated square feet
- 3 Bedrooms
- 3.1 Bathrooms
- 2-story
- Loft family/entertainment area
- Loft unfinished area
- Open concept
- Wraparound porch
- Mechanical room
- Mudroom
- 4-car attached Garage
- Nearly 5,000 square feet of finely crafted comfort—room to roam, entertain, and thrive without limits.
- Three spacious retreats, each its own private haven—designed for rest, romance, and a touch of indulgence.
- Every bedroom gets its own en-suite luxury, plus a powder room for guests—pure convenience meets elegant living.
- Game nights, movie marathons, and memory-making galore—plus extra loft space waiting for your creative touch.
- Wide, bright, and beautifully connected—this open-plan layout invites light, laughter, and seamless everyday living.
- Porch envy, activated—this wraparound stunner wraps your home in charm, sunshine, and endless outdoor moments.
- A quietly efficient hub—your home’s systems get the space they need without sacrificing aesthetics.
- Function meets finesse—this stylish drop zone keeps clutter at bay and your interiors pristine.
- Room for every ride, hobby, and weekend adventure—this oversized garage is a dream for car lovers and gearheads alike.
PL-2815 Travis Barndominium House Plan
- 2400 Heated square feet
- 40×60 living space dimension
- 3 Bedrooms
- 2 Bathrooms
- Single story
- Open concept
- Office
- Foyer
- Front porch
- Patio
- Deck
- Safe room
- Walkout basement
- 3-car attached garage
- Enjoy a perfectly balanced footprint offering 2,400 square feet of comfortably climate-controlled living space—roomy enough to stretch out, yet easy to maintain.
- With generous 40×60 dimensions, this home’s layout is designed for flow, flexibility, and functionality—ideal for entertaining and everyday living.
- Three well-appointed bedrooms offer restful retreats for family and guests alike—each thoughtfully placed for privacy, natural light, and comfort.
- Two full bathrooms bring both convenience and style, featuring modern fixtures and smart layouts for a smooth daily routine.
- No stairs, no hassle—this single-story, open-concept design delivers ease and accessibility, perfect for all stages of life.
- A dedicated home office provides a quiet, focused space for productivity—whether you’re working from home, tackling creative projects, or organizing life’s details.
- Step into a welcoming foyer that sets the tone with warmth and charm—a graceful transition from the outside world.
- The inviting front porch is more than curb appeal—it’s a breezy perch to sip coffee, greet neighbors, and enjoy golden hour views.
- Grill, gather, or unwind beneath the stars on your private patio—perfectly positioned for alfresco dining and outdoor living.
- A spacious deck extends your living space under open skies—a natural haven for morning routines or twilight conversation.
- Discreetly built for peace of mind, the safe room offers reinforced protection without sacrificing style or convenience.
- A seamless blend of indoor comfort and outdoor connection, the walkout basement extends your living space with direct access to the backyard. Whether transformed into a private retreat, entertainment hub, or guest quarters, its versatility adds value and functionality to your home.
PL-64013 Gibbons Barndominium House Plan
- 2000 Heated Sq Ft
- 4 Bedrooms
- 2 Bathrooms
- Storage spaces
- Mechanical room/Laundry room
- Open concept
- Single-story
- Front and back porch
- Spacious 2,000 heated sq ft with room to stretch, entertain, and relax in style.
- 4 bedrooms designed with comfort and privacy in mind—perfect for families or guests.
- 2 modern and functional bathrooms with plenty of space to start your day right.
- Never worry about clutter—dedicated storage keeps everything organized.
- Mechanical Room/Laundry Room: All your utilities and laundry needs neatly tucked away for maximum efficiency.
- Seamless flow from the living area to the kitchen—ideal for gatherings and everyday living in a single-story layout.
- Enjoy morning coffee out front and sunset views out back—your new favorite spots to unwind.
PL-69197 Bexley Barndominium House Plan
- 2683 Heated Sq Ft
- 4 Bedrooms
- 3 Bathrooms
- Laundry room
- Mudroom
- Open concept
- Two-story
- Loft Style
- 1432 Sq Ft Garage
- Front and back porch
- This two-story floor plan offers an impressive 2683 square feet of heated living space. The design also includes a substantial 1432-square-foot garage, perfect for housing vehicles, storage, or a workshop.
- This plan features four bedrooms, three of which are conveniently located on the main floor, and a guest bedroom on the second floor. Each bedroom, including the master and guest bedrooms, has its own private bathroom. Additionally, there is a shared bathroom on the main floor, making this design both practical and accommodating for a variety of living arrangements.
- A loft-style floor plan that features an open concept main floor. As you enter the house from the garage, you are greeted by a practical mudroom, perfect for storing outdoor gear and keeping the rest of the home clean. Conveniently, this mudroom is also linked to the laundry room, making it easy to manage household chores.
- This floor plan features a charming front porch, providing a warm welcome to visitors. At the rear of the house, a spacious back patio offers ample room for outdoor dining, relaxation, or entertaining. Whether you’re greeting neighbors at the front door or enjoying a backyard barbecue, this floor plan caters to a lifestyle that appreciates both community connection and private leisure.
PL-82001 Fowler Barndominium House Plan

- 5792 heated Square Feet
- 6 Bedrooms
- 4.2 Bathrooms
- 2 Story
- Open Concept
- Hobby room
- Game/media room
- Sitting area
- Playroom
- Front & rear porch
- 2-car detached garage
- Luxuriate in nearly 5,800 square feet of impeccably designed, temperature-controlled living—every square foot crafted for comfort, elegance, and unforgettable gatherings.
- Six inviting bedrooms promise restful retreats for every family member or guest—each one a private sanctuary with space to breathe, unwind, and dream.
- With four full baths and two stylish powder rooms, convenience meets sophistication—ensuring seamless mornings and elegant hosting for any occasion.
- Thoughtfully arranged across two expansive levels, this layout balances togetherness and personal space—ideal for vibrant entertaining below and tranquil escapes above.
- From airy conversations in the kitchen to effortless entertaining in the great room, the open-concept design flows with natural light and modern sophistication.
- Whether it’s painting, crafting, or perfecting your next passion project, the hobby room offers a creative corner tailored for inspiration and focus.
- Movie marathons, game nights, or immersive binge sessions—the dedicated game/media room delivers cinematic comfort and lively fun for all ages.
- A quiet sitting area beckons for reflective mornings, casual reading, or warm, intimate conversations with a cup in hand and sunlight streaming in.
- Let imaginations run wild in a bright, cheerful playroom designed for kids to explore, create, and grow in their own lively little world.
- From sunrise coffees on the welcoming front porch to serene sunsets out back, these dual outdoor spaces invite connection with nature and neighbors alike.
- The detached two-car garage adds both function and charm—perfect for vehicle storage, gear organization, or converting into a workshop or studio.
AP-20003-FB Franklin Barndominium House Plan
- 2000 Heated Square Feet
- 2 Bedrooms
- 2.1 Bathrooms
- Three-story layout
- Open-concept
- Mudroom
- Unfinished Basement
- 1200 SF 3-Car garage
- Storage loft
- Wraparound porch
- 2000 Heated Square Feet – Just the right size: spacious, efficient, and easy to manage.
- 2 Bedrooms – Roomy and private with space to unwind or host.
- 2.1 Bathrooms – Two full baths plus a powder room for guests.
- Three-story layout – Vertical living with separation, style, and stunning views.
- Open-concept – Airy, seamless flow from kitchen to living and dining.
- Mudroom – Keep the mess at the door—every country home’s secret weapon.
- Unfinished Basement – Blank canvas for a home gym, media room, or workshop.
- 1200 SF 3-Car Garage – Massive garage space for vehicles, toys, and projects.
- Storage Loft – Bonus overhead space to stash seasonal stuff or gear.
- Wraparound Porch – Classic charm meets outdoor living, all the way around.
CDD-4102 Ridge Barndominium House Plan
- 2400 Heated Sq Ft
- 3 Bedrooms
- 2.1 Bathrooms
- Single story
- Open concept
- Office
- Mechanical room
- Mudroom
- Front & Rear porch
- A perfectly balanced living space, offering ample room to breathe, grow, and enjoy, all while maintaining a cozy and manageable footprint.
- Three versatile retreats await—whether for restful nights, creative pursuits, or welcoming family and guests, these rooms are designed with comfort and function in mind.
- Two full bathrooms for your daily routines, plus a convenient half-bath for guests—style and practicality combine effortlessly.
- A seamless and accessible layout on a single level, perfect for ease of movement and a timeless, grounded design.
- An expansive flow of living, dining, and kitchen spaces that encourages connection, natural light, and effortless entertaining.
- Dedicated workspace to inspire productivity and focus, tucked away for privacy while still being part of the home.
- The unsung hero of functionality—a space devoted to housing your home’s essential systems, out of sight but not out of mind.
- Your buffer between the outdoors and your living space, ideal for stowing away shoes, coats, and the chaos of daily life.
- Dual outdoor living spaces, where you can greet neighbors out front or savor a quiet sunset in the back—perfect for year-round enjoyment.
Barndominium FAQs
You will need to have barndominium floor plans to build your barndominium. These are required for planning, loans, and budgeting your project. When you use barndominium floor plans that we already have it makes it cheaper and easier to start the building and financing.
Barndominium floor plans can help with
- Building
- Pricing
- Financing
- Interior finishes
- Permits
- and more
Can barndominium floor plans be altered?
Yes, you can use any barndominium floor plan as a great starting point to help your barndominium build come to life. If you have things you would like different a barndominium architect can help you make your dream barndo become a reality.
Get the Barndominium Life Program for step-by-step guidance on how to make your dream barndominium a reality! We’ll provide you with information and lots of inspiration about floor plans and how to build your barndominiums on time and under budget!

















































