
BG-20035 Yorkdale Barndominium House Plan
Want to buy this house plan? Scroll to the bottom and find the link to purchase.
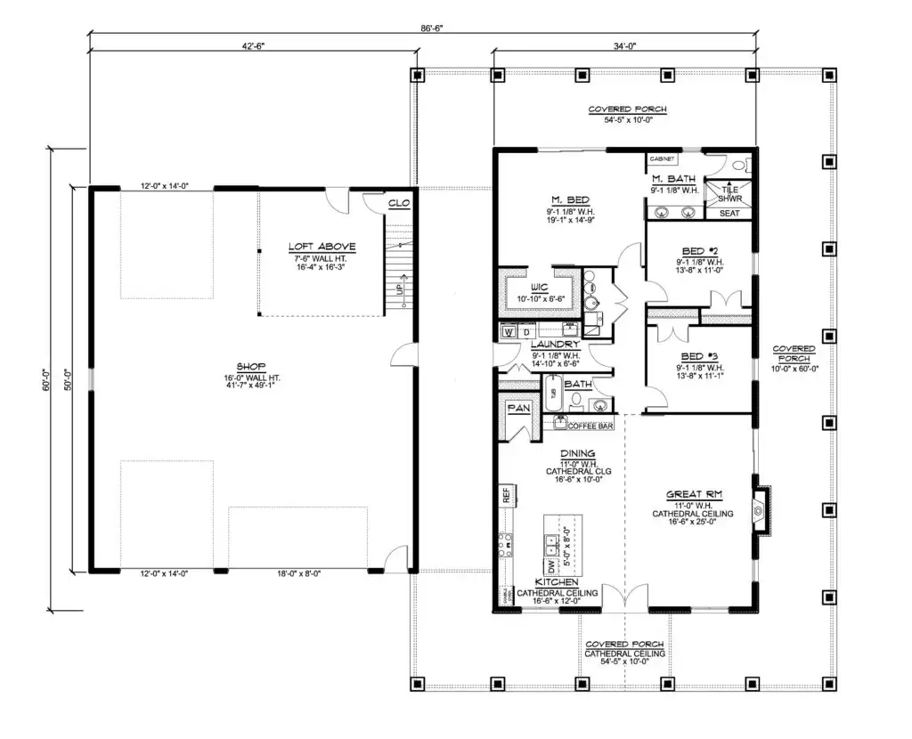
About this barndominium house plan:
- 2,050 Heated Sq Ft
- 3 Bedrooms
- 2 Bathrooms
- Loft
- Attic Storage
- Open concept
- Wraparound porch
- Breezeway
- 2,125 Sq Ft Shop
- A well-proportioned 2,050 square feet of heated living space offers comfort, flow, and room to grow.
- Three inviting bedrooms provide restful retreats, each designed for privacy and personal expression.
- Two full bathrooms ensure convenience and ease for both daily living and guest accommodations.
- A bright loft adds flexible space for lounging, working, or creative pursuits.
The attic offers discreet overhead storage—ideal for seasonal items, keepsakes, or future expansion. - The wraparound porch surrounds the home with charm and shaded outdoor living from every angle.
- A breezeway adds architectural character while linking indoor and outdoor spaces with ease and airflow.
- The expansive 2,125-square-foot shop is a dream space for makers, collectors, or entrepreneurs—ready to support bold ideas and big projects.
What’s included in BG-20035:
Cover Sheet
Four Elevations (Front, Back, Left Side, Right Side)
Roof Plan
Dimensioned Floor Plan
Foundation Plan
Wall Sections
Electrical Plans
For more barndominium floor plans, check out our complete collection of 3-bedroom barndominium floor plans.
Need to make changes? Submit a modification request using the button that says Modify This Plan (below the Add To Cart Button). We will get you a free price quote within 72 hours.
Please note all square footage are estimates.









Find More Barndominium Floor Plans
By Bedrooms:
1 Bedroom • 2 Bedrooms • 3 Bedrooms • 4 Bedrooms • 5 Bedrooms • 6 Bedrooms • 7 Bedrooms • 8 Bedrooms
By Feature:
1-Story • 2-Story • With Garage • 2 Car Garage • 3 Car Garage • Wraparound Porch • With Breezeway • 2 Master Suites • With Loft • Multi-Family Barndominiums • Open-Concept
By Size:
Small Plans • 800 Sq Ft • 900 Sq Ft • 1000 Sq Ft • 1200 Sq Ft • 30×40 Floor Plans • 1400 Sq Ft • 1500 Sq Ft • 1600 Sq Ft • 40×40 Floor Plans • 1800 Sq Ft • 30×60 Floor Plans • 2000 Sq Ft • 2400 Sq Ft • 2500 Sq Ft • 2800 Sq Ft • 3000 Sq Ft • 3200 Sq Ft • 3600 Sq Ft • 4000 Sq Ft • 5000 Sq Ft •

