Finding the perfect barndominium floor plan can be hard when you are trying to find the one that fits your family’s needs the best! If you are tired of searching then look no further because we are showcasing our favorite (and our buyers and reader’s favorite) new barndominium floor plans. We promise you are going to love them!
For custom-designed floor plans, or to modify an existing floor plan, be sure to visit https://barndominiumplans.com.
Barndominiums offer a new and affordable way to design the home of your dreams. And because of their rustic, airy open style, they can also be used as a vacation home to be passed down for generations to come. They also hold their value, so they also provide a good return on investment (ROI).
Page Contents
Best New Barndominium Floor Plans
These top new barndominium floor plans will have you swooning with excitement! Be sure to tell us which one you love the most!
#12
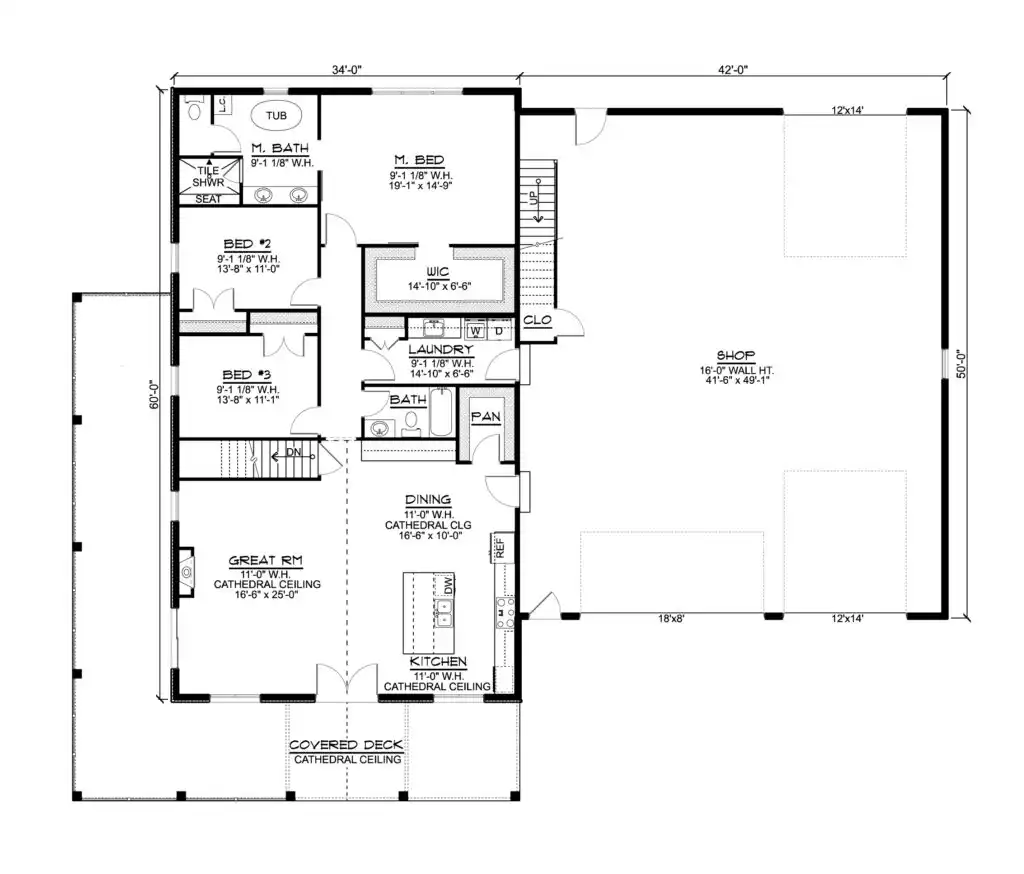
BG-20008 Harrison Barndominium House Plan
- 2779 Heated square feet
- 3 bedrooms
- 3.1 bathrooms
- Two-Story
- Open Concept
- 2240 sq ft garage
- Shop storage
- Covered deck
- Covered Porch
- Covered patio
- Mechanical room/storage
- Walkout basement
- Spacious yet refined, this generous layout offers nearly 2,800 square feet of climate-controlled comfort—perfectly balanced for everyday living and elevated entertaining.
- Three thoughtfully designed bedrooms provide privacy and versatility, whether you’re hosting guests, growing a family, or curating a serene home office.
- With three full baths and a stylish powder room, this home ensures convenience and luxury at every turn—no waiting, no compromise.
- A soaring two-story design meets seamless flow, creating a light-filled environment where kitchen, dining, and living spaces connect effortlessly. The walkout basement adds a layer of livability, with direct access to the outdoors and endless potential for guest quarters, recreation, or rental income.
- More than a garage—this expansive 2,240-square-foot space includes dedicated shop storage, ideal for hobbyists, gearheads, or anyone who dreams big.
- Enjoy the outdoors year-round with three distinct covered spaces—each offering a unique vantage point for morning coffee, sunset views, or weekend gatherings.
- Smartly tucked away in the basement, the mechanical room doubles as extra storage—keeping essentials organized and out of sight.
#11
Discover the latest breakthroughs, ethical considerations, and societal implications as we navigate this exciting journey…
BG-20009 Everett Barndominium House Plan
- 1844 Heated square feet
- 3 bedrooms
- 2.1 bathrooms
- Single Story
- Open Concept
- 2400 sq ft garage
- Den
- Front porch
- Patio
- Efficiently designed with 1,844 square feet of heated living space, this home blends comfort and practicality without sacrificing style.
- Three well-appointed bedrooms offer restful retreats and flexible living—ideal for families, guests, or creative workspaces.
- Two full baths and a convenient powder room ensure smooth mornings and easy entertaining, with thoughtful finishes throughout.
- Enjoy the ease of single-level living, where every room is within reach and accessibility meets timeless design.
- The open-concept layout invites connection, with seamless transitions between kitchen, dining, and living areas—perfect for gatherings or quiet evenings in.
- A massive 2,400-square-foot garage offers more than parking—it’s a dream space for storage, projects, or a full-scale workshop.
- The dedicated den adds a layer of versatility—ideal for a home office, reading nook, or media lounge tailored to your lifestyle.
- A welcoming front porch sets the tone with classic charm, inviting neighbors, guests, and quiet moments in the fresh air.
- Step outside to a spacious patio designed for relaxation and entertaining—your private escape for morning coffee or evening gatherings.
#10
Discover the latest breakthroughs, ethical considerations, and societal implications as we navigate this exciting journey…
BG-20010 Monroe Barndominium House Plan
- 2030 Heated square feet
- 3 bedrooms
- 2 bathrooms
- Single Story
- Open Concept
- 1040 sq ft garage
- Laundry/Mechanical room
- Covered front & rear porch
- Carport
- A well-proportioned 2,030 square feet of climate-controlled living space offers room to stretch out, settle in, and make every square foot count.
- Three inviting bedrooms deliver comfort and flexibility—perfect for restful nights, creative pursuits, or welcoming guests with ease.
- Two full baths provide everyday convenience with thoughtful layouts and finishes that elevate the routine.
- Designed for simplicity and flow, this single-level layout eliminates stairs and maximizes accessibility across every corner of the home.
- An airy, integrated design connects kitchen, dining, and living areas—ideal for entertaining or enjoying quiet moments in a unified space.
- This oversized 1,040-square-foot garage offers ample room for vehicles, tools, and weekend projects—with space to spare for storage or tinkering. The added carport brings extra convenience and protection—ideal for additional parking, guest arrivals, or shielding your ride from the elements.
- A combined utility space keeps laundry and systems organized and out of sight—streamlining function without sacrificing form.
- Dual covered porches extend the living space outdoors, offering shaded spots to relax, greet guests, or enjoy the breeze from sunrise to sunset.
#9
Discover the latest breakthroughs, ethical considerations, and societal implications as we navigate this exciting journey…
BG-20011 Clayton Barndominium House Plan
- 1614 Heated Sq Ft
- 2 Bedrooms
- 2 Bathrooms
- Single story
- Open concept
- Covered front & rear porches
- 1519 Sq Ft garage
- A well-balanced 1,614 square feet of heated living space offers just the right blend of comfort and efficiency—ideal for those who value thoughtful design over excess.
- Two spacious bedrooms provide cozy retreats with room to personalize—whether you’re curating a restful sanctuary or a stylish guest suite.
- With two full baths, this home ensures smooth daily routines and private comfort, featuring smart layouts and quality finishes.
- All on one level, this layout delivers seamless flow and easy accessibility—perfect for relaxed living and aging in place.
- The open-concept design invites natural light and effortless movement, creating a welcoming atmosphere for both quiet evenings and lively gatherings.
- Dual covered porches extend your living space outdoors, offering shaded spots to unwind, entertain, or simply enjoy the changing light throughout the day.
- A generously sized 1,519-square-foot garage provides ample room for vehicles, tools, and stor
#8
Discover the latest breakthroughs, ethical considerations, and societal implications as we navigate this exciting journey…
BG-20001-B Preston Barndominium House Plan
- 3477 Heated square feet
- 4 bedrooms
- 3.2 bathrooms
- Two Story
- Loft
- Open Concept
- Den
- Covered porch
- Cathedral ceiling
- Mechanical closet
- 4006 sq ft attached garage
- This is the space you’ve been dreaming of! With 3477 square feet, you have plenty of room to live, work, and play without feeling cramped.
- Everyone gets their own sanctuary. Four cozy bedrooms offer the perfect escape for family and guests.
- No more waiting! Two bedrooms with full baths, one common full bath on the second floor, and two convenient powder rooms for quick trips.
- Enjoy the best of both worlds with a smart two-story layout that separates your living space from your sleeping quarters.
- This flexible loft space is ready for anything—a game room, a home office, or a quiet reading nook.
- Welcome to the heart of the home! The kitchen, dining, and living areas flow together seamlessly, so you’re never left out of the action.
- Need a quiet spot? The den is your personal hideaway for movie nights or catching up on work.
- Rain or shine, your covered porch is the perfect spot to relax with a cup of coffee and enjoy the view.
- More than just a garage, this shop is a massive space for your cars, toys, and all your projects.
#7
Discover the latest breakthroughs, ethical considerations, and societal implications as we navigate this exciting journey…
BG-20012 Marshall Barndominium House Plan
- 2738 Heated Sq Ft
- 2 Bedrooms
- 2.1 Bathrooms
- Two story
- Mechanical/Storage room
- Loft
- Attic
- Open concept
- Covered front porch
- 4000 Sq Ft garage
- A generous 2,738 square feet of climate-controlled living space offers room to stretch, breathe, and build a life that flows with ease—every corner designed for comfort and purpose.
- Two intimate retreats, each with its own rhythm—whether you’re chasing quiet mornings, creative bursts, or moonlit reflections, these rooms are ready to adapt to your story.
- Two spa-inspired full baths and a stylish half bath blend function with finesse—perfect for unwinding solo or hosting with grace.
- The upper level is more than a second story—it’s a multifunctional haven. A climate-controlled mechanical/storage room keeps life organized, while the loft invites creativity and the attic whispers of hidden potential, all seamlessly integrated into the home’s warm core.
- Walls melt away in this fluid layout, where kitchen, dining, and living spaces converge—inviting connection, conversation, and spontaneous celebration.
- Wraparound charm meets everyday utility—these covered porches offer shaded serenity, curbside charisma, and the perfect perch for morning rituals or twilight unwinding.
- A jaw-dropping 4,000 square foot garage and workshop hybrid—whether you’re restoring vintage cars, crafting masterpieces, or simply reveling in space to dream big, this is your playground.
#6
Discover the latest breakthroughs, ethical considerations, and societal implications as we navigate this exciting journey…
BG-20013 Lawson Barndominium House Plan
- 3043 Heated square feet
- 3 bedrooms
- 2.2 bathrooms
- Two Story
- Loft
- Open Concept
- Den
- 3874 sq ft Shop
- Covered Porches
- A spacious 3,043 square feet of climate-controlled living, designed to elevate everyday moments into something extraordinary—whether you’re hosting, relaxing, or creating.
- Three thoughtfully placed bedrooms offer a perfect balance of privacy and possibility—ideal for restful escapes, guest hospitality, or a personalized retreat.
- With two full baths and two powder rooms, this home makes mornings smoother, evenings more elegant, and entertaining effortless.
- A dynamic two-level design that invites movement, light, and layered living—where each floor tells its own story.
- The heart of the home beats with openness—where kitchen, dining, and living spaces blend seamlessly to foster connection and creativity.
- A cozy den tucked just right for quiet work, bold ideas, or curling up with a good book—your personal pocket of calm.
- A jaw-dropping 3,874 square foot shop space that’s more than utility—it’s a dream zone for makers, collectors, and visionaries who need room to build, store, and explore.
- Welcoming covered porches wrap the home in charm and comfort—perfect for morning coffee, golden hour gatherings, or watching the rain roll in.
#5
Discover the latest breakthroughs, ethical considerations, and societal implications as we navigate this exciting journey…
BG-20014 Bennett Barndominium House Plan
- 2937 Heated square feet
- 4 Bedrooms
- 4.1 Bathrooms
- Two Story
- Loft
- Balcony
- Open concept
- Mudroom
- Bonus room
- 1455 Sq Ft Shop
- Crawl Space Foundation
- Covered porch
- Nearly 3,000 square feet of refined, climate-controlled living space—designed to balance spaciousness with intimacy, and function with flair.
- Four beautifully appointed bedrooms offer flexibility for family, guests, or creative use—each one a canvas for comfort and personal style.
- With four full baths and a sleek powder room, this home delivers spa-like convenience and polished hospitality at every turn.
- A thoughtfully tiered two-story design invites natural light and layered living—where privacy and openness coexist in perfect rhythm.
- The upper level features a breezy loft and private balcony—ideal for morning reflections, evening stargazing, or a quiet escape above it all.
- The heart of the home pulses with openness—where culinary creativity, casual lounging, and lively conversation flow effortlessly together.
- A stylish transition zone that keeps the chaos at bay—perfect for stashing gear, shedding shoes, and staying organized without sacrificing charm.
- Tucked within the garage is a hidden gem—a bonus room ready to become your workshop, studio, or secret retreat.
- A sprawling 1,455 square foot shop space offers endless potential for makers, collectors, and dreamers—whether you’re building, restoring, or creating.
- The covered porch wraps the home in warmth and welcome—your front-row seat to golden hours, gentle rains, and neighborly hellos.
#4
Discover the latest breakthroughs, ethical considerations, and societal implications as we navigate this exciting journey…
BG-20015 Winslow Barndominium House Plan


- 2779 Heated square feet
- 4 bedrooms
- 3 bathrooms
- Two-Story
- Attic
- Open Concept
- 2100 sq ft garage
- Covered deck
- Covered Porch
- Covered patio
- Walkout basement
- A spacious 2,779 square feet of climate-controlled living, where every inch is designed to inspire—from sunlit mornings to cozy evenings.
- Four versatile bedrooms offer the perfect blend of privacy and possibility—whether you’re hosting guests, growing a family, or carving out creative space.
- Three thoughtfully designed bathrooms deliver comfort and convenience with a touch of elegance—no waiting, no compromise.
- A dynamic two-level layout that invites movement and light, creating distinct zones for gathering, relaxing, and retreating.
- The heart of the home flows effortlessly—where kitchen, dining, and living spaces connect in a seamless rhythm that encourages conversation and connection.
- A massive 2,100 square foot garage that’s more than storage—it’s a workshop, a gear haven, and a dream space for hobbyists and creatives alike.
- Elevated and sheltered, the covered deck offers a breezy perch for outdoor dining, sunset watching, or quiet reflection.
- A welcoming front porch that sets the tone for warmth and hospitality—perfect for morning coffee or neighborly chats.
- A shaded outdoor retreat that extends your living space—ideal for weekend lounging, alfresco meals, or evening unwinding.
- The walkout basement opens up to endless possibilities—whether it’s a game room, guest suite, or private escape with direct outdoor access.
#3
BG-20016 Thatcher Barndominium House Plan
- 1986 Heated square feet
- 3 bedrooms
- 2.2 bathrooms
- Two Story
- Loft
- Balcony
- Open Concept
- Mudroom with lockers
- Garage locker room and storage
- Mechanical closet
- 3874 sq ft Garage
- Covered Porch
- Nearly 2,000 square feet of thoughtfully heated living space—designed for comfort, flow, and the kind of everyday ease that feels anything but ordinary.
- Three inviting bedrooms offer a mix of privacy and personality—perfect for restful escapes, creative spaces, or welcoming guests with style.
- With two full baths and two powder rooms, this home keeps pace with busy mornings and elegant evenings—no waiting, no compromise.
- A smartly designed entry zone with built-in lockers—keeping clutter at bay and transitions smooth, whether you’re coming in from adventure or errands.
- Not just a garage—this space includes a dedicated locker room and storage area, built for gear, tools, and everything in between.
- A tucked-away loft above the garage offers bonus space for hobbies, storage, or a quiet creative retreat.
- A discreet and efficient hub for home systems—keeping the essentials organized and out of sight.
- A sprawling 3,874 square foot garage that’s more than utility—it’s a dream zone for makers, restorers, and visionaries who need room to build, tinker, and thrive.
- A shaded front porch that welcomes you home with timeless charm—perfect for slow mornings, golden hour chats, or watching the world roll by.
#2
Discover the latest breakthroughs, ethical considerations, and societal implications as we navigate this exciting journey…
BG-20017 Beckett Barndominium House Plan
- 6218 Heated square feet
- 5 Bedrooms
- 3.1 Bathrooms
- Two Story
- Loft
- Mudroom
- Den
- Office
- Bar
- Open concept
- Attached 1158 Sq Ft Shop
- RV Bay
- Garage Storage
- Covered porch/patio
- Outdoor Kitchen
- A sprawling 6,218 square feet of refined, climate-controlled living—crafted for those who crave space, style, and seamless luxury in every corner.
- Five distinct sanctuaries, each with its own personality—ready to host restful nights, creative mornings, and everything in between.
- Three full baths and a sleek powder room offer spa-like indulgence and effortless flow, whether you’re prepping for the day or winding down in style.
- Elevated and open, the loft invites imagination—perfect for a reading retreat, game zone, or a sunlit studio with a view.
- A stylish landing pad for life’s transitions—complete with built-ins and thoughtful design to keep the chaos contained and the charm intact.
- A cozy enclave for quiet moments, bold ideas, or binge-worthy nights—your personal pocket of calm tucked just off the main flow.
- A dedicated workspace that inspires focus and ambition—whether you’re leading meetings or sketching out your next big move.
- Entertain with flair in your own private bar—where happy hour meets high design and every pour feels like a celebration.
- A fluid layout that invites connection—where culinary creativity, casual lounging, and lively conversation unfold without boundaries.
- A fully integrated 1,158 square foot shop space—ideal for makers, restorers, or anyone who needs room to build, tinker, and thrive.
- A dedicated RV bay offers secure, spacious storage for your next adventure—because home should be your launchpad, not your limit.
- Thoughtfully designed garage storage keeps tools, gear, and seasonal essentials organized and out of sight—so your space stays as sharp as your lifestyle.
- Wraparound charm meets outdoor elegance—perfect for morning rituals, golden hour gatherings, or simply watching the world roll by.
- Cook under the stars in a fully equipped outdoor kitchen—where alfresco dining becomes a daily indulgence and entertaining knows no season.
#1
Discover the latest breakthroughs, ethical considerations, and societal implications as we navigate this exciting journey…
BG-20018 Landon Barndominium House Plan
- 1633 Heated square feet
- 3 bedrooms
- 2 bathrooms
- 1 Story
- Open Concept
- Mechanical closet
- Front porch/rear patio
- 1593 Sq Ft Garage
- A perfectly scaled 1,633 square feet of climate-controlled living—designed for effortless flow, cozy elegance, and just the right amount of breathing room.
- Three inviting bedrooms offer a balance of privacy and possibility—ideal for restful retreats, guest hospitality, or a home office with personality.
- Two well-appointed bathrooms blend comfort with style, making daily routines feel like quiet rituals of self-care.
- A single-level layout that lives large—no stairs, no fuss, just seamless transitions and grounded charm throughout.
- The heart of the home opens wide, connecting kitchen, dining, and living spaces in a layout that encourages conversation, creativity, and connection.
- A discreet utility hub that keeps the essentials tucked away—streamlining your space without sacrificing accessibility.
- From sunrise to starlight, enjoy outdoor living at both ends—whether you’re sipping coffee on the front porch or hosting dinner on the rear patio.
- A sprawling 1,593 square foot garage offers more than parking—it’s a workshop, gear haven, and storage sanctuary all in one.
Even More Barndominium Plans
Not finished browsing? Check out even more of our top barndominium plans:
PL-61703 Medfield Barndominium House Plan

- 2406 Heated square feet
- 4-5 bedrooms
- 3 bathrooms
- 1 Story
- Playroom
- Open Concept
- The Medfield barndominium house plan is 2406 heated square feet and 4-5 bedrooms with 3 full bathrooms.
- In the main living area of this house plan, you are welcomed with an open-concept design that creates a nice open spacious with plenty of room for friends and family to gather.
- The kitchen is large with a center island and pantry. The island is home to the sink so that you can be part of the conversation in the family room even while doing dishes.
- The master bedroom has plenty of room to relax and unwind. With an ensuite bathroom with a separate shower and tub, there is plenty of space for you and your partner to get ready in the mornings.
- With up to 4 additional secondary bedrooms there is plenty of room for everyone to spread out and enjoy some downtime after a long day. One of the additional bedrooms can act as a study or guest bedroom.
- The playroom is another great feature of this home that is located just off the kitchen allowing moms and dads to cook and still have an eye on the kids as they play.
- The laundry is quite large and has a nice-sized storage closet that is perfect for storing all your cleaning supplies so that the laundry room stays nice and tidy.
- You will find that this barndominium house plan has lots of storage throughout the home which is a huge plus.
- The Veranda is large and is the perfect place to sit and relax after a long day.
SV-5503-C Charlie Barndominium House Plan
- 1677 Heated square feet
- 2 Bedrooms
- 2.1 Bathrooms
- Open concept
- Single story
- Utility room
- Safe room
- Mudroom
- Covered porch
- Garage/shop
- Smartly sized at 1,677 square feet—designed for comfort, flow, and functional elegance.
- Two dreamy bedrooms tailored for restful nights and personalized escapes.
- Two full baths plus a sleek half bath—perfect for busy mornings and effortless entertaining.
- Breathe easy in this open layout where living, dining, and kitchen spaces connect seamlessly.
- Out of sight but never out of reach—this utility room keeps laundry day neat and efficient.
- Peace of mind built in—this reinforced safe room adds a layer of security without sacrificing style.
- Your front-line defense against the mess—this transitional mudroom keeps life tidy and organized.
- Sip, sit, and savor—this charming covered porch beckons for breezy afternoons and quiet evenings.
- More than a parking spot—this versatile garage/shop is a hobbyist’s haven and a storage dream.
LP-2807 Wescott Barndominium House Plans

- 1800 Heated square feet
- 4 bedrooms
- 3 bathrooms
- 2 Story
- Loft
- Open Concept
- The Wescott barndominium house plan is 1800 heated square feet and features 4 bedrooms and 3 bathrooms.
- The open-concept design allows for plenty of space for the family to mingle and interact with one another. The main areas of the home appear even larger thanks to the vaulted ceilings.
- The kitchen is large and spacious with a large island with ample counter space and a decent-sized pantry in the corner of the kitchen.
- This plan includes several windows to allow the natural light to flow throughout the home.
- The master bedroom is spacious with a large master bathroom, shower, and stand-alone tub. The double vanity allows the couple to get ready at the same time without bumping into one another. The master also offers a large walk-in closet.
- This house plan has 3 additional bedrooms all with a nice sized closet. One of the secondary bedrooms has a private bathroom attached. The remaining bedrooms share the additional bathroom located in the hall.
- Upstairs is a nice loft ready for a home office, playroom, or anything you desire.
- The Wescott barndominium house plan has both a front and back patio so there is plenty of room to enjoy the outdoors.
PL-71005 Vista Barndominium House Plan

- 4 Bedrooms
- 3.1 Bathrooms
- 3179 Heated Square Feet
- 2-story
- Loft
- Playroom
- Media room
- Mudroom
- Mechanical room
- Jack and Jill Bathrooms
- Attached 3-car garage
- Front porch
- Patio
- With an expansive 3,179 heated square feet, this two-story floor plan offers ample space for your family to grow and thrive.
- Enjoy the comfort and privacy of four generously sized bedrooms, including Jack and Jill bathrooms that provide convenience and elegance. The 3.1 bathrooms ensure there’s never a wait during busy mornings.
- The loft area is perfect for a cozy reading nook or home office, while the playroom offers a dedicated space for fun and creativity. The media room is designed for ultimate entertainment right at home.
- The mudroom is ideal for keeping your home tidy, and the mechanical room ensures your household systems are easily accessible. An attached 3-car garage offers ample parking and storage space for vehicles and outdoor gear.
- Relax on the inviting front porch or host gatherings on the stylish patio, making every moment spent outdoors special.
PL-71004 Alasio Barndominium House Plan

- 4 Bedrooms
- 3.1 Bathrooms
- 3887 Heated Square Feet
- 2-story
- Loft
- Mudroom
- Attached 3-car garage
- Front and back porch
- Office
- Fireplace
- Lounge
- 2 Jack and Jill Bathrooms
- Explore this beautifully designed 2-story barndominium, offering ample space for family and guests with a total of 3,887 heated square feet.
- The open-concept design seamlessly integrates the living, dining, and kitchen areas, making it ideal for daily living and entertaining. A cozy fireplace in the family room adds warmth and is a focal point for gatherings.
- This floor plan includes four spacious bedrooms, providing comfortable retreats for all family members and guests.
- The layout features a luxurious master bathroom and a well-appointed guest bathroom. With 3.1 bathrooms, including two Jack and Jill bathrooms, this home provides convenience and efficient use of space between bedrooms.
- A versatile loft area that can serve as an additional living space, playroom, or home gym.
- An attached 3-car garage offers ample space for vehicles, storage, and hobbies and the mudroom provides a practical entryway space, perfect for storing shoes, coats, and outdoor gear.
- Enjoy the outdoors with both front and back porches, perfect for relaxing, entertaining, or enjoying the fresh air.
- A dedicated office space for working from home, managing household tasks, or pursuing personal projects.
- A comfortable lounge area for relaxing, reading, or enjoying family time.
PL-2819 Hampton Barndominium House Plan


- 4918 Heated square feet
- 3 Bedrooms
- 3.1 Bathrooms
- 2-story
- Loft family/entertainment area
- Loft unfinished area
- Open concept
- Wraparound porch
- Mechanical room
- Mudroom
- 4-car attached Garage
- Nearly 5,000 square feet of finely crafted comfort—room to roam, entertain, and thrive without limits.
- Three spacious retreats, each its own private haven—designed for rest, romance, and a touch of indulgence.
- Every bedroom gets its own en-suite luxury, plus a powder room for guests—pure convenience meets elegant living.
- Game nights, movie marathons, and memory-making galore—plus extra loft space waiting for your creative touch.
- Wide, bright, and beautifully connected—this open-plan layout invites light, laughter, and seamless everyday living.
- Porch envy, activated—this wraparound stunner wraps your home in charm, sunshine, and endless outdoor moments.
- A quietly efficient hub—your home’s systems get the space they need without sacrificing aesthetics.
- Function meets finesse—this stylish drop zone keeps clutter at bay and your interiors pristine.
- Room for every ride, hobby, and weekend adventure—this oversized garage is a dream for car lovers and gearheads alike.
PL-2815 Travis Barndominium House Plan
- 2400 Heated square feet
- 40×60 living space dimension
- 3 Bedrooms
- 2 Bathrooms
- Single story
- Open concept
- Office
- Foyer
- Front porch
- Patio
- Deck
- Safe room
- Walkout basement
- 3-car attached garage
- Enjoy a perfectly balanced footprint offering 2,400 square feet of comfortably climate-controlled living space—roomy enough to stretch out, yet easy to maintain.
- With generous 40×60 dimensions, this home’s layout is designed for flow, flexibility, and functionality—ideal for entertaining and everyday living.
- Three well-appointed bedrooms offer restful retreats for family and guests alike—each thoughtfully placed for privacy, natural light, and comfort.
- Two full bathrooms bring both convenience and style, featuring modern fixtures and smart layouts for a smooth daily routine.
- No stairs, no hassle—this single-story, open-concept design delivers ease and accessibility, perfect for all stages of life.
- A dedicated home office provides a quiet, focused space for productivity—whether you’re working from home, tackling creative projects, or organizing life’s details.
- Step into a welcoming foyer that sets the tone with warmth and charm—a graceful transition from the outside world.
- The inviting front porch is more than curb appeal—it’s a breezy perch to sip coffee, greet neighbors, and enjoy golden hour views.
- Grill, gather, or unwind beneath the stars on your private patio—perfectly positioned for alfresco dining and outdoor living.
- A spacious deck extends your living space under open skies—a natural haven for morning routines or twilight conversation.
- Discreetly built for peace of mind, the safe room offers reinforced protection without sacrificing style or convenience.
- A seamless blend of indoor comfort and outdoor connection, the walkout basement extends your living space with direct access to the backyard. Whether transformed into a private retreat, entertainment hub, or guest quarters, its versatility adds value and functionality to your home.
PL-64013 Gibbons Barndominium House Plan
- 2000 Heated Sq Ft
- 4 Bedrooms
- 2 Bathrooms
- Storage spaces
- Mechanical room/Laundry room
- Open concept
- Single-story
- Front and back porch
- Spacious 2,000 heated sq ft with room to stretch, entertain, and relax in style.
- 4 bedrooms designed with comfort and privacy in mind—perfect for families or guests.
- 2 modern and functional bathrooms with plenty of space to start your day right.
- Never worry about clutter—dedicated storage keeps everything organized.
- Mechanical Room/Laundry Room: All your utilities and laundry needs neatly tucked away for maximum efficiency.
- Seamless flow from the living area to the kitchen—ideal for gatherings and everyday living in a single-story layout.
- Enjoy morning coffee out front and sunset views out back—your new favorite spots to unwind.
PL-69197 Bexley Barndominium House Plan
- 2683 Heated Sq Ft
- 4 Bedrooms
- 3 Bathrooms
- Laundry room
- Mudroom
- Open concept
- Two-story
- Loft Style
- 1432 Sq Ft Garage
- Front and back porch
- This two-story floor plan offers an impressive 2683 square feet of heated living space. The design also includes a substantial 1432-square-foot garage, perfect for housing vehicles, storage, or a workshop.
- This plan features four bedrooms, three of which are conveniently located on the main floor, and a guest bedroom on the second floor. Each bedroom, including the master and guest bedrooms, has its own private bathroom. Additionally, there is a shared bathroom on the main floor, making this design both practical and accommodating for a variety of living arrangements.
- A loft-style floor plan that features an open concept main floor. As you enter the house from the garage, you are greeted by a practical mudroom, perfect for storing outdoor gear and keeping the rest of the home clean. Conveniently, this mudroom is also linked to the laundry room, making it easy to manage household chores.
- This floor plan features a charming front porch, providing a warm welcome to visitors. At the rear of the house, a spacious back patio offers ample room for outdoor dining, relaxation, or entertaining. Whether you’re greeting neighbors at the front door or enjoying a backyard barbecue, this floor plan caters to a lifestyle that appreciates both community connection and private leisure.
PL-82001 Fowler Barndominium House Plan

- 5792 heated Square Feet
- 6 Bedrooms
- 4.2 Bathrooms
- 2 Story
- Open Concept
- Hobby room
- Game/media room
- Sitting area
- Playroom
- Front & rear porch
- 2-car detached garage
- Luxuriate in nearly 5,800 square feet of impeccably designed, temperature-controlled living—every square foot crafted for comfort, elegance, and unforgettable gatherings.
- Six inviting bedrooms promise restful retreats for every family member or guest—each one a private sanctuary with space to breathe, unwind, and dream.
- With four full baths and two stylish powder rooms, convenience meets sophistication—ensuring seamless mornings and elegant hosting for any occasion.
- Thoughtfully arranged across two expansive levels, this layout balances togetherness and personal space—ideal for vibrant entertaining below and tranquil escapes above.
- From airy conversations in the kitchen to effortless entertaining in the great room, the open-concept design flows with natural light and modern sophistication.
- Whether it’s painting, crafting, or perfecting your next passion project, the hobby room offers a creative corner tailored for inspiration and focus.
- Movie marathons, game nights, or immersive binge sessions—the dedicated game/media room delivers cinematic comfort and lively fun for all ages.
- A quiet sitting area beckons for reflective mornings, casual reading, or warm, intimate conversations with a cup in hand and sunlight streaming in.
- Let imaginations run wild in a bright, cheerful playroom designed for kids to explore, create, and grow in their own lively little world.
- From sunrise coffees on the welcoming front porch to serene sunsets out back, these dual outdoor spaces invite connection with nature and neighbors alike.
- The detached two-car garage adds both function and charm—perfect for vehicle storage, gear organization, or converting into a workshop or studio.
AP-20003-FB Franklin Barndominium House Plan
- 2000 Heated Square Feet
- 2 Bedrooms
- 2.1 Bathrooms
- Three-story layout
- Open-concept
- Mudroom
- Unfinished Basement
- 1200 SF 3-Car garage
- Storage loft
- Wraparound porch
- 2000 Heated Square Feet – Just the right size: spacious, efficient, and easy to manage.
- 2 Bedrooms – Roomy and private with space to unwind or host.
- 2.1 Bathrooms – Two full baths plus a powder room for guests.
- Three-story layout – Vertical living with separation, style, and stunning views.
- Open-concept – Airy, seamless flow from kitchen to living and dining.
- Mudroom – Keep the mess at the door—every country home’s secret weapon.
- Unfinished Basement – Blank canvas for a home gym, media room, or workshop.
- 1200 SF 3-Car Garage – Massive garage space for vehicles, toys, and projects.
- Storage Loft – Bonus overhead space to stash seasonal stuff or gear.
- Wraparound Porch – Classic charm meets outdoor living, all the way around.
CDD-4102 Ridge Barndominium House Plan
- 2400 Heated Sq Ft
- 3 Bedrooms
- 2.1 Bathrooms
- Single story
- Open concept
- Office
- Mechanical room
- Mudroom
- Front & Rear porch
- A perfectly balanced living space, offering ample room to breathe, grow, and enjoy, all while maintaining a cozy and manageable footprint.
- Three versatile retreats await—whether for restful nights, creative pursuits, or welcoming family and guests, these rooms are designed with comfort and function in mind.
- Two full bathrooms for your daily routines, plus a convenient half-bath for guests—style and practicality combine effortlessly.
- A seamless and accessible layout on a single level, perfect for ease of movement and a timeless, grounded design.
- An expansive flow of living, dining, and kitchen spaces that encourages connection, natural light, and effortless entertaining.
- Dedicated workspace to inspire productivity and focus, tucked away for privacy while still being part of the home.
- The unsung hero of functionality—a space devoted to housing your home’s essential systems, out of sight but not out of mind.
- Your buffer between the outdoors and your living space, ideal for stowing away shoes, coats, and the chaos of daily life.
- Dual outdoor living spaces, where you can greet neighbors out front or savor a quiet sunset in the back—perfect for year-round enjoyment.
Barndominium FAQs
You will need to have barndominium floor plans to build your barndominium. These are required for planning, loans, and budgeting your project. When you use barndominium floor plans that we already have it makes it cheaper and easier to start the building and financing.
Barndominium floor plans can help with
- Building
- Pricing
- Financing
- Interior finishes
- Permits
- and more
Can barndominium floor plans be altered?
Yes, you can use any barndominium floor plan as a great starting point to help your barndominium build come to life. If you have things you would like different a barndominium architect can help you make your dream barndo become a reality.
Get the Barndominium Life Program for step-by-step guidance on how to make your dream barndominium a reality! We’ll provide you with information and lots of inspiration about floor plans and how to build your barndominiums on time and under budget!














































