
BG-20015 Winslow Barndominium House Plan
Want to buy this house plan? Scroll to the bottom and find the link to purchase.
About this barndominium house plan:
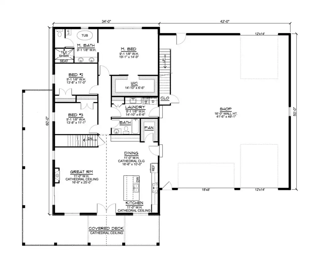
- 2779 Heated square feet
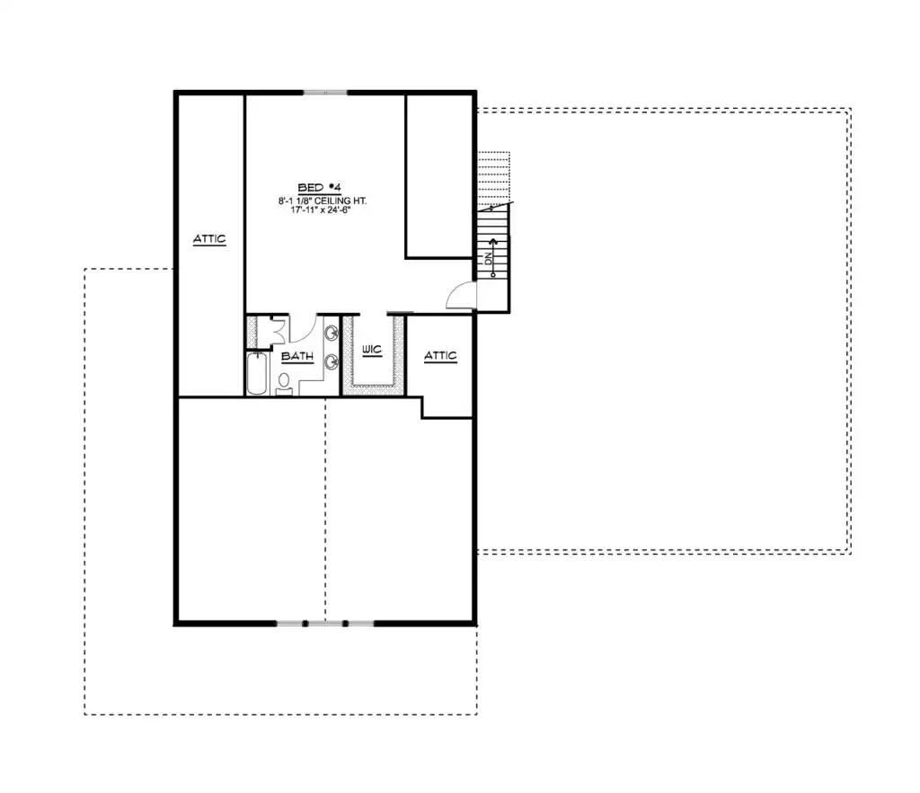
- 4 bedrooms
- 3 bathrooms
- Two-Story
- Attic
- Open Concept
- 2100 sq ft garage
- Covered deck
- Covered Porch
- Covered patio
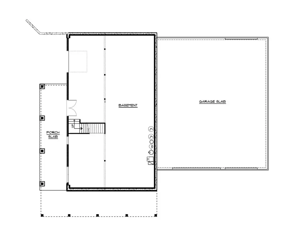
- Walkout basement
- A spacious 2,779 square feet of climate-controlled living, where every inch is designed to inspire—from sunlit mornings to cozy evenings.
- Four versatile bedrooms offer the perfect blend of privacy and possibility—whether you’re hosting guests, growing a family, or carving out creative space.
- Three thoughtfully designed bathrooms deliver comfort and convenience with a touch of elegance—no waiting, no compromise.
- A dynamic two-level layout that invites movement and light, creating distinct zones for gathering, relaxing, and retreating.
- The heart of the home flows effortlessly—where kitchen, dining, and living spaces connect in a seamless rhythm that encourages conversation and connection.
- A massive 2,100 square foot garage that’s more than storage—it’s a workshop, a gear haven, and a dream space for hobbyists and creatives alike.
- Elevated and sheltered, the covered deck offers a breezy perch for outdoor dining, sunset watching, or quiet reflection.
- A welcoming front porch that sets the tone for warmth and hospitality—perfect for morning coffee or neighborly chats.
- A shaded outdoor retreat that extends your living space—ideal for weekend lounging, alfresco meals, or evening unwinding.
- The walkout basement opens up to endless possibilities—whether it’s a game room, guest suite, or private escape with direct outdoor access.
What’s included in BG-20015:
Cover Sheet
Four Elevations (Front, Back, Left Side, Right Side)
Roof Plan
Dimensioned Floor Plan
Foundation Plan
Wall Sections
Electrical Plans
For more barndominium floor plans, check out our complete collection of 4-bedroom barndominium floor plans.
Need to make changes? Submit a modification request using the button that says Modify This Plan (below the Add To Cart Button). We will get you a free price quote within 72 hours
Please note all square footage are estimates.








Find More Barndominium Floor Plans
By Bedrooms:
1 Bedroom • 2 Bedrooms • 3 Bedrooms • 4 Bedrooms • 5 Bedrooms • 6 Bedrooms • 7 Bedrooms • 8 Bedrooms
By Feature:
1-Story • 2-Story • With Garage • 2 Car Garage • 3 Car Garage • Wraparound Porch • With Breezeway • 2 Master Suites • With Loft • Multi-Family Barndominiums • Open-Concept • With Shop
By Size:
Small Plans • 800 Sq Ft • 900 Sq Ft • 1000 Sq Ft • 1200 Sq Ft • 30×40 Floor Plans • 1400 Sq Ft • 1500 Sq Ft • 1600 Sq Ft • 40×40 Floor Plans • 1800 Sq Ft • 30×60 Floor Plans • 2000 Sq Ft • 2400 Sq Ft • 2500 Sq Ft • 2800 Sq Ft • 3000 Sq Ft • 3200 Sq Ft • 3600 Sq Ft • 4000 Sq Ft • 5000 Sq Ft •

