Finding the perfect barndominium floor plan can be hard when you are trying to find the one that fits your family’s needs the best! If you are tired of searching then look no further because we are showcasing our favorite (and our buyers and reader’s favorite) new barndominium floor plans. We promise you are going to love them!
For custom-designed floor plans, or to modify an existing floor plan, be sure to visit https://barndominiumplans.com.
Barndominiums offer a new and affordable way to design the home of your dreams. And because of their rustic, airy open style, they can also be used as a vacation home to be passed down for generations to come. They also hold their value, so they also provide a good return on investment (ROI).
Page Contents
Best New Barndominium Floor Plans
These top new barndominium floor plans will have you swooning with excitement! Be sure to tell us which one you love the most!
#12
Discover the latest breakthroughs, ethical considerations, and societal implications as we navigate this exciting journey…
BCO-40002-M Barndominium House Plan
- The home includes two primary suites, Master Bedroom 1 and Master Bedroom 2, both measuring a generous 15′-0″ x 14′-0″.
- In addition to the dual master suites, there is a third bedroom measuring 11′-0″ x 12′-2″ located at the rear of the house.
- The design prioritizes utility with a large 17′-0″ x 8′-9″ laundry room and an expansive 60′-0″ x 13′-0″ front porch for outdoor living.
- Storage is a highlight of the plan, boasting three walk-in master closets and a dedicated pantry situated right off the kitchen.
- The open-concept kitchen serves as the heart of the home, equipped with a central island and over 21 feet of counter space.
#11
Discover the latest breakthroughs, ethical considerations, and societal implications as we navigate this exciting journey…
BCO-40020-M Barndominium House Plan
- The main level features a massive open-concept living and dining area measuring roughly 18’10” x 30′, seamlessly connected to a large kitchen with a dedicated 8’4″ x 4’4″ pantry.
- For privacy and comfort, the plan includes three bedrooms, highlighted by two master suites, with Master Bedroom 2 offering a generous 18′ x 13′ footprint.
- Practicality is a priority with a dedicated 12′ x 10′ office and a separate laundry room located conveniently near the garage entrance.
- Outdoor living is expansive, boasting a 70′ x 8′ front porch and a rear porch/patio area that wraps around the back of the home.
- The upper level adds versatility with a 25’7″ x 14’2″ loft flanked by two large attic spaces for ample storage.
#10
Discover the latest breakthroughs, ethical considerations, and societal implications as we navigate this exciting journey…
BCO-40066 Barndominium House Plan

- 2800 heated square feet
- 70×40 layout with a large front porch running the full width of the home
- 4 bedrooms (including two full master suites)
- 3 bathrooms total
- Single story
- Open-concept living, dining, and kitchen
- Vaulted ceilings throughout main living areas
- Spacious utility room with dedicated washer/dryer space
- Large front porch (700 sq ft) for outdoor living
- Ideal for families, shared living, or long-term guests
#9
Discover the latest breakthroughs, ethical considerations, and societal implications as we navigate this exciting journey…
BCO-40073 Barndominium House Plan
- 2800 Heated square feet
- 3 bedrooms
- 3 bathrooms
- Single Story
- Open Concept
- Front porch
- Spacious and thoughtfully designed, this single-story home offers 2,800 square feet of climate-controlled living—perfect for those who crave room to relax, entertain, and grow.
- Three generously sized bedrooms provide peaceful retreats, each with ample natural light and privacy—ideal for families, guests, or a dedicated home office.
- Three full bathrooms ensure comfort and convenience, with stylish finishes and smart layouts that support both daily routines and effortless hosting.
- Enjoy the ease of single-level living—no stairs, just seamless flow and accessibility throughout, ideal for all ages and lifestyles.
- A welcoming front porch sets the tone for relaxed living—ideal for morning coffee, evening chats, or simply enjoying the view with timeless charm.
#8
Discover the latest breakthroughs, ethical considerations, and societal implications as we navigate this exciting journey…
BCO-40078-M Barndominium House Plan
- This expansive single-story barndominium features a massive 20′-2″ x 23′-3″ central living area that flows seamlessly into a dedicated dining space and a gourmet kitchen.
- The home is designed with dual primary suites, including Master Bedroom 1 at 16′-0″ x 15′-2″ and Master Bedroom 2 at 14′-0″ x 16′-0″, both equipped with private luxury baths and walk-in closets.
- Additional accommodations include two more bedrooms and a dedicated 9′-7″ x 10′-0″ office space, providing ample room for a growing family or a home-based business.
- Practicality is a priority, evidenced by the inclusion of a large walk-in pantry and a 13′-0″ x 5′-9″ laundry room located conveniently near the rear entrance.
- Outdoor living is highlighted by a grand 50′-0″ x 7′-0″ front porch, perfect for relaxing and enjoying the surrounding landscape.
#7
Discover the latest breakthroughs, ethical considerations, and societal implications as we navigate this exciting journey…
BCO-40093-M Barndominium House Plan
- This single-story home features two identical master suites, each measuring 16′-0″ x 14′-0″ and equipped with private luxury baths and walk-in closets.
- The heart of the home is a massive shared living and dining area spanning 26′-2″ x 29′-4″ (combined), which flows directly into a spacious 25′-3″ x 9′-8″ kitchen.
- A third bedroom, measuring 11′-6″ x 13′-2″, is located in the rear corner and has easy access to a full guest bathroom.
- Practical needs are met with a substantial 16′-0″ x 13′-2″ laundry and utility room that includes a dedicated 7′-0″ x 4′-0″ walk-in pantry.
- The exterior includes a welcoming 20′-0″ x 10′-0″ front porch and an attached 19′-7″ x 25′-0″ garage for convenience.
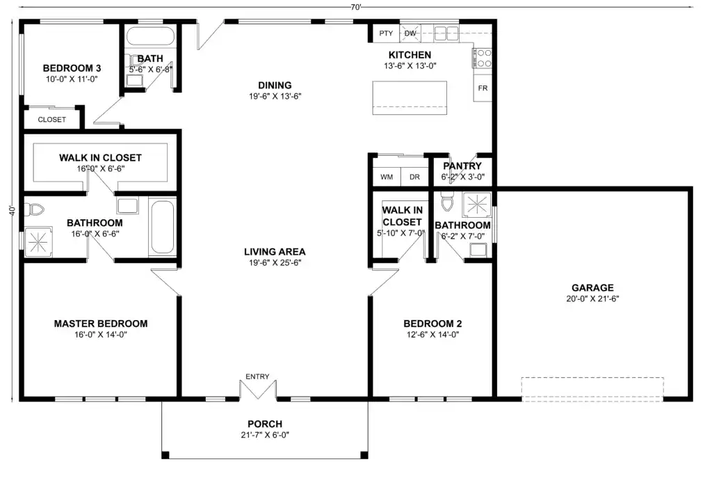
#6
Discover the latest breakthroughs, ethical considerations, and societal implications as we navigate this exciting journey…
BCO-40094-M Barndominium House Plan
- This 2,000 square foot floor plan offers a spacious and functional layout, providing a perfect blend of style and efficiency within a 50′ x 40′ footprint.
- The home features a private master bedroom (16′ x 14′) with an attached bathroom (16′ x 6′-6″) and a spacious walk-in closet (16′ x 8′-6″), offering a serene retreat.
- The two additional bedrooms (12′-8″ x 14′ and 10′ x 11′) provide ideal accommodations for guests or family.
- The heart of the home is the open living area (19′-8″ x 25′-8″) and dining space (19′-6″ x 13′-6″) which flows into a functional kitchen (13′-8″ x 13′), perfect for entertaining.
- The design also includes a large 20′ x 21′-6″ garage, a pantry (6′-2″ x 3′), and a welcoming 21′-7″ x 6′ porch, making this plan a perfect blend of style, function, and storage.
#5
BCO-40098 Barndominium House Plan
- 2,050 Heated Sq Ft
- 3 bedrooms
- 3 bathrooms
- Single Story
- Open Concept
- Front & rear porch
- A well-balanced single-level layout offering over 2,000 square feet of conditioned space—designed for comfort, privacy, and everyday ease.
- Three bedrooms are thoughtfully positioned to support privacy and flexibility—ideal for families, guests, or multi-use living.
- The central living, dining, and kitchen zones flow seamlessly—perfect for entertaining, multitasking, or relaxed daily rhythm.
- Covered outdoor zones at both ends of the home offer breezy transitions and shaded spaces for lounging, greeting, or gathering.
#4
Discover the latest breakthroughs, ethical considerations, and societal implications as we navigate this exciting journey…
BCO-40132-M Barndominium House Plan
- The home features a massive central open-concept core, combining a 20′-0″ x 17′-0″ living area, a dedicated dining space, and a large U-shaped kitchen.
- Two primary suites anchor opposite sides of the home, with Master Bedroom 1 measuring 13′-9″ x 16′-0″ and Master Bedroom 2 measuring 16′-0″ x 14′-0″.
- In addition to the dual master suites, the plan includes two secondary bedrooms (Bedroom 3 and Bedroom 4) situated on the right wing of the house.
- The functional utility wing includes a generous 16′-0″ x 13′-2″ laundry and utility room, providing ample space for chores and storage.
- Outdoor living is prioritized with a sprawling 50′-0″ x 8′-0″ front porch that stretches across nearly the entire face of the home.
#3
Discover the latest breakthroughs, ethical considerations, and societal implications as we navigate this exciting journey…
BCO-40141-M Barndominium House Plan
- This floor plan offers a symmetrical and functional layout, featuring a spacious central living area that flows seamlessly into an 18′-0″ x 9′-0″ dining space and a well-appointed kitchen.
- The design boasts a dual-primary suite arrangement, with both Master Bedroom 1 and Master Bedroom 2 measuring a generous 15′-1″ x 15′-0″.
- In addition to the two primary suites, there is a third bedroom measuring 11′-0″ x 11′-0″, perfect for guests or a home office.
- The upper level provides a massive 18′-0″ x 20′-7″ loft that overlooks the living area, adding a sense of volume and versatile extra living space.
- Practicality is prioritized with a large 15′-1″ x 10′-0″ laundry and utility room, alongside a charming 20′-0″ x 5′-0″ front porch for outdoor relaxation.
#2
Discover the latest breakthroughs, ethical considerations, and societal implications as we navigate this exciting journey…
BCO-40163-M Barndominium House Plan
- The home features a unique dual-primary suite configuration, with Master Bedroom 1 offering a generous 16′-0″ x 14′-0″ layout and Master Bedroom 2 providing a comfortable 13′-0″ x 15′-0″ space.
- Storage is a priority in this design, showcased by two large walk-in closets, including Master Closet 1 at 6′-9″ x 11′-0″ and a dedicated 5′-0″ x 5′-0″ walk-in pantry in the kitchen.
- The kitchen is well-equipped for hosting, featuring a central island and dimensions of 9′-0″ x 14′-7″ that flow seamlessly into the main living quarters.
- Outdoor living is maximized with two distinct areas: a deep 30′-0″ x 8′-0″ front porch and a private 9′-5″ x 24′-0″ covered side porch.
- In addition to the primary suites, the plan includes a third versatile 11′-0″ x 13′-2″ bedroom and a centralized laundry room for maximum convenience.
#1
Discover the latest breakthroughs, ethical considerations, and societal implications as we navigate this exciting journey…
BCO-40166 Barndominium House Plan
- This impressive two-story floor plan offers a total of 2,987 sq. ft. of heated living space with four bedrooms and three full bathrooms.
- The Lower Level features a massive open living space connecting the Living area (14′-6″ x 20′-7″), Dining area (21′-6″ x 12′-0″), and Kitchen (11′-1″ x 12′-0″).
- The Master Bedroom (15′-1″ x 14′-2″) and Bedroom 2 (11′-4″ x 12′-2″) are also on the main floor, each with direct access to a full bath.
- The Upper Level includes two additional bedrooms (Bedroom 3 at 13′-4″ x 11′-6″ and Bedroom 4 at 15′-1″ x 11′-9″) which share a full bath (11′-6″ x 7′-7″).
- A large Loft area (21′-6″ x 23′-2″) on the second floor is open to the Living area below, providing a flexible secondary gathering space.
Even More Barndominium Plans
Not finished browsing? Check out even more of our top barndominium plans:
PL-61703 Medfield Barndominium House Plan


- 2400 Heated square feet
- 4-5 bedrooms
- 3 bathrooms
- 1 Story
- Playroom
- Open Concept
- The Medfield barndominium house plan is 2406 heated square feet and 4-5 bedrooms with 3 full bathrooms.
- In the main living area of this house plan, you are welcomed with an open-concept design that creates a nice open spacious with plenty of room for friends and family to gather.
- The kitchen is large with a center island and pantry. The island is home to the sink so that you can be part of the conversation in the family room even while doing dishes.
- The master bedroom has plenty of room to relax and unwind. With an ensuite bathroom with a separate shower and tub, there is plenty of space for you and your partner to get ready in the mornings.
- With up to 4 additional secondary bedrooms there is plenty of room for everyone to spread out and enjoy some downtime after a long day. One of the additional bedrooms can act as a study or guest bedroom.
- The playroom is another great feature of this home that is located just off the kitchen allowing moms and dads to cook and still have an eye on the kids as they play.
- The laundry is quite large and has a nice-sized storage closet that is perfect for storing all your cleaning supplies so that the laundry room stays nice and tidy.
- You will find that this barndominium house plan has lots of storage throughout the home which is a huge plus.
- The Veranda is large and is the perfect place to sit and relax after a long day.
SV-5503-C Charlie Barndominium House Plan
- 1677 Heated square feet
- 2 Bedrooms
- 2.1 Bathrooms
- Open concept
- Single story
- Utility room
- Safe room
- Mudroom
- Covered porch
- Garage/shop
- Smartly sized at 1,677 square feet—designed for comfort, flow, and functional elegance.
- Two dreamy bedrooms tailored for restful nights and personalized escapes.
- Two full baths plus a sleek half bath—perfect for busy mornings and effortless entertaining.
- Breathe easy in this open layout where living, dining, and kitchen spaces connect seamlessly.
- Out of sight but never out of reach—this utility room keeps laundry day neat and efficient.
- Peace of mind built in—this reinforced safe room adds a layer of security without sacrificing style.
- Your front-line defense against the mess—this transitional mudroom keeps life tidy and organized.
- Sip, sit, and savor—this charming covered porch beckons for breezy afternoons and quiet evenings.
- More than a parking spot—this versatile garage/shop is a hobbyist’s haven and a storage dream.
LP-2807 Wescott Barndominium House Plans

- 1800 Heated square feet
- 4 bedrooms
- 3 bathrooms
- 2 Story
- Loft
- Open Concept
- The Wescott barndominium house plan is 1800 heated square feet and features 4 bedrooms and 3 bathrooms.
- The open-concept design allows for plenty of space for the family to mingle and interact with one another. The main areas of the home appear even larger thanks to the vaulted ceilings.
- The kitchen is large and spacious with a large island with ample counter space and a decent-sized pantry in the corner of the kitchen.
- This plan includes several windows to allow the natural light to flow throughout the home.
- The master bedroom is spacious with a large master bathroom, shower, and stand-alone tub. The double vanity allows the couple to get ready at the same time without bumping into one another. The master also offers a large walk-in closet.
- This house plan has 3 additional bedrooms all with a nice sized closet. One of the secondary bedrooms has a private bathroom attached. The remaining bedrooms share the additional bathroom located in the hall.
- Upstairs is a nice loft ready for a home office, playroom, or anything you desire.
- The Wescott barndominium house plan has both a front and back patio so there is plenty of room to enjoy the outdoors.
PL-71005 Vista Barndominium House Plan

- 4 Bedrooms
- 3.1 Bathrooms
- 3179 Heated Square Feet
- 2-story
- Loft
- Playroom
- Media room
- Mudroom
- Mechanical room
- Jack and Jill Bathrooms
- Attached 3-car garage
- Front porch
- Patio
- With an expansive 3,179 heated square feet, this two-story floor plan offers ample space for your family to grow and thrive.
- Enjoy the comfort and privacy of four generously sized bedrooms, including Jack and Jill bathrooms that provide convenience and elegance. The 3.1 bathrooms ensure there’s never a wait during busy mornings.
- The loft area is perfect for a cozy reading nook or home office, while the playroom offers a dedicated space for fun and creativity. The media room is designed for ultimate entertainment right at home.
- The mudroom is ideal for keeping your home tidy, and the mechanical room ensures your household systems are easily accessible. An attached 3-car garage offers ample parking and storage space for vehicles and outdoor gear.
- Relax on the inviting front porch or host gatherings on the stylish patio, making every moment spent outdoors special.
PL-71004 Alasio Barndominium House Plan

- 4 Bedrooms
- 3.1 Bathrooms
- 3887 Heated Square Feet
- 2-story
- Loft
- Mudroom
- Attached 3-car garage
- Front and back porch
- Office
- Fireplace
- Lounge
- 2 Jack and Jill Bathrooms
- Explore this beautifully designed 2-story barndominium, offering ample space for family and guests with a total of 3,887 heated square feet.
- The open-concept design seamlessly integrates the living, dining, and kitchen areas, making it ideal for daily living and entertaining. A cozy fireplace in the family room adds warmth and is a focal point for gatherings.
- This floor plan includes four spacious bedrooms, providing comfortable retreats for all family members and guests.
- The layout features a luxurious master bathroom and a well-appointed guest bathroom. With 3.1 bathrooms, including two Jack and Jill bathrooms, this home provides convenience and efficient use of space between bedrooms.
- A versatile loft area that can serve as an additional living space, playroom, or home gym.
- An attached 3-car garage offers ample space for vehicles, storage, and hobbies and the mudroom provides a practical entryway space, perfect for storing shoes, coats, and outdoor gear.
- Enjoy the outdoors with both front and back porches, perfect for relaxing, entertaining, or enjoying the fresh air.
- A dedicated office space for working from home, managing household tasks, or pursuing personal projects.
- A comfortable lounge area for relaxing, reading, or enjoying family time.
PL-2819 Hampton Barndominium House Plan


- 4918 Heated square feet
- 3 Bedrooms
- 3.1 Bathrooms
- 2-story
- Loft family/entertainment area
- Loft unfinished area
- Open concept
- Wraparound porch
- Mechanical room
- Mudroom
- 4-car attached Garage
- Nearly 5,000 square feet of finely crafted comfort—room to roam, entertain, and thrive without limits.
- Three spacious retreats, each its own private haven—designed for rest, romance, and a touch of indulgence.
- Every bedroom gets its own en-suite luxury, plus a powder room for guests—pure convenience meets elegant living.
- Game nights, movie marathons, and memory-making galore—plus extra loft space waiting for your creative touch.
- Wide, bright, and beautifully connected—this open-plan layout invites light, laughter, and seamless everyday living.
- Porch envy, activated—this wraparound stunner wraps your home in charm, sunshine, and endless outdoor moments.
- A quietly efficient hub—your home’s systems get the space they need without sacrificing aesthetics.
- Function meets finesse—this stylish drop zone keeps clutter at bay and your interiors pristine.
- Room for every ride, hobby, and weekend adventure—this oversized garage is a dream for car lovers and gearheads alike.
PL-2815 Travis Barndominium House Plan
- 2400 Heated square feet
- 40×60 living space dimension
- 3 Bedrooms
- 2 Bathrooms
- Single story
- Open concept
- Office
- Foyer
- Front porch
- Patio
- Deck
- Safe room
- Walkout basement
- 3-car attached garage
- Enjoy a perfectly balanced footprint offering 2,400 square feet of comfortably climate-controlled living space—roomy enough to stretch out, yet easy to maintain.
- With generous 40×60 dimensions, this home’s layout is designed for flow, flexibility, and functionality—ideal for entertaining and everyday living.
- Three well-appointed bedrooms offer restful retreats for family and guests alike—each thoughtfully placed for privacy, natural light, and comfort.
- Two full bathrooms bring both convenience and style, featuring modern fixtures and smart layouts for a smooth daily routine.
- No stairs, no hassle—this single-story, open-concept design delivers ease and accessibility, perfect for all stages of life.
- A dedicated home office provides a quiet, focused space for productivity—whether you’re working from home, tackling creative projects, or organizing life’s details.
- Step into a welcoming foyer that sets the tone with warmth and charm—a graceful transition from the outside world.
- The inviting front porch is more than curb appeal—it’s a breezy perch to sip coffee, greet neighbors, and enjoy golden hour views.
- Grill, gather, or unwind beneath the stars on your private patio—perfectly positioned for alfresco dining and outdoor living.
- A spacious deck extends your living space under open skies—a natural haven for morning routines or twilight conversation.
- Discreetly built for peace of mind, the safe room offers reinforced protection without sacrificing style or convenience.
- A seamless blend of indoor comfort and outdoor connection, the walkout basement extends your living space with direct access to the backyard. Whether transformed into a private retreat, entertainment hub, or guest quarters, its versatility adds value and functionality to your home.
PL-64013 Gibbons Barndominium House Plan
- 2000 Heated Sq Ft
- 4 Bedrooms
- 2 Bathrooms
- Storage spaces
- Mechanical room/Laundry room
- Open concept
- Single-story
- Front and back porch
- Spacious 2,000 heated sq ft with room to stretch, entertain, and relax in style.
- 4 bedrooms designed with comfort and privacy in mind—perfect for families or guests.
- 2 modern and functional bathrooms with plenty of space to start your day right.
- Never worry about clutter—dedicated storage keeps everything organized.
- Mechanical Room/Laundry Room: All your utilities and laundry needs neatly tucked away for maximum efficiency.
- Seamless flow from the living area to the kitchen—ideal for gatherings and everyday living in a single-story layout.
- Enjoy morning coffee out front and sunset views out back—your new favorite spots to unwind.
PL-69197 Bexley Barndominium House Plan
- 2683 Heated Sq Ft
- 4 Bedrooms
- 3 Bathrooms
- Laundry room
- Mudroom
- Open concept
- Two-story
- Loft Style
- 1432 Sq Ft Garage
- Front and back porch
- This two-story floor plan offers an impressive 2683 square feet of heated living space. The design also includes a substantial 1432-square-foot garage, perfect for housing vehicles, storage, or a workshop.
- This plan features four bedrooms, three of which are conveniently located on the main floor, and a guest bedroom on the second floor. Each bedroom, including the master and guest bedrooms, has its own private bathroom. Additionally, there is a shared bathroom on the main floor, making this design both practical and accommodating for a variety of living arrangements.
- A loft-style floor plan that features an open concept main floor. As you enter the house from the garage, you are greeted by a practical mudroom, perfect for storing outdoor gear and keeping the rest of the home clean. Conveniently, this mudroom is also linked to the laundry room, making it easy to manage household chores.
- This floor plan features a charming front porch, providing a warm welcome to visitors. At the rear of the house, a spacious back patio offers ample room for outdoor dining, relaxation, or entertaining. Whether you’re greeting neighbors at the front door or enjoying a backyard barbecue, this floor plan caters to a lifestyle that appreciates both community connection and private leisure.
PL-82001 Fowler Barndominium House Plan

- 5792 heated Square Feet
- 6 Bedrooms
- 4.2 Bathrooms
- 2 Story
- Open Concept
- Hobby room
- Game/media room
- Sitting area
- Playroom
- Front & rear porch
- 2-car detached garage
- Luxuriate in nearly 5,800 square feet of impeccably designed, temperature-controlled living—every square foot crafted for comfort, elegance, and unforgettable gatherings.
- Six inviting bedrooms promise restful retreats for every family member or guest—each one a private sanctuary with space to breathe, unwind, and dream.
- With four full baths and two stylish powder rooms, convenience meets sophistication—ensuring seamless mornings and elegant hosting for any occasion.
- Thoughtfully arranged across two expansive levels, this layout balances togetherness and personal space—ideal for vibrant entertaining below and tranquil escapes above.
- From airy conversations in the kitchen to effortless entertaining in the great room, the open-concept design flows with natural light and modern sophistication.
- Whether it’s painting, crafting, or perfecting your next passion project, the hobby room offers a creative corner tailored for inspiration and focus.
- Movie marathons, game nights, or immersive binge sessions—the dedicated game/media room delivers cinematic comfort and lively fun for all ages.
- A quiet sitting area beckons for reflective mornings, casual reading, or warm, intimate conversations with a cup in hand and sunlight streaming in.
- Let imaginations run wild in a bright, cheerful playroom designed for kids to explore, create, and grow in their own lively little world.
- From sunrise coffees on the welcoming front porch to serene sunsets out back, these dual outdoor spaces invite connection with nature and neighbors alike.
- The detached two-car garage adds both function and charm—perfect for vehicle storage, gear organization, or converting into a workshop or studio.
AP-20003-FB Franklin Barndominium House Plan
- 2000 Heated Square Feet
- 2 Bedrooms
- 2.1 Bathrooms
- Three-story layout
- Open-concept
- Mudroom
- Unfinished Basement
- 1200 SF 3-Car garage
- Storage loft
- Wraparound porch
- 2000 Heated Square Feet – Just the right size: spacious, efficient, and easy to manage.
- 2 Bedrooms – Roomy and private with space to unwind or host.
- 2.1 Bathrooms – Two full baths plus a powder room for guests.
- Three-story layout – Vertical living with separation, style, and stunning views.
- Open-concept – Airy, seamless flow from kitchen to living and dining.
- Mudroom – Keep the mess at the door—every country home’s secret weapon.
- Unfinished Basement – Blank canvas for a home gym, media room, or workshop.
- 1200 SF 3-Car Garage – Massive garage space for vehicles, toys, and projects.
- Storage Loft – Bonus overhead space to stash seasonal stuff or gear.
- Wraparound Porch – Classic charm meets outdoor living, all the way around.
CDD-4102 Ridge Barndominium House Plan
- 2400 Heated Sq Ft
- 3 Bedrooms
- 2.1 Bathrooms
- Single story
- Open concept
- Office
- Mechanical room
- Mudroom
- Front & Rear porch
- A perfectly balanced living space, offering ample room to breathe, grow, and enjoy, all while maintaining a cozy and manageable footprint.
- Three versatile retreats await—whether for restful nights, creative pursuits, or welcoming family and guests, these rooms are designed with comfort and function in mind.
- Two full bathrooms for your daily routines, plus a convenient half-bath for guests—style and practicality combine effortlessly.
- A seamless and accessible layout on a single level, perfect for ease of movement and a timeless, grounded design.
- An expansive flow of living, dining, and kitchen spaces that encourages connection, natural light, and effortless entertaining.
- Dedicated workspace to inspire productivity and focus, tucked away for privacy while still being part of the home.
- The unsung hero of functionality—a space devoted to housing your home’s essential systems, out of sight but not out of mind.
- Your buffer between the outdoors and your living space, ideal for stowing away shoes, coats, and the chaos of daily life.
- Dual outdoor living spaces, where you can greet neighbors out front or savor a quiet sunset in the back—perfect for year-round enjoyment.
Even More Barndominium Plans
Not finished browsing? Check out even more of our top barndominium plans:
PL-61703 Medfield Barndominium House Plan


- 2400 Heated square feet
- 4-5 bedrooms
- 3 bathrooms
- 1 Story
- Playroom
- Open Concept
- The Medfield barndominium house plan is 2406 heated square feet and 4-5 bedrooms with 3 full bathrooms.
- In the main living area of this house plan, you are welcomed with an open-concept design that creates a nice open spacious with plenty of room for friends and family to gather.
- The kitchen is large with a center island and pantry. The island is home to the sink so that you can be part of the conversation in the family room even while doing dishes.
- The master bedroom has plenty of room to relax and unwind. With an ensuite bathroom with a separate shower and tub, there is plenty of space for you and your partner to get ready in the mornings.
- With up to 4 additional secondary bedrooms there is plenty of room for everyone to spread out and enjoy some downtime after a long day. One of the additional bedrooms can act as a study or guest bedroom.
- The playroom is another great feature of this home that is located just off the kitchen allowing moms and dads to cook and still have an eye on the kids as they play.
- The laundry is quite large and has a nice-sized storage closet that is perfect for storing all your cleaning supplies so that the laundry room stays nice and tidy.
- You will find that this barndominium house plan has lots of storage throughout the home which is a huge plus.
- The Veranda is large and is the perfect place to sit and relax after a long day.
SV-5503-C Charlie Barndominium House Plan
- 1677 Heated square feet
- 2 Bedrooms
- 2.1 Bathrooms
- Open concept
- Single story
- Utility room
- Safe room
- Mudroom
- Covered porch
- Garage/shop
- Smartly sized at 1,677 square feet—designed for comfort, flow, and functional elegance.
- Two dreamy bedrooms tailored for restful nights and personalized escapes.
- Two full baths plus a sleek half bath—perfect for busy mornings and effortless entertaining.
- Breathe easy in this open layout where living, dining, and kitchen spaces connect seamlessly.
- Out of sight but never out of reach—this utility room keeps laundry day neat and efficient.
- Peace of mind built in—this reinforced safe room adds a layer of security without sacrificing style.
- Your front-line defense against the mess—this transitional mudroom keeps life tidy and organized.
- Sip, sit, and savor—this charming covered porch beckons for breezy afternoons and quiet evenings.
- More than a parking spot—this versatile garage/shop is a hobbyist’s haven and a storage dream.
LP-2807 Wescott Barndominium House Plans

- 1800 Heated square feet
- 4 bedrooms
- 3 bathrooms
- 2 Story
- Loft
- Open Concept
- The Wescott barndominium house plan is 1800 heated square feet and features 4 bedrooms and 3 bathrooms.
- The open-concept design allows for plenty of space for the family to mingle and interact with one another. The main areas of the home appear even larger thanks to the vaulted ceilings.
- The kitchen is large and spacious with a large island with ample counter space and a decent-sized pantry in the corner of the kitchen.
- This plan includes several windows to allow the natural light to flow throughout the home.
- The master bedroom is spacious with a large master bathroom, shower, and stand-alone tub. The double vanity allows the couple to get ready at the same time without bumping into one another. The master also offers a large walk-in closet.
- This house plan has 3 additional bedrooms all with a nice sized closet. One of the secondary bedrooms has a private bathroom attached. The remaining bedrooms share the additional bathroom located in the hall.
- Upstairs is a nice loft ready for a home office, playroom, or anything you desire.
- The Wescott barndominium house plan has both a front and back patio so there is plenty of room to enjoy the outdoors.
PL-71005 Vista Barndominium House Plan

- 4 Bedrooms
- 3.1 Bathrooms
- 3179 Heated Square Feet
- 2-story
- Loft
- Playroom
- Media room
- Mudroom
- Mechanical room
- Jack and Jill Bathrooms
- Attached 3-car garage
- Front porch
- Patio
- With an expansive 3,179 heated square feet, this two-story floor plan offers ample space for your family to grow and thrive.
- Enjoy the comfort and privacy of four generously sized bedrooms, including Jack and Jill bathrooms that provide convenience and elegance. The 3.1 bathrooms ensure there’s never a wait during busy mornings.
- The loft area is perfect for a cozy reading nook or home office, while the playroom offers a dedicated space for fun and creativity. The media room is designed for ultimate entertainment right at home.
- The mudroom is ideal for keeping your home tidy, and the mechanical room ensures your household systems are easily accessible. An attached 3-car garage offers ample parking and storage space for vehicles and outdoor gear.
- Relax on the inviting front porch or host gatherings on the stylish patio, making every moment spent outdoors special.
PL-71004 Alasio Barndominium House Plan

- 4 Bedrooms
- 3.1 Bathrooms
- 3887 Heated Square Feet
- 2-story
- Loft
- Mudroom
- Attached 3-car garage
- Front and back porch
- Office
- Fireplace
- Lounge
- 2 Jack and Jill Bathrooms
- Explore this beautifully designed 2-story barndominium, offering ample space for family and guests with a total of 3,887 heated square feet.
- The open-concept design seamlessly integrates the living, dining, and kitchen areas, making it ideal for daily living and entertaining. A cozy fireplace in the family room adds warmth and is a focal point for gatherings.
- This floor plan includes four spacious bedrooms, providing comfortable retreats for all family members and guests.
- The layout features a luxurious master bathroom and a well-appointed guest bathroom. With 3.1 bathrooms, including two Jack and Jill bathrooms, this home provides convenience and efficient use of space between bedrooms.
- A versatile loft area that can serve as an additional living space, playroom, or home gym.
- An attached 3-car garage offers ample space for vehicles, storage, and hobbies and the mudroom provides a practical entryway space, perfect for storing shoes, coats, and outdoor gear.
- Enjoy the outdoors with both front and back porches, perfect for relaxing, entertaining, or enjoying the fresh air.
- A dedicated office space for working from home, managing household tasks, or pursuing personal projects.
- A comfortable lounge area for relaxing, reading, or enjoying family time.
PL-2819 Hampton Barndominium House Plan


- 4918 Heated square feet
- 3 Bedrooms
- 3.1 Bathrooms
- 2-story
- Loft family/entertainment area
- Loft unfinished area
- Open concept
- Wraparound porch
- Mechanical room
- Mudroom
- 4-car attached Garage
- Nearly 5,000 square feet of finely crafted comfort—room to roam, entertain, and thrive without limits.
- Three spacious retreats, each its own private haven—designed for rest, romance, and a touch of indulgence.
- Every bedroom gets its own en-suite luxury, plus a powder room for guests—pure convenience meets elegant living.
- Game nights, movie marathons, and memory-making galore—plus extra loft space waiting for your creative touch.
- Wide, bright, and beautifully connected—this open-plan layout invites light, laughter, and seamless everyday living.
- Porch envy, activated—this wraparound stunner wraps your home in charm, sunshine, and endless outdoor moments.
- A quietly efficient hub—your home’s systems get the space they need without sacrificing aesthetics.
- Function meets finesse—this stylish drop zone keeps clutter at bay and your interiors pristine.
- Room for every ride, hobby, and weekend adventure—this oversized garage is a dream for car lovers and gearheads alike.
PL-2815 Travis Barndominium House Plan
- 2400 Heated square feet
- 40×60 living space dimension
- 3 Bedrooms
- 2 Bathrooms
- Single story
- Open concept
- Office
- Foyer
- Front porch
- Patio
- Deck
- Safe room
- Walkout basement
- 3-car attached garage
- Enjoy a perfectly balanced footprint offering 2,400 square feet of comfortably climate-controlled living space—roomy enough to stretch out, yet easy to maintain.
- With generous 40×60 dimensions, this home’s layout is designed for flow, flexibility, and functionality—ideal for entertaining and everyday living.
- Three well-appointed bedrooms offer restful retreats for family and guests alike—each thoughtfully placed for privacy, natural light, and comfort.
- Two full bathrooms bring both convenience and style, featuring modern fixtures and smart layouts for a smooth daily routine.
- No stairs, no hassle—this single-story, open-concept design delivers ease and accessibility, perfect for all stages of life.
- A dedicated home office provides a quiet, focused space for productivity—whether you’re working from home, tackling creative projects, or organizing life’s details.
- Step into a welcoming foyer that sets the tone with warmth and charm—a graceful transition from the outside world.
- The inviting front porch is more than curb appeal—it’s a breezy perch to sip coffee, greet neighbors, and enjoy golden hour views.
- Grill, gather, or unwind beneath the stars on your private patio—perfectly positioned for alfresco dining and outdoor living.
- A spacious deck extends your living space under open skies—a natural haven for morning routines or twilight conversation.
- Discreetly built for peace of mind, the safe room offers reinforced protection without sacrificing style or convenience.
- A seamless blend of indoor comfort and outdoor connection, the walkout basement extends your living space with direct access to the backyard. Whether transformed into a private retreat, entertainment hub, or guest quarters, its versatility adds value and functionality to your home.
PL-64013 Gibbons Barndominium House Plan
- 2000 Heated Sq Ft
- 4 Bedrooms
- 2 Bathrooms
- Storage spaces
- Mechanical room/Laundry room
- Open concept
- Single-story
- Front and back porch
- Spacious 2,000 heated sq ft with room to stretch, entertain, and relax in style.
- 4 bedrooms designed with comfort and privacy in mind—perfect for families or guests.
- 2 modern and functional bathrooms with plenty of space to start your day right.
- Never worry about clutter—dedicated storage keeps everything organized.
- Mechanical Room/Laundry Room: All your utilities and laundry needs neatly tucked away for maximum efficiency.
- Seamless flow from the living area to the kitchen—ideal for gatherings and everyday living in a single-story layout.
- Enjoy morning coffee out front and sunset views out back—your new favorite spots to unwind.
PL-69197 Bexley Barndominium House Plan
- 2683 Heated Sq Ft
- 4 Bedrooms
- 3 Bathrooms
- Laundry room
- Mudroom
- Open concept
- Two-story
- Loft Style
- 1432 Sq Ft Garage
- Front and back porch
- This two-story floor plan offers an impressive 2683 square feet of heated living space. The design also includes a substantial 1432-square-foot garage, perfect for housing vehicles, storage, or a workshop.
- This plan features four bedrooms, three of which are conveniently located on the main floor, and a guest bedroom on the second floor. Each bedroom, including the master and guest bedrooms, has its own private bathroom. Additionally, there is a shared bathroom on the main floor, making this design both practical and accommodating for a variety of living arrangements.
- A loft-style floor plan that features an open concept main floor. As you enter the house from the garage, you are greeted by a practical mudroom, perfect for storing outdoor gear and keeping the rest of the home clean. Conveniently, this mudroom is also linked to the laundry room, making it easy to manage household chores.
- This floor plan features a charming front porch, providing a warm welcome to visitors. At the rear of the house, a spacious back patio offers ample room for outdoor dining, relaxation, or entertaining. Whether you’re greeting neighbors at the front door or enjoying a backyard barbecue, this floor plan caters to a lifestyle that appreciates both community connection and private leisure.
PL-82001 Fowler Barndominium House Plan

- 5792 heated Square Feet
- 6 Bedrooms
- 4.2 Bathrooms
- 2 Story
- Open Concept
- Hobby room
- Game/media room
- Sitting area
- Playroom
- Front & rear porch
- 2-car detached garage
- Luxuriate in nearly 5,800 square feet of impeccably designed, temperature-controlled living—every square foot crafted for comfort, elegance, and unforgettable gatherings.
- Six inviting bedrooms promise restful retreats for every family member or guest—each one a private sanctuary with space to breathe, unwind, and dream.
- With four full baths and two stylish powder rooms, convenience meets sophistication—ensuring seamless mornings and elegant hosting for any occasion.
- Thoughtfully arranged across two expansive levels, this layout balances togetherness and personal space—ideal for vibrant entertaining below and tranquil escapes above.
- From airy conversations in the kitchen to effortless entertaining in the great room, the open-concept design flows with natural light and modern sophistication.
- Whether it’s painting, crafting, or perfecting your next passion project, the hobby room offers a creative corner tailored for inspiration and focus.
- Movie marathons, game nights, or immersive binge sessions—the dedicated game/media room delivers cinematic comfort and lively fun for all ages.
- A quiet sitting area beckons for reflective mornings, casual reading, or warm, intimate conversations with a cup in hand and sunlight streaming in.
- Let imaginations run wild in a bright, cheerful playroom designed for kids to explore, create, and grow in their own lively little world.
- From sunrise coffees on the welcoming front porch to serene sunsets out back, these dual outdoor spaces invite connection with nature and neighbors alike.
- The detached two-car garage adds both function and charm—perfect for vehicle storage, gear organization, or converting into a workshop or studio.
AP-20003-FB Franklin Barndominium House Plan
- 2000 Heated Square Feet
- 2 Bedrooms
- 2.1 Bathrooms
- Three-story layout
- Open-concept
- Mudroom
- Unfinished Basement
- 1200 SF 3-Car garage
- Storage loft
- Wraparound porch
- 2000 Heated Square Feet – Just the right size: spacious, efficient, and easy to manage.
- 2 Bedrooms – Roomy and private with space to unwind or host.
- 2.1 Bathrooms – Two full baths plus a powder room for guests.
- Three-story layout – Vertical living with separation, style, and stunning views.
- Open-concept – Airy, seamless flow from kitchen to living and dining.
- Mudroom – Keep the mess at the door—every country home’s secret weapon.
- Unfinished Basement – Blank canvas for a home gym, media room, or workshop.
- 1200 SF 3-Car Garage – Massive garage space for vehicles, toys, and projects.
- Storage Loft – Bonus overhead space to stash seasonal stuff or gear.
- Wraparound Porch – Classic charm meets outdoor living, all the way around.
CDD-4102 Ridge Barndominium House Plan
- 2400 Heated Sq Ft
- 3 Bedrooms
- 2.1 Bathrooms
- Single story
- Open concept
- Office
- Mechanical room
- Mudroom
- Front & Rear porch
- A perfectly balanced living space, offering ample room to breathe, grow, and enjoy, all while maintaining a cozy and manageable footprint.
- Three versatile retreats await—whether for restful nights, creative pursuits, or welcoming family and guests, these rooms are designed with comfort and function in mind.
- Two full bathrooms for your daily routines, plus a convenient half-bath for guests—style and practicality combine effortlessly.
- A seamless and accessible layout on a single level, perfect for ease of movement and a timeless, grounded design.
- An expansive flow of living, dining, and kitchen spaces that encourages connection, natural light, and effortless entertaining.
- Dedicated workspace to inspire productivity and focus, tucked away for privacy while still being part of the home.
- The unsung hero of functionality—a space devoted to housing your home’s essential systems, out of sight but not out of mind.
- Your buffer between the outdoors and your living space, ideal for stowing away shoes, coats, and the chaos of daily life.
- Dual outdoor living spaces, where you can greet neighbors out front or savor a quiet sunset in the back—perfect for year-round enjoyment.
Barndominium FAQs
You will need to have barndominium floor plans to build your barndominium. These are required for planning, loans, and budgeting your project. When you use barndominium floor plans that we already have it makes it cheaper and easier to start the building and financing.
Barndominium floor plans can help with
- Building
- Pricing
- Financing
- Interior finishes
- Permits
- and more
Can barndominium floor plans be altered?
Yes, you can use any barndominium floor plan as a great starting point to help your barndominium build come to life. If you have things you would like different a barndominium architect can help you make your dream barndo become a reality.
Get the Barndominium Life Program for step-by-step guidance on how to make your dream barndominium a reality! We’ll provide you with information and lots of inspiration about floor plans and how to build your barndominiums on time and under budget!














































