
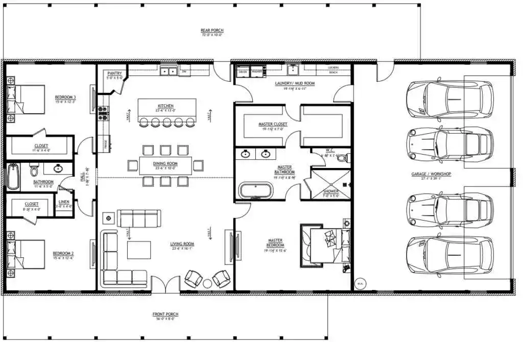
BK-2406 Holden Barndominium Kit
Want to buy this barndominium kit? Scroll to the bottom and find the link to purchase.
- 2400 Heated square feet
- 3 Bedrooms
- 2 Bathrooms
- Single story
- Open concept
- Mudroom
- 1120 square feet attached garage
- Boasting 2400 heated square feet, this single-story kit features 3 spacious bedrooms and 2 well-appointed bathrooms.
- The open concept layout creates a seamless flow between the living, dining, and kitchen areas, ideal for both everyday living and entertaining.
- A mudroom adds practicality, keeping your home organized and clean. Plus, the 4-car attached garage provides ample space for vehicles and storage.
For more barndominium floor plans, check out our complete collection of 3-bedroom barndominium floor plans.
Need to make changes? Email our modification department. We will get you a free price quote within 72 hours.





Find More Barndominium Floor Plans
By Bedrooms:
1 Bedroom • 2 Bedrooms • 3 Bedrooms • 4 Bedrooms • 5 Bedrooms • 6 Bedrooms • 7 Bedrooms • 8 Bedrooms
By Feature:
1-Story • 2-Story • With Garage • 2 Car Garage • 3 Car Garage • Wraparound Porch • With Breezeway • 2 Master Suites • With Loft • Multi-Family Barndominiums • Open-Concept
By Size:
Small Plans • 800 Sq Ft • 900 Sq Ft • 1000 Sq Ft • 1200 Sq Ft • 30×40 Floor Plans • 1400 Sq Ft • 1500 Sq Ft • 1600 Sq Ft • 40×40 Floor Plans • 1800 Sq Ft • 30×60 Floor Plans • 2000 Sq Ft • 2400 Sq Ft • 2500 Sq Ft • 2800 Sq Ft • 3000 Sq Ft • 3200 Sq Ft • 3600 Sq Ft • 4000 Sq Ft • 5000 Sq Ft •
