

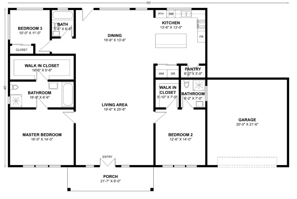
- This 2,000 square foot floor plan offers a spacious and functional layout, providing a perfect blend of style and efficiency within a 50′ x 40′ footprint.
- The home features a private master bedroom (16′ x 14′) with an attached bathroom (16′ x 6′-6″) and a spacious walk-in closet (16′ x 8′-6″), offering a serene retreat.
- The two additional bedrooms (12′-8″ x 14′ and 10′ x 11′) provide ideal accommodations for guests or family.
- The heart of the home is the open living area (19′-8″ x 25′-8″) and dining space (19′-6″ x 13′-6″) which flows into a functional kitchen (13′-8″ x 13′), perfect for entertaining.
- The design also includes a large 20′ x 21′-6″ garage, a pantry (6′-2″ x 3′), and a welcoming 21′-7″ x 6′ porch, making this plan a perfect blend of style, function, and storage.
For more barndominium floor plans, check out our complete collection of 3-bedroom barndominium floor plans.
Need to make changes? Submit a modification request using the button that says Modify This Plan (below the Add To Cart Button). We will get you a free price quote within 72 hours
Please note all square footage are estimates.
Find More Barndominium Floor Plans
By Bedrooms:
1 Bedroom • 2 Bedrooms • 3 Bedrooms • 4 Bedrooms • 5 Bedrooms • 6 Bedrooms • 7 Bedrooms • 8 Bedrooms
By Feature:
1-Story • 2-Story • With Garage • 2 Car Garage • 3 Car Garage • Wraparound Porch • With Breezeway • 2 Master Suites • With Loft • Multi-Family Barndominiums • Open-Concept
By Size:
Small Plans • 800 Sq Ft • 900 Sq Ft • 1000 Sq Ft • 1200 Sq Ft • 30×40 Floor Plans • 1400 Sq Ft • 1500 Sq Ft • 1600 Sq Ft • 40×40 Floor Plans • 1800 Sq Ft • 30×60 Floor Plans • 2000 Sq Ft • 2400 Sq Ft • 2500 Sq Ft • 2800 Sq Ft • 3000 Sq Ft • 3200 Sq Ft • 3600 Sq Ft • 4000 Sq Ft • 5000 Sq Ft •

