
Want to buy this house plan? Scroll to the bottom and find the link to purchase.
FH-00115 Karla Farmhouse Plan
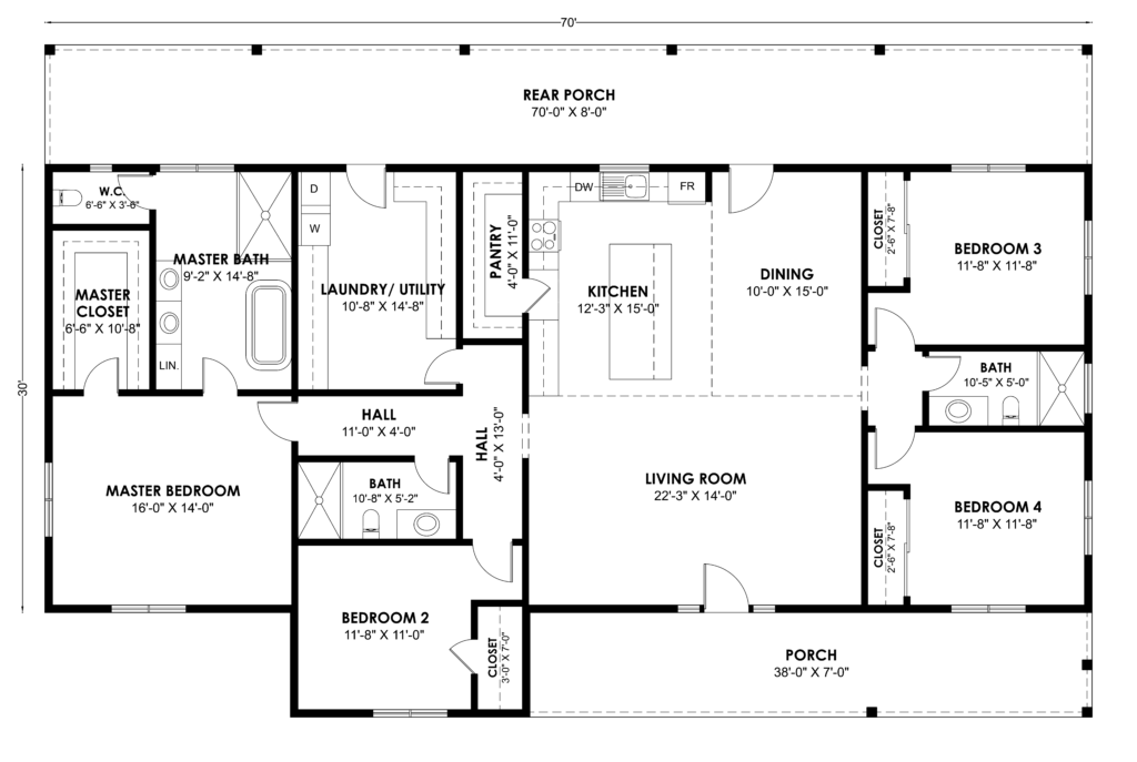
About this farmhouse plan:
- This spacious 1-story farmhouse offers 4 beds and 3 baths, designed with an inviting open layout centered around a 22′-3″ x 14′-0″ living room.
- The private 16′-0″ x 14′-0″ master suite provides a relaxing retreat complete with a large master bath, a separate water closet, and a generous walk-in closet for plenty of storage.
- Three additional bedrooms offer comfortable spaces for family or guests, each located near well-appointed bathrooms and hallway closets.
- Practical features include a spacious 10′-8″ x 14′-8″ laundry/utility room and a convenient 4′-0″ x 11′-0″ pantry located just off the kitchen.
- Outdoor living shines with a generous 38′-0″ x 7′-0″ front porch and an expansive 70′-0″ x 8′-0″ rear porch, offering plenty of space to enjoy classic farmhouse-style outdoor living.
For more barndominium floor plans, check out our complete collection of 4-bedroom barndominium floor plans.
Need to make changes? Submit a modification request using the button that says Modify This Plan. We will get you a free price quote within 72 hours.


Find More Barndominium Floor Plans
By Bedrooms:
1 Bedroom • 2 Bedrooms • 3 Bedrooms • 4 Bedrooms • 5 Bedrooms • 6 Bedrooms • 7 Bedrooms • 8 Bedrooms
By Feature:
1-Story • 2-Story • With Garage • 2 Car Garage • 3 Car Garage • Wraparound Porch • With Breezeway • 2 Master Suites • With Loft • Multi-Family Barndominiums • Open-Concept • With Shop
By Size:
Small Plans • 800 Sq Ft • 900 Sq Ft • 1000 Sq Ft • 1200 Sq Ft • 30×40 Floor Plans • 1400 Sq Ft • 1500 Sq Ft • 1600 Sq Ft • 40×40 Floor Plans • 1800 Sq Ft • 30×60 Floor Plans • 2000 Sq Ft • 2400 Sq Ft • 2500 Sq Ft • 2800 Sq Ft • 3000 Sq Ft • 3200 Sq Ft • 3600 Sq Ft • 4000 Sq Ft • 5000 Sq Ft •

