
GJ-4406 Jefferson Barndominium House Plan
Want to buy this house plan? Scroll to the bottom and find the link to purchase.
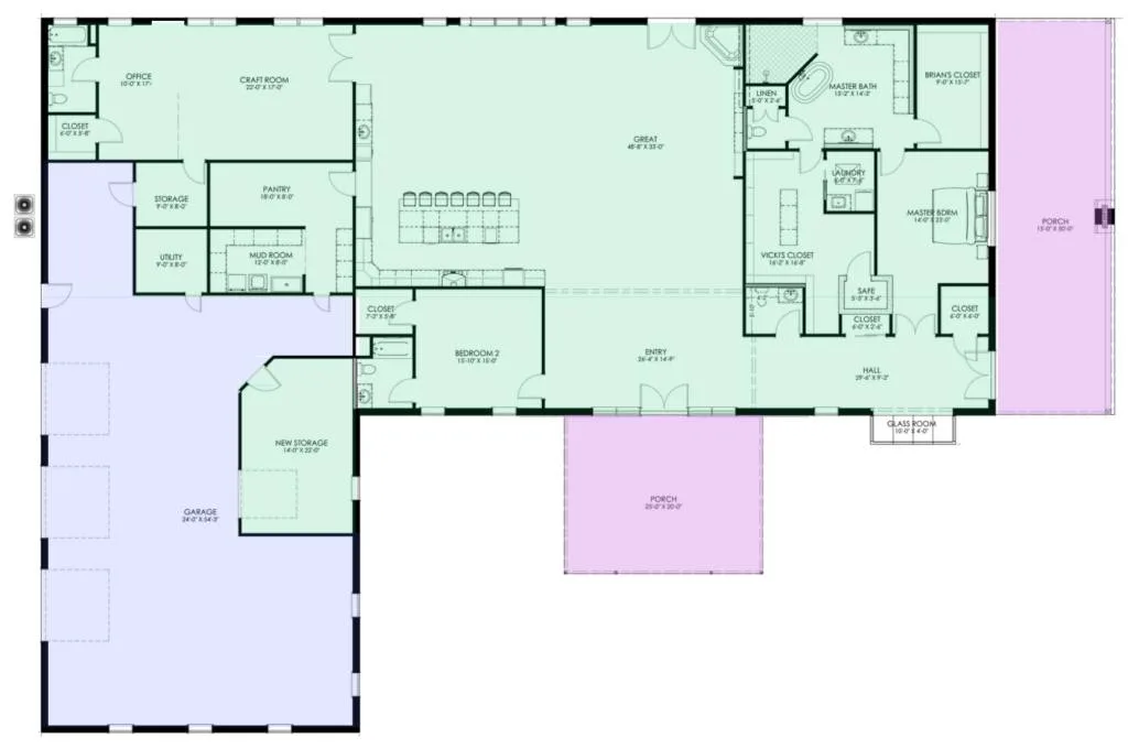
About this barndominium house plan:
- 3.1 bathrooms
- Single Story
- Open Concept
- Office/Craft room
- 2 Walk-in Closets
- Safe
- Mudroom
- Storage
- Utility
- Covered porches
- 2,107 Sq Ft Garage
- A sprawling single-level layout with 2 bedrooms and 3.1 bathrroms designed for comfort, flexibility, and seamless transitions.
- The master suite includes two distinct walk-in closets, one with a built-in safe—offering both luxury and peace of mind.
- A dedicated workspace near the private wing supports creativity, focus, or remote work—adaptable to your lifestyle.
- Functional zones are thoughtfully placed near the garage and service entry—streamlining household flow and organization.
- Shaded outdoor areas extend the living space—ideal for morning coffee, evening gatherings, or quiet reflection.
- This expansive garage accommodates multiple vehicles and includes direct access to mechanical and storage zones.
What’s included in GJ-4405:
Cover Sheet
First Floor Plan
Exterior Elevations
Renders
Cabinet Details
Structure Layout
Building Structures
Roof Plan
Electrical Plan
Foundation Plan
For more barndominium floor plans, check out our complete collection of 3-bedroom barndominium floor plans.
Need to make changes? Submit a modification request using the button that says Modify This Plan. We will get you a free price quote within 72 hours.







Find More Barndominium Floor Plans
By Bedrooms:
1 Bedroom • 2 Bedrooms • 3 Bedrooms • 4 Bedrooms • 5 Bedrooms • 6 Bedrooms • 7 Bedrooms • 8 Bedrooms
By Feature:
1-Story • 2-Story • With Garage • 2 Car Garage • 3 Car Garage • Wraparound Porch • With Breezeway • 2 Master Suites • With Loft • Multi-Family Barndominiums • Open-Concept
By Size:
Small Plans • 800 Sq Ft • 900 Sq Ft • 1000 Sq Ft • 1200 Sq Ft • 30×40 Floor Plans • 1400 Sq Ft • 1500 Sq Ft • 1600 Sq Ft • 40×40 Floor Plans • 1800 Sq Ft • 30×60 Floor Plans • 2000 Sq Ft • 2400 Sq Ft • 2500 Sq Ft • 2800 Sq Ft • 3000 Sq Ft • 3200 Sq Ft • 3600 Sq Ft • 4000 Sq Ft • 5000 Sq Ft •

