
Want to buy this house plan? Scroll to the bottom and find the link to purchase.
GS-8019 Bardnominium House Plan
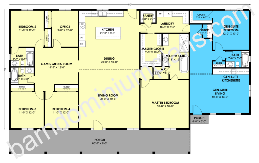
About this barndominium house plan:
- The home’s central core is a massive open-concept area featuring a 20′-0″ x 19′-6″ living room and a 20′-0″ x 9′-6″ kitchen that serves as the primary social hub.
- On the right side, a high-end master suite offers a 16′-0″ x 16′-0″ bedroom paired with a luxurious 8′-8″ x 15′-0″ master bath and a spacious walk-in closet.
- The left wing is designed for maximum utility, housing three secondary bedrooms, a 9′-0″ x 12′-0″ private office, and a central 14′-5″ x 12′-0″ game/media room.
- A self-contained Gen-Suite occupies the far right of the plan, providing a 19′-8″ x 13′-0″ living area with a kitchenette and a private 12′-0″ x 13′-0″ bedroom.
- The exterior features a vast 60′-0″ x 8′-0″ front porch, offering 480 square feet of shaded outdoor space for relaxation and curb appeal.

For more barndominium floor plans, check out our complete collection of 4-bedroom barndominium floor plans.
Need to make changes? Submit a modification request using the button that says Modify This Plan. We will get you a free price quote within 72 hours.
Find More Barndominium Floor Plans
By Bedrooms:
1 Bedroom • 2 Bedrooms • 3 Bedrooms • 4 Bedrooms • 5 Bedrooms • 6 Bedrooms • 7 Bedrooms • 8 Bedrooms
By Feature:
1-Story • 2-Story • With Garage • 2 Car Garage • 3 Car Garage • Wraparound Porch • With Breezeway • 2 Master Suites • With Loft • Multi-Family Barndominiums • Open-Concept • With Shop
By Size:
Small Plans • 800 Sq Ft • 900 Sq Ft • 1000 Sq Ft • 1200 Sq Ft • 30×40 Floor Plans • 1400 Sq Ft • 1500 Sq Ft • 1600 Sq Ft • 40×40 Floor Plans • 1800 Sq Ft • 30×60 Floor Plans • 2000 Sq Ft • 2400 Sq Ft • 2500 Sq Ft • 2800 Sq Ft • 3000 Sq Ft • 3200 Sq Ft • 3600 Sq Ft • 4000 Sq Ft • 5000 Sq Ft •

