
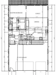
PL-64016 Ellis Barndominium House Plan
- 2605 Heated Sq Ft
- 4 Bedrooms
- 2 Bathrooms
- Laundry room/mudroom
- Office
- Utility room
- Playroom
- Open concept
- Single story
- Front and back porch
- A well-balanced 2605 heated sq ft designed for year-round comfort, offering plenty of room to live, work, and unwind.
- Spacious, inviting, and thoughtfully four bedrooms designed for relaxation, privacy, and personal style.
- 2 bathrooms that blend of function and convenience, with well-appointed spaces to start and end the day in comfort.
- Practical buffer between the outdoors and indoors, the laundry room/mudroom keeps everyday routines smooth and organized.
- Dedicated workspace built for productivity, creativity, and quiet focus.
- Smartly designed utility room for storage and home essentials, keeping everything running efficiently.
- Bright and playful space for creativity, fun, and relaxation, the play room is perfect for kids or an entertainment zone.
- Welcoming outdoor extensions, ideal for morning coffee, casual gatherings, or simply enjoying the fresh air.
What’s Included In PL-64016:
Cover Sheet
Detailed Floor Plan Dimensional
Roof Plan
Front, Back, Left Side, Right Side Elevations
Electrical Plan
Plumbing Plan
HVAC Plan
Roof Framing Plan
Foundation Plan
Wall Section
For more barndominium floor plans, check out our complete collection of 4 bedroom barndominium floor plans.
Need to make changes? Email our modification department. We will get you a free price quote within 72 hours.
Please note all square footage are estimates.








Find More Barndominium Floor Plans
By Bedrooms:
1 Bedroom • 2 Bedrooms • 3 Bedrooms • 4 Bedrooms • 5 Bedrooms • 6 Bedrooms • 7 Bedrooms • 8 Bedrooms
By Feature:
1-Story • 2-Story • With Garage • 2 Car Garage • 3 Car Garage • Wraparound Porch • With Breezeway • 2 Master Suites • With Loft • Multi-Family Barndominiums • Open-Concept • With Shop
By Size:
Small Plans • 800 Sq Ft • 900 Sq Ft • 1000 Sq Ft • 1200 Sq Ft • 30×40 Floor Plans • 1400 Sq Ft • 1500 Sq Ft • 1600 Sq Ft • 40×40 Floor Plans • 1800 Sq Ft • 30×60 Floor Plans • 2000 Sq Ft • 2400 Sq Ft • 2500 Sq Ft • 2800 Sq Ft • 3000 Sq Ft • 3200 Sq Ft • 3600 Sq Ft • 4000 Sq Ft • 5000 Sq Ft •

