
PL-64022 April Barndominium House Plan
Want to buy this house plan? Scroll to the bottom and find the link to purchase.
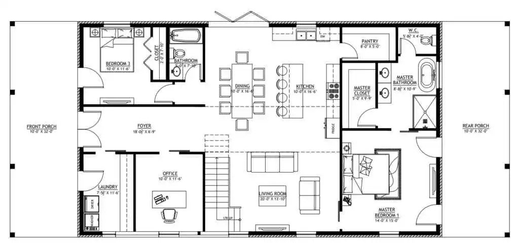
About this barndominium house plan:
- 2958 Heated square feet
- 32×54 living space dimension
- 3 bedrooms (2 Master bedrooms)
- 3 bathrooms
- 2 Story
- Open Concept
- Loft
- Office
- Foyer
- Front & rear porch
- Front & rear deck
- With nearly 3,000 square feet of heated living space, this home offers a generous canvas for comfort, entertaining, and personalized design.
- Two luxurious master suites provide ultimate flexibility—perfect for multi-generational living, guest accommodations, or dual-owner privacy—plus a third bedroom for family or creative use.
- Three full bathrooms offer convenience and style, each designed with thoughtful finishes and easy access from every corner of the home.
- This two-story layout separates public and private spaces beautifully, offering vertical dimension, enhanced views, and a dynamic living experience.
- The open-concept design invites light and movement, connecting kitchen, dining, and living areas into one harmonious space that adapts to any lifestyle.
- A versatile loft space adds a layer of possibility—ideal for a media room, play area, reading nook, or even a secondary office.
- A dedicated office provides a quiet, focused environment for remote work, study, or creative pursuits—tucked away yet easily accessible.
- The welcoming foyer sets the tone with a graceful entry point, offering space to greet guests and transition into the heart of the home.
- Dual porches and decks extend your living space outdoors—whether you’re sipping coffee at the front or hosting sunset dinners out back, these spaces invite relaxation and connection.
What’s included in PL-64022:
Cover Page
First Floor Plan
Second Floor Plan
Roof Plan
Front And Rear Elevation
Right And Left Elevation
First Floor Electrical Plan
Second Floor Electrical Plan
First Floor Plumbing Plan
Second Floor Plumbing Plan
First Floor Hvac Plan
Second Floor Hvac Plan
Roof Framing Plan
Foundation Plan
Foundation Detail
Interior Bearing Footing
C-Typical Column Detail
Wall Section
For more barndominium floor plans, check out our complete collection of 3 bedroom barndominium floor plans.
Need to make changes? Submit a modification request using the button that says Modify This Plan (below the Add To Cart Button). We will get you a free price quote within 72 hours
Please note all square footage are estimates.









Find More Barndominium Floor Plans
By Bedrooms:
1 Bedroom • 2 Bedrooms • 3 Bedrooms • 4 Bedrooms • 5 Bedrooms • 6 Bedrooms • 7 Bedrooms • 8 Bedrooms
By Feature:
1-Story • 2-Story • With Garage • 2 Car Garage • 3 Car Garage • Wraparound Porch • With Breezeway • 2 Master Suites • With Loft • Multi-Family Barndominiums • Open-Concept • With Shop
By Size:
Small Plans • 800 Sq Ft • 900 Sq Ft • 1000 Sq Ft • 1200 Sq Ft • 30×40 Floor Plans • 1400 Sq Ft • 1500 Sq Ft • 1600 Sq Ft • 40×40 Floor Plans • 1800 Sq Ft • 30×60 Floor Plans • 2000 Sq Ft • 2400 Sq Ft • 2500 Sq Ft • 2800 Sq Ft • 3000 Sq Ft • 3200 Sq Ft • 3600 Sq Ft • 4000 Sq Ft • 5000 Sq Ft •

