
Want to buy this house plan? Scroll to the bottom and find the link to purchase.
SV-5501-C Corey Barndominium House Plan
About this barndominium house plan:
- 2400 Heated Square Feet
- 3 Bedrooms
- 2 Bathrooms
- Two Story
- Loft
- Open concept
- Laundry/Mudroom
- Pantry
- Front and rear porch
- 1120 Sq Ft Garage
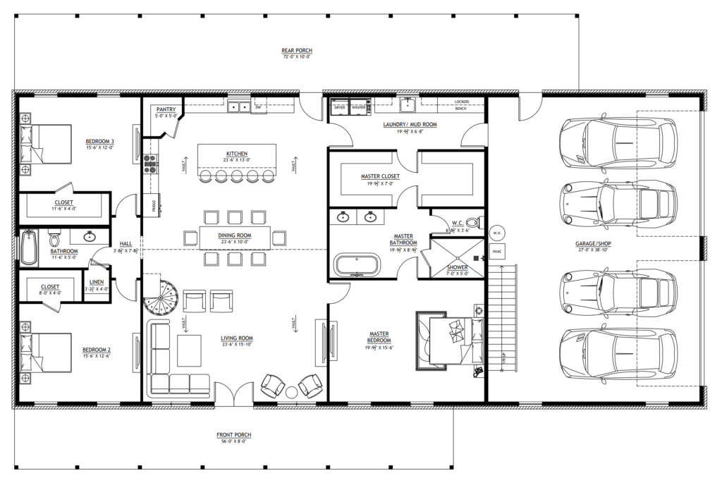
- 2400 square feet of heated living space in two-story barndominium layout with 3 beds and 2 baths.
- Living room with vaulted ceiling creating dramatic open space connected directly to kitchen and dining areas.
- Master bedroom with private master bathroom and large walk-in closet with direct access to laundry room.
- Two more bedrooms each with dedicated closets and access to nearby full bathroom.
- Laundry and mud room with washer, dryer, sink, and built-in bench lockers.
- Garage and shop space accommodating up to four vehicles with additional workspace.
- Two large loft areas measuring overlooking the living areas below.
- Covered front porch and porch extending outdoor living across the width of the home.
What’s included in SV-5501-C:
Cover Page
Main Floor Plan
Loft Plan Floor
Roof Plan
Front and Rear Elevation
Right and Left Elevation
Main Floor Electrical Plan
Loft Electrical Plan
Main Floor Plumbing Plan
Main Floor HVAC Plan
Roof Framing Plan
Foundation Plan
Wall Section
For more barndominium floor plans, check out our complete collection of 3-bedroom barndominium floor plans.
Need to make changes? Submit a modification request using the button that says Modify This Plan. We will get you a free price quote within 72 hours.



Find More Barndominium Floor Plans
By Bedrooms:
1 Bedroom • 2 Bedrooms • 3 Bedrooms • 4 Bedrooms • 5 Bedrooms • 6 Bedrooms • 7 Bedrooms • 8 Bedrooms
By Feature:
1-Story • 2-Story • With Garage • 2 Car Garage • 3 Car Garage • Wraparound Porch • With Breezeway • 2 Master Suites • With Loft • Multi-Family Barndominiums • Open-Concept • With Shop
By Size:
Small Plans • 800 Sq Ft • 900 Sq Ft • 1000 Sq Ft • 1200 Sq Ft • 30×40 Floor Plans • 1400 Sq Ft • 1500 Sq Ft • 1600 Sq Ft • 40×40 Floor Plans • 1800 Sq Ft • 30×60 Floor Plans • 2000 Sq Ft • 2400 Sq Ft • 2500 Sq Ft • 2800 Sq Ft • 3000 Sq Ft • 3200 Sq Ft • 3600 Sq Ft • 4000 Sq Ft • 5000 Sq Ft •

