
BCO-40073 Wilbur Barndominium House Plan
Want to buy this house plan? Scroll to the bottom and find the link to purchase.
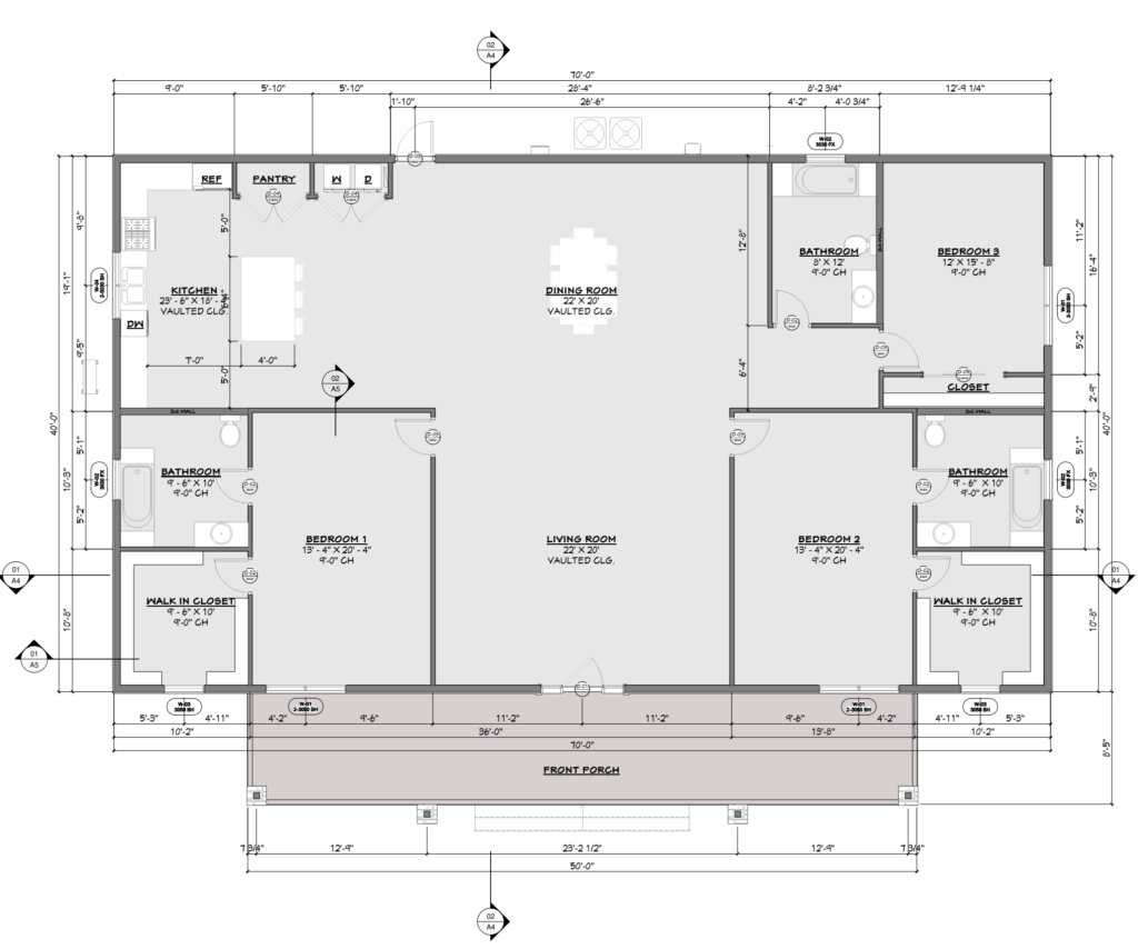
About this barndominium house plan:
- 2800 Heated square feet
- 3 bedrooms
- 3 bathrooms
- Single Story
- Open Concept
- Front porch
- Spacious and thoughtfully designed, this single-story home offers 2,800 square feet of climate-controlled living—perfect for those who crave room to relax, entertain, and grow.
- Three generously sized bedrooms provide peaceful retreats, each with ample natural light and privacy—ideal for families, guests, or a dedicated home office.
- Three full bathrooms ensure comfort and convenience, with stylish finishes and smart layouts that support both daily routines and effortless hosting.
- Enjoy the ease of single-level living—no stairs, just seamless flow and accessibility throughout, ideal for all ages and lifestyles.
- A welcoming front porch sets the tone for relaxed living—ideal for morning coffee, evening chats, or simply enjoying the view with timeless charm.
What’s included in BCO-40073:
Cover Sheet
Detailed Floor Plan Dimensions
Four Elevations – Front, Back, Left Side, Right Side
Building Sections
Wall Sections and Attic Details
HVAC Plan
Foundation Plan
Foundation Details
Basic Plumbing Plan and Details
Electrical Plan
Roof Framing Plan
Roof Plan
For more barndominium floor plans, check out our complete collection of 3-bedroom barndominium floor plans.
Need to make changes? Submit a modification request using the button that says Modify This Plan (below the Add To Cart Button). We will get you a free price quote within 72 hours
Please note all square footage are estimates.



Find More Barndominium Floor Plans
By Bedrooms:
1 Bedroom • 2 Bedrooms • 3 Bedrooms • 4 Bedrooms • 5 Bedrooms • 6 Bedrooms • 7 Bedrooms • 8 Bedrooms
By Feature:
1-Story • 2-Story • With Garage • 2 Car Garage • 3 Car Garage • Wraparound Porch • With Breezeway • 2 Master Suites • With Loft • Open-Concept
By Size:
Small Plans • 800 Sq Ft • 900 Sq Ft • 1000 Sq Ft • 1200 Sq Ft • 30×40 Floor Plans • 1400 Sq Ft • 1500 Sq Ft • 1600 Sq Ft • 40×40 Floor Plans • 1800 Sq Ft • 30×60 Floor Plans • 2000 Sq Ft • 2400 Sq Ft • 2500 Sq Ft • 2800 Sq Ft • 3000 Sq Ft • 3200 Sq Ft • 3600 Sq Ft • 4000 Sq Ft • 5000 Sq Ft •

