
LP-2802 Marcus Barndominium House Plan
Want to buy this house plan? Scroll to the bottom and find the link to purchase.
About this barndominium house plan:
- 2800 Heated square feet
- 1123 Attached 3 car garage
- 3 bedrooms
- 3 bathrooms
- 2 Story
- Loft
- Mudroom
- Jack and Jill Bathroom
- Office
- Open Concept
- The Marcus Barndominium house plan is 2800 heated square feet and features 3 bedrooms and 3 bathrooms with an 1123 square foot attached garage.
- This house plan has an open-concept design that is big enough for large families to gather together. With the second story being open to below it allows the space to feel even larger than it is.
- The master suite is located by itself to give the owners the privacy that they desire. With a large walk-in closet, there is plenty of room to hang and organize your clothes.
- The kitchen is large and spacious with a large pantry to store food by itslf to keep your kitchen clutter-free. The island is large making it perfect to prep, serve food, or line the kids up on barstools to eat a quick meal.
- The office is located just off the living room with double doors with an elevated look to the home.
- The two secondary bedrooms have nice size closets and a desirable jack-and-jill bathroom for the kids to share.
- The upstairs loft makes a great teen hangout or playroom for the kids.
For more barndominium floor plans, check out our complete collection of 3 bedroom barndominium floor plans.
Need to make changes? Email our modification department. We will get you a free price quote within 72 hours.
Please note all square footage are estimates.

Rising from the rolling landscape, this expansive estate makes a bold first impression with its dramatic charcoal metal roofing and exposed timber trusses that frame a grand, inviting entryway. The exterior artfully balances rugged stone wainscoting with sleek vertical siding, while a wrap-around porch offers the perfect vantage point to take in the quiet serenity of the surrounding hills.

The Sunset Estate
Bathed in the warm, golden glow of a late afternoon sun, this sprawling barndominium stands as a masterclass in modern-rustic architecture. The expansive wrap-around porch, supported by rugged stone-clad pillars, invites you to linger and enjoy the panoramic views of the lush, manicured grounds. With its striking gabled roofline and rich wood accents, the home feels both commanding and deeply connected to the tranquil landscape surrounding it.

Settling into a vast clearing of emerald green, this striking barndominium commands attention with its crisp, white metal siding contrasted against a classic fieldstone wainscoting. The expansive porch, held aloft by warm timber beams and stone-wrapped pillars, stretches the full length of the home to create an effortless transition between the polished interior and the sprawling, sun-drenched meadow.

Set against a crisp, sun-drenched winter landscape, this stunning barndominium glows with warmth as the low afternoon light hits its creamy vertical siding. The dark, snow-dusted roofline creates a sharp silhouette against the clear blue sky, while the massive timber-framed gable serves as a cozy, sheltered anchor for the home’s expansive outdoor living space.

From this perspective, the home’s functional elegance is on full display, featuring a seamless integration of a spacious multi-car garage accented by classic gooseneck lighting and warm brick wainscoting. The pristine white board-and-batten siding glows against the winter sky, leading the eye toward the deep, sheltered porch that promises a peaceful retreat even in the heart of the snowy plains.

As the sun dips toward the horizon, its final rays cast a warm, golden glow across this striking facade where rustic brick meets crisp white board-and-batten. The grand gabled entryway, defined by its intricate timber trusses and warm wood-paneled ceiling, serves as a sophisticated focal point that promises a grand welcome to this modern winter sanctuary.

As the sun dips toward the horizon, its final rays cast a warm, golden glow across this striking facade where rustic brick meets crisp white board-and-batten. The grand gabled entryway, defined by its intricate timber trusses and warm wood-paneled ceiling, serves as a sophisticated focal point that promises a grand welcome to this modern winter sanctuary.

Golden Hour Glow
The sprawling silhouette of this modern barndominium is set ablaze by a breathtaking prairie sunset, highlighting the crisp contrast between the dark metal roof and the warm stone accents. Tall, golden grasses dance in the foreground, framing a home that perfectly balances rugged rural charm with sophisticated architectural lines.

The Midnight Sanctuary
Under the vast Oklahoma night sky, the home transforms into a luminous beacon with its expansive wrap-around porch bathed in soft, inviting light. The dual-bay garage stands ready for any project, while the timber-framed gables add a touch of craftsman elegance to the industrial-chic white siding.

From this side vantage point, the rhythmic placement of the black-trimmed windows creates a striking visual pattern against the clean vertical metal panels. The deliberate use of brick skirting grounds the structure, providing a timeless foundation that connects the modern build to the earth beneath it.

The centered timber-truss entryway serves as the home’s crown jewel, drawing the eye toward the handsome double doors that promise a spacious interior. Warm light spills from the large panes, offering a glimpse of the hearth-centered life that awaits inside this contemporary fortress.

Viewed from a dynamic corner angle, the dramatic pitch of the rooflines showcases the home’s impressive scale and the sheer depth of the sheltered porch space. It is easy to imagine a quiet evening spent here, protected from the elements while still feeling completely immersed in the surrounding landscape.

Moving to the rear, the massive gabled patio becomes the ultimate outdoor living room, designed for summer cookouts and starlit conversations. The seamless transition from the indoor living area to this covered expanse proves that this barndominium was built as much for the view as it was for the comfort.
The Heart of the Home: Kitchen & Dining Walkthrough

Culinary Canvas
The kitchen centers around a massive, granite-topped island that serves as both a prep station and a social hub, illuminated by oversized dome pendants. High-contrast cabinetry and professional-grade appliances create a space that is as functional for a chef as it is beautiful for a gallery.

From the vantage point of the kitchen, the open floor plan flows seamlessly into a cozy living area anchored by a floor-to-ceiling brick fireplace. Polished concrete floors reflect the ambient light, tying together the industrial-chic foundation with the home’s warmer, rustic elements.

Backlit glass cabinetry showcases heirloom stoneware, adding a personal, vintage touch to the crisp, modern lines of the kitchen. A deep farmhouse sink sits beneath a wide window, offering a serene view of the horizon while you tackle the day’s tasks.

A pair of reclaimed wooden doors adds an architectural soul to the space, acting as a stunning transition point between the utility areas and the main living hall. The natural grain of the wood stands out against the clean, white walls, grounding the home in timeless craftsmanship.

The dining area is defined by a striking wrought-iron chandelier that casts a warm, inviting light over a farmhouse table built for large family feasts. Expansive windows frame the surrounding fields, ensuring that every meal is accompanied by the ever-changing colors of the landscape.

Double-entry doors with classic window panes provide a grand sense of arrival, perfectly aligning with the home’s open-concept philosophy. The thoughtful placement of the dining furniture allows for an easy, unobstructed flow throughout the main floor, perfect for hosting elegant soirées.
Private Retreats: A Tour of the Bedrooms and Baths

Soft pink curtains frame generous windows that look out over the vast prairie, flooding this charming child’s bedroom with natural light. A vintage-inspired white iron bed and a sparkling beaded chandelier create a dreamy atmosphere that is both playful and serene.

Deep navy drapes provide a bold contrast to the crisp white walls, offering a cozy and secure environment for the littlest member of the family. The dark, polished concrete floors ground the room, while a geometric patterned rug adds a layer of contemporary texture and warmth.

Arched double doors swing open to reveal a spirited workspace and playroom, complete with a rustic cowhide rug and personal trophies that celebrate a love for the great outdoors. A built-in light wood desk and shelving unit offer ample space for both focused study and creative play.

The bathroom features a stunning granite vanity with rich, swirling patterns that perfectly complement the warm brass hardware and elegant lighting. A soft mauve door and matching towels add a subtle, sophisticated pop of color against the clean, minimalist backdrop.

A deep soaking tub sits beneath a high, narrow window, allowing for private views of the sky while you unwind at the end of the day. The matte black rain shower head and minimalist white tiling create a sleek, modern aesthetic that feels like a high-end boutique hotel.

Even the smallest spaces carry the home’s signature style, with a simple and clean water closet featuring ample overhead cabinetry for seamless storage. The dark floors and bright walls continue the high-contrast theme that defines the entire barndominium’s interior design.

In this detailed architectural sketch, the home’s ambitious footprint is laid bare, showcasing a masterful play of geometry and proportion. The clean, precise lines highlight the rhythm of the expansive porch columns and the structural beauty of the central timber trusses, offering a pure vision of the design’s balance before a single drop of paint is applied.

In this technical Front Elevation drawing, the home’s grand proportions are laid bare, showcasing a masterful symmetry that spans a sprawling 100-foot profile. The precise CAD lines detail the rhythm of the windows and the soaring central gable, providing a pure, unfiltered look at the structural bones that give this barndominium its commanding presence.

In this final technical Rear Elevation blueprint, the home’s functional beauty is revealed through a series of expansive glass doors and perfectly aligned windows that promise to flood the living space with natural light. The soaring rooflines and sturdy column placements emphasize a design built for both durability and style, providing a comprehensive “behind-the-scenes” look at the craftsmanship that defines this modern barndominium.


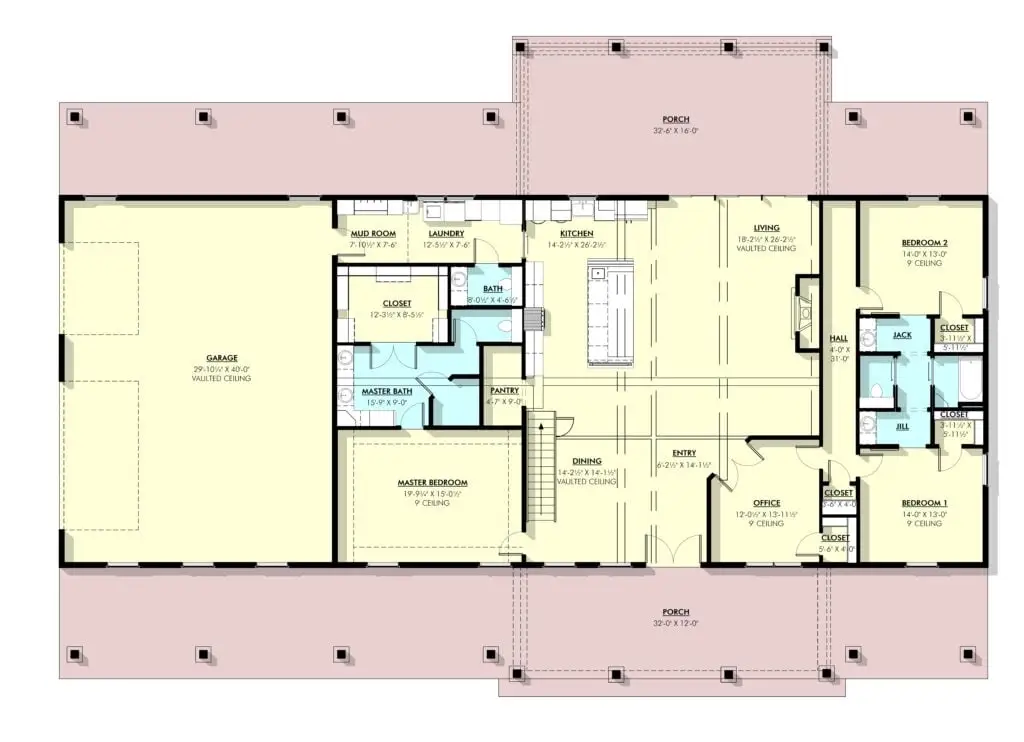
In this detailed Floor Plan blueprint, the home’s intelligent layout is revealed, showcasing a sprawling 100-foot-wide design that masterfully separates private retreats from grand social hubs. The heart of the home features an expansive, vaulted living and dining area that flows seamlessly into a gourmet kitchen, while the massive attached garage and wrap-around porch dimensions illustrate a perfect balance of functional utility and outdoor luxury.

In this comprehensive overhead view, the home’s multi-level potential is fully realized, featuring a generous second-story loft that overlooks the grand, vaulted living spaces below. The blueprint illustrates a masterful use of vertical space, providing a secluded upper-level retreat while maintaining a sense of airy openness and connection to the heart of the home.
Find More Barndominium Floor Plans
By Bedrooms:
1 Bedroom • 2 Bedrooms • 3 Bedrooms • 4 Bedrooms • 5 Bedrooms • 6 Bedrooms • 7 Bedrooms • 8 Bedrooms
By Feature:
1-Story • 2-Story • With Garage • 2 Car Garage • 3 Car Garage • Wraparound Porch • With Breezeway • 2 Master Suites • With Loft • Multi-Family Barndominiums • Open-Concept
By Size:
Small Plans • 800 Sq Ft • 900 Sq Ft • 1000 Sq Ft • 1200 Sq Ft • 30×40 Floor Plans • 1400 Sq Ft • 1500 Sq Ft • 1600 Sq Ft • 40×40 Floor Plans • 1800 Sq Ft • 30×60 Floor Plans • 2000 Sq Ft • 2400 Sq Ft • 2500 Sq Ft • 2800 Sq Ft • 3000 Sq Ft • 3200 Sq Ft • 3600 Sq Ft • 4000 Sq Ft • 5000 Sq Ft •

