
LP-2803 Wickard Barndominium House Plan
Want to buy this house plan? Scroll to the bottom and find the link to purchase.
About this barndominium house plan:
- 4385 Heated square feet
- 3522 Attached 4 car garage
- 3 bedrooms
- 2.2 bathrooms
- 2 Story
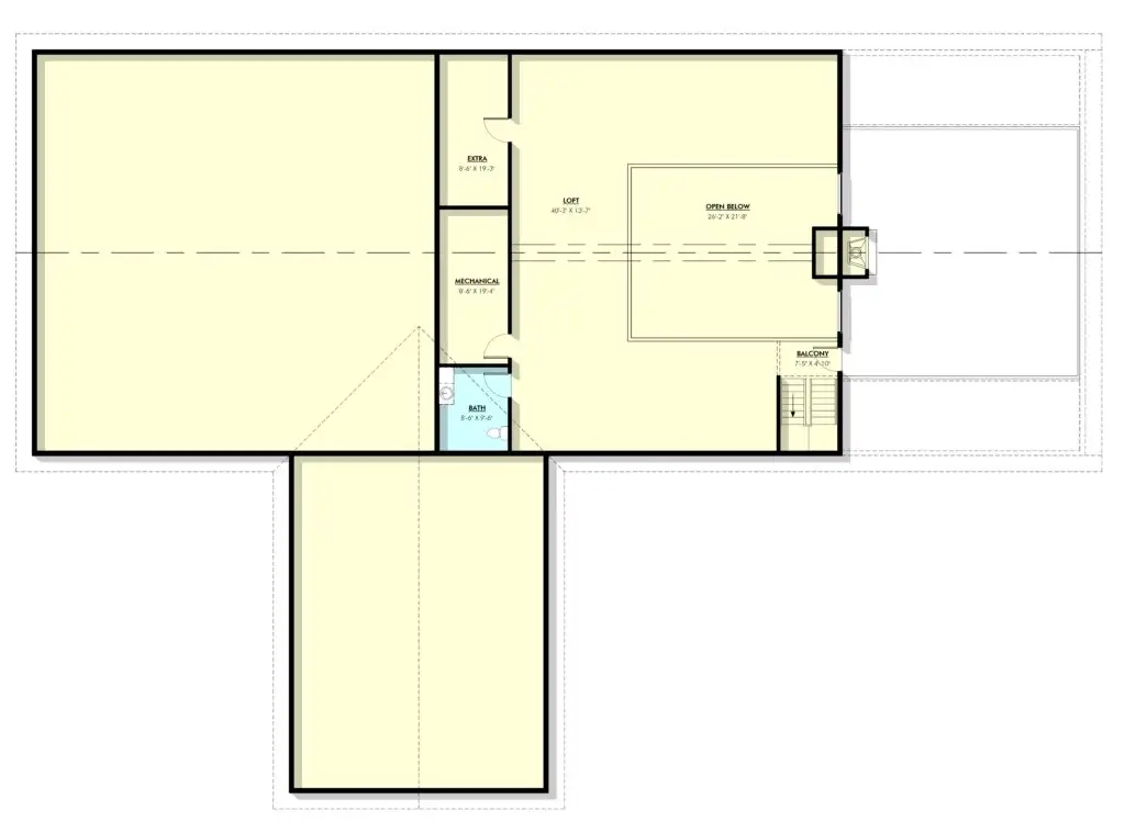
- Loft
- Mudroom
- Outdoor fireplace
- Covered balcony
- Open Concept
- The Wickard barndominium house plan is 4385 heated square feet and features 3 bedrooms, 2 full bathrooms, and 2 half bathrooms.
- The open-concept floor plan allows for the whole family to feel connected when in the main living area of the home.
- An amazing feature that owners love about this home is the separate garages that are attached to the home that cover over 3000 square feet of garage space with the bigger garage having a half bath within it.
- The master bathroom has an en-suite bathroom and a large walk-in closet with an island in the middle of the closet to fold laundry or utilize as a dresser for added storage.
- There are two additional bedrooms on the first floor of this home that are perfect for kids or to create a guest room.
- The kitchen is large and spacious with an island that faces the living area so that even when you are in the kitchen you still feel connected with the family. There is a large pantry located behind the kitchen that has ample storage.
- The second story is open to the downstairs with a nice loft that has plenty of room to create a playroom or teen hangout. There is also a half bath and an extra room to create a space that fits your family.
- Off the second story is an incredible covered balcony so you can enjoy the great outdoors all year long.
- The outdoor fireplace is an added bonus with this Wickard barndominium house plan that you will fall in love with.
For more barndominium floor plans, check out our complete collection of 3 bedroom barndominium floor plans.
Need to make changes? Email our modification department. We will get you a free price quote within 72 hours.
Please note all square footage are estimates.









Find More Barndominium Floor Plans
By Bedrooms:
1 Bedroom • 2 Bedrooms • 3 Bedrooms • 4 Bedrooms • 5 Bedrooms • 6 Bedrooms • 7 Bedrooms • 8 Bedrooms
By Feature:
1-Story • 2-Story • With Garage • 2 Car Garage • 3 Car Garage • Wraparound Porch • With Breezeway • 2 Master Suites • With Loft • Multi-Family Barndominiums • Open-Concept • With Shop
By Size:
Small Plans • 800 Sq Ft • 900 Sq Ft • 1000 Sq Ft • 1200 Sq Ft • 30×40 Floor Plans • 1400 Sq Ft • 1500 Sq Ft • 1600 Sq Ft • 40×40 Floor Plans • 1800 Sq Ft • 30×60 Floor Plans • 2000 Sq Ft • 2400 Sq Ft • 2500 Sq Ft • 2800 Sq Ft • 3000 Sq Ft • 3200 Sq Ft • 3600 Sq Ft • 4000 Sq Ft • 5000 Sq Ft •

